004а
Измјена РП Шарговац
004б
Измјена РП "Шарговац 2" (друга измјена за дио РП)
006
Ревизија РП "Окружни затвор"
009
РП Производно-пословне зоне у Новаковићима
009а
Измјена дијела РП производно-пословне зоне у Новаковићима
010
РП стамбеног насеља у Улицу Благоја Паровића у Новаковићима
011
РП за простор "Новаковићи-Вујиновићи" - секције А. Б и Ц
011а
Измјена дијела РП "Новаковићи-Вујиновићи"
011б
Измјена дијела РП „Новаковићи-Вујиновићи“ – секција А, Б, Ц
011ц
Измјена дијела РП „Новаковићи-Вујиновићи“ – секција А, Б, Ц
011д
Измјена дијела РП за простор "Новаковићи-Вујиновићи", секција А,Б, Ц
013
РП за дио подручја насеља Дервиши и Новаковићи-Вујиновићи
013б
РП "Вујиновићи-Запад"
020
РП за простор зоне утицаја магистралног пута М-16 Градишка-Бања Лука на подручју Града Бања Лука
079а
РП за третирање путних прелаза преко жељезничке пруге у насељима Лазарево, Новаковићи, Куљани и Пријаковци
079б
РП за третирање путних прелаза преко жељезничке пруге у насељима Лазарево, Новаковићи, Куљани и Пријаковци
079ц
РП за третирање путних прелаза преко жељезничке пруге у насељима Лазарево, Новаковићи, Куљани и Пријаковци
079д
РП за третирање путних прелаза преко жељезничке пруге у насељима Лазарево, Новаковићи, Куљани и Пријаковци
091
РП између магистралног пута Бања Лука - Градишка, потока Драгочај, ријеке Врбас и границе територије Града Бања Лука
092
РП Пословне зоне Рамићи
092б
Измјена дијела РП Пословне зоне Рамићи
093
РП Творнице опекарских производа
117
РП "Дервиши 2"
124
Измјена РП за простор регионалне санитарне депоније комуналног чврстог отпада на локалитету Рамићи
127
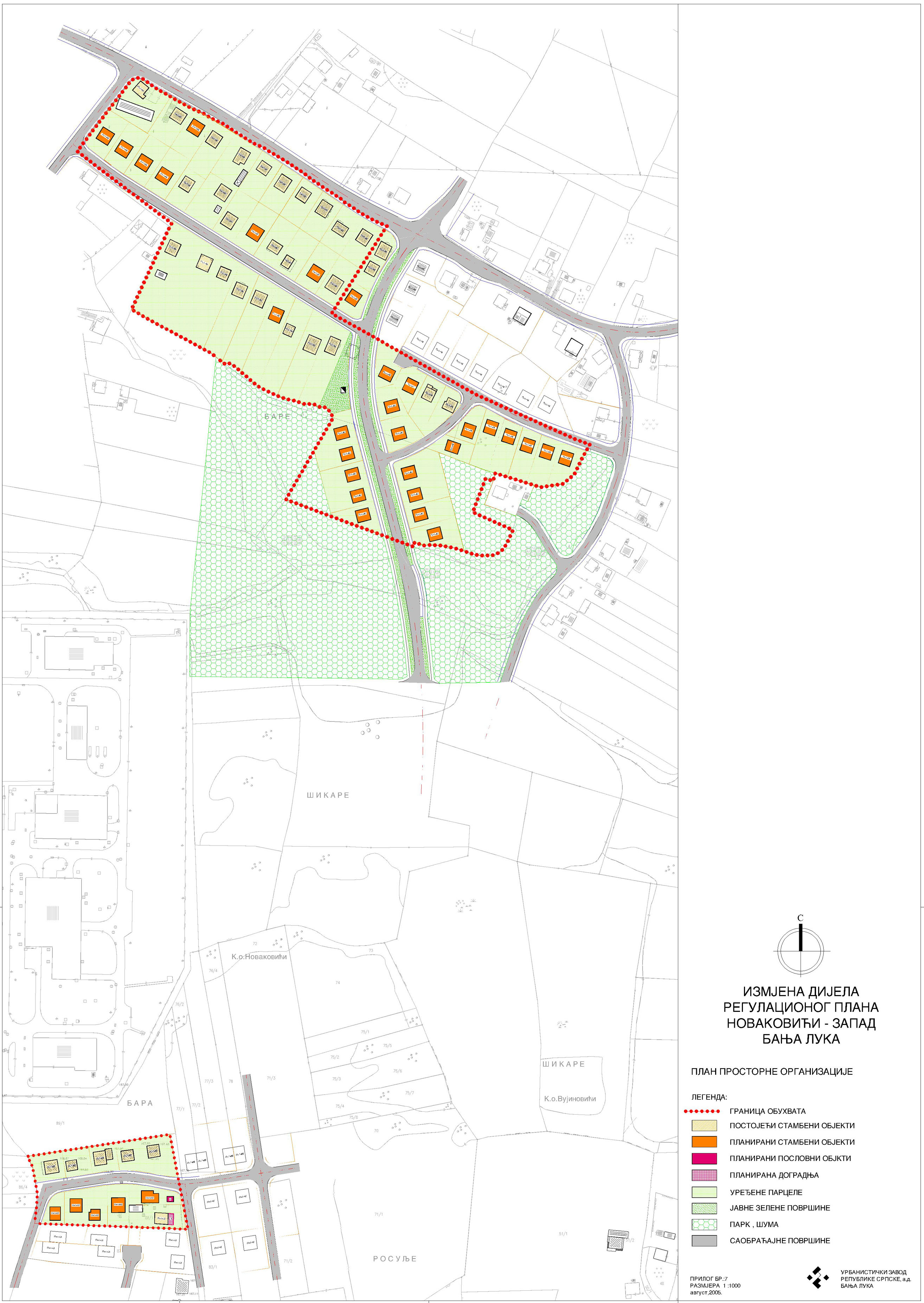
РП "Новаковићи-Запад"
127а
Измјена дијела РП "Новаковићи - Запад"
127б
Измјена дијела РП "Новаковићи-Запад"
128
РП за дио насеља Залужани и Куљани
129
Измјена РП за простор између магистралног пута М-4 и комплекса предузећа "Козарапутеви"
129а
Измјена дијела РП за простор између магистралног пута М-4 и комплекса предузећа "Козарапутеви" у Бањалуци
Функционери
Р.бр. ИМЕ И ПРЕЗИМЕ РАДНО МЈЕСТО ЗАНИМАЊЕ УСТАНОВА И ДАТУМ СТИЦАЊА СВЈЕДОЧАНСТВА/ДИПЛОМЕ
1. МЛАДЕН ИЛИЋ предсједник Скупштине Града дипломирани правник Универзитет за пословне студије - Факултет правних наука, Бања Лука, 30.9.2020. год.
2. САША ЧУДИЋ потпредсједник Скупштине Града др техничких наука Машински факултет Источно Сарајево, 24.3.2014. год.
РБ Број фактуре Датум издавања фактуре Назив добављача Опис услуге Укупан износ фактуре са ПДВ-ом
1 иф-24-0302 4/30/2024   „ОРКА” ОДРЖАВАЊЕ ЕДМWС СИСТЕМА ЗА ПЕРИОД 01.04.-30.04.2024. 585.00
2 70-267/2024 4/26/2024 „МЕДИЈА ПРО” ПРИЈЕДОР ОДРЖАВАЊЕ АПЛИКАЦИЈЕ ЗА ВОЂЕЊЕ ПОМОЋНЕ КЊИГЕ ПОТРАЖИВАЊА ЗА АПРИЛ 24. 585.00
3 5551101010404540 2/29/2024 „НОВА БАНКА” а.д. БАЊА ЛУКА БАНКАРСКЕ УСЛУГЕ 297.30
4 304478550 2/29/2024 „НОВА БАНКА” а.д. БАЊА ЛУКА БАНКАРСКЕ УСЛУГЕ 472.80
5 304478547 2/29/2024 „НОВА БАНКА” а.д. БАЊА ЛУКА БАНКАРСКЕ УСЛУГЕ 5.00
6 304478545 2/29/2024 „НОВА БАНКА” а.д. БАЊА ЛУКА БАНКАРСКЕ УСЛУГЕ 38.30
7 304478543 2/29/2024 „НОВА БАНКА” а.д. БАЊА ЛУКА БАНКАРСКЕ УСЛУГЕ 5.00
8 304478540 2/29/2024 „НОВА БАНКА” а.д. БАЊА ЛУКА БАНКАРСКЕ УСЛУГЕ 5.00
9 304482047 2/29/2024 „НОВА БАНКА” а.д. БАЊА ЛУКА БАНКАРСКЕ УСЛУГЕ 158.20
10 304482209 2/29/2024 „НОВА БАНКА” а.д. БАЊА ЛУКА БАНКАРСКЕ УСЛУГЕ 5.00
11 304482226 2/29/2024 „НОВА БАНКА” а.д. БАЊА ЛУКА БАНКАРСКЕ УСЛУГЕ 5.00
12 5551101010404540 4/30/2024 „НОВА БАНКА” а.д. БАЊА ЛУКА ОУР ТРОШКОВИ 312.94
13 05050001-738/24 5/15/2024 ЈЗУ „ДОМ ЗДРАВЉА” БАЊА ЛУКА САНИТЕТСКО ОБЕЗБЈЕЂЕЊЕ ЕКИПЕ 300.00
14 24-3070-000991 5/8/2024 „ТРИ БЕСТ” д.о.о. БАЊА ЛУКА МЈЕСЕЧНИ СЕРВИС ЛИФТА 374.40
15 24-3071-000248 7/25/2024 „ТРИ БЕСТ” д.о.о. БАЊА ЛУКА МЈЕСЕЧНИ СЕРВИС ЛИФТА 117.00
16 00289/2024 4/25/2024 ХОТЕЛ ПАЛАС БАЊА ЛУКА ЈН-ИЗБОР ХОТЕЛА ЗА СМЈЕШТАЈ ГОСТИЈУ И УГОСТИТЕЉСКЕ УСЛУГЕ 15-404-451/23 3,613.00
17 00315/2024 5/5/2024 ХОТЕЛ ПАЛАС БАЊА ЛУКА ЈН-ИЗБОР ХОТЕЛА ЗА СМЈЕШТАЈ ГОСТИЈУ И УГОСТИТЕЉСКЕ УСЛУГЕ 15-404-451/23 1,608.50
18 1574 5/27/2024 „КЕЦКОМ” д.о.о. ХИГИЈЕНСКИ ПАПИР 334.62
19 2171 7/12/2024 „КЕЦКОМ” д.о.о. НАБАВКА КАНЦЕЛАРИЈСКОГ МАТЕРИЈАЛА 31,458.63
20 1/24/2665 4/30/2024 „ЛАНАКО” БАЊА ЛУКА НАПРЕДНА ЦЕНТРАЛА УСЛУГА ИСПОРУКЕ, ИНСТАЛАЦИЈЕ, КОНФИГУРАЦИЈЕ И ПУШТАЊА У ПРОДУКЦИОНИ РЕЖИМ РАДА 434.87
21 1/24/2341 4/25/2024 „ЛАНАКО” БАЊА ЛУКА ОДРЖАВАЊЕ АПЛИКАЦИЈЕ „ШИХТЕРИЦА” ЗА АПРИЛ 24. 418.86
22 1/24/2345 4/25/2024 „ЛАНАКО” БАЊА ЛУКА НАПРЕДНА ЦЕНТРАЛА УСЛУГА КОЛОКАЦИЈЕ ИКТ ОПРЕМЕ ЗА МЈЕСЕЦ АПРИЛ 2024. 2,925.00
23 1/24/3204 5/30/2024 „ЛАНАКО” БАЊА ЛУКА НАПРЕДНА ЦЕНТРАЛА КОЛОКАЦИЈА ИКТ ОПРЕМЕ ЗА МАЈ 2024. 2,925.00
24 1/24/3932 6/28/2024 „ЛАНАКО” БАЊА ЛУКА РАЧУН БРОЈ 1-3932/24 ОД 28. 06. 2024 ЗА 2024. 582.66
25 9000299519 7/16/2024  „ЕЛЕКТРОКРАЈИНА“ а.д. БАЊА ЛУКА ТАКСА ЗА ИЗРАДУ ДОКУМЕНТА ЕЛЕКТРОЕНЕРГЕТСКЕ САГЛАСНОСТИ ЗА СТАН У УЛ. КРАЈИШКЕ БРИГАДЕ НО БР. 5 29.25
26 333914 8/26/2024  „ЕЛЕКТРОКРАЈИНА“ а.д. БАЊА ЛУКА ЕЕЦ ПАРК КИНО КОЗАРА 1,877.87
27 318783 8/26/2024  „ЕЛЕКТРОКРАЈИНА“ а.д. БАЊА ЛУКА ЕЕЦ ЗА ПАРК КИНО КАЗАРА 45.63
28 у24-0183 4/29/2024 „ТЕЛЕГРУП” д.о.о. БАЊА ЛУКА ОДРЖАВАЊЕ МРЕЖНЕ ОПРЕМЕ ЗА АПРИЛ 2024. ГОДИНЕ 778.80
29 2,3-11988/2024 4/23/2024 „ИНТЕРГРА ИНЖЕЊЕРИНГ” д.о.о., ИНТЕГРА РЕСТОРАН И ЛАНЧ БАР БАЊА ЛУКА ЈН-ИЗБОР ХОТЕЛА ЗА СМЈЕШТАЈ ГОСТИЈУ И УГОСТИТЕЉСКЕ УСЛУГЕ 15-404-451/23 2,511.32
30 Х-2641/2024 4/25/2024 „ИНТЕРГРА ИНЖЕЊЕРИНГ” д.о.о., ИНТЕГРА РЕСТОРАН И ЛАНЧ БАР БАЊА ЛУКА ЈН-ИЗБОР ХОТЕЛА ЗА СМЈЕШТАЈ ГОСТИЈУ И УГОСТИТЕЉСКЕ УСЛУГЕ 15-404-451/23 1,152.00
31 Фрб1019/24 7/17/2024 „КМЦ” д.о.о. БАЊА ЛУКА КАНЦЕЛАРИЈСКИ МАТЕРИЈАЛ 23,381.44
32 24-362-000019 4/23/2024 „АКВАНА” д.о.о. БАЊА ЛУКА РЕПРЕЗЕНТАЦИЈА 1,548.60
33 24-362-000017 4/12/2024 „АКВАНА” д.о.о. БАЊА ЛУКА РЕПРЕЗЕНТАЦИЈА 1,343.80
34 24-362-000028 7/3/2024 „АКВАНА” д.о.о. БАЊА ЛУКА РЕПРЕЗЕНТАЦИЈА 1,785.40
35 24-362-000029 7/3/2024 „АКВАНА” д.о.о. БАЊА ЛУКА РЕПРЕЗЕНТАЦИЈА 1,697.20
36 24-362-000030 7/5/2024 „АКВАНА” д.о.о. БАЊА ЛУКА РЕПРЕЗЕНТАЦИЈА 1,445.80
37 24-362-000033 7/5/2024 „АКВАНА” д.о.о. БАЊА ЛУКА РЕПРЕЗЕНТАЦИЈА 1,128.50
38 24-362-000022 6/4/2024 „АКВАНА” д.о.о. БАЊА ЛУКА РЕПРЕЗЕНТАЦИЈА 75.00
39 24-362-000027 6/18/2024 „АКВАНА” д.о.о. БАЊА ЛУКА РЕПРЕЗЕНТАЦИЈА 28.80
40 24-362-000026 6/18/2024 „АКВАНА” д.о.о. БАЊА ЛУКА РЕПРЕЗЕНТАЦИЈА 87.50
41 24-362-000025 6/18/2024 „АКВАНА” д.о.о. БАЊА ЛУКА РЕПРЕЗЕНТАЦИЈА 59.20
42 24-362-000024 6/18/2024 „АКВАНА” д.о.о. БАЊА ЛУКА РЕПРЕЗЕНТАЦИЈА 162.70
43 иф-00269-1-24 5/21/2024 АПИФ БАЊА ЛУКА ИЗВОД ИЗ ЈРР БР. 14-017-2332/23 17.55
44 иф-00398-1-24 7/29/2024 АПИФ БАЊА ЛУКА ИЗВОД ИЗ ЈРР БР. 14-017-172/24 17.55
45 ИФ-02048-01-24 5/22/2024 „ПРИМАПРОМ” д.о.о. БАЊА ЛУКА КАНЦЕЛАРИЈСКИ МАТЕРИЈАЛ 2,199.69
46 МФК-00584-11-24 7/24/2024 „РОТАС” а.д. БАЊА ЛУКА ТЕХНИЧКИ ПРЕГЛЕД ЗА РЕГИСТРАЦИЈУ ВОЗИЛА 65.33
47 МФК-00578-11-24 7/23/2024 „РОТАС” а.д. БАЊА ЛУКА ТЕХНИЧКИ ПРЕГЛЕД ЗА РЕГИСТРАЦИЈУ ВОЗИЛА К82-А-098 54.83
48 МФК-00577-11-24 7/23/2024 „РОТАС” а.д. БАЊА ЛУКА ТЕХНИЧКИ ПРЕГЛЕД ЗА РЕГИСТРАЦИЈУ ВОЗИЛА М36-Ј-511 54.83
49 МФК-00670-11-24 8/8/2024 „РОТАС” а.д. БАЊА ЛУКА ТЕХНИЧКИ ПРЕГЛЕДЈ85-Е-468 19.83
50 МФК-00671-11-24 8/8/2024 „РОТАС” а.д. БАЊА ЛУКА ТЕХНИЧКИ ПРЕГЛЕД Ј85-Е-465 19.83
51 МФК-00672-11-24 8/8/2024 „РОТАС” а.д. БАЊА ЛУКА ТЕХНИЧКИ ПРЕГЛЕД Ј85-Е-467 19.83
52 МФК-00668-11-24 8/8/2024 „РОТАС” а.д. БАЊА ЛУКА ТЕХНИЧКИ ПРЕГЛЕД А32-О-395 50.16
53 МФК-00664-11-24 8/7/2024 „РОТАС” а.д. БАЊА ЛУКА ТЕХНИЧКИ ПРЕГЛЕД М96-Е-897 65.33
54 МФК-00669-11-24 8/8/2024 „РОТАС” а.д. БАЊА ЛУКА ТЕХНИЧКИ ПРЕГЛЕД Ј85-Е-466 19.83
55 01/2401001348 4/4/2024 „СЛАДАБОНИ” д.о.о. КЊИЖАРА КУЛТУРА БАЊА ЛУКА БАТЕРИЈА 12В 13АХ ФУЛБАТ АГМ ФПЦ 12-13 3,424.10
56 01/2401002267 6/11/2024 „СЛАДАБОНИ” д.о.о. КЊИЖАРА КУЛТУРА БАЊА ЛУКА БАТЕРИЈА 12В 1,491.87
57 5034294044 4/30/2024 РАДИО ТЕЛЕВИЗИЈА РС БАЊА ЛУКА РТВ ТАКСА 04/24 7.50
58 5017153044 4/30/2024 РАДИО ТЕЛЕВИЗИЈА РС БАЊА ЛУКА РТВ ТАКСА 04/24 7.50
59 4033422044 4/30/2024 РАДИО ТЕЛЕВИЗИЈА РС БАЊА ЛУКА РТВ ТАКСА 04/24 7.50
60 683/24-02с 5/15/2024 ЛАДА АУТО БАЊА ЛУКА СЕРВИС ВОЗИЛА 256.11
61 24-3600-000733 5/14/2024 ИНСТИТУТ ЗА ЗАШТИТУ И ЕКОЛОГИЈУ РС МЈЕРЕЊЕ КВАЛИТЕТА ВАЗДУХА 1,520.30
62 24-3600-000732 5/14/2024 ИНСТИТУТ ЗА ЗАШТИТУ И ЕКОЛОГИЈУ РС МЈЕРЕЊЕ БУКЕ 1,520.30
63 24-3600-000729 5/13/2024 ИНСТИТУТ ЗА ЗАШТИТУ И ЕКОЛОГИЈУ РС МЈЕРЕЊЕ КВАЛИТЕТЕ ВАЗДУХА 1,516.04
64 24-3600-000576 4/8/2024 ИНСТИТУТ ЗА ЗАШТИТУ И ЕКОЛОГИЈУ РС МЈЕРЕЊЕ КВАЛИТЕТА ВАЗДУХА 1,520.30
65 30001000550954 4/22/2024 „ЦЕНТРУМ ТРАДЕ” д.о.о. БАЊА ЛУКА БАРИЈЕРА УКРАСНА 795.00
66 2-4309/2024 5/31/2024 „СУПЕР ПЕТРОЛ” д.о.о. БАЊА ЛУКА НАБАВКА ГОРИВА 26.25
67 2-4048/2024 5/31/2024 „СУПЕР ПЕТРОЛ” д.о.о. БАЊА ЛУКА НАБАВКА ГОРИВА 6,439.51
68 2-4783/2024 6/15/2024 „СУПЕР ПЕТРОЛ” д.о.о. БАЊА ЛУКА НАБАВКА ГОРИВА 17.00
69 2-4783/2024 6/15/2024 „СУПЕР ПЕТРОЛ” д.о.о. БАЊА ЛУКА НАБАВКА ГОРИВА 17.00
70 2-4525/2024 6/15/2024 „СУПЕР ПЕТРОЛ” д.о.о. БАЊА ЛУКА НАБАВКА ГОРИВА 4,767.45
71 2-4986/2024 6/30/2024 „СУПЕР ПЕТРОЛ” д.о.о. БАЊА ЛУКА НАБАВКА ГОРИВА 5,771.92
72 2-3625/2024 5/15/2024 „СУПЕР ПЕТРОЛ” д.о.о. БАЊА ЛУКА НАБАВКА ГОРИВА 2,620.54
73 2-6596/2024 8/15/2024 „СУПЕР ПЕТРОЛ” д.о.о. БАЊА ЛУКА НАБАВКА ГОРИВА 22.75
74 2-6354/2024 8/15/2024 „СУПЕР ПЕТРОЛ” д.о.о. БАЊА ЛУКА НАБАВКА ГОРИВА 5,788.17
75 2-5679/2024 7/15/2024 „СУПЕР ПЕТРОЛ” д.о.о. БАЊА ЛУКА НАБАВКА ГОРИВА 23.28
76 2-5427/2024 7/15/2024 „СУПЕР ПЕТРОЛ” д.о.о. БАЊА ЛУКА НАБАВКА ГОРИВА 5,507.81
77 2-5867/2024 7/31/2024 „СУПЕР ПЕТРОЛ” д.о.о. БАЊА ЛУКА НАБАВКА ГОРИВА 6,492.49
78 2-6131/2024 7/31/2024 „СУПЕР ПЕТРОЛ” д.о.о. БАЊА ЛУКА НАБАВКА ГОРИВА 18.38
79 2-6074/2024 7/31/2024 „СУПЕР ПЕТРОЛ” д.о.о. БАЊА ЛУКА ГОРИВО ЗА ПОТРЕБЕ ГИК-а 400.05
80 2-6076/2024 7/31/2024 „СУПЕР ПЕТРОЛ” д.о.о. БАЊА ЛУКА ГОРИВО ЗА ПОТРЕБЕ ГИК-а 50.01
81 ИИ ПРИВРЕМЕНА СИТУАЦИЈА 49 7/31/2024 „ГРАДИП” а.д. ПРЊАВОР ДРУГА ПРИВРЕМЕНА СИТУАЦИЈА БРОЈ 49 ОД 31. 07. 2024. ГОДИНЕ 133,424.08
82 2024-11-000053 8/2/2024 „ГРАДИП” а.д. ПРЊАВОР РЕКОНСТРУКЦИЈА ОБЈЕКТА СОКОЛСКОГ ДОМА 731,655.69
83 И привремена ситуација бр 54 8/21/2024 „ГРАДИП” а.д. ПРЊАВОР 1 ПРИВРЕМЕНА СИТУАЦИЈА - ЗА ИЗВРШЕНЕ РАДОВЕ - АВГУСТ 2024. 99,951.72
84 ИИИ ПРИВРЕМЕНА СИТУАЦИЈА 37 5/31/2024 „ГРАДИП” а.д. ПРЊАВОР ИЗГРАДЊА ПАРКА КЊИГЕ 76,187.15
85 ИВ привремена ситуација бр 45 6/29/2024 „ГРАДИП” а.д. ПРЊАВОР ИЗГРАДЊА ПАРКА КЊИГЕ 67,898.28
86 145724-235 ВИ привремена ситуација 7/4/2024 ЕУРО ЗНАК ВИ ПРИВРЕМЕНА СИТУАЦИЈА 28,053.56
87 47/2024 8/5/2024 „ТАМАРИС КОМПАНИ” д.о.о. БАЊА ЛУКА ОДРЖАВАЊЕ ЈАВНИХ ЗЕЛЕНИХ ПОВРШИНА 287,217.39
88 иф-00189-1-24 7/31/2024 „РАЛЕ ТУРС” д.о.о. БАЊА ЛУКА НАКНАДА ПО УГОВОРУ 2,645.00
89 иф-00188-1-24 7/31/2024 „РАЛЕ ТУРС” д.о.о. БАЊА ЛУКА СУБВЕНЦИЈЕ 13,250.32
90 иф-00186/1/24 7/31/2024 „РАЛЕ ТУРС” д.о.о. БАЊА ЛУКА СУБВЕНЦИЈЕ 35,529.12
91 ИФ-00199-1-24 8/12/2024 „РАЛЕ ТУРС” д.о.о. БАЊА ЛУКА СУБВЕНЦИЈЕ 6,796.80
92 40-1100-2024-950 5/22/2024 „ЕУРОМОДУС” ЛАКТАШИ ОПРАВКА НА ВОЗИЛУ Е53-М-306 784.53
93 81-1236/2024 5/21/2024 ГЛАС СРПСКЕ БАЊА ЛУКА ОБЈАВА ОГЛАСА О ИЗДАВАЊУ У ЗАКУП П. П. НА БАЊ БРДУ 611.33
94 81-1251/2024 5/22/2024 ГЛАС СРПСКЕ БАЊА ЛУКА ОБЈАВА ОГЛАСА 277.88
95 81-969/2024 4/23/2024 ГЛАС СРПСКЕ БАЊА ЛУКА РАЧУН ЗА ОБЈАВУ ОГЛАСА О ПРОДАЈИ НЕПОКРЕТНОСТИ У ЛУСИЋИМА 611.33
96 81-790/2024 4/4/2024 ГЛАС СРПСКЕ БАЊА ЛУКА ПЛАЋАЊЕ ОБАВЈЕШТЕЊА О ОДРЖАВАЊУ ЈАВНЕ РАСПРАВЕ О НАЦРТУ ИЗМЈЕНЕ ДИЈЕЛА РЕГ. ПЛАНА „НОВАКОВИЋИ ЗАПАД” 333.45
97 81-616/2024 3/18/2024 ГЛАС СРПСКЕ БАЊА ЛУКА ПЛАЋАЊЕ ДРУГОГ ОБАВЈЕШТЕЊА ДА ЈЕ НАЦРТ ИЗМЈЕНЕ ДИЈЕЛА РЕГ. ПЛАНА „НОВАКОВИЋИ ЗАПАД”, ИЗЛОЖЕН НА ПОНОВНИ ЈАВНИ УВИД 166.73
98 81-730/2024 3/29/2024 ГЛАС СРПСКЕ БАЊА ЛУКА ПЛАЋАЊЕ ОБАВЈЕШТЕЊА О ОДРЖАВАЊУ ЈАВНЕ РАСПРАВЕ О НАЦРТУ ИЗМЈЕНЕ ДИЈЕЛА РЕГ. ПЛАНА „ВРБАЊА” 333.45
99 81-701/2024 3/29/2024 ГЛАС СРПСКЕ БАЊА ЛУКА ПЛАЋАЊЕ ОБАВЈЕШТЕЊА ДА ЈЕ НАЦРТ ИЗМЈЕНЕ ДИЈЕЛА РЕГ. ПЛАНА „АДА ДЕБЕЉАЦИ 4” ИЗЛОЖЕН НА ЈАВНИ УВИД 166.73
100 81-729/2024 3/29/2024 ГЛАС СРПСКЕ БАЊА ЛУКА ПЛАЋАЊЕ ОБАВЈЕШТЕЊА О ОДРЖАВАЊУ ЈАВНЕ РАСПРАВЕ О НАЦРТ ИЗМЈЕНЕ ДИЈЕЛА РЕГ. ПЛАНА„СТАРЧЕВИЦА 2” 333.45
101 81-829/2024 4/9/2024 ГЛАС СРПСКЕ БАЊА ЛУКА ПЛАЋАЊЕ ДРУГОГ ОБАВЈЕШТЕЊА ДА ЈЕ НАЦРТ ИЗМЈЕНЕ ДИЈЕЛА РЕГ. ПЛАНА „ЈУГ 7” ИЗЛОЖЕН НА ПОНОВНИ ЈАВНИ УВИД 166.73
102 4/2/2024 5/10/2024 САВЕЗ ОПШТИНА И ГРАДОВА РС ЧЛАНАРИНА 8,963.60
103 9/1/2024 3/29/2024 „МФ БАНКА” а.д. БАЊА ЛУКА БАНКАРСКЕ УСЛУГЕ 5.00
104 4/1/2024 3/28/2024 „МФ БАНКА” а.д. БАЊА ЛУКА БАНКАРСКЕ УСЛУГЕ 5.00
105 УСЛ-00083-1-24 5/17/2024 „РУТИНГ” д.о.о. БАЊА ЛУКА ПРОЈЕКАТ ХОРТИКУЛТУРЕ У ГАЈЕВОЈ 1,053.00
106 УСЛ-00082-1-24 5/17/2024 „РУТИНГ” д.о.о. БАЊА ЛУКА УТУ ЗА ДЕЛТА ПАРК 2,925.00
107 УСЛ-00084-1-24 5/17/2024 „РУТИНГ” д.о.о. БАЊА ЛУКА ПРОЈЕКАТ ХОРТИКУЛТУРЕ У УЛ. ИВАНА ФРАЊЕ ЈУКИЋА 1,053.00
108 24-3600-0046 4/15/2024 „УРБИС ЦЕНТАР” д.о.о. БАЊА ЛУКА ПЛАЋАЊЕ ОСТАТКА ИЗНОСА ЗА ИЗРАДУ РЕГУЛАЦИОНОГ ПЛАНА ПОСЛОВНЕ ЗОНЕ У НОВАКОВИЋИМА 4,599.00
109 001-0121 5/13/2024 „АБЦ СОЛУТИОНС” д.о.о. БАЊА ЛУКА РЕДОВНО ОДРЖАВАЊЕ ЈАВНЕ РАСВЈЕТЕ 2,815.47
110 001-0122 5/13/2024 „АБЦ СОЛУТИОНС” д.о.о. БАЊА ЛУКА РЕДОВНО ОДРЖАВАЊЕ ЈАВНЕ РАСВЈЕТЕ 7,347.02
111 001-0089 4/11/2024 „АБЦ СОЛУТИОНС” д.о.о. БАЊА ЛУКА ИНВЕСТИЦИОНО ОДРЖАВАЊЕ ЈАВНЕ РАСВЈЕТЕ 1,117.35
112 001-0161 6/6/2024 „АБЦ СОЛУТИОНС” д.о.о. БАЊА ЛУКА ОДРЖАВАЊЕ ЈАВНЕ РАСВЈЕТЕ 9,646.07
113 001-0162 6/6/2024 „АБЦ СОЛУТИОНС” д.о.о. БАЊА ЛУКА ИНВЕСТИЦИОНО ОДРЖАВАЊЕ ЈАВНЕ РАСВЈЕТЕ 1,258.92
114 001-0163 6/6/2024 „АБЦ СОЛУТИОНС” д.о.о. БАЊА ЛУКА ОДРЖАВАЊЕ ЈАВНЕ РАСВЈЕТЕ 8,180.76
115 001-0263 прва привремена ситуација 8/20/2024 „АБЦ СОЛУТИОНС” д.о.о. БАЊА ЛУКА ИЗГРАДЊА ПАРКОВСКИХ СТАЗА У ЋИРИЛИЧНОМ ПАРКУ 57,979.76
116 001-0253 8/1/2024 „АБЦ СОЛУТИОНС” д.о.о. БАЊА ЛУКА РЕКОНСТРУКЦИЈА ТВРЂАВЕ КАСТЕЛ 94,970.36
117 001-0221 7/24/2024 „АБЦ СОЛУТИОНС” д.о.о. БАЊА ЛУКА ИНВЕСТИЦИОНО ОДРЖАВАЊЕ ЈАВНЕ РАСВЈЕТЕ 22,475.70
118 001-0220 7/24/2024 „АБЦ СОЛУТИОНС” д.о.о. БАЊА ЛУКА РЕДОВНО ОДРЖАВАЊЕ ЈАВНЕ РАСВЈЕТЕ 5,909.67
119 001-0219 7/24/2024 „АБЦ СОЛУТИОНС” д.о.о. БАЊА ЛУКА ОДРЖАВАЊЕ ЈАВНЕ РАСВЈЕТЕ 16,158.41
120 2.1.-С-342/24 4/5/2024 РЕСТОРАН „КАЗАМАТ” д.о.о. БАЊА ЛУКА ЈН-ИЗБОР РЕСТОРАНА ЗА УГ. УСЛУГЕ ЗА ПРОТОКОЛАРНЕ ДОГАЂАЈЕ 15-404-463/23 775.50
121 2.1-с-347/24 4/6/2024 РЕСТОРАН „КАЗАМАТ” д.о.о. БАЊА ЛУКА ЈН-ИЗБОР РЕСТОРАНА ЗА УГ. УСЛУГЕ И ПРОТОКОЛАРНЕ ДОГАЂАЈЕ 15-404-463/23 261.00
122 6/24 7/31/2024 „ЕКО ВОКС” д.о.о. БАЊА ЛУКА ОДРЖАВАЊЕ ТОАЛЕТ КАБИНА 8,892.00
123 2114/2024 2/6/2024 „ВИВИЈА ОФИС & ХОМЕ” д.о.о. БАЊА ЛУКА СЕТ ВОДА И ЧАШЕ 214.50
124 9035/2024 5/22/2024 „ВИВИЈА ОФИС & ХОМЕ” д.о.о. БАЊА ЛУКА СЕТ ВОДА И ЧАШЕ 284.50
125 ИФ-00123-1-24 5/13/2024 АУТОПРЕВОЗ ГРАДСКИ САОБРАЋАЈ д.о.о. МЈЕСЕЧНЕ КАРТЕ ЗА МАЈ 2024. ЗА УЧЕНИКЕ РОМСКЕ ПРИПАДНОСТИ 60.00
126 иф-00195-1-24 7/31/2024 АУТОПРЕВОЗ ГРАДСКИ САОБРАЋАЈ д.о.о. СУБВЕНЦИЈЕ 71,072.67
127 иф-00199-1-24 8/1/2024 АУТОПРЕВОЗ ГРАДСКИ САОБРАЋАЈ д.о.о. МЈЕСЕЧНЕ КАРТЕ 8,215.83
128 иф-00198-1-24 8/1/2024 АУТОПРЕВОЗ ГРАДСКИ САОБРАЋАЈ д.о.о. СУБВЕНЦИЈЕ 2,409.15
129 ИФ-00217-1-24 8/13/2024 АУТОПРЕВОЗ ГРАДСКИ САОБРАЋАЈ д.о.о. НАКНАДЕ ПО ОСНОВУ РАЗЛИКЕ ЦИЈЕНА МК 10,467.77
130 383/2024 8/22/2024 НОТАР ЈАНА РОДИЋ НОТАР 416.52
131 384/2024 8/22/2024 НОТАР ЈАНА РОДИЋ НОТАРСКИ ТРОШКОВИ 35.10
132 291/2024 6/19/2024 НОТАР ЈАНА РОДИЋ УСЛУГА ОБРАДЕ НОТАРСКОГ УГОВОРА ОПУ БРОЈ 357/24 377.32
133 4/1/2024 5/27/2024 ЗАЈЕДНИЦА ЕТАЖНИХ ВЛАСНИКА КРАЉА АЛФОНСА 13 БР. 31, БАЊА ЛУКА ЗЕВ 04/24 41.80
134 5/1/2024 5/27/2024 ЗАЈЕДНИЦА ЕТАЖНИХ ВЛАСНИКА КРАЉА АЛФОНСА 13 БР. 31, БАЊА ЛУКА ЗЕВ 05/24 41.80
135 135/2024 4/18/2024 ЗЕВ РЕЉЕ КРИЛАТИЦЕ 3, БАЊА ЛУКА РАЧУН ЗА ИИИ 2024. ЗА П. П. БР. 111 9.40
136 6/1/2024 6/26/2024 ЗЕВ КАЛЕМЕГДАНСКА 5 ЗЕВ АПРИЛ-ЈУНИ 118.80
137 71/24 4/30/2024 ЗЕВ РОМАНИЈСКА 1 Ф, БАЊА ЛУКА РАЧУН ЗА ИВ 2024. ЗА СТАН БР. 14 16.00
138 33-1001612 5/2024 5/31/2024 ЕКО ТОПЛАНЕ ДОО БАЊА ЛУКА ГРИЈАЊЕ 05/24 251.87
139 33-31924 5/2024 5/31/2024 „ЕКО ТОПЛАНЕ” д.о.о. БАЊА ЛУКА РАЧУН ЗА В 2024. ЗА СТАН БР. 21 У УЛ. К. АЛФОНСА XИИИ БР. 38 125.90
140 33-1001473 4/2024 4/30/2024 „ЕКО ТОПЛАНЕ” д.о.о. БАЊА ЛУКА ИСПОРУЧЕНА ТОПЛОТНА ЕНЕРГИЈА 256.17
141 33-1000191 5/2024 5/31/2024 „ЕКО ТОПЛАНЕ” д.о.о. БАЊА ЛУКА ГРИЈАЊЕ 05/24 301.81
142 33-1001491 6/2024 6/30/2024 „ЕКО ТОПЛАНЕ” д.о.о. БАЊА ЛУКА ГРИЈАЊЕ 06/2024 308.37
143 33-1000190 6/2024 6/30/2024 „ЕКО ТОПЛАНЕ” д.о.о. БАЊА ЛУКА ГРИЈАЊЕ 06/2024 243.92
144 33-1001265 6/2024 6/30/2024 „ЕКО ТОПЛАНЕ” д.о.о. БАЊА ЛУКА ГРИЈАЊЕ 06/2024 996.97
145 33-1001263 6/2024 6/30/2024 „ЕКО ТОПЛАНЕ” д.о.о. БАЊА ЛУКА ГРИЈАЊЕ 06/2024 732.49
146 33-1001127 6/2024 6/30/2024 „ЕКО ТОПЛАНЕ” д.о.о. БАЊА ЛУКА ГРИЈАЊЕ 06/2024 612.34
147 33-1001115 6/2024 6/30/2024 „ЕКО ТОПЛАНЕ” д.о.о. БАЊА ЛУКА ГРИЈАЊЕ 06/2024 111.84
148 33-1000836 6/2024 6/30/2024 „ЕКО ТОПЛАНЕ” д.о.о. БАЊА ЛУКА ГРИЈАЊЕ 06/2024 301.50
149 33-1000749 6/2024 6/30/2024 „ЕКО ТОПЛАНЕ” д.о.о. БАЊА ЛУКА ГРИЈАЊЕ 06/2024 168.02
150 33-1000566 6/2024 6/30/2024 „ЕКО ТОПЛАНЕ” д.о.о. БАЊА ЛУКА ГРИЈАЊЕ 06/2024 530.79
151 33-1001612 6/2024 6/30/2024 „ЕКО ТОПЛАНЕ” д.о.о. БАЊА ЛУКА ГРИЈАЊЕ 06/2024 252.59
152 33-1001486 6/2024 6/30/2024 „ЕКО ТОПЛАНЕ” д.о.о. БАЊА ЛУКА ГРИЈАЊЕ 06/2024 119.41
153 33-1001266 6/2024 6/30/2024 „ЕКО ТОПЛАНЕ” д.о.о. БАЊА ЛУКА ГРИЈАЊЕ 06/2024 40.98
154 33-1001496 6/2024 6/30/2024 „ЕКО ТОПЛАНЕ” д.о.о. БАЊА ЛУКА ГРИЈАЊЕ 06/2024 164.39
155 33-1001852 6/2024 6/30/2024 „ЕКО ТОПЛАНЕ” д.о.о. БАЊА ЛУКА ГРИЈАЊЕ 06/2024 314.24
156 33-1002493 6/2024 6/30/2024 „ЕКО ТОПЛАНЕ” д.о.о. БАЊА ЛУКА ГРИЈАЊЕ 06/2024 154.77
157 33-1001473 6/2024 6/30/2024 „ЕКО ТОПЛАНЕ” д.о.о. БАЊА ЛУКА ИСПОРУЧЕНА ТОПЛОТНА ЕНЕРГИЈА 121.61
158 33-31924 6/2024 6/30/2024 „ЕКО ТОПЛАНЕ” д.о.о. БАЊА ЛУКА РАЧУН ЗА ВИ 2024. ЗА СТАН БР. 21 У УЛ. К. АЛФОНСА XИИИ БР. 38 126.20
159 33-1000191 6/2024 6/30/2024 „ЕКО ТОПЛАНЕ” д.о.о. БАЊА ЛУКА ГРИЈАЊЕ 06/24 299.26
160 8075969749-29-02-24 3/1/2024 „НЛБ БАНКА” а.д. БАЊА ЛУКА БАНКАРСКЕ УСЛУГЕ 14.20
161 075/2024 8/6/2024 ТЕЛЕФОНИЈА ВИДАКОВИЋ ДОБОЈ РАЧУН БРОЈ 075/2024 ОД 06. 08. 2024. ЗА ЈУЛ 2024. 19,798.74
162 5855/1/93 6/30/2024 „МГ МИНД” д.о.о. МРКОЊИЋ ГРАД ПРВА ПРИВРЕМЕНА СИТУАЦИЈА БРОЈ 5855/1/93 ОД 30. 06. 2024. 30,453.05
163 70-1027/2024 3/26/2024 ДНЕВНЕ НЕЗАВИСНЕ НОВИНЕ БАЊА ЛУКА ПЛАЋАЊЕ ДРУГОГ ОБАВЈЕШТЕЊА ДА ЈЕ НАЦРТ ИЗМЈЕНЕ ДИЈЕЛА РЕГ. ПЛАНА „СТАРЧЕВИЦА 2” ИЗЛОЖЕН НА ЈАВНИ УВИД 163.80
164 70-1060/2024 3/28/2024 ДНЕВНЕ НЕЗАВИСНЕ НОВИНЕ БАЊА ЛУКА ПЛАЋАЊЕ ОБАВЈЕШТЕЊА ДА ЈЕ НАЦРТ ИЗМЈЕНЕ ДИЈЕЛА РЕГ. ПЛАНА „АДА ДЕБЕЉАЦИ 4” ИЗЛОЖЕН НА ЈАВНИ УВИД 163.80
165 70-1259/2024 4/11/2024 ДНЕВНЕ НЕЗАВИСНЕ НОВИНЕ БАЊА ЛУКА ПЛАЋАЊЕ ДРУГОГ ОБАВЈЕШТЕЊА ДА ЈЕ НАЦРТ ИЗМЈЕНЕ ДИЈЕЛА РЕГ. ПЛАНА „ЛАЗАРЕВО 4” ИЗЛОЖЕН НА ЈАВНИ УВИД 163.80
166 70-1232/2024 4/9/2024 ДНЕВНЕ НЕЗАВИСНЕ НОВИНЕ БАЊА ЛУКА ПЛАЋАЊЕ ДРУГОГ ОБАВЈЕШТЕЊА ДА ЈЕ НАЦРТ ИЗМЈЕНЕ ДИЈЕЛА РЕГ. ПЛАНА „ЈУГ 7” ИЗЛОЖЕН НА ЈАВНИ УВИД 163.80
167 70-1097/2024 3/29/2024 ДНЕВНЕ НЕЗАВИСНЕ НОВИНЕ БАЊА ЛУКА ПЛАЋАЊЕ ДРУГОГ ОБАВЈЕШТЕЊА ДА ЈЕ НАЦРТ ИЗМЈЕНЕ ДИЈЕЛА РЕГ. ПЛАНА „ЈУГ 2 ИЗЛОЖЕН НА ЈАВНИ УВИД 163.80
168 70-1572/2024 4/30/2024 ДНЕВНЕ НЕЗАВИСНЕ НОВИНЕ БАЊА ЛУКА ПЛАЋАЊЕ ОБАВЈЕШТЕЊА ДА ЈЕ НАЦРТ ИЗМЈЕНЕ ДИЈЕЛА РЕГ. ПЛАНА ”ЦЕНТАР-ИСТОК„ ИЗЛОЖЕН НА ЈАВНИ УВИД 163.80
169 70-1573/2024 4/30/2024 ДНЕВНЕ НЕЗАВИСНЕ НОВИНЕ БАЊА ЛУКА ПЛАЋАЊЕ ОБАВЈЕШТЕЊА ДА ЈЕ НАЦРТ ИЗМЈЕНЕ ДИЈЕЛА РЕГ. ПЛАНА ”ЈУГ 3„ ИЗЛОЖЕН НА ЈАВНИ УВИД 163.80
170 70-1574/2024 4/30/2024 ДНЕВНЕ НЕЗАВИСНЕ НОВИНЕ БАЊА ЛУКА ПЛАЋАЊЕ ОБАВЈЕШТЕЊА ДА ЈЕ НАЦРТ ИЗМЈЕНЕ ДИЈЕЛА РЕГ. ПЛАНА „ПАСКОЛИНА ЦИГЛАНА” ИЗЛОЖЕН НА ЈАВНИ УВИД 163.80
171 01/24010022222 4/30/2024 ПОШТЕ СРПСКЕ ПОШТАНСКЕ УСЛУГЕ 82,184.20
172 књижно одобрење 01/2410000440 6/30/2024 ПОШТЕ СРПСКЕ ПОШТАНСКЕ УСЛУГЕ -9,821.37
173 210/24 6/30/2024 ЗЕВ ЈОСИФА ПАНЧИЋА 4 ЗЕВ 06/24 41.50
174 140/24 4/30/2024 ЗЕВ ЈОСИФА ПАНЧИЋА 4 ЗЕВ 04/24 41.50
175 279/24 4/30/2024 ЗЕВ ВИДОВДАНСКА 2 ТРОШКОВИ ТЕКУЋЕГ ОДРЖАВАЊА 600.00
176 203/24 3/31/2024 ЗЕВ ВИДОВДАНСКА 2 ТРОШКОВИ ТЕКУЋЕГ ОДРЖАВАЊА 600.00
177 90186501 5/9/2024 БХ ТЕЛЕКОМ НАПЛАТА РЕАЛИЗАЦИЈЕ УСЛУГЕ МПАРКИНГ ЗА 04/24 14.57
178 05/24 5/27/2024 ЗЕВ БУЛЕВАР ВОЈВОДЕ ЖИВОЈИНА МИШИЋА 19 ЗЕВ 05/24 44.80
179 101-51-301/2021 5/21/2024 ПРОДАЈНО СЕРВИСНИ ЦЕНТАР ТАМ ТЕХНИЧКИ ПРЕГЛЕД ЗА РЕГИСТРАЦИЈУ О69-М-672 65.52
180 101-51-302/2024 5/21/2024 ПРОДАЈНО СЕРВИСНИ ЦЕНТАР ТАМ ТЕХНИЧКИ ПРЕГЛЕД ЗА РЕГИСТРАЦИЈУ К43-М-027 50.31
181 101-51-303/2024 5/21/2024 ПРОДАЈНО СЕРВИСНИ ЦЕНТАР ТАМ ТЕХНИЧКИ ПРЕГЛЕД ЗА РЕГИСТРАЦИЈУ К43-М-028 50.31
182 81942-4-0424-4100521 4/30/2024 МХ „ЕЛЕКТРОПРИВРЕДА РЕПУБЛИКЕ СРПСКЕ” РАЧУН ЗА ИВ 2024. ЗА СТАКЛЕНАЦ - СПРАТ 54.83
183 79845-4-0424-4100521 4/30/2024 МХ „ЕЛЕКТРОПРИВРЕДА РЕПУБЛИКЕ СРПСКЕ” ОД ЗМИЈАЊА РАЈКА 38.63
184 79981-4-0424-4101301 4/30/2024 МХ „ЕЛЕКТРОПРИВРЕДА РЕПУБЛИКЕ СРПСКЕ” НАПЛАТНА КУЋИЦА, УЛ. АЛЕЈА СВ. САВЕ 773.75
185 1897259-4-0424-7366465 4/30/2024 МХ „ЕЛЕКТРОПРИВРЕДА РЕПУБЛИКЕ СРПСКЕ” НАПЛАТНА КУЋИЦА КОД МЕДИЦИНСКЕ ЕЛЕКТРОНИКЕ 43.62
186 82913-4-0424-4100521 4/30/2024 МХ „ЕЛЕКТРОПРИВРЕДА РЕПУБЛИКЕ СРПСКЕ” РАЧУН ЗА ИВ 2024. ЗА П. П. БР. 63 У УЛ. СИМЕ МАТАВУЉА БР. 8 1.49
187 1898291-4-0424-7366469 4/30/2024 МХ „ЕЛЕКТРОПРИВРЕДА РЕПУБЛИКЕ СРПСКЕ” РАЧУН ЗА ИВ 2024. ЗА МЗ „ЦЕНТАР 1” (БРОЈ БРОЈИЛА: 4396554) 74.90
188 1898290-4-0424-7366469 4/30/2024 МХ „ЕЛЕКТРОПРИВРЕДА РЕПУБЛИКЕ СРПСКЕ” РАЧУН ЗА ИВ 2024. ЗА МЗ „ЦЕНТАР 1” (БРОЈ БРОЈИЛА: 4594517) 53.37
189 1897843-4-0424-7366436 4/30/2024 МХ „ЕЛЕКТРОПРИВРЕДА РЕПУБЛИКЕ СРПСКЕ” РАЧУН ЗА ИВ 2024. ЗА П. П. БР. 221 И 222 У УЛ. В. МАСЛЕШЕ БР. 1/11 84.36
190 1899081-4-0424-7366511 4/30/2024 МХ „ЕЛЕКТРОПРИВРЕДА РЕПУБЛИКЕ СРПСКЕ” РАЧУН ЗА ИВ 2024. ЗА МЗ ПИСКАВИЦА 42.03
191 75415-4-0424-4101605 4/30/2024 МХ „ЕЛЕКТРОПРИВРЕДА РЕПУБЛИКЕ СРПСКЕ” НАПЛАТНА ПАРКИНГ КУЋИЦА, УЛ. ВИДОВДАНСКА 474.74
192 1897445-4-0424-7366478 4/30/2024 МХ „ЕЛЕКТРОПРИВРЕДА РЕПУБЛИКЕ СРПСКЕ” РАЧУН ЗА ИВ 2024. ЗА АМБУЛАНТУ У МЗ ПЕТРИЋЕВАЦ 114.70
193 1257302-4-0324-7366540 3/31/2024 МХ „ЕЛЕКТРОПРИВРЕДА РЕПУБЛИКЕ СРПСКЕ” АЗИЛ СТРИЧИЋИ 5.85
194 1257343-4-0324-7366524 3/31/2024 МХ „ЕЛЕКТРОПРИВРЕДА РЕПУБЛИКЕ СРПСКЕ” ПОДЗЕМНИ ХОДНИК КОД ДЕЛТЕ 5.85
195 1270982-4-0324-7366524 3/31/2024 МХ „ЕЛЕКТРОПРИВРЕДА РЕПУБЛИКЕ СРПСКЕ” РАЧУН ЗА ИВ 2024. ЗА АМБУЛАНТУ У ДОЊИМ КОЛИМА 41.13
196 1271146-4-0324-7366471 3/31/2024 МХ „ЕЛЕКТРОПРИВРЕДА РЕПУБЛИКЕ СРПСКЕ” ПУЊАЧ ЗА ЕЛЕКТРИЧНА ВОЗИЛА, УЛИЦА ВИДОВДАНСКА 928.81
197 46516-4-0324-4101605 3/31/2024 МХ „ЕЛЕКТРОПРИВРЕДА РЕПУБЛИКЕ СРПСКЕ” НАПЛАТНА ПАРКИНГ КУЋИЦА УЛ. ВИДОВДАНСКА 570.10
198 1271124-4-0324-7366523 3/31/2024 МХ „ЕЛЕКТРОПРИВРЕДА РЕПУБЛИКЕ СРПСКЕ” ПУЊАЧ ЗА ЕЛЕКТРИЧНА ВОЗИЛА, УЛИЦА МЛАДЕНА СТОЈАНОВИЋА 893.27
199 53235-4-0324-4100521 3/31/2024 МХ „ЕЛЕКТРОПРИВРЕДА РЕПУБЛИКЕ СРПСКЕ” РАЧУН ЗА ИИИ 2024. ЗА СТАКЛЕНАЦ - СПРАТ 138.80
200 53632-4-0324-4100521 3/31/2024 МХ „ЕЛЕКТРОПРИВРЕДА РЕПУБЛИКЕ СРПСКЕ” РАЧУН ЗА ИИИ 2024. ЗА МОБИЛНИ ШТАНД У УЛ. Б. ПОПОВИЋА БР. 2 38.29
201 53634-4-0324-4100521 3/31/2024 МХ „ЕЛЕКТРОПРИВРЕДА РЕПУБЛИКЕ СРПСКЕ” РАЧУН ЗА ИИИ 2024. ЗА МОБИЛНИ ШТАНД У Б. В. Ж. МИШИЋА БР. 57 62.26
202 53631-4-0324-4100521 3/31/2024 МХ „ЕЛЕКТРОПРИВРЕДА РЕПУБЛИКЕ СРПСКЕ” РАЧУН ЗА ИИИ 2024. ЗА МОБИЛНИ ШТАНД У УЛ. Д. ВАСИЋА ББ 100.10
203 53633-4-0324-4100521 3/31/2024 МХ „ЕЛЕКТРОПРИВРЕДА РЕПУБЛИКЕ СРПСКЕ” РАЧУН ЗА ИИИ 2024. ЗА МОБИЛНИ ШТАНД У УЛ. Ц. ЛАЗАРА ББ 166.80
204 53635-4-0324-4100521 3/31/2024 МХ „ЕЛЕКТРОПРИВРЕДА РЕПУБЛИКЕ СРПСКЕ” РАЧУН ЗА ИИИ 2024. ЗА МОБИЛНИ ШТАНД У УЛ. С. ПРВОВЈЕНЧАНОГ ББ 49.23
205 1897914-4-0424-7366640 4/30/2024 МХ „ЕЛЕКТРОПРИВРЕДА РЕПУБЛИКЕ СРПСКЕ” ЈАВНИ ТОАЛЕТ - ЗАНАТСКИ ЦЕНТАР 41.59
206 1897915-4-0424-7366640 4/30/2024 МХ „ЕЛЕКТРОПРИВРЕДА РЕПУБЛИКЕ СРПСКЕ” ЈАВНИ ТОАЛЕТ УЛ. НИКОЛЕ ТЕСЛЕ 47.60
207 1894448-4-0424-7366540 4/30/2024 МХ „ЕЛЕКТРОПРИВРЕДА РЕПУБЛИКЕ СРПСКЕ” АЗИЛ ЗА ПСЕ СТРИЧИЋИ 348.83
208 1894447-4-0424-7366540 4/30/2024 МХ „ЕЛЕКТРОПРИВРЕДА РЕПУБЛИКЕ СРПСКЕ” ФОНТАНА - МЕРИОТ 156.93
209 1894446-4-0424-7366538 4/30/2024 МХ „ЕЛЕКТРОПРИВРЕДА РЕПУБЛИКЕ СРПСКЕ” ЈАВНИ ТОАЛЕТ УЛ. МЛАДЕНА СТОЈАНОВИЋА 46.59
210 1894443-4-0424-7366524 4/30/2024 МХ „ЕЛЕКТРОПРИВРЕДА РЕПУБЛИКЕ СРПСКЕ” РАЧУН ЗА ИВ 2024. ЗА П. П. У УЛ. ЈЕВРЕЈСКА БР. 28 41.62
211 1894586-4-0424-7366524 4/30/2024 МХ „ЕЛЕКТРОПРИВРЕДА РЕПУБЛИКЕ СРПСКЕ” ПОДЗЕМНИ ХОДНИК ДЕЛТА 232.53
212 1894606-4-0424-7366471 4/30/2024 МХ „ЕЛЕКТРОПРИВРЕДА РЕПУБЛИКЕ СРПСКЕ” УТРОШАК ЕЛ. ЕНЕРГИЈЕ ЗА ПУЊАЧ ЕЛ. ВОЗИЛА У ВИДОВДАНСКОЈ УЛИЦИ 947.81
213 1894584-4-0424-7366523 4/30/2024 МХ „ЕЛЕКТРОПРИВРЕДА РЕПУБЛИКЕ СРПСКЕ” УТРОШАК ЕЛЕКТРИЧНЕ ЕНЕРГИЈЕ ЗА ПУЊАЧ ЕЛ. ВОЗИЛА У УЛИЦИ МЛАДЕНА СТОЈАНОВИЋА 886.71
214 1897437-4-0424-7366529 4/30/2024 МХ „ЕЛЕКТРОПРИВРЕДА РЕПУБЛИКЕ СРПСКЕ” УТРОШАК ЕЛ. ЕНЕРГИЈЕ ЗА ПУМПНУ СТАНИЦУ ПС 1, КАНАЛИЗАЦИЈА, УЛ. КРАЉА АЛЕКСАНДРА КАРАЂОРЂЕВИЋА ББ 46.27
215 1897459-4-0424-7366528 4/30/2024 МХ „ЕЛЕКТРОПРИВРЕДА РЕПУБЛИКЕ СРПСКЕ” УТРОШАК ЕЛ. ЕНЕРГИЈЕ ЗА ПУМПНУ СТАНИЦУ МОТИКЕ 2, КАНАЛИЗАЦИЈА, УЛ. КРАЉА АЛЕКСАНДРА И КАРАЂОРЂЕВИЋА 105 КОД 41.79
216 1896531-4-0424-7366452 4/30/2024 МХ „ЕЛЕКТРОПРИВРЕДА РЕПУБЛИКЕ СРПСКЕ” НАПЛАТНА КУЋИЦА ЗА ПАРКИНГ БАНА ДР. ТЕОДОРА ЛАЗАРЕВИЋА ББ 46.43
217 1896530-4-0424-7366452 4/30/2024 МХ „ЕЛЕКТРОПРИВРЕДА РЕПУБЛИКЕ СРПСКЕ” ПАРКИНГ КУЋИЦА, МЛАДЕНА СТОЈАНОВИЋА КОД 123 53.93
218 1896529-4-0424-7366452 4/30/2024 МХ „ЕЛЕКТРОПРИВРЕДА РЕПУБЛИКЕ СРПСКЕ” КУЋИЦА ЗА НАПЛАТУ ПАРКИНГА КОД КАСТЕЛА ТРЖНИЧКА ББ 41.56
219 1896528-4-0424-7366452 4/30/2024 МХ „ЕЛЕКТРОПРИВРЕДА РЕПУБЛИКЕ СРПСКЕ” КУЋИЦА НА ПАРКИНГУ, ПОРЕД ХОТЕЛА ПАЛАСА , КРАЉА П. КАРАЂОРЂЕВИЋА 58 67.37
220 1896527-4-0424-7366452 4/30/2024 МХ „ЕЛЕКТРОПРИВРЕДА РЕПУБЛИКЕ СРПСКЕ” НАПЛАТНА КУЋИЦА , КРАЉА ПЕТРА КАРАЂОРЂЕВИЋА 74 А 41.35
221 1896526-4-0424-7366452 4/30/2024 МХ „ЕЛЕКТРОПРИВРЕДА РЕПУБЛИКЕ СРПСКЕ” ПАУК СЛУЖБА, БИТОЉСКА 290.08
222 79819-4-0424-4101720 4/30/2024 МХ „ЕЛЕКТРОПРИВРЕДА РЕПУБЛИКЕ СРПСКЕ” СТРУЈА 04/24 39.03
223 79820-4-0424-4101720 4/30/2024 МХ „ЕЛЕКТРОПРИВРЕДА РЕПУБЛИКЕ СРПСКЕ” СТРУЈА 04/24 39.66
224 79783-4-0424-4101720 4/30/2024 МХ „ЕЛЕКТРОПРИВРЕДА РЕПУБЛИКЕ СРПСКЕ” СТРУЈА 04/24 243.05
225 1274260-4-0324-7366443 3/31/2024 МХ „ЕЛЕКТРОПРИВРЕДА РЕПУБЛИКЕ СРПСКЕ” РАЧУН ЗА ИИИ 2024. ЗА П. П. БР. 63 У УЛ. С. МАТАВУЉА БР. 2 42.39
226 2524572-4-0524-7366443 5/31/2024 МХ „ЕЛЕКТРОПРИВРЕДА РЕПУБЛИКЕ СРПСКЕ” РАЧУН ЗА В 2024. ЗА П. П. БР. 63 У УЛ. С. МАТАВУЉА БР. 2 41.58
227 1897622-4-0424-7366443 4/30/2024 МХ „ЕЛЕКТРОПРИВРЕДА РЕПУБЛИКЕ СРПСКЕ” РАЧУН ЗА ИВ 2024. ЗА П. П. БР. 63 У УЛ. С. МАТАВУЉА БР. 2 41.30
228 2504859-4-0524-7366443 5/31/2024 МХ „ЕЛЕКТРОПРИВРЕДА РЕПУБЛИКЕ СРПСКЕ” РАЧУН ЗА В 2024. ЗА П. П. БР. 63 У УЛ. С. МАТАВУЉА БР. 2 0.05
229 1883704-4-0424-7366443 4/30/2024 МХ „ЕЛЕКТРОПРИВРЕДА РЕПУБЛИКЕ СРПСКЕ” РАЧУН ЗА ИВ 2024. ЗА П. П. БР. 63 У УЛ. С. МАТАВУЉА БР. 2 0.01
230 637525-4-0224-7366443 2/29/2024 МХ „ЕЛЕКТРОПРИВРЕДА РЕПУБЛИКЕ СРПСКЕ” РАЧУН ЗА ИИ 2024. ЗА П. П. БР. 63 У УЛ. С. МАТАВУЉА БР. 2 0.05
231 88743-4-0524-4100335 5/31/2024 МХ „ЕЛЕКТРОПРИВРЕДА РЕПУБЛИКЕ СРПСКЕ” УТРОШАК ЕЛЕКТРИЧНЕ ЕНЕРГИЈЕ У ПЗ „РАМИЋИ-БАЊА ЛУКА” (ХАЛА) ЗА МАЈ 2024. ГОДИНЕ 0.00
232 88665-4-0524-5100640 5/31/2024 МХ „ЕЛЕКТРОПРИВРЕДА РЕПУБЛИКЕ СРПСКЕ” УТРОШАК ЕЛЕКТРИЧНЕ ЕНЕРГИЈЕ У ПЗ „РАМИЋИ-БАЊА ЛУКА” (УПРАВНА ЗГРАДА) ЗА МАЈ 2024. ГОДИНЕ 342.00
233 2526036-4-0524-7366511 5/31/2024 МХ „ЕЛЕКТРОПРИВРЕДА РЕПУБЛИКЕ СРПСКЕ” РАЧУН ЗА В 2024. ЗА МЗ ПИСКАВИЦА 41.95
234 2524411-4-0524-7366528 5/31/2024 МХ „ЕЛЕКТРОПРИВРЕДА РЕПУБЛИКЕ СРПСКЕ” УТРОШАК ЕЛ. ЕНЕРГИЈЕ ЗА РАД ПУМПНЕ СТАНИЦЕ МОТИКЕ 2 41.88
235 2524388-4-0524-7366529 5/31/2024 МХ „ЕЛЕКТРОПРИВРЕДА РЕПУБЛИКЕ СРПСКЕ” УТРОШАК ЕЛ. ЕНЕРГИЈЕ ЗА РАД ПУМПНЕ СТАНИЦЕ МОТИКЕ 1 45.43
236 93090-4-0524-4101301 5/31/2024 МХ „ЕЛЕКТРОПРИВРЕДА РЕПУБЛИКЕ СРПСКЕ” УТРОШАК ЕЛЕКТРИЧНЕ ЕНЕРГИЈЕ 697.32
237 2525239-4-0524-7366469 5/31/2024 МХ „ЕЛЕКТРОПРИВРЕДА РЕПУБЛИКЕ СРПСКЕ” РАЧУН ЗА В 2024. ЗА МЗ ЦЕНТАР 1 (БРОЈИЛО БР. 4396554) 78.61
238 2525238-4-0524-7366469 5/31/2024 МХ „ЕЛЕКТРОПРИВРЕДА РЕПУБЛИКЕ СРПСКЕ” РАЧУН ЗА В 2024. ЗА МЗ ЦЕНТАР 1 (БРОЈИЛО БР. 4594517) 66.21
239 2524395-4-0524-7366478 5/31/2024 МХ „ЕЛЕКТРОПРИВРЕДА РЕПУБЛИКЕ СРПСКЕ” РАЧУН ЗА В 2024. ЗА П. П. БР. 1 У МЗ ПЕТРИЋЕВАЦ 41.31
240 2524799-4-0524-7366436 5/31/2024 МХ „ЕЛЕКТРОПРИВРЕДА РЕПУБЛИКЕ СРПСКЕ” РАЧУН ЗА В 2024. ЗА РАДНИЧКИ УНИВЕРЗИТЕТ 42.32
241 2524797-4-0524-7366436 5/31/2024 МХ „ЕЛЕКТРОПРИВРЕДА РЕПУБЛИКЕ СРПСКЕ” РАЧУН ЗА В 2024. ЗА П. П. У УЛ. ГРЧКА БР. 4 107.10
242 2524796-4-0524-7366436 5/31/2024 МХ „ЕЛЕКТРОПРИВРЕДА РЕПУБЛИКЕ СРПСКЕ” РАЧУН ЗА В 2024. ЗА П. П. БР. 221 И 222 У УЛ. В. МАСЛЕШЕ БР. 1/11 87.72
243 2524795-4-0524-7366436 5/31/2024 МХ „ЕЛЕКТРОПРИВРЕДА РЕПУБЛИКЕ СРПСКЕ” РАЧУН ЗА В 2024. ЗА П. П. БР. 99 У БУЛЕВАРУ ВОЈВОДЕ ЖИВОЈИНА МИШИЋА БР. 33 98.12
244 2524794-4-0524-7366436 5/31/2024 МХ „ЕЛЕКТРОПРИВРЕДА РЕПУБЛИКЕ СРПСКЕ” РАЧУН ЗА В 2024. ЗА П. П. НА БАЊ БРДУ 42.35
245 2524793-4-0524-7366436 5/31/2024 МХ „ЕЛЕКТРОПРИВРЕДА РЕПУБЛИКЕ СРПСКЕ” РАЧУН ЗА В 2024. ЗА ЈС У УЛ. СИМЕ МАТАВУЉА БР. 10 41.30
246 2524792-4-0524-7366436 5/31/2024 МХ „ЕЛЕКТРОПРИВРЕДА РЕПУБЛИКЕ СРПСКЕ” РАЧУН ЗА В 2024. ЗА ЈС „ЦЕНТАР 1” У УЛ. СИМЕ ШОЛАЈЕ 354.97
247 2524800-4-0524-7366436 5/31/2024 МХ „ЕЛЕКТРОПРИВРЕДА РЕПУБЛИКЕ СРПСКЕ” РАЧУН ЗА В 2024. ЗА ЦЕНТРАЛНУ ГАРАЖУ БР. 1 У УЛ. КОРДУНАШКА БР. 10 58.09
248 2524801-4-0524-7366436 5/31/2024 МХ „ЕЛЕКТРОПРИВРЕДА РЕПУБЛИКЕ СРПСКЕ” РАЧУН ЗА В 2024. ЗА ГАРАЖУ У УЛ. СИМЕ МАТАВУЉА БР. 4А 41.83
249 2521349-4-0524-7366501 5/31/2024 МХ „ЕЛЕКТРОПРИВРЕДА РЕПУБЛИКЕ СРПСКЕ” РАЧУН ЗА В 2024. ЗА П. П. БР. 1 У УЛ. КРАЉА ПЕТРА И КАРАЂОРЂЕВИЋА БР. 113 41.72
250 2521354-4-0524-7366538 5/31/2024 МХ „ЕЛЕКТРОПРИВРЕДА РЕПУБЛИКЕ СРПСКЕ” ЈАВНИ ТОАЛЕТ МС-05/24 41.60
251 2521350-4-0524-7366524 5/31/2024 МХ „ЕЛЕКТРОПРИВРЕДА РЕПУБЛИКЕ СРПСКЕ” РАЧУН ЗА В 2024. ЗА П. П. У УЛ. ЈЕВРЕЈСКА БР. 28 41.30
252 2521352-4-0524-7366524 5/31/2024 МХ „ЕЛЕКТРОПРИВРЕДА РЕПУБЛИКЕ СРПСКЕ” РАЧУН ЗА В 2024. ЗА П. П. БР. 4 У УЛ. КРАЉА ПЕТРА И КАРАЂОРЂЕВИЋА БР. 23 10.86
253 2524861-4-0524-7366640 5/31/2024 МХ „ЕЛЕКТРОПРИВРЕДА РЕПУБЛИКЕ СРПСКЕ” ЈАВНИ ТОАЛЕТ -05/24 54.83
254 95423-4-0524-4100521 5/31/2024 МХ „ЕЛЕКТРОПРИВРЕДА РЕПУБЛИКЕ СРПСКЕ” РАЧУН ЗА В 2024. ЗА МОБИЛНИ ШТАНД У УЛИЦИ ЦАРА ЛАЗАРА ББ 48.01
255 2521519-4-0524-7366471 5/31/2024 МХ „ЕЛЕКТРОПРИВРЕДА РЕПУБЛИКЕ СРПСКЕ” УТРОШАК ЕЛ. ЕНЕРГИЈЕ ЗА ПУЊАЧ ЕЛ. ВОЗИЛА ВИДОВДАНСКА 1,078.18
256 2524206-4-0524-7366465 5/31/2024 МХ „ЕЛЕКТРОПРИВРЕДА РЕПУБЛИКЕ СРПСКЕ” УТРОШАК ЕЛЕКТРИЧНЕ ЕНЕРГИЈЕ 43.91
257 88557-4-0524-4101605 5/31/2024 МХ „ЕЛЕКТРОПРИВРЕДА РЕПУБЛИКЕ СРПСКЕ” УТРОШАК ЕЛЕКТРИЧНЕ ЕНЕРГИЈЕ 608.72
258 2523470-4-0524-7366452 5/31/2024 МХ „ЕЛЕКТРОПРИВРЕДА РЕПУБЛИКЕ СРПСКЕ” УТРОШАК ЕЛЕКТРИЧНЕ ЕНЕРГИЈЕ 53.17
259 2523469-4-0524-7366452 5/31/2024 МХ „ЕЛЕКТРОПРИВРЕДА РЕПУБЛИКЕ СРПСКЕ” УТРОШАК ЕЛЕКТРИЧНЕ ЕНЕРГИЈЕ 47.92
260 2523468-4-0524-7366452 5/31/2024 МХ „ЕЛЕКТРОПРИВРЕДА РЕПУБЛИКЕ СРПСКЕ” УТРОШАК ЕЛЕКТРИЧНЕ ЕНЕРГИЈЕ 41.31
261 2523467-4-0524-7366452 5/31/2024 МХ „ЕЛЕКТРОПРИВРЕДА РЕПУБЛИКЕ СРПСКЕ” УТРОШАК ЕЛЕКТРИЧНЕ ЕНЕРГИЈЕ 70.61
262 2523466-4-0524-7366452 5/31/2024 МХ „ЕЛЕКТРОПРИВРЕДА РЕПУБЛИКЕ СРПСКЕ” УТРОШАК ЕЛЕКТРИЧНЕ ЕНЕРГИЈЕ 41.30
263 2523465-4-0524-7366452 5/31/2024 МХ „ЕЛЕКТРОПРИВРЕДА РЕПУБЛИКЕ СРПСКЕ” УТРОШАК ЕЛЕКТРИЧНЕ ЕНЕРГИЈЕ 167.05
264 92897-4-0524-4101720 5/31/2024 МХ „ЕЛЕКТРОПРИВРЕДА РЕПУБЛИКЕ СРПСКЕ” СТРУЈА 05/24 99.86
265 92896-4-0524-4101720 5/31/2024 МХ „ЕЛЕКТРОПРИВРЕДА РЕПУБЛИКЕ СРПСКЕ” СТРУЈА 05/24 39.28
266 92895-4-0524-4101720 5/31/2024 МХ „ЕЛЕКТРОПРИВРЕДА РЕПУБЛИКЕ СРПСКЕ” СТРУЈА 05/24 52.96
267 92894-4-0524-4101720 5/31/2024 МХ „ЕЛЕКТРОПРИВРЕДА РЕПУБЛИКЕ СРПСКЕ” СТРУЈА 05/24 40.13
268 92893-4-0524-4101720 5/31/2024 МХ „ЕЛЕКТРОПРИВРЕДА РЕПУБЛИКЕ СРПСКЕ” СТРУЈА 05/24 52.08
269 92904-4-0524-4101720 5/31/2024 МХ „ЕЛЕКТРОПРИВРЕДА РЕПУБЛИКЕ СРПСКЕ” СТРУЈА 05/24 100.54
270 92903-4-0524-4101720 5/31/2024 МХ „ЕЛЕКТРОПРИВРЕДА РЕПУБЛИКЕ СРПСКЕ” СТРУЈА 05/24 53.01
271 92902-4-0524-4101720 5/31/2024 МХ „ЕЛЕКТРОПРИВРЕДА РЕПУБЛИКЕ СРПСКЕ” СТРУЈА 05/24 93.36
272 92901-4-0524-4101720 5/31/2024 МХ „ЕЛЕКТРОПРИВРЕДА РЕПУБЛИКЕ СРПСКЕ” СТРУЈА 05/24 51.56
273 92899-4-0524-4101720 5/31/2024 МХ „ЕЛЕКТРОПРИВРЕДА РЕПУБЛИКЕ СРПСКЕ” СТРУЈА 05/24 94.09
274 92900-4-0524-4101720 5/31/2024 МХ „ЕЛЕКТРОПРИВРЕДА РЕПУБЛИКЕ СРПСКЕ” СТРУЈА 05/24 58.10
275 92934-4-0524-4101720 5/31/2024 МХ „ЕЛЕКТРОПРИВРЕДА РЕПУБЛИКЕ СРПСКЕ” СТРУЈА 05/24 40.99
276 92936-4-0524-4101720 5/31/2024 МХ „ЕЛЕКТРОПРИВРЕДА РЕПУБЛИКЕ СРПСКЕ” СТРУЈА 05/24 109.08
277 92898-4-0524-4101720 5/31/2024 МХ „ЕЛЕКТРОПРИВРЕДА РЕПУБЛИКЕ СРПСКЕ” СТРУЈА 05/24 82.49
278 92938-4-0524-4101720 5/31/2024 МХ „ЕЛЕКТРОПРИВРЕДА РЕПУБЛИКЕ СРПСКЕ” СТРУЈА 05/24 39.58
279 92941-4-0524-4101720 5/31/2024 МХ „ЕЛЕКТРОПРИВРЕДА РЕПУБЛИКЕ СРПСКЕ” СТРУЈА 05/24 90.50
280 92935-4-0524-4101720 5/31/2024 МХ „ЕЛЕКТРОПРИВРЕДА РЕПУБЛИКЕ СРПСКЕ” СТРУЈА 05/24 57.46
281 92944-4-0524-4101720 5/31/2024 МХ „ЕЛЕКТРОПРИВРЕДА РЕПУБЛИКЕ СРПСКЕ” СТРУЈА 05/24 136.37
282 92937-4-0524-4101720 5/31/2024 МХ „ЕЛЕКТРОПРИВРЕДА РЕПУБЛИКЕ СРПСКЕ” СТРУЈА 05/24 45.40
283 92943-4-0524-4101720 5/31/2024 МХ „ЕЛЕКТРОПРИВРЕДА РЕПУБЛИКЕ СРПСКЕ” СТРУЈА 05/24 66.07
284 92940-4-0524-4101720 5/31/2024 МХ „ЕЛЕКТРОПРИВРЕДА РЕПУБЛИКЕ СРПСКЕ” СТРУЈА 05/24 39.77
285 92933-4-0524-4101720 5/31/2024 МХ „ЕЛЕКТРОПРИВРЕДА РЕПУБЛИКЕ СРПСКЕ” СТРУЈА 05/24 125.30
286 92942-4-0524-4101720 5/31/2024 МХ „ЕЛЕКТРОПРИВРЕДА РЕПУБЛИКЕ СРПСКЕ” СТРУЈА 05/24 62.69
287 92930-4-0524-4101720 5/31/2024 МХ „ЕЛЕКТРОПРИВРЕДА РЕПУБЛИКЕ СРПСКЕ” СТРУЈА 05/24 41.45
288 92939-4-0524-4101720 5/31/2024 МХ „ЕЛЕКТРОПРИВРЕДА РЕПУБЛИКЕ СРПСКЕ” СТРУЈА 05/24 63.94
289 92932-4-0524-4101720 5/31/2024 МХ „ЕЛЕКТРОПРИВРЕДА РЕПУБЛИКЕ СРПСКЕ” СТРУЈА 05/24 44.83
290 92931-4-0524-4101720 5/31/2024 МХ „ЕЛЕКТРОПРИВРЕДА РЕПУБЛИКЕ СРПСКЕ” СТРУЈА 05/24 113.51
291 92927-4-0524-4101720 5/31/2024 МХ „ЕЛЕКТРОПРИВРЕДА РЕПУБЛИКЕ СРПСКЕ” СТРУЈА 05/24 339.43
292 92924-4-0524-4101720 5/31/2024 МХ „ЕЛЕКТРОПРИВРЕДА РЕПУБЛИКЕ СРПСКЕ” СТРУЈА 05/24 149.88
293 92929-4-0524-4101720 5/31/2024 МХ „ЕЛЕКТРОПРИВРЕДА РЕПУБЛИКЕ СРПСКЕ” СТРУЈА 05/24 39.72
294 92922-4-0524-4101720 5/31/2024 МХ „ЕЛЕКТРОПРИВРЕДА РЕПУБЛИКЕ СРПСКЕ” СТРУЈА 05/24 41.97
295 92928-4-0524-4101720 5/31/2024 МХ „ЕЛЕКТРОПРИВРЕДА РЕПУБЛИКЕ СРПСКЕ” СТРУЈА 05/24 39.27
296 92920-4-0524-4101720 5/31/2024 МХ „ЕЛЕКТРОПРИВРЕДА РЕПУБЛИКЕ СРПСКЕ” СТРУЈА 05/24 120.14
297 92918-4-0524-4101720 5/31/2024 МХ „ЕЛЕКТРОПРИВРЕДА РЕПУБЛИКЕ СРПСКЕ” СТРУЈА 05/24 51.64
298 92909-4-0524-4101720 5/31/2024 МХ „ЕЛЕКТРОПРИВРЕДА РЕПУБЛИКЕ СРПСКЕ” СТРУЈА 05/24 131.43
299 92926-4-0524-4101720 5/31/2024 МХ „ЕЛЕКТРОПРИВРЕДА РЕПУБЛИКЕ СРПСКЕ” СТРУЈА 05/24 380.40
300 92908-4-0524-4101720 5/31/2024 МХ „ЕЛЕКТРОПРИВРЕДА РЕПУБЛИКЕ СРПСКЕ” СТРУЈА 05/24 46.94
301 92891-4-0524-4101720 5/31/2024 МХ „ЕЛЕКТРОПРИВРЕДА РЕПУБЛИКЕ СРПСКЕ” СТРУЈА 05/24 308.56
302 92914-4-0524-4101720 5/31/2024 МХ „ЕЛЕКТРОПРИВРЕДА РЕПУБЛИКЕ СРПСКЕ” СТРУЈА 05/24 39.71
303 92911-4-0524-4101720 5/31/2024 МХ „ЕЛЕКТРОПРИВРЕДА РЕПУБЛИКЕ СРПСКЕ” СТРУЈА 05/24 338.08
304 92910-4-0524-4101720 5/31/2024 МХ „ЕЛЕКТРОПРИВРЕДА РЕПУБЛИКЕ СРПСКЕ” СТРУЈА 05/24 39.34
305 92923-4-0524-4101720 5/31/2024 МХ „ЕЛЕКТРОПРИВРЕДА РЕПУБЛИКЕ СРПСКЕ” СТРУЈА 05/24 106.19
306 92912-4-0524-4101720 5/31/2024 МХ „ЕЛЕКТРОПРИВРЕДА РЕПУБЛИКЕ СРПСКЕ” СТРУЈА 05/24 106.80
307 92907-4-0524-4101720 5/31/2024 МХ „ЕЛЕКТРОПРИВРЕДА РЕПУБЛИКЕ СРПСКЕ” СТРУЈА 05/24 96.86
308 92882-4-0524-4101720 5/31/2024 МХ „ЕЛЕКТРОПРИВРЕДА РЕПУБЛИКЕ СРПСКЕ” СТРУЈА 05/24 94.84
309 92892-4-0524-4101720 5/31/2024 МХ „ЕЛЕКТРОПРИВРЕДА РЕПУБЛИКЕ СРПСКЕ” СТРУЈА 05/24 222.55
310 92881-4-0524-4101720 5/31/2024 МХ „ЕЛЕКТРОПРИВРЕДА РЕПУБЛИКЕ СРПСКЕ” СТРУЈА 05/24 39.99
311 92906-4-0524-4101720 5/31/2024 МХ „ЕЛЕКТРОПРИВРЕДА РЕПУБЛИКЕ СРПСКЕ” СТРУЈА 05/24 93.05
312 92917-4-0524-4101720 5/31/2024 МХ „ЕЛЕКТРОПРИВРЕДА РЕПУБЛИКЕ СРПСКЕ” СТРУЈА 05/24 39.55
313 92890-4-0524-4101720 5/31/2024 МХ „ЕЛЕКТРОПРИВРЕДА РЕПУБЛИКЕ СРПСКЕ” СТРУЈА 05/24 187.33
314 92873-4-0524-4101720 5/31/2024 МХ „ЕЛЕКТРОПРИВРЕДА РЕПУБЛИКЕ СРПСКЕ” СТРУЈА 05/24 64.47
315 92886-4-0524-4101720 5/31/2024 МХ „ЕЛЕКТРОПРИВРЕДА РЕПУБЛИКЕ СРПСКЕ” СТРУЈА 05/24 62.90
316 92915-4-0524-4101720 5/31/2024 МХ „ЕЛЕКТРОПРИВРЕДА РЕПУБЛИКЕ СРПСКЕ” СТРУЈА 05/24 144.07
317 92875-4-0524-4101720 5/31/2024 МХ „ЕЛЕКТРОПРИВРЕДА РЕПУБЛИКЕ СРПСКЕ” СТРУЈА 05/24 82.29
318 116498-4-0624-4101720 6/30/2024 МХ „ЕЛЕКТРОПРИВРЕДА РЕПУБЛИКЕ СРПСКЕ” СТРУЈА 06/24 87.06
319 116505-4-0624-4101720 6/30/2024 МХ „ЕЛЕКТРОПРИВРЕДА РЕПУБЛИКЕ СРПСКЕ” СТРУЈА 06/24 78.88
320 116476-4-0624-4101720 6/30/2024 МХ „ЕЛЕКТРОПРИВРЕДА РЕПУБЛИКЕ СРПСКЕ” СТРУЈА 06/24 111.96
321 116478-4-0624-4101720 6/30/2024 МХ „ЕЛЕКТРОПРИВРЕДА РЕПУБЛИКЕ СРПСКЕ” СТРУЈА 06/24 43.27
322 116477-4-0624-4101720 6/30/2024 МХ „ЕЛЕКТРОПРИВРЕДА РЕПУБЛИКЕ СРПСКЕ” СТРУЈА 06/24 59.18
323 116468-4-0624-4101720 6/30/2024 МХ „ЕЛЕКТРОПРИВРЕДА РЕПУБЛИКЕ СРПСКЕ” СТРУЈА 06/24 69.89
324 116479-4-0624-4101720 6/30/2024 МХ „ЕЛЕКТРОПРИВРЕДА РЕПУБЛИКЕ СРПСКЕ” СТРУЈА 06/24 65.55
325 116466-4-0624-4101720 6/30/2024 МХ „ЕЛЕКТРОПРИВРЕДА РЕПУБЛИКЕ СРПСКЕ” СТРУЈА 06/24 40.94
326 116467-4-0624-4101720 6/30/2024 МХ „ЕЛЕКТРОПРИВРЕДА РЕПУБЛИКЕ СРПСКЕ” СТРУЈА 06/24 43.25
327 116469-4-0624-4101720 6/30/2024 МХ „ЕЛЕКТРОПРИВРЕДА РЕПУБЛИКЕ СРПСКЕ” СТРУЈА 06/24 42.56
328 116470-4-0624-4101720 6/30/2024 МХ „ЕЛЕКТРОПРИВРЕДА РЕПУБЛИКЕ СРПСКЕ” СТРУЈА 06/24 64.25
329 116480-4-0624-4101720 6/30/2024 МХ „ЕЛЕКТРОПРИВРЕДА РЕПУБЛИКЕ СРПСКЕ” СТРУЈА 06/24 813.09
330 116506-4-0624-4101720 6/30/2024 МХ „ЕЛЕКТРОПРИВРЕДА РЕПУБЛИКЕ СРПСКЕ” СТРУЈА 06/24 46.86
331 116471-4-0624-4101720 6/30/2024 МХ „ЕЛЕКТРОПРИВРЕДА РЕПУБЛИКЕ СРПСКЕ” СТРУЈА 06/24 41.65
332 116514-4-0624-4101720 6/30/2024 МХ „ЕЛЕКТРОПРИВРЕДА РЕПУБЛИКЕ СРПСКЕ” СТРУЈА 06/24 41.19
333 116481-4-0624-4101720 6/30/2024 МХ „ЕЛЕКТРОПРИВРЕДА РЕПУБЛИКЕ СРПСКЕ” СТРУЈА 06/24 87.34
334 116509-4-0624-4101720 6/30/2024 МХ „ЕЛЕКТРОПРИВРЕДА РЕПУБЛИКЕ СРПСКЕ” СТРУЈА 06/24 73.78
335 116482-4-0624-4101720 6/30/2024 МХ „ЕЛЕКТРОПРИВРЕДА РЕПУБЛИКЕ СРПСКЕ” СТРУЈА 06/24 98.69
336 116512-4-0624-4101720 6/30/2024 МХ „ЕЛЕКТРОПРИВРЕДА РЕПУБЛИКЕ СРПСКЕ” СТРУЈА 06/24 39.98
337 116473-4-0624-4101720 6/30/2024 МХ „ЕЛЕКТРОПРИВРЕДА РЕПУБЛИКЕ СРПСКЕ” СТРУЈА 06/24 63.99
338 116508-4-0624-4101720 6/30/2024 МХ „ЕЛЕКТРОПРИВРЕДА РЕПУБЛИКЕ СРПСКЕ” СТРУЈА 06/24 56.11
339 116499-4-0624-4101720 6/30/2024 МХ „ЕЛЕКТРОПРИВРЕДА РЕПУБЛИКЕ СРПСКЕ” СТРУЈА 06/24 73.89
340 116483-4-0624-4101720 6/30/2024 МХ „ЕЛЕКТРОПРИВРЕДА РЕПУБЛИКЕ СРПСКЕ” СТРУЈА 06/24 145.68
341 116510-4-0624-4101720 6/30/2024 МХ „ЕЛЕКТРОПРИВРЕДА РЕПУБЛИКЕ СРПСКЕ” СТРУЈА 06/24 39.64
342 116474-4-0624-4101720 6/30/2024 МХ „ЕЛЕКТРОПРИВРЕДА РЕПУБЛИКЕ СРПСКЕ” СТРУЈА 06/24 40.30
343 116475-4-0624-4101720 6/30/2024 МХ „ЕЛЕКТРОПРИВРЕДА РЕПУБЛИКЕ СРПСКЕ” СТРУЈА 06/24 40.30
344 116504-4-0624-4101720 6/30/2024 МХ „ЕЛЕКТРОПРИВРЕДА РЕПУБЛИКЕ СРПСКЕ” СТРУЈА 06/24 386.16
345 116484-4-0624-4101720 6/30/2024 МХ „ЕЛЕКТРОПРИВРЕДА РЕПУБЛИКЕ СРПСКЕ” СТРУЈА 06/24 440.88
346 116501-4-0624-4101720 6/30/2024 МХ „ЕЛЕКТРОПРИВРЕДА РЕПУБЛИКЕ СРПСКЕ” СТРУЈА 06/24 53.35
347 116502-4-0624-4101720 6/30/2024 МХ „ЕЛЕКТРОПРИВРЕДА РЕПУБЛИКЕ СРПСКЕ” СТРУЈА 06/24 106.50
348 116513-4-0624-4101720 6/30/2024 МХ „ЕЛЕКТРОПРИВРЕДА РЕПУБЛИКЕ СРПСКЕ” СТРУЈА 06/24 99.76
349 116522-4-0624-4101720 6/30/2024 МХ „ЕЛЕКТРОПРИВРЕДА РЕПУБЛИКЕ СРПСКЕ” СТРУЈА 06/24 39.64
350 116524-4-0624-4101720 6/30/2024 МХ „ЕЛЕКТРОПРИВРЕДА РЕПУБЛИКЕ СРПСКЕ” СТРУЈА 06/24 108.12
351 116520-4-0624-4101720 6/30/2024 МХ „ЕЛЕКТРОПРИВРЕДА РЕПУБЛИКЕ СРПСКЕ” СТРУЈА 06/24 474.24
352 116525-4-0624-4101720 6/30/2024 МХ „ЕЛЕКТРОПРИВРЕДА РЕПУБЛИКЕ СРПСКЕ” СТРУЈА 06/24 47.33
353 116523-4-0624-4101720 6/30/2024 МХ „ЕЛЕКТРОПРИВРЕДА РЕПУБЛИКЕ СРПСКЕ” СТРУЈА 06/24 47.23
354 116517-4-0624-4101720 6/30/2024 МХ „ЕЛЕКТРОПРИВРЕДА РЕПУБЛИКЕ СРПСКЕ” СТРУЈА 06/24 127.86
355 116526-4-0624-4101720 6/30/2024 МХ „ЕЛЕКТРОПРИВРЕДА РЕПУБЛИКЕ СРПСКЕ” СТРУЈА 06/24 151.17
356 116515-4-0624-4101720 6/30/2024 МХ „ЕЛЕКТРОПРИВРЕДА РЕПУБЛИКЕ СРПСКЕ” СТРУЈА 06/24 44.92
357 116536-4-0624-4101720 6/30/2024 МХ „ЕЛЕКТРОПРИВРЕДА РЕПУБЛИКЕ СРПСКЕ” СТРУЈА 06/24 48.29
358 116521-4-0624-4101720 6/30/2024 МХ „ЕЛЕКТРОПРИВРЕДА РЕПУБЛИКЕ СРПСКЕ” СТРУЈА 06/24 39.30
359 116537-4-0624-4101720 6/30/2024 МХ „ЕЛЕКТРОПРИВРЕДА РЕПУБЛИКЕ СРПСКЕ” СТРУЈА 06/24 119.90
360 116511-4-0624-4101720 6/30/2024 МХ „ЕЛЕКТРОПРИВРЕДА РЕПУБЛИКЕ СРПСКЕ” СТРУЈА 06/24 43.18
361 116534-4-0624-4101720 6/30/2024 МХ „ЕЛЕКТРОПРИВРЕДА РЕПУБЛИКЕ СРПСКЕ” СТРУЈА 06/24 71.09
362 116519-4-0624-4101720 6/30/2024 МХ „ЕЛЕКТРОПРИВРЕДА РЕПУБЛИКЕ СРПСКЕ” СТРУЈА 06/24 502.37
363 116532-4-0624-4101720 6/30/2024 МХ „ЕЛЕКТРОПРИВРЕДА РЕПУБЛИКЕ СРПСКЕ” СТРУЈА 06/24 70.44
364 116535-4-0624-4101720 6/30/2024 МХ „ЕЛЕКТРОПРИВРЕДА РЕПУБЛИКЕ СРПСКЕ” СТРУЈА 06/24 54.00
365 116533-4-0624-4101720 6/30/2024 МХ „ЕЛЕКТРОПРИВРЕДА РЕПУБЛИКЕ СРПСКЕ” СТРУЈА 06/24 39.78
366 116507-4-0624-4101720 6/30/2024 МХ „ЕЛЕКТРОПРИВРЕДА РЕПУБЛИКЕ СРПСКЕ” СТРУЈА 06/24 39.64
367 116503-4-0624-4101720 6/30/2024 МХ „ЕЛЕКТРОПРИВРЕДА РЕПУБЛИКЕ СРПСКЕ” СТРУЈА 06/24 39.30
368 116516-4-0624-4101720 6/30/2024 МХ „ЕЛЕКТРОПРИВРЕДА РЕПУБЛИКЕ СРПСКЕ” СТРУЈА 06/24 104.43
369 116500-4-0624-4101720 6/30/2024 МХ „ЕЛЕКТРОПРИВРЕДА РЕПУБЛИКЕ СРПСКЕ” СТРУЈА 06/24 101.78
370 116485-4-0624-4101720 6/30/2024 МХ „ЕЛЕКТРОПРИВРЕДА РЕПУБЛИКЕ СРПСКЕ” СТРУЈА 06/24 220.82
371 116530-4-0624-4101720 6/30/2024 МХ „ЕЛЕКТРОПРИВРЕДА РЕПУБЛИКЕ СРПСКЕ” СТРУЈА 06/24 118.65
372 116528-4-0624-4101720 6/30/2024 МХ „ЕЛЕКТРОПРИВРЕДА РЕПУБЛИКЕ СРПСКЕ” СТРУЈА 06/24 55.23
373 116531-4-0624-4101720 6/30/2024 МХ „ЕЛЕКТРОПРИВРЕДА РЕПУБЛИКЕ СРПСКЕ” СТРУЈА 06/24 39.64
374 116529-4-0624-4101720 6/30/2024 МХ „ЕЛЕКТРОПРИВРЕДА РЕПУБЛИКЕ СРПСКЕ” СТРУЈА 06/24 60.88
375 116527-4-0624-4101720 6/30/2024 МХ „ЕЛЕКТРОПРИВРЕДА РЕПУБЛИКЕ СРПСКЕ” СТРУЈА 06/24 41.29
376 116491-4-0624-4101720 6/30/2024 МХ „ЕЛЕКТРОПРИВРЕДА РЕПУБЛИКЕ СРПСКЕ” СТРУЈА 06/24 74.19
377 116493-4-0624-4101720 6/30/2024 МХ „ЕЛЕКТРОПРИВРЕДА РЕПУБЛИКЕ СРПСКЕ” СТРУЈА 06/24 73.35
378 116492-4-0624-4101720 6/30/2024 МХ „ЕЛЕКТРОПРИВРЕДА РЕПУБЛИКЕ СРПСКЕ” СТРУЈА 06/24 67.00
379 116494-4-0624-4101720 6/30/2024 МХ „ЕЛЕКТРОПРИВРЕДА РЕПУБЛИКЕ СРПСКЕ” СТРУЈА 06/24 51.54
380 116495-4-0624-4101720 6/30/2024 МХ „ЕЛЕКТРОПРИВРЕДА РЕПУБЛИКЕ СРПСКЕ” СТРУЈА 06/24 70.08
381 116496-4-0624-4101720 6/30/2024 МХ „ЕЛЕКТРОПРИВРЕДА РЕПУБЛИКЕ СРПСКЕ” СТРУЈА 06/24 50.81
382 116497-4-0624-4101720 6/30/2024 МХ „ЕЛЕКТРОПРИВРЕДА РЕПУБЛИКЕ СРПСКЕ” СТРУЈА 06/24 82.84
383 116486-4-0624-4101720 6/30/2024 МХ „ЕЛЕКТРОПРИВРЕДА РЕПУБЛИКЕ СРПСКЕ” СТРУЈА 06/24 49.58
384 116487-4-0624-4101720 6/30/2024 МХ „ЕЛЕКТРОПРИВРЕДА РЕПУБЛИКЕ СРПСКЕ” СТРУЈА 06/24 42.18
385 116488-4-0624-4101720 6/30/2024 МХ „ЕЛЕКТРОПРИВРЕДА РЕПУБЛИКЕ СРПСКЕ” СТРУЈА 06/24 49.41
386 116489-4-0624-4101720 6/30/2024 МХ „ЕЛЕКТРОПРИВРЕДА РЕПУБЛИКЕ СРПСКЕ” СТРУЈА 06/24 39.30
387 116490-4-0624-4101720 6/30/2024 МХ „ЕЛЕКТРОПРИВРЕДА РЕПУБЛИКЕ СРПСКЕ” СТРУЈА 06/24 139.88
388 117106-4-0624-4101374 6/30/2024 МХ „ЕЛЕКТРОПРИВРЕДА РЕПУБЛИКЕ СРПСКЕ” СТРУЈА 06/24 5,946.26
389 117107-4-0624-4101379 6/30/2024 МХ „ЕЛЕКТРОПРИВРЕДА РЕПУБЛИКЕ СРПСКЕ” СТРУЈА 06/24 8,993.56
390 117426-4-0624-4101660 6/30/2024 МХ „ЕЛЕКТРОПРИВРЕДА РЕПУБЛИКЕ СРПСКЕ” СТРУЈА 06/24 1,861.28
391 119739-4-0624-4101720 6/30/2024 МХ „ЕЛЕКТРОПРИВРЕДА РЕПУБЛИКЕ СРПСКЕ” СТРУЈА 06/24 1,213.59
392 116518-4-0624-4101720 6/30/2024 МХ „ЕЛЕКТРОПРИВРЕДА РЕПУБЛИКЕ СРПСКЕ” СТРУЈА 06/24 86.56
393 116472-4-0624-4101720 6/30/2024 МХ „ЕЛЕКТРОПРИВРЕДА РЕПУБЛИКЕ СРПСКЕ” СТРУЈА 06/24 82.05
394 3147481-4-0624-7366415 6/30/2024 МХ „ЕЛЕКТРОПРИВРЕДА РЕПУБЛИКЕ СРПСКЕ” СТРУЈА 06/24 51.81
395 3147553-4-0624-7366452 6/30/2024 МХ „ЕЛЕКТРОПРИВРЕДА РЕПУБЛИКЕ СРПСКЕ” НАПЛАТНА КУЋИЦА ЗА ПАРКИНГ, УЛ. БАНА ДР ТЕОДОРА ЛАЗАРЕВИЋА ББ 42.47
396 3147552-4-0624-7366452 6/30/2024 МХ „ЕЛЕКТРОПРИВРЕДА РЕПУБЛИКЕ СРПСКЕ” ПАРКИНГ КУЋИЦА, МЛАДЕНА СТОЈАНОВИЋА БР. 123 63.48
397 3147551-4-0624-7366452 6/30/2024 МХ „ЕЛЕКТРОПРИВРЕДА РЕПУБЛИКЕ СРПСКЕ” КУЋИЦА ЗА НАПЛАТУ ПАРКИНГА КОД КАСТЕЛА, ТРЖНИЧКА ББ 41.56
398 3147550-4-0624-7366452 6/30/2024 МХ „ЕЛЕКТРОПРИВРЕДА РЕПУБЛИКЕ СРПСКЕ” ПАРКИНГ КУЋИЦА ПОРЕД ХОТЕЛА ПАЛАСА КРАЉА ПЕТРА И КАРАЂОРЂЕВИЋА 58 76.01
399 3147549-4-0624-7366452 6/30/2024 МХ „ЕЛЕКТРОПРИВРЕДА РЕПУБЛИКЕ СРПСКЕ” НАПЛАТНА ПАРКИНГ КУЋИЦА , УЛ. КРАЉА П. КАРАЂОРЂЕВИЋА 74А 41.56
400 3147548-4-0624-7366452 6/30/2024 МХ „ЕЛЕКТРОПРИВРЕДА РЕПУБЛИКЕ СРПСКЕ” ПАРКИНГ ВОЗИЛА, ПАУК СЛУЖБА УЛ. БИТОЉСКА 142.90
401 3145461-4-0624-7366501 6/30/2024 МХ „ЕЛЕКТРОПРИВРЕДА РЕПУБЛИКЕ СРПСКЕ” РАЧУН ЗА ВИ 2024. ЗА П. П. БР. 1 У УЛ. К. П. И КАРАЂОРЂЕВИЋА БР. 113 42.00
402 3149302-4-0624-7366469 6/30/2024 МХ „ЕЛЕКТРОПРИВРЕДА РЕПУБЛИКЕ СРПСКЕ” РАЧУН ЗА ВИ 2024. ЗА МЗ ЦЕНТАР 1 (БРОЈИЛО БР. 4396554) 42.01
403 3149301-4-0624-7366469 6/30/2024 МХ „ЕЛЕКТРОПРИВРЕДА РЕПУБЛИКЕ СРПСКЕ” РАЧУН ЗА ВИ 2024. ЗА МЗ ЦЕНТАР 1 (БРОЈИЛО БР. 4594517) 41.39
404 3150086-4-0624-7366511 6/30/2024 МХ „ЕЛЕКТРОПРИВРЕДА РЕПУБЛИКЕ СРПСКЕ” РАЧУН ЗА ВИ 2024. ЗА МЗ ПИСКАВИЦА 42.18
405 3148861-4-0624-7366436 6/30/2024 МХ „ЕЛЕКТРОПРИВРЕДА РЕПУБЛИКЕ СРПСКЕ” РАЧУН ЗА ВИ 2024. ЗА П. П. БР. 221 И 222 У УЛ. В. МАСЛЕШЕ БР. 1/11 107.72
406 3145463-4-0624-7366524 6/30/2024 МХ „ЕЛЕКТРОПРИВРЕДА РЕПУБЛИКЕ СРПСКЕ” РАЧУН ЗА ВИ 2024. ЗА П. П. БР. 4 У УЛ. К. П. И КАРАЂОРЂЕВИЋА БР. 23 10.61
407 3148860-4-0624-7366436 6/30/2024 МХ „ЕЛЕКТРОПРИВРЕДА РЕПУБЛИКЕ СРПСКЕ” РАЧУН ЗА ВИ 2024. ЗА П. П. БР. 99 У Б. В. Ж. МИШИЋА БР. 33 92.89
408 3148473-4-0624-7366478 6/30/2024 МХ „ЕЛЕКТРОПРИВРЕДА РЕПУБЛИКЕ СРПСКЕ” РАЧУН ЗА ВИ 2024. ЗА АМБУЛАНТУ У МЗ ПЕТРИЋЕВАЦ 119.71
409 3148859-4-0624-7366436 6/30/2024 МХ „ЕЛЕКТРОПРИВРЕДА РЕПУБЛИКЕ СРПСКЕ” РАЧУН ЗА ВИ 2024. ЗА П. П. НА БАЊ БРДУ 42.58
410 3148471-4-0624-7366478 6/30/2024 МХ „ЕЛЕКТРОПРИВРЕДА РЕПУБЛИКЕ СРПСКЕ” РАЧУН ЗА ВИ 2024. ЗА П. П. БР. 1 У МЗ ПЕТРИЋЕВАЦ 41.36
411 3148864-4-0624-7366436 6/30/2024 МХ „ЕЛЕКТРОПРИВРЕДА РЕПУБЛИКЕ СРПСКЕ” РАЧУН ЗА ВИ 2024. ЗА РАДНИЧКИ УНИВЕРЗИТЕТ 42.54
412 3148858-4-0624-7366436 6/30/2024 МХ „ЕЛЕКТРОПРИВРЕДА РЕПУБЛИКЕ СРПСКЕ” РАЧУН ЗА ВИ 2024. ЗА ЈС У УЛ. С. МАТАВУЉА БР. 10 41.56
413 3148862-40624-7366436 6/30/2024 МХ „ЕЛЕКТРОПРИВРЕДА РЕПУБЛИКЕ СРПСКЕ” РАЧУН ЗА ВИ 2024. ЗА П. П. У УЛ. ГРЧКА БР. 4 103.70
414 3148857-4-0624-7366436 6/30/2024 МХ „ЕЛЕКТРОПРИВРЕДА РЕПУБЛИКЕ СРПСКЕ” РАЧУН ЗА ВИ 2024. ЗА ЈС „ЦЕНТАР 1” У УЛ. С. ШОЛАЈЕ 44.28
415 3148865-4-0624-7366436 6/30/2024 МХ „ЕЛЕКТРОПРИВРЕДА РЕПУБЛИКЕ СРПСКЕ” РАЧУН ЗА ВИ 2024. ЗА ЦЕНТРАЛНУ ГАРАЖУ БР. 1 У УЛ. КОРДУНАШКА БР. 10 59.91
416 3148866-4-0624-7366436 6/30/2024 МХ „ЕЛЕКТРОПРИВРЕДА РЕПУБЛИКЕ СРПСКЕ” РАЧУН ЗА ВИ 2024. ЗА ГАРАЖУ У УЛ. С. МАТАВУЉА БР. 4 А 42.09
417 3148487-4-0624-7366528 6/30/2024 МХ „ЕЛЕКТРОПРИВРЕДА РЕПУБЛИКЕ СРПСКЕ” УТРОШАК ЕЛЕКТРИЧНЕ ЕНЕРГИЈЕ ЗА РАД ПУМПНЕ СТАНИЦЕ МОТИКЕ 2 41.94
418 3148565-4-0624-7366529 6/30/2024 МХ „ЕЛЕКТРОПРИВРЕДА РЕПУБЛИКЕ СРПСКЕ” УТРОШАК ЕЛЕКТРИЧНЕ ЕНЕРГИЈЕ ЗА РАД ПУМПНЕ СТАНИЦЕ МОТИКЕ 1 266.38
419 3145462-4-0624-7366524 6/30/2024 МХ „ЕЛЕКТРОПРИВРЕДА РЕПУБЛИКЕ СРПСКЕ” РАЧУН ЗА ВИ 2024. ЗА АМБУЛАНТУ У МЗ ДОЊА КОЛА 85.14
420 3148926-4-0624-7366640 6/30/2024 МХ „ЕЛЕКТРОПРИВРЕДА РЕПУБЛИКЕ СРПСКЕ” ЈАВНИ ТОАЛЕТ НИКОЛЕ ТЕСЛЕ 54.04
421 3145465-4-0624-7366538 6/30/2024 МХ „ЕЛЕКТРОПРИВРЕДА РЕПУБЛИКЕ СРПСКЕ” ЈАВНИ ТОАЛЕТ МЛАДЕНА СТОЈАНОВИЋА 41.60
422 3148283-4-0624-7366465 6/30/2024 МХ „ЕЛЕКТРОПРИВРЕДА РЕПУБЛИКЕ СРПСКЕ” НАПЛАТНА КУЋИЦА КОД МЕДИЦИНСКЕ ЕЛЕКТРОНИКЕ ВУКА КАРАЏИЋА 1 44.03
423 116682-4-0624-4101301 6/30/2024 МХ „ЕЛЕКТРОПРИВРЕДА РЕПУБЛИКЕ СРПСКЕ” НАПЛАТНА КУЋИЦА АЛЕЈА СВ.САВЕ 672.19
424 112327-4-0624-4101605 6/30/2024 МХ „ЕЛЕКТРОПРИВРЕДА РЕПУБЛИКЕ СРПСКЕ” НАПЛАТНА ПАРКИНГ КУЋИЦА ВИДОВДАНСКА 488.96
425 137080-4-0724-4101720 7/31/2024 МХ „ЕЛЕКТРОПРИВРЕДА РЕПУБЛИКЕ СРПСКЕ” СТРУЈА 07/2024 187.60
426 137067-4-0724-4101720 7/31/2024 МХ „ЕЛЕКТРОПРИВРЕДА РЕПУБЛИКЕ СРПСКЕ” СТРУЈА 07/2024 39.51
427 137071-4-0724-4101720 7/31/2024 МХ „ЕЛЕКТРОПРИВРЕДА РЕПУБЛИКЕ СРПСКЕ” СТРУЈА 07/2024 40.09
428 137083-4-0724-4101720 7/31/2024 МХ „ЕЛЕКТРОПРИВРЕДА РЕПУБЛИКЕ СРПСКЕ” СТРУЈА 07/2024 676.25
429 137075-4-0724-4101720 7/31/2024 МХ „ЕЛЕКТРОПРИВРЕДА РЕПУБЛИКЕ СРПСКЕ” СТРУЈА 07/2024 44.12
430 137085-4-0724-4101720 7/31/2024 МХ „ЕЛЕКТРОПРИВРЕДА РЕПУБЛИКЕ СРПСКЕ” СТРУЈА 07/2024 39.73
431 137079-4-0724-4101720 7/31/2024 МХ „ЕЛЕКТРОПРИВРЕДА РЕПУБЛИКЕ СРПСКЕ” СТРУЈА 07/2024 52.25
432 137081-4-0724-4101720 7/31/2024 МХ „ЕЛЕКТРОПРИВРЕДА РЕПУБЛИКЕ СРПСКЕ” СТРУЈА 07/2024 145.37
433 137084-4-0724-4101720 7/31/2024 МХ „ЕЛЕКТРОПРИВРЕДА РЕПУБЛИКЕ СРПСКЕ” СТРУЈА 07/2024 572.82
434 137086-4-0724-4101720 7/31/2024 МХ „ЕЛЕКТРОПРИВРЕДА РЕПУБЛИКЕ СРПСКЕ” СТРУЈА 07/2024 40.09
435 137087-4-0724-4101720 7/31/2024 МХ „ЕЛЕКТРОПРИВРЕДА РЕПУБЛИКЕ СРПСКЕ” СТРУЈА 07/2024 53.30
436 137090-4-4101720 7/31/2024 МХ „ЕЛЕКТРОПРИВРЕДА РЕПУБЛИКЕ СРПСКЕ” СТРУЈА 07/2024 163.72
437 137100-4-0724-4101720 7/31/2024 МХ „ЕЛЕКТРОПРИВРЕДА РЕПУБЛИКЕ СРПСКЕ” СТРУЈА 07/2024 53.56
438 137101-4-0724-4101720 7/31/2024 МХ „ЕЛЕКТРОПРИВРЕДА РЕПУБЛИКЕ СРПСКЕ” СТРУЈА 07/2024 170.57
439 137098-4-0724-4101720 7/31/2024 МХ „ЕЛЕКТРОПРИВРЕДА РЕПУБЛИКЕ СРПСКЕ” СТРУЈА 07/2024 82.02
440 137096-4-0724-4101720 7/31/2024 МХ „ЕЛЕКТРОПРИВРЕДА РЕПУБЛИКЕ СРПСКЕ” СТРУЈА 07/2024 59.67
441 137099-4-0724-4101720 7/31/2024 МХ „ЕЛЕКТРОПРИВРЕДА РЕПУБЛИКЕ СРПСКЕ” СТРУЈА 07/2024 49.83
442 137097-4-0724-4101720 7/31/2024 МХ „ЕЛЕКТРОПРИВРЕДА РЕПУБЛИКЕ СРПСКЕ” СТРУЈА 07/2024 2,131.56
443 137094-4-0724-4101720 7/31/2024 МХ „ЕЛЕКТРОПРИВРЕДА РЕПУБЛИКЕ СРПСКЕ” СТРУЈА 07/2024 54.81
444 137092-4-0724-4101720 7/31/2024 МХ „ЕЛЕКТРОПРИВРЕДА РЕПУБЛИКЕ СРПСКЕ” СТРУЈА 07/2024 50.03
445 137095-4-0724-4101720 7/31/2024 МХ „ЕЛЕКТРОПРИВРЕДА РЕПУБЛИКЕ СРПСКЕ” СТРУЈА 07/2024 40.09
446 137093-4-0724-4101720 7/31/2024 МХ „ЕЛЕКТРОПРИВРЕДА РЕПУБЛИКЕ СРПСКЕ” СТРУЈА 07/2024 77.17
447 137091-4-0724-4101720 7/31/2024 МХ „ЕЛЕКТРОПРИВРЕДА РЕПУБЛИКЕ СРПСКЕ” СТРУЈА 07/2024 41.93
448 137055-4-0724-4101720 7/31/2024 МХ „ЕЛЕКТРОПРИВРЕДА РЕПУБЛИКЕ СРПСКЕ” СТРУЈА 07/2024 86.06
449 137057-4-0724-4101720 7/31/2024 МХ „ЕЛЕКТРОПРИВРЕДА РЕПУБЛИКЕ СРПСКЕ” СТРУЈА 07/2024 73.13
450 137056-4-0724-4101720 7/31/2024 МХ „ЕЛЕКТРОПРИВРЕДА РЕПУБЛИКЕ СРПСКЕ” СТРУЈА 07/2024 58.78
451 137058-4-0724-4101720 7/31/2024 МХ „ЕЛЕКТРОПРИВРЕДА РЕПУБЛИКЕ СРПСКЕ” СТРУЈА 07/2024 50.60
452 137059-4-0724-4101720 7/31/2024 МХ „ЕЛЕКТРОПРИВРЕДА РЕПУБЛИКЕ СРПСКЕ” СТРУЈА 07/2024 75.18
453 137060-4-0724-4101720 7/31/2024 МХ „ЕЛЕКТРОПРИВРЕДА РЕПУБЛИКЕ СРПСКЕ” СТРУЈА 07/2024 47.00
454 137061-4-0724-4101720 7/31/2024 МХ „ЕЛЕКТРОПРИВРЕДА РЕПУБЛИКЕ СРПСКЕ” СТРУЈА 07/2024 76.14
455 137050-4-0724-4101720 7/31/2024 МХ „ЕЛЕКТРОПРИВРЕДА РЕПУБЛИКЕ СРПСКЕ” СТРУЈА 07/2024 49.67
456 137051-4-0724-4101720 7/31/2024 МХ „ЕЛЕКТРОПРИВРЕДА РЕПУБЛИКЕ СРПСКЕ” СТРУЈА 07/2024 39.59
457 137052-4-0724-4101720 7/31/2024 МХ „ЕЛЕКТРОПРИВРЕДА РЕПУБЛИКЕ СРПСКЕ” СТРУЈА 07/2024 42.23
458 137053-4-0724-4101720 7/31/2024 МХ „ЕЛЕКТРОПРИВРЕДА РЕПУБЛИКЕ СРПСКЕ” СТРУЈА 07/2024 39.73
459 1877368-4-0422-7366511 4/30/2022 МХ „ЕЛЕКТРОПРИВРЕДА РЕПУБЛИКЕ СРПСКЕ” СТРУЈА 04/2021 22.00
460 1949368-4-0721-7366491 7/31/2021 МХ „ЕЛЕКТРОПРИВРЕДА РЕПУБЛИКЕ СРПСКЕ” СТРУЈА 07/2021 26.14
461 1949422-4-0721-7366494 7/31/2021 МХ „ЕЛЕКТРОПРИВРЕДА РЕПУБЛИКЕ СРПСКЕ” СТРУЈА 07/2021 762.76
462 1949413-4-0721-7366511 7/31/2021 МХ „ЕЛЕКТРОПРИВРЕДА РЕПУБЛИКЕ СРПСКЕ” СТРУЈА 07/2021 22.03
463 4851673-4-1221-7366511 12/31/2021 МХ „ЕЛЕКТРОПРИВРЕДА РЕПУБЛИКЕ СРПСКЕ” СТРУЈА 12/2021 27.52
464 24 5/31/2024 „СИЕКОМ” д.о.о. ОДРЖАВАЊЕ ТЕЛЕФОНСКОГ СИСТЕМА ГУБЛ ЗА ПЕРИОД 05. 05 - 04. 06. 2024. (9/12) 585.00
465 18 4/30/2024 „СИЕКОМ” д.о.о. ОДРЖАВАЊЕ ТЕЛЕФОНСКОГ СИСТЕМА ГУБЛ ЗА ПЕРИОД 05. 04 - 05. 05. 2024. (8/12) 585.00
466 833-0/2024 5/14/2024 НОТАР ДАЛИБОР ПУХАЛО УСЛУГА НОТАРСКЕ ОБРАДЕ УГОВОРА О ЕКСПРОПРИЈАЦИЈИ 324.68
467 ФУ-45-0/24 5/7/2024 „ЦЕНТРОНИКС” д.о.о. БАЊА ЛУКА ОДРЖАВАЊЕ МОБИЛНИХ РАДИО СТАНИЦА 819.00
468 24-360-001390 5/31/2024 „ЕКО БЕЛ” д.о.о. ЛАКТАШИ ДЕВИПЕРИЗАЦИЈА И УКЛАЊАЊЕ СТРШЉЕНА 3,685.36
469 243/24 5/11/2024 „БОЧАЦ ТУРС” д.о.о. БАЊА ЛУКА МЈЕСЕЧНЕ КАРТЕ ЗА МАЈ 2024. ЗА УЧЕНИКЕ РОМСКЕ ПРИПАДНОСТИ 105.00
470 446/24 8/13/2024 „БОЧАЦ ТУРС” д.о.о. БАЊА ЛУКА РАЗЛИКА ОД ЦИЈЕНЕ КАРТЕ ПО УГОВОРУ 3,792.15
471 445/24 8/13/2024 „БОЧАЦ ТУРС” д.о.о. БАЊА ЛУКА РАЗЛИКА ОД ЦИЈЕНЕ КАРТЕ 7,235.20
472 395/2024 7/31/2024 „БОЧАЦ ТУРС” д.о.о. БАЊА ЛУКА СУБВЕНЦИЈЕ 110,757.42
473 396/2024 8/1/2024 „БОЧАЦ ТУРС” д.о.о. БАЊА ЛУКА БЕСПЛАТНЕ ПЕНЗИОНЕРСКЕ МЈЕСЕЧНЕ КАРТЕ 19,747.45
474 397/2024 8/1/2024 „БОЧАЦ ТУРС” д.о.о. БАЊА ЛУКА СУБВЕНЦИЈЕ 19,829.14
475 ИФ-00174-7-24 5/29/2024 „ИНТЕР-МЕТАЛ” д.о.о. НАБАВКА АРХИВСКИХ ПОЛИЦА 5,850.00
476 74/24 8/14/2024 „ЖАК ТУРС” д.о.о. БАЊА ЛУКА РАЗЛИКА ОД ЦИЈЕНЕ КАРТЕ ПО УГОВОРУ 271.40
477 предрачун 01-П-364/24 8/6/2024 ЈУ СЛУЖБЕНИ ГЛАСНИК РС ОБЈАВА ОГЛАСА ЈАВНИ КОНКУРС 2,907.45
478 04-р-783/2024 7/29/2024 ЈУ СЛУЖБЕНИ ГЛАСНИК РС РАСХОДИ ЗА РЕЖИЈСКИ МАТЕРИЈАЛ 20,300.01
479 208/24 3/31/2024 ЗЕВ ПАЛИХ БОРАЦА 13 РАЧУН ЗА ИИИ 2024. ЗА СТАН БР. 66 16.40
480 212/24 3/31/2024 ЗЕВ ПАЛИХ БОРАЦА 13 РАЧУН ЗА ИИИ 2024. ЗА СТАН БР. 70 16.00
481 203/24 3/31/2024 ЗЕВ ПАЛИХ БОРАЦА 13 РАЧУН ЗА ИИИ 2024. ЗА СТАН БР. 61 16.00
482 205/24 3/31/2024 ЗЕВ ПАЛИХ БОРАЦА 13 РАЧУН ЗА ИИИ 2024. ЗА СТАН БР. 63 16.00
483 72/24 7/31/2024 „ЕКО ЕУРО ТИМ” д.о.о. БАЊА ЛУКА  УКЛАЊАЊЕ ОТПАДА 160,883.35
484 030/2024 8/21/2024 ТЕКТОН АВАНСНИ РАЧУН 030/2024 XИВ ПРИВРЕМЕНА СИТУАЦИЈА ЗА ИЗВОЂЕЊЕ РАДОВА НА ИЗГРАДЊИ ЦЕНТРАЛНОГ СПОМЕНИКА ПОГИНУЛИМ БОРЦИМА ОДБРАМБЕНО-ОТАЏБИНСКОГ РАТА У БЛ -39,967.17
485 XИВ привремена ситуација 8/21/2024 ТЕКТОН XИВ ПРИВРЕМЕНА СИТУАЦИЈА ЗА ИЗГРАДЊУ ЦЕНТРАЛНОГ СПОМЕНИКА ПОГИНУЛИМ БОРЦИМА ОДБРАМБЕНО-ОТАЏБИНСКОГ РАТА 149,876.89
486 Ос02-8/24 8/20/2024 „ПРОЦЕСНА ОПРЕМА” д.о.о. САНАЦИЈА СПОРТСКИХ ТЕРЕНА 37,396.71
487 пс02-8/24 8/14/2024 „ПРОЦЕСНА ОПРЕМА” д.о.о. УРЕЂЕЊЕ ЈАВНИХ ПОВРШИНА ПРИВ. КАРАКТЕРА НА ЛОКАЦИЈИ КИНО КОЗАРА 79,453.53
488 01/4/24 окончана ситуација 4/30/2024 „ПРОЦЕСНА ОПРЕМА” д.о.о. ЉЕТЊА БИНА У ПИСКАВИЦИ 75,167.12
489 38/24 7/29/2024 „БУНИЋ КОМПАНИ” д.о.о. БАЊА ЛУКА ПРВА ПРИВРЕМЕНА СИТУАЦИЈА БРОЈ 38/24 ОД 29. 07. 2024. 46,566.00
490 ОКОНЧАНА СИТУАЦИЈА 41/24 8/12/2024 „БУНИЋ КОМПАНИ” д.о.о. БАЊА ЛУКА ОКОНЧАНА СИТУАЦИЈА БРОЈ 41/24 ОД 12. 08. 2024. 32,859.45
491 24-3000-000132 7/1/2024 ЈП „ПРОТИВГРАДНА ПРЕВЕНТИВА РС” а.д. ГРАДИШКА ПОСЛОВИ ПРОТИВГРАДНЕ ЗАШТИТЕ ВИИ РАТА 5,000.00
492 иф-00093-9-24 3/1/2024 „ПЕРФЕЦТ ЦЛЕАН” д.о.о. БАЊА ЛУКА ПРАЊЕ ВАТРОГАСНИХ УНИФОРМИ, ЈАКНИ И ХЛАЧА 52.65
493 035/2024 4/1/2024 „НТВ” д.о.о. ЗАКУП АНТЕНСКИХ СТУБОВА ЗА РЕПЕТИТОР НА ШИБОВИМА 1,439.10
494 53309-2024-03 3/31/2024 „ВОДОВОД” а.д. БАЊА ЛУКА УТРОШЕНА ВОДА ЗА МАРТ 2024. ГОДИНЕ 21.68
495 53334-2024-03 3/31/2024 „ВОДОВОД” а.д. БАЊА ЛУКА УТРОШЕНА ВОДА ЗА МАРТ 2024. ГОДИНЕ 14.93
496 53320-2024-03 3/31/2024 „ВОДОВОД” а.д. БАЊА ЛУКА УТРОШЕНА ВОДА ЗА МАРТ 2024. ГОДИНЕ 11.70
497 53320-2024-04 4/30/2024 „ВОДОВОД” а.д. БАЊА ЛУКА УТРОШАК ВОДЕ ЗА АПРИЛ 2024. ГОДИНЕ 11.70
498 53309-2024-04 4/30/2024 „ВОДОВОД” а.д. БАЊА ЛУКА УТРОШАК ВОДЕ ЗА АПРИЛ 2024. ГОДИНЕ 28.45
499 53334-2024-04 4/30/2024 „ВОДОВОД” а.д. БАЊА ЛУКА УТРОШАК ВОДЕ ЗА АПРИЛ 2024. ГОДИНЕ 11.55
500 950316-2024-04 4/30/2024 „ВОДОВОД” а.д. БАЊА ЛУКА ВОДА 04/2024 1,684.74
501 945749-2024-04 4/30/2024 „ВОДОВОД” а.д. БАЊА ЛУКА ВОДА 04/24 116.52
502 941147-2024-05 5/31/2024 „ВОДОВОД” а.д. БАЊА ЛУКА РАЧУН ЗА ВОДУ У ПЗ „РАМИЋИ-БАЊА ЛУКА” 05/24 11.70
503 941147-2024-05 5/31/2024 „ВОДОВОД” а.д. БАЊА ЛУКА РАЧУН ЗА ВОДУ У ПЗ „РАМИЋИ-БАЊА ЛУКА” 05/24 1.40
504 941147-2024-05 5/31/2024 „ВОДОВОД” а.д. БАЊА ЛУКА РАЧУН ЗА ВОДУ У ПЗ „РАМИЋИ-БАЊА ЛУКА” 05/24 11.70
505 941147-2024-05 5/31/2024 „ВОДОВОД” а.д. БАЊА ЛУКА БАНА МИЛОСАВЉЕВИЋА ББ-05/24 11.70
506 941147-2024-05 5/31/2024 „ВОДОВОД” а.д. БАЊА ЛУКА КРАЉА П. И КАРАЂОРЂЕВИЋА /05/24 3.95
507 941147-2024-05 5/31/2024 „ВОДОВОД” а.д. БАЊА ЛУКА И. Г. КОВАЧИЋА - 05/24 52.18
508 941147-2024-05 5/31/2024 „ВОДОВОД” а.д. БАЊА ЛУКА ВЕСЕЛИНА МАСЛЕШЕ-05/24 11.70
509 941147-2024-05 5/31/2024 „ВОДОВОД” а.д. БАЊА ЛУКА БАНА МИЛОСАВЉЕВИЋА-05/24 42.21
510 941147-2024-05 5/31/2024 „ВОДОВОД” а.д. БАЊА ЛУКА БАНА МИЛОСАВЉЕВИЋА ББ-05/24 732.77
511 941147-2024-05 5/31/2024 „ВОДОВОД” а.д. БАЊА ЛУКА МЛАЂЕ ЋУСИЋА-05/24 1.40
512 941147-2024-05 5/31/2024 „ВОДОВОД” а.д. БАЊА ЛУКА САНСКА-05/24 2.56
513 941147-2024-05 5/31/2024 „ВОДОВОД” а.д. БАЊА ЛУКА МИЛАНА ТЕПИЋА-05/24 1.40
514 941147-2024-05 5/31/2024 „ВОДОВОД” а.д. БАЊА ЛУКА СОЛУНСКА ББ 1.40
515 941147-2024-05 5/31/2024 „ВОДОВОД” а.д. БАЊА ЛУКА БУЛЕВАР СРПСКЕ ВОЈСКЕ 05/24 47.54
516 941147-2024-05 5/31/2024 „ВОДОВОД” а.д. БАЊА ЛУКА БУЛЕВАР СРПСКЕ ВОЈСКЕ 05/24 1.40
517 941147-2024-05 5/31/2024 „ВОДОВОД” а.д. БАЊА ЛУКА МЛАДЕНА СТОЈАНОВИЋА 05/24 72.40
518 941147-2024-05 5/31/2024 „ВОДОВОД” а.д. БАЊА ЛУКА КУПРЕШКА 05/24 1.40
519 941147-2024-05 5/31/2024 „ВОДОВОД” а.д. БАЊА ЛУКА ЈАВНА ЧЕСМА ЂУРЕ ЂАКОВИЋА 05/24 1.40
520 941147-2024-05 5/31/2024 „ВОДОВОД” а.д. БАЊА ЛУКА ЈАВНА ЧЕСМА ЂУРЕ ЂАКОВИЋА 05/24 1.40
521 941147-2024-05 5/31/2024 „ВОДОВОД” а.д. БАЊА ЛУКА СРПСКЕ ТОПЛИЦЕ-05/24 1.40
522 941147-2024-05 5/31/2024 „ВОДОВОД” а.д. БАЊА ЛУКА ТУШ-ЗЕЛЕНИ ВИР-05/24 1.40
523 941147-2024-05 5/31/2024 „ВОДОВОД” а.д. БАЊА ЛУКА ЧЕСМА-МС-05/24 26.91
524 941147-2024-05 5/31/2024 „ВОДОВОД” а.д. БАЊА ЛУКА ЧЕСМА АЛЕЈА СВЕТОГ САВЕ-05/24 19.94
525 941147-2024-05 5/31/2024 „ВОДОВОД” а.д. БАЊА ЛУКА Т. Т. ДАМЈАНОВИЋА-05/24 1.40
526 941147-2024-05 5/31/2024 „ВОДОВОД” а.д. БАЊА ЛУКА ТРГ КРАЈИНЕ-05/24 74.72
527 941147-2024-05 5/31/2024 „ВОДОВОД” а.д. БАЊА ЛУКА ТРГ ПАЛИХ БОРАЦА-05/24 6.49
528 941147-2024-05 5/31/2024 „ВОДОВОД” а.д. БАЊА ЛУКА ЦАРИЦЕ МИЛИЦЕ-05/24 6.04
529 941147-2024-05 5/31/2024 „ВОДОВОД” а.д. БАЊА ЛУКА БАНА МИЛОСАВЉЕВИЋА-05/24 1.40
530 941147-2024-05 5/31/2024 „ВОДОВОД” а.д. БАЊА ЛУКА ГОЛУБА БАБИЋА-05/24 11.83
531 941147-2024-05 5/31/2024 „ВОДОВОД” а.д. БАЊА ЛУКА САВЕ ЉУБОЈЕ ББ-05/24 1.40
532 941147-2024-05 5/31/2024 „ВОДОВОД” а.д. БАЊА ЛУКА БУЛ. ЦАРА ДУШАНА-05/24 77.27
533 941147-2024-05 5/31/2024 „ВОДОВОД” а.д. БАЊА ЛУКА ВОДА 05/24 4.33
534 941147-2024-05 5/31/2024 „ВОДОВОД” а.д. БАЊА ЛУКА ВОДА 05/24 485.08
535 941147-2024-05 5/31/2024 „ВОДОВОД” а.д. БАЊА ЛУКА ВОДА 05/24 11.55
536 941147-2024-05 5/31/2024 „ВОДОВОД” а.д. БАЊА ЛУКА ВОДА 05/24 15.90
537 950317-2024-04 4/30/2024 „ВОДОВОД” а.д. БАЊА ЛУКА КНИНСКА ББ-04/24 11.70
538 62822-2024-04 4/30/2024 „ВОДОВОД” а.д. БАЊА ЛУКА МЛАДЕНА СТОЈАНОВИЋА 04/24 1.40
539 62845-2024-04 4/30/2024 „ВОДОВОД” а.д. БАЊА ЛУКА ОД ЗМИЈАЊА РАЈКА 04/24 2.56
540 57449-2024-04 4/30/2024 „ВОДОВОД” а.д. БАЊА ЛУКА 1. КРАЈИШКОГ КОРПУСА 04/24 37.11
541 62862-2024-04 4/30/2024 „ВОДОВОД” а.д. БАЊА ЛУКА 24. 5. 2024 1.40
542 62859-2024-04 4/30/2024 „ВОДОВОД” а.д. БАЊА ЛУКА ДРАГИШЕ ВАСИЋА ББ 04/24 14.15
543 950327-2024-04 4/30/2024 „ВОДОВОД” а.д. БАЊА ЛУКА МИРКА КОВАЧЕВИЋА 04/24 2.91
544 62856-2024-04 4/30/2024 „ВОДОВОД” а.д. БАЊА ЛУКА БУЛЕВАР ЖИВОЈИНА МИШИЋА 04/24 1.40
545 1161351-2024-04 4/30/2024 „ВОДОВОД” а.д. БАЊА ЛУКА УТРОШАК ВОДЕ ЗА АПРИЛ 2024. 7.83
546 941147-2024-04 4/30/2024 „ВОДОВОД” а.д. БАЊА ЛУКА УТРОШАК ВОДЕ 0.00
547 941147-2024-04 4/30/2024 „ВОДОВОД” а.д. БАЊА ЛУКА АЛЕЈА СВЕТОГ САВЕ-04/24 21.10
548 941147-2024-04 4/30/2024 „ВОДОВОД” а.д. БАЊА ЛУКА Т. Т. ДАМЈАНОВИЋА 04/24 1.40
549 941147-2024-04 4/30/2024 „ВОДОВОД” а.д. БАЊА ЛУКА ТРГ КРАЈИНЕ 04/24 128.28
550 941147-2024-04 4/30/2024 „ВОДОВОД” а.д. БАЊА ЛУКА ТРГ ПАЛИХ БОРАЦА 04/24 16.70
551 941147-2024-04 4/30/2024 „ВОДОВОД” а.д. БАЊА ЛУКА ЦАРИЦЕ МИЛИЦЕ ББ-04/24 3.71
552 941147-2024-04 4/30/2024 „ВОДОВОД” а.д. БАЊА ЛУКА БАНА МИЛОСАВЉЕВИЋА 05/24 1.40
553 941147-2024-04 4/30/2024 „ВОДОВОД” а.д. БАЊА ЛУКА ГОЛУБА БАБИЋА 04/24 18.78
554 941147-2024-04 4/30/2024 „ВОДОВОД” а.д. БАЊА ЛУКА САВЕ ЉУБОЈЕ 04/24 1.40
555 941147-2024-04 4/30/2024 „ВОДОВОД” а.д. БАЊА ЛУКА БУЛЕВАР ЦАРА ДУШАНА-04/24 92.57
556 941147-2024-04 4/30/2024 „ВОДОВОД” а.д. БАЊА ЛУКА БАНА МИЛОСАВЉЕВИЋА 04/24 11.70
557 941147-2024-04 4/30/2024 „ВОДОВОД” а.д. БАЊА ЛУКА КРАЉА ПЕТРА 1. КАРАЂОРЂЕВИЋА 04/24 1.40
558 941147-2024-04 4/30/2024 „ВОДОВОД” а.д. БАЊА ЛУКА ИВАНА ГОРАНА КОВАЧИЋА 04/24 93.88
559 941147-2024-04 4/30/2024 „ВОДОВОД” а.д. БАЊА ЛУКА ВЕСЕЛИНА МАСЛЕШЕ 04/24 11.70
560 941147-2024-04 4/30/2024 „ВОДОВОД” а.д. БАЊА ЛУКА БАНА МИЛОСАВЉЕВИЋА 04/24 24.36
561 941147-2024-04 4/30/2024 „ВОДОВОД” а.д. БАЊА ЛУКА БАНА МИЛОСАВЉЕВИЋА 04/24 248.16
562 941147-2024-04 4/30/2024 „ВОДОВОД” а.д. БАЊА ЛУКА САНСКА 04/24 4.88
563 941147-2024-04 4/30/2024 „ВОДОВОД” а.д. БАЊА ЛУКА МЛАЂЕ ЋУСИЋА 04/24 1.40
564 941147-2024-04 4/30/2024 „ВОДОВОД” а.д. БАЊА ЛУКА СОЛУНСКА ББ-04/24 1.40
565 941147-2024-04 4/30/2024 „ВОДОВОД” а.д. БАЊА ЛУКА МИЛАНА ТЕПИЋА 04/24 1.40
566 941147-2024-04 4/30/2024 „ВОДОВОД” а.д. БАЊА ЛУКА БУЛЕВАР СРПСКЕ ВОЈСКЕ 04/24 1.40
567 941147-2024-04 4/30/2024 „ВОДОВОД” а.д. БАЊА ЛУКА БУЛЕВАР СРПСКЕ ВОЈСКЕ 04/24 24.39
568 941147-2024-04 4/30/2024 „ВОДОВОД” а.д. БАЊА ЛУКА МЛАДЕНА СТОЈАНОВИЋА 04/24 109.60
569 941147-2024-04 4/30/2024 „ВОДОВОД” а.д. БАЊА ЛУКА ВОЖДОВАЧКА 04/24 4.78
570 941147-2024-04 4/30/2024 „ВОДОВОД” а.д. БАЊА ЛУКА КУПРЕШКА 04/24 1.40
571 941147-2024-04 4/30/2024 „ВОДОВОД” а.д. БАЊА ЛУКА МЛАДЕНА СТОЈАНОВИЋА 04/24 34.56
572 941147-2024-04 4/30/2024 „ВОДОВОД” а.д. БАЊА ЛУКА ЂУРЕ ЂАКОВИЋА 04/24 16.70
573 941147-2024-04 4/30/2024 „ВОДОВОД” а.д. БАЊА ЛУКА ЂУРЕ ЂАКОВИЋА 04/24 205.45
574 941147-2024-04 4/30/2024 „ВОДОВОД” а.д. БАЊА ЛУКА СРПСКЕ ТОПЛИЦЕ 04/24 2.56
575 941147-2024-04 4/30/2024 „ВОДОВОД” а.д. БАЊА ЛУКА ЗЕЛЕНИ ВИР-04/24 1.40
576 54715-2024-05 5/31/2024 „ВОДОВОД” а.д. БАЊА ЛУКА ВОДА 05/24 11.70
577 62859-2024-05 5/31/2024 „ВОДОВОД” а.д. БАЊА ЛУКА ЈАВНА ЧЕСМА -05/24 16.70
578 947075-2024-05 5/31/2024 „ВОДОВОД” а.д. БАЊА ЛУКА ВОДА 05/24 2.56
579 950316-2024-05 5/31/2024 „ВОДОВОД” а.д. БАЊА ЛУКА ВОДА 05/2024 1,613.33
580 53309-2024-05 5/31/2024 „ВОДОВОД” а.д. БАЊА ЛУКА ОБРАЧУН УТРОШКА ВОДЕ 18.30
581 53320-2024-05 5/31/2024 „ВОДОВОД” а.д. БАЊА ЛУКА ОБРАЧУН УТРОШКА ВОДЕ 11.70
582 53334-2024-05 5/31/2024 „ВОДОВОД” а.д. БАЊА ЛУКА ОБРАЧУН УТРОШКА ВОДЕ 4.78
583 60565-2024-05 5/31/2024 „ВОДОВОД” а.д. БАЊА ЛУКА ВОДА 05/24 2.46
584 950297-2024-05 5/31/2024 „ВОДОВОД” а.д. БАЊА ЛУКА ВОДА 05/24 187.37
585 950297-2024-05 5/31/2024 „ВОДОВОД” а.д. БАЊА ЛУКА ВОДА 05/24 1,884.94
586 943913-2024-05 5/31/2024 „ВОДОВОД” а.д. БАЊА ЛУКА ВОДА 05/24 33.73
587 11161633-2024-05 5/31/2024 „ВОДОВОД” а.д. БАЊА ЛУКА ВОДА 05/24 16.59
588 941158-2024-05 5/31/2024 „ВОДОВОД” а.д. БАЊА ЛУКА ВОДА 05/24 21.80
589 1161351-2024-05 5/31/2024 „ВОДОВОД” а.д. БАЊА ЛУКА ВОДА 05/24 6.93
590 950329-2024-05 5/31/2024 „ВОДОВОД” а.д. БАЊА ЛУКА ВОДА 05/24 11.99
591 50643-2024-05 5/31/2024 „ВОДОВОД” а.д. БАЊА ЛУКА ВОДА 05/24 4.78
592 950317-2024-05 5/31/2024 „ВОДОВОД” а.д. БАЊА ЛУКА КНИНСКА ББ-05/24 11.70
593 945749-2024-05 5/31/2024 „ВОДОВОД” а.д. БАЊА ЛУКА ВОДА 05/24 1.40
594 945749-2024-05 5/31/2024 „ВОДОВОД” а.д. БАЊА ЛУКА ВОДА 05/24 11.70
595 950343-2024-05 5/31/2024 „ВОДОВОД” а.д. БАЊА ЛУКА ВОДА 05/24 1.40
596 50643-2024-06 6/30/2024 „ВОДОВОД” а.д. БАЊА ЛУКА ВОДА 06/24 4.78
597 60565-2024-06 6/30/2024 „ВОДОВОД” а.д. БАЊА ЛУКА ВОДА 06/24 5.84
598 54715-2024-06 6/30/2024 „ВОДОВОД” а.д. БАЊА ЛУКА ВОДА 06/24 11.70
599 943913-2024-06 6/30/2024 „ВОДОВОД” а.д. БАЊА ЛУКА ВОДА 06/24 41.32
600 950297-2024-06 6/30/2024 „ВОДОВОД” а.д. БАЊА ЛУКА ВОДА 06/24 79.18
601 950297-2024-06 6/30/2024 „ВОДОВОД” а.д. БАЊА ЛУКА ВОДА 06/24 1,665.16
602 1161351-2024-05 5/31/2024 „ВОДОВОД” а.д. БАЊА ЛУКА УТРОШАК ВОДЕ ЗА МАЈ 2024. 6.93
603 950343-2024-06 6/30/2024 „ВОДОВОД” а.д. БАЊА ЛУКА ВОДА 06/24 1.40
604 947752-2024-06 6/30/2024 „ВОДОВОД” а.д. БАЊА ЛУКА ВОДА 06/24 11.70
605 947752-2024-06 6/30/2024 „ВОДОВОД” а.д. БАЊА ЛУКА ВОДА 06/24 7.19
606 50647-2024-06 6/30/2024 „ВОДОВОД” а.д. БАЊА ЛУКА ВОДА 06/24 4.78
607 945749-2024-06 6/30/2024 „ВОДОВОД” а.д. БАЊА ЛУКА ВОДА 06/24 11.70
608 945749-2024-06 6/30/2024 „ВОДОВОД” а.д. БАЊА ЛУКА ВОДА 06/24 1.40
609 53309-2024-06 6/30/2024 „ВОДОВОД” а.д. БАЊА ЛУКА УТРОШАК ВОДЕ ЗА МЈЕСЕЦ ЈУН 25.06
610 53334-2024-06 6/30/2024 „ВОДОВОД” а.д. БАЊА ЛУКА УТРОШАК ВОДЕ ЗА МЈЕСЕЦ ЈУН 8.15
611 53320-2024-06 6/30/2024 „ВОДОВОД” а.д. БАЊА ЛУКА УТРОШАК ВОДЕ ЗА МЈЕСЕЦ ЈУН 11.70
612 941147-2024-06 6/30/2024 „ВОДОВОД” а.д. БАЊА ЛУКА ВОДА 6/2024 0.00
613 1161351-2024-06 6/30/2024 „ВОДОВОД” а.д. БАЊА ЛУКА УТРОШАК ВОДЕ ЗА ЈУН 8.45
614 11161633-2024-06 6/30/2024 „ВОДОВОД” а.д. БАЊА ЛУКА ВОДА 06/24 20.32
615 941147-2024-06 6/30/2024 „ВОДОВОД” а.д. БАЊА ЛУКА ВОДА 06/24 24.36
616 941147-2024-06 6/30/2024 „ВОДОВОД” а.д. БАЊА ЛУКА ВОДА 06/24 45.22
617 941147-2024-06 6/30/2024 „ВОДОВОД” а.д. БАЊА ЛУКА ВОДА 06/24 45.86
618 941147-2024-06 6/30/2024 „ВОДОВОД” а.д. БАЊА ЛУКА ВОДА 06/24 435.28
619 941147-2024-06 6/30/2024 „ВОДОВОД” а.д. БАЊА ЛУКА ВОДА 06/24 587.43
620 941147-2024-06 6/30/2024 „ВОДОВОД” а.д. БАЊА ЛУКА ВОДА 06/24 5.85
621 941147-2024-06 6/30/2024 „ВОДОВОД” а.д. БАЊА ЛУКА ВОДА 06/24 1.40
622 941147-2024-06 6/30/2024 „ВОДОВОД” а.д. БАЊА ЛУКА ВОДА 06/24 69.11
623 941147-2024-06 6/30/2024 „ВОДОВОД” а.д. БАЊА ЛУКА ВОДА 06/24 1.40
624 941147-2024-06 6/30/2024 „ВОДОВОД” а.д. БАЊА ЛУКА ВОДА 06/24 2.46
625 941147-2024-06 6/30/2024 „ВОДОВОД” а.д. БАЊА ЛУКА ВОДА 06/24 133.43
626 941147-2024-06 6/30/2024 „ВОДОВОД” а.д. БАЊА ЛУКА ВОДА 06/24 16.06
627 941147-2024-06 6/30/2024 „ВОДОВОД” а.д. БАЊА ЛУКА ВОДА 06/24 1,469.04
628 941147-2024-06 6/30/2024 „ВОДОВОД” а.д. БАЊА ЛУКА ВОДА 06/24 1.40
629 941147-2024-06 6/30/2024 „ВОДОВОД” а.д. БАЊА ЛУКА ВОДА 06/24 4.78
630 941147-2024-06 6/30/2024 „ВОДОВОД” а.д. БАЊА ЛУКА ВОДА 06/24 4.78
631 941147-2024-06 6/30/2024 „ВОДОВОД” а.д. БАЊА ЛУКА ВОДА 06/24 8.15
632 941147-2024-06 6/30/2024 „ВОДОВОД” а.д. БАЊА ЛУКА ВОДА 06/24 11.55
633 941147-2024-06 6/30/2024 „ВОДОВОД” а.д. БАЊА ЛУКА ВОДА 06/24 1.40
634 941147-2024-06 6/30/2024 „ВОДОВОД” а.д. БАЊА ЛУКА ВОДА 06/24 1.40
635 941147-2024-06 6/30/2024 „ВОДОВОД” а.д. БАЊА ЛУКА ВОДА 06/24 1.40
636 941147-2024-06 6/30/2024 „ВОДОВОД” а.д. БАЊА ЛУКА ВОДА 06/24 125.41
637 941147-2024-06 6/30/2024 „ВОДОВОД” а.д. БАЊА ЛУКА ВОДА 06/24 14.64
638 941147-2024-06 6/30/2024 „ВОДОВОД” а.д. БАЊА ЛУКА ВОДА 06/24 16.70
639 941147-2024-06 6/30/2024 „ВОДОВОД” а.д. БАЊА ЛУКА ВОДА 06/24 6.49
640 941147-2024-06 6/30/2024 „ВОДОВОД” а.д. БАЊА ЛУКА ВОДА 06/24 5.01
641 941147-2024-06 6/30/2024 „ВОДОВОД” а.д. БАЊА ЛУКА ВОДА 06/24 4.33
642 941147-2024-06 6/30/2024 „ВОДОВОД” а.д. БАЊА ЛУКА ВОДА 06/24 11.70
643 941147-2024-06 6/30/2024 „ВОДОВОД” а.д. БАЊА ЛУКА ВОДА 06/24 4.33
644 941147-2024-06 6/30/2024 „ВОДОВОД” а.д. БАЊА ЛУКА ВОДА 06/24 0.00
645 941147-2024-06 6/30/2024 „ВОДОВОД” а.д. БАЊА ЛУКА ВОДА 06/24 0.00
646 941147-2024-06 6/30/2024 „ВОДОВОД” а.д. БАЊА ЛУКА ВОДА 06/24 0.00
647 941147-2024-06 6/30/2024 „ВОДОВОД” а.д. БАЊА ЛУКА ВОДА 06/24 0.00
648 941147-2024-06 6/30/2024 „ВОДОВОД” а.д. БАЊА ЛУКА ВОДА 06/24 0.00
649 941147-202406 6/30/2024 „ВОДОВОД” а.д. БАЊА ЛУКА ВОДА 06/24 2.46
650 941147-2024-06 6/30/2024 „ВОДОВОД” а.д. БАЊА ЛУКА ВОДА 06/24 2.46
651 941147-2024-06 6/30/2024 „ВОДОВОД” а.д. БАЊА ЛУКА ВОДА 06/24 11.70
652 941147-2024-06 6/30/2024 „ВОДОВОД” а.д. БАЊА ЛУКА ВОДА 06/24 15.79
653 941147-2024-06 6/30/2024 „ВОДОВОД” а.д. БАЊА ЛУКА ВОДА 06/24 1.40
654 941147-2024-06 6/30/2024 „ВОДОВОД” а.д. БАЊА ЛУКА ВОДА 06/24 29.45
655 941147-2024-06 6/30/2024 „ВОДОВОД” а.д. БАЊА ЛУКА ВОДА 06/24 160.32
656 941147-2024-06 6/30/2024 „ВОДОВОД” а.д. БАЊА ЛУКА ВОДА 06/24 3.71
657 941147-2024-06 6/30/2024 „ВОДОВОД” а.д. БАЊА ЛУКА ВОДА 06/24 0.00
658 941147-2024-06 6/30/2024 „ВОДОВОД” а.д. БАЊА ЛУКА ВОДА 06/24 5.85
659 941147-2024-06 6/30/2024 „ВОДОВОД” а.д. БАЊА ЛУКА ВОДА 06/24 11.70
660 941147-2024-06 6/30/2024 „ВОДОВОД” а.д. БАЊА ЛУКА ВОДА 06/24 1.40
661 941147-2024-06 6/30/2024 „ВОДОВОД” а.д. БАЊА ЛУКА ВОДА 06/24 7.19
662 941147-2024-06 6/30/2024 „ВОДОВОД” а.д. БАЊА ЛУКА ВОДА 06/24 11.70
663 941147-2024-06 6/30/2024 „ВОДОВОД” а.д. БАЊА ЛУКА ВОДА 06/24 1.40
664 941147-2024-06 6/30/2024 „ВОДОВОД” а.д. БАЊА ЛУКА ВОДА 06/24 8.15
665 941147-2024-06 6/30/2024 „ВОДОВОД” а.д. БАЊА ЛУКА ВОДА 06/24 11.70
666 941147-2024-06 6/30/2024 „ВОДОВОД” а.д. БАЊА ЛУКА ВОДА 06/24 11.70
667 941147-2024-06 6/30/2024 „ВОДОВОД” а.д. БАЊА ЛУКА ВОДА 06/24 25.03
668 941147-2024-06 6/30/2024 „ВОДОВОД” а.д. БАЊА ЛУКА ВОДА 06/24 21.80
669 941147-2024-06 6/30/2024 „ВОДОВОД” а.д. БАЊА ЛУКА ВОДА 06/24 19.25
670 941147-2024-06 6/30/2024 „ВОДОВОД” а.д. БАЊА ЛУКА ВОДА 06/24 5.48
671 941147-2024-06 6/30/2024 „ВОДОВОД” а.д. БАЊА ЛУКА ВОДА 06/24 11.70
672 950316-2024-03 3/31/2024 „ВОДОВОД” а.д. БАЊА ЛУКА ВОДА 03/2024 1,411.84
673 950329-2024-06 6/30/2024 „ВОДОВОД” а.д. БАЊА ЛУКА СТРУЈА 06/24 15.00
674 198/24 5/13/2024 ЛЕЈЛА КОСИЋ НОТАР УСЛУГА НОТАРСКЕ ОБРАДЕ УГОВОРА О ЕКСПРОПРИЈАЦИЈИ ОПУ 256-2024 392.30
675 90/24 4/30/2024 ЗЕВ ПАЛИХ БОРАЦА 5 РАЧУН ЗА ИВ 2024. ЗА СТАН БР. 3 12.58
676 104/24 4/30/2024 ЗЕВ ПАЛИХ БОРАЦА 5 РАЧУН ЗА ИВ 2024. ЗА СТАН БР. 17 12.58
677 75/24 3/31/2024 ЗЕВ ПАЛИХ БОРАЦА 5 РАЧУН ЗА ИИИ 2024. ЗА СТАН БР. 17 13.93
678 61/24 3/31/2024 ЗЕВ ПАЛИХ БОРАЦА 5 РАЧУН ЗА ИИИ 2024. ЗА СТАН БР. 3 13.93
679 ИФ-00009-02-24 2/29/2024 ЗЕВ БУЛЕВАР ВОЈВОДЕ ЖИВОЈИНА МИШИЋА 23 ЗЕВ 02/24 65.48
680 ИФ-00009-01-24 1/31/2024 ЗЕВ БУЛЕВАР ВОЈВОДЕ ЖИВОЈИНА МИШИЋА 23 ЗЕВ 01/24 65.48
681 77/2026 4/30/2024 „ДИЈАМАНТ” СЗР БАЊА ЛУКА СТАКЛАРСКИ ПОСЛОВИ 16.83
682 98/2024 6/12/2024 „ДИЈАМАНТ” СЗР БАЊА ЛУКА СТАКЛАРСКИ ПОСЛОВИ 25.11
683 ПРЕДРАЧУН 6/25/2024 „ДИЈАМАНТ” СЗР БАЊА ЛУКА СТАКЛАРСКИ ПОСЛОВИ 86.80
684 93/2024 6/6/2024 „ДИЈАМАНТ” СЗР БАЊА ЛУКА СТАКЛАРСКИ ПОСЛОВИ 40.00
685 ИФ-00020-1-24 7/15/2024 „ГРАЂЕВИНАРСТВО КОС” с.п. УКЛАЊАЊЕ ОДРОЊЕНОГ ЗЕМЉИШТА 19,631.43
686 ИФ-00021-1-24 7/15/2024 „ГРАЂЕВИНАРСТВО КОС” с.п. ОДВОЗ ОТПАДНОГ МАТЕРИЈАЛА (ГУМА) ДО МЈЕСТА ОДЛАГАЊА -ДЕПОНИЈА 298.35
687 ИФ-00022-1-24 7/15/2024 „ГРАЂЕВИНАРСТВО КОС” с.п. РУШЕЊЕ КРОВНЕ КОНСТРУКЦИЈЕ СА КРОВНИМ ПОКРИВАЧЕМ, РУШЕЊЕ МЕЂУСПРАТНЕ КОНСТРУКЦИЈЕ 12,100.67
688 ИФ-00023-1-24 7/15/2024 „ГРАЂЕВИНАРСТВО КОС” с.п. РУШЕЊЕ КРОВНЕ КОНСТРУКЦИЈЕ СА КРОВНИМ ПОКРИВАЧЕМ, РУШЕЊЕ БЕТОНСКИХ ТЕМЕЉА 17,062.81
689 176/24 7/31/2024 „ХИДРО-КОП” д.о.о. БАЊА ЛУКА 4. ПРИВРЕМЕНА СИТУАЦИЈА -РЕКОНСТРУКЦИЈА САОБРАЋАЈНИЦЕ У НАСЕЉУ ЧЕСМА 130,310.19
690 АВАНСНА ФАКТУРА БР 80/24 4/30/2024 „ХИДРО-КОП” д.о.о. БАЊА ЛУКА ВОДА 3 -150,925.24
691 86/24 4/30/2024 „ХИДРО-КОП” д.о.о. БАЊА ЛУКА ВОДА 3 754,626.21
692 3 5/10/2024 ЗЕВ СТЕВАНА ПРВОВЕНЧАНОГ 8 РАЧУН ЗА ИИИ 2024. ЗА ГАРАЖУ БР. 7 И 10А 4.40
693 4/4/2024 5/10/2024 ЗЕВ СТЕВАНА ПРВОВЕНЧАНОГ 8 РАЧУН ЗА ИВ 2024. ЗА ГАРАЖУ БР. 7 И 10А 4.40
694 44/24 4/30/2024 СТАМБЕНА ЗАДРУГА БАЊА ЛУКА ЗАКУП ПРОСТОРА 346.32
695 126/23 6/30/2024 „АЛДЕМО ТУРС” д.о.о. ПРУЖАЊЕ УСЛУГЕ ПРЕВОЗА ТУРИСТИМА НА БАЊ БРДО 6,666.66
696 155/24 8/13/2024 „АЛДЕМО ТУРС” д.о.о. НАКНАДА ПО УГОВОРУ О СУБВЕНЦИЈИ 4,154.60
697 139/24 7/31/2024 „АЛДЕМО ТУРС” д.о.о. СУБВЕНЦИЈЕ 36,995.54
698 142/24 8/1/2024 „АЛДЕМО ТУРС” д.о.о. СУБВЕНЦИЈЕ 3,240.00
699 143/24 8/1/2024 „АЛДЕМО ТУРС” д.о.о. СУБВЕНЦИЈЕ 3,845.37
700 588/24 7/31/2024 „ПАВЛОВИЋ ТУРС” д.о.о. БАЊА ЛУКА СУБВЕНЦИЈЕ 123,927.25
701 644/24 8/1/2024 „ПАВЛОВИЋ ТУРС” д.о.о. БАЊА ЛУКА ЈЕДИНСТВЕНЕ И ДОПЛАТНЕ МЈЕСЕЧНЕ КАРТЕ - УЧЕНИЦИ СТУДЕНТИ 4+ 15,179.71
702 645/24 8/1/2024 „ПАВЛОВИЋ ТУРС” д.о.о. БАЊА ЛУКА СУБВЕНЦИЈЕ 6,995.80
703 649/24 8/13/2024 „ПАВЛОВИЋ ТУРС” д.о.о. БАЊА ЛУКА РАЗЛИКА ИЗМЕЂУ ЦИЈЕНА УТВРЂЕНИХ ЦЈЕНОВНИКОМ 4,864.08
704 648/24 8/13/2024 „ПАВЛОВИЋ ТУРС” д.о.о. БАЊА ЛУКА РАЗЛИКА ИЗМЕЂУ ЦИЈЕНА УТВРЂЕНИХ ЦЈЕНОВНИКОМ 4,587.20
705 356/24 5/15/2024 „ПАВЛОВИЋ ТУРС” д.о.о. БАЊА ЛУКА МЈЕСЕЧНЕ КАРТЕ ЗА МАЈ 2024. ЗА УЧЕНИКЕ РОМСКЕ ПРИПАДНОСТИ 60.00
706 33/24 окончана ситуација 6/25/2024 „ЕГИЋ-КОП” д.о.о. БАЊА ЛУКА  ИЗГРАДЊА ДЈЕЧИЈЕГ ИГРАЛИШТА У ЧЕСМИ 70,126.88
707 1004121-5/24 5/1/2024 „АУРА ОСИГУРАЊЕ” а.д. БАЊА ЛУКА ОСИГУРАЊЕ НЕЗГОДА 1,352.00
708 8006624-5/24 5/10/2024 „АУРА ОСИГУРАЊЕ” а.д. БАЊА ЛУКА ОСИГУРАЊЕ 65.00
709 8006623-5/24 5/10/2024 „АУРА ОСИГУРАЊЕ” а.д. БАЊА ЛУКА ОСИГУРАЊЕ 48.00
710 И привремена ситуација 8/8/2024 „ПРОГРЕСГРАДЊА” д.о.о. И ПРИВРЕМЕНА СИТУАЦИЈА ЗА ЈАВНУ НАБАВКУ "РЕКОНСТРУКЦИЈА ХИДРАНТСКЕ МРЕЖЕ У ЈАВНОМ СКЛОНИШТУ У УЛИЦИ ДРАГИШЕ ВАСИЋА" 11,198.95
711 01-Б/24 И ПРИВРЕМЕНА СИТУАЦИЈА 8/5/2024 „ПРОГРЕСГРАДЊА” д.о.о. ВОДОВОДНА МРЕЖА ОД БРАНКОВЦА ДО САРАЧИЦЕ 125,034.21
712 69/2024 7/31/2024 АДА СП ПРАЊЕ ВОЗИЛА 675.00
713 63/2024 6/15/2024 АДА СП ПРАЊЕ ВОЗИЛА 297.00
714 75/2024 8/15/2024 АДА СП ПРАЊЕ ВОЗИЛА 351.00
715 30/2024 4/24/2024 ПОЛАР СП УГОВОР О НАБАВЦИ ГЛИКОЛА 1,820.85
716 71-07/24 1. привремена ситуација 7/31/2024 БЛ БЕСТ ИНЖЕЊЕРИНГ ИЗГРАДЊА МОСТА У НОВОМ ГРАДСКОМ ПАРКУ 150,756.86
717 01/2400391088 4/30/2024 „ЧИСТОЋА” а.д. БАЊА ЛУКА ЧИСТОЋА 04/24 1,342.97
718 01/2400390816 4/30/2024 „ЧИСТОЋА” а.д. БАЊА ЛУКА ЧИСТОЋА 04/24 1,569.65
719 01/2400386155 3/31/2024 „ЧИСТОЋА” а.д. БАЊА ЛУКА ЧИСТОЋА 03/24 1,569.65
720 01/2400401626 6/30/2024 „ЧИСТОЋА” а.д. БАЊА ЛУКА ОДРЖАВАЊЕ ЈАВНЕ ХИГИЈЕНЕ 264,017.18
721 5538652348 6/30/2024 МТЕЛ ФИКСНИ ТЕЛЕКОМ СРПСКЕ ТРОШКОВИ ЗА МОБИЛНИ ТЕЛЕФОН ЗА ВАЛЕНТИНУ АНИЧИЋ 06/24 104.42
722 6138654286 6/30/2024 МТЕЛ ФИКСНИ ТЕЛЕКОМ СРПСКЕ ПРЕТПЛАТА НЕТ XС+ 76.00
723 1338670210 6/30/2024 МТЕЛ ФИКСНИ ТЕЛЕКОМ СРПСКЕ  ТРОШКОВИ ЗА МОБИЛНИ ТЕЛЕФОН 06/24 ЗА ВЕДРАНА ФРАНЦУЗА 61.35
724 8038624145 6/30/2024 МТЕЛ ФИКСНИ ТЕЛЕКОМ СРПСКЕ ФИКСНИ МЗ КМЕЋАНИ 19.19
725 9238624141 6/30/2024 МТЕЛ ФИКСНИ ТЕЛЕКОМ СРПСКЕ ФИКСНИ МЗ ПАВИЋИ 19.19
726 438624138 6/30/2024 МТЕЛ ФИКСНИ ТЕЛЕКОМ СРПСКЕ ФИКСНИ МЗ ШИМИЋИ 19.19
727 1638624134 6/30/2024 МТЕЛ ФИКСНИ ТЕЛЕКОМ СРПСКЕ ФИКСНИ МЗ ЉУБАЧЕВО 25.60
728 2238624132 6/30/2024 МТЕЛ ФИКСНИ ТЕЛЕКОМ СРПСКЕ ФИКСНИ МЗ АГИНО СЕЛО 37.50
729 3138624129 6/30/2024 МТЕЛ ФИКСНИ ТЕЛЕКОМ СРПСКЕ ФИКСНИ МЗ РЕКАВИЦЕ 2 19.19
730 1838672795 6/30/2024 МТЕЛ ФИКСНИ ТЕЛЕКОМ СРПСКЕ ТРОШКОВИ ЗА МОБИЛНИ ТЕЛЕФОН ЗА ВЕДРАНУ ПРОЛЕ 06/24 72.83
731 1239/002/24 6/30/2024 МТЕЛ ФИКСНИ ТЕЛЕКОМ СРПСКЕ ПРОВИЗИЈА ЗА ВАС СМС МПАРКИНГ 10,405.16
732 538656665 6/30/2024 МТЕЛ ФИКСНИ ТЕЛЕКОМ СРПСКЕ МЗ СТАРЧЕВИЦА 8,551.00
733 5437987672 5/31/2024 МТЕЛ ФИКСНИ ТЕЛЕКОМ СРПСКЕ ИНТЕРНЕТ ЗА РЕПЕТИТОР ШИБОВИ 67.86
734 3637986320 5/31/2024 МТЕЛ ФИКСНИ ТЕЛЕКОМ СРПСКЕ ТРОШКОВИ ЗА МОБИЛНИ ТЕЛЕФОН ЗА ВЕДРАНУ ПРОЛЕ 06/24 47.51
735 4337301918 4/30/2024 МТЕЛ ФИКСНИ ТЕЛЕКОМ СРПСКЕ МЈЕСЕЧНА ПРЕТПЛАТА НЕТ XС+ 19.00
736 0423/24 7/6/2024 ЦСК САМОСТАЛНА РАДЊА БАЊА ЛУКА УСЛУГЕ ШТАМПАЊА 3,287.51
737 17/24 8/28/2024 МАЛБАШИЋ РАДАН МАЛБАШИЋ СП ПРОМОЦИЈА ПРОГРАМСКИХ САДРЖАЈА ДОМА ОМЛАДИНЕ 8,541.00
738 32263/24-ЈН 7/30/2024  ЈП НИО „СЛУЖБЕНИ ЛИСТ“ БИХ УСЛУГА ОБЈАВЕ ЈН У СЛУЖБЕНОМ ГЛАСНИКУ 98.00
739 28683/24-ЈН 7/10/2024  ЈП НИО „СЛУЖБЕНИ ЛИСТ“ БИХ УСЛУГА ОБЈАВЕ ЈН У СЛУЖБЕНОМ ГЛАСНИКУ 98.00
740 29433/24-ЈН 7/11/2024  ЈП НИО „СЛУЖБЕНИ ЛИСТ“ БИХ УСЛУГА ОБЈАВЕ ЈН У СЛУЖБЕНОМ ГЛАСНИКУ 98.00
741 28761/24-ЈН 7/10/2024  ЈП НИО „СЛУЖБЕНИ ЛИСТ“ БИХ УСЛУГА ОБЈАВЕ ЈН У СЛУЖБЕНОМ ГЛАСНИКУ 98.00
742 29181/24-ЈН 7/11/2024  ЈП НИО „СЛУЖБЕНИ ЛИСТ“ БИХ ЈН-320-406/24 УГОВОР ЗА ОДРЖАВАЊЕ ВОЗНОГ ПАРКА 98.00
743 27952/24-ЈН 7/3/2024  ЈП НИО „СЛУЖБЕНИ ЛИСТ“ БИХ УСЛУГА ОБЈАВЕ ЈН У СЛУЖБЕНОМ ГЛАСНИКУ 98.00
744 27452/24-јн 7/2/2024  ЈП НИО „СЛУЖБЕНИ ЛИСТ“ БИХ УСЛУГА ОБЈАВЕ ЈН У СЛУЖБЕНОМ ГЛАСНИКУ 98.00
745 27445/24-јн 7/2/2024  ЈП НИО „СЛУЖБЕНИ ЛИСТ“ БИХ ЈН-320-390/24 НАБАВКА НАМЈЕШТАЈА 98.00
746 24596/24-ЈН 6/11/2024  ЈП НИО „СЛУЖБЕНИ ЛИСТ“ БИХ ПЛАЋАЊЕ ОБАВЈЕШТЕЊА О ДОДЈЕЛИ УГОВОРА ЗА ИЗРАДУ РЕГ. ПЛАНА 98.00
747 24065/24-ЈН 6/11/2024  ЈП НИО „СЛУЖБЕНИ ЛИСТ“ БИХ ПЛАЋАЊЕ ОБАВЈЕШТЕЊА О ДОДЈЕЛИ УГОВОРА ЗА ИЗРАДУ РЕГ. ПЛАНА 98.00
748 23886/24-ЈН 6/11/2024  ЈП НИО „СЛУЖБЕНИ ЛИСТ“ БИХ ИЗГРАДЊА ДЈЕЧИЈЕГ ИГРАЛИШТА 98.00
749 23906/24-ЈН 6/11/2024  ЈП НИО „СЛУЖБЕНИ ЛИСТ“ БИХ ИЗГРАДЊА ВОДОВОДНЕ МРЕЖЕ 98.00
750 25021/24-ЈН 6/11/2024  ЈП НИО „СЛУЖБЕНИ ЛИСТ“ БИХ ЈН-320-358/24 98.00
751 24352/24-ЈН 6/11/2024  ЈП НИО „СЛУЖБЕНИ ЛИСТ“ БИХ ОБЈАВА ЈАВНЕ НАБАВКЕ 98.00
752 24599/24-ЈН 6/11/2024  ЈП НИО „СЛУЖБЕНИ ЛИСТ“ БИХ ОБЈАВА НАБАВКЕ 98.00
753 23389/24 6/4/2024  ЈП НИО „СЛУЖБЕНИ ЛИСТ“ БИХ ЈН-320-348/24 98.00
754 23396/24-јн 6/4/2024  ЈП НИО „СЛУЖБЕНИ ЛИСТ“ БИХ ЈН-320-347/24 98.00
755 22667/24-јн 6/4/2024  ЈП НИО „СЛУЖБЕНИ ЛИСТ“ БИХ ОБЈАВА У МЕДИЈИМА ЈАВНЕ НАБАВКЕ 98.00
756 22966/24-јн 6/4/2024  ЈП НИО „СЛУЖБЕНИ ЛИСТ“ БИХ УСЛУГА ОБЈАВЕ ЈН У СЛУЖБЕНОМ ГЛАСНИКУ 98.00
757 23885/24-јн 6/11/2024  ЈП НИО „СЛУЖБЕНИ ЛИСТ“ БИХ ИЗНАЈМЉИВАЊЕ ОПРЕМЕ 98.00
758 22843/24-јн 6/4/2024  ЈП НИО „СЛУЖБЕНИ ЛИСТ“ БИХ ИСПРАВКА-ЈР 52.00
759 23874/24-јн 6/11/2024  ЈП НИО „СЛУЖБЕНИ ЛИСТ“ БИХ МОНТАЖА ЗАСТАВИЦА 98.00
760 25645/24-јн 6/18/2024  ЈП НИО „СЛУЖБЕНИ ЛИСТ“ БИХ ПЛАЋАЊЕ ОВАВЈЕШТЕЊА О ЈАВНОЈ НАБАВЦИ 98.00
761 25210-24-јн 6/18/2024  ЈП НИО „СЛУЖБЕНИ ЛИСТ“ БИХ ИЗРАДА УТУ 98.00
762 25128/24-ЈН 6/18/2024  ЈП НИО „СЛУЖБЕНИ ЛИСТ“ БИХ ЛОЦИРАЊЕ КРУПНОГ ОТПАДА 98.00
763 25969/24-јн 6/18/2024  ЈП НИО „СЛУЖБЕНИ ЛИСТ“ БИХ РЕКОНСТРУКЦИЈА ШКОЛСКОГ ОБЈЕКТА 98.00
764 25991/24-ЈН 6/18/2024  ЈП НИО „СЛУЖБЕНИ ЛИСТ“ БИХ НАБАВКА И САНАЦИЈА ВОДОЗАХВАТА 98.00
765 25150-24-јн 6/18/2024  ЈП НИО „СЛУЖБЕНИ ЛИСТ“ БИХ ПОНИШТЕЊЕ ИЗРАДА ГЛ. ПРОЈЕКТА ПОТОК ПОДСТРАНАЦ 98.00
766 26216/24-јн 6/19/2024  ЈП НИО „СЛУЖБЕНИ ЛИСТ“ БИХ ХИТНЕ ИНТЕРВЕНЦИЈЕ 98.00
767 25427/24-ЈН 6/18/2024  ЈП НИО „СЛУЖБЕНИ ЛИСТ“ БИХ НАКНАДНИ РАДОВИ НА ИЗГРАДЊИ ПАРКА 98.00
768 26138/24-јн 6/18/2024  ЈП НИО „СЛУЖБЕНИ ЛИСТ“ БИХ ТЕХНИЧКИ ПРИЈЕМ ИЗГРАЂЕНИХ ВОДОВОДА 98.00
769 25383/24-ЈН 6/18/2024  ЈП НИО „СЛУЖБЕНИ ЛИСТ“ БИХ ИЗВОЂЕЊЕ РАДОВА НА ИЗГРАДЊИ ПАРКОВСКИХ СТАЗА 98.00
770 26172/24-јн 6/18/2024  ЈП НИО „СЛУЖБЕНИ ЛИСТ“ БИХ УТУ ДЈЕЧИЈЕ ИГРАЛИШТЕ ЦАРИЦЕ МИЛИЦЕ 98.00
771 25377/24-јн 6/18/2024  ЈП НИО „СЛУЖБЕНИ ЛИСТ“ БИХ УСЛУГА ОБЈАВЕ ЈН У СЛУЖБЕНОМ ГЛАСНИКУ 98.00
772 26171/24-ЈН 6/18/2024  ЈП НИО „СЛУЖБЕНИ ЛИСТ“ БИХ УСЛУГА ОБЈАВЕ ЈН У СЛУЖБЕНОМ ГЛАСНИКУ 98.00
773 25226/24-ЈН 6/18/2024  ЈП НИО „СЛУЖБЕНИ ЛИСТ“ БИХ УСЛУГА ОБЈАВЕ ЈН У СЛУЖБЕНОМ ГЛАСНИКУ 98.00
774 25311/24-ЈН 6/18/2024  ЈП НИО „СЛУЖБЕНИ ЛИСТ“ БИХ УСЛУГА ОБЈАВЕ ЈН У СЛУЖБЕНОМ ГЛАСНИКУ 52.00
775 25660/24-јн 6/18/2024  ЈП НИО „СЛУЖБЕНИ ЛИСТ“ БИХ УСЛУГА ОБЈАВЕ ЈН У СЛУЖБЕНОМ ГЛАСНИКУ 98.00
776 25099/24-ЈН 6/18/2024  ЈП НИО „СЛУЖБЕНИ ЛИСТ“ БИХ УСЛУГА ОБЈАВЕ ЈН У СЛУЖБЕНОМ ГЛАСНИКУ 98.00
777 25127/24-ЈН 6/18/2024  ЈП НИО „СЛУЖБЕНИ ЛИСТ“ БИХ ЈН-320-361/24 98.00
778 26064/24-ЈН 6/18/2024  ЈП НИО „СЛУЖБЕНИ ЛИСТ“ БИХ ЈН- 320-374/24 НАБАВКА УСЛУГЕ СМЈЕШТАЈА 98.00
779 23086/24-јн 6/4/2024  ЈП НИО „СЛУЖБЕНИ ЛИСТ“ БИХ УСЛУГА ОБЈАВЕ ЈН У СЛУЖБЕНОМ ГЛАСНИКУ 98.00
780 26619/24-ЈН 6/27/2024  ЈП НИО „СЛУЖБЕНИ ЛИСТ“ БИХ ОБЈАВА 98.00
781 27013/24-ЈН 6/27/2024  ЈП НИО „СЛУЖБЕНИ ЛИСТ“ БИХ ОБЈАВА 98.00
782 26785/24-ЈН 6/27/2024  ЈП НИО „СЛУЖБЕНИ ЛИСТ“ БИХ УСЛУГА ОБЈАВЕ ЈН У СЛУЖБЕНОМ ГЛАСНИКУ 98.00
783 27814/24-ЈН 7/2/2024  ЈП НИО „СЛУЖБЕНИ ЛИСТ“ БИХ ЈН-320-395/24 УГОВОР ОБАВЕЗНО КАСКО ОСИГУРАЊЕ ВОЗИЛА 98.00
784 27812/24-ЈН 7/2/2024  ЈП НИО „СЛУЖБЕНИ ЛИСТ“ БИХ ПЛАЋАЊЕ ОБАВЈЕШТЕЊА О ДОДЈЕЛИ УГОВОРА ЗА ИЗРАДУ РЕГ. ПЛАНА 98.00
785 28427/24-ЈН 7/2/2024  ЈП НИО „СЛУЖБЕНИ ЛИСТ“ БИХ ВОДОНЕПРОПУСНА САБИРНА ЈАМА 98.00
786 21024/24-ЈН 5/21/2024  ЈП НИО „СЛУЖБЕНИ ЛИСТ“ БИХ УСЛУГА ОБЈАВЕ ЈН У СЛУЖБЕНОМ ГЛСНИКУ 98.00
787 18324/24-ЈН 5/7/2024  ЈП НИО „СЛУЖБЕНИ ЛИСТ“ БИХ УСЛУГА ОБЈАВЕ ЈН У СЛУЖБЕНОМ ГЛАСНИКУ 98.00
788 19312/24-ЈН 5/7/2024  ЈП НИО „СЛУЖБЕНИ ЛИСТ“ БИХ ОБЈАВА 98.00
789 17414/24-ЈН 4/29/2024  ЈП НИО „СЛУЖБЕНИ ЛИСТ“ БИХ ОБЈАВА 98.00
790 21657/24-ЈН 5/28/2024  ЈП НИО „СЛУЖБЕНИ ЛИСТ“ БИХ ЈН-320-324/24 98.00
791 22321/24-ЈН 5/28/2024  ЈП НИО „СЛУЖБЕНИ ЛИСТ“ БИХ ЈН-320-336/24 98.00
792 22116/24-ЈН 5/28/2024  ЈП НИО „СЛУЖБЕНИ ЛИСТ“ БИХ ЈН-320-333/24 52.00
793 12859/24-ЈН 4/2/2024  ЈП НИО „СЛУЖБЕНИ ЛИСТ“ БИХ ОБЈАВА УГОВОРА 98.00
794 12993/24-ЈН 4/2/2024  ЈП НИО „СЛУЖБЕНИ ЛИСТ“ БИХ УСЛУГА ОБЈАВЕ ЈН У СЛУЖБЕНОМ ГЛАСНИКУ 98.00
795 13610/24-ЈН 4/2/2024  ЈП НИО „СЛУЖБЕНИ ЛИСТ“ БИХ УСЛУГА ОБЈАВЕ ЈН У СЛУЖБЕНОМ ГЛАСНИКУ 98.00
796 13512/24-ЈН 4/2/2024  ЈП НИО „СЛУЖБЕНИ ЛИСТ“ БИХ ЈН-ГОРИВО 98.00
797 14808/24-ЈН 4/9/2024  ЈП НИО „СЛУЖБЕНИ ЛИСТ“ БИХ ПЛАЋАЊЕ ОВАВЈЕШТЕЊА О ЈАВНОЈ НАБАВЦИ 98.00
798 14980/24-ЈН 4/9/2024  ЈП НИО „СЛУЖБЕНИ ЛИСТ“ БИХ ПЛАЋАЊЕ ОВАВЈЕШТЕЊА О ЈАВНОЈ НАБАВЦИ 98.00
799 16993/24-ЈН 4/23/2024  ЈП НИО „СЛУЖБЕНИ ЛИСТ“ БИХ ОБЈАВА 98.00
800 15422/24-јн 4/16/2024  ЈП НИО „СЛУЖБЕНИ ЛИСТ“ БИХ ОБЈАВА УГОВОРА 98.00
801 15423/24-јн 4/16/2024  ЈП НИО „СЛУЖБЕНИ ЛИСТ“ БИХ ОБЈАВА УГОВОРА 98.00
802 15917/24-јн 4/16/2024  ЈП НИО „СЛУЖБЕНИ ЛИСТ“ БИХ ОБЈАВА ЈАВНЕ НАБАВКЕ 98.00
803 13937/24-јн 4/2/2024  ЈП НИО „СЛУЖБЕНИ ЛИСТ“ БИХ ОБЈАВА 52.00
804 92/24 3/31/2024 ЗЕВ СИМЕ ШОЛАЈЕ 5 ЗЕВ 03/24 59.60
805 123/24 4/30/2024 ЗЕВ СИМЕ ШОЛАЈЕ 5 ЗЕВ 04/24 59.60
806 185/24 6/30/2024 ЗЕВ СИМЕ ШОЛАЈЕ 5 ЗЕВ 06/24 59.60
807 154/24 4/30/2024 ЗЕВ КЊАЗА МИЛОША 31 ЗЕВ 04/24 28.85
808 115/24 3/31/2024 ЗЕВ КЊАЗА МИЛОША 31 ЗЕВ 03/24 28.85
809 6761/24 4/30/2024  ЛИБУСОФТ ЦИЦОМ д.о.о. МЈЕСЕЧНО ОДРЖАВАЊЕ ЗА РЕГ. НЕКР. / МЈЕСЕЧНО ОДРЖАВАЊЕ ЗА ЗАКУПНИНЕ / МЈЕСЕЧНО ОДРЖАВАЊЕ ЗА ОСНОВНА СРЕДСТВА ЗА АПРИЛ 2024. ГОДИНЕ 1,828.44
810 РНОСТ-445698/24 4/30/2024 ЗЕВ ТИНА УЈЕВИЋА 3 ЗЕВ 04/24 39.00
811 РНОСТ-445698/24 5/31/2024 ЗЕВ ТИНА УЈЕВИЋА 3 ЗЕВ 05/24 39.00
812 РНОСТ-445700/24 6/30/2024 ЗЕВ ТИНА УЈЕВИЋА 3 ЗЕВ 06/24 39.00
813 7с-58/2024 8/1/2024 „НИСКОГРАДЊА” д.о.о. ЛАКТАШИ ИЗГРАДЊА НОВОГ ГРАДСКОГ ПАРКА 448,593.43
814 7С-64/2024 8/12/2024 „НИСКОГРАДЊА” д.о.о. ЛАКТАШИ НАКНАДНИ РАДОВИ НА ИЗГРАДЊИ НОВОГ ГРАДСКОГ ПАРКА 602,610.84
815 40/24 4/29/2024 ЗЕВ БРОНЗАНИ МАЈДАН ББ РАЧУН ЗА ИВ 2024. ЗА ПОСЛОВНИ ПРОСТОР 50.40
816 39/24 4/29/2024 ЗЕВ БРОНЗАНИ МАЈДАН ББ ЗЕВ 4/24 38.06
817 59/24 6/30/2024 ЗЕВ БРОНЗАНИ МАЈДАН ББ ЗЕВ ЈУН 2024 38.06
818 ППП-5798/24/06 4/29/2024 ГРАД БАЊА ЛУКА КОМУНАЛНА НАКНАДА 06/24 2,942.70
819 ППП-4653/24/05 4/29/2024 ГРАД БАЊА ЛУКА КОМУНАЛНА НАКНАДА 05/24 2,942.70
820 ППП-3508/24/04 4/29/2024 ГРАД БАЊА ЛУКА КОМУНАЛНА НАКНАДА 04/24 2,942.70
821 213/24 4/30/2024 ЗЕВ КРАЉА ПЕТРА И КАРАЂОРЂЕВИЋА 113 И 115 РАЧУН ЗА ИВ 2024. ЗА П. П. БР. 1 10.80
822 214/24 4/30/2024 ЗЕВ КРАЉА ПЕТРА И КАРАЂОРЂЕВИЋА 113 И 115 ЗЕВ 04/24 45.30
823 153/24 3/31/2024 ЗЕВ КРАЉА ПЕТРА И КАРАЂОРЂЕВИЋА 113 И 115 РАЧУН ЗА ИИИ 2024. ЗА П. П. БР. 1 10.80
824 154/24 3/31/2024 ЗЕВ КРАЉА ПЕТРА И КАРАЂОРЂЕВИЋА 113 И 115 ЗЕВ 03/24 45.30
825 274/24 5/31/2024 ЗЕВ КРАЉА ПЕТРА И КАРАЂОРЂЕВИЋА 113 И 115 ЗЕВ 05/24 45.30
826 334/24 6/30/2024 ЗЕВ КРАЉА ПЕТРА И КАРАЂОРЂЕВИЋА 113 И 115 ЗЕВ 06/24 45.30
827 76/2024 3/31/2024 ЗЕВ АЛЕЈА СВЕТОГ САВЕ 20 РАЧУН ЗА ИИИ 2024. ЗА П. П. БР. 191 140.30
828 111/2024 4/30/2024 ЗЕВ АЛЕЈА СВЕТОГ САВЕ 20 РАЧУН ЗА ИВ 2024. ЗА П. П. БР. 191 140.30
829 24-3000-000026 6/5/2024 „ЛАРИКС” д.о.о. ДОБОЈ НАБАВКА НАМЈЕШТАЈА 39,078.00
830 иф-00275-1-24 4/30/2024 СЕРВИС РОГИЋ ВУЛКАНИЗЕРСКЕ УСЛУГЕ 118.00
831 иф-00283-1-24 4/30/2024 СЕРВИС РОГИЋ ВУЛКАНИЗЕРСКЕ УСЛУГЕ 20.00
832 5/1/2024 4/29/2024 ЗЕВ БУЛЕВАР ВОЈВОДЕ ЖИВОЈИНА МИШИЋА 25 ЗЕВ 05/24 36.40
833 10/23/2024 10/31/2023 ЗЕВ МАРИЈЕ БУРСАЋ 1 3 5 РАЧУН ЗА X 2023. ЗА П. П. БР. 34 84.90
834 09/24 5/3/2024 ЗЕВ ПОТКОЗАРЈЕ ЗЕВ 05/24 47.60
835 45/24/07/24 7/24/2024 „ИЕЕ ТЕЦХНОЛОГY” д.о.о. БАЊА ЛУКА ИЗГРАДЊА ВРЕЛОВОДА У ПРОТЕ НИКОЛЕ КОСТИЋА 110,351.30
836 134/24 4/30/2024 „САС” д.о.о. ТЕХНИЧКИ ПРЕГЛЕД ВОЗИЛА 219.32
837 111/24 3/31/2024 ЗЕВ БУЛЕВАР ВОЈВОДЕ ЖИВОЈИНА МИШИЋА 65 РАЧУН ЗА ИИИ 2024. ЗА П. П. БР. 109 8.31
838 148/24 4/30/2024 ЗЕВ БУЛЕВАР ВОЈВОДЕ ЖИВОЈИНА МИШИЋА 65 РАЧУН ЗА ИВ 2024. ЗА П. П. БР. 109 8.31
839 иф-00074-1-24 7/25/2024 „ТИКО“ КЕЦМАН СЛАВИЦА с.п. БАЊА ЛУКА УСЛУГЕ ОРГАНИЗАЦИЈА И ДОГАЂАЈА 7,029.13
840 вас-01-24-смс-285 1/31/2024 ХТ ЕРОНЕТ УГОВОР О ПРУЖАЊУ МПАРКИНГ УСЛУГЕ ПУТЕМ СМС-А 514.39
841 вас-02-24-смс-632 2/29/2024 ХТ ЕРОНЕТ УГОВОР О ПРУЖАЊУ МПАРКИНГ УСЛУГА ПУТЕМ СМС-А 574.54
842 ВАС-04-24-СМС-287 4/30/2024 ХТ ЕРОНЕТ УГОВОР О ПРУЖАЊУ МПАРКИНГ УСЛУГЕ ПУТЕМ СМС-А 662.30
843 63-08/2024 8/23/2024 „ПРОРЕНТ” д.о.о. НАБАВКА УСЛУГА ЗА ОРГАНИЗАЦИЈУ ДОГАЂАЈА ЗНАЧАЈНИХ ЗА МЕЂУНАРОДНУ ПРОМОЦИЈУ ГРАДА 55,639.35
844 24-303-001654 5/24/2024 „АЛФ-ОМ” д.о.о. ИЗНАЈМЉИВАЊЕ КОПИР АПАРАТА 1,008.06
845 55/2024 1/17/2024 ОГЊЕН БОГДАНОВИЋ НОТАР УСЛУГА НОТАРСКЕ ОБРАДЕ УГОВОРА 339.30
846 24-360-000781 6/28/2024 „ИТИНЕРИС” д.о.о. УСЛУГА ОДРЖАВАЊА ПРОГРАМА ЗА КЊИГУ УЛАЗНИХ ФАКТУРА - КУФ (4/10) 421.20
847 19-24 8/6/2024 „ЕВЕНТ РЕНТАЛС” ГРБИЋ СЛАВЕН с.п. УСЛУГА ОРГАНИЗАЦИЈА ДОГАЂАЈА 5,000.00
848 ФСВ-56-0/24 4/19/2024 „ХОЛОДЕКС” д.о.о. РЕДОВНО ОДРЖАВАЊЕ СИСТЕМА ЗА ГРИЈАЊЕ И ХЛАЂЕЊЕ 3,510.00
849 5/11/2024 5/21/2024 ДЕАМЕДИКА СИСТЕМАТСКИ ЉЕКАРСКИ ПРЕГЛЕД ВАТРОГАСАЦА 14,143.00
850 24-330-002293 6/28/2024 „САТWОРК” д.о.о. РАЧУН БРОЈ 24-330-002293 ЗА ЈУН 24 11,700.00
851 1 привремена ситуација број 48/ВИ -24 6/19/2024 ГРИЈАЊЕ ИНВЕСТ КОТЛОВНИЦА ЗА ГРИЈАЊЕ ОШ „ЂУРА ЈАКШИЋ” 98,772.12
852 26/24 6/30/2024 ЗЕВ БУЛЕВАР ВОЈВОДЕ ЖИВОЈИНА МИШИЋА 31 ЗЕВ 06/24 74.70
853 1/24 8/20/2024 ДЕКОРЕНТ с.п. УСЛУГА ОРГАНИЗАЦИЈА ДОГАЂАЈА 6,450.00
УКУПНО: 6,003,472.88
РБ Број фактуре Датум издавања фактуре Назив добављача Опис услуге Укупан износ фактуре са ПДВ-ом
1 ИФ-24-0388 5/29/2024   „ОРКА” ОДРЖАВАЊЕ ЕДМWС СИСТЕМА ЗА ПЕРИОД 01. 05 - 31. 05. 2024. 585.00
2 ИФ-24-0470 6/28/2024   „ОРКА” ОДРЖАВАЊЕ ЕДМWС СИСТЕМА ЗА ПЕРИОД 01. 06 - 30. 06. 2024. 585.00
3 24-300-004632 8/6/2024 „ДЕФТЕР” д.о.о. САРАЈЕВО НАБАВКА ПРИБОРА ЗА ОДРЖАВАЊЕ ХИГИЈЕНЕ 1,588.39
4 мд1-04/09/2024 9/4/2024 ЗТЦ „БАЊА ВРУЋИЦА” СМЈЕШТАЈ 1,322.10
5 мв-4-05/09/2024 9/5/2024 ЗТЦ „БАЊА ВРУЋИЦА” БОРАВАК У ХОТЕЛУ КАРДИАЛ ОД 18. 09. ДО 20. 09. 2024, БОРАВИШНА ТАКСА И ПРИЈАВА БОРАВКА 438.90
6 05050001-1090/24 6/14/2024 ДОМ ЗДРАВЉА ЈЗУ БАЊА ЛУКА САНИТЕТСКО ОБЕЗБЈЕЂЕЊЕ ЕКИПЕ 200.00
7 05050001-803/24 5/29/2024 ДОМ ЗДРАВЉА ЈЗУ БАЊА ЛУКА САНИТЕТСКО ОБЕЗБЈЕЂЕЊЕ ЕКИПЕ 300.00
8 24-3071-000162 6/18/2024 „ТРИ БЕСТ” д.о.о. БАЊА ЛУКА МЈЕСЕЧНИ СЕРВИС ЛИФТА 46.80
9 24-3070-001710 8/9/2024 „ТРИ БЕСТ” д.о.о. БАЊА ЛУКА СЕРВИС ЛИФТА 421.20
10 24-3070-001463 7/12/2024 „ТРИ БЕСТ” д.о.о. БАЊА ЛУКА МЈЕСЕЧНИ СЕРВИС ЛИФТА 374.40
11 2412/24 7/31/2024 „КОЗАРАПУТЕВИ” а.д. ДРУГА ПРИВРЕМЕНА СИТУАЦИЈА БРОЈ 2412/24 ОД 31. 07. 2024. 83,135.47
12 2910 окончана ситуација 8/31/2024 „КОЗАРАПУТЕВИ” а.д. ОКОНЧАНА СИТУАЦИЈА БРОЈ 2910/24 ОД 31. 08. 2024. 121,385.28
13 ФР-002-2015/24 7/5/2024 ВЕТЕРИНАРСКИ ИНСТИТУТ ДР ВАСО БУТОЗАН БАЊА ЛУКА МИКРОБИОЛОГИЈА ХРАНЕ, МИШЉЕЊЕ (ПОЈЕДИНАЧНИ УЗОРАК) 219.96
14 ФР-002-1891/24 7/2/2024 ВЕТЕРИНАРСКИ ИНСТИТУТ ДР ВАСО БУТОЗАН БАЊА ЛУКА БРИС ПОВРШИНЕ - МИШЉЕЊА 245.70
15 фр-002-2023/24 7/8/2024 ВЕТЕРИНАРСКИ ИНСТИТУТ ДР ВАСО БУТОЗАН БАЊА ЛУКА МИКРОБИОЛОГИЈА ХРАНЕ (3 И ВИШЕ ПАРАМЕТАРА) - МИШЉЕЊЕ, ПОЈЕДИНАЧНИ УЗОРАК 109.98
16 ФР-002-1729/24 6/12/2024 ВЕТЕРИНАРСКИ ИНСТИТУТ ДР ВАСО БУТОЗАН БАЊА ЛУКА МИКРОБИОЛОШКО ИСПИТИВАЊЕ 109.98
17 ФР-002-1560/24 6/3/2024 ВЕТЕРИНАРСКИ ИНСТИТУТ ДР ВАСО БУТОЗАН БАЊА ЛУКА МИКРОБИОЛОШКО ИСПИТИВАЊЕ ХРАНЕ 109.98
18 00371/2024 5/26/2024 ХОТЕЛ „ПАЛАС” БАЊА ЛУКА СМЈЕШТАЈ ГОСТИЈУ И УГОСТИТЕЉСКЕ УСЛУГЕ 2,757.00
19 00413/2024 6/9/2024 ХОТЕЛ „ПАЛАС” БАЊА ЛУКА СМЈЕШТАЈ ГОСТИЈУ И УГОСТИТЕЉСКЕ УСЛУГЕ 1,075.01
20 00463/2024 6/29/2024 ХОТЕЛ „ПАЛАС” БАЊА ЛУКА УГОСТИТЕЉСКЕ УСЛУГЕ 308.00
21 00461/2024 6/28/2024 ХОТЕЛ „ПАЛАС” БАЊА ЛУКА УГ ОСТИТЕЉСКЕ УСЛУГЕ 102.50
22 00496/2024 7/18/2024 ХОТЕЛ „ПАЛАС” БАЊА ЛУКА УСЛУГА КЕТЕРИНГА ЗА ПРОЈЕКАТ ГОВОР МРЖЊЕ НА ИНТЕРНЕТУ 1,896.10
23 00576/2024 9/3/2024 ХОТЕЛ „ПАЛАС” БАЊА ЛУКА СМЈЕШТАЈ УЧЕСНИКА МАНИФЕСТАЦИЈЕ ВЕЛИКИ ПОЧЕТАК 3,592.50
24 24-3000-000048 7/5/2024 „ГЕОПУТ” БАЊА ЛУКА РАЧУН БРОЈ 24-3000-000048 ОД 05. 07. 2024. 6,903.00
25 2203 7/17/2024 „КЕЦКОМ” д.о.о. ПРИБОР ЗА ОДРЖАВАЊЕ ХИГИЈЕНЕ 6,054.17
26 2297 7/29/2024 „КЕЦКОМ” д.о.о. ПРИБОР ЗА ОДРЖАВАЊЕ ХИГИЈЕНЕ 165.56
27 2435 8/14/2024 „КЕЦКОМ” д.о.о. ПРИБОР ЗА ОДРЖАВАЊЕ ХИГИЈЕНЕ 2,351.70
28 1/24/4902 8/19/2024 „ЛАНАКО” БАЊА ЛУКА НАЈАМ И ОДРЖАВАЊЕ СОФТВЕРСКЕ ПЛАТФОРМЕ 10,079.20
29 1/24/5249 8/29/2024 „ЛАНАКО” БАЊА ЛУКА МИГРАЦИЈА ИНФРАСТРУКТУРЕ НА ДАТА ЦЕНТАР ЕКСТЕРНОГ ПАРТНЕРА ЗА АВГУСТ 2024. 14,625.00
30 1/24/5244 8/29/2024 „ЛАНАКО” БАЊА ЛУКА НАПРЕДНА ЦЕНТРАЛА УСЛУГА КОЛОКАЦИЈА ЗА МЈЕСЕЦ АВГУСТ 2024. 2,925.00
31 1/24/4600 7/30/2024 „ЛАНАКО” БАЊА ЛУКА МИГРАЦИЈА ИНФРАСТРУКТУРЕ НА ДАТА ЦЕНТАР ЕКСТЕРНОГ ПАРТНЕРА ЗА ЈУЛ 2024. 14,625.00
32 1/24/4653 7/30/2024 „ЛАНАКО” БАЊА ЛУКА ОДРЖАВАЊЕ СОФТВЕРСКЕ ПЛАТФОРМЕ ЗА ПОДРШКУ ПОСЛОВНИМ ПРОЦЕСИМА ПАРКИНГ СЛУЖБЕ ЗА МЈЕСЕЦ ЈУЛИ 2024. ГОДИНЕ 6,145.83
33 1/24/4235 7/23/2024 „ЛАНАКО” БАЊА ЛУКА СОФТВЕР ЗА ПЛАЋАЊЕ ПАРКИНГА СМС-ОМ И КОНТРОЛУ ПЛАЋАЊА ЗА ПЕРИОД 01. 06 - 30. 06. 2024. ГОДИНЕ 9,749.25
34 1/24/3947 6/28/2024 „ЛАНАКО” БАЊА ЛУКА КОНТРОЛА ИНТЕРНЕТ САОБРАЋАЈА ЗА ЈУН 2024. 585.00
35 1/24/3931 6/28/2024 „ЛАНАКО” БАЊА ЛУКА ОДРЖАВАЊЕ АПЛИКАЦИЈЕ „ШИХТЕРИЦА” ЗА ЈУН 2024. 418.86
36 1/24/3952 6/28/2024 „ЛАНАКО” БАЊА ЛУКА ОДРЖАВАЊЕ СОФТВЕРА ЗА КАДРОВСКУ ЕВИДЕНЦИЈУ И ОБРАЧУН ЗАРАДА ЗА ЈУН 2024. 2,729.61
37 1/24/3933 6/28/2024 „ЛАНАКО” БАЊА ЛУКА НАПРЕДНА ЦЕНТРАЛА КОЛОКАЦИЈА ИКТ ОПРЕМЕ ЗА ЈУНИ 2024. 2,925.00
38 1/24/3964 6/28/2024 „ЛАНАКО” БАЊА ЛУКА НАЈАМ И ОДРЖАВАЊЕ СОФТВЕРСКЕ ПЛАТФОРМЕ ЗА 06/24 6,145.83
39 1/24/3216 5/30/2024 „ЛАНАКО” БАЊА ЛУКА КОНТРОЛА ИНТЕРНЕТ САОБРАЋАЈА ЗА МАЈ 2024. 585.00
40 1/24/3203 5/30/2024 „ЛАНАКО” БАЊА ЛУКА РАЧУН БРОЈ 1-3203/24 ОД 30. 05. 2024. ЗА МАЈ 2024. 582.66
41 1/24/2342 4/25/2024 „ЛАНАКО” БАЊА ЛУКА РАЧУН БРОЈ 1-234/24 ОД 25. 04. 2024. ЗА АПРИЛ 2024. 582.66
42 88/24 9/9/2024 „ЛАНАКО” БАЊА ЛУКА НАБАВКА ОПРЕМЕ ЗА ОПЕРАТИВНО- КОМУНИКАТИВНИ ЦЕНТАР 320,580.00
43 335218 9/4/2024  „ЕЛЕКТРОКРАЈИНА“ а.д. БАЊА ЛУКА ПРИКЉУЧАК ПАРКИНГ И ВОДЕНА ПОВРШИНА БУЛЕВАР СРПСКЕ ВОЈСКЕ 5,562.21
44 9000303226 8/23/2024  „ЕЛЕКТРОКРАЈИНА“ а.д. БАЊА ЛУКА ДРУШТВЕНИ ДОМ БАБИЋИ ПИСКАВИЦА 1,694.00
45 546/24 5/31/2024 „ГРАФОТЕКС” д.о.о. БАЊА ЛУКА ИЗРАДА ПЕЧАТА 46.53
46 663/24 7/3/2024 „ГРАФОТЕКС” д.о.о. БАЊА ЛУКА ИЗРАДА ПЕЧАТА 146.08
47 693/24 7/11/2024 „ГРАФОТЕКС” д.о.о. БАЊА ЛУКА ИЗРАДА ПЕЧАТА 94.58
48 У24-0294 6/28/2024 „ТЕЛЕГРУП” д.о.о. БАЊА ЛУКА ПОПРАВАК РАЧУНАРСКЕ МРЕЖЕ 3,839.17
49 У24-0276 6/28/2024 „ТЕЛЕГРУП” д.о.о. БАЊА ЛУКА ОДРЖАВАЊЕ МРЕЖНЕ ОПРЕМЕ ЗА ЈУН 2024. 778.80
50 У24-0197 окончана ситуација 5/28/2024 „ТЕЛЕГРУП” д.о.о. БАЊА ЛУКА ОКОНЧАНА СИТУАЦИЈА БРОЈ У24-0197 ОД 28. 05. 2024. 53,240.38
51 У24-0219 5/31/2024 „ТЕЛЕГРУП” д.о.о. БАЊА ЛУКА ОДРЖАВАЊЕ МРЕЖНЕ ОПРЕМЕ ЗА МАЈ 2024. 778.80
52 у24-0188 4/30/2024 „ТЕЛЕГРУП” д.о.о. БАЊА ЛУКА ПРВА ПРИВРЕМЕНА СИТУАЦИЈА БРОЈ У24-0188 ОД 30. 04. 2024. 56,451.60
53 У24-0337 7/31/2024 „ТЕЛЕГРУП” д.о.о. БАЊА ЛУКА ОДРЖАВАЊЕ МРЕЖНЕ ОПРЕМЕ ЗА ЈУЛ 2024. ГОДИНЕ 778.80
54 141р/2024 9/9/2024 „ОДГОВОР КОНТАКТ” д.о.о. БАЊА ЛУКА УСЛУГА ОРГАНИЗАЦИЈЕ МАНИФЕСТАЦИЈЕ „ВЕЛИКИ ПОЧЕТАК” 48,610.00
55 Фрб1179/24 8/16/2024 „КМЦ” д.о.о. БАЊА ЛУКА КАНЦЕЛАРИЈСКИ МАТЕРИЈАЛ 14,886.07
56 24-362-000040 8/13/2024 „АКВАНА” д.о.о. БАЊА ЛУКА РЕПРЕЗЕНТАЦИЈА 1,476.60
57 24-362-000039 8/13/2024 „АКВАНА” д.о.о. БАЊА ЛУКА РЕПРЕЗЕНТАЦИЈА 960.00
58 24-362-000038 8/13/2024 „АКВАНА” д.о.о. БАЊА ЛУКА РЕПРЕЗЕНТАЦИЈА 1,859.60
59 24-362-000037 7/26/2024 „АКВАНА” д.о.о. БАЊА ЛУКА РЕПРЕЗЕНТАЦИЈА 900.00
60 24-362-000041 8/30/2024 „АКВАНА” д.о.о. БАЊА ЛУКА РЕПРЕЗЕНТАЦИЈА 1,523.60
61 ИНВ/2024/00049 8/8/2024 „ГЕОИНФО” д.о.о. РАЧУН ЗА ГИКОРС ЗА ПЕРИОД ОД 09. 06. 2024. ДО 09. 05. 2025. 819.00
62 ИФ-00452-1-24 8/21/2024 АПИФ БАЊА ЛУКА ИЗВОД ИЗ РФЛ (ПЕТАР ВИДОВИЋ) 15.00
63 ИФ-00431-1-24 8/5/2024 АПИФ БАЊА ЛУКА ИЗВОД ИЗ РФЛ 15.00
64 ИФ-00432-1-24 8/6/2024 АПИФ БАЊА ЛУКА ИЗВОД ИЗ РФЛ 15.00
65 ИФ-00428-1-23 9/7/2023 АПИФ БАЊА ЛУКА ИЗВОД ИЗ РФЛ, ШКОБАЉ СЕНКА 15.00
66 ИФ-02106-01-24 5/30/2024 „ПРИМАПРОМ” д.о.о. БАЊА ЛУКА КАНЦЕЛАРИЈСКИ МАТЕРИЈАЛ 74.65
67 ИФ-02153-01-24 5/31/2024 „ПРИМАПРОМ” д.о.о. БАЊА ЛУКА КАНЦЕЛАРИЈСКИ МАТЕРИЈАЛ 33.81
68 ИФ-02111-01-24 5/30/2024 „ПРИМАПРОМ” д.о.о. БАЊА ЛУКА КАНЦЕЛАРИЈСКИ МАТЕРИЈАЛ 22.39
69 ИФ-02110-01-24 5/30/2024 „ПРИМАПРОМ” д.о.о. БАЊА ЛУКА КАНЦЕЛАРИЈСКИ МАТЕРИЈАЛ 90.11
70 ИФ-02653-01-24 7/1/2024 „ПРИМАПРОМ” д.о.о. БАЊА ЛУКА КАНЦЕЛАРИЈСКИ МАТЕРИЈАЛ 809.73
71 иф-02825-01-24 7/11/2024 „ПРИМАПРОМ” д.о.о. БАЊА ЛУКА КАНЦЕЛАРИЈСКИ МАТЕРИЈАЛ 1,333.10
72 ИФ-02764-01-24 7/8/2024 „ПРИМАПРОМ” д.о.о. БАЊА ЛУКА КАНЦЕЛАРИЈСКИ МАТЕРИЈАЛ 152.78
73 ИФ-02417-01-24 6/13/2024 „ПРИМАПРОМ” д.о.о. БАЊА ЛУКА КАНЦЕЛАРИЈСКИ МАТЕРИЈАЛ 12.88
74 ИФ-01293-01-24 3/29/2024 „ПРИМАПРОМ” д.о.о. БАЊА ЛУКА КОРИЧЕЊЕ КЊИГА 4.04
75 иф-05562-01-23 12/21/2023 „ПРИМАПРОМ” д.о.о. БАЊА ЛУКА УСЛУГЕ ШТАМПАЊА 343.98
76 01/24т0100700 4/3/2024 „СЛАДАБОНИ” д.о.о. КЊИЖАРА КУЛТУРА БАЊА ЛУКА УСЛУГА СЕРВИСА КОМАНДНОГ ВАТРОГАСНОГ ВОЗИЛА 3,844.55
77 70-182/2024 8/1/2024 „МИЛТЕКС” д.о.о. БАЊА ЛУКА УНИФОРМА 31,558.41
78 842 8/12/2024 КАБ ОМЛАДИНСКА ЗАДРУГА БАЊА ЛУКА ПОВРЕМЕНИ ПОСЛОВИ 501.51
79 710 7/12/2024 КАБ ОМЛАДИНСКА ЗАДРУГА БАЊА ЛУКА ПОВРЕМЕНИ ПОСЛОВИ 156.51
80 879/24-02с 6/20/2024 „ЛАДА АУТО” БАЊА ЛУКА СЕРВИС ВОЗИЛА 732.96
81 878/24-02с 6/20/2024 „ЛАДА АУТО” БАЊА ЛУКА СЕРВИС ВОЗИЛА 325.21
82 885/24-02с 6/20/2024 „ЛАДА АУТО” БАЊА ЛУКА СЕРВИС ВОЗИЛА 40.95
83 884/24-02с 6/20/2024 „ЛАДА АУТО” БАЊА ЛУКА СЕРВИС ВОЗИЛА 81.90
84 883/24-02с 6/20/2024 „ЛАДА АУТО” БАЊА ЛУКА СЕРВИС ВОЗИЛА 223.47
85 882/24-02с 6/20/2024 „ЛАДА АУТО” БАЊА ЛУКА СЕРВИС ВОЗИЛА 217.41
86 881/24-02с 6/20/2024 „ЛАДА АУТО” БАЊА ЛУКА СЕРВИС ВОЗИЛА 310.05
87 880/24-02с 6/20/2024 „ЛАДА АУТО” БАЊА ЛУКА СЕРВИС ВОЗИЛА 487.39
88 1204/24-02с 8/21/2024 „ЛАДА АУТО” БАЊА ЛУКА СЕРВИС ВОЗИЛА 169.65
89 1203/24-02с 8/21/2024 „ЛАДА АУТО” БАЊА ЛУКА СЕРВИС ВОЗИЛА 1,071.06
90 1202/24-02с 8/21/2024 „ЛАДА АУТО” БАЊА ЛУКА СЕРВИС ВОЗИЛА 519.41
91 1201/24-02с 8/21/2024 „ЛАДА АУТО” БАЊА ЛУКА СЕРВИС ВОЗИЛА 976.95
92 1200/24-02с 8/21/2024 „ЛАДА АУТО” БАЊА ЛУКА СЕРВИС ВОЗИЛА 168.95
93 1199/24-02с 8/21/2024 „ЛАДА АУТО” БАЊА ЛУКА СЕРВИС ВОЗИЛА 76.69
94 1198/24-02с 8/21/2024 „ЛАДА АУТО” БАЊА ЛУКА СЕРВИС ВОЗИЛА 1,048.40
95 1009/24-02с 7/12/2024 „ЛАДА АУТО” БАЊА ЛУКА СЕРВИС ВОЗИЛА 752.86
96 1010/24-02с 7/12/2024 „ЛАДА АУТО” БАЊА ЛУКА СЕРВИС ВОЗИЛА 153.50
97 1003/24-02с 7/12/2024 „ЛАДА АУТО” БАЊА ЛУКА СЕРВИС ВОЗИЛА 444.25
98 1005/24-02с 7/12/2024 „ЛАДА АУТО” БАЊА ЛУКА СЕРВИС ВОЗИЛА 1,856.36
99 1007/24-02с 7/12/2024 „ЛАДА АУТО” БАЊА ЛУКА СЕРВИС ВОЗИЛА 434.01
100 997/24-02с 7/12/2024 „ЛАДА АУТО” БАЊА ЛУКА СЕРВИС ВОЗИЛА 803.79
101 999/24-02с 7/12/2024 „ЛАДА АУТО” БАЊА ЛУКА СЕРВИС ВОЗИЛА 252.60
102 1001/24-02с 7/12/2024 „ЛАДА АУТО” БАЊА ЛУКА СЕРВИС ВОЗИЛА 1,080.54
103 1327/24-02с 9/12/2024 „ЛАДА АУТО” БАЊА ЛУКА СЕРВИС ВОЗИЛА 265.47
104 1322/24-02с 9/12/2024 „ЛАДА АУТО” БАЊА ЛУКА СЕРВИС ВОЗИЛА 766.84
105 1323/24-02с 9/12/2024 „ЛАДА АУТО” БАЊА ЛУКА СЕРВИС ВОЗИЛА 595.47
106 1324/24-02с 9/12/2024 „ЛАДА АУТО” БАЊА ЛУКА СЕРВИС ВОЗИЛА 632.90
107 1325/24-02с 9/12/2024 „ЛАДА АУТО” БАЊА ЛУКА СЕРВИС ВОЗИЛА 1,126.94
108 1329/24-02с 9/12/2024 „ЛАДА АУТО” БАЊА ЛУКА СЕРВИС ВОЗИЛА 1,374.76
109 1328/24-02с 9/12/2024 „ЛАДА АУТО” БАЊА ЛУКА СЕРВИС ВОЗИЛА 690.30
110 ИФ-00008-1-24 7/25/2024 ВАТРОГАСНИ САВЕЗ РС БАЊА ЛУКА ОБУКА И ПОЛАГАЊЕ ЗА ИСПИТ ВАТРОГАСАЦ-СПАСИЛАЦ 3,960.00
111 33-37/24 5/29/2024 ВАТРОГАСНИ САВЕЗ РС БАЊА ЛУКА ЧЛАНАРИНА ЗА 2024. ГОДИНУ 2,200.00
112 24-3600-001028 7/3/2024 ИНСТИТУТ ЗА ЗАШТИТУ И ЕКОЛОГИЈУ РС МЈЕРЕЊЕ КВАЛИТЕТА ВАЗДУХА 1,520.30
113 24-3600-001027 7/3/2024 ИНСТИТУТ ЗА ЗАШТИТУ И ЕКОЛОГИЈУ РС МЈЕРЕЊЕ КВАЛИТЕТА ВАЗДУХА 1,520.30
114 24-3600-001026 7/3/2024 ИНСТИТУТ ЗА ЗАШТИТУ И ЕКОЛОГИЈУ РС МЈЕРЕЊЕ КВАЛИТЕТА ВАЗДУХА 1,516.04
115 2-6796/2024 8/31/2024 „СУПЕР ПЕТРОЛ” д.о.о. БАЊА ЛУКА НАБАВКА ГОРИВА 6,016.75
116 2-7504/2024 9/15/2024 „СУПЕР ПЕТРОЛ” д.о.о. БАЊА ЛУКА НАБАВКА ГОРИВА 44.01
117 2-7253/2024 9/15/2024 „СУПЕР ПЕТРОЛ” д.о.о. БАЊА ЛУКА НАБАВКА ГОРИВА 4,889.37
118 Т-ВП-691/10/2024 9/4/2024 „СУПЕР ПЕТРОЛ” д.о.о. БАЊА ЛУКА НАБАВКА ГОРИВА ЗА ПТВСЈ 17,831.71
119 авансна фактура 2024-11-000062 8/31/2024 „ГРАДИП” а.д. ПРЊАВОР РЕКОНСТРУКЦИЈА ОБЈЕКТА СОКОЛСКОГ ДОМА -352,674.22
120 56 ИИ привремена 8/31/2024 „ГРАДИП” а.д. ПРЊАВОР РЕКОНСТРУКЦИЈА И САНАЦИЈА ОБЈЕКТА СОКОЛСКОГ ДОМА 592,033.93
121 ИИИ привремена ситуација бр 55 8/29/2024 „ГРАДИП” а.д. ПРЊАВОР ТРЕЋА ПРИВРЕМЕНА СИТУАЦИЈА БРОЈ 55 ОД 29. 08. 2024. 430,180.58
122 51 - В привремена ситуација 7/31/2024 „ГРАДИП” а.д. ПРЊАВОР ИЗГРАДЊА ПАРКА КЊИГЕ 247,883.27
123 сторно авансни предрачун бр. 01/2024 8/5/2024 „ТАМАРИС КОМПАНИ” д.о.о. БАЊА ЛУКА ОДРЖАВАЊЕ ЗЕЛЕНИХ ПОВРШИНА -16,312.14
124 46/2024 8/5/2024 „ТАМАРИС КОМПАНИ” д.о.о. БАЊА ЛУКА ОДРЖАВАЊЕ ЗЕЛЕНИХ ПОВРШИНА 32,624.28
125 49/2024 9/2/2024 „ТАМАРИС КОМПАНИ” д.о.о. БАЊА ЛУКА ОДРЖАВАЊЕ ЗЕЛЕНИЛА 284,960.63
126 ИФ-00214-1-24 9/2/2024 „РАЛЕ ТУРС” д.о.о. БАЊА ЛУКА СУБВЕНЦИЈЕ 14,057.34
127 ИФ-00203-1-24 8/30/2024 „РАЛЕ ТУРС” д.о.о. БАЊА ЛУКА СУБВЕНЦИЈЕ 37,732.08
128 ИФ-00215-1-24 9/5/2024 „РАЛЕ ТУРС” д.о.о. БАЊА ЛУКА СУБВЕНЦИЈЕ 3,720.00
129 иф-00216-1-24 9/10/2024 „РАЛЕ ТУРС” д.о.о. БАЊА ЛУКА СУБВЕНЦИЈЕ 14,408.90
130 иф-00263-1-23 10/11/2023 „РАЛЕ ТУРС” д.о.о. БАЊА ЛУКА СУБВЕНЦИЈЕ ЗА ЈАВНИ ПРЕВОЗ 10/23 17,968.30
131 ИФ-00294-1-23 11/13/2023 „РАЛЕ ТУРС” д.о.о. БАЊА ЛУКА СУБВЕНЦИЈА ЗА ЈАВНИ ПРЕВОЗ 11/23 18,280.10
132 ИФ-00296-1-23 11/13/2023 „РАЛЕ ТУРС” д.о.о. БАЊА ЛУКА СУБВЕНЦИЈА ЗА ЈАВНИ ПРЕВОЗ 10/23 7,928.00
133 ИФ-00297-1-23 11/13/2023 „РАЛЕ ТУРС” д.о.о. БАЊА ЛУКА СУБВЕНЦИЈА ЗА ЈАВНИ ПРЕВОЗ 6,553.00
134 иф-00305-1-23 11/30/2023 „РАЛЕ ТУРС” д.о.о. БАЊА ЛУКА СУБВЕНЦИЈА ЗА ЈАВНИ ПРЕВОЗ 56.00
135 иф-00330-1-23 12/11/2023 „РАЛЕ ТУРС” д.о.о. БАЊА ЛУКА СУБВЕНЦИЈА ЗА ЈАВНИ ПРЕВОЗ 17,857.20
136 иф-00326-1-23 12/11/2023 „РАЛЕ ТУРС” д.о.о. БАЊА ЛУКА СУБВЕНЦИЈА ЗА ЈАВНИ ПРЕВОЗ 15,783.65
137 иф-00327-1-23 12/11/2023 „РАЛЕ ТУРС” д.о.о. БАЊА ЛУКА СУБВЕНЦИЈА ЗА ЈАВНИ ПРЕВОЗ 6,553.00
138 40-1100-2024-1448 8/5/2024 „ЕУРОМОДУС” д.о.о. ЛАКТАШИ ПОПРАВКА НА ВОЗИЛУ А62-О-836 177.98
139 40-1100-2024-1445 8/5/2024 „ЕУРОМОДУС” д.о.о. ЛАКТАШИ ПОПРАВКА НА ВОЗИЛУ Е53-М-306 140.40
140 40-1100-2024-1444 8/5/2024 „ЕУРОМОДУС” д.о.о. ЛАКТАШИ ПОПРАВКА НА ВОЗИЛУ А96-К-847 3,828.24
141 40-1100-2024-1457 8/6/2024 „ЕУРОМОДУС” д.о.о. ЛАКТАШИ ПОПРАВКА НА ВОЗИЛУ Е53-М-306 210.60
142 40-11002024-1501 8/14/2024 „ЕУРОМОДУС” д.о.о. ЛАКТАШИ БРАНИК, ПОТРОШНИ МАТЕРИЈАЛ НА ВОЗИЛУ К15-Е-952 А62-О-836 1,909.66
143 81-2065/2024 8/20/2024 ГЛАС СРПСКЕ БАЊА ЛУКА ПЛАЋАЊЕ ОБАВЈЕШТЕЊА ДА ЈЕ НАЦРТ ИЗМЈЕНЕ ДИЈЕЛА РЕГ. ПЛАНА „ПАСКОЛИНА ЦИГЛАНА” ИЗЛОЖЕН НА ПОНОВНИ ЈАВНИ УВИД 166.73
144 81-2059/2024 8/19/2024 ГЛАС СРПСКЕ БАЊА ЛУКА ПЛАЋАЊЕ ОБАВЈЕШТЕЊА ДА ЈЕ НАЦРТ ИЗМЈЕНЕ ДИЈЕЛА РЕГ. ПЛАНА „ЈУГ 3” ИЗЛОЖЕН НА ПОНОВНИ ЈАВНИ УВИД 166.73
145 81-2067/2024 8/20/2024 ГЛАС СРПСКЕ БАЊА ЛУКА ПЛАЋАЊЕ ОБАВЈЕШТЕЊА О ОДРЖАВАЊУ ЈАВНЕ РАСПАРАВЕ О НАЦРТУ ИЗМЈЕНЕ ДИЈЕЛА РЕГ. ПЛАНА „ФИЛИПОВИЋА ПОЉЕ” 333.45
146 81-2072/2024 8/20/2024 ГЛАС СРПСКЕ БАЊА ЛУКА ПЛАЋАЊЕ ОБАВЈЕШТЕЊА ДА ЈЕ НАЦРТ ИЗМЈЕНЕ ДИЈЕЛА РЕГ. ПЛАНА ЗА ПРОСТОР РЕГИОНАЛНОГ ЦЕНТРА ИЗЛОЖЕН НА ЈАВНИ УВИД 166.73
147 81-2066/2024 8/20/2024 ГЛАС СРПСКЕ БАЊА ЛУКА ПЛАЋАЊЕ ОБАВЈЕШТЕЊА О ОДРЖАВАЊУ ЈАВНЕ РАСПРАВЕ О НАЦРТУ ИЗМЈЕНЕ ДИЈЕЛА РЕГ. ПЛАНА „ЦЕНТАР ИСТОК” 333.45
148 81-1991/2024 8/8/2024 ГЛАС СРПСКЕ БАЊА ЛУКА ПЛАЋАЊЕ ОБАВЈЕШТЕЊА ДА ЈЕ НАЦРТ ИЗМЈЕНЕ ДИЈЕЛА РЕГ. ПЛАНА „ПАСКОЛИНА ЦИГЛАНА” ИЗЛОЖЕН НА ПОНОВНИ ЈАВНИ УВИД 166.73
149 81-1826/2024 7/22/2024 ГЛАС СРПСКЕ БАЊА ЛУКА ОБЈАВА ЈАВНОГ ПОЗИВА ЗА ДОСТАВЉАЊЕ ПОНУДА (ДЈЕЧИЈИ ВРТИЋ) 389.03
150 81-1095/2024 5/7/2024 ГЛАС СРПСКЕ БАЊА ЛУКА УСЛУГЕ ОБЈАВЕ ОГЛАСА У ДНЕВНИМ НОВИНАМА 2,106.00
151 81-685/2024 3/26/2024 ГЛАС СРПСКЕ БАЊА ЛУКА ПЛАЋАЊЕ ДРУГОГ ОБАВЈЕШТЕЊА ДА ЈЕ НАЦРТ ИЗМЈЕНЕ ДИЈЕЛА РЕГ. ПЛАНА „СТАРЧЕВИЦА 2” ИЗЛОЖЕН НА ЈАВНИ УВИД 166.73
152 81-731/2024 3/29/2024 ГЛАС СРПСКЕ БАЊА ЛУКА ПЛАЋАЊЕ ДРУГОГ ОБАВЈЕШТЕЊА ДА ЈЕ НАЦРТ ИЗМЈЕНЕ ДИЈЕЛА РЕГ. ПЛАНА „ЈУГ 2” ИЗЛОЖЕН НА ЈАВНИ УВИД 166.73
153 81-1441/2024 6/6/2024 ГЛАС СРПСКЕ БАЊА ЛУКА ПЛАЋАЊЕ ОБАВЈЕШТЕЊА ДА ЈЕ НАЦРТ ИЗМЈЕНЕ ДИЈЕЛА РЕГ. ПЛАНА „ЦЕНТАР ИСТОК” ИЗЛОЖЕН НА ЈАВНИ УВИД 166.73
154 81-1404/2024 6/3/2024 ГЛАС СРПСКЕ БАЊА ЛУКА ПЛАЋАЊЕ ОБАВЈЕШТЕЊА ДА ЈЕ ДОНЕСЕНА ОДЛУКА О ИЗМЈЕНИ ДИЈЕЛА РЕГ. ПЛАНА ДИЈЕЛА ЦЕНТРАЛНОГ ПОДРУЧЈА ГРАДА БАЊЕ ЛУКЕ 166.73
155 81-1405/2024 6/3/2024 ГЛАС СРПСКЕ БАЊА ЛУКА ПЛАЋАЊЕ ОБАВЈЕШТЕЊА ДА ЈЕ ДОНЕСЕНА ОДЛУКА О ИЗМЈЕНИ ДИЈЕЛА РЕГ. ПЛАНА „ЛИВНИЦА” 166.73
156 81-1403/2024 6/3/2024 ГЛАС СРПСКЕ БАЊА ЛУКА ПЛАЋАЊЕ ОБАВЈЕШТЕЊА ДА ЈЕ ДОНЕСЕНА ОДЛУКА О ИЗМЈЕНИ ДИЈЕЛА РЕГ. ПЛАНА СТАМБЕНОГ НАСЕЉА ШАРГОВАЦ 166.73
157 81-1675/2024 7/2/2024 ГЛАС СРПСКЕ БАЊА ЛУКА ПЛАЋАЊЕ ОБАВЈЕШТЕЊА ДА ЈЕ НАЦРТ ИЗМЈЕНЕ ДИЈЕЛА РЕГ. ПЛАНА „ЈУГ 6” ИЗЛОЖЕН НА ЈАВНИ УВИД 166.73
158 81-1676/2024 7/2/2024 ГЛАС СРПСКЕ БАЊА ЛУКА ПЛАЋАЊЕ ОБАВЈЕШТЕЊА ДА ЈЕ НАЦРТ ИЗМЈЕНЕ ДИЈЕЛА РЕГ. ПЛАНА „ФИЛИПОВИЋА ПОЉЕ” ИЗЛОЖЕН НА ЈАВНИ УВИД 166.73
159 81-1649/2024 6/28/2024 ГЛАС СРПСКЕ БАЊА ЛУКА ПЛАЋАЊЕ ДРУГОГ ОБАВЈЕШТЕЊА ДА ЈЕ НАЦРТ ИЗМЈЕНЕ ДИЈЕЛА РЕГ. ПЛАНА „ЦЕНТАР ИСТОК” ИЗЛОЖЕН НА ЈАВНИ УВИД 166.73
160 81-1664/2024 7/2/2024 ГЛАС СРПСКЕ БАЊА ЛУКА ПЛАЋАЊЕ ОБАВЈЕШТЕЊА О ОДРЖАВАЊУ ЈАВНЕ РАСПРАВЕ О НАЦРТУ ИЗМЈЕНЕ ДИЈЕЛА РЕГ. ПЛАНА „ЦЕНТАР ИСТОК” 333.45
161 81-1667/2024 7/2/2024 ГЛАС СРПСКЕ БАЊА ЛУКА ПЛАЋАЊЕ ОБАВЈЕШТЕЊА ДА ЈЕ ДОНЕСЕНА ОДЛУКА О ИЗМЈЕНЕ ДИЈЕЛА РЕГ. ПЛАНА „ОБИЛИЋЕВО” 166.73
162 81-1683/2024 7/3/2024 ГЛАС СРПСКЕ БАЊА ЛУКА ОБЈАВА ОГЛАСА О ИЗДАВАЊУ У ЗАКУП ПОСЛОВНОГ ПРОСТОРА НА БАЊ БРДУ (ПОНОВЉЕНИ) 611.33
163 81-1690/2024 7/4/2024 ГЛАС СРПСКЕ БАЊА ЛУКА ПЛАЋАЊЕ ОБАВЈЕШТЕЊА О ОДРЖАВАЊУ ЈАВНЕ РАСПРАВЕ О НАЦРТУ РЕГ. ПЛАНА „ЈУГ 3” 333.45
164 81-1700/2024 7/5/2024 ГЛАС СРПСКЕ БАЊА ЛУКА ПЛАЋАЊЕ ОБАВЈЕШТЕЊА О ОДРЖАВАЊУ ЈАВНЕ РАСПРАВЕ О НАЦРТУ ИЗМЈЕНЕ ДИЈЕЛА РЕГ. ПЛАНА „ПАСКОЛИНА ЦИГЛАНА” 333.45
165 81-1710/2024 7/8/2024 ГЛАС СРПСКЕ БАЊА ЛУКА ПЛАЋАЊЕ ДРУГОГ ОБАВЈЕШТЕЊА ДА ЈЕ НАЦРТ ИЗМЈЕНЕ ДИЈЕЛА РЕГ. ПЛАНА „ЛАЗАРЕВО 4” ИЗЛОЖЕН НА ЈАВНИ УВИД 166.73
166 81-1745/2024 7/11/2024 ГЛАС СРПСКЕ БАЊА ЛУКА ПЛАЋАЊЕ ОБАВЈЕШТЕЊА О ОДРЖАВАЊУ ЈАВНЕ РАСПРАВЕ О НАЦРТУ ИЗМЈЕНЕ ДИЈЕЛА РЕГ. ПЛАНА „ЦЕНТАР АЛЕЈА” 333.45
167 81-1734/2024 7/10/2024 ГЛАС СРПСКЕ БАЊА ЛУКА ПЛАЋАЊЕ ОБАВЈЕШТЕЊА О ОДРЖАВАЊУ ЈАВНЕ РАСПРАВЕ О НАЦРТУ ИЗМЈЕНЕ ДИЈЕЛА РЕГ. ПЛАНА „ПАПРИКОВАЦ- ПЕТРИЋЕВАЦ ЗОНА Б” 333.45
168 81-1742/2024 7/10/2024 ГЛАС СРПСКЕ БАЊА ЛУКА ПЛАЋАЊЕ ОБАВЈЕШТЕЊА О ОДРЖАВАЊУ ЈАВНЕ РАСПРАВЕ О НАЦРТУ ИЗМЈЕНЕ ДИЈЕЛА РЕГ. ПЛАНА ЗА УРЕЂЕЊЕ ОБАЛА ВРБАСА 333.45
169 81-1576/2024 6/22/2024 ГЛАС СРПСКЕ БАЊА ЛУКА ПЛАЋАЊЕ ДРУГОГ ОБАВЈЕШТЕЊА ДА ЈЕ НАЦРТ ИЗМЈЕНЕ ДИЈЕЛА РЕГ. ПЛАНА „ПАПРИКОВАЦ-ПЕТРИЋЕВАЦ ЗОНА Б” ИЗЛОЖЕН НА ЈАВНИ УВИД 166.73
170 81-1588/2024 6/24/2024 ГЛАС СРПСКЕ БАЊА ЛУКА ОБЈАВА ОГЛАСА О ИЗДАВАЊУ ПОСЛОВНИХ ПРОСТОРА У ЗАКУП 611.33
171 81-1601/2024 6/25/2024 ГЛАС СРПСКЕ БАЊА ЛУКА ПЛАЋАЊЕ ОБАВЈЕШТЕЊА ДА ЈЕ НАЦРТ ИЗМЈЕНЕ ДИЈЕЛА РЕГ. ПЛАНА „ЛАЗАРЕВО 4” ИЗЛОЖЕН НА ЈАВНИ УВИД 166.73
172 81-1475/2024 6/11/2024 ГЛАС СРПСКЕ БАЊА ЛУКА ПЛАЋАЊЕ ДРУГОГ ОБАВЈЕШТЕЊА ДА ЈЕ НАЦРТ ИЗМЈЕНЕ ДИЈЕЛА РЕГ. ПЛАНА „БОРИК” ИЗЛОЖЕН НА ЈАВНИ УВИД 166.73
173 81-1491/2024 6/12/2024 ГЛАС СРПСКЕ БАЊА ЛУКА ПЛАЋАЊЕ ОБАВЈЕШТЕЊА ДА ЈЕ НАЦРТ ИЗМЈЕНЕ ДИЈЕЛА РЕГ. ПЛАНА „ПАПРИКОВАЦ-ПЕТРИЋЕВАЦ ЗОНА Б” ИЗЛОЖЕН НА ЈАВНИ УВИД 166.73
174 81-1543/2024 6/18/2024 ГЛАС СРПСКЕ БАЊА ЛУКА ПЛАЋАЊЕ ДРУГОГ ОБАВЈЕШТЕЊА ДА ЈЕ НАЦРТ ИЗМЈЕНЕ ДИЈЕЛА РЕГ. ПЛАНА „СТАРЧЕВИЦА 2” ИЗЛОЖЕН НА ЈАВНИ УВИД 166.73
175 81-1544/2024 6/18/2024 ГЛАС СРПСКЕ БАЊА ЛУКА ПЛАЋАЊЕ ДРУГОГ ОБАВЈЕШТЕЊА ДА ЈЕ НАЦРТ ИЗМЈЕНЕ ДИЈЕЛА РЕГ. ПЛАНА ЗА УРЕЂЕЊЕ ОБАЛА ВРБАСА ИЗЛОЖЕН НА ЈАВНИ УВИД 166.73
176 81-1493/2024 6/13/2024 ГЛАС СРПСКЕ БАЊА ЛУКА ПЛАЋАЊЕ ОБАВЈЕШТЕЊА ДА ЈЕ ДОНЕСЕНА ОДЛУКА О ИЗМЈЕНИ ДИЈЕЛА РЕГ. ПЛАНА „ОБИЛИЋЕВО” 166.73
177 81-2873/2023 10/5/2023 ГЛАС СРПСКЕ БАЊА ЛУКА ПЛАЋАЊЕ ОБАВЈЕШТЕЊА ДА ЈЕ НАЦРТ ИЗМЈЕНЕ ДИЈЕЛА РЕГ. ПЛАНА „ЈУГ 3” ИЗЛОЖЕН НА ЈАВНИ УВИД 166.73
178 81-1189/2022 5/5/2022 ГЛАС СРПСКЕ БАЊА ЛУКА ПЛАЋАЊЕ ОБАВЈЕШТЕЊА ДА ЈЕ НАЦРТ ИЗМЈЕНЕ ДИЈЕЛА РЕГ. ПЛАНА „СТАРЧЕВИЦА 2” ИЗЛОЖЕН НА ЈАВНИ УВИД 166.73
179 81-3457/2021 12/8/2021 ГЛАС СРПСКЕ БАЊА ЛУКА ПЛАЋАЊЕ ОБАВЈЕШТЕЊА ДА ЈЕ НАЦРТ ИЗМЈЕНЕ ДИЈЕЛА РЕГ. ПЛАНА „ЈУГ 5” ИЗЛОЖЕН НА ЈАВНИ УВИД 166.73
180 81-3357/2021 12/1/2021 ГЛАС СРПСКЕ БАЊА ЛУКА ПЛАЋАЊЕ ОБАВЈЕШТЕЊА ДА ЈЕ НАЦРТ ИЗМЈЕНЕ ДИЈЕЛА РЕГ. ПЛАНА „МЕДЕНО ПОЉЕ” ИЗЛОЖЕН НА ЈАВНИ УВИД 166.73
181 534/24 6/7/2024 АУТО КУЋА „ЛАВ” ДИЈЕЛОВИ ЗА ПОПРАВАК ВОЗИЛА 212.94
182 582/24 6/20/2024 АУТО КУЋА „ЛАВ” НАБАВКЕ ТЕЧНОСТИ И УЉА ЗА ПОТРЕБЕ ВАТРОГАСНИХ ВОЗИЛА 553.76
183 658/24 7/15/2024 АУТО КУЋА „ЛАВ” УЉЕ ЗА КАМИОН 70.20
184 УСЛ-00139-1-24 7/24/2024 „РУТИНГ” д.о.о. БАЊА ЛУКА ПЛАЋАЊЕ ДРУГОГ ДИЈЕЛА НАКНАДЕ ЗА ИЗРАДУ РЕГ. ПЛАНА ЗА УРЕЂЕЊЕ ОБАЛА ВРБАСА 1,755.00
185 усл-00143-1-24 8/2/2024 „РУТИНГ” д.о.о. БАЊА ЛУКА УТУ И И ПРОЈЕКАТ ЗА РЕКОНСТРУКЦИЈУ ИГРАЛИШТА У УЛИЦИ ЦАРИЦА МИЛИЦЕ 3,357.90
186 УСЛ-00108-1-24 5/31/2024 „РУТИНГ” д.о.о. БАЊА ЛУКА ПРВА ФАЗА ПЛАЋАЊА ИЗРАДЕ ИЗМЈЕНЕ ДИЈЕЛА РЕГ. ПЛАНА ЗА УРЕЂЕЊЕ ОБАЛА ВРБАСА 1,053.00
187 001-0286 9/6/2024 „АБЦ СОЛУТИОНС” д.о.о. БАЊА ЛУКА ОДРЖАВАЊЕ ЈАВНЕ РАСВЈЕТЕ 6,283.49
188 001-0285 9/6/2024 „АБЦ СОЛУТИОНС” д.о.о. БАЊА ЛУКА ОДРЖАВАЊЕ ЈАВНЕ РАСВЈЕТЕ 6,187.52
189 001-0282 9/5/2024 „АБЦ СОЛУТИОНС” д.о.о. БАЊА ЛУКА ОДРЖАВАЊЕ ЈАВНЕ РАСВЈЕТЕ 8,493.62
190 001-0281 9/5/2024 „АБЦ СОЛУТИОНС” д.о.о. БАЊА ЛУКА ОДРЖАВАЊЕ ЈАВНЕ РАСВЈЕТЕ 8,634.83
191 001-0276 9/3/2024 „АБЦ СОЛУТИОНС” д.о.о. БАЊА ЛУКА РЕКОНСТРУКЦИЈА ЈАВНЕ РАСВЈЕТЕ 106,370.55
192 001-0278 друга привремена ситуација 9/3/2024 „АБЦ СОЛУТИОНС” д.о.о. БАЊА ЛУКА ИЗГРАДЊА ПАРКОВСКИХ СТАЗА У ЋИРИЛИЧНОМ ПАРКУ 55,319.06
193 19/24 8/20/2024 ВЕТ ЦЕНТАР ХИГИЈЕНИЧАРСКА СЛУЖБА 14,690.06
194 10-34 И привремена ситуација 8/27/2024 „ХИДРО-СПЛЕТ” д.о.о. ЛАКТАШИ ИЗГРАДЊА ВОДОВОДА У НАСЕЉУ ДУЦИПОЉЕ 66,384.56
195 7/24 привремена ситуација 8/31/2024 „ЕКО ВОКС” д.о.о. БАЊА ЛУКА ЧИШЋЕЊЕ ТОАЛЕТ КАБИНА 8,190.00
196 15432/2024 8/5/2024 „ВИВИЈА ОФИС & ХОМЕ” д.о.о. БАЊА ЛУКА СЕТ ВОДА И ЧАШЕ 285.00
197 2429/2023 2/9/2023 „ВИВИЈА ОФИС & ХОМЕ” д.о.о. БАЊА ЛУКА СЕТ ВОДА И ЧАШЕ 107.00
198 11972/2024 6/27/2024 „ВИВИЈА ОФИС & ХОМЕ” д.о.о. БАЊА ЛУКА СЕТ ВОДА И ЧАШЕ 157.50
199 иф-00333-1-23 12/13/2023 АУТОПРЕВОЗ ГРАДСКИ САОБРАЋАЈ д.о.о. СУБВЕНЦИЈА ЗА ЈАВНИ ПРЕВОЗ 12/23 14,704.93
200 ИФ-00334-1-23 12/13/2023 АУТОПРЕВОЗ ГРАДСКИ САОБРАЋАЈ д.о.о. СУБВЕНЦИЈА ЗА ЈАВНИ ПРЕВОЗ 36,534.63
201 ИФ-00335-1-23 12/13/2023 АУТОПРЕВОЗ ГРАДСКИ САОБРАЋАЈ д.о.о. СУБВЕНЦИЈА ЗА ЈАВНИ ПРЕВОЗ 2,868.08
202 ИФ-00310-1-23 11/24/2023 АУТОПРЕВОЗ ГРАДСКИ САОБРАЋАЈ д.о.о. СУБВЕНЦИА ЗА ЈАВНИ ПРЕВОЗ 11/23 14,704.93
203 ИФ-00306-1-23 11/14/2023 АУТОПРЕВОЗ ГРАДСКИ САОБРАЋАЈ д.о.о. СУБВЕНЦИЈА ЗА ЈАВНИ ПРЕВОЗ 11/23 36,966.29
204 иф-00284-1-23 10/12/2023 АУТОПРЕВОЗ ГРАДСКИ САОБРАЋАЈ д.о.о. СУБВЕНЦИЈЕ ЗА ЈАВНИ ПРЕВОЗ 10/23 36,901.70
205 ИФ-00287-1-23 10/31/2023 АУТОПРЕВОЗ ГРАДСКИ САОБРАЋАЈ д.о.о. СУБВЕНЦИЈЕ ЗА ЈАВНИ ПРЕВОЗ10/23 14,704.93
206 иф-00227-1-24 9/3/2024 АУТОПРЕВОЗ ГРАДСКИ САОБРАЋАЈ д.о.о. СУБВЕНЦИЈЕ 2,555.88
207 иф-00224-1-24 9/3/2024 АУТОПРЕВОЗ ГРАДСКИ САОБРАЋАЈ д.о.о. МЈЕСЕЧНЕ КАРТЕ 8,215.83
208 иф-00222-1-24 9/3/2024 АУТОПРЕВОЗ ГРАДСКИ САОБРАЋАЈ д.о.о. СУБВЕНЦИЈЕ 74,650.73
209 ИФ-00244-1-24 9/12/2024 АУТОПРЕВОЗ ГРАДСКИ САОБРАЋАЈ д.о.о. НАКНАДА ПО ОСНОВУ РАЗЛИКЕ ЦИЈЕНЕ 18,413.65
210 ИФ24-0040 6/3/2024 „ДВЦ СОЛУТИОНС” д.о.о. ОДРЖАВАЊЕ АПЛИКАЦИЈЕ „ГРАЂАНСКА ПАТРОЛА” - ЗА ЈУН 2024. (2/12) 585.00
211 иф24-0032 5/10/2024 „ДВЦ СОЛУТИОНС” д.о.о. ОДРЖАВАЊЕ АПЛИКАЦИЈЕ „ГРАЂАНСКА ПАТРОЛА” ЗА МАЈ 2024. (1/12) 585.00
212 ИФ24-0047 7/1/2024 „ДВЦ СОЛУТИОНС” д.о.о. ОДРЖАВАЊЕ АПЛИКАЦИЈЕ „ГРАЂАНСКА ПАТРОЛА” - ЗА ЈУЛ 2024. (3/12) 585.00
213 69/24 8/30/2024 „ЕЛТА МЕДИЈА ГРУП” д.о.о. 7,020.00
214 0062/24 7/29/2024 „ПРОФИНГ” д.о.о. ЗАКУП САТЕЛИТА 769.86
215 404/2024 8/21/2024 „СИНТЕЛОН ЛУКС” СТР БАЊА ЛУКА СИНТЕЛОН УГОВОР 11-Г-3911/24 6,999.66
216 23/24 7/29/2024 „ВИП ЕЛЕКТРО” БАЊА ЛУКА ОДРЖАВАЊЕ ЈАВНИХ САТОВА 1,158.30
217 14/24 5/31/2024 „ВИП ЕЛЕКТРО” БАЊА ЛУКА ОДРЖАВАЊЕ ЈАВНИХ САТОВА 807.30
218 06/24 2/29/2024 „ВИП ЕЛЕКТРО” БАЊА ЛУКА ОДРЖАВАЊЕ ЈАВНИХ САТОВА 5,071.95
219 19/24 6/28/2024 „ВИП ЕЛЕКТРО” БАЊА ЛУКА ОДРЖАВАЊЕ ЈАВНИХ САТОВА-06/24 2,816.78
220 381/2024 8/22/2024 НОТАР ЈАНА РОДИЋ УСЛУГА НОТАРСКЕ ОБРАДЕ УГОВОРА ОПУ 463/24 325.84
221 61387-АО-787139-00/24 8/5/2024 БРЧКО ГАС ОСИГУРАЊЕ ТРОШКОВИ ОСИГУРАЊА ВОЗИЛА Ј85-Е-468 17.03
222 55772-АО-785063-00/24 7/16/2024 БРЧКО ГАС ОСИГУРАЊЕ ТРОШКОВИ ОСИГУРАЊА ВАТРОГАСНОГ ВОЗИЛА О92-Ј-253 351.99
223 55758-АО-785060-00/24 7/16/2024 БРЧКО ГАС ОСИГУРАЊЕ ТРОШКОВИ ОСИГУРАЊА ВАТРОГАСНОГ ВОЗИЛА М36-Ј-511 323.89
224 55729-АО-785053-00/24 7/16/2024 БРЧКО ГАС ОСИГУРАЊЕ ТРОШКОВИ ОСИГУРАЊА ВАТРОГАСНОГ ВОЗИЛА К82.-А-098 382.98
225 55742-АО-785057-00/24 7/16/2024 БРЧКО ГАС ОСИГУРАЊЕ ТРОШКОВИ ОСИГУРАЊА ВАТРОГАСНОГ ВОЗИЛА Т95.-А-559 179.35
226 48066-АО-782105-00/24 6/24/2024 БРЧКО ГАС ОСИГУРАЊЕ ТРОШКОВИ ОСИГУРАЊА ВАТРОГАСНОГ ВОЗИЛА 188.35
227 48186-АО-782153-00/24 6/24/2024 БРЧКО ГАС ОСИГУРАЊЕ ТРОШКОВИ ОСИГУРАЊА ВАТРОГАСНОГ ВОЗИЛА 188.35
228 48133-АО-782133-00/24 6/24/2024 БРЧКО ГАС ОСИГУРАЊЕ БРЧКО ТРОШКОВИ ОСИГУРАЊА ВАТРОГАСНОГ ВОЗИЛА 17.03
229 201/2024 5/22/2024 ЗЕВ РЕЉЕ КРИЛАТИЦЕ 3 БАЊА ЛУКА РАЧУН ЗА ИВ 2024. ЗА П. П. 111 9.40
230 33-31924 4/2024 4/30/2024 „ЕКО ТОПЛАНЕ” д.о.о. БАЊА ЛУКА РАЧУН ЗА ИВ 2024. ЗА СТАН БР. 21 У УЛ. КРАЉА АЛФОНСА XИИИ БР. 28 126.05
231 33-1000191 7/2024 7/31/2024 „ЕКО ТОПЛАНЕ” д.о.о. БАЊА ЛУКА СТРУЈА 07/2024 302.99
232 33-1001473 7/2024 7/31/2024 „ЕКО ТОПЛАНЕ” д.о.о. БАЊА ЛУКА ИСПОРУЧЕНА ТОПЛОТНА ЕНЕРГИЈА 122.82
233 33-1001115 7/2024 7/31/2024 „ЕКО ТОПЛАНЕ” д.о.о. БАЊА ЛУКА ГРИЈАЊЕ 07/2024 113.29
234 33-1001127 7/2024 7/31/2024 „ЕКО ТОПЛАНЕ” д.о.о. БАЊА ЛУКА ГРИЈАЊЕ 07/2024 620.08
235 33-1001263 7/2024 7/31/2024 „ЕКО ТОПЛАНЕ” д.о.о. БАЊА ЛУКА ГРИЈАЊЕ 07/2024 741.65
236 33-1001265 7/2024 7/31/2024 „ЕКО ТОПЛАНЕ” д.о.о. БАЊА ЛУКА ГРИЈАЊЕ 07/2024 1,008.63
237 33-1001266 7/2024 7/31/2024 „ЕКО ТОПЛАНЕ” д.о.о. БАЊА ЛУКА ГРИЈАЊЕ 07/2024 42.35
238 33-1000836 7/2024 7/31/2024 „ЕКО ТОПЛАНЕ” д.о.о. БАЊА ЛУКА ГРИЈАЊЕ 07/2024 305.30
239 33-1000749 7/2024 7/31/2024 „ЕКО ТОПЛАНЕ” д.о.о. БАЊА ЛУКА ГРИЈАЊЕ 07/2024 170.13
240 33-1000566 7/2024 7/31/2024 „ЕКО ТОПЛАНЕ” д.о.о. БАЊА ЛУКА ГРИЈАЊЕ 07/2024 537.48
241 33-1001612 7/2024 7/31/2024 „ЕКО ТОПЛАНЕ” д.о.о. БАЊА ЛУКА ГРИЈАЊЕ 07/2024 255.58
242 33-1001852 7/2024 7/31/2024 „ЕКО ТОПЛАНЕ” д.о.о. БАЊА ЛУКА ГРИЈАЊЕ 07/2024 324.72
243 33-1002493 7/2024 7/31/2024 „ЕКО ТОПЛАНЕ” д.о.о. БАЊА ЛУКА ГРИЈАЊЕ 07/2024 156.76
244 33-1001491 7/2024 7/31/2024 „ЕКО ТОПЛАНЕ” д.о.о. БАЊА ЛУКА ГРИЈАЊЕ 07/2024 312.25
245 33-1001486 7/2024 7/31/2024 „ЕКО ТОПЛАНЕ” д.о.о. БАЊА ЛУКА ГРИЈАЊЕ 07/2024 123.39
246 33-1001496 7/2024 7/31/2024 „ЕКО ТОПЛАНЕ” д.о.о. БАЊА ЛУКА ГРИЈАЊЕ 07/2024 166.47
247 33-1000190 7/2024 7/31/2024 „ЕКО ТОПЛАНЕ” д.о.о. БАЊА ЛУКА ГРИЈАЊЕ 07/2024 246.96
248 33-31924 7/2024 7/31/2024 „ЕКО ТОПЛАНЕ” д.о.о. БАЊА ЛУКА РАЧУН ЗА ВИИ 2024. ЗА СТАН БР. 21 У УЛ. К. АЛФОНСА XИИИ БР. 38 127.41
249 окончана ситуација -интерни број 005/24 8/5/2024 „ТЕЛЕФОНИЈА ВИДАКОВИЋ” ДОБОЈ ОКОНЧАНА СИТУАЦИЈА БРОЈ 005/24 ОД 05. 08. 2024. 39,747.24
250 085/2024 9/2/2024 „ТЕЛЕФОНИЈА ВИДАКОВИЋ” ДОБОЈ РАЧУН БРОЈ 085/2024 ОД 02. 09. 2024. ЗА АВГУСТ 2024. 10,084.23
251 8131/1/93 8/30/2024 „МГ МИНД” д.о.о. МРКОЊИЋ ГРАД ПРВА ПРИВРЕМЕНА СИТУАЦИЈА БРОЈ 8131/1/93 ОД 30. 08. 2024. 125,744.38
252 8296/1/93 8/31/2024 „МГ МИНД” д.о.о. МРКОЊИЋ ГРАД ПРВА ПРИВРЕМЕНА СИТУАЦИЈА БРОЈ 8296/1/93 ОД 31. 08. 2024. 100,279.00
253 89/2/20 8/31/2024 „МГ МИНД” д.о.о. МРКОЊИЋ ГРАД ПРАВДАЊЕ АВАНСА -47,929.53
254 8501/1/93 8/31/2024 „МГ МИНД” д.о.о. МРКОЊИЋ ГРАД ШЕСТА ПРИВРЕМЕНА СИТУАЦИЈА БРОЈ 8501/1/93 ОД 31. 08. 2024. 239,647.66
255 8482/1/93 8/31/2024 „МГ МИНД” д.о.о. МРКОЊИЋ ГРАД ДРУГА ПРИВРЕМЕНА СИТУАЦИЈА БРОЈ 8482/1/-3 ОД 31. 08. 2024. 32,930.59
256 8485/1/93 8/31/2024 „МГ МИНД” д.о.о. МРКОЊИЋ ГРАД ОКОНЧАНА СИТУАЦИЈА БРОЈ 8485/1/93 ОД 31. 08. 2024. 61,712.64
257 8483/1/93 8/31/2024 „МГ МИНД” д.о.о. МРКОЊИЋ ГРАД ТРЕЋА ПРИВРЕМЕНА СИТУАЦИЈА БРОЈ 8493/1/93 ОД 31. 08. 2024. 53,212.00
258 6085/1/93 6/30/2024 „МГ МИНД” д.о.о. МРКОЊИЋ ГРАД ПРВА ПРИВРЕМЕНА СИТУАЦИЈА 184,245.46
259 7425/1/93 7/31/2024 „МГ МИНД” д.о.о. МРКОЊИЋ ГРАД ДРУГА ПРИВРЕМЕНА СИТУАЦИЈА БРОЈ 7425/1/93 ОД 31. 07. 2024. 90,474.93
260 7426/1/93 7/31/2024 „МГ МИНД” д.о.о. МРКОЊИЋ ГРАД ДРУГА ПРИВРЕМЕНА СИТУАЦИЈА БРОЈ 7426/1/93 ОД 31. 07. 2024. 16,110.32
261 7430/1/93 7/31/2024 „МГ МИНД” д.о.о. МРКОЊИЋ ГРАД ПРВА ПРИВРЕМЕНА СИТУАЦИЈА БРОЈ 7430/1/93 ОД 31. 07. 2024. 69,073.02
262 7429/1/93 7/31/2024 „МГ МИНД” д.о.о. МРКОЊИЋ ГРАД ПРВА ПРИВРЕМЕНА СИТУАЦИЈА БРОЈ 7429/1/93 ОД 31. 07. 2024. 93,933.68
263 7403/1/93 7/31/2024 „МГ МИНД” д.о.о. МРКОЊИЋ ГРАД ПРВА ПРИВРЕМЕНА СИТУАЦИЈА БРОЈ 7403/1/93 ОД 31. 07. 2024. 18,228.62
264 7413/1/93 7/31/2024 „МГ МИНД” д.о.о. МРКОЊИЋ ГРАД ПЕТА ПРИВРЕМЕНА СИТУАЦИЈА БРОЈ 7413/1/93 ОД 31. 07. 2024. 193,416.56
265 7318/1/93 ИИ привремена ситуација 7/31/2024 „МГ МИНД” д.о.о. МРКОЊИЋ ГРАД ДРУГА ПРИВРЕМЕНА СИТУАЦИЈА БРОЈ 7318/1-93 ОД 31. 07. 2024. 268,911.71
266 7456/1/93 XXXВ привремена ситуација 7/31/2024 „МГ МИНД” д.о.о. МРКОЊИЋ ГРАД ВОДА 2 539,516.41
267 67/2/20 7/8/2024 „МГ МИНД” д.о.о. МРКОЊИЋ ГРАД ИСПЛАТА АВАНСА 199,980.39
268 70-2755/2024 7/6/2024 ДНЕВНЕ НЕЗАВИСНЕ НОВИНЕ БАЊА ЛУКА ПЛАЋАЊЕ ДРУГОГ ОБАВЈЕШТЕЊА ДА ЈЕ НАЦРТ ИЗМЈЕНЕ ДИЈЕЛА РЕГ. ПЛАНА „ЛАЗАРЕВО 4” ИЗЛОЖЕН НА ЈАВНИ УВИД 163.80
269 70-2508/2024 6/25/2024 ДНЕВНЕ НЕЗАВИСНЕ НОВИНЕ БАЊА ЛУКА ПЛАЋАЊЕ ОБАВЈЕШТЕЊА ДА ЈЕ НАЦРТ ИЗМЈЕНЕ ДИЈЕЛА РЕГ. ПЛАНА „ЛАЗАРЕВО 4” ИЗЛОЖЕН НА ЈАВНИ УВИД 163.80
270 70-2625/2024 6/28/2024 ДНЕВНЕ НЕЗАВИСНЕ НОВИНЕ БАЊА ЛУКА ПЛАЋАЊЕ ДРУГОГ ОБАВЈЕШТЕЊА ДА ЈЕ НАЦРТ ИЗМЈЕНЕ ДИЈЕЛА РЕГ. ПЛАНА „ЦЕНТАР ИСТОК” ИЗЛОЖЕН НА ЈАВНИ УВИД 163.80
271 70-2668/2024 7/1/2024 ДНЕВНЕ НЕЗАВИСНЕ НОВИНЕ БАЊА ЛУКА ПЛАЋАЊЕ ОБАВЈЕШТЕЊА ДА ЈЕ ДОНЕСЕНА ОДЛУКА О ИЗМЈЕНИ НАЦРТА ДИЈЕЛА РЕГ. ПЛАНА „ОБИЛИЋЕВО” 163.80
272 70-2692/2024 7/2/2024 ДНЕВНЕ НЕЗАВИСНЕ НОВИНЕ БАЊА ЛУКА ПЛАЋАЊЕ ОБАВЈЕШТЕЊА ДА ЈЕ НАЦРТ ИЗМЈЕНЕ ДИЈЕЛА РЕГ. ПЛАНА „ФИЛИПОВИЋА ПОЉЕ” ИЗЛОЖЕН НА ЈАВНИ УВИД 163.80
273 70-2691/2024 7/2/2024 ДНЕВНЕ НЕЗАВИСНЕ НОВИНЕ БАЊА ЛУКА ПЛАЋАЊЕ ОБАВЈЕШТЕЊА ДА ЈЕ НАЦРТ ИЗМЈЕНЕ ДИЈЕЛА РЕГ. ПЛАНА „ЈУГ 6” ИЗЛОЖЕН НА ЈАВНИ УВИД 163.80
274 70-2473/2024 6/23/2024 ДНЕВНЕ НЕЗАВИСНЕ НОВИНЕ БАЊА ЛУКА ПЛАЋАЊЕ ДРУГОГ ОБАВЈЕШТЕЊА ДА ЈЕ НАЦРТ ИЗМЈЕНЕ ДИЈЕЛА РЕГ. ПЛАНА „ПАПРИКОВАЦ-ПЕТРИЋЕВАЦ ЗОНА Б” ИЗЛОЖЕН НА ЈАВНИ УВИД 163.80
275 70-2369/2024 6/19/2024 ДНЕВНЕ НЕЗАВИСНЕ НОВИНЕ БАЊА ЛУКА ПЛАЋАЊЕ ДРУГОГ ОБАВЈЕШТЕЊА ДА ЈЕ НАЦРТ ИЗМЈЕНЕ ДИЈЕЛА РЕГ. ПЛАНА ЗА УРЕЂЕЊЕ ОБАЛА ВРБАСА ИЗЛОЖЕН НА ЈАВНИ УВИД 163.80
276 70-2370/2024 6/19/2024 ДНЕВНЕ НЕЗАВИСНЕ НОВИНЕ БАЊА ЛУКА ПЛАЋАЊЕ ДРУГОГ ОБАВЈЕШТЕЊА ДА ЈЕ НАЦРТ ИЗМЈЕНЕ ДИЈЕЛА РЕГ. ПЛАНА „ЦЕНТАР АЛЕЈА” ИЗЛОЖЕН НА ЈАВНИ УВИД 163.80
277 70-2293/2024 6/12/2024 ДНЕВНЕ НЕЗАВИСНЕ НОВИНЕ БАЊА ЛУКА ПЛАЋАЊЕ ОБАВЈЕШТЕЊА ДА ЈЕ НАЦРТ ИЗМЈЕНЕ ДИЈЕЛА РЕГ. ПЛАНА „ПАПРИКОВАЦ-ПЕТРИЋЕВАЦ ЗОНА Б” ИЗЛОЖЕН НА ЈАВНИ УВИД 163.80
278 70-2277/2024 6/11/2024 ДНЕВНЕ НЕЗАВИСНЕ НОВИНЕ БАЊА ЛУКА ПЛАЋАЊЕ ДРУГОГ ОБАВЈЕШТЕЊА ДА ЈЕ НАЦРТ ИЗМЈЕНЕ ДИЈЕЛА РЕГ. ПЛАНА „БОРИК” ИЗЛОЖЕН НА ЈАВНИ УВИД 163.80
279 70-2235/2024 6/10/2024 ДНЕВНЕ НЕЗАВИСНЕ НОВИНЕ БАЊА ЛУКА ПЛАЋАЊЕ ОБАВЈЕШТЕЊА ДА ЈЕ НАЦРТ ИЗМЈЕНЕ ДИЈЕЛА РЕГ. ПЛАНА „ЦЕНТАР ИСТОК” ИЗЛОЖЕН НА ЈАВНИ УВИД 163.80
280 70-2320/2024 6/13/2024 ДНЕВНЕ НЕЗАВИСНЕ НОВИНЕ БАЊА ЛУКА ПЛАЋАЊЕ ОБАВЈЕШТЕЊА ДА ЈЕ ДОНЕСЕНА ОДЛУКА О ИЗМЈЕНИ ДИЈЕЛА РЕГ. ПЛАНА „ОБИЛИЋЕВО” 163.80
281 70-2168/2024 6/3/2024 ДНЕВНЕ НЕЗАВИСНЕ НОВИНЕ БАЊА ЛУКА ПЛАЋАЊЕ ОБАВЈЕШТЕЊА ДА ЈЕ ДОНЕСЕНА ОДУКА О ИЗМЈЕНИ ДИЈЕЛА РЕГ. ПЛАНА „ШАРГОВАЦ 2” 163.80
282 70-2169/2024 6/3/2024 ДНЕВНЕ НЕЗАВИСНЕ НОВИНЕ БАЊА ЛУКА ПЛАЋАЊЕ ОБАВЈЕШТЕЊА ДА ЈЕ ДОНЕСЕНА ОДУКА О ИЗМЈЕНИ ДИЈЕЛА РЕГ. ПЛАНА ЦЕНТРАЛНОГ ПОДРУЧЈА ГРАДА БАЊЕ ЛУКЕ 163.80
283 70-2167/2024 6/3/2024 ДНЕВНЕ НЕЗАВИСНЕ НОВИНЕ БАЊА ЛУКА ПЛАЋАЊЕ ОБАВЈЕШТЕЊА ДА ЈЕ ДОНЕСЕНА ОДУКА О ИЗМЈЕНИ ДИЈЕЛА РЕГ. ПЛАНА „ЛИВНИЦА” 163.80
284 70-3333/2024 8/19/2024 ДНЕВНЕ НЕЗАВИСНЕ НОВИНЕ БАЊА ЛУКА ПЛАЋАЊЕ ОБАВЈЕШТЕЊА ДА ЈЕ НАЦРТ ИЗМЈЕНЕ ДИЈЕЛА РЕГ. ПЛАНА ЗА ПРОСТОР РЕГИОНАЛНОГ ЦЕНТРА ИЗЛОЖЕН НА ЈАВНИ УВИД 163.80
285 70-3331/2024 8/19/2024 ДНЕВНЕ НЕЗАВИСНЕ НОВИНЕ БАЊА ЛУКА ПЛАЋАЊЕ ОБАВЈЕШТЕЊА ДА ЈЕ НАЦРТ ИЗМЈЕНЕ ДИЈЕЛА РЕГ. ПЛАНА „ПАСКОЛИНА ЦИГЛАНА” ИЗЛОЖЕН НА ПОНОВНИ ЈАВНИ УВИД 163.80
286 70-3216/2024 8/8/2024 ДНЕВНЕ НЕЗАВИСНЕ НОВИНЕ БАЊА ЛУКА ПЛАЋАЊЕ ОБАВЈЕШТЕЊА ДА ЈЕ НАЦРТ ИЗМЈЕНЕ ДИЈЕЛА РЕГ. ПЛАНА „ПАСКОЛИНА ЦИГЛАНА” ИЗЛОЖЕН НА ПОНОВНИ ЈАВНИ УВИД 163.80
287 0-68/0/2024 8/1/2024 „ВАТРО-ПРОМЕТ” д.о.о. НАБАВКА ЗАШТИТНИХ УНИФОРМИ ЗА ГАШЕЊЕ ПОЖАРА 304,164.90
288 01/2401004103 7/31/2024 ПОШТЕ СРПСКЕ ПОШТАНСКЕ УСЛУГЕ 13,371.09
289 01/2401004849 8/31/2024 ПОШТЕ СРПСКЕ ПОШТАНСКЕ УСЛУГЕ 15,568.64
290 296/24 ОКОНЧАНА СИТУАЦИЈА 8/28/2024  „ГРАЂЕЊЕ ЂУРИЋ” д.о.о. ИЗГРАДЊА ОБОРИНСКЕ КАНАЛИЗАЦИЈЕ У УЛИЦИ РАДЕ РАДИЋА 6,709.95
291 90188816 7/9/2024 БХ ТЕЛЕКОМ ПРОВИЗИЈА ЗА УСЛУГЕ МПАРКИНГ 06/24 304.62
292 90188750 7/9/2024 БХ ТЕЛЕКОМ ПРОВИЗИЈЕ УСЛУГЕ ЗА МПАРКИНГ ЗА 06/24 9.01
293 0084 ПРИВРЕМЕНА СИТУАЦИЈА ВИИ 8/20/2024 НИСКОГРАДЊА МАРЈАНОВИЋ СЕДМА ПРИВРЕМЕНА СИТУАЦИЈА БРОЈ 0084/24 ОД 20. 08. 2024. 143,061.97
294 24-3010-007827 7/29/2024 ИНСТИТУТ ЗА ЈАВНО ЗДРАВСТВО РС МИКРОБИОЛОШКО ИСПИТИВАЊЕ ВОДЕ НА КУПАЛИШТИМА 455.00
295 24-3010-005843 6/10/2024 ИНСТИТУТ ЗА ЈАВНО ЗДРАВСТВО РС МИКРОБИОЛОШКО ИСПИТИВАЊЕ 155.00
296 24-3010-006173 6/18/2024 ИНСТИТУТ ЗА ЈАВНО ЗДРАВСТВО РС СТРУЧНО МИШЊЕЊЕ О ХИГИЈЕНСКОЈ ИСПРАВНОСТИ НАМИРНИЦА 140.00
297 101-51-394/2024 6/21/2024 ПРОДАЈНО СЕРВИСНИ ЦЕНТАР „ТАМ” ТЕХНИЧКИ ПРЕГЛЕД ЗА РЕГИСТРАЦИЈУ ВАТРОГАСНОГ ВОЗИЛА А62-О-836 90.09
298 101-51-395/2024 6/21/2024 ПРОДАЈНО СЕРВИСНИ ЦЕНТАР „ТАМ” ТЕХНИЧКИ ПРЕГЛЕД ЗА РЕГИСТРАЦИЈУ ВАТРОГАСНОГ ВОЗИЛА А62-О-836 50.31
299 101-51-393/2024 6/21/2024 ПРОДАЈНО СЕРВИСНИ ЦЕНТАР „ТАМ” ТЕХНИЧКИ ПРЕГЛЕД ЗА РЕГИСТРАЦИЈУ ВАТРОГАСНОГ ВОЗИЛА А62-О-836 90.09
300 101-51-376/2024 6/18/2024 ПРОДАЈНО СЕРВИСНИ ЦЕНТАР „ТАМ” ТЕХНИЧКИ ПРЕГЛЕД ЗА РЕГИСТРАЦИЈУ ВАТРОГАСНЕ ПРИКОЛИЦЕ К82-Т-935 50.31
301 101-51-348/2024 6/7/2024 ПРОДАЈНО СЕРВИСНИ ЦЕНТАР „ТАМ” ТЕХНИЧКИ ПРЕГЛЕД ЗА РЕГИСТРАЦИЈУ А62-О-836 99.45
302 ИФ-00686-1-24 6/20/2024 „ДРАГИЧЕВИЋ” д.о.о. БАЊА ЛУКА ОДРЖАВАЊЕ КОПИР АПАРАТА 795.62
303 ИФ-00746-1-24 7/3/2024 „ДРАГИЧЕВИЋ” д.о.о. БАЊА ЛУКА  СЕРВИС КОПИР АПАРАТА 319.77
304 иф-00794-1-24 7/19/2024 „ДРАГИЧЕВИЋ” д.о.о. БАЊА ЛУКА ПИК УП 77.22
305 иф-00795-1-24 7/19/2024 „ДРАГИЧЕВИЋ” д.о.о. БАЊА ЛУКА БУБАЊ 161.46
306 иф-00796-1-24 7/19/2024 „ДРАГИЧЕВИЋ” д.о.о. БАЊА ЛУКА БУБАЊ 161.46
307 иф-00810-1-24 7/25/2024 „ДРАГИЧЕВИЋ” д.о.о. БАЊА ЛУКА ОДРЖАВАЊЕ АПАРАТА ЗА КОПИРАЊЕ 717.20
308 иф-00811-1-24 7/25/2024 „ДРАГИЧЕВИЋ” д.о.о. БАЊА ЛУКА ОДРЖАВАЊЕ АПАРАТА ЗА КОПИРАЊЕ 564.08
309 87/24 7/15/2024 ЦЕНТАР ЗА РАЗВОЈ ПОЉОПРИВРЕДЕ И СЕЛА ДОМАЋИ И АУТЕНТИЧНИ ПРОИЗВОДИ 85.80
310 79/24 6/28/2024 ЦЕНТАР ЗА РАЗВОЈ ПОЉОПРИВРЕДЕ И СЕЛА ДОМАЋИ И АУТЕНТИЧНИ ПРОИЗВОДИ 576.90
311 69/24 6/17/2024 ЦЕНТАР ЗА РАЗВОЈ ПОЉОПРИВРЕДЕ И СЕЛА ДОМАЋИ И АУТЕНТИЧНИ ПРОИЗВОДИ 224.66
312 68/24 6/14/2024 ЦЕНТАР ЗА РАЗВОЈ ПОЉОПРИВРЕДЕ И СЕЛА ДОМАЋИ И АУТЕНТИЧНИ ПРОИЗВОДИ 837.80
313 39/24 5/13/2024 ЦЕНТАР ЗА РАЗВОЈ ПОЉОПРИВРЕДЕ И СЕЛА ДОМАЋИ И АУТЕНТИЧНИ ПРОИЗВОДИ 999.50
314 2024-В001-53-000013 6/30/2024 ЈУ МУЗЕЈ САВРЕМЕНЕ УМЈЕТНОСТИ РС ИЗНАЈМЉИВАЊЕ ПРОСТОРА ЗА ОДРЖАВАЊЕ ВЈЕНЧАЊА 1,989.00
315 2024-в001-53-000015 7/30/2024 ЈУ МУЗЕЈ САВРЕМЕНЕ УМЈЕТНОСТИ РС ЗАКУП ПРОСТОРА-ВЈЕНЧАЊА ЗА МЈЕСЕЦ ЈУЛ 4,797.00
316 савф-00007-01-24 7/10/2024 ЦЕНТАР ЗА ПРОЈЕКТОВАЊЕ И КОНСАЛТИНГ „ЦПК” НАДЗОР ВОДА 3 8,556.37
317 УСЛ-00217-1-24 8/13/2024 ЦЕНТАР ЗА ПРОЈЕКТОВАЊЕ И КОНСАЛТИНГ „ЦПК” ФАКТУРА БРОЈ УСЛ-00217-1-24 ОД 13. 08. 2024. 518.90
318 УСЛ-00153-1-24 6/13/2024 ЦЕНТАР ЗА ПРОЈЕКТОВАЊЕ И КОНСАЛТИНГ „ЦПК” ПЛАЋАЊЕ 80 % НАКНАДЕ ЗА ИЗРАДУ РЕГ. ПЛАНА ЗА ПРОСТОР РЕГИОНАЛНОГ ЦЕНТРА 1,862.65
319 УСЛ-00144-1-24 6/10/2024 ЦЕНТАР ЗА ПРОЈЕКТОВАЊЕ И КОНСАЛТИНГ „ЦПК” ПЛАЋАЊЕ 30 % НАКНАДЕ ЗА ИЗРАДУ РЕГ. ПЛАНА „ЦЕНТАР АЛЕЈА” 1,579.50
320 усл-00183-1-24 7/10/2024 ЦЕНТАР ЗА ПРОЈЕКТОВАЊЕ И КОНСАЛТИНГ „ЦПК” НАДЗОР ВОДА 3 22,116.53
321 УСЛ-00136-1-24 5/29/2024 ЦЕНТАР ЗА ПРОЈЕКТОВАЊЕ И КОНСАЛТИНГ „ЦПК” ИДЕЈНИ ПРОЈЕКАТ И УТ УСЛОВИ ЗА ВАТРОГАСНИ ДОМ НА ДЕСНОЈ ОБАЛИ РИЈЕКЕ ВРБАС 8,856.90
322 усл-00145-1-24 6/10/2024 ЦЕНТАР ЗА ПРОЈЕКТОВАЊЕ И КОНСАЛТИНГ „ЦПК” НАДЗОР ВОДА 3 20,414.37
323 усл-00135-1-24 5/22/2024 ЦЕНТАР ЗА ПРОЈЕКТОВАЊЕ И КОНСАЛТИНГ „ЦПК” ФАКТУРА БРОЈ УСЛ-00135-1-24 ОД 25. 05. 2024. 6,750.90
324 155 БГ 1162 6/3/2024 ГЕОИНОВА ЈЕДНОГОДИШЊА ПРЕТПЛАТА ЗА ПДQ АЛАТ 3,861.00
325 40 4/25/2024 „УНИКО“ ВЛ. РАДУКИЋ СТАНИЈА с.п. 9 ВИЈЕНАЦА - НАРУЏБЕНИЦА БР. 5, 6, 7, 8, 9, 10, 11, 12, 13 450.00
326 39 4/25/2024 „УНИКО“ ВЛ. РАДУКИЋ СТАНИЈА с.п. СУЗА - ПОГИНУЛИМ БОРЦИМА 1. ОКЛОПНЕ БРИГАДЕ - ГРАДА БАЊЕ ЛУКЕ 30.00
327 55 5/29/2024 „УНИКО“ ВЛ. РАДУКИЋ СТАНИЈА с.п. ПАРАСТОС ПОГИНУЛИМ БОРЦИМА ВРС ГРАДА БАЊЕ ЛУКЕ, МЗ КОЧИЋЕВ ВИЈЕНАЦ, ГЕНЕРАЛУ МОМИРУ ТАЛИЋУ ГРАД БАЊА ЛУКА 130.00
328 50 5/22/2024 „УНИКО“ ВЛ. РАДУКИЋ СТАНИЈА с.п. ПАРАСТОС ПОГИНУЛИМ ПРИПАДНИЦИМА ВАЗДУХОПЛОВСТВА И ПРОТИВВАЗДУШНЕ ОДБРАНЕ - ГРАД БАЊА ЛУКА 50.00
329 46 5/14/2024 „УНИКО“ ВЛ. РАДУКИЋ СТАНИЈА с.п. ПАРАСТОС ПОГИНУЛИМ БОРЦИМА ВРС ГРАДА БАЊЕ ЛУКЕ, ЖРТВАМА УСТАШКОГ ПОКОЉА ГРАДА БАЊЕ ЛУКЕ 100.00
330 60 6/22/2024 „УНИКО“ ВЛ. РАДУКИЋ СТАНИЈА с.п. ПАРАСТОС ПОГИНУЛИМ БОРЦИМА ВРС ГРАДА БАЊЕ ЛУКЕ МЗ САРАЧИЦА, МЗ РЕКАВИЦЕ 150.00
331 69 6/28/2024 „УНИКО“ ВЛ. РАДУКИЋ СТАНИЈА с.п. ПАРАСТОС ПОГИНУЛИМ БОРЦИМА ВРС ГРАДА БАЊЕ ЛУКЕ МЗ АДА, МЗ ВЕРИЋИ, ПОГИНУЛИМ БОРЦИМА НОР-а, МЗ ДРАГОЧАЈ, МЗ ОБИЛИЋЕВО, МЗ КРМИНЕ, МЗ ПОТКОЗАРЈЕ, МЗ РОСУЉЕ, МЗ БОРКОВИЋИ 500.00
332 59 6/18/2024 „УНИКО“ ВЛ. РАДУКИЋ СТАНИЈА с.п. ПАРАСТОС ПОГИНУЛИМ БОРЦИМА ВРС ГРАДА БАЊЕ ЛУКЕ 50.00
333 84 7/27/2024 „УНИКО“ ВЛ. РАДУКИЋ СТАНИЈА с.п. ПАРАСТОС ПОГИНУЛИМ БОРЦИМА ВРС ГРАДА БАЊЕ ЛУКЕ ИЗ МЗ МЕЛИНА И МЗ СРПСКЕ ТОПЛИЦЕ 100.00
334 80 7/21/2024 „УНИКО“ ВЛ. РАДУКИЋ СТАНИЈА с.п. ПАРАСТОС СТРАДАЛИМ СРБИМА ОД УСТАШКЕ РУКЕ ГРАДА БАЊЕ ЛУКЕ И ПОГИНУЛИМ БОРЦИМА НОР-А ГРАДА БАЊЕ ЛУКЕ 100.00
335 72 7/4/2024 „УНИКО“ ВЛ. РАДУКИЋ СТАНИЈА с.п. ПАРАСТОС ПОГИНУЛИМ БОРЦИМА НОР-А ГРАДА БАЊЕ ЛУКЕ 50.00
336 76 7/14/2024 „УНИКО“ ВЛ. РАДУКИЋ СТАНИЈА с.п. ПАРАСТОС ПОГИНУЛИМ БОРЦИМА ВРС ГРАД БАЊА ЛУКА МЗ ПЕТРИЋЕВАЦ, МЗ ЉУБАЧЕВО И ПОГИНУЛИМ БОРЦИМА НОР-а ИЗ МЗ ЉУБАЧЕВО 150.00
337 75 7/14/2024 „УНИКО“ ВЛ. РАДУКИЋ СТАНИЈА с.п. ПАРАСТОС ПОГИНУЛИМ БОРЦИМА ВРС ГРАД БАЊА ЛУКА ИЗ МЗ БРОНЗАНИ МАЈДАН 50.00
338 117444-4-0624-5100779 6/30/2024 МХ „ЕЛЕКТРОПРИВРЕДА РЕПУБЛИКЕ СРПСКЕ” УТРОШАК ЕЛЕКТРИЧНЕ ЕНЕРГИЈЕ - КРАЉА ПЕТРА 1 346.72
339 116547-4-0624-4100521 6/30/2024 МХ „ЕЛЕКТРОПРИВРЕДА РЕПУБЛИКЕ СРПСКЕ” УТРОШАК ЕЛЕКТРИЧНА ЕНЕРГИЈЕ - ОД ЗМИЈАЊА РАЈКА 281.91
340 112434-4-0624-5100640 6/30/2024 МХ „ЕЛЕКТРОПРИВРЕДА РЕПУБЛИКЕ СРПСКЕ” УТРОШАК ЕЛЕКТРИЧНЕ ЕНЕРГИЈЕ У ПЗ „РАМИЋИ-БАЊА ЛУКА” (УПРАВНА ЗГРАДА) ЗА ЈУН 2024. ГОДИНЕ 153.53
341 112512-4-0624-4100335 6/30/2024 МХ „ЕЛЕКТРОПРИВРЕДА РЕПУБЛИКЕ СРПСКЕ” УТРОШАК ЕЛЕКТРИЧНЕ ЕНЕРГИЈЕ У ПЗ „РАМИЋИ-БАЊА ЛУКА” (ХАЛА) ЗА ЈУН 2024. ГОДИНЕ 0.00
342 1907921-4-0424-7366412 4/30/2024 МХ „ЕЛЕКТРОПРИВРЕДА РЕПУБЛИКЕ СРПСКЕ” РАЧУН ЗА ИВ 2024. ЗА П. П. БР. 11 У УЛ. К. П. И КАРАЂОРЂЕВИЋА БР. 113 0.19
343 2534971-4-0524-7366412 5/31/2024 МХ „ЕЛЕКТРОПРИВРЕДА РЕПУБЛИКЕ СРПСКЕ” РАЧУН ЗА В 2024. ЗА П. П. БР. 11 У УЛ. К. П. И КАРАЂОРЂЕВИЋА БР. 113 0.05
344 137246-4-0724-4101301 7/31/2024 МХ „ЕЛЕКТРОПРИВРЕДА РЕПУБЛИКЕ СРПСКЕ” ПАРКИНГ КУЋИЦА АЛЕЈА СВ. САВЕ 710.59
345 138004-4-0724-5100779 7/31/2024 МХ „ЕЛЕКТРОПРИВРЕДА РЕПУБЛИКЕ СРПСКЕ” ЕЛЕКТРИЧНА ЕНЕРГИЈА 267.18
346 141093-4-0724-4100521 7/31/2024 МХ „ЕЛЕКТРОПРИВРЕДА РЕПУБЛИКЕ СРПСКЕ” РАЧУН ЗА ВИИ 2024. ЗА РАДНИЧКИ УНИВЕРЗИТЕТ 38.22
347 141094-4-0724-4100521 7/31/2024 МХ „ЕЛЕКТРОПРИВРЕДА РЕПУБЛИКЕ СРПСКЕ” РАЧУН ЗА ВИИ 2024. ЗА ЈС У УЛ. С. МАТАВУЉА БР. 10 38.22
348 141095-4-0724-4100521 7/31/2024 МХ „ЕЛЕКТРОПРИВРЕДА РЕПУБЛИКЕ СРПСКЕ” РАЧУН ЗА ВИИ 2024. ЗА КГК У УЛ. С. МАТАВУЉА БР. 4 А 38.84
349 141096-4-0724-4100521 7/31/2024 МХ „ЕЛЕКТРОПРИВРЕДА РЕПУБЛИКЕ СРПСКЕ” РАЧУН ЗА ВИИ 2024. ЗА ЦЕНТРАЛНУ ГАРАЖУ БР. 1 У УЛ. КОРДУНАШКА БР. 10 64.27
350 141097-4-0724-4100521 7/31/2024 МХ „ЕЛЕКТРОПРИВРЕДА РЕПУБЛИКЕ СРПСКЕ” РАЧУН ЗА ВИИ 2024. ЗА ЈС „ПЕЋИНА” 0.00
351 141098-4-0724-4100521 7/31/2024 МХ „ЕЛЕКТРОПРИВРЕДА РЕПУБЛИКЕ СРПСКЕ” РАЧУН ЗА ВИИ 2024. ЗА П. П. НА БАЊ БРДУ 38.22
352 134587-4-0724-4101605 и др рекапитулација 7/31/2024 МХ „ЕЛЕКТРОПРИВРЕДА РЕПУБЛИКЕ СРПСКЕ” УТРОШАК ЕЛЕКТРИЧНЕ ЕНЕРГИЈЕ ЗА РАД СЕМАФОРА 3,464.24
353 134608-4-0724-4100521 и др. рекапитулација 7/31/2024 МХ „ЕЛЕКТРОПРИВРЕДА РЕПУБЛИКЕ СРПСКЕ” РН ЈАВНА РАСВЈЕТА 158,082.99
354 133276-4-0724-4101765 и др. рекапитулација 7/31/2024 МХ „ЕЛЕКТРОПРИВРЕДА РЕПУБЛИКЕ СРПСКЕ” РН ЈАВНА РАСВЈЕТА 46,255.94
355 137036-4-0724-4101720 7/31/2024 МХ „ЕЛЕКТРОПРИВРЕДА РЕПУБЛИКЕ СРПСКЕ” СТРУЈА 07/2024 53.59
356 137082-4-0724-4101720 7/31/2024 МХ „ЕЛЕКТРОПРИВРЕДА РЕПУБЛИКЕ СРПСКЕ” СТРУЈА 07/2024 41.08
357 140280-4-0724-4101720 7/31/2024 МХ „ЕЛЕКТРОПРИВРЕДА РЕПУБЛИКЕ СРПСКЕ” СТРУЈА 07/2024 1,535.17
358 137986-4-0724-4101660 7/31/2024 МХ „ЕЛЕКТРОПРИВРЕДА РЕПУБЛИКЕ СРПСКЕ” СТРУЈА 07/2024 2,341.87
359 137668-4-0724-4101379 7/31/2024 МХ „ЕЛЕКТРОПРИВРЕДА РЕПУБЛИКЕ СРПСКЕ” СТРУЈА 07/2024 10,195.54
360 137667-4-0724-4101374 7/31/2024 МХ „ЕЛЕКТРОПРИВРЕДА РЕПУБЛИКЕ СРПСКЕ” СТРУЈА 07/2024 9,882.14
361 3766106-4-0724-7366415 7/31/2024 МХ „ЕЛЕКТРОПРИВРЕДА РЕПУБЛИКЕ СРПСКЕ” СТРУЈА 07/2024 63.38
362 137062-4-0724-4101720 7/31/2024 МХ „ЕЛЕКТРОПРИВРЕДА РЕПУБЛИКЕ СРПСКЕ” СТРУЈА 07/2024 110.38
363 137069-4-0724-4101720 7/31/2024 МХ „ЕЛЕКТРОПРИВРЕДА РЕПУБЛИКЕ СРПСКЕ” СТРУЈА 07/2024 89.31
364 137044-4-0724-4101720 7/31/2024 МХ „ЕЛЕКТРОПРИВРЕДА РЕПУБЛИКЕ СРПСКЕ” СТРУЈА 07/2024 808.36
365 137073-4-0724-4101720 7/31/2024 МХ „ЕЛЕКТРОПРИВРЕДА РЕПУБЛИКЕ СРПСКЕ” СТРУЈА 07/2024 83.82
366 137046-4-0724-4101720 7/31/2024 МХ „ЕЛЕКТРОПРИВРЕДА РЕПУБЛИКЕ СРПСКЕ” СТРУЈА 07/2024 120.13
367 137045-4-0724-4101720 7/31/2024 МХ „ЕЛЕКТРОПРИВРЕДА РЕПУБЛИКЕ СРПСКЕ” СТРУЈА 07/2024 83.75
368 137030-4-0724-4101720 7/31/2024 МХ „ЕЛЕКТРОПРИВРЕДА РЕПУБЛИКЕ СРПСКЕ” СТРУЈА 07/2024 54.28
369 137033-4-0724-4101720 7/31/2024 МХ „ЕЛЕКТРОПРИВРЕДА РЕПУБЛИКЕ СРПСКЕ” СТРУЈА 07/2024 80.22
370 137041-4-0724-4101720 7/31/2024 МХ „ЕЛЕКТРОПРИВРЕДА РЕПУБЛИКЕ СРПСКЕ” СТРУЈА 07/2024 59.48
371 137040-4-0724-4101720 7/31/2024 МХ „ЕЛЕКТРОПРИВРЕДА РЕПУБЛИКЕ СРПСКЕ” СТРУЈА 07/2024 138.98
372 137037-4-0724-4101720 7/31/2024 МХ „ЕЛЕКТРОПРИВРЕДА РЕПУБЛИКЕ СРПСКЕ” СТРУЈА 07/2024 58.76
373 137072-4-0724-4101720 7/31/2024 МХ „ЕЛЕКТРОПРИВРЕДА РЕПУБЛИКЕ СРПСКЕ” СТРУЈА 07/2024 57.66
374 137031-4-0724-4101720 7/31/2024 МХ „ЕЛЕКТРОПРИВРЕДА РЕПУБЛИКЕ СРПСКЕ” СТРУЈА 07/2024 41.01
375 137042-4-0724-4101720 7/31/2024 МХ „ЕЛЕКТРОПРИВРЕДА РЕПУБЛИКЕ СРПСКЕ” СТРУЈА 07/2024 43.54
376 137032-4-0724-4101720 7/31/2024 МХ „ЕЛЕКТРОПРИВРЕДА РЕПУБЛИКЕ СРПСКЕ” СТРУЈА 07/2024 68.42
377 137043-4-0724-4101720 7/31/2024 МХ „ЕЛЕКТРОПРИВРЕДА РЕПУБЛИКЕ СРПСКЕ” СТРУЈА 07/2024 95.98
378 137034-4-0724-4101720 7/31/2024 МХ „ЕЛЕКТРОПРИВРЕДА РЕПУБЛИКЕ СРПСКЕ” СТРУЈА 07/2024 109.99
379 137070-4-0724-4101720 7/31/2024 МХ „ЕЛЕКТРОПРИВРЕДА РЕПУБЛИКЕ СРПСКЕ” СТРУЈА 07/2024 59.09
380 137065-4-0724-4101720 7/31/2024 МХ „ЕЛЕКТРОПРИВРЕДА РЕПУБЛИКЕ СРПСКЕ” СТРУЈА 07/2024 42.40
381 137035-4-0724-4101720 7/31/2024 МХ „ЕЛЕКТРОПРИВРЕДА РЕПУБЛИКЕ СРПСКЕ” СТРУЈА 07/2024 42.22
382 137066-4-0724-4101720 7/31/2024 МХ „ЕЛЕКТРОПРИВРЕДА РЕПУБЛИКЕ СРПСКЕ” СТРУЈА 07/2024 114.29
383 137078-4-0724-4101720 7/31/2024 МХ „ЕЛЕКТРОПРИВРЕДА РЕПУБЛИКЕ СРПСКЕ” СТРУЈА 07/2024 41.55
384 137076-4-0724-4101720 7/31/2024 МХ „ЕЛЕКТРОПРИВРЕДА РЕПУБЛИКЕ СРПСКЕ” СТРУЈА 07/2024 40.45
385 137077-4-0724-4101720 7/31/2024 МХ „ЕЛЕКТРОПРИВРЕДА РЕПУБЛИКЕ СРПСКЕ” СТРУЈА 07/2024 158.45
386 137063-4-0724-4101720 7/31/2024 МХ „ЕЛЕКТРОПРИВРЕДА РЕПУБЛИКЕ СРПСКЕ” СТРУЈА 07/2024 84.22
387 137049-4-0724-4101720 7/31/2024 МХ „ЕЛЕКТРОПРИВРЕДА РЕПУБЛИКЕ СРПСКЕ” СТРУЈА 07/2024 190.91
388 137047-4-0724-4101720 7/31/2024 МХ „ЕЛЕКТРОПРИВРЕДА РЕПУБЛИКЕ СРПСКЕ” СТРУЈА 07/2024 189.24
389 137074-4-0724-4101720 7/31/2024 МХ „ЕЛЕКТРОПРИВРЕДА РЕПУБЛИКЕ СРПСКЕ” СТРУЈА 07/2024 40.09
390 137038-4-0724-4101720 7/31/2024 МХ „ЕЛЕКТРОПРИВРЕДА РЕПУБЛИКЕ СРПСКЕ” СТРУЈА 07/2024 40.31
391 137039-4-0724-4101720 7/31/2024 МХ „ЕЛЕКТРОПРИВРЕДА РЕПУБЛИКЕ СРПСКЕ” СТРУЈА 07/2024 41.16
392 137068-4-0724-4101720 7/31/2024 МХ „ЕЛЕКТРОПРИВРЕДА РЕПУБЛИКЕ СРПСКЕ” СТРУЈА 07/2024 284.08
393 137048-4-0724-4101720 7/31/2024 МХ „ЕЛЕКТРОПРИВРЕДА РЕПУБЛИКЕ СРПСКЕ” СТРУЈА 07/2024 446.19
394 137064-4-0724-4101720 7/31/2024 МХ „ЕЛЕКТРОПРИВРЕДА РЕПУБЛИКЕ СРПСКЕ” СТРУЈА 07/2024 128.31
395 137088-4-0724-4101720 7/31/2024 МХ „ЕЛЕКТРОПРИВРЕДА РЕПУБЛИКЕ СРПСКЕ” СТРУЈА 07/2024 100.78
396 137089-4-0724-4101720 7/31/2024 МХ „ЕЛЕКТРОПРИВРЕДА РЕПУБЛИКЕ СРПСКЕ” СТРУЈА 07/2024 49.48
397 137054-4-0724-4101720 7/31/2024 МХ „ЕЛЕКТРОПРИВРЕДА РЕПУБЛИКЕ СРПСКЕ” СТРУЈА 07/2024 217.12
398 3777626-4-0724-7366408 7/31/2024 МХ „ЕЛЕКТРОПРИВРЕДА РЕПУБЛИКЕ СРПСКЕ” ПЛАТИТИ ПО ФИНАНСИЈСКОЈ КАРТИЦИ 24.49
399 141103-4-0724-4100521 7/31/2024 МХ „ЕЛЕКТРОПРИВРЕДА РЕПУБЛИКЕ СРПСКЕ” РАЧУН ЗА ВИИ 2024. ЗА П. П. БР. 11 У УЛ. К. П. И КАРАЂОРЂЕВИЋА БР. 113 38.22
400 141101-4-0724-4100521 7/31/2024 МХ „ЕЛЕКТРОПРИВРЕДА РЕПУБЛИКЕ СРПСКЕ” РАЧУН ЗА ВИИ 2024. ЗА РАДНИЧКИ УНИВЕРЗИТЕТ 38.22
401 141102-4-0724-4100521 7/31/2024 МХ „ЕЛЕКТРОПРИВРЕДА РЕПУБЛИКЕ СРПСКЕ” РАЧУН ЗА ВИИ 2024. ЗА ЈС „ЦЕНТАР 1” У УЛ. С. ШОЛАЈЕ БР. 1 38.22
402 141100-4-0724-4100521 7/31/2024 МХ „ЕЛЕКТРОПРИВРЕДА РЕПУБЛИКЕ СРПСКЕ” РАЧУН ЗА ВИИ 2024. ЗА П. П. БР. 99 У Б. В. Ж. МИШИЋА БР. 33 93.42
403 133098-4-0724-5100640 7/31/2024 МХ „ЕЛЕКТРОПРИВРЕДА РЕПУБЛИКЕ СРПСКЕ” УТРОШАК ЕЛЕКТРИЧНЕ ЕНЕРГИЈЕ У ПЗ „РАМИЋИ-БАЊА ЛУКА” (УПРАВНА ЗГРАДА) ЗА ЈУЛ 2024. ГОДИНЕ 46.81
404 133174-4-0724-4100335 7/31/2024 МХ „ЕЛЕКТРОПРИВРЕДА РЕПУБЛИКЕ СРПСКЕ” УТРОШАК ЕЛЕКТРИЧНЕ ЕНЕРГИЈЕ У ПЗ „РАМИЋИ-БАЊА ЛУКА” (УПРАВНА ЗГРАДА) ЗА ЈУЛ 2024. ГОДИНЕ 0.00
405 3768649-4-0724-7366510 7/31/2024 МХ „ЕЛЕКТРОПРИВРЕДА РЕПУБЛИКЕ СРПСКЕ” РАЧУН ЗАВИИ 2024. ЗА МЗ ПИСКАВИЦА (БАРАКА) 4.11
406 141385-4-0724-4100521 7/31/2024 МХ „ЕЛЕКТРОПРИВРЕДА РЕПУБЛИКЕ СРПСКЕ” РАЧУН ЗА ВИИ 2024. ЗА МЗ ПИСКАВИЦА (БАРАКА) 38.22
407 141384-4-0724-4100521 7/31/2024 МХ „ЕЛЕКТРОПРИВРЕДА РЕПУБЛИКЕ СРПСКЕ” РАЧУН ЗА ВИИ 2024. ЗА АМБУЛАНТУ У ДОЊИМ КОЛИМА 46.98
408 139542-4-0724-4100521 7/31/2024 МХ „ЕЛЕКТРОПРИВРЕДА РЕПУБЛИКЕ СРПСКЕ” РАЧУН ЗА ВИИ 2024. ЗА МОБИЛНИ ШТАНД У Б. В. Ж. МИШИЋА БР. 57 44.61
409 139540-4-0724-4100521 7/31/2024 МХ „ЕЛЕКТРОПРИВРЕДА РЕПУБЛИКЕ СРПСКЕ” РАЧУН ЗА ВИИ 2024. ЗА МОБИЛНИ ШТАНД У УЛ. Б. ПОПОВИЋА БР. 2 39.37
410 139539-4-0724-4100521 7/31/2024 МХ „ЕЛЕКТРОПРИВРЕДА РЕПУБЛИКЕ СРПСКЕ” РАЧУН ЗА ВИИ 2024. ЗА МОБИЛНИ ШТАНД У УЛ. Д. ВАСИЋА ББ 131.37
411 139541-4-0724-4100521 7/31/2024 МХ „ЕЛЕКТРОПРИВРЕДА РЕПУБЛИКЕ СРПСКЕ” РАЧУН ЗА ВИИ 2024. ЗА МОБИЛНИ ШТАНД У УЛ. Ц. ЛАЗАРА ББ 94.66
412 139543-4-0724-4100521 7/31/2024 МХ „ЕЛЕКТРОПРИВРЕДА РЕПУБЛИКЕ СРПСКЕ” РАЧУН ЗАВИИ 2024. ЗА МОБИЛНИ ШТАНД У УЛ. С. ПРВОВЕНЧАНОГ ББ 62.68
413 141104-4-0724-4100521 7/31/2024 МХ „ЕЛЕКТРОПРИВРЕДА РЕПУБЛИКЕ СРПСКЕ” РАЧУН ЗА ВИИ 2024. ЗА П. П. БР. 1 У МЗ ПЕТРИЋЕВАЦ 38.22
414 3767455-4-0724-7366436 7/31/2024 МХ „ЕЛЕКТРОПРИВРЕДА РЕПУБЛИКЕ СРПСКЕ” РАЧУН ЗА ВИИ 2024. ЗА РАДНИЧКИ УНИВЕРЗИТЕТ 4.75
415 3767454-4-0724-7366436 7/31/2024 МХ „ЕЛЕКТРОПРИВРЕДА РЕПУБЛИКЕ СРПСКЕ” РАЧУН ЗА ВИИ 2024. ЗА ЈС „ПЕЋИНА” 3.00
416 3767453-4-0724-7366436 7/31/2024 МХ „ЕЛЕКТРОПРИВРЕДА РЕПУБЛИКЕ СРПСКЕ” РАЧУН ЗА ВИИ 2024. ЗА П. П. БР. 99 У Б. В. Ж. МИШИЋА БР. 33 3.60
417 3767452-4-0724-7366436 7/31/2024 МХ „ЕЛЕКТРОПРИВРЕДА РЕПУБЛИКЕ СРПСКЕ” РАЧУН ЗА ВИИ 2024. ЗА ЈС У УЛ. СИМЕ МАТАВУЉА БР. 10 3.73
418 3767451-4-0724-7366436 7/31/2024 МХ „ЕЛЕКТРОПРИВРЕДА РЕПУБЛИКЕ СРПСКЕ” РАЧУН ЗА ВИИ 2024. ЗА ЈС „ЦЕНТАР 1” У УЛ. С. ШОЛАЈЕ БР. 1 8.96
419 3767070-4-0724-7366478 7/31/2024 МХ „ЕЛЕКТРОПРИВРЕДА РЕПУБЛИКЕ СРПСКЕ” РАЧУН ЗА ВИИ 2024. ЗА АМБУЛАНТУ У МЗ ПЕТРИЋЕВАЦ 165.50
420 139161-4-0724-4100521 7/31/2024 МХ „ЕЛЕКТРОПРИВРЕДА РЕПУБЛИКЕ СРПСКЕ” РАЧУН ЗА ВИИ 2024. ЗА СТАКЛЕНАЦ - СПРАТ 62.79
421 141099-4-0724-4100521 7/31/2024 МХ „ЕЛЕКТРОПРИВРЕДА РЕПУБЛИКЕ СРПСКЕ” РАЧУН ЗА ВИИ 2024. ЗА П. П. БР. 221 И 222 У УЛ. В. МАСЛЕШЕ 1/11 143.40
422 141105-4-0724-4100521 7/31/2024 МХ „ЕЛЕКТРОПРИВРЕДА РЕПУБЛИКЕ СРПСКЕ” РАЧУН ЗА ВИИ 2024. ЗА МЗ ЦЕНТАР 1 (БРОЈИЛО БРОЈ: 4594517) 38.22
423 141106-4-0724-4100521 7/31/2024 МХ „ЕЛЕКТРОПРИВРЕДА РЕПУБЛИКЕ СРПСКЕ” РАЧУН ЗА ВИИ 2024. ЗА МЗ ЦЕНТАР 1 (БРОЈИЛО БРОЈ: 4396554) 38.22
424 3764129-4-0724-7366501 7/31/2024 МХ „ЕЛЕКТРОПРИВРЕДА РЕПУБЛИКЕ СРПСКЕ” РАЧУН ЗА ВИИ 2024. ЗА П. П. БР. 11 У УЛ. К. П. И КАРАЂОРЂЕВИЋА БР. 113 4.18
425 3764130-4-0724-7366524 7/31/2024 МХ „ЕЛЕКТРОПРИВРЕДА РЕПУБЛИКЕ СРПСКЕ” РАЧУН ЗА ВИИ 2024. ЗА П. П. БР. 4 У УЛ. К. П. И КАРАЂОРЂЕВИЋА БР. 23 10.93
426 3767510-4-0724-7366640 7/31/2024 МХ „ЕЛЕКТРОПРИВРЕДА РЕПУБЛИКЕ СРПСКЕ” ЕЛЕКТРИЧНА ЕНЕРГИЈА 41.96
427 3767511-4-0724-7366640 7/31/2024 МХ „ЕЛЕКТРОПРИВРЕДА РЕПУБЛИКЕ СРПСКЕ” ЕЛЕКТРИЧНА ЕНЕРГИЈА 52.69
428 3764134-4-0724-7366540 7/31/2024 МХ „ЕЛЕКТРОПРИВРЕДА РЕПУБЛИКЕ СРПСКЕ” ЕЛЕКТРИЧНА ЕНЕРГИЈА 131.35
429 3764132-4-0724-7366538 7/31/2024 МХ „ЕЛЕКТРОПРИВРЕДА РЕПУБЛИКЕ СРПСКЕ” ЕЛЕКТРИЧНА ЕНЕРГИЈА 42.01
430 3764272-4-0724-7366524 7/31/2024 МХ „ЕЛЕКТРОПРИВРЕДА РЕПУБЛИКЕ СРПСКЕ” ЕЛЕКТРИЧНА ЕНЕРГИЈА 141.86
431 137111-4-0724-4100521 7/31/2024 МХ „ЕЛЕКТРОПРИВРЕДА РЕПУБЛИКЕ СРПСКЕ” ЕЛЕКТРИЧНА ЕНЕРГИЈА 311.71
432 3764133-4-0724-7366540 7/31/2024 МХ „ЕЛЕКТРОПРИВРЕДА РЕПУБЛИКЕ СРПСКЕ” ЕЛЕКТРИЧНА ЕНЕРГИЈА 170.20
433 3767084-4-0724-7366528 7/31/2024 МХ „ЕЛЕКТРОПРИВРЕДА РЕПУБЛИКЕ СРПСКЕ” УТРОШАК ЕЛЕКТРИЧНЕ ЕНЕРГИЈЕ ЗА РАД ПУМПНЕ СТАНИЦЕ МОТИКЕ 2 42.36
434 3767063-4-0724-7366529 7/31/2024 МХ „ЕЛЕКТРОПРИВРЕДА РЕПУБЛИКЕ СРПСКЕ” УТРОШАК ЕЛЕКТРИЧНЕ ЕНЕРГИЈЕ ЗА РАД ПУМПНЕ СТАНИЦЕ 1 МОТИКЕ 46.89
435 3764270-4-0724-7366523 7/31/2024 МХ „ЕЛЕКТРОПРИВРЕДА РЕПУБЛИКЕ СРПСКЕ” УТРОШАК ЕЛЕКТРИЧНЕ ЕНЕРГИЈЕ ЗА ПУЊАЧ ЕЛ. ВОЗИЛА УЛИЦА ДР М. СТОЈАНОВИЋА 663.22
436 3764291-4-0724-7366471 7/31/2024 МХ „ЕЛЕКТРОПРИВРЕДА РЕПУБЛИКЕ СРПСКЕ” УТРОШАК ЕЛЕКТРИЧНЕ ЕНЕРГИЈА ЗА ПУЊАЧ ЕЛ. ВОЗИЛА УЛИЦА ВИДОВДАНСКА 1,219.07
437 3766884-4-0724-7366465 7/31/2024 МХ „ЕЛЕКТРОПРИВРЕДА РЕПУБЛИКЕ СРПСКЕ” НАПЛАТНА КУЋИЦА КОД МЕДИЦИНСКЕ ЕЛЕКТРОНИКЕ, УЛ. ВУКА КАРАЏИЋА БР. 1 43.96
438 3766178-4-0724-7366452 7/31/2024 МХ „ЕЛЕКТРОПРИВРЕДА РЕПУБЛИКЕ СРПСКЕ” НАПЛАТНА КУЋИЦА ЗА ПАРКИНГ, УЛ. БАНА ДР ТОДОРА ЛАЗАРЕВИЋА ББ 49.17
439 3766177-4-0724-7366452 7/31/2024 МХ „ЕЛЕКТРОПРИВРЕДА РЕПУБЛИКЕ СРПСКЕ” ПАРКИНГ КУЋИЦА, УЛИЦА МЛАДЕНА СТОЈАНОВИЋА БР. 123 68.44
440 3766176-4-0724-7366452 7/31/2024 МХ „ЕЛЕКТРОПРИВРЕДА РЕПУБЛИКЕ СРПСКЕ” КУЋИЦА ЗА НАПЛАТУ ПАРКИНГА КОД КАСТЕЛА ,УЛИЦА ТРЖНИЧКА ББ 42.13
441 3766175-4-0724-7366452 7/31/2024 МХ „ЕЛЕКТРОПРИВРЕДА РЕПУБЛИКЕ СРПСКЕ” ПАРКИНГ КУЋИЦА НА ПАРКИНГУ ПОРЕД ХОТЕЛА ПАЛАС, КРАЉА ПЕТРА И КАРАЂОРЂЕВИЋА 58 72.74
442 3766174-4-0724-7366452 7/31/2024 МХ „ЕЛЕКТРОПРИВРЕДА РЕПУБЛИКЕ СРПСКЕ” НАПЛАТНА КУЋИЦА, КРАЉА ПЕТРА И КАРАЂОРЂЕВИЋА 74А 41.96
443 3766173-4-0724-7366452 7/31/2024 МХ „ЕЛЕКТРОПРИВРЕДА РЕПУБЛИКЕ СРПСКЕ” ПАРКИНГ ВОЗИЛА - ПАУК СЛУЖБА БИТОЉСКА 161.72
444 132994-4-0724-4101605 7/31/2024 МХ „ЕЛЕКТРОПРИВРЕДА РЕПУБЛИКЕ СРПСКЕ” ЕЛЕКТРИЧНА ЕНЕРГИЈА 505.86
445 126152-4-0724-4101605 7/31/2024 МХ „ЕЛЕКТРОПРИВРЕДА РЕПУБЛИКЕ СРПСКЕ” НАПЛАТНА ПАРКИНГ КУЋИЦА ВИДОВДАНСКА 5.85
446 92921-4-0524-4101720 5/31/2024 МХ „ЕЛЕКТРОПРИВРЕДА РЕПУБЛИКЕ СРПСКЕ” СТРУЈА 05/24 56.60
447 2524397-4-0524-7366478 5/31/2024 МХ „ЕЛЕКТРОПРИВРЕДА РЕПУБЛИКЕ СРПСКЕ” РАЧУН ЗА В 2024. ЗА АМБУЛАНТУ У МЗ ПЕТРИЋЕВАЦ 98.27
448 2521351-4-0524-7366524 5/31/2024 МХ „ЕЛЕКТРОПРИВРЕДА РЕПУБЛИКЕ СРПСКЕ” РАЧУН ЗА В 2024. ЗА АМБУЛАНТУ ДОЊА КОЛА 105.84
449 3145631-4-0624-7366471 6/30/2024 МХ „ЕЛЕКТРОПРИВРЕДА РЕПУБЛИКЕ СРПСКЕ” УТРОШАК ЕЛЕКТРИЧНЕ ЕНЕРГИЈА ЗА ПУЊАЧ ЕЛ. ВОЗИЛА УЛИЦА ВИДОВДАНСКА 1,055.27
450 3145609-4-0624-7366523 6/30/2024 МХ „ЕЛЕКТРОПРИВРЕДА РЕПУБЛИКЕ СРПСКЕ” УТРОШАК ЕЛЕКТРИЧНЕ ЕНЕРГИЈЕ ЗА ПУЊАЧ ЕЛЕКТРИЧНИХ ВОЗИЛА УЛИЦА ДР М. СТОЈАНОВИЋА 690.24
451 рекапитулација 6/30/2024 МХ „ЕЛЕКТРОПРИВРЕДА РЕПУБЛИКЕ СРПСКЕ” СПЕЦИФИКАЦИЈА 40 РАЧУНА ЗА УТРОШАК ЕЛ. ЕНЕРГИЈА ЗА РАД СЕМАФОРА 1,753.80
452 1897839-4-0424-7366436 4/30/2024 МХ „ЕЛЕКТРОПРИВРЕДА РЕПУБЛИКЕ СРПСКЕ” РАЧУН ЗА ИВ 2024. ЗА ЈАВНО СКЛОНИШТЕ „ЦЕНТАР 1” У УЛ. СИМЕ ШОЛАЈЕ БР. 1 251.46
453 75531-4-0424-5100640 4/30/2024 МХ „ЕЛЕКТРОПРИВРЕДА РЕПУБЛИКЕ СРПСКЕ” УТРОШАК ЕЛЕКТРИЧНЕ ЕНЕРГИЈЕ У ПЗ „РАМИЋИ-БАЊА ЛУКА” (УПРАВНА ЗГРАДА) ЗА АПРИЛ 2024. ГОДИНЕ 570.29
454 80759-4-0424-5100779 4/30/2024 МХ „ЕЛЕКТРОПРИВРЕДА РЕПУБЛИКЕ СРПСКЕ” ПП У ПАРКУ ПЕТАР КОЧИЋ 248.66
455 1894444-4-0424-7366524 4/30/2024 МХ „ЕЛЕКТРОПРИВРЕДА РЕПУБЛИКЕ СРПСКЕ” РАЧУН ЗА ИВ 2024. ЗА АМБУЛАНТУ У ДОЊИМ КОЛИМА 52.97
456 рекапитулација 8/31/2024 МХ „ЕЛЕКТРОПРИВРЕДА РЕПУБЛИКЕ СРПСКЕ” ЕЛЕКТРИЧНА ЕНЕРГИЈА ЗА ЈР 180,446.77
457 1467027-4-0621-7366512 6/30/2021 МХ „ЕЛЕКТРОПРИВРЕДА РЕПУБЛИКЕ СРПСКЕ” СТРУЈА 06/2021 31.47
458 3007800-4-0921-7366518 9/30/2021 МХ „ЕЛЕКТРОПРИВРЕДА РЕПУБЛИКЕ СРПСКЕ” СТРУЈА 09/2021 21.74
459 4046592-4-0724-7747610 7/31/2024 МХ „ЕЛЕКТРОПРИВРЕДА РЕПУБЛИКЕ СРПСКЕ” РАЧУН ЗА ВИИ 2024. ЗА ЗАЈЕДНИЧКУ ПОТРОШЊУ У ЛАМЕЛИ 2 У УЛ. ПАЛИХ БОРАЦА БР. 37 59.06
460 3460536-4-0624-7747610 6/30/2024 МХ „ЕЛЕКТРОПРИВРЕДА РЕПУБЛИКЕ СРПСКЕ” РАЧУН ЗА ВИ 2024. ЗА ЗАЈЕДНИЧКУ ПОТРОШЊУ У ЛАМЕЛИ 2 У УЛ. ПАЛИХ БОРАЦА БР. 37 51.98
461 2774131-4-0524-7747610 5/31/2024 МХ „ЕЛЕКТРОПРИВРЕДА РЕПУБЛИКЕ СРПСКЕ” РАЧУН ЗА В 2024. ЗА ЗАЈЕДНИЧКУ ПОТРОШЊУ У ЛАМЕЛИ 2 У УЛ. ПАЛИХ БОРАЦА БР. 37 54.56
462 2252072-4-0424-7747610 4/30/2024 МХ „ЕЛЕКТРОПРИВРЕДА РЕПУБЛИКЕ СРПСКЕ” РАЧУН ЗА ИВ 2024. ЗА ЗАЈЕДНИЧКУ ПОТРОШЊУ У ЛАМЕЛИ 2 У УЛ. ПАЛИХ БОРАЦА БР. 37 48.52
463 159427-4-0824-4101720 8/31/2024 МХ „ЕЛЕКТРОПРИВРЕДА РЕПУБЛИКЕ СРПСКЕ” СТРУЈА 08/2024 108.16
464 159401-4-0824-4101720 8/31/2024 МХ „ЕЛЕКТРОПРИВРЕДА РЕПУБЛИКЕ СРПСКЕ” СТРУЈА 08/2024 73.62
465 160024-4-0824-4101379 8/31/2024 МХ „ЕЛЕКТРОПРИВРЕДА РЕПУБЛИКЕ СРПСКЕ” СТРУЈА 08/2024 9,904.19
466 160339-4-0824-4101660 8/31/2024 МХ „ЕЛЕКТРОПРИВРЕДА РЕПУБЛИКЕ СРПСКЕ” СТРУЈА 08/2024 2,240.73
467 159403-4-0824-4101720 8/31/2024 МХ „ЕЛЕКТРОПРИВРЕДА РЕПУБЛИКЕ СРПСКЕ” СТРУЈА 08/2024 46.01
468 160023-4-0824-4101374 8/31/2024 МХ „ЕЛЕКТРОПРИВРЕДА РЕПУБЛИКЕ СРПСКЕ” СТРУЈА 08/2024 9,000.27
469 159402-4-0824-4101720 8/31/2024 МХ „ЕЛЕКТРОПРИВРЕДА РЕПУБЛИКЕ СРПСКЕ” СТРУЈА 08/2024 58.93
470 162611-4-0824-4101720 8/31/2024 МХ „ЕЛЕКТРОПРИВРЕДА РЕПУБЛИКЕ СРПСКЕ” СТРУЈА 08/2024 1,531.08
471 159393-4-0824-4101720 8/31/2024 МХ „ЕЛЕКТРОПРИВРЕДА РЕПУБЛИКЕ СРПСКЕ” СТРУЈА 08/2024 78.01
472 159397-4-0824-4101720 8/31/2024 МХ „ЕЛЕКТРОПРИВРЕДА РЕПУБЛИКЕ СРПСКЕ” СТРУЈА 08/2024 51.55
473 159404-4-0824-4101720 8/31/2024 МХ „ЕЛЕКТРОПРИВРЕДА РЕПУБЛИКЕ СРПСКЕ” СТРУЈА 08/2024 65.79
474 159443-4-0824-4101720 8/31/2024 МХ „ЕЛЕКТРОПРИВРЕДА РЕПУБЛИКЕ СРПСКЕ” СТРУЈА 08/2024 41.78
475 159391-4-0824-4101720 8/31/2024 МХ „ЕЛЕКТРОПРИВРЕДА РЕПУБЛИКЕ СРПСКЕ” СТРУЈА 08/2024 52.17
476 159415-4-0824-4101720 8/31/2024 МХ „ЕЛЕКТРОПРИВРЕДА РЕПУБЛИКЕ СРПСКЕ” СТРУЈА 08/2024 243.05
477 159392-4-0824-4101720 8/31/2024 МХ „ЕЛЕКТРОПРИВРЕДА РЕПУБЛИКЕ СРПСКЕ” СТРУЈА 08/2024 40.15
478 159394-4-0824-4101720 8/31/2024 МХ „ЕЛЕКТРОПРИВРЕДА РЕПУБЛИКЕ СРПСКЕ” СТРУЈА 08/2024 55.65
479 159414-4-0824-4101720 8/31/2024 МХ „ЕЛЕКТРОПРИВРЕДА РЕПУБЛИКЕ СРПСКЕ” СТРУЈА 08/2024 40.09
480 159395-4-0824-4101720 8/31/2024 МХ „ЕЛЕКТРОПРИВРЕДА РЕПУБЛИКЕ СРПСКЕ” СТРУЈА 08/2024 86.27
481 159413-4-0824-4101720 8/31/2024 МХ „ЕЛЕКТРОПРИВРЕДА РЕПУБЛИКЕ СРПСКЕ” СТРУЈА 08/2024 43.85
482 159405-4-0824-4101720 8/31/2024 МХ „ЕЛЕКТРОПРИВРЕДА РЕПУБЛИКЕ СРПСКЕ” СТРУЈА 08/2024 749.25
483 159412-4-0824-4101720 8/31/2024 МХ „ЕЛЕКТРОПРИВРЕДА РЕПУБЛИКЕ СРПСКЕ” СТРУЈА 08/2024 40.23
484 159431-4-0824-4101720 8/31/2024 МХ „ЕЛЕКТРОПРИВРЕДА РЕПУБЛИКЕ СРПСКЕ” СТРУЈА 08/2024 54.95
485 159411-4-0824-4101720 8/31/2024 МХ „ЕЛЕКТРОПРИВРЕДА РЕПУБЛИКЕ СРПСКЕ” СТРУЈА 08/2024 49.17
486 159396-4-0824-4101720 8/31/2024 МХ „ЕЛЕКТРОПРИВРЕДА РЕПУБЛИКЕ СРПСКЕ” СТРУЈА 08/2024 42.58
487 159422-4-0824-4101720 8/31/2024 МХ „ЕЛЕКТРОПРИВРЕДА РЕПУБЛИКЕ СРПСКЕ” СТРУЈА 08/2024 76.87
488 159439-4-0824-4101720 8/31/2024 МХ „ЕЛЕКТРОПРИВРЕДА РЕПУБЛИКЕ СРПСКЕ” СТРУЈА 08/2024 47.95
489 159421-4-0824-4101720 8/31/2024 МХ „ЕЛЕКТРОПРИВРЕДА РЕПУБЛИКЕ СРПСКЕ” СТРУЈА 08/2024 44.30
490 159406-4-0824-4101720 8/31/2024 МХ „ЕЛЕКТРОПРИВРЕДА РЕПУБЛИКЕ СРПСКЕ” СТРУЈА 08/2024 83.87
491 159420-4-0824-4101720 8/31/2024 МХ „ЕЛЕКТРОПРИВРЕДА РЕПУБЛИКЕ СРПСКЕ” СТРУЈА 08/2024 82.68
492 159434-4-0824-4101720 8/31/2024 МХ „ЕЛЕКТРОПРИВРЕДА РЕПУБЛИКЕ СРПСКЕ” СТРУЈА 08/2024 79.47
493 159419-4-0824-4101720 8/31/2024 МХ „ЕЛЕКТРОПРИВРЕДА РЕПУБЛИКЕ СРПСКЕ” СТРУЈА 08/2024 50.63
494 159423-4-0824-4101720 8/31/2024 МХ „ЕЛЕКТРОПРИВРЕДА РЕПУБЛИКЕ СРПСКЕ” СТРУЈА 08/2024 116.21
495 159417-4-0824-4101720 8/31/2024 МХ „ЕЛЕКТРОПРИВРЕДА РЕПУБЛИКЕ СРПСКЕ” СТРУЈА 08/2024 60.83
496 159407-4-0824-4101720 8/31/2024 МХ „ЕЛЕКТРОПРИВРЕДА РЕПУБЛИКЕ СРПСКЕ” СТРУЈА 08/2024 119.16
497 159418-4-0824-4101720 8/31/2024 МХ „ЕЛЕКТРОПРИВРЕДА РЕПУБЛИКЕ СРПСКЕ” СТРУЈА 08/2024 75.90
498 159437-4-0824-4101720 8/31/2024 МХ „ЕЛЕКТРОПРИВРЕДА РЕПУБЛИКЕ СРПСКЕ” СТРУЈА 08/2024 40.81
499 159416-4-0824-4101720 8/31/2024 МХ „ЕЛЕКТРОПРИВРЕДА РЕПУБЛИКЕ СРПСКЕ” СТРУЈА 08/2024 80.71
500 159398-4-0824-4101720 8/31/2024 МХ „ЕЛЕКТРОПРИВРЕДА РЕПУБЛИКЕ СРПСКЕ” СТРУЈА 08/2024 57.86
501 159452-4-0824-4101720 8/31/2024 МХ „ЕЛЕКТРОПРИВРЕДА РЕПУБЛИКЕ СРПСКЕ” СТРУЈА 08/2024 42.92
502 159433-4-0824-4101720 8/31/2024 МХ „ЕЛЕКТРОПРИВРЕДА РЕПУБЛИКЕ СРПСКЕ” СТРУЈА 08/2024 54.17
503 159424-4-0824-4101720 8/31/2024 МХ „ЕЛЕКТРОПРИВРЕДА РЕПУБЛИКЕ СРПСКЕ” СТРУЈА 08/2024 80.74
504 159454-4-0824-4101720 8/31/2024 МХ „ЕЛЕКТРОПРИВРЕДА РЕПУБЛИКЕ СРПСКЕ” СТРУЈА 08/2024 66.05
505 159408-4-0824-4101720 8/31/2024 МХ „ЕЛЕКТРОПРИВРЕДА РЕПУБЛИКЕ СРПСКЕ” СТРУЈА 08/2024 226.53
506 159435-4-0824-4101720 8/31/2024 МХ „ЕЛЕКТРОПРИВРЕДА РЕПУБЛИКЕ СРПСКЕ” СТРУЈА 08/2024 40.45
507 159456-4-0824-4101720 8/31/2024 МХ „ЕЛЕКТРОПРИВРЕДА РЕПУБЛИКЕ СРПСКЕ” СТРУЈА 08/2024 40.45
508 159453-4-0824-4101720 8/31/2024 МХ „ЕЛЕКТРОПРИВРЕДА РЕПУБЛИКЕ СРПСКЕ” СТРУЈА 08/2024 52.17
509 159399-4-0824-4101720 8/31/2024 МХ „ЕЛЕКТРОПРИВРЕДА РЕПУБЛИКЕ СРПСКЕ” СТРУЈА 08/2024 40.67
510 159400-4-0824-4101720 8/31/2024 МХ „ЕЛЕКТРОПРИВРЕДА РЕПУБЛИКЕ СРПСКЕ” СТРУЈА 08/2024 63.18
511 159430-4-0824-4101720 8/31/2024 МХ „ЕЛЕКТРОПРИВРЕДА РЕПУБЛИКЕ СРПСКЕ” СТРУЈА 08/2024 82.74
512 159429-4-0824-4101720 8/31/2024 МХ „ЕЛЕКТРОПРИВРЕДА РЕПУБЛИКЕ СРПСКЕ” СТРУЈА 08/2024 264.84
513 159455-4-0824-4101720 8/31/2024 МХ „ЕЛЕКТРОПРИВРЕДА РЕПУБЛИКЕ СРПСКЕ” СТРУЈА 08/2024 58.45
514 159409-4-0824-4101720 8/31/2024 МХ „ЕЛЕКТРОПРИВРЕДА РЕПУБЛИКЕ СРПСКЕ” СТРУЈА 08/2024 335.24
515 159426-4-0824-4101720 8/31/2024 МХ „ЕЛЕКТРОПРИВРЕДА РЕПУБЛИКЕ СРПСКЕ” СТРУЈА 08/2024 43.70
516 159460-4-0824-4101720 8/31/2024 МХ „ЕЛЕКТРОПРИВРЕДА РЕПУБЛИКЕ СРПСКЕ” СТРУЈА 08/2024 49.08
517 159457-4-0824-4101720 8/31/2024 МХ „ЕЛЕКТРОПРИВРЕДА РЕПУБЛИКЕ СРПСКЕ” СТРУЈА 08/2024 58.44
518 159444-4-0824-4101720 8/31/2024 МХ „ЕЛЕКТРОПРИВРЕДА РЕПУБЛИКЕ СРПСКЕ” СТРУЈА 08/2024 615.78
519 159459-4-0824-4101720 8/31/2024 МХ „ЕЛЕКТРОПРИВРЕДА РЕПУБЛИКЕ СРПСКЕ” СТРУЈА 08/2024 60.37
520 159436-4-0824-4101720 8/31/2024 МХ „ЕЛЕКТРОПРИВРЕДА РЕПУБЛИКЕ СРПСКЕ” СТРУЈА 08/2024 43.24
521 159462-4-0824-4101720 8/31/2024 МХ „ЕЛЕКТРОПРИВРЕДА РЕПУБЛИКЕ СРПСКЕ” СТРУЈА 08/2024 165.53
522 159446-4-0824-4101720 8/31/2024 МХ „ЕЛЕКТРОПРИВРЕДА РЕПУБЛИКЕ СРПСКЕ” СТРУЈА 08/2024 40.09
523 159461-4-0824-4101720 8/31/2024 МХ „ЕЛЕКТРОПРИВРЕДА РЕПУБЛИКЕ СРПСКЕ” СТРУЈА 08/2024 53.37
524 159432-4-0824-4101720 8/31/2024 МХ „ЕЛЕКТРОПРИВРЕДА РЕПУБЛИКЕ СРПСКЕ” СТРУЈА 08/2024 40.45
525 159451-4-0824-4101720 8/31/2024 МХ „ЕЛЕКТРОПРИВРЕДА РЕПУБЛИКЕ СРПСКЕ” СТРУЈА 08/2024 145.35
526 159428-4-0824-4101720 8/31/2024 МХ „ЕЛЕКТРОПРИВРЕДА РЕПУБЛИКЕ СРПСКЕ” СТРУЈА 08/2024 39.73
527 159448-4-0824-4101720 8/31/2024 МХ „ЕЛЕКТРОПРИВРЕДА РЕПУБЛИКЕ СРПСКЕ” СТРУЈА 08/2024 44.79
528 159441-4-0824-4101720 8/31/2024 МХ „ЕЛЕКТРОПРИВРЕДА РЕПУБЛИКЕ СРПСКЕ” СТРУЈА 08/2024 127.66
529 159450-4-0824-4101720 8/31/2024 МХ „ЕЛЕКТРОПРИВРЕДА РЕПУБЛИКЕ СРПСКЕ” СТРУЈА 08/2024 49.52
530 159425-4-0824-4101720 8/31/2024 МХ „ЕЛЕКТРОПРИВРЕДА РЕПУБЛИКЕ СРПСКЕ” СТРУЈА 08/2024 135.49
531 159449-4-0824-4101720 8/31/2024 МХ „ЕЛЕКТРОПРИВРЕДА РЕПУБЛИКЕ СРПСКЕ” СТРУЈА 08/2024 96.10
532 159410-4-0824-4101720 8/31/2024 МХ „ЕЛЕКТРОПРИВРЕДА РЕПУБЛИКЕ СРПСКЕ” СТРУЈА 08/2024 178.63
533 159447-4-0824-4101720 8/31/2024 МХ „ЕЛЕКТРОПРИВРЕДА РЕПУБЛИКЕ СРПСКЕ” СТРУЈА 08/2024 40.45
534 159438-4-0824-4101720 8/31/2024 МХ „ЕЛЕКТРОПРИВРЕДА РЕПУБЛИКЕ СРПСКЕ” СТРУЈА 08/2024 197.34
535 159445-4-0824-4101720 8/31/2024 МХ „ЕЛЕКТРОПРИВРЕДА РЕПУБЛИКЕ СРПСКЕ” СТРУЈА 08/2024 673.90
536 159440-4-0824-4101720 8/31/2024 МХ „ЕЛЕКТРОПРИВРЕДА РЕПУБЛИКЕ СРПСКЕ” СТРУЈА 08/2024 48.27
537 159442-4-0824-4101720 8/31/2024 МХ „ЕЛЕКТРОПРИВРЕДА РЕПУБЛИКЕ СРПСКЕ” СТРУЈА 08/2024 134.05
538 4386147-4-0824-7366415 8/31/2024 МХ „ЕЛЕКТРОПРИВРЕДА РЕПУБЛИКЕ СРПСКЕ” СТРУЈА 08/2024 65.86
539 155400-4-0824-4101605 8/31/2024 МХ „ЕЛЕКТРОПРИВРЕДА РЕПУБЛИКЕ СРПСКЕ” УТРОШАК ЕЛЕКТРИЧНЕ ЕНЕРГИЈЕ ЗА ОДЈЕЉЕЊЕ САОБРАЋАЈ И ПУТЕВЕ 530.54
540 155573-4-0824-4100335 8/31/2024 МХ „ЕЛЕКТРОПРИВРЕДА РЕПУБЛИКЕ СРПСКЕ” УТРОШАК ЕЛЕКТРИЧНЕ ЕНЕРГИЈЕ У ПЗ „РАМИЋИ-БАЊА ЛУКА” (ХАЛА) ЗА АВГУСТ 2024. ГОДИНЕ 0.00
541 155502-4-0824-5100640 8/31/2024 МХ „ЕЛЕКТРОПРИВРЕДА РЕПУБЛИКЕ СРПСКЕ” УТРОШАК ЕЛЕКТРИЧНЕ ЕНЕРГИЈЕ У ПЗ „РАМИЋИ-БАЊА ЛУКА” (УПРАВНА ЗГРАДА) ЗА АВГУСТ 2024. ГОДИНЕ 165.56
542 4386214-4-0824-7366452 8/31/2024 МХ „ЕЛЕКТРОПРИВРЕДА РЕПУБЛИКЕ СРПСКЕ” УТРОШАК ЕЛЕКТРИЧНЕ ЕНЕРГИЈЕ ЗА ПАРКИНГ ВОЗИЛА У БИТОЉСКОЈ УЛИЦИ 165.37
543 4386219-4-0824-7366452 8/31/2024 МХ „ЕЛЕКТРОПРИВРЕДА РЕПУБЛИКЕ СРПСКЕ” УТРОШАК ЕЛЕКТРИЧНЕ ЕНЕРГИЈЕ ЗА НАПЛАТНУ КУЋИЦУ У БАНА ДР ТОДОРА ЛАЗАРЕВИЋА ББ 52.20
544 4386218-4-0824-7366452 8/31/2024 МХ „ЕЛЕКТРОПРИВРЕДА РЕПУБЛИКЕ СРПСКЕ” УТРОШАК ЕЛЕКТРИЧНЕ ЕНЕРГИЈЕ ЗА ПАРКИНГ КУЋИЦУ У УЛИЦИ МЛАДЕНА СТОЈАНОВИЋА 123 74.74
545 4386217-4-0824-7366452 8/31/2024 МХ „ЕЛЕКТРОПРИВРЕДА РЕПУБЛИКЕ СРПСКЕ” УТРОШАК ЕЛЕКТРИЧНЕ ЕНЕРГИЈЕ ЗА НАПЛАТНУ КУЋИЦУ ПАРКИНГА КОД КАСТЕЛА 42.11
546 4386216-4-0824-7366452 8/31/2024 МХ „ЕЛЕКТРОПРИВРЕДА РЕПУБЛИКЕ СРПСКЕ” УТРОШАК ЕЛЕКТРИЧНЕ ЕНЕРГИЈЕ ЗА ПАРКИНГ КУЋИЦЕ ПОРЕД ХОТЕЛА БОСНА 73.37
547 4386215-4-0824-7366452 8/31/2024 МХ „ЕЛЕКТРОПРИВРЕДА РЕПУБЛИКЕ СРПСКЕ” УТРОШАК ЕЛЕКТРИЧНЕ ЕНЕРГИЈЕ ЗА ПАРКИНГ КУЋИЦУ 42.19
548 163429-4-0824-4100521 8/31/2024 МХ „ЕЛЕКТРОПРИВРЕДА РЕПУБЛИКЕ СРПСКЕ” РАЧУН ЗА ВИИИ 2024. ЗА П. П. БР. 11 У УЛ. К. П. И КАРАЂОРЂЕВИЋА БР. 113 38.29
549 163430-4-0824-4100521 8/31/2024 МХ „ЕЛЕКТРОПРИВРЕДА РЕПУБЛИКЕ СРПСКЕ” РАЧУН ЗА ВИИИ 2024. ЗА П. П. БР. 1 У МЗ ПЕТРИЋЕВАЦ 38.29
550 161878-4-0824-4100521 8/31/2024 МХ „ЕЛЕКТРОПРИВРЕДА РЕПУБЛИКЕ СРПСКЕ” РАЧУН ЗА ВИИИ 2024. ЗА МОБИЛНИ ШТАНД У УЛ. С. ПРВОВЕНЧАНОГ ББ 60.64
551 161502-4-0824-4100521 8/31/2024 МХ „ЕЛЕКТРОПРИВРЕДА РЕПУБЛИКЕ СРПСКЕ” РАЧУН ЗА ВИИИ 2024. ЗА СТАКЛЕНАЦ - СПРАТ 61.21
552 161877-4-0824-4100521 8/31/2024 МХ „ЕЛЕКТРОПРИВРЕДА РЕПУБЛИКЕ СРПСКЕ” РАЧУН ЗА ВИИИ 2024. ЗА МОБИЛНИ ШТАНД У Б. В. Ж. МИШИЋА БР. 57 185.48
553 161875-4-0824-4100521 8/31/2024 МХ „ЕЛЕКТРОПРИВРЕДА РЕПУБЛИКЕ СРПСКЕ” РАЧУН ЗА ВИИИ 2024. ЗА МОБИЛНИ ШТАНД У УЛ. Б. ПОПОВИЋА БР. 2 39.25
554 161874-4-0824-4100521 8/31/2024 МХ „ЕЛЕКТРОПРИВРЕДА РЕПУБЛИКЕ СРПСКЕ” РАЧУН ЗА ВИИИ 2024. ЗА МОБИЛНИ ШТАНД У УЛ. Д. ВАСИЋА ББ 131.50
555 161876-4-0824-4100521 8/31/2024 МХ „ЕЛЕКТРОПРИВРЕДА РЕПУБЛИКЕ СРПСКЕ” РАЧУН ЗА ВИИИ 2024. ЗА МОБИЛНИ ШТАНД У УЛ. Ц. ЛАЗАРА ББ 119.26
556 4386909 8/31/2024 МХ „ЕЛЕКТРОПРИВРЕДА РЕПУБЛИКЕ СРПСКЕ” УТРОШАК ЕЛЕКТРИЧНЕ ЕНЕРГИЈЕ У НАПЛАТНОЈ КУЋИЦИ КОД МЕДИЦИНСКЕ ЕЛЕКТРОНИКЕ 44.71
557 159606-4-0824-4101301 8/31/2024 МХ „ЕЛЕКТРОПРИВРЕДА РЕПУБЛИКЕ СРПСКЕ” УТРОШАК ЕЛЕКТРИЧНЕ ЕНЕРГИЈЕ ЗА ГРАД БАЊАЛУКА - АДМИНИСТРАТИВНА СЛУЖБА 723.22
558 33 6/30/2024 „СИЕКОМ” д.о.о. ОДРЖАВАЊЕ ТЕЛЕФОНСКОГ СИСТЕМА ГУБЛ ЗА ПЕРИОД 05. 06 - 04. 07. 2024. (10. РАТА ОД 12) 585.00
559 23-340-000238 12/22/2023  „АУТОЦЕНТАР МЕРКУР” д.о.о. БАЊА ЛУКА МОНТАЖА И БАЛАНС ГУМА К15-Е-952 737.10
560 23-339-002647 11/14/2023  „АУТОЦЕНТАР МЕРКУР” д.о.о. БАЊА ЛУКА МОНТАЖА И БАЛАНС ГУМА М57-А-851 1,287.00
561 24-339-000938 6/20/2024  „АУТОЦЕНТАР МЕРКУР” д.о.о. БАЊА ЛУКА МОНТАЖА И БАЛАНС ГУМА О69-М-672 1,427.40
562 ФУ-72-0/24 6/12/2024 „ЦЕНТРОНИКС” д.о.о. БАЊА ЛУКА ОДРЖАВАЊЕ МОБИЛНИХ РАДИО СТАНИЦА 351.00
563 ИФ-00121-1-24 7/31/2024 „ВАЛЕК КОМЕРЦ” д.о.о. ТЕКУЋЕ ОДРЖАВАЊЕ ФОНТАНА 42,432.39
564 24-360-002242 8/12/2024 „ЕКО БЕЛ” д.о.о. ЛАКТАШИ ДЕЗИНСЕКЦИЈА 7,020.00
565 24-360-002191 7/31/2024 „ЕКО БЕЛ” д.о.о. ЛАКТАШИ ДЕВИПЕРИЗАЦИЈА 1,949.92
566 24-360-002439 9/9/2024 „ЕКО БЕЛ” д.о.о. ЛАКТАШИ ДЕЗИНСЕКЦИЈА КОМАРАЦА 38,785.50
567 223/24 БФ 3605 8/2/2024  „ЛУКАЈИЋ-ТРАВЕЛ&ТРАНСПОРТ АГЕНЦY” ФАКТУРА БРОЈ 223/24 ;БФ:3605 10,426.62
568 209/24 БФ 3589 7/15/2024  „ЛУКАЈИЋ-ТРАВЕЛ&ТРАНСПОРТ АГЕНЦY” УСЛУГА ПРЕВОЗА ПУТНИКА НА РЕЛАЦИЈИ БАЊА ЛУКА-КОЗАРА-БАЊА ЛУКА 4,319.64
569 113/24 5/23/2024  „ЛУКАЈИЋ-ТРАВЕЛ&ТРАНСПОРТ АГЕНЦY” УСЛУГА ПРЕВОЗА ПУТНИКА НА РЕЛАЦИЈИ БАЊА ЛУКА-ДОЊА ГРАДИНА-БАЊА ЛУКА 7,850.70
570 114/24 5/27/2024  „ЛУКАЈИЋ-ТРАВЕЛ&ТРАНСПОРТ АГЕНЦY” УСЛУГА ПРЕВОЗА ПУТНИКА НА РЕЛАЦИЈИ БАЊА ЛУКА-ПИСКАВИЦА-БАЊА ЛУКА 1,864.51
571 216/24 6/24/2024 „ПЛАН” д.о.о. РЕВИЗИЈА ПРОЈЕКТНЕ ДОКУМЕНТАЦИЈЕ 72.86
572 269/24 7/25/2024 „ПЛАН” д.о.о. ТЕХНИЧКИ ПРЕГЛЕД ОБЈЕКТА ИЗВЕДЕНИХ РАДОВА НА ИЗГРАЂЕНИМ ГАРАЖАМА 1,2 И 3 У УЛ. Г. Р. БИМБЕ БР. 1/3 585.00
573 653/2023 11/27/2023 „БОЧАЦ ТУРС” д.о.о. БАЊА ЛУКА СУБВЕНЦИЈА ЗА ЈАВНИ ПРЕВОЗ 11/23 27,821.41
574 619/2023 11/8/2023 „БОЧАЦ ТУРС” д.о.о. БАЊА ЛУКА СУБВЕНЦИЈА ЗА ЈАВНИ ПРЕВОЗ 10/23 27,821.41
575 586/23 10/19/2023 „БОЧАЦ ТУРС” д.о.о. БАЊА ЛУКА СУБВЕНЦИЈА ЗА ЈАВНИ ПРЕВОЗ 10/23 27,536.70
576 647/23 11/14/2023 „БОЧАЦ ТУРС” д.о.о. БАЊА ЛУКА СУБВЕНЦИЈА ЗА ЈАВНИ ПРЕВОЗ 11/23 27,029.80
577 649/23 11/14/2023 „БОЧАЦ ТУРС” д.о.о. БАЊА ЛУКА СУБВЕНЦИЈА ЗА ЈАВНИ ПРЕВОЗ 11/23 21,780.16
578 705/2023 12/13/2023 „БОЧАЦ ТУРС” д.о.о. БАЊА ЛУКА СУБВЕНЦИЈА ЗА ЈАВНИ ПРЕВОЗ 21,290.10
579 706/23 12/13/2023 „БОЧАЦ ТУРС” д.о.о. БАЊА ЛУКА СУБВЕНЦИЈА ЗА ЈАВНИ ПРЕВОЗ 21,625.85
580 707/2023 12/13/2023 „БОЧАЦ ТУРС” д.о.о. БАЊА ЛУКА СУБВЕНЦИЈА ЗА ЈАВНИ ПРЕВОЗ 27,821.41
581 704/23 12/13/2023 „БОЧАЦ ТУРС” д.о.о. БАЊА ЛУКА СУБВЕНЦИЈА ЗА ЈАВНИ ПРЕВОЗ 27,097.70
582 455/2024 9/3/2024 „БОЧАЦ ТУРС” д.о.о. БАЊА ЛУКА СУБВЕНЦИЈЕ 21,036.64
583 454/2024 9/3/2024 „БОЧАЦ ТУРС” д.о.о. БАЊА ЛУКА СУБВЕНЦИЈЕ 19,747.45
584 453/2024 9/3/2024 „БОЧАЦ ТУРС” д.о.о. БАЊА ЛУКА СУБВЕНЦИЈЕ 117,775.93
585 516/24 9/13/2024 „БОЧАЦ ТУРС” д.о.о. БАЊА ЛУКА РАЗЛИКА ОД ЦИЈЕНЕ КАРАТА 5,739.33
586 515/24 9/13/2024 „БОЧАЦ ТУРС” д.о.о. БАЊА ЛУКА РАЗЛИКА ОД ЦИЈЕНЕ КАРТЕ 20,024.00
587 84/24 9/17/2024 „ЖАК ТУРС” д.о.о. БАЊА ЛУКА РАЗЛИКА ОД ЦИЈЕНЕ КАРАТА ПО УГОВОРУ 943.40
588 76/23 11/16/2023 „ЖАК ТУРС” д.о.о. БАЊА ЛУКА СУБВЕНЦИЈА ЗА ЈАВНИ ПРЕВОЗ 11/23 1,834.40
589 77/23 11/27/2023 „ЖАК ТУРС” д.о.о. БАЊА ЛУКА СУБВЕНЦИЈА ЗА ЈАВНИ ПРЕВОЗ 11/23 437.00
590 71/23 11/10/2023 „ЖАК ТУРС” д.о.о. БАЊА ЛУКА СУБВЕНЦИЈА ЗА ЈАВНИ ПРЕВОЗ 10/23 437.00
591 69/23 10/24/2023 „ЖАК ТУРС” д.о.о. БАЊА ЛУКА СУБВЕНЦИЈА ЗА ЈАВНИ ПРЕВОЗ 10/23 1,890.00
592 86/23 12/21/2023 „ЖАК ТУРС” д.о.о. БАЊА ЛУКА СУБВЕНЦИЈА ЗА ЈАВНИ ПРЕВОЗ 2,445.30
593 85/23 12/21/2023 „ЖАК ТУРС” д.о.о. БАЊА ЛУКА СУБВЕНЦИЈА ЗА ЈАВНИ ПРЕВОЗ 1,812.20
594 84/23 12/21/2023 „ЖАК ТУРС” д.о.о. БАЊА ЛУКА СУБВЕНЦИЈА ЗА ЈАВНИ ПРЕВОЗ 437.00
595 04-Р-687/24 7/5/2024 ЈУ СЛУЖБЕНИ ГЛАСНИК РС ОБЈАВА ОГЛАСА 7,550.00
596 04-р-790/24 7/30/2024 ЈУ СЛУЖБЕНИ ГЛАСНИК РС РАСХОДИ ЗА РЕЖИЈСКИ МАТЕРИЈАЛ 100.00
597 ПРЕДРАЧУН БР. 01-П-424/24 9/16/2024 ЈУ СЛУЖБЕНИ ГЛАСНИК РС ОБЈАВА У СЛУЖБЕНОМ ГЛАСНИКУ РС - ЈАВНИ КОНКУРС 2,514.33
598 22/24 7/9/2024 ТЕЛЕВИЗИЈА СИМИЋ - „ФОТО КОЛОР ЛАБОР С” д.о.о. БАЊА ЛУКА, ВЛАСНИК КАЈКУТ БРАЦО УСЛУГА ПОСТ. ПРОДУКЦИЈЕ АУДИО- ВИДЕО ЗАПИСА ЗА ПОТРЕБЕ СКУПШТИНЕ ГРАДА 1,872.00
599 66-ВИИИ/24 8/6/2024 „ФАБРУМ СОЛУТИОНС” д.о.о. ГЛАВНИ ПРОЈЕКАТ ЗА ИЗГРАДЊУ ПЈЕШАЧКОГ МОСТА У ОБУХВАТУ АМБИЈЕНТАЛНЕ ПОВРШИНЕ 7,020.00
600 63/24 7/31/2024 „ЕКО ЕУРО ТИМ” д.о.о. БАЊА ЛУКА УСЛУГА ДОСТАВЕ ПИТКЕ ВОДЕ 1,427.40
601 60/24 7/19/2024 „ЕКО ЕУРО ТИМ” д.о.о. БАЊА ЛУКА ИЗГРАДЊА ВОДОВОДНЕ МРЕЖЕ У НАСЕЉУ ЈАГАРЕ 23,954.47
602 357/24 8/26/2024 „ЕКО ЕУРО ТИМ” д.о.о. БАЊА ЛУКА ИЗВОЂЕЊЕ РАДОВА НА САНАЦИЈИ ВОДОЗАХВАТА, ПУМПНИХ СТАНИЦА НА ВОДОВОДНОМ СИСТЕМУ БАЊИЦА 731,199.91
603 71/24 7/31/2024 „ЕКО ЕУРО ТИМ” д.о.о. БАЊА ЛУКА УСЛУГА ДОСТАВЕ ПИТКЕ ВОДЕ 8,600.09
604 51/24 6/29/2024 „ЕКО ЕУРО ТИМ” д.о.о. БАЊА ЛУКА УСЛУГА ДОСТАВЕ ПИТКЕ ВОДЕ 2,854.80
605 82/24 8/31/2024 „ЕКО ЕУРО ТИМ” д.о.о. БАЊА ЛУКА ОКОНЧАНА СИТУАЦИЈА БРОЈ 82/24 ОД 31. 08. 2024. 45,170.78
606 XВ привремена 9/10/2024 „ТЕКТОН” д.о.о. БАЊА ЛУКА XВ ПРИВРЕМЕНА СИТУАЦИЈА ЗА ИЗГРАДЊУ ЦЕНТРАЛНОГ СПОМЕНИКА ПОГИНУЛИМ БОРЦИМА ОДБРАМБЕНО-ОТАЏБИНСКОГ РАТА 399,630.38
607 032/2024 авансни рачун 9/10/2024 „ТЕКТОН” д.о.о. БАЊА ЛУКА АВАНСНИ РАЧУН 032/2024 XВ ПРИВРЕМЕНА СИТУАЦИЈА ЗА ИЗВОЂЕЊЕ РАДОВА НА ИЗГРАДЊИ ЦЕНТРАЛНОГ СПОМЕНИКА ПОГИНУЛИМ БОРЦИМА ОДБРАМБЕНО-ОТАЏБИНСКОГ РАТА У БАЊОЈ ЛУЦИ -79,926.08
608 АВАНСНИ РАЧУН 034/2024 9/20/2024 „ТЕКТОН” д.о.о. БАЊА ЛУКА АВАНСНИ РАЧУН 034/2024 ЗА ИЗВОЂЕЊЕ НАКНАДНИХ РАДОВА НА ПАРТЕРНОМ УРЕЂЕЊУ НА ИЗГРАДЊИ ЦЕНТРАЛНОГ СПОМЕНИКА ПОГИНУЛИМ БОРЦИМА ОДБРАМБЕНО-ОТАЏБИНСКОГ РАТА У БАЊОЈ ЛУЦИ 584,822.60
609 117/24 5/31/2024 „ПРОЦЕСНА ОПРЕМА” д.о.о. САНАЦИЈА И ОДРЖАВАЊЕ КОМУНАЛНЕ ОПРЕМЕ 6,186.84
610 118/24 5/31/2024 „ПРОЦЕСНА ОПРЕМА” д.о.о. САНАЦИЈА И ОДРЖАВАЊЕ КОМУНАЛНЕ ОПРЕМЕ 4,015.44
611 119/24 5/31/2024 „ПРОЦЕСНА ОПРЕМА” д.о.о. САНАЦИЈА И ОДРЖАВАЊЕ КОМУНАЛНЕ ОПРЕМЕ 9,514.44
612 пс03-8/24 8/26/2024 „ПРОЦЕСНА ОПРЕМА” д.о.о. УРЕЂЕЊЕ ЈАВНИХ ПОВРШИНА КОД КИНА КОЗАРА 129,367.78
613 52/24 И привремена ситуација 9/17/2024 „БУНИЋ КОМПАНИ” д.о.о. БАЊА ЛУКА ПРВА ПРИВРЕМЕНА СИТУАЦИЈА БРОЈ 52/24 ОД 19. 09. 2024. 75,886.20
614 24-3000-000166 8/1/2024 ЈП „ПРОТИВГРАДНА ПРЕВЕНТИВА РС” а.д. ГРАДИШКА ПОСЛОВИ ПРОТИВГРАДНЕ ЗАШТИТЕ ЗА 2024. ГОДИНУ - ВИИИ РАТА 5,000.00
615 11-БЛ/24 друга привремена ситуација 8/15/2024 „ТОП СПОРТ” д.о.о. БИЈЕЉИНА ИЗГРАДЊА ДЈЕЧИЈЕГ ИГРАЛИШТА И ТЕРЕТАНА У НОВОМ ГРАДСКОМ ПАРКУ 80,045.63
616 ХЕМ-297/24 8/1/2024 „ПЕРФЕЦТ ЦЛЕАН” д.о.о. БАЊА ЛУКА ЧИШЋЕЊЕ ОДЈЕЋЕ (ЈАСТУЧНИЦА, ПЛАХТА, НАВЛАКА ЗА ЈОРГАН) 25.51
617 ХЕМ-262/24 7/1/2024 „ПЕРФЕЦТ ЦЛЕАН” д.о.о. БАЊА ЛУКА ПРАЊЕ УНИФОРМИ, ДЕКА, ПЛАХТИ ЈАСТУЧНИЦА И ДР. 83.07
618 202/24 6/4/2024 „ПЕРФЕЦТ ЦЛЕАН” д.о.о. БАЊА ЛУКА ПРАЊЕ ПЛАХТИ, ЈАСТУЧНИЦА И ДР. 148.59
619 074/2024 6/30/2024 „НТВ” д.о.о. ЗАКУП АНТЕНСКИХ СТУБОВА ЗА РЕПЕТИТОР НА ШИБОВИМА 1,439.10
620 943913-2024-04 4/30/2024 „ВОДОВОД” а.д. БАЊА ЛУКА ВОДА 04/24 38.27
621 1161351-2024-03 3/31/2024 „ВОДОВОД” а.д. БАЊА ЛУКА ВОДА 03/24 6.63
622 941147-2024-03 3/31/2024 „ВОДОВОД” а.д. БАЊА ЛУКА РАЧУН ЗА ВОДУ У ПЗ „РАМИЋИ-БАЊА ЛУКА” 11.70
623 941147-2024-03 3/31/2024 „ВОДОВОД” а.д. БАЊА ЛУКА РАЧУН ЗА ВОДУ У ПЗ „РАМИЋИ-БАЊА ЛУКА” 1.40
624 941147-2024-03 3/31/2024 „ВОДОВОД” а.д. БАЊА ЛУКА РАЧУН ЗА ВОДУ У ПЗ „РАМИЋИ-БАЊА ЛУКА” 11.70
625 1-р-2081/24 8/31/2024 „ВОДОВОД” а.д. БАЊА ЛУКА ИЗРАДА САГЛАСНОСТИ НА ПРОЈЕКАТ ИЗГРАДЊЕ САОБРАЋАЈНИЦЕ ПЕТРА ВЕЛИКОГ 134.55
626 иф-00013-1-24 5/31/2024 „ГРАЂЕВИНАРСТВО КОС” с.п. ОДВОЗ ОТПАДНОГ МАТЕРИЈАЛА ((ГУМЕ) 351.00
627 24-320-000254 6/28/2024 „ПРОДА-МОНТ” д.о.о. УГОВОРИ С ИНВЕСТИТОРИМА 52,641.97
628 95/24 5/31/2024 „ХИДРО-КОП” д.о.о. БАЊА ЛУКА ВОДА 3 -88,171.39
629 114/24 5/31/2024 „ХИДРО-КОП” д.о.о. БАЊА ЛУКА ВОДА 3 440,856.97
630 136/24 7/31/2024 „ХИДРО-КОП” д.о.о. БАЊА ЛУКА ВОДА 3 -45,252.06
631 177/24 7/31/2024 „ХИДРО-КОП” д.о.о. БАЊА ЛУКА ВОДА 3 487,584.15
632 143/24 20 привремена ситуација 6/29/2024 „ХИДРО-КОП” д.о.о. БАЊА ЛУКА ВОДА 3 551,714.73
633 115/24 сторно аванс 6/29/2024 „ХИДРО-КОП” д.о.о. БАЊА ЛУКА ВОДА 3 -110,342.95
634 209/24 22 ПРИВРЕМЕНА СИТУАЦИЈА 8/30/2024 „ХИДРО-КОП” д.о.о. БАЊА ЛУКА ВОДА 3 254,454.91
635 205/24 В привремена ситуација 8/30/2024 „ХИДРО-КОП” д.о.о. БАЊА ЛУКА 5. ПРИВРЕМЕНА СИТУАЦИЈА -РЕКОНСТРУКЦИЈА САОБРАЋАЈНИЦЕ У НАСЕЉУ ЧЕСМА 300,656.96
636 162/24 авансна фактура 8/30/2024 „ХИДРО-КОП” д.о.о. БАЊА ЛУКА ПРАВДАЊЕ АВАНСА -60,131.39
637 7 7/31/2024 ЗЕВ СТЕВАНА ПРВОВЕНЧАНОГ 8 РАЧУН ЗА ВИИ 2024. ЗА ГАРАЖУ БР. 7 И 10 А 4.40
638 8 8/31/2024 ЗЕВ СТЕВАНА ПРВОВЕНЧАНОГ 8 РАЧУН ЗА ВИИИ 2024. ЗА ГАРАЖУ БР. 7 И 10 А 4.40
639 55/24 5/31/2024 СТАМБЕНА ЗАДРУГА БАЊА ЛУКА ЗАКУП ПОСЛОВНОГ ПРОСТОРА 346.32
640 24-3600-000210 5/14/2024 „ГЛОБАЛ ГПС” д.о.о. БАЊА ЛУКА ФАКТУРА БРОЈ 24-3600-000210 ОД 14. 05. 2024. 1,165.76
641 208/23 10/31/2023 „АЛДЕМО ТУРС” д.о.о. СУБВЕНЦИЈА ЗА ЈАВНИ ПРЕВОЗ 10/23 2,158.00
642 204/23 10/17/2023 „АЛДЕМО ТУРС” д.о.о. СУБВЕНЦИЈА ЗА ЈАВНИ ПРЕВОЗ 10/23 11,356.40
643 226/23 11/28/2023 „АЛДЕМО ТУРС” д.о.о. СУБВЕНЦИЈА ЗА ЈАВНИ ПРЕВОЗ 11/23 2,158.00
644 222/23 11/22/2023 „АЛДЕМО ТУРС” д.о.о. СУБВЕНЦИЈА ЗА ЈАВНИ ПРЕВОЗ 11/23 11,586.60
645 239/23 12/12/2023 „АЛДЕМО ТУРС” д.о.о. СУБВЕНЦИЈА ЗА ЈАВНИ ПРЕВОЗ 11,317.20
646 240/23 12/12/2023 „АЛДЕМО ТУРС” д.о.о. СУБВЕНЦИЈА ЗА ЈАВНИ ПРЕВОЗ 4,575.45
647 228/23 12/11/2023 „АЛДЕМО ТУРС” д.о.о. СУБВЕНЦИЈА ЗА ЈАВНИ ПРЕВОЗ 5,024.00
648 169/24 9/13/2024 „АЛДЕМО ТУРС” д.о.о. НАКНАДА ПО УГОВОРУ О СУБВЕНЦИЈИ 9,367.80
649 157/24 8/31/2024 „АЛДЕМО ТУРС” д.о.о. ПРУЖАЊЕ УСЛУГА ПРЕВОЗА ТУРИСТИЧКИМ ВОЗИЛОМ НА БАЊ БРДО 7,992.27
650 156/247 8/31/2024 „АЛДЕМО ТУРС” д.о.о. СУБВЕНЦИЈЕ 39,404.56
651 160/24 9/4/2024 „АЛДЕМО ТУРС” д.о.о. СУБВЕНЦИЈЕ 4,079.58
652 159/24 9/4/2024 „АЛДЕМО ТУРС” д.о.о. СУБВЕНЦИЈЕ 2,059.00
653 197/24-ВП-П 8/26/2024 „М ПРИНТ СТУДИО” д.о.о. БАЊА ЛУКА УСЛУГЕ ШТАМПАЊА 6,317.77
654 6/24 1 привремена ситуација 3/29/2024 „САНА ТЕХНИКА” д.о.о. ПРВА ПРИВРЕМЕНА СИТУАЦИЈА БРОЈ 6/24 ОД 29. 03. 2024. 9,184.50
655 7/24 2. привремена ситуација 4/30/2024 „САНА ТЕХНИКА” д.о.о. ДРУГА ПРИВРЕМЕНА СИТУАЦИЈА БРОЈ7/24 ОД 30. 04. 2024. 12,334.14
656 886/23 11/27/2023 „ПАВЛОВИЋ ТУРС” д.о.о. БАЊА ЛУКА СУБВЕНЦИЈА ЗА ЈП 11/23 27,404.66
657 933/23 12/14/2023 „ПАВЛОВИЋ ТУРС” д.о.о. БАЊА ЛУКА СУБВЕНЦИЈА ЗА ЈАВНИ ПРЕВОЗ 8,343.00
658 931/23 12/14/2023 „ПАВЛОВИЋ ТУРС” д.о.о. БАЊА ЛУКА СУБВЕНЦИЈА ЗА ЈАВНИ ПРЕВОЗ 29,043.12
659 932/23 12/14/2023 „ПАВЛОВИЋ ТУРС” д.о.о. БАЊА ЛУКА СУБВЕНЦИЈА ЗА ЈАВНИ ПРЕВОЗ 27,404.66
660 930/23 12/14/2023 „ПАВЛОВИЋ ТУРС” д.о.о. БАЊА ЛУКА СУБВЕНЦИЈА ЗА ЈАВНИ ПРЕВОЗ 22,651.00
661 795/23 10/18/2023 „ПАВЛОВИЋ ТУРС” д.о.о. БАЊА ЛУКА СУБВЕНЦИЈА ЗА ЈАВНИ ПРЕВОЗ 28,717.96
662 794/23 10/18/2023 „ПАВЛОВИЋ ТУРС” д.о.о. БАЊА ЛУКА СУБВЕНЦИЈА ЗА ЈАВНИ ПРЕВОЗ 10/23 22,915.20
663 845/23 10/31/2023 „ПАВЛОВИЋ ТУРС” д.о.о. БАЊА ЛУКА СУБВЕНЦИЈА ЗА ЈАВНИ ПРЕВОЗ 27,404.66
664 849/23 11/15/2023 „ПАВЛОВИЋ ТУРС” д.о.о. БАЊА ЛУКА СУБВЕНЦИЈА ЗА ЈАВНИ ПРЕВО 11/23 22,644.60
665 850/23 11/15/2023 „ПАВЛОВИЋ ТУРС” д.о.о. БАЊА ЛУКА СУБВЕНЦИЈА ЗА ЈАВНИ ПРЕВО 11/23 29,250.35
666 728/24 9/4/2024 „ПАВЛОВИЋ ТУРС” д.о.о. БАЊА ЛУКА МЈЕСЕЧНЕ КАРТЕ 15,179.71
667 729/24 9/4/2024 „ПАВЛОВИЋ ТУРС” д.о.о. БАЊА ЛУКА СУБВЕНЦИЈЕ 7,421.88
668 680/24 8/31/2024 „ПАВЛОВИЋ ТУРС” д.о.о. БАЊА ЛУКА БЕСПЛАТНЕ МЈЕСЕЧНЕ КАРТЕ 130,569.70
669 739/24 9/12/2024 „ПАВЛОВИЋ ТУРС” д.о.о. БАЊА ЛУКА РАЗЛИКА ИЗМЕЂУ ЦИЈЕНА 7,707.82
670 738/24 9/12/2024 „ПАВЛОВИЋ ТУРС” д.о.о. БАЊА ЛУКА РАЗЛИКА ИЗМЕЂУ ЦИЈЕНА 14,551.20
671 1004121-9/24 9/2/2024 „АУРА ОСИГУРАЊЕ” а.д. БАЊА ЛУКА ОСИГУРАЊЕ НЕЗГОДА 1,352.00
672 1004121-6/24 6/1/2024 „АУРА ОСИГУРАЊЕ” а.д. БАЊА ЛУКА ОСИГУРАЊЕ НЕЗГОДА 1,352.00
673 8006622-6/24 6/4/2024 „АУРА ОСИГУРАЊЕ” а.д. БАЊА ЛУКА ОСИГУРАЊЕ ИМОВИНЕ 3,188.00
674 8006623-6/24 6/4/2024 „АУРА ОСИГУРАЊЕ” а.д. БАЊА ЛУКА ОСИГУРАЊЕ ИМОВИНЕ 48.00
675 8006624-6/24 6/4/2024 „АУРА ОСИГУРАЊЕ” а.д. БАЊА ЛУКА ОСИГУРАЊЕ ИМОВИНЕ 65.00
676 8006624-7/24 7/4/2024 „АУРА ОСИГУРАЊЕ” а.д. БАЊА ЛУКА ОСИГУРАЊЕ 65.00
677 8006623-7/24 7/4/2024 „АУРА ОСИГУРАЊЕ” а.д. БАЊА ЛУКА ОСИГУРАЊЕ 48.00
678 8006622-7/24 7/4/2024 „АУРА ОСИГУРАЊЕ” а.д. БАЊА ЛУКА ОСИГУРАЊЕ 3,188.00
679 1004121-7/24 7/1/2024 „АУРА ОСИГУРАЊЕ” а.д. БАЊА ЛУКА ОСИГУРАЊЕ НЕЗГОДА 1,352.00
680 1004121-8/24 8/1/2024 „АУРА ОСИГУРАЊЕ” а.д. БАЊА ЛУКА ОСИГУРАЊЕ НЕЗГОДА 1,352.00
681 8006622-8/24 8/1/2024 „АУРА ОСИГУРАЊЕ” а.д. БАЊА ЛУКА ОСИГУРАЊЕ 3,188.00
682 8006623-8/24 8/1/2024 „АУРА ОСИГУРАЊЕ” а.д. БАЊА ЛУКА ОСИГУРАЊЕ 48.00
683 8006624-8/24 8/1/2024 „АУРА ОСИГУРАЊЕ” а.д. БАЊА ЛУКА ОСИГУРАЊЕ 65.00
684 01-Ц3/24 И ПРИВРЕМЕНА СИТУАЦИЈА 8/8/2024 „ПРОГРЕСГРАДЊА” д.о.о. И ПРИВРЕМЕНА СИТУАЦИЈА ЗА ЈАВНУ НАБАВКУ „РЕДОВНО ОДРЖАВАЊЕ СТАМБЕНИХ ЗГРАДА У АДИ И КУЉАНИМА” 18,918.90
685 24/24 6/12/2024 „ПРОГРЕСГРАДЊА” д.о.о. УГОВОРИ С ИНВЕСТИТОРИМА 28,189.24
686 окончана ситуација 9/4/2024 „ПРОГРЕСГРАДЊА” д.о.о. ОКОНЧАНА СИТУАЦИЈА ЗА ЈН „РЕДОВНО ОДРЖАВАЊЕ СТАМБЕНИХ ЗГРАДА У АДИ И КУЉАНИМА” 4,138.88
687 02-XМ/24 ОКОНЧАНА СИТУАЦИЈА 9/4/2024 „ПРОГРЕСГРАДЊА” д.о.о. ОКОНЧАНА СИТУАЦИЈА ЗА ЈН „РЕКОНСТРУКЦИЈА ХИДРАНТСКЕ МРЕЖЕ У ЈАВНОМ СКЛОНИШТУ У УЛ. ДРАГИШЕ ВАСИЋА” 5,151.51
688 78/2024 8/31/2024 АДА с.п. ПРАЊЕ ВОЗИЛА 607.50
689 1006607933 8/5/2024 САВЕЗ РАЧУНОВОЂА И РЕВИЗОРА РС 28. МЕЂУНАРОДНИ КОНГРЕС РАЧУНОВОЂА И РЕВИЗОРСКЕ ПРОФЕСИЈЕ РС 430.00
690 1006607523 8/14/2024 САВЕЗ РАЧУНОВОЂА И РЕВИЗОРА РС 28. МЕЂУНАРОДНИ КОНГРЕС РАЧУНОВОЂА И РЕВИЗОРСКЕ ПРОФЕСИЈЕ РС 430.00
691 1006610783 8/8/2024 САВЕЗ РАЧУНОВОЂА И РЕВИЗОРА РС 28. МЕЂУНАРОДНИ КОНГРЕС РАЧУНОВОЂА И РЕВИЗОРСКЕ ПРОФЕСИЈЕ РС 430.00
692 1006606604 8/6/2024 САВЕЗ РАЧУНОВОЂА И РЕВИЗОРА РС 28. МЕЂУНАРОДНИ КОНГРЕС РАЧУНОВОЂА И РЕВИЗОРСКЕ ПРОФЕСИЈЕ РС 430.00
693 1006606964 8/8/2024 САВЕЗ РАЧУНОВОЂА И РЕВИЗОРА РС 28. МЕЂУНАРОДНИ КОНГРЕС РАЧУНОВОЂА И РЕВИЗОРСКЕ ПРОФЕСИЈЕ РС 430.00
694 2 привремена ситуација 8/30/2024 „БЛ БЕСТ ИНЖИЊЕРИНГ” ИЗГРАДЊА МОСТА У НОВОМ ГРАДСКОМ ПАРКУ 99,229.23
695 01/2400765403 8/31/2024 „ЧИСТОЋА” а.д. БАЊА ЛУКА ЈАВНА ХИГИЈЕНА 255,955.35
696 2840052843 8/31/2024 „М:ТЕЛ” а.д. БАЊА ЛУКА МЈЕСЕЧНА ПРЕТПЛАТА НЕТ: XС+ 19.00
697 4440055392 8/31/2024 „М:ТЕЛ” а.д. БАЊА ЛУКА ПРЕТПЛАТА НЕТ XС 228.01
698 7340010439 8/31/2024 „М:ТЕЛ” а.д. БАЊА ЛУКА ПРЕТПЛАТА ПЛАТФОРМА БРОНТО 22.23
699 9740054566 8/31/2024 „М:ТЕЛ” а.д. БАЊА ЛУКА ЗАКУП ЗА ШИБОВЕ 69.40
700 1540052427 8/31/2024 „М:ТЕЛ” а.д. БАЊА ЛУКА ПАКЕТ АДСЛ БИЗ ТВ НЕТ С ПАКЕТ 62.01
701 4740054227 8/31/2024 „М:ТЕЛ” а.д. БАЊА ЛУКА АДСЛ БИЗ ТВ НЕТ С ПАКЕТ 63.00
702 6340046397 8/31/2024 „М:ТЕЛ” а.д. БАЊА ЛУКА ПРЕТПЛАТА ЗА ИЗНАЈМЉЕНУ ЛИНИЈУ - БРЗИНА ПРЕНОСА 256 КБ/С (1 КОМАД) / ПРЕТПЛАТА ЗА ИЗНАЈМЉЕНУ ЛИНИЈУ - БРЗИНА ПРЕНОСА 2 МБ/С (1 КОМАД) / ПРЕТПЛАТА ЗА ИЗНАЈМЉЕНУ ЛИНИЈУ - БРЗИНА ПРЕНОСА 192 КБ/С (15 КОМАДА) - АВГУСТ 2024. 4,251.10
703 8840007912 8/31/2024 „М:ТЕЛ” а.д. БАЊА ЛУКА ИНТЕРНЕТ ЗА СЕИЗМОЛОШКИ АКЦЕЛЕОГРАФ 23.40
704 4540027197 8/31/2024 „М:ТЕЛ” а.д. БАЊА ЛУКА ИНТЕРНЕТ ЗА ВАТРОГАСНЕ ЉЕСТВЕ 52.08
705 8240054571 8/31/2024 „М:ТЕЛ” а.д. БАЊА ЛУКА ПРОФЕСИОНАЛНА ЛОКАЦИЈА ДИРЕКТНОГ ПРИСТУПА ИНТЕРНЕТУ 561.60
706 7040027221 8/31/2024 „М:ТЕЛ” а.д. БАЊА ЛУКА ПРЕТПЛАТА ЗА ЧЛАНОВЕ ТД XЛ 5ГБ 70.20
707 8340027152 8/31/2024 „М:ТЕЛ” а.д. БАЊА ЛУКА ПРЕТПЛАТА ЗА ЧЛАНОВЕ ТД XЛ ГБ 228.15
708 9340031255 8/31/2024 „М:ТЕЛ” а.д. БАЊА ЛУКА ПРЕТПЛАТА ЗА ЧЛАНОВЕ ТД XЛ ГБ 193.05
709 5010046660 8/31/2024 „М:ТЕЛ” а.д. БАЊА ЛУКА ПРЕТПЛАТА ЗА ИЗНАЈМЉЕНУ ЛИНИЈУ - БРЗИНА ПРЕНОСА 60 МБ/С ЗА АВГУСТ 2024. 1,509.30
710 639336085 7/31/2024 „М:ТЕЛ” а.д. БАЊА ЛУКА ТРОШКОВИ МОБ. ТЕЛ. 07/2024 12,080.06
711 8738656670 6/30/2024 „М:ТЕЛ” а.д. БАЊА ЛУКА ФИКСНИ ТЕЛЕФОН 3,594.25
712 1557/002/24 8/31/2024 „М:ТЕЛ” а.д. БАЊА ЛУКА ПРОВИЗИЈА ЗА ВАС СМС МПАРКИНГ ГРАД БАЊА ЛУКА 10,350.87
713 9239346694 7/31/2024 „М:ТЕЛ” а.д. БАЊА ЛУКА РАЧУН МТЕЛ 3,778.32
714 2140010133 8/31/2024 „М:ТЕЛ” а.д. БАЊА ЛУКА МЈЕСЕЧНА ПРЕТПЛАТА НЕТ:Л ЗА АВГУСТ 2024. 46.80
715 3540047926 8/31/2024 „М:ТЕЛ” а.д. БАЊА ЛУКА ПРЕТПЛАТА ЗА ПРИСТУП ИНТЕРНЕТУ НЕТБИЗ С ПАКЕТ (ПЗ РАМИЋИ) - АВГУСТ 2024. 67.86
716 7940046424 8/31/2024 „М:ТЕЛ” а.д. БАЊА ЛУКА ПРЕТПЛАТА ЗА ИЗНАЈМЉЕНУ ЛИНИЈУ - БРЗИНА ПРЕНОСА 512 КБ/С (1 КОМАД) ЗА АВГУСТ 2024. 642.33
717 1039346689 7/31/2024 „М:ТЕЛ” а.д. БАЊА ЛУКА МЗ СТАРЦЕВИЦА 8,981.62
718 4639355989 7/31/2024 „М:ТЕЛ” а.д. БАЊА ЛУКА ПРЕТПЛАТА 3,570.11
719 3539343415 7/31/2024 „М:ТЕЛ” а.д. БАЊА ЛУКА РАЧУН ЗА ВИИ 2024. ЗА ГПС ИНСТРУМЕНТ 19.00
720 3641/РС5025МВУ/24 8/7/2024 „М:ТЕЛ” а.д. БАЊА ЛУКА СИМ КАРТИЦА 1.00
721 3640/РС5025МВУ/24 8/7/2024 „М:ТЕЛ” а.д. БАЊА ЛУКА ЗАМЈЕНА СИМ КАРТИЦЕ 5.85
722 239357297 7/31/2024 „М:ТЕЛ” а.д. БАЊА ЛУКА ПРЕТПЛАТА ЗА ПРИСТУП ИНТЕРНЕТУ НЕТБИЗ С ПАКЕТ (ПЗ РАМИЋИ) - ЈУЛ 2024. 67.86
723 7339362285 7/31/2024 „М:ТЕЛ” а.д. БАЊА ЛУКА МЈЕСЕЧНА ПРЕТПЛАТА НЕТ XС + 19.00
724 9339337026 7/31/2024 „М:ТЕЛ” а.д. БАЊА ЛУКА ПРЕТПЛАТА 19.00
725 7939337160 7/31/2024 „М:ТЕЛ” а.д. БАЊА ЛУКА ПРЕТПЛАТА 76.00
726 8539355782 7/31/2024 „М:ТЕЛ” а.д. БАЊА ЛУКА ПРЕТПЛАТА ЗА ИЗНАЈМЉЕНУ ЛИНИЈУ - БРЗИНА ПРЕНОСА 512 КБ/С (1 КОМАД) ЗА ЈУЛ 2024. 642.33
727 8239318826 7/31/2024 „М:ТЕЛ” а.д. БАЊА ЛУКА МЈЕСЕЧНА ПРЕТПЛАТА НЕТ:Л ЗА ЈУЛ 2024. 46.80
728 6939355755 7/31/2024 „М:ТЕЛ” а.д. БАЊА ЛУКА ПРЕТПЛАТА ЗА ИЗНАЈМЉЕНУ ЛИНИЈУ - БРЗИНА ПРЕНОСА 256 КБ/С (1 КОМАД) / ПРЕТПЛАТА ЗА ИЗНАЈМЉЕНУ ЛИНИЈУ - БРЗИНА ПРЕНОСА 2 МБ/С (1 КОМАД) / ПРЕТПЛАТА ЗА ИЗНАЈМЉЕНУ ЛИНИЈУ - БРЗИНА ПРЕНОСА 192 КБ/С (15 КОМАДА) - ЈУЛ 2024. 4,251.10
729 539364862 7/31/2024 „М:ТЕЛ” а.д. БАЊА ЛУКА МЈЕСЕЧНА ПРЕТПЛАТА XС+ 07/24 228.60
730 3739319132 7/31/2024 „М:ТЕЛ” а.д. БАЊА ЛУКА МЈЕСЕЧНА ПРЕТПЛАТА ПРЕТПЛАТА XС 22.23
731 8539364027 7/31/2024 „М:ТЕЛ” а.д. БАЊА ЛУКА МТЕЛ НЕТ БИЗ С 07/24 - МЈЕСЕЧНА ПРЕТПЛАТА 67.86
732 9639361857 7/31/2024 „М:ТЕЛ” а.д. БАЊА ЛУКА МЈЕСЕЧНА ПРЕТПЛАТА БИЗ ТВ + НЕТС 62.01
733 4139363686 7/31/2024 „М:ТЕЛ” а.д. БАЊА ЛУКА МЈЕСЕЧНА ПРЕТПЛАТА БИЗ ТВ + НЕТ С 63.00
734 2339314416 7/31/2024 „М:ТЕЛ” а.д. БАЊА ЛУКА МЗ ЉУБАЧЕВО 30.28
735 2939314414 7/31/2024 „М:ТЕЛ” а.д. БАЊА ЛУКА МЗ АГИНО СЕЛО 50.98
736 3839314411 7/31/2024 „М:ТЕЛ” а.д. БАЊА ЛУКА МЗ РЕКАВИЦЕ 2 19.19
737 239314423 7/31/2024 „М:ТЕЛ” а.д. БАЊА ЛУКА МЗ ПАВИЋИ 19.19
738 1139314420 7/31/2024 „М:ТЕЛ” а.д. БАЊА ЛУКА МЗ ШИМИЋИ 19.19
739 8739314427 7/31/2024 „М:ТЕЛ” а.д. БАЊА ЛУКА МЗ КМЕЋАНИ 19.45
740 4039362684 7/31/2024 „М:ТЕЛ” а.д. БАЊА ЛУКА ТРОШКОВИ ЗА МОБИЛНИ ТЕЛЕФОН ЗА ВЕДРАНУ ПРОЛЕ 07/24 158.34
741 2139360136 7/31/2024 „М:ТЕЛ” а.д. БАЊА ЛУКА ТРОШКОВИ ЗА МОБИЛНИ ТЕЛЕФОН ЗА ВЕДРАНА ФРАНЦУЗА 07/24 131.02
742 2739344323 7/31/2024 „М:ТЕЛ” а.д. БАЊА ЛУКА ПРЕТПЛАТА НЕТ XС+ 76.84
743 4939342408 7/31/2024 „М:ТЕЛ” а.д. БАЊА ЛУКА ТРОШКОВИ ЗА МОБИЛНИ ТЕЛЕФОН ЗА ВАЛЕНТИНУ АНИЧИЋ 07/24 79.19
744 1397/002/24 7/31/2024 „М:ТЕЛ” а.д. БАЊА ЛУКА ПРОВИЗИЈА ЗА ВАС СМС МПАРКИНГ ГРАД Б.ЛУКА 10,752.07
745 9339336347 7/31/2024 „М:ТЕЛ” а.д. БАЊА ЛУКА ПРЕТПЛАТА ЗА ЧЛАНОВЕ ТД XЛ 5ГБ 70.20
746 639340450 7/31/2024 „М:ТЕЛ” а.д. БАЊА ЛУКА ПРЕТПЛАТА ЗА ЧЛАНОВЕ ТД XЛ 5ГБ 195.19
747 939336278 7/31/2024 „М:ТЕЛ” а.д. БАЊА ЛУКА ПРЕТПЛАТА ЗА ЧЛАНОВЕ ТД XЛ 5ГБ 229.99
748 9739316590 7/31/2024 „М:ТЕЛ” а.д. БАЊА ЛУКА МЈЕСЕЧНА ПРЕТПЛАТА 23.40
749 7039364032 7/31/2024 „М:ТЕЛ” а.д. БАЊА ЛУКА МЈЕСЕЧНА ПРЕТПЛАТА ПРОФЕС ЛОКАЦИЈА ДИРЕКТНОГ ПРИСТУПА ИНТЕРНЕТУ 07/24 561.60
750 6839336323 7/31/2024 „М:ТЕЛ” а.д. БАЊА ЛУКА ПРЕТПЛАТА ЗА ЧЛАНОВЕ ТОТАЛ ДАТА М 07/24 11.71
751 5339356019 7/31/2024 „М:ТЕЛ” а.д. БАЊА ЛУКА ПРЕТПЛАТА ЗА ИЗНАЈМЉЕНУ ЛИНИЈУ - БРЗИНА ПРЕНОСА 60 МБ/С ЗА ЈУЛ 2024. 1,509.30
752 6238646170 6/30/2024 „М:ТЕЛ” а.д. БАЊА ЛУКА ПРЕТПЛАТА ЗА ЧЛАНОВЕ ТД XЛ 5ГБ 229.38
753 8438650366 6/30/2024 „М:ТЕЛ” а.д. БАЊА ЛУКА ПРЕТПЛАТА ЗА ЧЛАНОВЕ ТД XЛ 5ГБ 194.09
754 3300/РС5025МВУ/24 7/17/2024 „М:ТЕЛ” а.д. БАЊА ЛУКА СИМ КАРТИЦЕ - 2 КОМАДА 2.00
755 8137988536 5/31/2024 „М:ТЕЛ” а.д. БАЊА ЛУКА УСЛУГА 12 СИМ КАРТИЦА КОЈЕ СУ ИНСТАЛИРАНЕ НА МОБИЛНИМ КАМЕРАМА НА ВАТРОГАСНИМ ОДИЈЕЛИМА 228.01
756 8537966742 5/31/2024 „М:ТЕЛ” а.д. БАЊА ЛУКА РАЧУН ЗА В 2024. ЗА ГПС ИНСТРУМЕНТ 19.00
757 1337979473 5/31/2024 „М:ТЕЛ” а.д. БАЊА ЛУКА ПРЕНОС ПОДАТАКА 05/24 3,570.11
758 6737960346 5/31/2024 „М:ТЕЛ” а.д. БАЊА ЛУКА ПРЕТПЛАТА 05/24 77.92
759 8737960210 5/31/2024 „М:ТЕЛ” а.д. БАЊА ЛУКА М:ТЕЛ ПРЕТПЛАТА 05/24 19.00
760 2674/РС5025МВУ/24 6/5/2024 „М:ТЕЛ” а.д. БАЊА ЛУКА ЗАМЈЕНА СИМ КАРТИЦЕ 5.85
761 3937987677 5/31/2024 „М:ТЕЛ” а.д. БАЊА ЛУКА УСЛУГА ДИРЕКТНОГ ПРИСТУПА ИНТЕРНЕТУ 561.60
762 2525/РС5025МВУ/24 5/28/2024 „М:ТЕЛ” а.д. БАЊА ЛУКА СИМ КАРТИЦЕ - 2 КОМАДА 2.00
763 3537303699 4/30/2024 „М:ТЕЛ” а.д. БАЊА ЛУКА УСЛУГА ДИРЕКТНОГ ПРИСТУПА ИНТЕРНЕТУ ЗА МЈЕСЕЦ МАРТ 2024. 561.60
764 2386/рс5025мву/24 5/22/2024 „М:ТЕЛ” а.д. БАЊА ЛУКА ЗАМЈЕНА СИМ КАРТИЦЕ 5.85
765 636621734 3/31/2024 „М:ТЕЛ” а.д. БАЊА ЛУКА УСЛУГА ДИРЕКТНОГ ПРИСТУПА ИНТЕРНЕТУ АПРИЛ 2024. 243.80
766 7710/рс5025мву/23 12/26/2023 „М:ТЕЛ” а.д. БАЊА ЛУКА ЗАМЈЕНА СИМ КАРТИЦЕ 5.85
767 4638646919 6/30/2024 „М:ТЕЛ” а.д. БАЊА ЛУКА ПРЕТПЛАТА НЕТ XС+ 19.00
768 3238647053 6/30/2024 „М:ТЕЛ” а.д. БАЊА ЛУКА ПРЕТПЛАТА НЕТ XС+ 76.71
769 6338672392 6/30/2024 „М:ТЕЛ” а.д. БАЊА ЛУКА ПРЕТПЛАТА НЕТ XС+ 19.00
770 5838666024 6/30/2024 „М:ТЕЛ” а.д. БАЊА ЛУКА ПРЕТПЛАТА ЗА ИЗНАЈМЉЕНУ ЛИНИЈУ 3,571.18
771 4938646239 6/30/2024 „М:ТЕЛ” а.д. БАЊА ЛУКА ПРЕТПЛАТА ЗА ЧЛАНОВЕ ТД XЛ 5ГБ 70.20
772 1438653364 6/30/2024 „М:ТЕЛ” а.д. БАЊА ЛУКА РАЧУН ЗА ВИ 2024. ЗА ГПС ИНСТРУМЕНТ 19.00
773 1138667333 6/30/2024 „М:ТЕЛ” а.д. БАЊА ЛУКА ПРЕТПЛАТА ЗА ПРИСТУП ИНТЕРНЕТУ НЕТБИЗ С ПАКЕТ (ПЗ РАМИЋИ) - ЈУН 2024. 68.49
774 1238628565 6/30/2024 „М:ТЕЛ” а.д. БАЊА ЛУКА МЈЕСЕЧНА ПРЕТПЛАТА НЕТ:Л ЗА ЈУН 2024. 46.80
775 2938674990 6/30/2024 „М:ТЕЛ” а.д. БАЊА ЛУКА МЈЕСЕЧНА ПРЕТПЛАТА XС + ПАКЕТ 228.01
776 4038628879 6/30/2024 „М:ТЕЛ” а.д. БАЊА ЛУКА ИНТЕРНЕТ У ВАТРОГАСНМ ВОЗИЛУ ПЛАТФОРМА БРОНТО 22.23
777 5738674140 6/30/2024 „М:ТЕЛ” а.д. БАЊА ЛУКА РЕПЕТИТОР ШИБОВИ 67.86
778 1338673799 6/30/2024 „М:ТЕЛ” а.д. БАЊА ЛУКА МЈЕСЕЧНА ПРЕТПЛАТА С ПАКЕТ 63.00
779 9838671960 6/30/2024 „М:ТЕЛ” а.д. БАЊА ЛУКА МЈЕСЕЧНА ПРЕТПЛАТА С ПАКЕТ 62.01
780 4238674145 6/30/2024 „М:ТЕЛ” а.д. БАЊА ЛУКА ПРОФЕСИОНАЛНА ЛОКАЦИЈА ДИРЕКТНОГ ПРИСТУПА ИНТЕРНЕТУ 561.60
781 5138626321 6/30/2024 „М:ТЕЛ” а.д. БАЊА ЛУКА ИНТЕРНЕТ ЗА СЕИЗМОЛОШКИ АКЦЕЛЕОГРАФ 23.40
782 2438646215 6/30/2024 „М:ТЕЛ” а.д. БАЊА ЛУКА ПАКЕТ ТОТАЛ ДАТА М 68.04
783 338665816 6/30/2024 „М:ТЕЛ” а.д. БАЊА ЛУКА ПРЕТПЛАТА ЗА ИЗНАЈМЉЕНУ ЛИНИЈУ - БРЗИНА ПРЕНОСА 512 КБ/С (1 КОМАД) ЗА ЈУН 2024. 642.83
784 8438665789 6/30/2024 „М:ТЕЛ” а.д. БАЊА ЛУКА ПРЕТПЛАТА ЗА ИЗНАЈМЉЕНУ ЛИНИЈУ - БРЗИНА ПРЕНОСА 256 КБ/С (1 КОМАД) / ПРЕТПЛАТА ЗА ИЗНАЈМЉЕНУ ЛИНИЈУ - БРЗИНА ПРЕНОСА 2 МБ/С (1 КОМАД) / ПРЕТПЛАТА ЗА ИЗНАЈМЉЕНУ ЛИНИЈУ - БРЗИНА ПРЕНОСА 192 КБ/С (15 КОМАДА) - ЈУН 2024. 4,285.86
785 6538666054 6/30/2024 „М:ТЕЛ” а.д. БАЊА ЛУКА ПРЕТПЛАТА ЗА ИЗНАЈМЉЕНУ ЛИНИЈУ - БРЗИНА ПРЕНОСА 60 МБ/С ЗА ЈУН 2024. 1,521.07
786 0424/24 7/6/2024 ЦСК САМОСТАЛНА РАДЊА БАЊА ЛУКА УСЛУГЕ ШТАМПАЊА 3,620.08
787 0479/24 8/5/2024 ЦСК САМОСТАЛНА РАДЊА БАЊА ЛУКА УСЛУГЕ ШТАМПАЊА 1,684.80
788 0492/24 8/12/2024 ЦСК САМОСТАЛНА РАДЊА БАЊА ЛУКА УСЛУГЕ ШТАМПАЊА 1,684.80
789 34598/24-ЈН 8/13/2024  ЈП НИО „СЛУЖБЕНИ ЛИСТ“ БИХ ОБЈАВА У МЕДИЈИМА ЈАВНЕ НАБАВКЕ 98.00
790 34534/24-ЈН 8/13/2024  ЈП НИО „СЛУЖБЕНИ ЛИСТ“ БИХ ОБЈАВА О ПОНИШТЕЊУ НАБАВКЕ - НОВИ САЈТ ГРАДА 98.00
791 28553/24-ЈН 7/10/2024  ЈП НИО „СЛУЖБЕНИ ЛИСТ“ БИХ СТ ЈАНАБ 320-397/24 УГОВОР ВИДЕО НАДЗОР 98.00
792 30463/24-ЈН 7/17/2024  ЈП НИО „СЛУЖБЕНИ ЛИСТ“ БИХ ОБЈАВА УГОВОРА 98.00
793 30655/24-ЈН 7/17/2024  ЈП НИО „СЛУЖБЕНИ ЛИСТ“ БИХ СЛУЖБЕНИ ЛИСТ 404-110 98.00
794 32038/24-ЈН 7/23/2024  ЈП НИО „СЛУЖБЕНИ ЛИСТ“ БИХ СЛУЖБЕНИ ЛИСТ 404-159 98.00
795 31186/24-ЈН 7/23/2024  ЈП НИО „СЛУЖБЕНИ ЛИСТ“ БИХ СЛУЖБЕНИ ЛИСТ 404-207/23 98.00
796 29289/24-ЈН 7/11/2024  ЈП НИО „СЛУЖБЕНИ ЛИСТ“ БИХ ОБЈАВА 52.00
797 2893-13005/24-2 7/1/2024  ЈП НИО „СЛУЖБЕНИ ЛИСТ“ БИХ ОБЈАВА 480.00
798 27385/24-ЈН 6/27/2024  ЈП НИО „СЛУЖБЕНИ ЛИСТ“ БИХ ОБЈАВА НАБАВКЕ-УСЛУГА ИЗРАДЕ НОВОГ САЈТА 98.00
799 26564/24-ЈН 6/27/2024  ЈП НИО „СЛУЖБЕНИ ЛИСТ“ БИХ ОБЈАВА НАБАВКЕ 98.00
800 23194/24-јн 6/4/2024  ЈП НИО „СЛУЖБЕНИ ЛИСТ“ БИХ ЈН-320-345/24 98.00
801 21868/24-јн 5/28/2024  ЈП НИО „СЛУЖБЕНИ ЛИСТ“ БИХ ОБЈАВА 52.00
802 24156/24-ЈН 6/11/2024  ЈП НИО „СЛУЖБЕНИ ЛИСТ“ БИХ УСЛУГА ОБЈАВЕ ЈН У СЛУЖБЕНОМ ГЛАСНИКУ 98.00
803 26146/24-ЈН 6/18/2024  ЈП НИО „СЛУЖБЕНИ ЛИСТ“ БИХ ТРОШКОВИ ОБЈАВЕ ЈАВНЕ НАБАВКЕ У СЛУЖБЕНОМ ГЛАСНИКУ БИХ 98.00
804 26065/24-ЈН 6/18/2024  ЈП НИО „СЛУЖБЕНИ ЛИСТ“ БИХ ТРОШКОВИ ОБЈАВЕ ЈАВНЕ НАБАВКЕ У СЛУЖБЕНОМ ГЛАСНИКУ БИХ 98.00
805 26148/24-јн 6/18/2024  ЈП НИО „СЛУЖБЕНИ ЛИСТ“ БИХ ЈАВНА НАБАВКА -ОБЈАВА У СЛУЖБЕНОМ ГЛАСНИКА 98.00
806 15584/24-јн 4/16/2024  ЈП НИО „СЛУЖБЕНИ ЛИСТ“ БИХ УСЛУГА ОБЈАВЕ ЈН У СЛУЖБЕНОМ ГЛАСНИКУ 98.00
807 15406/24-јн 4/16/2024  ЈП НИО „СЛУЖБЕНИ ЛИСТ“ БИХ УСЛУГА ОБЈАВЕ ЈН У СЛУЖБЕНОМ ГЛАСНИКУ 98.00
808 15508/24-јн 4/16/2024  ЈП НИО „СЛУЖБЕНИ ЛИСТ“ БИХ УСЛУГА ОБЈАВЕ ЈН У СЛУЖБЕНОМ ГЛАСНИКУ 98.00
809 16716/24-ЈН 4/23/2024  ЈП НИО „СЛУЖБЕНИ ЛИСТ“ БИХ ОБЈАВА У СЛУЖБЕНОМ ЛИСТУ БИХ - ИЗГРАДЊА ИСТОРИЈСКОГ СПОМЕНИКА 98.00
810 20933/24-ЈН 5/21/2024  ЈП НИО „СЛУЖБЕНИ ЛИСТ“ БИХ СЛУЖБЕНИ ГЛАСНИК БИХ БРОЈ 34/2024- ОГЛАС ЈАВНИХ НАБАВКИ 98.00
811 9674/24-ЈН 3/12/2024  ЈП НИО „СЛУЖБЕНИ ЛИСТ“ БИХ СЛУЖБЕНИ ЛИСТ 404-248/24 52.00
812 22002/24-ЈН 5/28/2024  ЈП НИО „СЛУЖБЕНИ ЛИСТ“ БИХ ОБЈАВА ЈН „РЕДОВНО ОДРЖАВАЊЕ СТАМБЕНИХ ЗГРАДА” 98.00
813 3/9/2024 3/5/2024 МЕГА ЦОМПУТЕР ЕНГИНЕЕРИНГ д.о.о. МИГРАЦИЈА АПЛИКАТИВНОГ СОФТВЕРА И СЕРВЕРА БАЗЕ ПОДАТАКА 4,889.50
814 ИФ-00577-1-24 8/31/2024 СЕРВИС РОГИЋ ВУЛКАНИЗЕРСКЕ УСЛУГЕ 10.00
815 28/24 9/9/2024 „БАЛОНИ” ВЕСНА РОГИЋ с.п. УСЛУГЕ ДЕКОРАЦИЈЕ 2,550.00
816 29/24 9/10/2024 „БАЛОНИ” ВЕСНА РОГИЋ с.п. УСЛУГЕ ДЕКОРАЦИЈЕ 3,360.00
817 378/2024 6/28/2024 НОТАР МАРИНА ШТРБАЦ ОПУ 616/2024, ТАРИФНИ БРОЈ 1 УГОВОР И ОСТАЛИ НОТАРСКИ ТРОШКОВИ 329.36
818 23 9/4/2024 „ХИДРОПОИНТ” д.о.о. ИЗРАДА ПРОЈЕКТНОГ ЗАДАТКА 6,903.00
819 226/24 5/31/2024 „САС” д.о.о. ТЕХНИЧКИ ПРЕГЛЕД ВОЗИЛА 209.99
820 233/24 6/30/2024 „САС” д.о.о. ТЕХНИЧКИ ПРЕГЛЕД ВОЗИЛА 767.62
821 284/24 7/31/2024 „САС” д.о.о. ТЕХНИЧКИ ПРЕГЛЕД ВОЗИЛА 493.47
822 669/24 8/15/2024 „БИРОМАРК” с.п. НАБАВКА ОПРЕМЕ - БИРОМАРК С.П. 19,854.50
823 70/23 12/26/2023 „ЛУКИЋ ИНВЕСТ” д.о.о. УГОВОРИ С ИНВЕСТИТОРИМА 92,230.21
824 ВАС-05-24-СМС-429 5/31/2024 ХТ ЕРОНЕТ УГОВОР О ПРУЖАЊУ МПАРКИНГ УСЛУГА ПУТЕМ СМС-А 591.40
825 ВАС-06-24СМС-679 6/30/2024 ХТ ЕРОНЕТ МПАРКИНГ УСЛУГА ПУТЕМ СМС 565.25
826 99000166 7/31/2024 ХТ ЕРОНЕТ ОБРАЧУН ЗАТЕЗНЕ КАМАТЕ 18.56
827 ВАС-07-24-СМС-425 7/31/2024 ХТ ЕРОНЕТ УГОВОР О ПРУЖАЊУ МПАРКИНГ УСЛУГА ПУТЕМ СМС-а 608.29
828 10-810 7/16/2024 „ДЕЛТА ПС” с.п. КАБЛОВИ ЗА РАЧУНАРЕ 404.88
829 37-06/2024 6/20/2024 „ПРОРЕНТ” д.о.о. УСЛУГЕ ИЗНАЈМЉИВАЊА СЦЕНСКЕ И АУДИО ОПРЕМЕ ЗА МАНИФЕСТАЦИЈЕ ОД ИНТЕРЕСА ЗА ГРАД 29,816.28
830 217/2024 И привремена ситуација 8/23/2024 „КОТО”д.о.о. БАЊА ЛУКА РЕКОНСТРУКЦИЈА ДВОГЛАВОГ ОРЛА 40,740.57
831 сторно авансни рачун бр. 3/2024 8/23/2024 „КОТО”д.о.о. БАЊА ЛУКА АВАНСНИ РАЧУН 3/2024 ЗА ИЗВОЂЕЊЕ РАДОВА НА ИЗГРАДЊИ ИСТОРИЈСКОГ СПОМЕНИКА -187,049.30
832 И привремена ситуација бр. 31/2024 8/23/2024 „КОТО”д.о.о. БАЊА ЛУКА ИЗВОЂЕЊЕ РАДОВА НА ИЗГРАДЊИ ИСТОРИЈСКОГ СПОМЕНИКА 467,623.26
833 03/24 2/6/2024 „МАРКОВИЋ ИНВЕСТ-Р.М.” д.о.о. УГОВОР С ИНВЕСТИТОРИМА 3,688.00
834 169/24 2/16/2024 АУТО-МОТО ДРУШТВО „КРАЈИНА” УГОВОРИ С ИНВЕСТИТОРИМА 90,546.20
835 1-1878/1/2024 8/22/2024 „ГРАФО КОМЕРЦ” д.о.о. НАБАВКА СТОЛИЦА 11,611.08
836 26-Х/24 3/1/2024 „ХИДРОЕНЕРГО” д.о.о. УГОВОРИ С ИНВЕСТИТОРИМА 191,917.84
837 0023/24 3/12/2024 „ТЕХНОСИНТ” д.о.о. УГОВОР С ИНВЕСТИТОРИМА 7,287.10
838 24-3600-000009 3/25/2024 „КРАЈИНА КЛАС” д.о.о. УГОВОР С ИНВЕСТИТОРИМА 66,013.82
839 20/24 4/17/2024 „ДАМБИ КОМЕРЦ” д.о.о. УГОВОРИ С ИНВЕСТИТОРИМА 10,468.00
840 ФСВ-81-0/24 5/28/2024 „ХОЛОДЕКС” д.о.о. РЕДОВНО ОДРЖАВАЊЕ СИСТЕМА ЗА ГРИЈАЊЕ И ХЛАЂЕЊЕ 140.40
841 ФСВ-79-0/24 5/28/2024 „ХОЛОДЕКС” д.о.о. РЕДОВНО ОДРЖАВАЊЕ СИСТЕМА ЗА ГРИЈАЊЕ И ХЛАЂЕЊЕ 3,510.00
842 ФСВ-132-0/24 8/16/2024 „ХОЛОДЕКС” д.о.о. РЕДОВНО ОДРЖАВАЊЕ СИСТЕМА ЗА ГРИЈАЊЕ И ХЛАЂЕЊЕ 140.40
843 ФСВ-114-0/24 7/18/2024 „ХОЛОДЕКС” д.о.о. РЕДОВНО ОДРЖАВАЊЕ СИСТЕМА ЗА ГРИЈАЊЕ И ХЛАЂЕЊЕ 3,510.00
844 ИФ-00294-3-24 4/25/2024 „ЕЛИМ” д.о.о. НАБАВКА БЕТОНСКИХ СТУБОВА 5,930.50
845 12/24 5/13/2024 „ГАЛОП” д.о.о. УГОВОРИ С ИНВЕСТИТОРИМА 5,617.62
846 200-01-0010 5/10/2024 „ХЕСТИЈА” д.о.о. БАЊА ЛУКА УГОВОРИ С ИНВЕСТИТОРИМА 24,326.23
847 49-07/24 7/9/2024 „ИНДУСТРОПРОЈЕКТ” а.д. ИЗРАДА ГЛАВНОГ ПРОЈЕКАТА ЗА ИЗГРАДЊУ ВОДОВОДНЕ И КАНАЛИЗАЦИОНЕ МРЕЖЕ 2,501.90
848 24-330-001900 5/31/2024 „САТВОРК” д.о.о. РАЧУН БРОЈ 24-330-001900 ЗА МАЈ 2024. 11,700.00
849 24-330-002683 7/31/2024 „САТВОРК” д.о.о. РАЧУН БРОЈ 24-330-002683 ЗА ЈУЛ 2024. 11,700.00
850 5/23/2024 5/31/2024 „РЕД БРИК ГРАДЊА” д.о.о. БАЊА ЛУКА УГОВОРИ С ИНВЕСТИТОРИМА 55,800.00
851 6/3/2024 6/4/2024 „РЕД БРИК ГРАДЊА” д.о.о. БАЊА ЛУКА УГОВОРИ С ИНВЕСТИТОРИМА 12,513.30
852 1/24 5/31/2024 „ТРИГОН” д.о.о. УГОВОРИ С ИНВЕСТИТОРИМА 125,929.30
853 2/24 5/31/2024 „ТРИГОН” д.о.о. УГОВОРИ СА ИНВЕСТИТОРИМА 15,363.52
854 8/9/2024 9/13/2024 „АЛФА КОНСАЛТИНГ” д.о.о. ОБРАЗОВНИ СЕМИНАР - ПРОФЕСИОНАЛНА КОМУНКАЦИЈА, КОМУНИКАЦИЈСКЕ ТЕХНИКЕ И ПРОДАЈНЕ ВЈЕШТИНЕ 3,300.00
855 24-360-000016 6/20/2024 „КОЛОРТИ 3Д” с.п. ПОПРАВКА ФАСАДНОГ ОМОТАЧА НА ДОМУ ОМЛАДИНЕ 2,520.00
856 Ф-6022-06/2024 7/1/2024 „ВМАРХ+” д.о.о. ИЗРАДА ТИПСКИХ ИДЕЈНИХ ПРОЈЕКАТА ЗА ИЗГРАДЊУ ДЈЕЧИЈИХ ИГРАЛИШТА 5,850.00
857 10/1/2024 7/4/2024 ДЕВОТИОН МЕДИА УСЛУГА ПРОМОЦИЈЕ ПУТЕМ ИНТЕРНЕТ ПОРТАЛА 1,000.00
858 8/1/2024 6/15/2024 ДЕВОТИОН МЕДИА УСЛУГА ПРОМОЦИЈЕ ПУТЕМ ИНТЕРНЕТ ПОРТАЛА 1,000.00
859 182/2024 7/3/2024 „НИНАМЕДИЈА” д.о.о. ПРЕС КЛИПИНГ 585.00
860 213/2024 8/3/2024 „НИНАМЕДИЈА” д.о.о. ПРЕС КЛИПИНГ 585.00
861 3282 7/12/2024 „УНИВЕРЗАЛНО” д.о.о. НАБАВКА ФОТОГРАФСКЕ ОПРЕМЕ 1,532.70
862 1276-001011-269 8/12/2024 ХОТЕЛ АНТУНОВИЋ ЗАГРЕБ ПРЕДРАЧУН ЗА СМЈЕШТАЈ ЗА 7 ОСОБА 2,058.04
863 ИФ-00040-4-24 И привремена ситуација 8/5/2024 „ЛЕОТАР ИНЖЕЊЕРИНГ” д.о.о. РЕКОНСТРУКЦИЈА ОШ „МИЛАН РАКИЋ” 127,387.26
864 8/1/2024 8/7/2024 „С-ЕЛ МОНТ” ДЕЈАН СТАКИЋ с.п. НАБАВКА И УГРАДЊА ЕЛЕКТРИЧНОГ МОТОРА ЗА ВРАТА У ЈАВНОЈ ГАРАЖИ БОРИК 1,280.00
865 07/24 8/15/2024 „М.Б.С.” ЈОВИЦА БРКИЋ с.п. УСЛУГА ИЗРАДЕ КУТИЈИЦА СА СИМБОЛОМ ГРАДА 5,940.00
866 4/24 9/16/2024 „ДЕКОРЕНТ” с.п. УСЛУГА ОРГАНИЗАЦИЈА ДОГАЂАЈА 3,225.00
867 ИФ-00127-1-24 8/29/2024 „РАКИЋ АДВИСОРY” д.о.о. ПОРЕСКО САВЈЕТОВАЊЕ 1,170.00
868 2024-0009 9/12/2024 „МОНИНЕРИ” МИЛАН БАЊАЦ с.п. УСЛУГЕ СНИМАЊА И ИЗРАДЕ АУДИО-ВИЗУЕЛНОГ ПРОМОТИВНОГ СПОТА 4,680.00
УКУПНО: 13,000,253.35
РБ Број фактуре Датум издавања фактуре Назив добављача Опис услуге Укупан износ фактуре са ПДВ-ом
1 ИФ-24-0558 7/28/2024   „ОРКА” ОДРЖАВАЊЕ ЕДМWС СИСТЕМА ЗА 01. 07 -31. 07. 2024. 585.00
2 ИФ-24-0684 8/6/2024   „ОРКА” ОДРЖАВАЊЕ ЕДМWС СИСТЕМА ЗА 01. 08 -06. 08. 2024. 113.23
3 24-300-004875 8/16/2024 „ДЕФТЕР” д.о.о. САРАЈЕВО ГИК-ДЕФТЕР 4,004.21
4 24-300-004994 8/23/2024 „ДЕФТЕР” д.о.о. САРАЈЕВО ГИК-ДЕФТЕР 1,787.29
5 24-300-004993 8/23/2024 „ДЕФТЕР” д.о.о. САРАЈЕВО ДЕФТЕР-ГИК УГОВОР БР: 11-Г-3644/24, ГОРЕНАВЕДЕНИ УГОВОР ЈЕ ПОГРЕШНО УНЕСЕН 1,685.97
6 24-300-00517 9/2/2024 „ДЕФТЕР” д.о.о. САРАЈЕВО НАБАВКА ПРИБОРА ЗА ОДРЖАВАЊЕ ХИГИЈЕНЕ 3,146.20
7 038-112-2/24 6/24/2024 „НОВА БАНКА” а.д. БАЊА ЛУКА НАКНАДА ПО ГАРАНЦИЈИ БРОЈ 107-17072022 МФ БАНКА 50.00
8 316781033 6/30/2024 „НОВА БАНКА” а.д. БАЊА ЛУКА ТРАНСФЕР СРЕДСТАВА УНУТАР БАНКЕ, БЕЗГОТ. ТРАНСФЕР ВАН БАНКЕ И НАКНАДА ЗА ВОЂЕЊЕ РАЧУНА 8.60
9 316769839 6/30/2024 „НОВА БАНКА” а.д. БАЊА ЛУКА ТРАНСФЕР СРЕДСТАВА УНУТАР БАНКЕ, БЕЗГОТ. ТРАНСФЕР ВАН БАНКЕ И НАКНАДА ЗА ВОЂЕЊЕ РАЧУНА 517.10
10 148 10/4/2024 ЈУ СПОРТСКИ ЦЕНТАР „БОРИК БАЊА ЛУКА ЗАКУП ДВОРАНЕ 5,248.21
11 п2123/24 10/14/2024 „РЕЦ д.о.о.” - РЕФАМ ЦРЕАТИВЕ СОЛУТИОНС КОТИЗАЦИЈА ЗА СЕМИНАР 310.00
12 05050001-1142/24 6/25/2024 ДОМ ЗДРАВЉА ЈЗУ БАЊА ЛУКА САНИТЕТСКО ОБЕЗБЈЕЂЕЊЕ ЕКИПЕ 3,500.00
13 05050001-1286/24 7/22/2024 ДОМ ЗДРАВЉА ЈЗУ БАЊА ЛУКА САНИТЕТСКО ОБЕЗБЈЕЂЕЊЕ ЕКИПЕ 200.00
14 05050001-1283/24 7/22/2024 ДОМ ЗДРАВЉА ЈЗУ БАЊА ЛУКА САНИТЕТСКО ОБЕЗБЈЕЂЕЊЕ ЕКИПЕ 200.00
15 24-3070-001951 9/10/2024 „ТРИ БЕСТ” д.о.о. БАЊА ЛУКА СЕРВИС ЛИФТА 421.20
16 3007/24 1 привремена ситуација 9/17/2024 „КОЗАРАПУТЕВИ” а.д. САНАЦИЈА МОСТА У МИШИНОМ ХАНУ 25,283.91
17 2864 окончана ситуација 8/30/2024 „КОЗАРАПУТЕВИ” а.д. ОКОНЧАНА СИТУАЦИЈА БРОЈ 2864/24 ОД 30. 08. 2024. 24,806.05
18 00560/2024 8/25/2024 ХОТЕЛ „ПАЛАС” БАЊА ЛУКА ХОТЕЛСКИ СМЈЕШТАЈ - ОБАВЈЕШТЕЊЕ: 320-9-2-3-22-121/23 247.50
19 00556/2024 8/23/2024 ХОТЕЛ „ПАЛАС” БАЊА ЛУКА ХОТЕЛСКИ СМЈЕШТАЈ - ОБАВЈЕШТЕЊЕ: 320-9-2-3-22-121/24 495.00
20 00555/2024 8/23/2024 ХОТЕЛ „ПАЛАС” БАЊА ЛУКА ХОТЕЛСКИ СМЈЕШТАЈ - ОБАВЈЕШТЕЊЕ: 320-9-2-3-22-121/24 640.00
21 00519/2024 8/5/2024 ХОТЕЛ „ПАЛАС” БАЊА ЛУКА СМЈЕШТАЈ - ОБАВЈЕШТЕЊЕ: 320-9-2-3-22-121-24 550.00
22 2651 9/9/2024 „КЕЦКОМ” д.о.о. ПРИБОР ЗА ОДРЖАВАЊЕ ХИГИЈЕНЕ 2,021.18
23 2733 9/17/2024 „КЕЦКОМ” д.о.о. ПРИБОР ЗА ОДРЖАВАЊЕ ХИГИЈЕНЕ 921.38
24 2962 10/9/2024 „КЕЦКОМ” д.о.о. ПРИБОР ЗА ОДРЖАВАЊЕ ХИГИЈЕНЕ 1,175.85
25 1/24/6024 10/2/2024 „ЛАНАКО” БАЊА ЛУКА НАЈАМ И ОДРЖАВАЊЕ СОФТВЕРСКЕ ПЛАТФОРМЕ ЗА ПОДРШКУ ПОСЛОВНИМ ПРОЦЕСИМА ПАРКИНГ СЛУЖБЕ ЗА МЈЕСЕЦ АВГУСТ 2024. ГОД. 7,958.98
26 1/24/5989 9/30/2024 „ЛАНАКО” БАЊА ЛУКА ОДРЖАВАЊЕ СОФТВЕРСКЕ ПЛАТФОРМЕ ЗА ПОДРШКУ ПОСЛОВНИМ ПРОЦЕСИМА ПАРКИНГ СЛУЖБЕ ЗА МЈЕСЕЦ СЕПТЕМБАР 2024. ГОД. 6,145.83
27 1/24/5243 8/29/2024 „ЛАНАКО” БАЊА ЛУКА РАЧУН БРОЈ 1-5243/24 ОД 29. 08. 2024. ЗА АВГУСТ 2024. 582.66
28 1/24/5270 8/29/2024 „ЛАНАКО” БАЊА ЛУКА НАЈАМ И ОДРЖАВАЊЕ СОФТВЕРСКЕ ПЛАТФОРМЕ ЗА ПОДРШКУ ПОСЛОВНИМ ПРОЦЕСИМА ПАРКИНГЕ СЛУЖБЕ 6,145.83
29 1/24/4869 8/13/2024 „ЛАНАКО” БАЊА ЛУКА ССЛ СЕРТИФИКАТ ЗА ГИС 175.50
30 1/24/5242 8/29/2024 „ЛАНАКО” БАЊА ЛУКА ОДРЖАВАЊЕ АПЛИКАЦИЈЕ „ШИХТЕРИЦА” ЗА АВГУСТ 2024. 418.86
31 1/24/5272 8/29/2024 „ЛАНАКО” БАЊА ЛУКА КОНТРОЛА ИНТЕРНЕТ САОБРАЋАЈА ЗА АВГУСТ 2024. 585.00
32 1/24/4580 7/30/2024 „ЛАНАКО” БАЊА ЛУКА ОДРЖАВАЊЕ АПЛИКАЦИЈЕ „ШИХТЕРИЦА” ЗА ЈУЛ 2024. 418.86
33 1/24/4587 7/30/2024 „ЛАНАКО” БАЊА ЛУКА НАПРЕДНА ЦЕНТРАЛА УСЛУГА КОЛОКАЦИЈЕ ИКТ ОПРЕМЕ ЗА МЈЕСЕЦ ЈУЛ 2024. 2,925.00
34 1/24/4623 7/30/2024 „ЛАНАКО” БАЊА ЛУКА КОНТРОЛА ИНТЕРНЕТ САОБРАЋАЈА ЗА ЈУЛ 2024. 585.00
35 1/24/3937 6/28/2024 „ЛАНАКО” БАЊА ЛУКА МИГРАЦИЈА ИНФРАСТРУКТУРЕ НА ДАТА ЦЕНТАР ЕКСТЕРНОГ ПАРТНЕРА ЗА ЈУН 2024. 14,625.00
36 ПРЕДРАЧУН 328364 9/15/2024  „ЕЛЕКТРОКРАЈИНА“ а.д. БАЊА ЛУКА ПРЕДРАЧУН ЗА ИЗДАВАЊЕ ЕЕС ЗА СТАН БР. 34 У УЛ. КРАЈИШКЕ БРИГАДЕ 5 45.63
37 736 7/22/2024 „ГРАФОТЕКС” д.о.о. БАЊА ЛУКА ИЗРАДА ПЕЧАТА И ШТАМБИЉА 78.21
38 802/24 8/14/2024 „ГРАФОТЕКС” д.о.о. БАЊА ЛУКА ИЗРАДА ПЕЧАТА 139.65
39 у24-0377 8/29/2024 „ТЕЛЕГРУП” д.о.о. БАЊА ЛУКА ОДРЖАВАЊЕ МРЕЖНЕ ОПРЕМЕ ЗА АВГУСТ 2024. ГОДИНЕ 778.80
40 YФ 01/2414000414 8/28/2024  „СЕЦТОР СЕЦУРИТY” д.о.о. БАЊА ЛУКА ОБЕЗБЈЕЂЕЊЕ СКУПОВА 7,020.00
41 yф 01/2414000476 9/12/2024  „СЕЦТОР СЕЦУРИТY” д.о.о. БАЊА ЛУКА ОБЕЗБЈЕЂЕЊЕ СКУПОВА 42,985.50
42 YФ 01/2414000513 9/30/2024  „СЕЦТОР СЕЦУРИТY” д.о.о. БАЊА ЛУКА ОБЕЗБЈЕЂЕЊЕ СКУПОВА 1,404.00
43 24-362-000042 9/2/2024 „АКВАНА” д.о.о. БАЊА ЛУКА РЕПРЕЗЕНТАЦИЈА 306.00
44 24-362-000044 9/19/2024 „АКВАНА” д.о.о. БАЊА ЛУКА РЕПРЕЗЕНТАЦИЈА 810.70
45 24-300-0089 9/9/2024 „ЕЛЕКТРО ТИМ” д.о.о. БАЊА ЛУКА УПРАВЉАЊЕ ЈАВНОМ РАСВЈЕТОМ 7,304.87
46 111/1/4/2024 4/29/2024 ИНСТИТУТ ЗА ГРАЂЕВИНАРСТВО ИГ БАЊА ЛУКА СТРУЧНИ НАДЗОР - РЕКОНСТРУКЦИЈА СУБОТИЧКЕ, ШЕСТА ПРИВРЕМЕНА СИТУАЦИЈА 765.65
47 ИФ-00513-1-24 9/24/2024 АПИФ БАЊА ЛУКА ИЗВОД ИЗ ЈРР БР: 19-017-3459/20 17.55
48 ИФ-00512-1-24 9/24/2024 АПИФ БАЊА ЛУКА ИЗВОД ИЗ ЈРР БР: 19-017-2086/22 17.55
49 ИФ-00511-1-24 9/24/2024 АПИФ БАЊА ЛУКА ИЗВОД ИЗ ЈРР БР: 19-017-493/20 17.55
50 1975/2024 7/26/2024 ЦЕНТРАЛНИ РЕГИСТАР ХАРТИЈА ОД ВРИЈЕДНОСТИ а.д. ОБАВЉАЊЕ ПОСЛОВА ПЛАТНОГ АГЕНТА ЗА ДУЖНИЧКЕ ХОВ 692.00
51 1925/2024 7/16/2024 ЦЕНТРАЛНИ РЕГИСТАР ХАРТИЈА ОД ВРИЈЕДНОСТИ а.д. ОБАВЉАЊЕ ПОСЛОВА ПЛАТНОГ АГЕНТА ЗА ДУЖНИЧКЕ ХОВ 30.00
52 1784/2024 6/30/2024 ЦЕНТРАЛНИ РЕГИСТАР ХАРТИЈА ОД ВРИЈЕДНОСТИ а.д. ВОЂЕЊЕ РЕГИСТРА ДУГОВАЊА ДУЖНИКА ХАРТИЈА ОД ВРИЈЕДНОСТИ ПРЕКО 5.000.00 КМ 250.00
53 иф-03335-01-24 8/15/2024 „ПРИМАПРОМ” д.о.о. БАЊА ЛУКА КАНЦЕЛАРИЈСКИ МАТЕРИЈАЛ 16.91
54 ИФ-02433-01-24 6/14/2024 „ПРИМАПРОМ” д.о.о. БАЊА ЛУКА ШТАМПАЊЕ КЊИГА ЗА ПОТРЕБЕ ВАТРОГАСНЕ ЈЕДИНИЦЕ 839.48
55 6/1/2024 7/2/2024 „УНИКРЕДИТ БАНКА” а.д. БАЊА ЛУКА НИСКИ НИВО РИЗИКА, ЖИРО КРИЛИНГ, РТГС И МЈЕСЕЧНА НАКНАДА ЗА ВОЂЕЊЕ РАЧУНА 140.70
56 6/1/2024 7/2/2024 „УНИКРЕДИТ БАНКА” а.д. БАЊА ЛУКА НИСКИ НИВО РИЗИКА, ЖИРО КРИЛИНГ, РТГС И МЈЕСЕЧНА НАКНАДА ЗА ВОЂЕЊЕ РАЧУНА 115.70
57 01/24ТО102120 9/18/2024 „СЛАДАБОНИ” д.о.о. КЊИЖАРА КУЛТУРА БАЊА ЛУКА  СЕРВИС ВАТРОГАСНОГ ВОЗИЛА М17-О-009 1,164.20
58 4033422084 8/31/2024 РАДИО ТЕЛЕВИЗИЈА РЕПУБЛИКЕ СРПСКЕ БАЊА ЛУКА РТРС 08/2024 7.50
59 5034294084 8/31/2024 РАДИО ТЕЛЕВИЗИЈА РЕПУБЛИКЕ СРПСКЕ БАЊА ЛУКА РТРС 08/2024 7.50
60 5017153084 8/31/2024 РАДИО ТЕЛЕВИЗИЈА РЕПУБЛИКЕ СРПСКЕ БАЊА ЛУКА РТРС 08/2024 7.50
61 5034294074 7/31/2024 РАДИО ТЕЛЕВИЗИЈА РЕПУБЛИКЕ СРПСКЕ БАЊА ЛУКА РТРС 07/2024 7.50
62 5017153074 7/31/2024 РАДИО ТЕЛЕВИЗИЈА РЕПУБЛИКЕ СРПСКЕ БАЊА ЛУКА РТРС 07/2024 7.50
63 4033422074 7/31/2024 РАДИО ТЕЛЕВИЗИЈА РЕПУБЛИКЕ СРПСКЕ БАЊА ЛУКА РТРС 07/2024 7.50
64 70-206/2024 9/27/2024 „МИЛТЕКС” д.о.о. БАЊА ЛУКА УНИФОРМА 13,560.18
65 863 8/31/2024 КАБ ОМЛАДИНСКА ЗАДРУГА БАЊА ЛУКА ПОВРЕМЕНИ ПОСЛОВИ 125.38
66 1206/24-02с 8/21/2024 „ЛАДА АУТО” БАЊА ЛУКА СЕРВИС ВОЗИЛА 78.39
67 1205/24-02с 8/21/2024 „ЛАДА АУТО” БАЊА ЛУКА СЕРВИС ВОЗИЛА 207.84
68 1382/24-02с 9/20/2024 „ЛАДА АУТО” БАЊА ЛУКА СЕРВИС ВОЗИЛА 286.65
69 1381/24-02с 9/20/2024 „ЛАДА АУТО” БАЊА ЛУКА СЕРВИС ВОЗИЛА 286.65
70 1380/24-02с 9/20/2024 „ЛАДА АУТО” БАЊА ЛУКА СЕРВИС ВОЗИЛА 808.39
71 1379/24-02с 9/20/2024 „ЛАДА АУТО” БАЊА ЛУКА СЕРВИС ВОЗИЛА 399.55
72 1386/24-02с 9/20/2024 „ЛАДА АУТО” БАЊА ЛУКА СЕРВИС ВОЗИЛА 725.40
73 1384/24-02с 9/20/2024 „ЛАДА АУТО” БАЊА ЛУКА СЕРВИС ВОЗИЛА 458.86
74 1383/24-02с 9/20/2024 „ЛАДА АУТО” БАЊА ЛУКА СЕРВИС ВОЗИЛА 115.49
75 24-3600-001144 7/29/2024 ИНСТИТУТ ЗА ЗАШТИТУ И ЕКОЛОГИЈУ РС ЗАШТИТА ОД ПОЖАРА 1,170.00
76 24-3600-000867 6/7/2024 ИНСТИТУТ ЗА ЗАШТИТУ И ЕКОЛОГИЈУ РС МЈЕРЕЊЕ КВАЛИТЕТА ВАЗДУХА 2,101.04
77 30401000424375 7/25/2024 „ЦЕНТРУМ ТРАДЕ” д.о.о. БАЊА ЛУКА ЦЕНТРУМ 39.75
78 30401000426918 7/30/2024 „ЦЕНТРУМ ТРАДЕ” д.о.о. БАЊА ЛУКА ЦЕНТРУМ - ЕЛЕКТРО МАТЕРИЈАЛ 41.37
79 30401000434906 8/15/2024 „ЦЕНТРУМ ТРАДЕ” д.о.о. БАЊА ЛУКА ЦЕНТРУМ 1,227.55
80 30401000434058 8/13/2024 „ЦЕНТРУМ ТРАДЕ” д.о.о. БАЊА ЛУКА ЦЕНТРУМ 2,269.27
81 ОДОБРЕЊЕ БР. 0401000434905 8/15/2024 „ЦЕНТРУМ ТРАДЕ” д.о.о. БАЊА ЛУКА СТОРНО РАЧУН, ВЕЗА ОТПРЕМНИЦА БР: 30401000434638 -918.54
82 30401000434638 8/14/2024 „ЦЕНТРУМ ТРАДЕ” д.о.о. БАЊА ЛУКА ЦЕНТРУМ 6,856.34
83 30401000449220 9/13/2024 „ЦЕНТРУМ ТРАДЕ” д.о.о. БАЊА ЛУКА НАБАВКА ЕЛЕКТРОМАТЕРИЈАЛА-ЛОТ 1 595.40
84 30401000444670 9/4/2024 „ЦЕНТРУМ ТРАДЕ” д.о.о. БАЊА ЛУКА НАБАВКА ВОДОМАТЕРИЈАЛА И САНИТАРИЈА - ЛОТ 3 27.00
85 30401000444642 9/4/2024 „ЦЕНТРУМ ТРАДЕ” д.о.о. БАЊА ЛУКА ЦЕНТРУМ 2,653.76
86 2-7587/2024 9/15/2024 „СУПЕР ПЕТРОЛ” д.о.о. БАЊА ЛУКА НАБАВКА Адблуе ТЕКУЋИНЕ ЗА ПТВСЈ 191.04
87 2-8962/2023 11/15/2023 „СУПЕР ПЕТРОЛ” д.о.о. БАЊА ЛУКА НАБАВКА ГОРИВА 29.38
88 ИВ привремена ситуација бр. 63 9/30/2024 „ГРАДИП” а.д. ПРЊАВОР ЧЕТВРТА ПРИВРЕМЕНА СИТУАЦИЈА БРОЈ 63 ОД 30. 09. 2024. 339,606.10
89 145724-314 9/2/2024 ЕУРО ЗНАК ОКОНЧАНА СИТУАЦИЈА 5,333.77
90 145724-281 8/6/2024 ЕУРО ЗНАК ВИИ ПРИВРЕМЕНА СИТУАЦИЈА 13,142.35
91 48/2024 9/2/2024 „ТАМАРИС КОМПАНИ” д.о.о. БАЊА ЛУКА ОДРЖАВАЊЕ ЈАВНИХ ЗЕЛЕНИХ ПОВРШИНА 5,733.00
92 иф-00128-1-23 5/11/2023 „РАЛЕ ТУРС” д.о.о. БАЊА ЛУКА СУБВЕНЦИЈА ЗА ЈАВНИ ПРЕВОЗ 05/23 17,822.20
93 иф-00158-1-23 6/12/2023 „РАЛЕ ТУРС” д.о.о. БАЊА ЛУКА СУБВЕНЦИЈА ЗА ЈАВНИ ПРЕВОЗ 06/23 16,853.20
94 иф-00181-1-23 7/11/2023 „РАЛЕ ТУРС” д.о.о. БАЊА ЛУКА СУБВЕНЦИЈА ЗА ЈАВНИ ПРЕВОЗ 07/23 11,431.00
95 ИФ-00188-1-23 8/14/2023 „РАЛЕ ТУРС” д.о.о. БАЊА ЛУКА СУБВЕНЦИЈА ЗА ЈАВНИ ПРЕВОЗ 08/23 12,047.30
96 иф-00234-1-23 9/11/2023 „РАЛЕ ТУРС” д.о.о. БАЊА ЛУКА СУБВЕНЦИЈА ЗА ЈАВНИ ПРЕВОЗ 09/23 18,156.60
97 ИФ-00250-1-24 10/11/2024 „РАЛЕ ТУРС” д.о.о. БАЊА ЛУКА НАКНАДА ПО УГОВОРУ 12,697.50
98 иф-00239-1-24 10/7/2024 „РАЛЕ ТУРС” д.о.о. БАЊА ЛУКА СУБВЕНЦИЈЕ 14,847.72
99 ИФ-00237-1-24 9/30/2024 „РАЛЕ ТУРС” д.о.о. БАЊА ЛУКА СУБВЕНЦИЈЕ 39,043.11
100 иф-00248-1-24 10/7/2024 „РАЛЕ ТУРС” д.о.о. БАЊА ЛУКА СУБВЕНЦИЈА 4,397.00
101 538/24 6/15/2024 „ДЕП-ОТ” д.о.о. БАЊА ЛУКА ТЕХНОЛОШКИ ОТПАД 31.09
102 788/24 8/31/2024 „ДЕП-ОТ” д.о.о. БАЊА ЛУКА ТЕХНОЛОШКИ ОТПАД 142.53
103 40-1100-2024-1556 8/20/2024 „ЕУРОМОДУС” д.о.о. ЛАКТАШИ ПОПРАВКА НА ВОЗИЛУ К15-Е-952 972.11
104 40-1100-2024-1571 8/22/2024 „ЕУРОМОДУС” д.о.о. ЛАКТАШИ ПОПРАВКА НА ВОЗИЛУ К15-Е-952 215.89
105 40-1100-2024-1616 8/28/2024 „ЕУРОМОДУС” д.о.о. ЛАКТАШИ ПОПРАВКА НА ВОЗИЛУ К15-Е-952 658.71
106 40-1100-2024-1591 8/26/2024 „ЕУРОМОДУС” д.о.о. ЛАКТАШИ ПОПРАВКА НА ВОЗИЛУ А50-О-843 7,640.10
107 81-2034/2024 8/15/2024 ГЛАС СРПСКЕ БАЊА ЛУКА ОБЈАВА ОГЛАСА О ИЗДАВАЊУ У ЗАКУП ПОСЛОВНОГ ПРОСТОРА БР. 4 У УЛ. К. П. И КАРАЂОРЂЕВИЋА БР. 23 611.33
108 81-2223/2024 9/2/2024 ГЛАС СРПСКЕ БАЊА ЛУКА ОБЈАВА У МЕДИЈИМА КОНКУРСА ЗА СТИПЕНДИЈЕ 778.05
109 81-2290/2024 9/10/2024 ГЛАС СРПСКЕ БАЊА ЛУКА ПЛАЋАЊЕ ОБАВЈЕШТЕЊА ДА ЈЕ НАЦРТ ИЗМЈЕНЕ ДИЈЕЛА РЕГ. ПЛАНА „РЕГИОНАЛНИ ЦЕНТАР” ИЗЛОЖЕН НА ЈАВНИ УВИД 166.73
110 81-2284/2024 9/9/2024 ГЛАС СРПСКЕ БАЊА ЛУКА ПЛАЋАЊЕ ОБАВЈЕШТЕЊА О ОДРЖАВАЊУ ЈАВНЕ РАСПРАВЕ О НАЦРТУ ИЗМЈЕНЕ ДИЈЕЛА РЕГ. ПЛАНА „ЛАЗАРЕВО 4” 166.73
111 81-1968/2024 8/6/2024 ГЛАС СРПСКЕ БАЊА ЛУКА ПЛАЋАЊЕ ОБАВЈЕШТЕЊА ДА ЈЕ НАЦРТ ИЗМЈЕНЕ ДИЈЕЛА РЕГ. ПЛАНА „ЈУГ 3” ИЗЛОЖЕН НА ЈАВНИ УВИД 166.73
112 81-1875/2024 7/26/2024 ГЛАС СРПСКЕ БАЊА ЛУКА ПЛАЋАЊЕ ОБАВЈЕШТЕЊА О ОДРЖАВАЊУ ЈАВНЕ РАСПРАВЕ О НАЦРТУ ИЗМЈЕНЕ ДИЈЕЛА РЕГ. ПЛАНА „ЛАЗАРЕВО 4” 166.73
113 81-2875/2023 10/5/2023 ГЛАС СРПСКЕ БАЊА ЛУКА ПЛАЋАЊЕ ОБАВЈЕШТЕЊА О ОДРЖАВАЊУ ЈАВНЕ РАСПРАВЕ О НАЦРТУ ИЗМЈЕНЕ ДИЈЕЛА РЕГ. ПЛАНА „ЛАЗАРЕВО 3” 333.45
114 81-1828/2024 7/22/2024 ГЛАС СРПСКЕ БАЊА ЛУКА ПЛАЋАЊЕ ОБАВЈЕШТЕЊА О ОДРЖАВАЊУ ЈАВНЕ РАСПРАВЕ О НАЦРТИ ИЗМЈЕНЕ ДИЈЕЛА РЕГ. ПЛАНА „БОРИК” 333.45
115 81-1840/2024 7/24/2024 ГЛАС СРПСКЕ БАЊА ЛУКА ПЛАЋАЊЕ ОБАВЈЕШТЕЊА О ОДРЖАВАЊУ ЈАВНЕ РАСПРАВЕ О НАЦРТУ ИЗМЈЕНЕ ДИЈЕЛА РЕГ. ПЛАНА „ЦЕНТАР ИСТОК” 333.45
116 81-1851/2024 7/24/2024 ГЛАС СРПСКЕ БАЊА ЛУКА ПЛАЋАЊЕ ОБАВЈЕШТЕЊА ДА ЈЕ НАЦРТ ИЗМЈЕНЕ ДИЈЕЛА РЕГ. ПЛАНА „ЦЕНТАР ИСТОК” ИЗЛОЖЕН НА ПОНОВНИ ЈАВНИ УВИД 166.73
117 УСЛ-00158-1-24 8/22/2024 РОУТИНГ ДОО БАЊА ЛУКА ПЛАЋАЊЕ ОБАВЈЕШТЕЊА О ОДРЖАВАЊУ ЈАВНЕ РАСПРАВЕ О НАЦРТ ИЗМЈЕНЕ ДИЈЕЛА РЕГ. ПЛАНА „ЛАЗАРЕВО 4” 5,733.00
118 001-0284 9/6/2024 „АБЦ СОЛУТИОНС” д.о.о. БАЊА ЛУКА ИНВЕСТИЦИОНО ОДРЖАВАЊЕ ЈАВНЕ РАСВЈЕТЕ 7,236.45
119 001-0275 9/3/2024 „АБЦ СОЛУТИОНС” д.о.о. БАЊА ЛУКА ИЗГРАДЊА ЈР У ТРАПИСТИМА 29,240.64
120 140/24 7/18/2024 ВЕТ ЦЕНТАР ХИГИЈЕНИЧАРСКА СЛУЖБА 6,949.80
121 20/24 8/28/2024 ВЕТ ЦЕНТАР ХИГИЈЕНИЧАРСКА СЛУЖБА 10,480.98
122 1354 9/12/2024 ЦЕНТАР ЗА ПРОФЕСИОНАЛНУ РЕХАБИЛИТАЦИЈУ И ЗАПОСЉАВАЊЕ ИНВАЛИДА а.д. БАЊА ЛУКА КАНЦЕЛАРИЈСКИ МАТЕРИЈАЛ 4,236.57
123 ИФ-203/24 9/10/2024 „ХКП КОНСАЛТИНГ” д.о.о. БАЊА ЛУКА РЕВИЗИЈА ГЛАВНОГ ПРОЈЕКТА 305.35
124 ИФ-219/24 9/30/2024 „ХКП КОНСАЛТИНГ” д.о.о. БАЊА ЛУКА ПРОЦЈЕНА ТРЖИШНЕ ВРИЈЕДНОСТИ ДИЈЕЛА СТАКЛЕНЕ БАШТЕ И ПАРЦЕЛЕ К. Ч. 723/2 К. О. БУЏАК НА ЛОКАЦИЈИ КОД ЈЕЛШИНГРАДА ЗА ИЗГРАДЊУ ПРИСТУПНЕ САОБРАЋАЈНИЦЕ 2,094.30
125 иф-79/24 4/24/2024 „ХКП КОНСАЛТИНГ” д.о.о. БАЊА ЛУКА РАЧУН БРОЈ ИФ-79/24 ОД 24. 04. 2024. 631.80
126 17591/2024 8/28/2024 „ВИВИЈА ОФИС & ХОМЕ” д.о.о. БАЊА ЛУКА СЕТ ВОДА И ЧАШЕ 209.00
127 01-15607/24 9/6/2024 „ВИВИЈА ОФИС & ХОМЕ” д.о.о. БАЊА ЛУКА НАБАВКА ВОДЕ ЗА ПИЋЕ 4,351.79
128 ИФ-00236-1-24 9/11/2024 АУТОПРЕВОЗ ГРАДСКИ САОБРАЋАЈ д.о.о. МЈЕСЕЧНЕ КАРТЕ ЗА СЕПТЕМБАР 2024. ЗА УЧЕНИКЕ РОМСКЕ ПРИПАДНОСТИ 100.00
129 иф-00254-1-24 10/4/2024 АУТОПРЕВОЗ ГРАДСКИ САОБРАЋАЈ д.о.о. СУБВЕНЦИЈЕ 2,699.58
130 иф-00252-1-24 9/30/2024 АУТОПРЕВОЗ ГРАДСКИ САОБРАЋАЈ д.о.о. СУБВЕНЦИЈЕ 76,935.18
131 ИФ-00253-1-24 10/4/2024 АУТОПРЕВОЗ ГРАДСКИ САОБРАЋАЈ д.о.о. МЈЕСЕЧНЕ КАРТЕ 10,315.64
132 ИФ-00272-1-24 10/11/2024 АУТОПРЕВОЗ ГРАДСКИ САОБРАЋАЈ д.о.о. НАКНАДА ПО ОСНОВУ РАЗЛИКЕ ЦИЈЕНЕ 17,502.06
133 иф-00250-1-23 9/12/2023 АУТОПРЕВОЗ ГРАДСКИ САОБРАЋАЈ д.о.о. СУБВЕНЦИЈА ЗА ЈАВНИ ПРЕВОЗ 90.00
134 иф-00259-1-23 9/13/2023 АУТОПРЕВОЗ ГРАДСКИ САОБРАЋАЈ д.о.о. СУБВЕНЦИЈА ЗА ЈАВНИ ПРЕВОЗ 09/23 34,668.20
135 ИФ-00230-1-23 8/15/2023 АУТОПРЕВОЗ ГРАДСКИ САОБРАЋАЈ д.о.о. СУБВЕНЦИЈА ЗА ЈАВНИ ПРЕВОЗ 08/23 25,022.23
136 ИФ-00134-1-23 5/15/2023 АУТОПРЕВОЗ ГРАДСКИ САОБРАЋАЈ д.о.о. СУБВЕНЦИЈА ЗА ЈАВНИ ПРЕВОЗ 05/23 34,369.62
137 ИФ-00177-1-23 6/13/2023 АУТОПРЕВОЗ ГРАДСКИ САОБРАЋАЈ д.о.о. СУБВЕНЦИЈА ЗА ЈАВНИ ПРЕВОЗ 06/23 33,213.16
138 иф-00201-1-23 7/12/2023 АУТОПРЕВОЗ ГРАДСКИ САОБРАЋАЈ д.о.о. СУБВЕНЦИЈА ЗА ЈАВНИ ПРЕВОЗ 07/23 26,074.55
139 иф24-0059 9/2/2024 „ДВЦ СОЛУТИОНС” д.о.о. ОДРЖАВАЊЕ АПЛИКАЦИЈЕ „ГРАЂАНСКА ПАТРОЛА” - ЗА СЕПТЕМБАР 2024. (5/12) 585.00
140 ИФ24-0055 8/1/2024 „ДВЦ СОЛУТИОНС” д.о.о. ОДРЖАВАЊЕ АПЛИКАЦИЈЕ „ГРАЂАНСКА ПАТРОЛА” - ЗА АВГУСТ 2024. (4/12) 585.00
141 85/24 10/1/2024 „ЕЛТА МЕДИЈА ГРУП” д.о.о. 4,680.00
142 0076/24 9/16/2024 „ПРОФИНГ” д.о.о. ЗАКУП ЗА САТЕЛИТ 1,539.72
143 мфк-00020-12-24 5/4/2024 „РОЛЕ” с.п. ЈН-ИЗБОР РЕСТОРАНА ЗА УГОСТИТЕЉСКЕ УСЛУГЕ ЗА ПРОТОКОЛАРНЕ ДОГАЂАЈЕ 15-404-463/23 1,114.50
144 мфк-00019-12-24 4/25/2024 „РОЛЕ” с.п. ЈН-ИЗБОР РЕСТОРАНА ЗА УГОСТИТЕЉСКЕ УСЛУГЕ ЗА ПРОТОКОЛАРНЕ ДОГАЂАЈЕ 15-404-463/23 2,232.51
145 24-3400-000132 7/31/2024 АУТО-СЕРВИС „ЖУЛЕ” БАЊА ЛУКА СЕРВИС ВОЗИЛА Т04-А-026 1,238.60
146 24-3400-000128 7/31/2024 АУТО-СЕРВИС „ЖУЛЕ” БАЊА ЛУКА СЕРВИС ВОЗИЛА 056К489 165.10
147 24-3400-000095 7/8/2024 АУТО-СЕРВИС „ЖУЛЕ” БАЊА ЛУКА СЕРВИС ВОЗИЛА М36-Ј-511 19.20
148 24-3400-000115 7/24/2024 АУТО-СЕРВИС „ЖУЛЕ” БАЊА ЛУКА СЕРВИС ВОЗИЛА М57-А-850 648.50
149 24-3400-000118 7/25/2024 АУТО-СЕРВИС „ЖУЛЕ” БАЊА ЛУКА СЕРВИС ВОЗИЛА М36-Ј-511 249.80
150 24-3400-000119 7/25/2024 АУТО-СЕРВИС „ЖУЛЕ” БАЊА ЛУКА СЕРВИС ВОЗИЛА К65-М-313 249.80
151 24-3400-000155 8/31/2024 АУТО-СЕРВИС „ЖУЛЕ” БАЊА ЛУКА СЕРВИС ВОЗИЛА 358-Т-846 627.00
152 24-3400-000158 9/6/2024 АУТО-СЕРВИС „ЖУЛЕ” БАЊА ЛУКА СЕРВИС ВОЗИЛА 864-К-672 1,957.50
153 24-3400-000167 9/13/2024 АУТО-СЕРВИС „ЖУЛЕ” БАЊА ЛУКА СЕРВИС ВОЗИЛА 864-К-672 232.80
154 25/24 8/30/2024 „ВИП ЕЛЕКТРО” БАЊА ЛУКА ОДРЖАВАЊЕ ЈАВНИХ САТОВА 807.30
155 7/1/2024 7/23/2024 ЗАЈЕДНИЦА ЕТАЖНИХ ВЛАСНИКА КРАЉА АЛФОНСА 13 БР. 31 БАЊА ЛУКА ЗЕВ 06/24 41.80
156 6/1/2024 7/23/2024 ЗАЈЕДНИЦА ЕТАЖНИХ ВЛАСНИКА КРАЉА АЛФОНСА 13 БР. 31 БАЊА ЛУКА ЗЕВ 06/24 41.80
157 333/2024 7/17/2024 ЗЕВ РЕЉЕ КРИЛАТИЦЕ 3 БАЊА ЛУКА РАЧУН ЗА ВИ 2024. ЗА П. П. БР. 111 9.40
158 267 6/18/2024 ЗЕВ РЕЉЕ КРИЛАТИЦЕ 3 БАЊА ЛУКА РАЧУН ЗА В 2024. ЗА П. П. БР. 111 У УЛ. Р. КРИЛАТИЦЕ БР. 3 9.40
159 399/2024 8/19/2024 ЗЕВ РЕЉЕ КРИЛАТИЦЕ 3 БАЊА ЛУКА РАЧУН ЗА ВИИ 2024. ЗА П. П. БР. 111 9.40
160 465/2024 9/17/2024 ЗЕВ РЕЉЕ КРИЛАТИЦЕ 3 БАЊА ЛУКА РАЧУН ЗА ВИИИ 2024. ЗА П. П. БР. 111 9.40
161 44/24 8/31/2024 ЗАЈЕДНИЦА ЕТАЖНИХ ВЛАСНИКА БУЛЕВАР ВОЈВОДЕ ЖИВОЈИНА МИШИЋА 31 БАЊА ЛУКА ЗЕВ 08/2024 74.70
162 35/24 7/31/2024 ЗАЈЕДНИЦА ЕТАЖНИХ ВЛАСНИКА БУЛЕВАР ВОЈВОДЕ ЖИВОЈИНА МИШИЋА 31 БАЊА ЛУКА ЗЕВ 07/2024 74.70
163 17/24 5/31/2024 ЗАЈЕДНИЦА ЕТАЖНИХ ВЛАСНИКА БУЛЕВАР ВОЈВОДЕ ЖИВОЈИНА МИШИЋА 31 БАЊА ЛУКА ЗЕВ 05/2024 74.70
164 90/24 5/31/2024 ЗЕВ РОМАНИЈСКА 1 Ф БАЊА ЛУКА РАЧУН ЗА В 2024. ЗА СТАН БР. 14 У УЛ. РОМАНИЈСКА БР. 1 Ф 16.00
165 109/24 6/30/2024 ЗЕВ РОМАНИЈСКА 1 Ф БАЊА ЛУКА РАЧУН ЗА ВИ 2024. ЗА СТАН БР. 14 16.00
166 128/24 7/31/2024 ЗЕВ РОМАНИЈСКА 1 Ф БАЊА ЛУКА РАЧУН ЗА ВИИ 2024. ЗА СТАН БР. 14 16.00
167 147/24 8/31/2024 ЗЕВ РОМАНИЈСКА 1 Ф БАЊА ЛУКА РАЧУН ЗА ВИИИ 2024. ЗА СТАН БР. 14 16.00
168 33-1000191 8/2024 8/31/2024 „ЕКО ТОПЛАНЕ” д.о.о. БАЊА ЛУКА ГРИЈАЊЕ 08/2024 305.44
169 33-1001473 8/2024 8/31/2024 „ЕКО ТОПЛАНЕ” д.о.о. БАЊА ЛУКА ИСПОРУЧЕНА ТОПЛОТНА ЕНЕРГИЈА 123.72
170 33-31924 8/2024 8/31/2024 „ЕКО ТОПЛАНЕ” д.о.о. БАЊА ЛУКА РАЧУН ЗА ВИИИ 2024. ЗА СТАН БР. 21 У УЛ. К. АЛФОНСА XИИИ БР. 38 128.42
171 33-1002493 8/2024 8/31/2024 „ЕКО ТОПЛАНЕ” д.о.о. БАЊА ЛУКА ГРИЈАЊЕ 08/2024 158.00
172 33-1000190 8/2024 8/31/2024 „ЕКО ТОПЛАНЕ” д.о.о. БАЊА ЛУКА ГРИЈАЊЕ 08/2024 248.95
173 33-1000566 8/2024 8/31/2024 „ЕКО ТОПЛАНЕ” д.о.о. БАЊА ЛУКА ГРИЈАЊЕ 08/2024 541.78
174 33-1001852 8/2024 8/31/2024 „ЕКО ТОПЛАНЕ” д.о.о. БАЊА ЛУКА ГРИЈАЊЕ 08/2024 324.72
175 33-1001612 8/2024 8/31/2024 „ЕКО ТОПЛАНЕ” д.о.о. БАЊА ЛУКА ГРИЈАЊЕ 08/2024 257.70
176 33-1001496 8/2024 8/31/2024 „ЕКО ТОПЛАНЕ” д.о.о. БАЊА ЛУКА ГРИЈАЊЕ 08/2024 167.80
177 33-1001265 8/2024 8/31/2024 „ЕКО ТОПЛАНЕ” д.о.о. БАЊА ЛУКА ГРИЈАЊЕ 08/2024 1,017.06
178 33-1001266 8/2024 8/31/2024 „ЕКО ТОПЛАНЕ” д.о.о. БАЊА ЛУКА ГРИЈАЊЕ 08/2024 42.35
179 33-1001486 8/2024 8/31/2024 „ЕКО ТОПЛАНЕ” д.о.о. БАЊА ЛУКА ГРИЈАЊЕ 08/2024 123.39
180 33-1001491 8/2024 8/31/2024 „ЕКО ТОПЛАНЕ” д.о.о. БАЊА ЛУКА ГРИЈАЊЕ 08/2024 314.75
181 33-1001263 8/2024 8/31/2024 „ЕКО ТОПЛАНЕ” д.о.о. БАЊА ЛУКА ГРИЈАЊЕ 08/2024 747.61
182 33-1001115 8/2024 8/31/2024 „ЕКО ТОПЛАНЕ” д.о.о. БАЊА ЛУКА ГРИЈАЊЕ 08/2024 114.18
183 33-1001127 8/2024 8/31/2024 „ЕКО ТОПЛАНЕ” д.о.о. БАЊА ЛУКА ГРИЈАЊЕ 08/2024 625.03
184 33-1000749 8/2024 8/31/2024 „ЕКО ТОПЛАНЕ” д.о.о. БАЊА ЛУКА ГРИЈАЊЕ 08/2024 171.49
185 33-1000836 8/2024 8/31/2024 „ЕКО ТОПЛАНЕ” д.о.о. БАЊА ЛУКА ГРИЈАЊЕ 08/2024 307.74
186 33-1001473 9/2024 9/30/2024 „ЕКО ТОПЛАНЕ” д.о.о. БАЊА ЛУКА ИСПОРУЧЕНА ТОПЛОТНА ЕНЕРГИЈА 120.43
187 33-1000836 9/2024 9/30/2024 „ЕКО ТОПЛАНЕ” д.о.о. БАЊА ЛУКА СТРУЈА 09/2024 308.61
188 33-1001115 9/2024 9/30/2024 „ЕКО ТОПЛАНЕ” д.о.о. БАЊА ЛУКА СТРУЈА 09/2024 114.42
189 33-1001127 9/2024 9/30/2024 „ЕКО ТОПЛАНЕ” д.о.о. БАЊА ЛУКА СТРУЈА 09/2024 626.71
190 33-1001263 9/2024 9/30/2024 „ЕКО ТОПЛАНЕ” д.о.о. БАЊА ЛУКА СТРУЈА 09/2024 749.80
191 33-1000190 9/2024 9/30/2024 „ЕКО ТОПЛАНЕ” д.о.о. БАЊА ЛУКА СТРУЈА 09/2024 249.68
192 33-1000566 9/2024 9/30/2024 „ЕКО ТОПЛАНЕ” д.о.о. БАЊА ЛУКА ГРИЈАЊЕ 09/2024 543.27
193 33-1000749 9/2024 9/30/2024 „ЕКО ТОПЛАНЕ” д.о.о. БАЊА ЛУКА ГРИЈАЊЕ 09/2024 171.98
194 33-1001486 9/2024 9/30/2024 „ЕКО ТОПЛАНЕ” д.о.о. БАЊА ЛУКА ГРИЈАЊЕ 09/2024 119.41
195 33-1001491 9/2024 9/30/2024 „ЕКО ТОПЛАНЕ” д.о.о. БАЊА ЛУКА ГРИЈАЊЕ 09/2024 315.63
196 33-1001496 9/2024 9/30/2024 „ЕКО ТОПЛАНЕ” д.о.о. БАЊА ЛУКА ГРИЈАЊЕ 09/2024 168.26
197 33-1001612 9/2024 9/30/2024 „ЕКО ТОПЛАНЕ” д.о.о. БАЊА ЛУКА ГРИЈАЊЕ 09/2024 258.74
198 33-1001852 9/2024 9/30/2024 „ЕКО ТОПЛАНЕ” д.о.о. БАЊА ЛУКА ГРИЈАЊЕ 09/2024 314.24
199 33-1002493 9/2024 9/30/2024 „ЕКО ТОПЛАНЕ” д.о.о. БАЊА ЛУКА ГРИЈАЊЕ 09/2024 158.37
200 33-1001265 9/2024 9/30/2024 „ЕКО ТОПЛАНЕ” д.о.о. БАЊА ЛУКА ГРИЈАЊЕ 09/2024 1,021.45
201 33-1001266 9/2024 9/30/2024 „ЕКО ТОПЛАНЕ” д.о.о. БАЊА ЛУКА ГРИЈАЊЕ 09/2024 40.98
202 33-31924 9/2024 9/30/2024 „ЕКО ТОПЛАНЕ” д.о.о. БАЊА ЛУКА РАЧУН ЗА ИX 2024. ЗА СТАН БР. 21 У УЛ. К. АЛФОНСА XИИИ БР. 38 127.33
203 33-1001852 5/2024 5/31/2024 „ЕКО ТОПЛАНЕ” д.о.о. БАЊА ЛУКА ГРИЈАЊЕ 05/24 328.22
204 33-1001486 5/2024 5/31/2024 „ЕКО ТОПЛАНЕ” д.о.о. БАЊА ЛУКА ГРИЈАЊЕ 05/24 126.96
205 33-1001266 5/2024 5/31/2024 „ЕКО ТОПЛАНЕ” д.о.о. БАЊА ЛУКА ГРИЈАЊЕ 05/24 38.75
206 0000033328-29-02-24 3/1/2024 „НЛБ БАНКА” а.д. БАЊА ЛУКА БАНКАРСКЕ УСЛУГЕ 320.10
207 0000033328-31-08-24 9/2/2024 „НЛБ БАНКА” а.д. БАЊА ЛУКА ОБРАЧУН НАКНАДЕ ЗА БАНКАРСКЕ УСЛУГЕ ЗА ПЕРИОД ОД 01. 08. 2024. ДО 31. 08. 2024. ГОД. 563.20
208 8075969749-31-08-24 9/2/2024 „НЛБ БАНКА” а.д. БАЊА ЛУКА ОБРАЧУН НАКНАДЕ ЗА БАНКАРСКЕ УСЛУГЕ ЗА ПЕРИОД ОД 01. 08. 2024. ДО 31. 08. 2024. ГОД. 5.40
209 8183028746-31-08-24 9/2/2024 „НЛБ БАНКА” а.д. БАЊА ЛУКА ОБРАЧУН НАКНАДЕ ЗА БАНКАРСКЕ УСЛУГЕ ЗА ОБАВЉАЊЕ УНУТРАШЊЕГ ПЛАТНОГ ПРОМЕТА ЗА ПЕРИОД ОД 01. 08. 2024 -31. 08. 2024. ГОДИНЕ 12.60
210 100/2024 10/2/2024 „ТЕЛЕФОНИЈА ВИДАКОВИЋ” ДОБОЈ РЕДОВНО ОДРЖАВАЊЕ СЕМАФОРА НА ПОДРУЧЈУ ГРАДА, СЕПТЕМБАР 2024. ГОД. 15,269.67
211 9846/1 /93 ИИ привремена ситуација 9/30/2024 „МГ МИНД” д.о.о. МРКОЊИЋ ГРАД ДРУГА ПРИВРЕМЕНА СИТУАЦИЈА БРОЈ 9846/1/93 ОД 30.09.2024. 56,970.63
212 9822/1 /93 И привремена ситуација 9/30/2024 „МГ МИНД” д.о.о. МРКОЊИЋ ГРАД ОДРЖАВАЊЕ ХОРИЗОНТАЛНЕ САОБРАЋАЈНЕ СИГНАЛИЗАЦИЈЕ НА УЛИЦАМА И ЛОКАЛНИМ ПУТЕВИМА НА ПОДРУЧЈУ ГРАДА ЗА 9/24 41,998.48
213 70-3688/2024 9/10/2024 ДНЕВНЕ НЕЗАВИСНЕ НОВИНЕ БАЊА ЛУКА ПЛАЋАЊЕ ОБАВЈЕШТЕЊА ДА ЈЕ НАЦРТ ИЗМЈЕНЕ ДИЈЕЛА РЕГ. ПЛАНА „РЕГИОНАЛНИ ЦЕНТАР” ИЗЛОЖЕН НА ЈАВНИ УВИД 163.80
214 70-3675/2024 9/9/2024 ДНЕВНЕ НЕЗАВИСНЕ НОВИНЕ БАЊА ЛУКА ПЛАЋАЊЕ ОБАВЈЕШТЕЊА ДА ЈЕ НАЦРТ ИЗМЈЕНЕ ДИЈЕЛА РЕГ. ПЛАНА „ОБИЛИЋЕВО” ИЗЛОЖЕН НА ЈАВНИ УВИД 163.80
215 70-3180/2024 8/6/2024 ДНЕВНЕ НЕЗАВИСНЕ НОВИНЕ БАЊА ЛУКА ПЛАЋАЊЕ ОБАВЈЕШТЕЊА ДА ЈЕ НАЦРТ ИЗМЈЕНЕ ДИЈЕЛА РЕГ. ПЛАНА „ЈУГ 3” ИЗЛОЖЕН НА ЈАВНИ УВИД 163.80
216 70-2986/2024 7/24/2024 ДНЕВНЕ НЕЗАВИСНЕ НОВИНЕ БАЊА ЛУКА ПЛАЋАЊЕ ОБАВЈЕШТЕЊА ДА ЈЕ НАЦРТ ИЗМЈЕНЕ ДИЈЕЛА РЕГ. ПЛАНА „ЦЕНТАР ИСТОК” ИЗЛОЖЕН НА ПОНОВНИ ЈАВНИ УВИД 163.80
217 80-254/2024 5/31/2024 ДНЕВНЕ НЕЗАВИСНЕ НОВИНЕ БАЊА ЛУКА ОБЈАВА 3,334.50
218 80-255/2024 5/31/2024 ДНЕВНЕ НЕЗАВИСНЕ НОВИНЕ БАЊА ЛУКА ОБЈАВА 200.07
219 6430016391/2024 6/30/2024 МИНИСТАРСТВО УНУТРАШЊИХ ПОСЛОВА РЕПУБЛИКЕ СРПСКЕ НАКНАДА 25% ЗА ПРЕМЈЕШТЕНА И ДЕПОНОВАНА ВОЗИЛА ЗА ПЕРИОД 01. 06 -30. 06. 2024. ГОДИНЕ 1,920.00
220 6430016769/2024 8/31/2024 МИНИСТАРСТВО УНУТРАШЊИХ ПОСЛОВА РЕПУБЛИКЕ СРПСКЕ НАКНАДА 25% ЗА ПРЕМЈЕШТЕНА И ДЕПОНОВАНА ВОЗИЛА ЗА ПЕРИОД ОД 01. 08 - 31. 08. 2,145.00
221 И ПРИВРЕМЕНА СИТУАЦИЈА 336/24 9/30/2024  „ГРАЂЕЊЕ ЂУРИЋ” д.о.о. ИЗГРАДЊА ДЈЕЧИЈЕГ ИГРАЛИШТА У ЗАЛУЖАНИМА 29,552.19
222 ИВ ПРИВРЕМЕНА СИТУАЦИЈА 285/24 8/12/2024  „ГРАЂЕЊЕ ЂУРИЋ” д.о.о. ЧЕТВРТА ПРИВРЕМЕНА СИТУАЦИЈА БРОЈ 285/24 ОД 12. 08. 2024. 77,304.83
223 ИИИ ПРИВРЕМЕНА СИТУАЦИЈА 253/24 7/22/2024  „ГРАЂЕЊЕ ЂУРИЋ” д.о.о. ТРЕЋА ПРИВРЕМЕНА СИТУАЦИЈА БРОЈ 253/24 ОД 22. 07. 2024. 35,028.07
224 175/24 5/31/2024 ЗЕВ ЈОСИФА ПАНЧИЋА 4 ЗЕВ 05/24 41.50
225 245/24 7/31/2024 ЗЕВ ЈОСИФА ПАНЧИЋА 4 ЗЕВ 07/2024 41.50
226 280/24 8/31/2024 ЗЕВ ЈОСИФА ПАНЧИЋА 4 ЗЕВ 08/2024 41.50
227 576/24 8/31/2024 ЗЕВ ВИДОВДАНСКА 2 ТРОШКОВИ ТЕКУЋЕГ ОДРЖАВАЊА 600.00
228 502/24 7/31/2024 ЗЕВ ВИДОВДАНСКА 2 ТРОШКОВИ ТЕКУЋЕГ ОДРЖАВАЊА 600.00
229 354/24 5/31/2024 ЗЕВ ВИДОВДАНСКА 2 ТРОШКОВИ ТЕКУЋЕГ ОДРЖАЊА 600.00
230 428/24 6/30/2024 ЗЕВ ВИДОВДАНСКА 2 ТРОШКОВИ ТЕКУЋЕГ ОДРЖАВАЊА 600.00
231 90189847 8/8/2024 БХ ТЕЛЕКОМ д.д. НАПЛАТА УСЛУГЕ МПАРКИНГ ЗА 07/24 10.88
232 90189881 8/8/2024 БХ ТЕЛЕКОМ д.д. ПРОВИЗИЈА ЗА МПАРКИНГ ЗА 08/24 298.44
233 90190847 9/6/2024 БХ ТЕЛЕКОМ д.д. ПРОВИЗИЈА ЗА УСЛУГЕ МПАРКИНГ ЗА 08/24 17.37
234 90190868 9/9/2024 БХ ТЕЛЕКОМ д.д. ПРОВИЗИЈА ЗА МПАРКИНГ ЗА 08/24 311.00
235 9/24 9/17/2024 ЗЕВ БУЛЕВАР ВОЈВОДЕ ЖИВОЈИНА МИШИЋА 19 ЗЕВ 09/2024 44.80
236 08/24 8/19/2024 ЗЕВ БУЛЕВАР ВОЈВОДЕ ЖИВОЈИНА МИШИЋА 19 ЗЕВ 08/2024 44.80
237 07/24 7/19/2024 ЗЕВ БУЛЕВАР ВОЈВОДЕ ЖИВОЈИНА МИШИЋА 19 ЗЕВ 07/24 44.80
238 06/24 6/19/2024 ЗЕВ БУЛЕВАР ВОЈВОДЕ ЖИВОЈИНА МИШИЋА 19 ЗЕВ 06/24 44.80
239 04/24 4/18/2024 ЗЕВ БУЛЕВАР ВОЈВОДЕ ЖИВОЈИНА МИШИЋА 19 ЗЕВ 04/24 44.80
240 2024-09-0111 9/11/2024 ЗАВОД ЗА ИЗГРАДЊУ (ЗИБЛ) а.д. БАЊА ЛУКА КОМУНАЛНА НАКНАДА 19,430.73
241 2024-10-0126 СТОРНО АВАНСА 10/8/2024 ЗАВОД ЗА ИЗГРАДЊУ (ЗИБЛ) а.д. БАЊА ЛУКА СТОРНО ДИЈЕЛА АВАНСНЕ ФАКТУРЕ БРОЈ 1/23 ОД 13. 06. 2023. ГОД. -17,755.02
242 2024-10-0125 10/8/2024 ЗАВОД ЗА ИЗГРАДЊУ (ЗИБЛ) а.д. БАЊА ЛУКА УСЛУГЕ НА ПОСЛОВИМА КОМУНАЛНЕ НАКНАДЕ ЗА ПЕРИОД ОД 01. 07. 2024. ДО 30. 09. 2024. ПО УГОВОРУ БРОЈ 11-?-2347/23 ОД 07. 06. 2023. ГОД. 177,550.19
243 101-51-262/2024 4/26/2024 ПРОДАЈНО СЕРВИСНИ ЦЕНТАР „ТАМ” ТЕХНИЧКИ ПРЕГЛЕД ЗА РЕГИСТРАЦИЈУ Е79-А-552 99.45
244 101-51-312/2024 5/24/2024 ПРОДАЈНО СЕРВИСНИ ЦЕНТАР „ТАМ” ТЕХНИЧКИ ПРЕГЛЕД ЗА РЕГИСТРАЦИЈУ 358-Т-846 54.99
245 101-51-313/2024 5/24/2024 ПРОДАЈНО СЕРВИСНИ ЦЕНТАР „ТАМ” ТЕХНИЧКИ ПРЕГЛЕД ЗА РЕГИСТРАЦИЈУ О59-Ј-112 99.45
246 101-51-311/2024 5/24/2024 ПРОДАЈНО СЕРВИСНИ ЦЕНТАР „ТАМ” ТЕХНИЧКИ ПРЕГЛЕД ЗА РЕГИСТРАЦИЈУ 695-М-107 54.99
247 ИФ-00883-1-24 8/13/2024 „ДРАГИЧЕВИЋ” д.о.о. БАЊА ЛУКА ДРАГИЧЕВИЋ 267.63
248 ИФ-00914-1-24 8/23/2024 „ДРАГИЧЕВИЋ” д.о.о. БАЊА ЛУКА ОДРЖАВАЊЕ АПАРАТА ЗА КОПИРАЊЕ 827.70
249 ИФ-00920-1-24 8/26/2024 „ДРАГИЧЕВИЋ” д.о.о. БАЊА ЛУКА ОДРЖАВАЊЕ АПАРАТА ЗА КОПИРАЊЕ 1,204.88
250 ИФ-01000-1-24 9/12/2024 „ДРАГИЧЕВИЋ” д.о.о. БАЊА ЛУКА ОДРЖАВАЊЕ АПАРАТА ЗА КОПИРАЊЕ 870.32
251 ИФ-00979-1-24 9/9/2024 „ДРАГИЧЕВИЋ” д.о.о. БАЊА ЛУКА ОДРЖАВАЊЕ АПАРАТА ЗА КОПИРАЊЕ 274.95
252 ИФ-00980-1-24 9/9/2024 „ДРАГИЧЕВИЋ” д.о.о. БАЊА ЛУКА ОДРЖАВАЊЕ АПАРАТА ЗА КОПИРАЊЕ 2,532.69
253 ИФ-00913-1-24 8/23/2024 „ДРАГИЧЕВИЋ” д.о.о. БАЊА ЛУКА БУБАЊ ЗАМЈЕНСКИ 161.46
254 2024-в001-53-000018 8/31/2024 ЈУ МУЗЕЈ САВРЕМЕНЕ УМЈЕТНОСТИ РС ИЗНАЈМЉИВАЊЕ ПРОСТОРА ЗА ОДРЖАВАЊЕ ВЈЕНЧАЊА ЗА МЈЕСЕЦ АВГУСТ 4,797.00
255 240 БГ 1213 8/6/2024 ГЕОИНОВА ПЛАЋАЊЕ АреаЦАД - ГИС ЛИЦЕНЦЕ НА ПЕРИОД 12 МЈЕСЕЦИ 3,510.00
256 81 8/22/2024 „УНИКО“ ВЛ. РАДУКИЋ СТАНИЈА с.п. 100.00
257 88 8/2/2024 „УНИКО“ ВЛ. РАДУКИЋ СТАНИЈА с.п. ПАРАСТОС ПОГИНУЛИМ БОРЦИМА ВРС ИЗ МЗ ДОЊА КОЛА - ГРАД БАЊА ЛУКА, ПОГИНУЛИМ РАДНИЦИМА ЕЛЕКТРОКРАЈИНЕ - ГРАД БАЊА ЛУКА 100.00
258 102 9/9/2024 „УНИКО“ ВЛ. РАДУКИЋ СТАНИЈА с.п. ПАРАСТОС ПОГИНУЛИМ БОРЦИМА ВРС ИЗ ПРВОГ БАТАЉОНА ВОЈНЕ ПОЛИЦИЈЕ. ПОТКОЗАРЈА, ГРАД БАЊА ЛУКА МЗ КАРАНОВАЦ, НЕДЕЉКУ МИЛАНКОВИЋУ, УБИЈЕНИМ СРБИМА ОД УСТАША 1942. 255.00
259 99 8/31/2024 „УНИКО“ ВЛ. РАДУКИЋ СТАНИЈА с.п. ПАРАСТОС ПОГИНУЛИМ БОРЦИМА ВРС ГРАД БАЊА ЛУКА МЗ СТРИЧИЋИ, ПАВИЋИ, ЈЕЛИЋКА, СЛАВИЋКА, КОЛА, ГОЛЕШИ 270.00
260 4387094-4-0824-7366478 8/31/2024 МХ „ЕЛЕКТРОПРИВРЕДА РЕПУБЛИКЕ СРПСКЕ” РАЧУН ЗА ВИИИ 2024. ЗА МЗ ПЕТРИЋЕВАЦ 6.12
261 4387108-4-0824-7366528 8/31/2024 МХ „ЕЛЕКТРОПРИВРЕДА РЕПУБЛИКЕ СРПСКЕ” УТРОШАК ЕЛЕКТРИЧНЕ ЕНЕРГИЈЕ ЗА РАД ПУМПНЕ СТАНИЦЕ МОТИКЕ 2 42.74
262 4387087-4-0824-7366529 8/31/2024 МХ „ЕЛЕКТРОПРИВРЕДА РЕПУБЛИКЕ СРПСКЕ” УТРОШАК ЕЛЕКТРИЧНЕ ЕНЕРГИЈЕ ЗА РАД ПУМПНЕ СТАНИЦЕ МОТИКЕ 1 48.00
263 163428-4-0824-4100521 8/31/2024 МХ „ЕЛЕКТРОПРИВРЕДА РЕПУБЛИКЕ СРПСКЕ” РАЧУН ЗА ВИИИ 2024. ЗА ЈС „ЦЕНТАР 1” 189.90
264 163431-4-0824-4100521 8/31/2024 МХ „ЕЛЕКТРОПРИВРЕДА РЕПУБЛИКЕ СРПСКЕ” РАЧУН ЗА ВИИИ 2024. ЗА МЗ ЦЕНТАР 1 (БРОЈИЛО 4594517) 53.07
265 4384362-4-0824-7366524 8/31/2024 МХ „ЕЛЕКТРОПРИВРЕДА РЕПУБЛИКЕ СРПСКЕ” ЕЛЕКТРИЧНА ЕНЕРГИЈА 111.79
266 4384229-4-0824-7366524 8/31/2024 МХ „ЕЛЕКТРОПРИВРЕДА РЕПУБЛИКЕ СРПСКЕ” РАЧУН ЗА ВИИИ 2024. ЗА П. П. БР. 4 У УЛ. К. П. И КАРАЂОРЂЕВИЋА БР. 23 5.44
267 163422-4-0824-4100521 8/31/2024 МХ „ЕЛЕКТРОПРИВРЕДА РЕПУБЛИКЕ СРПСКЕ” РАЧУН ЗА ВИИИ 2024. ЗА ЦЕНТРАЛНУ ГАРАЖУ БР. 1 У УЛ. КОРДУНАШКА БР. 10 64.39
268 163419-4-0824-4100521 8/31/2024 МХ „ЕЛЕКТРОПРИВРЕДА РЕПУБЛИКЕ СРПСКЕ” РАЧУН ЗА ВИИИ 2024. ЗА РАДНИЧКИ УНИВЕРЗИТЕТ 94.93
269 163420-4-0824-4100521 8/31/2024 МХ „ЕЛЕКТРОПРИВРЕДА РЕПУБЛИКЕ СРПСКЕ” РАЧУН ЗА ВИИИ 2024. ЗА АРХИВ РС У ЈС У УЛ. С. МАТАВУЉА 38.29
270 163421-4-0824-4100521 8/31/2024 МХ „ЕЛЕКТРОПРИВРЕДА РЕПУБЛИКЕ СРПСКЕ” РАЧУН ЗА ВИИИ 2024. ЗА КГК У УЛ. С. МАТАВУЉА БР. 4 39.12
271 163423-4-0824-4100521 8/31/2024 МХ „ЕЛЕКТРОПРИВРЕДА РЕПУБЛИКЕ СРПСКЕ” РАЧУН ЗА ВИИИ 2024. ЗА ЈС „ПЕЋИНА” 0.00
272 163424-4-0824-4100521 8/31/2024 МХ „ЕЛЕКТРОПРИВРЕДА РЕПУБЛИКЕ СРПСКЕ” РАЧУН ЗА ВИИИ 2024. ЗА П. П. НА БАЊ БРДУ 38.29
273 163425-4-0824-4100521 8/31/2024 МХ „ЕЛЕКТРОПРИВРЕДА РЕПУБЛИКЕ СРПСКЕ” РАЧУН ЗА ВИИИ 2024. ЗА П. П. БР. 221 И 222 У УЛ. В. МАСЛЕШЕ БР. 1/11 146.36
274 163426-4-0824-4100521 8/31/2024 МХ „ЕЛЕКТРОПРИВРЕДА РЕПУБЛИКЕ СРПСКЕ” РАЧУН ЗА ВИИИ 2024. ЗА П. П. БР. 99 У Б. В. Ж. МИШИЋА БР. 33 87.97
275 159472-4-0824-4100521 8/31/2024 МХ „ЕЛЕКТРОПРИВРЕДА РЕПУБЛИКЕ СРПСКЕ” ЕЛЕКТРИЧНА ЕНЕРГИЈА 352.38
276 4387528-4-0824-7366640 8/31/2024 МХ „ЕЛЕКТРОПРИВРЕДА РЕПУБЛИКЕ СРПСКЕ” ЕЛЕКТРИЧНА ЕНЕРГИЈА - ЈАВНИ ТОАЛЕТ 76.87
277 4387527-4-0824-7366640 8/31/2024 МХ „ЕЛЕКТРОПРИВРЕДА РЕПУБЛИКЕ СРПСКЕ” ЕЛЕКТРИЧНА ЕНЕРГИЈА - ЈАВНИ ТОАЛЕТ 42.07
278 4384231-4-0824-7366540 8/31/2024 МХ „ЕЛЕКТРОПРИВРЕДА РЕПУБЛИКЕ СРПСКЕ” ЕЛЕКТРИЧНА ЕНЕРГИЈА - ФОНТАНА 177.72
279 4384230-4-0824-7366538 8/31/2024 МХ „ЕЛЕКТРОПРИВРЕДА РЕПУБЛИКЕ СРПСКЕ” ЕЛЕКТРИЧНА ЕНЕРГИЈА - ЈАВНИ ТОАЛЕТ 42.23
280 4384232-4-0824-7366540 8/31/2024 МХ „ЕЛЕКТРОПРИВРЕДА РЕПУБЛИКЕ СРПСКЕ” ЕЛЕКТРИЧНА ЕНЕРГИЈА - АЗИЛ 117.49
281 163728-4-0824-4100521 8/31/2024 МХ „ЕЛЕКТРОПРИВРЕДА РЕПУБЛИКЕ СРПСКЕ” РАЧУН ЗА ВИИИ 2024. ЗА МЗ ПИСКАВИЦА 38.29
282 163729-4-0824-4100521 8/31/2024 МХ „ЕЛЕКТРОПРИВРЕДА РЕПУБЛИКЕ СРПСКЕ” РАЧУН ЗА ВИИИ 2024. ЗА АМБУЛАНТУ У ДОЊИМ КОЛИМА 38.51
283 163730-4-0824-4100521 8/31/2024 МХ „ЕЛЕКТРОПРИВРЕДА РЕПУБЛИКЕ СРПСКЕ” РАЧУН ЗА ВИИИ 2024. ЗА МЗ ПИСКАВИЦА 38.29
284 155674-4-0824-4101765 И ДР. РЕКАПИТУЛАЦИЈА 8/31/2024 МХ „ЕЛЕКТРОПРИВРЕДА РЕПУБЛИКЕ СРПСКЕ” ЕЛЕКТРИЧНА ЕНЕРГИЈА ЗА ЈР 50,618.09
285 160357-4-0824-5100779 8/31/2024 МХ „ЕЛЕКТРОПРИВРЕДА РЕПУБЛИКЕ СРПСКЕ” ЕЛЕКТРИЧНА ЕНЕРГИЈА 229.98
286 163427-4-0824-4100521 8/31/2024 МХ „ЕЛЕКТРОПРИВРЕДА РЕПУБЛИКЕ СРПСКЕ” РАЧУН ЗА ВИИИ 2024. ЗА РАДНИЧКИ УНИВЕРЗИТЕТ 38.29
287 2428457-4-0821-7366640 8/31/2024 МХ „ЕЛЕКТРОПРИВРЕДА РЕПУБЛИКЕ СРПСКЕ” ЕЛЕКТРИЧНА ЕНЕРГИЈА 29.17
288 188534-4-0924-4101720 9/30/2024 МХ „ЕЛЕКТРОПРИВРЕДА РЕПУБЛИКЕ СРПСКЕ” СТРУЈА 09/2024 52.69
289 188562-4-0924-4101720 9/30/2024 МХ „ЕЛЕКТРОПРИВРЕДА РЕПУБЛИКЕ СРПСКЕ” СТРУЈА 09/2024 157.03
290 188549-4-0924-4101720 9/30/2024 МХ „ЕЛЕКТРОПРИВРЕДА РЕПУБЛИКЕ СРПСКЕ” СТРУЈА 09/2024 89.66
291 188551-4-0924-4101720 9/30/2024 МХ „ЕЛЕКТРОПРИВРЕДА РЕПУБЛИКЕ СРПСКЕ” СТРУЈА 09/2024 158.96
292 188565-4-0824-4101720 9/30/2024 МХ „ЕЛЕКТРОПРИВРЕДА РЕПУБЛИКЕ СРПСКЕ” СТРУЈА 09/2024 186.38
293 188550-4-0924-4101720 9/30/2024 МХ „ЕЛЕКТРОПРИВРЕДА РЕПУБЛИКЕ СРПСКЕ” СТРУЈА 09/2024 46.61
294 188552-4-0924-4101720 9/30/2024 МХ „ЕЛЕКТРОПРИВРЕДА РЕПУБЛИКЕ СРПСКЕ” СТРУЈА 09/2024 39.71
295 188556-4-0924-4101720 9/30/2024 МХ „ЕЛЕКТРОПРИВРЕДА РЕПУБЛИКЕ СРПСКЕ” СТРУЈА 09/2024 40.10
296 188568-4-0924-4101720 9/30/2024 МХ „ЕЛЕКТРОПРИВРЕДА РЕПУБЛИКЕ СРПСКЕ” СТРУЈА 09/2024 575.89
297 188533-4-0924-4101720 9/30/2024 МХ „ЕЛЕКТРОПРИВРЕДА РЕПУБЛИКЕ СРПСКЕ” СТРУЈА 09/2024 263.20
298 188560-4-0924-4101720 9/30/2024 МХ „ЕЛЕКТРОПРИВРЕДА РЕПУБЛИКЕ СРПСКЕ” СТРУЈА 09/2024 50.11
299 188553-4-0924-4101720 9/30/2024 МХ „ЕЛЕКТРОПРИВРЕДА РЕПУБЛИКЕ СРПСКЕ” СТРУЈА 09/2024 787.13
300 188570-4-0924-4101720 9/30/2024 МХ „ЕЛЕКТРОПРИВРЕДА РЕПУБЛИКЕ СРПСКЕ” СТРУЈА 09/2024 39.89
301 188554-4-0924-4101720 9/30/2024 МХ „ЕЛЕКТРОПРИВРЕДА РЕПУБЛИКЕ СРПСКЕ” СТРУЈА 09/2024 104.53
302 188564-4-0924-4101720 9/30/2024 МХ „ЕЛЕКТРОПРИВРЕДА РЕПУБЛИКЕ СРПСКЕ” СТРУЈА 09/2024 51.89
303 188524-4-0924-4101720 9/30/2024 МХ „ЕЛЕКТРОПРИВРЕДА РЕПУБЛИКЕ СРПСКЕ” СТРУЈА 09/2024 47.40
304 188566-4-0924-4101720 9/30/2024 МХ „ЕЛЕКТРОПРИВРЕДА РЕПУБЛИКЕ СРПСКЕ” СТРУЈА 09/2024 148.80
305 188569-4-0924-4101720 9/30/2024 МХ „ЕЛЕКТРОПРИВРЕДА РЕПУБЛИКЕ СРПСКЕ” СТРУЈА 09/2024 538.18
306 188523-4-0924-4101720 9/30/2024 МХ „ЕЛЕКТРОПРИВРЕДА РЕПУБЛИКЕ СРПСКЕ” СТРУЈА 09/2024 40.65
307 188571-4-0924-4101720 9/30/2024 МХ „ЕЛЕКТРОПРИВРЕДА РЕПУБЛИКЕ СРПСКЕ” СТРУЈА 09/2024 40.38
308 188573-4-0924-4101720 9/30/2024 МХ „ЕЛЕКТРОПРИВРЕДА РЕПУБЛИКЕ СРПСКЕ” СТРУЈА 09/2024 96.28
309 188559-4-0924-4101720 9/30/2024 МХ „ЕЛЕКТРОПРИВРЕДА РЕПУБЛИКЕ СРПСКЕ” СТРУЈА 09/2024 40.53
310 188574-4-0924-4101720 9/30/2024 МХ „ЕЛЕКТРОПРИВРЕДА РЕПУБЛИКЕ СРПСКЕ” СТРУЈА 09/2024 47.87
311 188572-4-0924-4101720 9/30/2024 МХ „ЕЛЕКТРОПРИВРЕДА РЕПУБЛИКЕ СРПСКЕ” СТРУЈА 09/2024 46.99
312 188532-4-0924-4101720 9/30/2024 МХ „ЕЛЕКТРОПРИВРЕДА РЕПУБЛИКЕ СРПСКЕ” СТРУЈА 09/2024 167.12
313 188575-4-0924-4101720 9/30/2024 МХ „ЕЛЕКТРОПРИВРЕДА РЕПУБЛИКЕ СРПСКЕ” СТРУЈА 09/2024 152.42
314 188548-4-0924-4101720 9/30/2024 МХ „ЕЛЕКТРОПРИВРЕДА РЕПУБЛИКЕ СРПСКЕ” СТРУЈА 09/2024 75.31
315 188585-4-0924-4101720 9/30/2024 МХ „ЕЛЕКТРОПРИВРЕДА РЕПУБЛИКЕ СРПСКЕ” СТРУЈА 09/2024 55.89
316 188557-4-0924-4101720 9/30/2024 МХ „ЕЛЕКТРОПРИВРЕДА РЕПУБЛИКЕ СРПСКЕ” СТРУЈА 09/2024 99.28
317 188586-4-0924-4101720 9/30/2024 МХ „ЕЛЕКТРОПРИВРЕДА РЕПУБЛИКЕ СРПСКЕ” СТРУЈА 09/2024 141.00
318 188583-4-0924-4101720 9/30/2024 МХ „ЕЛЕКТРОПРИВРЕДА РЕПУБЛИКЕ СРПСКЕ” СТРУЈА 09/2024 68.39
319 188522-4-0924-4101720 9/30/2024 МХ „ЕЛЕКТРОПРИВРЕДА РЕПУБЛИКЕ СРПСКЕ” СТРУЈА 09/2024 78.34
320 188561-4-0924-4101720 9/30/2024 МХ „ЕЛЕКТРОПРИВРЕДА РЕПУБЛИКЕ СРПСКЕ” СТРУЈА 09/2024 40.60
321 188531-4-0924-4101720 9/30/2024 МХ „ЕЛЕКТРОПРИВРЕДА РЕПУБЛИКЕ СРПСКЕ” СТРУЈА 09/2024 143.94
322 188581-4-0924-4101720 9/30/2024 МХ „ЕЛЕКТРОПРИВРЕДА РЕПУБЛИКЕ СРПСКЕ” СТРУЈА 09/2024 60.63
323 188584-4-0924-4101720 9/30/2024 МХ „ЕЛЕКТРОПРИВРЕДА РЕПУБЛИКЕ СРПСКЕ” СТРУЈА 09/2024 63.10
324 188582-4-0924-4101720 9/30/2024 МХ „ЕЛЕКТРОПРИВРЕДА РЕПУБЛИКЕ СРПСКЕ” СТРУЈА 09/2024 52.77
325 188579-4-0924-4101720 9/30/2024 МХ „ЕЛЕКТРОПРИВРЕДА РЕПУБЛИКЕ СРПСКЕ” СТРУЈА 09/2024 95.37
326 188577-4-0924-4101720 9/30/2024 МХ „ЕЛЕКТРОПРИВРЕДА РЕПУБЛИКЕ СРПСКЕ” СТРУЈА 09/2024 70.09
327 188580-4-0924-4101720 9/30/2024 МХ „ЕЛЕКТРОПРИВРЕДА РЕПУБЛИКЕ СРПСКЕ” СТРУЈА 09/2024 40.36
328 188547-4-0924-4101720 9/30/2024 МХ „ЕЛЕКТРОПРИВРЕДА РЕПУБЛИКЕ СРПСКЕ” СТРУЈА 09/2024 103.87
329 188578-4-0924-4101720 9/30/2024 МХ „ЕЛЕКТРОПРИВРЕДА РЕПУБЛИКЕ СРПСКЕ” СТРУЈА 09/2024 108.25
330 188558-4-0924-4101720 9/30/2024 МХ „ЕЛЕКТРОПРИВРЕДА РЕПУБЛИКЕ СРПСКЕ” СТРУЈА 09/2024 79.90
331 188576-4-0924-4101720 9/30/2024 МХ „ЕЛЕКТРОПРИВРЕДА РЕПУБЛИКЕ СРПСКЕ” СТРУЈА 09/2024 44.34
332 188530-4-0924-4101720 9/30/2024 МХ „ЕЛЕКТРОПРИВРЕДА РЕПУБЛИКЕ СРПСКЕ” СТРУЈА 09/2024 99.32
333 188540-4-0924-4101720 9/30/2024 МХ „ЕЛЕКТРОПРИВРЕДА РЕПУБЛИКЕ СРПСКЕ” СТРУЈА 09/2024 91.35
334 188542-4-0924-4101720 9/30/2024 МХ „ЕЛЕКТРОПРИВРЕДА РЕПУБЛИКЕ СРПСКЕ” СТРУЈА 09/2024 77.11
335 188563-4-0924-4101720 9/30/2024 МХ „ЕЛЕКТРОПРИВРЕДА РЕПУБЛИКЕ СРПСКЕ” СТРУЈА 09/2024 56.82
336 188520-4-0924-4101720 9/30/2024 МХ „ЕЛЕКТРОПРИВРЕДА РЕПУБЛИКЕ СРПСКЕ” СТРУЈА 09/2024 46.44
337 188541-4-0924-4101720 9/30/2024 МХ „ЕЛЕКТРОПРИВРЕДА РЕПУБЛИКЕ СРПСКЕ” СТРУЈА 09/2024 79.72
338 188543-4-0924-4101720 9/30/2024 МХ „ЕЛЕКТРОПРИВРЕДА РЕПУБЛИКЕ СРПСКЕ” СТРУЈА 09/2024 97.87
339 188555-4-0924-4101720 9/30/2024 МХ „ЕЛЕКТРОПРИВРЕДА РЕПУБЛИКЕ СРПСКЕ” СТРУЈА 09/2024 60.96
340 188544-4-0924-4101720 9/30/2024 МХ „ЕЛЕКТРОПРИВРЕДА РЕПУБЛИКЕ СРПСКЕ” СТРУЈА 09/2024 72.50
341 188545-4-0924-4101720 9/30/2024 МХ „ЕЛЕКТРОПРИВРЕДА РЕПУБЛИКЕ СРПСКЕ” СТРУЈА 09/2024 56.90
342 188529-4-0924-4101720 9/30/2024 МХ „ЕЛЕКТРОПРИВРЕДА РЕПУБЛИКЕ СРПСКЕ” СТРУЈА 09/2024 98.23
343 188546-4-0924-4101720 9/30/2024 МХ „ЕЛЕКТРОПРИВРЕДА РЕПУБЛИКЕ СРПСКЕ” СТРУЈА 09/2024 76.86
344 188519-4-0924-4101720 9/30/2024 МХ „ЕЛЕКТРОПРИВРЕДА РЕПУБЛИКЕ СРПСКЕ” СТРУЈА 09/2024 119.00
345 188535-4-0924-4101720 9/30/2024 МХ „ЕЛЕКТРОПРИВРЕДА РЕПУБЛИКЕ СРПСКЕ” СТРУЈА 09/2024 73.48
346 188536-4-0924-4101720 9/30/2024 МХ „ЕЛЕКТРОПРИВРЕДА РЕПУБЛИКЕ СРПСКЕ” СТРУЈА 09/2024 40.33
347 188537-4-0924-4101720 9/30/2024 МХ „ЕЛЕКТРОПРИВРЕДА РЕПУБЛИКЕ СРПСКЕ” СТРУЈА 09/2024 44.34
348 188538-4-0924-4101720 9/30/2024 МХ „ЕЛЕКТРОПРИВРЕДА РЕПУБЛИКЕ СРПСКЕ” СТРУЈА 09/2024 40.02
349 188518-4-0924-4101720 9/30/2024 МХ „ЕЛЕКТРОПРИВРЕДА РЕПУБЛИКЕ СРПСКЕ” СТРУЈА 09/2024 64.42
350 188539-4-0924-4101720 9/30/2024 МХ „ЕЛЕКТРОПРИВРЕДА РЕПУБЛИКЕ СРПСКЕ” СТРУЈА 09/2024 153.40
351 188516-4-0924-4101720 9/30/2024 МХ „ЕЛЕКТРОПРИВРЕДА РЕПУБЛИКЕ СРПСКЕ” СТРУЈА 09/2024 42.53
352 188515-4-0924-4101720 9/30/2024 МХ „ЕЛЕКТРОПРИВРЕДА РЕПУБЛИКЕ СРПСКЕ” СТРУЈА 09/2024 54.40
353 188528-4-0924-4101720 9/30/2024 МХ „ЕЛЕКТРОПРИВРЕДА РЕПУБЛИКЕ СРПСКЕ” СТРУЈА 09/2024 92.94
354 188517-4-0924-4101720 9/30/2024 МХ „ЕЛЕКТРОПРИВРЕДА РЕПУБЛИКЕ СРПСКЕ” СТРУЈА 09/2024 90.26
355 188526-4-0924-4101720 9/30/2024 МХ „ЕЛЕКТРОПРИВРЕДА РЕПУБЛИКЕ СРПСКЕ” СТРУЈА 09/2024 71.77
356 188527-4-0924-4101720 9/30/2024 МХ „ЕЛЕКТРОПРИВРЕДА РЕПУБЛИКЕ СРПСКЕ” СТРУЈА 09/2024 47.63
357 188525-4-0924-4101720 9/30/2024 МХ „ЕЛЕКТРОПРИВРЕДА РЕПУБЛИКЕ СРПСКЕ” СТРУЈА 09/2024 1,118.62
358 189143-4-0924-4101374 9/30/2024 МХ „ЕЛЕКТРОПРИВРЕДА РЕПУБЛИКЕ СРПСКЕ” СТРУЈА 09/2024 4,759.44
359 189144-4-0924-4101379 9/30/2024 МХ „ЕЛЕКТРОПРИВРЕДА РЕПУБЛИКЕ СРПСКЕ” СТРУЈА 09/2024 9,507.46
360 189459-4-0924-4101660 9/30/2024 МХ „ЕЛЕКТРОПРИВРЕДА РЕПУБЛИКЕ СРПСКЕ” СТРУЈА 09/2024 1,877.05
361 191717-4-0924-4101720 9/30/2024 МХ „ЕЛЕКТРОПРИВРЕДА РЕПУБЛИКЕ СРПСКЕ” СТРУЈА 09/2024 1,289.07
362 188567-4-0924-4101720 9/30/2024 МХ „ЕЛЕКТРОПРИВРЕДА РЕПУБЛИКЕ СРПСКЕ” СТРУЈА 09/2024 54.99
363 188521-4-0924-4101720 9/30/2024 МХ „ЕЛЕКТРОПРИВРЕДА РЕПУБЛИКЕ СРПСКЕ” СТРУЈА 09/2024 79.31
364 5006900-4-0924-7366415 9/30/2024 МХ „ЕЛЕКТРОПРИВРЕДА РЕПУБЛИКЕ СРПСКЕ” СТРУЈА 09/2024 5.83
365 194004-4-0924-4101720 9/30/2024 МХ „ЕЛЕКТРОПРИВРЕДА РЕПУБЛИКЕ СРПСКЕ” СТРУЈА 09/2024 38.22
366 96010-4-0524-4100521 5/31/2024 МХ „ЕЛЕКТРОПРИВРЕДА РЕПУБЛИКЕ СРПСКЕ” РАЧУН ЗА В 2024. ЗА П. П. БР. 58 У УЛ. С. МАТАВУЉА БР. 8 38.22
367 119578-4-0624-4100521 6/30/2024 МХ „ЕЛЕКТРОПРИВРЕДА РЕПУБЛИКЕ СРПСКЕ” РАЧУН ЗА ВИ 2024. ЗА П. П. БР. 58 У УЛ. С. МАТАВУЉА БР. 8 38.29
368 140121-4-0724-4100521 7/31/2024 МХ „ЕЛЕКТРОПРИВРЕДА РЕПУБЛИКЕ СРПСКЕ” РАЧУН ЗА ВИИ 2024. ЗА П. П. БР. 58 У УЛ. С. МАТАВУЉА БР. 8 38.66
369 162453-4-0824-4100521 8/31/2024 МХ „ЕЛЕКТРОПРИВРЕДА РЕПУБЛИКЕ СРПСКЕ” РАЧУН ЗА ВИИИ 2024. ЗА П. П. БР. 58 У УЛ. С. МАТАВУЉА БР. 8 39.02
370 3149526-4-0624-7366580 6/30/2024 МХ „ЕЛЕКТРОПРИВРЕДА РЕПУБЛИКЕ СРПСКЕ” РАЧУН ЗА ВИ 2024. ЗА П. П. БР. 110 У Б. В. Ж. МИШИЋА БР. 81 47.11
371 3768096-4-0724-7366580 7/31/2024 МХ „ЕЛЕКТРОПРИВРЕДА РЕПУБЛИКЕ СРПСКЕ” РАЧУН ЗА ВИИ 2024. ЗА П. П. БР. 110 У Б. В. Ж. МИШИЋА БР. 81 47.66
372 4388095-4-0824-7366580 8/31/2024 МХ „ЕЛЕКТРОПРИВРЕДА РЕПУБЛИКЕ СРПСКЕ” РАЧУН ЗА ВИИИ 2024. ЗА П. П. БР. 110 У Б. В. Ж. МИШИЋА БР. 81 48.04
373 4983237-4-0924-7366443 9/30/2024 МХ „ЕЛЕКТРОПРИВРЕДА РЕПУБЛИКЕ СРПСКЕ” РАЧУН ЗА ИX 2024. ЗА П. П. БР. 63 У УЛ. С. МАТАВУЉА БР. 2 0.05
374 3744671-4-0724-7366443 7/31/2024 МХ „ЕЛЕКТРОПРИВРЕДА РЕПУБЛИКЕ СРПСКЕ” РАЧУН ЗА ВИИ 2024. ЗА П. П. БР. 63 У УЛ. С. МАТАВУЉА БР. 2 0.05
375 3124530-4-0624-7366443 6/30/2024 МХ „ЕЛЕКТРОПРИВРЕДА РЕПУБЛИКЕ СРПСКЕ” РАЧУН ЗА ВИ 2024. ЗА П. П. БР. 63 У УЛ. С. МАТАВУЉА БР. 2 0.05
376 5008738-4-0924-7366580 9/30/2024 МХ „ЕЛЕКТРОПРИВРЕДА РЕПУБЛИКЕ СРПСКЕ” РАЧУН ЗА ИX 2024. ЗА П. П. БР. 110 У Б. В. Ж. МИШИЋА БР. 81 48.22
377 5006962-4-0924-7366452 9/30/2024 МХ „ЕЛЕКТРОПРИВРЕДА РЕПУБЛИКЕ СРПСКЕ” НАПЛАТНА КУЋИЦА КРАЉА ПЕТРА И КАРАЂОРЂЕВИЋА 74 А 3.21
378 5006963-4-0924-7366452 9/30/2024 МХ „ЕЛЕКТРОПРИВРЕДА РЕПУБЛИКЕ СРПСКЕ” НАПЛАТНА КУЋИЦА ЗА ПАРКИНГ, УЛ. БАНА ДР ТОДОРА ЛАЗАРЕВИЋА ББ 3.27
379 РЕКАПИТУЛАЦИЈА РАЧУНА 9/30/2024 МХ „ЕЛЕКТРОПРИВРЕДА РЕПУБЛИКЕ СРПСКЕ” ЕЛЕКТРИЧНА ЕНЕРГИЈА ЈАВНА РАСВЕТА 204,873.89
380 РЕКАПИТУЛАЦИЈА РАЧУНА 9/30/2024 МХ „ЕЛЕКТРОПРИВРЕДА РЕПУБЛИКЕ СРПСКЕ” ЕЛЕКТРИЧНА ЕНЕРГИЈА ЈАВНА РАСВЕТА 64,574.14
381 186096-4-0924-4101605 и др рекапитулација 9/30/2024 МХ „ЕЛЕКТРОПРИВРЕДА РЕПУБЛИКЕ СРПСКЕ” УТРОШАК ЕЛ. ЕНЕРГИЈЕ ЗА СЕМАФОРЕ, МЈЕСЕЦ СЕПТЕМБАР 2024. ГОД. 2,571.18
382 194040-4-0924-4101605 9/30/2024 МХ „ЕЛЕКТРОПРИВРЕДА РЕПУБЛИКЕ СРПСКЕ” УТРОШАК ЕЛ. ЕНЕРГИЈЕ ЗА ПУМПНУ СТАНИЦУ МОТИКЕ 2, КАНАЛИЗАЦИЈА, УЛ. КРАЉА АЛЕКСАНДРА И КАРАЂОРЂЕВИЋА 105 КОД 38.22
383 194041-4-0924-4101605 9/30/2024 МХ „ЕЛЕКТРОПРИВРЕДА РЕПУБЛИКЕ СРПСКЕ” УТРОШАК ЕЛ. ЕНЕРГИЈЕ ЗА ПУМПНУ СТАНИЦУ ПС1, КАНАЛИЗАЦИЈА, УЛ. КРАЉА АЛЕКСАНДРА И КАРАЂОРЂЕВИЋА ББ 38.22
384 5357729-4-0924-7366436 9/30/2024 МХ „ЕЛЕКТРОПРИВРЕДА РЕПУБЛИКЕ СРПСКЕ” РАЧУН ЗА ИX 2024. - ЗАЈЕДНИЧКА ПОТРОШЊА У УЛ. XИИ КУЉАНСКА БР. 65 38.07
385 190990-4-0924-4100521 9/30/2024 МХ „ЕЛЕКТРОПРИВРЕДА РЕПУБЛИКЕ СРПСКЕ” РАЧУН ЗА ИX 2024. ЗА МОБИЛНИ ШТАНД У УЛ. С. ПРВОВЕНЧАНОГ ББ 56.19
386 192532-4-0924-4100521 9/30/2024 МХ „ЕЛЕКТРОПРИВРЕДА РЕПУБЛИКЕ СРПСКЕ” РАЧУН ЗА ИX 2024. ЗА П. П. БР. 11 У УЛ. К. П. И КАРАЂОРЂЕВИЋА БР. 113 38.62
387 5357728-4-0924-7366436 9/30/2024 МХ „ЕЛЕКТРОПРИВРЕДА РЕПУБЛИКЕ СРПСКЕ” РАЧУН ЗА ИX 2024. - ЗАЈЕДНИЧКА ПОТРОШЊА У УЛ. XИИ КУЉАНСКА БР. 63 18.31
388 192533-4-0924-4100521 9/30/2024 МХ „ЕЛЕКТРОПРИВРЕДА РЕПУБЛИКЕ СРПСКЕ” РАЧУН ЗА ИX 2024. ЗА П. П. БР. 1 У МЗ ПЕТРИЋЕВАЦ 38.62
389 192833-4-0924-4100521 9/30/2024 МХ „ЕЛЕКТРОПРИВРЕДА РЕПУБЛИКЕ СРПСКЕ” РАЧУН ЗА ИX 2024. ЗА МЗ ПИСКАВИЦА (БАРАКА) 38.51
390 5357730-4-0924-7366436 9/30/2024 МХ „ЕЛЕКТРОПРИВРЕДА РЕПУБЛИКЕ СРПСКЕ” РАЧУН ЗА ИX 2024. - ЗАЈЕДНИЧКА ПОТРОШЊА У УЛ. XИИ КУЉАНСКА БР. 61 19.02
391 190988-4-0924-4100521 9/30/2024 МХ „ЕЛЕКТРОПРИВРЕДА РЕПУБЛИКЕ СРПСКЕ” РАЧУН ЗА ИX 2024. ЗА МОБИЛНИ ШТАНД У УЛ. Ц. ЛАЗАРА ББ 98.11
392 192525-4-0924-4100521 9/30/2024 МХ „ЕЛЕКТРОПРИВРЕДА РЕПУБЛИКЕ СРПСКЕ” РАЧУН ЗА ИX 2024. ЗА ЦЕНТРАЛНУ ГАРАЖУ БР. 1 У УЛ. КОРДУНАШКА БР. 10 63.71
393 192526-4-0924-4100521 9/30/2024 МХ „ЕЛЕКТРОПРИВРЕДА РЕПУБЛИКЕ СРПСКЕ” РАЧУН ЗА ИX 2024. ЗА ЈС „ПЕЋИНА” 0.00
394 190987-4-0924-4100521 9/30/2024 МХ „ЕЛЕКТРОПРИВРЕДА РЕПУБЛИКЕ СРПСКЕ” РАЧУН ЗА ИX 2024. ЗА МОБИЛНИ ШТАНД У УЛ. Б. ПОПОВИЋА БР. 2 38.51
395 192524-4-0924-4100521 9/30/2024 МХ „ЕЛЕКТРОПРИВРЕДА РЕПУБЛИКЕ СРПСКЕ” РАЧУН ЗА ИX 2024. ЗА КГК У УЛ. С. МАТАВУЉА БР. 4 А 39.34
396 190989-4-0924-4100521 9/30/2024 МХ „ЕЛЕКТРОПРИВРЕДА РЕПУБЛИКЕ СРПСКЕ” РАЧУН ЗА ИX 2024. ЗА МОБИЛНИ ШТАНД У Б. В. Ж. МИШИЋА БР. 57 84.97
397 190986-4-0924-4100521 9/30/2024 МХ „ЕЛЕКТРОПРИВРЕДА РЕПУБЛИКЕ СРПСКЕ” РАЧУН ЗА ИX 2024. ЗА МОБИЛНИ ШТАНД У УЛ. Д. ВАСИЋА ББ 105.83
398 рекапитулација 8/31/2024 МХ „ЕЛЕКТРОПРИВРЕДА РЕПУБЛИКЕ СРПСКЕ” УТРОШАК ЕЛЕКТРИЧНЕ ЕНЕРГИЈЕ ЗА РАД СЕМАФОРА СПЕЦИФИКАЦИЈА 40 РАЧУНА 2,819.35
399 4384360-4-0824-7366523 8/31/2024 МХ „ЕЛЕКТРОПРИВРЕДА РЕПУБЛИКЕ СРПСКЕ” УТРОШАК ЕЛЕКТРИЧНЕ ЕНЕРГИЈЕ ЗА ПУЊАЧ ЕЛЕКТРИЧНИХ ВОЗИЛА, УЛИЦА МЛАДЕНА СТОЈАНОВИЋА 56.66
400 4384380-4-0824-7366471 8/31/2024 МХ „ЕЛЕКТРОПРИВРЕДА РЕПУБЛИКЕ СРПСКЕ” УТРОШАК ЕЛЕКТРИЧНЕ ЕНЕРГИЈЕ ЗА ПУЊАЧ ЕЛ. ВОЗИЛА, УЛИЦА ВИДОВДАНСКА 1,235.51
401 3768648-4-0724-7366511 7/31/2024 МХ „ЕЛЕКТРОПРИВРЕДА РЕПУБЛИКЕ СРПСКЕ” РАЧУН ЗА ВИИ 2024. ЗА МЗ ПИСКАВИЦА 4.38
402 141383-4-0724-4100521 7/31/2024 МХ „ЕЛЕКТРОПРИВРЕДА РЕПУБЛИКЕ СРПСКЕ” РАЧУН ЗА ВИИ 2024. ЗА МЗ ПИСКАВИЦА 38.22
403 1907777-4-0424-7366406 4/30/2024 МХ „ЕЛЕКТРОПРИВРЕДА РЕПУБЛИКЕ СРПСКЕ” СТРУЈА 04/24 5.27
404 1883668-4-0424-7366478 4/30/2024 МХ „ЕЛЕКТРОПРИВРЕДА РЕПУБЛИКЕ СРПСКЕ” РАЧУН ЗА ИВ 2024. ЗА АМБУЛАНТУ У МЗ ПЕТРИЋЕВАЦ (ОБАВЈЕШТЕЊЕ) 5.85
405 1896459-4-0424-7366415 4/30/2024 МХ „ЕЛЕКТРОПРИВРЕДА РЕПУБЛИКЕ СРПСКЕ” СТРУЈА 04/24 60.57
406 79814-4-0424-4101720 4/30/2024 МХ „ЕЛЕКТРОПРИВРЕДА РЕПУБЛИКЕ СРПСКЕ” СТРУЈА 04/24 74.60
407 1897844-4-0424-7366436 4/30/2024 МХ „ЕЛЕКТРОПРИВРЕДА РЕПУБЛИКЕ СРПСКЕ” РАЧУН ЗА ИВ 2024. ЗА П. П. У УЛ. ГРЧКА БР. 4 164.77
408 1259579-4-0324-7366443 3/31/2024 МХ „ЕЛЕКТРОПРИВРЕДА РЕПУБЛИКЕ СРПСКЕ” РАЧУН ЗА ИИИ 2024. ЗА П. П. БР. 63 У УЛ. С. МАТАВУЉА БР. 2 5.87
409 3150087-4-0624-7366510 6/30/2024 МХ „ЕЛЕКТРОПРИВРЕДА РЕПУБЛИКЕ СРПСКЕ” РАЧУН ЗА ВИ 2024. ЗА МЗ ПИСКАВИЦА (БАРАКА) 41.93
410 3148641-4-0624-7366443 6/30/2024 МХ „ЕЛЕКТРОПРИВРЕДА РЕПУБЛИКЕ СРПСКЕ” РАЧУН ЗА ВИ 2024. ЗА П. П. БР. 63 У УЛ. С. МАТАВУЉА БР. 2 41.93
411 39 7/31/2024 „СИЕКОМ” д.о.о. ОДРЖАВАЊЕ ТЕЛЕФОНСКОГ СИСТЕМА ГУБЛ ЗА ПЕРИОД 05. 07 - 04. 08. 2024. (11. РАТА ОД 12) 585.00
412 45 8/30/2024 „СИЕКОМ” д.о.о. ОДРЖАВАЊЕ ТЕЛЕФОНСКОГ СИСТЕМА ГУБЛ ЗА ПЕРИОД 05. 08 - 04. 09. 2024. (12/12) 585.00
413 ИФ-00131-1-24 ПРИВРЕМЕНА СИТУАЦИЈА 8/31/2024 „ВАЛЕК КОМЕРЦ” д.о.о. ТЕКУЋЕ ОДРЖАВАЊЕ ФОНТАНА 42,075.54
414 24-360-002370 8/30/2024 „ЕКО БЕЛ” д.о.о. ЛАКТАШИ ДЕВИПЕРИЗАЦИЈА И УКЛАЊАЊЕ СТРШЉЕНА 526.50
415 241/24 9/3/2024  „ЛУКАЈИЋ-ТРАВЕЛ&ТРАНСПОРТ АГЕНЦY” ФАКТУРА БРОЈ 241/24 ;БФ:3623 10,507.26
416 195/24 7/4/2024  „ЛУКАЈИЋ-ТРАВЕЛ&ТРАНСПОРТ АГЕНЦY” ФАКТУРА БРОЈ 195/24; БФ:3575 8,986.12
417 196/24 7/4/2024  „ЛУКАЈИЋ-ТРАВЕЛ&ТРАНСПОРТ АГЕНЦY” ФАКТУРА БРОЈ 196/24 ;БФ:3576 2,118.02
418 253/24 БФ: 3635 9/20/2024  „ЛУКАЈИЋ-ТРАВЕЛ&ТРАНСПОРТ АГЕНЦY” УСЛУГА ПРЕВОЗА ПУТНИКА НА РЕЛАЦИЈИ БАЊА ЛУКА - ГАРАВИЦЕ - БАЊА ЛУКА 2,989.47
419 252/24 БФ: 3634 9/20/2024  „ЛУКАЈИЋ-ТРАВЕЛ&ТРАНСПОРТ АГЕНЦY” УСЛУГА ПРЕВОЗА ПУТНИКА НА РЕЛАЦИЈИ БАЊА ЛУКА - ОЗРЕН (ПЕТРОВО) - БАЊА ЛУКА 2,965.60
420 47/24 10/9/2024 УДРУЖЕЊЕ ИНТЕРНИХ РЕВИЗОРА БАЊА ЛУКА КОТИЗАЦИЈА ЗА ВЕБИНАР 150.00
421 509/24 9/11/2024 „БОЧАЦ ТУРС” д.о.о. БАЊА ЛУКА МЈЕСЕЧНЕ КАРТЕ ЗА 09/2024 ЗА УЧЕНИКЕ РОМСКЕ ПРИПАДНОСТИ 183.00
422 582/2024 10/15/2024 „БОЧАЦ ТУРС” д.о.о. БАЊА ЛУКА БЕСПЛАТНЕ ПЕНЗИОНЕРСКЕ МЈЕСЕЧНЕ КАРТЕ 24,384.56
423 585/24 10/15/2024 „БОЧАЦ ТУРС” д.о.о. БАЊА ЛУКА РАЗЛИКА ОД ЦИЈЕНЕ КАРАТА 5,164.25
424 583/24 10/15/2024 „БОЧАЦ ТУРС” д.о.о. БАЊА ЛУКА РАЗЛИКА ОД ЦИЈЕНЕ КАРАТА 20,144.90
425 584/2024 10/15/2024 „БОЧАЦ ТУРС” д.о.о. БАЊА ЛУКА СУБВЕНЦИЈЕ 22,219.66
426 521/2024 10/4/2024 „БОЧАЦ ТУРС” д.о.о. БАЊА ЛУКА СУБВЕНЦИЈЕ 121,750.80
427 459/2023 8/17/2023 „БОЧАЦ ТУРС” д.о.о. БАЊА ЛУКА СУБВЕНЦИЈА ЗА ЈАВНИ ПРЕВОЗ 08/23 18,951.39
428 589/23 10/19/2023 „БОЧАЦ ТУРС” д.о.о. БАЊА ЛУКА СУБВЕНЦИЈЕ ЗА ЈАВНИ ПРЕВОЗП 10/23 21,383.74
429 341/23 6/19/2023 „БОЧАЦ ТУРС” д.о.о. БАЊА ЛУКА СУБВЕНЦИЈА ЗА ЈАВНИ ПРЕВОЗ 06/23 26,090.21
430 330/23 6/13/2023 „БОЧАЦ ТУРС” д.о.о. БАЊА ЛУКА СУБВЕНЦИЈА ЗА ЈАВНИ ПРЕВОЗ 06/23 19,386.26
431 270/23 5/12/2023 „БОЧАЦ ТУРС” д.о.о. БАЊА ЛУКА СУБВЕНЦИЈА ЗА ЈАВНИ ПРЕВОЗ 05/23 19,455.80
432 269/23 5/12/2023 „БОЧАЦ ТУРС” д.о.о. БАЊА ЛУКА СУБВЕНЦИЈА ЗА ЈАВНИ ПРЕВОЗ 05/23 27,172.10
433 401/23 7/13/2023 „БОЧАЦ ТУРС” д.о.о. БАЊА ЛУКА СУБВЕНЦИЈА ЗА ЈАВНИ ПРЕВОЗ 07/23 17,552.40
434 400/23 7/13/2023 „БОЧАЦ ТУРС” д.о.о. БАЊА ЛУКА СУБВЕНЦИЈА ЗА ЈАВНИ ПРЕВОЗ 07/23 18,990.59
435 520/23 9/26/2023 „БОЧАЦ ТУРС” д.о.о. БАЊА ЛУКА СУБВЕНЦИЈА ЗА ЈАВНИ ПРЕВОЗ 09/23 20,336.40
436 518/23 9/14/2023 „БОЧАЦ ТУРС” д.о.о. БАЊА ЛУКА СУБВЕНЦИЈА ЗА ЈАВНИ ПРЕВОЗ 09/23 26,885.90
437 58/23 9/20/2023 „ЖАК ТУРС” д.о.о. БАЊА ЛУКА СУБВЕНЦИЈА ЗА ЈАВНИ ПРЕВОЗ 09/23 1,827.60
438 51/23 8/16/2023 „ЖАК ТУРС” д.о.о. БАЊА ЛУКА СУБВЕНЦИЈА ЗА ЈАВНИ ПРЕВОЗ 08/23 1,585.80
439 32/23 6/16/2023 „ЖАК ТУРС” д.о.о. БАЊА ЛУКА СУБХВЕНЦИЈА ЗА ЈАВНИ ПРЕВОЗ 06/23 2,080.76
440 39/23 7/21/2023 „ЖАК ТУРС” д.о.о. БАЊА ЛУКА СУБВЕНЦИЈА ЗА ЈАВНИ ПРЕВОЗ 07/23 1,390.00
441 98/24 10/15/2024 „ЖАК ТУРС” д.о.о. БАЊА ЛУКА РАЗЛИКА ОД ЦИЈЕНЕ КАРАТА 807.40
442 04-Р-952/24 9/16/2024 ЈУ СЛУЖБЕНИ ГЛАСНИК РС РЕЖИЈСКИ МАТЕРИЈАЛ 7,100.00
443 04-р-909/24 9/2/2024 ЈУ СЛУЖБЕНИ ГЛАСНИК РС РЕЖИЈСКИ МАТЕРИЈАЛ 800.00
444 494/24 7/31/2024 ЗЕВ ПАЛИХ БОРАЦА 11 РАЧУН ЗАВИИ 2024. ЗА СТАН БР. 68 16.00
445 451/24 7/31/2024 ЗЕВ ПАЛИХ БОРАЦА 11 РАЧУН ЗА ВИИ 2024. ЗА СТАН БР. 25 16.00
446 436/24 7/31/2024 ЗЕВ ПАЛИХ БОРАЦА 11 РАЧУН ЗА ВИИ 2024. ЗА СТАН БР. 10 14.00
447 435/24 7/31/2024 ЗЕВ ПАЛИХ БОРАЦА 11 РАЧУН ЗА ВИИ 2024. ЗА СТАН БР. 9 16.00
448 430/24 7/31/2024 ЗЕВ ПАЛИХ БОРАЦА 11 РАЧУН ЗА ВИИ 2024. ЗА СТАН БР. 4 16.40
449 288/24 5/31/2024 ЗЕВ ПАЛИХ БОРАЦА 11 РАЧУН ЗА В 2024. ЗА СТАН БР. 4 16.40
450 293/24 5/31/2024 ЗЕВ ПАЛИХ БОРАЦА 11 РАЧУН ЗА В 2024. ЗА СТАН БР. 9 16.00
451 294/24 5/31/2024 ЗЕВ ПАЛИХ БОРАЦА 11 РАЧУН ЗА В 2024. ЗА СТАН БР. 10 14.00
452 309/24 5/31/2024 ЗЕВ ПАЛИХ БОРАЦА 11 РАЧУН ЗА В 2024. ЗА СТАН БР. 25 16.00
453 352/24 5/31/2024 ЗЕВ ПАЛИХ БОРАЦА 11 РАЧУН ЗА В 2024. ЗА СТАН БР. 68 16.00
454 423/24 6/30/2024 ЗЕВ ПАЛИХ БОРАЦА 11 РАЧУН ЗА ВИ 2024. ЗА СТАН БР. 68 16.00
455 359/24 6/30/2024 ЗЕВ ПАЛИХ БОРАЦА 11 РАЧУН ЗА ВИ 2024. ЗА СТАН БР. 4 16.40
456 380/24 6/30/2024 ЗЕВ ПАЛИХ БОРАЦА 11 РАЧУН ЗА ВИ 2024. ЗА СТАН БР. 25 16.00
457 364/24 6/30/2024 ЗЕВ ПАЛИХ БОРАЦА 11 РАЧУН ЗА ВИ 2024. ЗА СТАН БР. 9 16.00
458 365/24 6/30/2024 ЗЕВ ПАЛИХ БОРАЦА 11 РАЧУН ЗА ВИ 2024. ЗА СТАН БР. 10 14.00
459 63-ВИИИ/24 8/5/2024 „ФАБРУМ СОЛУТИОНС” д.о.о. РАЧУН БРОЈ 63-ВИИИ/24 1,271.97
460 430/24 7/31/2024 ЗЕВ ПАЛИХ БОРАЦА 13 РАЧУН ЗА ВИИ 2024. ЗА СТАН БР. 4 16.40
461 436/24 7/31/2024 ЗЕВ ПАЛИХ БОРАЦА 13 РАЧУН ЗА ВИИ 2024. ЗА СТАН БР. 10 14.00
462 435/24 7/31/2024 ЗЕВ ПАЛИХ БОРАЦА 13 РАЧУН ЗА ВИИ 2024. ЗА СТАН БР. 9 15.20
463 433/24 7/31/2024 ЗЕВ ПАЛИХ БОРАЦА 13 РАЧУН ЗА ВИИ 2024. ЗА СТАН БР. 7 15.20
464 496/24 7/31/2024 ЗЕВ ПАЛИХ БОРАЦА 13 РАЧУН ЗА ВИИ 2024. ЗА СТАН БР. 70 16.00
465 494/24 7/31/2024 ЗЕВ ПАЛИХ БОРАЦА 13 РАЧУН ЗА ВИИ 2024. ЗА СТАН БР. 68 16.00
466 493/24 7/31/2024 ЗЕВ ПАЛИХ БОРАЦА 13 РАЧУН ЗА ВИИ 2024. ЗА СТАН БР. 67 16.00
467 484/24 7/31/2024 ЗЕВ ПАЛИХ БОРАЦА 13 РАЧУН ЗА ВИИ 2024. ЗА СТАН БР. 58 16.00
468 487/24 7/31/2024 ЗЕВ ПАЛИХ БОРАЦА 13 РАЧУН ЗА ВИИ 2024. ЗА СТАН БР. 61 16.00
469 489/24 7/31/2024 ЗЕВ ПАЛИХ БОРАЦА 13 РАЧУН ЗА ВИИ 2024. ЗА СТАН БР. 63 16.00
470 492/24 7/31/2024 ЗЕВ ПАЛИХ БОРАЦА 13 РАЧУН ЗА ВИИ 2024. ЗА СТАН БР. 66 16.40
471 422/24 6/30/2024 ЗЕВ ПАЛИХ БОРАЦА 13 РАЧУН ЗА ВИ 2024. ЗА СТАН БР. 67 16.00
472 421/24 6/30/2024 ЗЕВ ПАЛИХ БОРАЦА 13 РАЧУН ЗА ВИ 2024. ЗА СТАН БР. 66 16.40
473 418/24 6/30/2024 ЗЕВ ПАЛИХ БОРАЦА 13 РАЧУН ЗА ВИ 2024. ЗА СТАН БР. 63 16.00
474 416/24 6/30/2024 ЗЕВ ПАЛИХ БОРАЦА 13 РАЧУН ЗА ВИ 2024. ЗА СТАН БР. 61 16.00
475 413/24 6/30/2024 ЗЕВ ПАЛИХ БОРАЦА 13 РАЧУН ЗА ВИ 2024. ЗА СТАН БР. 58 16.00
476 359/24 6/30/2024 ЗЕВ ПАЛИХ БОРАЦА 13 РАЧУН ЗА ВИ 2024. ЗА СТАН БР. 4 16.40
477 364/24 6/30/2024 ЗЕВ ПАЛИХ БОРАЦА 13 РАЧУН ЗА ВИ 2024. ЗА СТАН БР. 9 15.20
478 365/24 6/30/2024 ЗЕВ ПАЛИХ БОРАЦА 13 РАЧУН ЗА ВИ 2024. ЗА СТАН БР. 10 14.00
479 362/24 6/30/2024 ЗЕВ ПАЛИХ БОРАЦА 13 РАЧУН ЗА ВИ 2024. ЗА СТАН БР. 7 15.20
480 425/24 6/30/2024 ЗЕВ ПАЛИХ БОРАЦА 13 РАЧУН ЗА ВИ 2024. ЗА СТАН БР. 70 16.00
481 423/24 6/30/2024 ЗЕВ ПАЛИХ БОРАЦА 13 РАЧУН ЗА ВИ 2024. ЗА СТАН БР. 68 16.00
482 288/24 5/31/2024 ЗЕВ ПАЛИХ БОРАЦА 13 РАЧУН ЗА В 2024. ЗА СТАН БР. 4 16.40
483 291/24 5/31/2024 ЗЕВ ПАЛИХ БОРАЦА 13 РАЧУН ЗА В 2024. ЗА СТАН БР. 7 15.20
484 342/24 5/31/2024 ЗЕВ ПАЛИХ БОРАЦА 13 РАЧУН ЗА В 2024. ЗА СТАН БР. 58 16.00
485 345/24 5/31/2024 ЗЕВ ПАЛИХ БОРАЦА 13 РАЧУН ЗА В 2024. ЗА СТАН БР. 61 16.00
486 347/24 5/31/2024 ЗЕВ ПАЛИХ БОРАЦА 13 РАЧУН ЗА В 2024. ЗА СТАН БР. 63 16.00
487 352/24 5/31/2024 ЗЕВ ПАЛИХ БОРАЦА 13 РАЧУН ЗА В 2024. ЗА СТАН БР. 68 16.00
488 351/24 5/31/2024 ЗЕВ ПАЛИХ БОРАЦА 13 РАЧУН ЗА В 2024. ЗА СТАН БР. 67 16.00
489 350/24 5/31/2024 ЗЕВ ПАЛИХ БОРАЦА 13 РАЧУН ЗА В 2024. ЗА СТАН БР. 66 16.40
490 354/24 5/31/2024 ЗЕВ ПАЛИХ БОРАЦА 13 РАЧУН ЗА В 2024. ЗА СТАН БР. 70 16.00
491 293/24 5/31/2024 ЗЕВ ПАЛИХ БОРАЦА 13 РАЧУН ЗА В 2024. ЗА СТАН БР. 9 15.20
492 294/24 5/31/2024 ЗЕВ ПАЛИХ БОРАЦА 13 РАЧУН ЗА В 2024. ЗА СТАН БР. 10 14.00
493 501/24 8/31/2024 ЗЕВ ПАЛИХ БОРАЦА 13 РАЧУН ЗА ВИИИ 2024. ЗА СТАН БР. 4 16.40
494 504/24 8/31/2024 ЗЕВ ПАЛИХ БОРАЦА 13 РАЧУН ЗА ВИИИ 2024. ЗА СТАН БР. 7 15.20
495 506/24 8/31/2024 ЗЕВ ПАЛИХ БОРАЦА 13 РАЧУН ЗА ВИИИ 2024. ЗА СТАН БР. 9 15.20
496 507/24 8/31/2024 ЗЕВ ПАЛИХ БОРАЦА 13 РАЧУН ЗА ВИИИ 2024. ЗА СТАН БР. 10 14.00
497 560/24 8/31/2024 ЗЕВ ПАЛИХ БОРАЦА 13 РАЧУН ЗА ВИИИ 2024. ЗА СТАН БР. 63 16.00
498 563/24 8/31/2024 ЗЕВ ПАЛИХ БОРАЦА 13 РАЧУН ЗА ВИИИ 2024. ЗА СТАН БР. 66 16.40
499 564/24 8/31/2024 ЗЕВ ПАЛИХ БОРАЦА 13 РАЧУН ЗА ВИИИ 2024. ЗА СТАН БР. 67 16.00
500 565/24 8/31/2024 ЗЕВ ПАЛИХ БОРАЦА 13 РАЧУН ЗА ВИИИ 2024. ЗА СТАН БР. 68 16.00
501 567/24 8/31/2024 ЗЕВ ПАЛИХ БОРАЦА 13 РАЧУН ЗА ВИИИ 2024. ЗА СТАН БР. 70 16.00
502 555/24 8/31/2024 ЗЕВ ПАЛИХ БОРАЦА 13 РАЧУН ЗА ВИИИ 2024. ЗА СТАН БР. 58 16.00
503 558/24 8/31/2024 ЗЕВ ПАЛИХ БОРАЦА 13 РАЧУН ЗА ВИИИ 2024. ЗА СТАН БР. 61 16.00
504 43/24 5/31/2024 „ЕКО ЕУРО ТИМ” д.о.о. БАЊА ЛУКА  УКЛАЊАЊЕ ОТПАДА 218,601.82
505 73/24 7/31/2024 „ЕКО ЕУРО ТИМ” д.о.о. БАЊА ЛУКА УРЕЂЕЊЕ ВОДОТОКОВА 163,859.44
506 74/24 7/31/2024 „ЕКО ЕУРО ТИМ” д.о.о. БАЊА ЛУКА ПРВА ПРИВРЕМЕНА СИТУАЦИЈА БРОЈ 74/24 ОД 31. 07. 2024. 19,458.33
507 80/24 8/31/2024 „ЕКО ЕУРО ТИМ” д.о.о. БАЊА ЛУКА УКЛАЊАЊЕ МИЈЕШАНОГ ОТПАДА 154,893.30
508 83/24 8/31/2024 „ЕКО ЕУРО ТИМ” д.о.о. БАЊА ЛУКА УРЕЂЕЊЕ ВОДОТОКОВА 61,652.33
509 90/24 8/31/2024 „ЕКО ЕУРО ТИМ” д.о.о. БАЊА ЛУКА УСЛУГА ДОСТАВЕ ПИТКЕ ВОДЕ 31,331.43
510 И ПРИВРЕМЕНА СИТУАЦИЈА 9/30/2024 ТЕКТОН ИЗГРАДЊА ЉЕТНЕ БИНЕ У ПОТКОЗАРЈУ 79,202.16
511 35-08/2024 9/8/2024 „АДИКО БАНКА” а.д. БАЊА ЛУКА ПРОВИЗИЈА ПО ПОСЛОВИМА ПЛАТНОГ ПРОМЕТА 08/2024 222.80
512 0044/24 8/21/2024 „ИНТЕЛТРАФИК” д.о.о. ПРЕВЕНТИВНО И ПЕРИОДИЧНО ОДРЖАВАЊЕ ПАРКОМАТА 999.95
513 0043/24 8/21/2024 „ИНТЕЛТРАФИК” д.о.о. ПРЕВЕНТИВНО И ПЕРИОДИЧНО ОДРЖАВАЊЕ ПАРКОМАТА 999.95
514 0045/24 8/21/2024 „ИНТЕЛТРАФИК” д.о.о. ПРЕВЕНТИВНО И ПЕРИОДИЧНО ОДРЖАВАЊЕ ПАРКОМАТА 999.95
515 24-3000-000196 9/1/2024 ЈП „ПРОТИВГРАДНА ПРЕВЕНТИВА РС” а.д. ГРАДИШКА ПОСЛОВИ ПРОТИВГРАДНЕ ЗАШТИТЕ 2024 - ИX РАТА 5,000.00
516 24-3000-000226 10/1/2024 ЈП „ПРОТИВГРАДНА ПРЕВЕНТИВА РС” а.д. ГРАДИШКА ПОСЛОВИ ПРОТИВГРАДНЕ ЗАШТИТЕ 2024. 5,000.00
517 ХЕМ-345/24 9/2/2024 „ПЕРФЕЦТ ЦЛЕАН” д.о.о. БАЊА ЛУКА ПРАЊЕ ДЕКА,ПЛАХТИ, ЈАСТУЧНИЦА И ДР. 570.51
518 53320-2024-08 8/31/2024 „ВОДОВОД” а.д. БАЊА ЛУКА УТРОШАК ВОДЕ ЗА АВГУСТ 2024. 11.70
519 946653-2024-08 8/31/2024 „ВОДОВОД” а.д. БАЊА ЛУКА РАЧУН ЗА ВИИИ 2024. ЗА П. П. БР. 34 У УЛ. К. П. И КАРАЂОРЂЕВИЋА БР. 87 5.85
520 535462-2024-06 6/30/2024 „ВОДОВОД” а.д. БАЊА ЛУКА РАЧУН ЗА ВИ 2024. ЗА XИИ КУЉАНСКА БР. 65 31.08
521 941147-2024-08 8/31/2024 „ВОДОВОД” а.д. БАЊА ЛУКА РАЧУН ЗА ВОДУ У ПЗ „РАМИЋИ-БАЊА ЛУКА” 11.70
522 941147-2024-08 8/31/2024 „ВОДОВОД” а.д. БАЊА ЛУКА РАЧУН ЗА ВОДУ У ПЗ „РАМИЋИ-БАЊА ЛУКА” 1.40
523 941147-2024-08 8/31/2024 „ВОДОВОД” а.д. БАЊА ЛУКА РАЧУН ЗА ВОДУ У ПЗ „РАМИЋИ-БАЊА ЛУКА” 11.70
524 941147-2024-08 8/31/2024 „ВОДОВОД” а.д. БАЊА ЛУКА РАЧУН ЗА ВИИИ 2024. ЗА СТАКЛЕНАЦ СПРАТ 42.99
525 53309-2024-07 7/31/2024 „ВОДОВОД” а.д. БАЊА ЛУКА УТРОШАК ВОДЕ У ЈАВНОЈ ГАРАЖИ УЛИЦА АЛЕЈА СВЕТОГ САВЕ 18.30
526 53309-2024-08 8/31/2024 „ВОДОВОД” а.д. БАЊА ЛУКА УТРОШАК ВОДЕ У ЈАВНОЈ ГАРАЖИ УЛИЦА АЛЕЈА СВЕТОГ САВЕ 41.98
527 53334-2024/07 7/31/2024 „ВОДОВОД” а.д. БАЊА ЛУКА УТРОШАК ВОДЕ У ЈАВНОЈ ГАРАЖИ УЛИЦА АЛЕЈА СВЕТОГ САВЕ 8.15
528 53334-2024-08 8/31/2024 „ВОДОВОД” а.д. БАЊА ЛУКА УТРОШАК ВОДЕ У ЈАВНОЈ ГАРАЖИ УЛИЦА АЛЕЈА СВЕТОГ САВЕ 11.55
529 2135559-2024-06 6/30/2024 „ВОДОВОД” а.д. БАЊА ЛУКА РАЧУН ЗА ВИ 2024. ЗА ПОМОЋНЕ ПРОСТОРИЈЕ У УЛ. ПАЛИХ БОРАЦА БР. 37 А 6.48
530 2135559-2024-03 3/31/2024 „ВОДОВОД” а.д. БАЊА ЛУКА РАЧУН ЗА ИИИ 2024. ЗА ПОМОЋНЕ ПРОСТОРИЈЕ У УЛ. ПАЛИХ БОРАЦА БР. 37 А 5.04
531 2135559-2023-12 12/31/2023 „ВОДОВОД” а.д. БАЊА ЛУКА РАЧУН ЗА XИИ 2023. ЗА ПОМОЋНЕ ПРОСТОРИЈЕ У УЛ. ПАЛИХ БОРАЦА БР. 37 А 7.91
532 12822-2024-03 3/31/2024 „ВОДОВОД” а.д. БАЊА ЛУКА РАЧУН ЗА ИИИ 2024. ЗА ХИДРАНТ У УЛ. XИИ КУЉАНСКА БР. 63 4.21
533 12822-2023-12 12/31/2023 „ВОДОВОД” а.д. БАЊА ЛУКА РАЧУН ЗА XИИ 2023. ЗА ХИДРАНТ У УЛ. XИИ КУЉАНСКА БР. 63 4.21
534 12822-2024-06 6/30/2024 „ВОДОВОД” а.д. БАЊА ЛУКА РАЧУН ЗА ВИ 2024. ЗА ХИДРАНТ У УЛ. XИИ КУЉАНСКА БР. 63 4.21
535 2135559-2023-09 9/30/2023 „ВОДОВОД” а.д. БАЊА ЛУКА РАЧУН ЗА ИX 2023. ЗА ПОМОЋНЕ ПРОСТОРИЈЕ У УЛ. ПАЛИХ БОРАЦА БР. 37 А 1.68
536 12881-2024-03 8/31/2024 „ВОДОВОД” а.д. БАЊА ЛУКА РАЧУН ЗА ИИИ 2024. ЗА ХИДРАНТ У УЛ. XИИ КУЉАНСКА БР. 61 35.10
537 12881-2023-12 8/31/2024 „ВОДОВОД” а.д. БАЊА ЛУКА РАЧУН ЗА XИИ 2023. ЗА ХИДРАНТ У УЛ. XИИ КУЉАНСКА БР. 61 35.10
538 12881-2023-09 9/30/2023 „ВОДОВОД” а.д. БАЊА ЛУКА РАЧУН ЗА ИX 2023. ЗА ХИДРАНТ У УЛ. XИИ КУЉАНСКА БР. 61 35.10
539 12881-2023-06 6/30/2023 „ВОДОВОД” а.д. БАЊА ЛУКА РАЧУН ЗА ВИ 2023. ЗА ХИДРАНТ У УЛ. XИИ КУЉАНСКА БР. 61 35.10
540 12881-2026-06 6/30/2023 „ВОДОВОД” а.д. БАЊА ЛУКА РАЧУН ЗА ВИ 2024. ЗА ХИДРАНТ У УЛ. XИИ КУЉАНСКА БР. 61 35.10
541 12822-2023-09 9/30/2023 „ВОДОВОД” а.д. БАЊА ЛУКА РАЧУН ЗА ИX 2023. ЗА ХИДРАНТ У УЛ. XИИ КУЉАНСКА БР. 63 4.21
542 12822-2023-06 6/30/2023 „ВОДОВОД” а.д. БАЊА ЛУКА РАЧУН ЗА ВИ 2023. ЗА ХИДРАНТ У УЛ. XИИ КУЉАНСКА БР. 63 4.21
543 945749-2024-07 7/31/2024 „ВОДОВОД” а.д. БАЊА ЛУКА ВОДА 07/2024 1.40
544 945749-2024-07 7/31/2024 „ВОДОВОД” а.д. БАЊА ЛУКА ВОДА 07/2024 11.70
545 947752-2024-07 7/31/2024 „ВОДОВОД” а.д. БАЊА ЛУКА ВОДА 07/24 11.70
546 947752-2024-07 7/31/2024 „ВОДОВОД” а.д. БАЊА ЛУКА ВОДА 07/2024 1.40
547 946653-2024-07 7/31/2024 „ВОДОВОД” а.д. БАЊА ЛУКА РАЧУН ЗА ВИИ 2024. ЗА П. П. БР. 34 У УЛ. К. П. И КАРАЂОРЂЕВИЋА БР. 87 5.85
548 535462-2024-06 6/30/2024 „ВОДОВОД” а.д. БАЊА ЛУКА РАЧУН ЗА ВИ 2024. ЗА СТАН БР. 5 У УЛ. XИИ КУЉАНСКА БР. 65 31.08
549 11161633-2024-07 7/31/2024 „ВОДОВОД” а.д. БАЊА ЛУКА ВОДА 07/2024 22.55
550 950317-2024-07 7/31/2024 „ВОДОВОД” а.д. БАЊА ЛУКА РАЧУН ЗА ВИИ 2024. ЗА СТАКЛЕНАЦ - СПРАТ 0.00
551 941147-2024-07 7/31/2024 „ВОДОВОД” а.д. БАЊА ЛУКА РАЧУН ЗА ВИИ 2024. ЗА СТАКЛЕНАЦ - СПРАТ 36.22
552 60565-2024-07 7/31/2024 „ВОДОВОД” а.д. БАЊА ЛУКА ВОДА 07/2024 9.21
553 950297-2024-07 7/31/2024 „ВОДОВОД” а.д. БАЊА ЛУКА ВОДА 07/2024 4,048.98
554 943913-2024-07 7/31/2024 „ВОДОВОД” а.д. БАЊА ЛУКА ВОДА 07/2024 45.89
555 54715-2024-07 7/31/2024 „ВОДОВОД” а.д. БАЊА ЛУКА ВОДА 07/2024 11.70
556 50643-2024-07 7/31/2024 „ВОДОВОД” а.д. БАЊА ЛУКА ВОДА 07/2024 4.78
557 950297-2024-07 7/31/2024 „ВОДОВОД” а.д. БАЊА ЛУКА ВОДА 07/2024 126.51
558 950329-2024-07 7/31/2024 „ВОДОВОД” а.д. БАЊА ЛУКА ВОДА 07/2024 16.52
559 1161351-2024-07 7/31/2024 „ВОДОВОД” а.д. БАЊА ЛУКА ВОДА 07/2024 9.38
560 950343-2024-07 7/31/2024 „ВОДОВОД” а.д. БАЊА ЛУКА ВОДА 07/2024 1.40
561 941158-2024-07 7/31/2024 „ВОДОВОД” а.д. БАЊА ЛУКА ВОДА 07/2024 34.56
562 947075-2024-07 7/31/2024 „ВОДОВОД” а.д. БАЊА ЛУКА ВОДА 07/2024 2.56
563 941147-2024-07 7/31/2024 „ВОДОВОД” а.д. БАЊА ЛУКА ВОДА 07/2024 119.74
564 941147-2024-07 7/31/2024 „ВОДОВОД” а.д. БАЊА ЛУКА ВОДА 07/2024 15.18
565 941147-2024-07 7/31/2024 „ВОДОВОД” а.д. БАЊА ЛУКА ВОДА 07/2024 2.46
566 941147-2024-07 7/31/2024 „ВОДОВОД” а.д. БАЊА ЛУКА ВОДА 07/2024 15.08
567 941147-2024-07 7/31/2024 „ВОДОВОД” а.д. БАЊА ЛУКА ВОДА 07/2024 4.33
568 941147-2024-07 7/31/2024 „ВОДОВОД” а.д. БАЊА ЛУКА ВОДА 07/2024 4.33
569 941147-2024-07 7/31/2024 „ВОДОВОД” а.д. БАЊА ЛУКА ВОДА 07/2024 2.46
570 941147-2024-07 7/31/2024 „ВОДОВОД” а.д. БАЊА ЛУКА ВОДА 07/2024 11.61
571 941147-2024-07 7/31/2024 „ВОДОВОД” а.д. БАЊА ЛУКА ВОДА 07/2024 32.01
572 941147-2024-07 7/31/2024 „ВОДОВОД” а.д. БАЊА ЛУКА ВОДА 07/2024 5.01
573 941147-2024-07 7/31/2024 „ВОДОВОД” а.д. БАЊА ЛУКА ВОДА 07/2024 10.56
574 941147-2024-07 7/31/2024 „ВОДОВОД” а.д. БАЊА ЛУКА ВОДА 07/2024 119.79
575 941147-2024-07 7/31/2024 „ВОДОВОД” а.д. БАЊА ЛУКА ВОДА 07/2024 11.70
576 941147-2024-07 7/31/2024 „ВОДОВОД” а.д. БАЊА ЛУКА ВОДА 07/2024 14.93
577 941147-2024-07 7/31/2024 „ВОДОВОД” а.д. БАЊА ЛУКА ВОДА 07/2024 11.70
578 941147-2024-07 7/31/2024 „ВОДОВОД” а.д. БАЊА ЛУКА ВОДА 07/2024 4.78
579 941147-2024-07 7/31/2024 „ВОДОВОД” а.д. БАЊА ЛУКА ВОДА 07/2024 11.70
580 941147-2024-07 7/31/2024 „ВОДОВОД” а.д. БАЊА ЛУКА ВОДА 07/2024 11.55
581 941147-2024-07 7/31/2024 „ВОДОВОД” а.д. БАЊА ЛУКА ВОДА 07/2024 4.78
582 941147-2024-07 7/31/2024 „ВОДОВОД” а.д. БАЊА ЛУКА ВОДА 07/2024 11.70
583 941147-2024-07 7/31/2024 „ВОДОВОД” а.д. БАЊА ЛУКА ВОДА 07/2024 1.40
584 941147-2024-07 7/31/2024 „ВОДОВОД” а.д. БАЊА ЛУКА ВОДА 07/2024 1.40
585 941147-2024-07 7/31/2024 „ВОДОВОД” а.д. БАЊА ЛУКА ВОДА 07/2024 84.92
586 941147-2024-07 7/31/2024 „ВОДОВОД” а.д. БАЊА ЛУКА ВОДА 07/2024 0.00
587 941147-2024-07 7/31/2024 „ВОДОВОД” а.д. БАЊА ЛУКА ВОДА 07/2024 2,973.72
588 941147-2024-07 7/31/2024 „ВОДОВОД” а.д. БАЊА ЛУКА ВОДА 07/2024 9.06
589 941147-2024-07 7/31/2024 „ВОДОВОД” а.д. БАЊА ЛУКА ВОДА 07/2024 3.71
590 941147-2024-07 7/31/2024 „ВОДОВОД” а.д. БАЊА ЛУКА ВОДА 07/2024 99.61
591 941147-2024-07 7/31/2024 „ВОДОВОД” а.д. БАЊА ЛУКА ВОДА 07/2024 24.36
592 941147-2024-07 7/31/2024 „ВОДОВОД” а.д. БАЊА ЛУКА ВОДА 07/2024 2.46
593 941147-2024-07 7/31/2024 „ВОДОВОД” а.д. БАЊА ЛУКА ВОДА 07/2024 1.40
594 941147-2024-07 7/31/2024 „ВОДОВОД” а.д. БАЊА ЛУКА ВОДА 07/2024 6.49
595 941147-2024-07 7/31/2024 „ВОДОВОД” а.д. БАЊА ЛУКА ВОДА 07/2024 11.70
596 941147-2024-07 7/31/2024 „ВОДОВОД” а.д. БАЊА ЛУКА ВОДА 07/2024 56.12
597 941147-2024-07 7/31/2024 „ВОДОВОД” а.д. БАЊА ЛУКА ВОДА 07/2024 1.40
598 941147-2024-07 7/31/2024 „ВОДОВОД” а.д. БАЊА ЛУКА ВОДА 07/2024 1.40
599 941147-2024-07 7/31/2024 „ВОДОВОД” а.д. БАЊА ЛУКА ВОДА 07/2024 11.70
600 941147-2024-07 7/31/2024 „ВОДОВОД” а.д. БАЊА ЛУКА ВОДА 07/2024 5.85
601 941147-2024-07 7/31/2024 „ВОДОВОД” а.д. БАЊА ЛУКА ВОДА 07/2024 17.62
602 941147-2024-07 7/31/2024 „ВОДОВОД” а.д. БАЊА ЛУКА ВОДА 07/2024 584.05
603 941147-2024-07 7/31/2024 „ВОДОВОД” а.д. БАЊА ЛУКА ВОДА 07/2024 5.85
604 941147-2024-07 7/31/2024 „ВОДОВОД” а.д. БАЊА ЛУКА ВОДА 07/2024 0.00
605 941147-2024-07 7/31/2024 „ВОДОВОД” а.д. БАЊА ЛУКА ВОДА 07/2024 560.38
606 941147-2024-07 7/31/2024 „ВОДОВОД” а.д. БАЊА ЛУКА ВОДА 07/2024 0.00
607 941147-2024-07 7/31/2024 „ВОДОВОД” а.д. БАЊА ЛУКА РАЧУН ЗА ВОДУ У ПЗ „РАМИЋИ-БАЊА ЛУКА” 07/24 11.70
608 941147-2024-07 7/31/2024 „ВОДОВОД” а.д. БАЊА ЛУКА РАЧУН ЗА ВОДУ У ПЗ „РАМИЋИ-БАЊА ЛУКА” 07/24 1.40
609 941147-2024-07 7/31/2024 „ВОДОВОД” а.д. БАЊА ЛУКА РАЧУН ЗА ВОДУ У ПЗ „РАМИЋИ-БАЊА ЛУКА” 07/24 11.70
610 941147-2024-04 4/30/2024 „ВОДОВОД” а.д. БАЊА ЛУКА РАЧУН ЗА ИВ 2024. ЗА П. П. БР. 109 У Б. В. Ж. МИШИЋА БР. 63 0.00
611 941147-2024-04 4/30/2024 „ВОДОВОД” а.д. БАЊА ЛУКА РАЧУН ЗА ВОДУ У ПЗ „РАМИЋИ-БАЊА ЛУКА” 11.70
612 941147-2024-04 4/30/2024 „ВОДОВОД” а.д. БАЊА ЛУКА РАЧУН ЗА ВОДУ У ПЗ „РАМИЋИ-БАЊА ЛУКА” 1.40
613 941147-2024-04 4/30/2024 „ВОДОВОД” а.д. БАЊА ЛУКА РАЧУН ЗА ВОДУ У ПЗ „РАМИЋИ-БАЊА ЛУКА” 11.70
614 946653-2024-04 4/30/2024 „ВОДОВОД” а.д. БАЊА ЛУКА РАЧУН ЗА ИВ 2024. ЗА П. П. БР. 34 У УЛ. К. П. И КАРАЂОРЂЕВИЋА БР. 87 5.85
615 62265-2019-07 7/31/2019 „ВОДОВОД” а.д. БАЊА ЛУКА ВОДА 07/2019 11.70
616 62265-2019-08 8/31/2019 „ВОДОВОД” а.д. БАЊА ЛУКА ВОДА 08/2019 11.70
617 62265-2019-09 9/30/2019 „ВОДОВОД” а.д. БАЊА ЛУКА ВОДА 09/2019 11.70
618 62265-2019-10 10/31/2019 „ВОДОВОД” а.д. БАЊА ЛУКА ВОДА 10/2019 11.70
619 62265-2019-11 11/30/2019 „ВОДОВОД” а.д. БАЊА ЛУКА ВОДА 11/2019 11.70
620 62265-2019-12 12/31/2019 „ВОДОВОД” а.д. БАЊА ЛУКА ВОДА 12/2019 11.70
621 62264-2023-01 1/21/2023 „ВОДОВОД” а.д. БАЊА ЛУКА ВОДА 01/2023 10.54
622 62264-2023-02 2/28/2023 „ВОДОВОД” а.д. БАЊА ЛУКА ВОДА 02/2023 7.37
623 62265-2023-04 4/30/2023 „ВОДОВОД” а.д. БАЊА ЛУКА ВОДА 04/2023 11.70
624 62265-2022-01 1/31/2022 „ВОДОВОД” а.д. БАЊА ЛУКА ВОДА 01/2022 11.70
625 62265-2022-02 2/28/2022 „ВОДОВОД” а.д. БАЊА ЛУКА ВОДА 02/2022 11.70
626 62264-2022-01 1/21/2022 „ВОДОВОД” а.д. БАЊА ЛУКА ВОДА 01/2022 10.52
627 62264-2022-02 2/28/2022 „ВОДОВОД” а.д. БАЊА ЛУКА ВОДА 02/2022 17.37
628 62264-2022-03 3/31/2022 „ВОДОВОД” а.д. БАЊА ЛУКА ВОДА 03/2022 18.25
629 62264-2022-04 4/30/2022 „ВОДОВОД” а.д. БАЊА ЛУКА ВОДА 04/2022 13.69
630 62264-2021-01 1/31/2021 „ВОДОВОД” а.д. БАЊА ЛУКА ВОДА 01/2021 5.97
631 62264-2021-02 2/28/2021 „ВОДОВОД” а.д. БАЊА ЛУКА ВОДА 02/2021 10.52
632 62264-2021-03 3/31/2021 „ВОДОВОД” а.д. БАЊА ЛУКА ВОДА 03/2021 5.97
633 62264-2021-04 4/30/2021 „ВОДОВОД” а.д. БАЊА ЛУКА ВОДА 04/2021 10.52
634 62264-2021-05 5/31/2021 „ВОДОВОД” а.д. БАЊА ЛУКА ВОДА 05/2021 5.97
635 62264-2021-06 6/30/2021 „ВОДОВОД” а.д. БАЊА ЛУКА ВОДА 06/2021 5.97
636 62264-2021-07 7/31/2021 „ВОДОВОД” а.д. БАЊА ЛУКА ВОДА 07/2021 1.40
637 62264-2021-08 8/31/2021 „ВОДОВОД” а.д. БАЊА ЛУКА ВОДА 08/2021 3.68
638 62264-2021-09 9/30/2021 „ВОДОВОД” а.д. БАЊА ЛУКА ВОДА 09/2021 10.52
639 62264-2021-10 10/31/2021 „ВОДОВОД” а.д. БАЊА ЛУКА ВОДА 10/2021 19.65
640 62264-2021-11 11/30/2021 „ВОДОВОД” а.д. БАЊА ЛУКА ВОДА 11/2021 15.09
641 62264-2021-12 12/31/2021 „ВОДОВОД” а.д. БАЊА ЛУКА ВОДА 12/2021 15.09
642 62265-2021-01 1/31/2021 „ВОДОВОД” а.д. БАЊА ЛУКА ВОДА 01/2021 11.70
643 62265-2021-02 2/28/2021 „ВОДОВОД” а.д. БАЊА ЛУКА ВОДА 02/2021 11.70
644 62265-2021-03 3/31/2021 „ВОДОВОД” а.д. БАЊА ЛУКА ВОДА 03/2021 11.70
645 62265-2021-04 4/30/2021 „ВОДОВОД” а.д. БАЊА ЛУКА ВОДА 04/2021 11.70
646 3-62265-2021-05 5/31/2021 „ВОДОВОД” а.д. БАЊА ЛУКА ВОДА 05/2021 11.70
647 62265-2021-06 6/30/2021 „ВОДОВОД” а.д. БАЊА ЛУКА ВОДА 06/2021 11.70
648 62265-2021-07 7/31/2021 „ВОДОВОД” а.д. БАЊА ЛУКА ВОДА 07/2021 11.70
649 62265-2021-08 8/31/2021 „ВОДОВОД” а.д. БАЊА ЛУКА ВОДА 08/2021 11.70
650 62265-2021-09 9/30/2021 „ВОДОВОД” а.д. БАЊА ЛУКА ВОДА 09/2021 11.70
651 62265-2021-10 10/31/2021 „ВОДОВОД” а.д. БАЊА ЛУКА ВОДА 10/2021 11.70
652 62265-2021-11 11/30/2021 „ВОДОВОД” а.д. БАЊА ЛУКА ВОДА 11/2021 11.70
653 62265-2021-12 12/31/2021 „ВОДОВОД” а.д. БАЊА ЛУКА ВОДА 12/2021 11.70
654 62264-2019-08 8/31/2019 „ВОДОВОД” а.д. БАЊА ЛУКА ВОДА 08/2019 3.68
655 62264-2019-09 9/30/2019 „ВОДОВОД” а.д. БАЊА ЛУКА ВОДА 09/2019 26.49
656 62264-2019-10 10/21/2019 „ВОДОВОД” а.д. БАЊА ЛУКА ВОДА 10/2019 17.37
657 62264-2019-11 11/30/2019 „ВОДОВОД” а.д. БАЊА ЛУКА ВОДА 11/2019 19.65
658 62264-2019-12 12/31/2019 „ВОДОВОД” а.д. БАЊА ЛУКА ВОДА 12/2019 21.94
659 62264-2020-01 1/31/2020 „ВОДОВОД” а.д. БАЊА ЛУКА ВОДА 01/2020 17.37
660 62264-2020-02 2/29/2020 „ВОДОВОД” а.д. БАЊА ЛУКА ВОДА 02/2020 3.68
661 62264-2020-03 3/31/2020 „ВОДОВОД” а.д. БАЊА ЛУКА ВОДА 03/2020 3.68
662 62264-2020-04 4/30/2020 „ВОДОВОД” а.д. БАЊА ЛУКА ВОДА 04/2020 8.25
663 62264-2020-05 5/31/2020 „ВОДОВОД” а.д. БАЊА ЛУКА ВОДА 05/2020 1.40
664 62264-2020-06 6/30/2020 „ВОДОВОД” а.д. БАЊА ЛУКА ВОДА 06/2020 1.40
665 62264-2020-07 7/31/2020 „ВОДОВОД” а.д. БАЊА ЛУКА ВОДА 07/2020 21.94
666 62264-2020-08 8/31/2020 „ВОДОВОД” а.д. БАЊА ЛУКА ВОДА 08/2020 272.90
667 62264-2020-09 9/30/2020 „ВОДОВОД” а.д. БАЊА ЛУКА ВОДА 09/2020 15.09
668 62264-2020-10 10/31/2020 „ВОДОВОД” а.д. БАЊА ЛУКА ВОДА 10/2020 12.81
669 62264-2020-11 11/30/2020 „ВОДОВОД” а.д. БАЊА ЛУКА ВОДА 11/2020 1.40
670 62264-2020-12 12/31/2020 „ВОДОВОД” а.д. БАЊА ЛУКА ВОДА 12/2020 26.49
671 62265-2020-01 1/31/2020 „ВОДОВОД” а.д. БАЊА ЛУКА ВОДА 01/2020 11.70
672 62265-2020-02 2/29/2020 „ВОДОВОД” а.д. БАЊА ЛУКА ВОДА 02/2020 11.70
673 62265-2020-03 3/31/2020 „ВОДОВОД” а.д. БАЊА ЛУКА ВОДА 03/2020 11.70
674 62265-2020-04 4/30/2020 „ВОДОВОД” а.д. БАЊА ЛУКА ВОДА 04/2020 11.70
675 62265-2020-05 5/31/2020 „ВОДОВОД” а.д. БАЊА ЛУКА ВОДА 05/2020 11.70
676 62265-2020-06 6/30/2020 „ВОДОВОД” а.д. БАЊА ЛУКА ВОДА 06/2020 11.70
677 62265-2020-07 7/31/2020 „ВОДОВОД” а.д. БАЊА ЛУКА ВОДА 07/2020 11.70
678 62265-2020-08 8/31/2020 „ВОДОВОД” а.д. БАЊА ЛУКА ВОДА 08/2020 11.70
679 62265-2020-09 9/30/2020 „ВОДОВОД” а.д. БАЊА ЛУКА ВОДА 09/2020 11.70
680 62265-2020-10 10/31/2020 „ВОДОВОД” а.д. БАЊА ЛУКА ВОДА 10/2020 11.70
681 62265-2020-11 11/30/2020 „ВОДОВОД” а.д. БАЊА ЛУКА ВОДА 11/2020 11.70
682 62265-2020-12 12/31/2020 „ВОДОВОД” а.д. БАЊА ЛУКА ВОДА 12/2020 11.70
683 941147-2024-05 5/31/2024 „ВОДОВОД” а.д. БАЊА ЛУКА РАЧУН ЗА В 2024. ЗА П. П. БР. 109 У Б. В. Ж. МИШИЋА БР. 65 0.00
684 941147-2024-05 5/31/2024 „ВОДОВОД” а.д. БАЊА ЛУКА РАЧУН ЗА В 2024. ЗА СТАКЛЕНАЦ - СПРАТ 36.88
685 946653-2024-06 6/30/2024 „ВОДОВОД” а.д. БАЊА ЛУКА РАЧУН ЗА ВИ 2024. ЗА П. П. БР. 34 У УЛ. К. П. И КАРАЂОРЂЕВИЋА БР. 87 5.85
686 941147-2024-06 6/30/2024 „ВОДОВОД” а.д. БАЊА ЛУКА РАЧУН ЗА ВОДУ У ПЗ „РАМИЋИ-БАЊА ЛУКА” 06/24 11.70
687 941147-2024-06 6/30/2024 „ВОДОВОД” а.д. БАЊА ЛУКА РАЧУН ЗА ВОДУ У ПЗ „РАМИЋИ-БАЊА ЛУКА”06/24 1.40
688 941147-2024-06 6/30/2024 „ВОДОВОД” а.д. БАЊА ЛУКА РАЧУН ЗА ВОДУ У ПЗ „РАМИЋИ-БАЊА ЛУКА” 06/24 11.70
689 941147-2024-06 6/30/2024 „ВОДОВОД” а.д. БАЊА ЛУКА ТРОШКОВИ ВОДЕ 8.35
690 ИФ-00009-05-24 5/31/2024 ЗЕВ БУЛЕВАР ВОЈВОДЕ ЖИВОЈИНА МИШИЋА 23 ЗЕВ 05/24 65.48
691 ИФ-00009-04-24 4/30/2024 ЗЕВ БУЛЕВАР ВОЈВОДЕ ЖИВОЈИНА МИШИЋА 23 ЗЕВ 04/24 65.48
692 138/24 7/31/2024 ЗЕВ ЈОВАНА ЈАНЧИЋА 8 БАЊА ЛУКА РАЧУН ЗА ВИИ 2024. ЗА СТАН БР. 5 13.80
693 160/24 8/31/2024 ЗЕВ ЈОВАНА ЈАНЧИЋА 8 БАЊА ЛУКА РАЧУН ЗА ВИИИ 2024. ЗА СТАН БР. 5 13.80
694 237/24 9/30/2024 „ХИДРО-КОП” д.о.о. БАЊА ЛУКА 6. ПРИВРЕМЕНА СИТУАЦИЈА -РЕКОНСТРУКЦИЈА САОБРАЋАЈНИЦЕ У НАСЕЉУ ЧЕСМА 371,969.20
695 174/24 9/30/2024 „ХИДРО-КОП” д.о.о. БАЊА ЛУКА ПРАВДАЊЕ АВАНСА -74,393.84
696 5 6/10/2024 ЗЕВ СТЕВАНА ПРВОВЕНЧАНОГ 8 РАЧУН ЗА В 2024. ЗА ГАРАЖУ БР. 7 И 10 А 4.40
697 6 7/10/2024 ЗЕВ СТЕВАНА ПРВОВЕНЧАНОГ 8 РАЧУН ЗА ВИ 2024. ЗА ГАРАЖУ БР. 7 И 10 А 4.40
698 77/24 7/31/2024 СТАМБЕНА ЗАДРУГА БАЊА ЛУКА ЗАКУП ПОСЛОВНОГ ПРОСТОРА 346.32
699 87/24 8/31/2024 СТАМБЕНА ЗАДРУГА БАЊА ЛУКА ЗАКУП ПОСЛОВНОГ ПРОСТОРА 346.32
700 66/24 6/30/2024 СТАМБЕНА ЗАДРУГА БАЊА ЛУКА ЗАКУП ПОСЛОВНОГ ПРОСТОРА 346.32
701 100/24 9/30/2024 СТАМБЕНА ЗАДРУГА БАЊА ЛУКА ЗАКУП ПОСЛОВНОГ ПРОСТОРА ЗА МЗ 346.32
702 167/24 9/11/2024 „АЛДЕМО ТУРС” д.о.о. МЈЕСЕЧНЕ КАРТЕ ЗА 2024. ЗА УЧЕНИКЕ РОМСКЕ ПРИПАДНОСТИ 30.00
703 186/24 10/10/2024 „АЛДЕМО ТУРС” д.о.о. СУБВЕНЦИЈЕ 4,308.95
704 180/24 9/30/2024 „АЛДЕМО ТУРС” д.о.о. СУБВЕНЦИЈЕ 40,744.30
705 185/24 10/10/2024 „АЛДЕМО ТУРС” д.о.о. СУБВЕНЦИЈЕ ЗА ЈАВНИ ПРЕВОЗ ЂАКА 2,138.00
706 193/24 10/11/2024 „АЛДЕМО ТУРС” д.о.о. НАКНАДА ПО УГОВОРУ О СУБВЕНЦИЈИ 9,415.20
707 166/23 8/24/2023 „АЛДЕМО ТУРС” д.о.о. СУБВЕНЦИЈА ЗА ЈАВНИ ПРЕВОЗ 08/23 6,341.40
708 100/23 5/12/2023 „АЛДЕМО ТУРС” д.о.о. СУБВЕНЦИЈА ЗА ЈАВНИ ПРЕВОЗ 05/23 11,692.00
709 128/23 6/12/2023 „АЛДЕМО ТУРС” д.о.о. СУБВЕНЦИЈА ЗА ЈАВНИ ПРЕВОЗ 06/23 11,150.00
710 146/23 7/12/2023 „АЛДЕМО ТУРС” д.о.о. СУБВЕНЦИЈА ЗА ЈАВНИ ПРЕВОЗ 07/23 6,182.40
711 179/23 9/12/2023 „АЛДЕМО ТУРС” д.о.о. СУБВЕНЦИЈА ЗА ЈАВНИ ПРЕВОЗ 09/23 11,528.00
712 140а/24 7/31/2024 „АЛДЕМО ТУРС” д.о.о. ПРУЖЊЕ УСЛУГЕ ПРЕВОЗА ТУРИСТИЧКИМ ВОЗИЛОМ НА БАЊ БРДО 7,097.22
713 4440-23125/24 9/2/2024 „АТОС БАНК” а.д. ОБРАЧУН НАКНАДЕ ЗА АВГУСТ 2024. ГОДИНЕ 10.00
714 0130/24 10/3/2024 „ИВЕКО” д.о.о. ОДРЖАВАЊЕ ВОЗИЛА 4,621.70
715 6470027877/2024 9/2/2024 ЕЛЕКТРОТЕХНИЧКИ ФАКУЛТЕТ УПРАВЉАЊЕ ЈАВНОМ РАСВЈЕТОМ 8,043.75
716 12/24 3. привремена ситуација 7/31/2024 „САНА ТЕХНИКА” д.о.о. ТРЕЋА ПРИВРЕМЕНА СИТУАЦИЈА БРОЈ 12/24 ОД 31. 07. 2024. 22,832.35
717 11 03 И 04/2024 7/12/2024 ЗЕВ СРПСКА 22 РАЧУН ЗА ИИИ И ИВ 2024. ЗА П. П. БР. 207 66.00
718 694/23 9/20/2023 „ПАВЛОВИЋ ТУРС” д.о.о БАЊА ЛУКА СУБВЕНЦИЈА ЗА ЈАВНИ ПРЕВОЗ 09/23 22,821.40
719 695/23 9/20/2023 „ПАВЛОВИЋ ТУРС” д.о.о БАЊА ЛУКА СУБВЕНЦИЈА ЗА ЈАВНИ ПРЕВОЗ 09/23 27,311.40
720 611/23 8/17/2023 „ПАВЛОВИЋ ТУРС” д.о.о БАЊА ЛУКА СУБВЕНЦИЈА ЗА ЈАВНИ ПРЕВОЗ 08/23 15,841.00
721 358/23 5/15/2023 „ПАВЛОВИЋ ТУРС” д.о.о БАЊА ЛУКА СУБВЕНЦИЈА ЗА ЈАВНИ ПРЕВОЗ 05/23 26,128.78
722 357/23 5/15/2023 „ПАВЛОВИЋ ТУРС” д.о.о БАЊА ЛУКА СУБВЕНЦИЈА ЗА ЈАВНИ ПРЕВОЗ 05/23 22,746.80
723 534/23 7/28/2023 „ПАВЛОВИЋ ТУРС” д.о.о БАЊА ЛУКА СУБВЕНЦИЈА ЗА ЈАВНИ ПРЕВОЗ 07/23 24,358.66
724 533/23 7/28/2023 „ПАВЛОВИЋ ТУРС” д.о.о БАЊА ЛУКА СУБВЕНЦИЈА ЗА ЈАВНИ ПРЕВОЗ 07/23 16,715.40
725 445/23 6/15/2023 „ПАВЛОВИЋ ТУРС” д.о.о БАЊА ЛУКА СУБВЕНЦИЈА ЗА ЈАВНИ ПРЕВОЗ 06/23 26,035.38
726 444/23 6/15/2023 „ПАВЛОВИЋ ТУРС” д.о.о БАЊА ЛУКА СУБВЕНЦИЈА ЗА ЈАВНИ ПРЕВОЗ 06/23 20,803.00
727 612/23 8/17/2023 „ПАВЛОВИЋ ТУРС” д.о.о БАЊА ЛУКА СУБВЕНЦИЈА ЗА ЈАВНИ ПРЕВОЗ 08/23 24,308.38
728 758/24 9/24/2024 „ПАВЛОВИЋ ТУРС” д.о.о БАЊА ЛУКА МЈЕСЕЧНЕ КАРТЕ ЗА СЕПТЕМБАР ЗА РОМСКЕ СРЕДЊОШКОЛЦЕ 30.00
729 821/24 9/30/2024 „ПАВЛОВИЋ ТУРС” д.о.о БАЊА ЛУКА СУБВЕНЦИЈЕ 134,564.61
730 823/24 10/4/2024 „ПАВЛОВИЋ ТУРС” д.о.о БАЊА ЛУКА МЈЕСЕЧНЕ КАРТЕ 19,316.80
731 822/24 10/4/2024 „ПАВЛОВИЋ ТУРС” д.о.о БАЊА ЛУКА СУБВЕНЦИЈЕ 7,839.18
732 833/24 10/14/2024 „ПАВЛОВИЋ ТУРС” д.о.о БАЊА ЛУКА РАЗЛИКА ИЗМЕЂУ ЦИЈЕНА 6,935.49
733 832 10/14/2024 „ПАВЛОВИЋ ТУРС” д.о.о БАЊА ЛУКА РАЗЛИКА ИЗМЕЂУ ЦИЈЕНА 15,032.00
734 58/24 ПРИВРЕМЕНА СИТУАЦИЈА 9/16/2024 „ЕГИЋ-КОП” д.о.о. БАЊА ЛУКА ДЈЕЧИЈЕ ИГРАЛИШТЕ У КОЛИМА 22,722.57
735 127/2024 7/17/2024 „ГЕОБИРО” д.о.о. БАЊА ЛУКА ГЕОДЕТСКЕ УСЛУГЕ 1,047.15
736 2 привремена ситуација 9/4/2024 „ПРОГРЕСГРАДЊА” д.о.о. ИЗГРАДЊА ВОДОВОДА БРАНКОВАЦ ПРЕМА САРАЧИЦИ 129,303.27
737 71/2024 9/28/2024 „ПОЛАР” с.п. УГОВОР О НАБАВЦИ ГЛИКОЛА 4,688.80
738 24-3600-000151 7/8/2024 „МЕДИЈА МАРКЕТ” д.о.о. УСЛУГА СЕРВИСИРАЊА РАЧУНАРА/ЛАПТОПА 81.90
739 01/2400401549 6/30/2024 „ЧИСТОЋА” а.д. БАЊА ЛУКА РАЧУН ЗА ВИ 2024. ЗА СТАКЛЕНАЦ СПРАТ 46.84
740 01/2400399722 6/30/2024 „ЧИСТОЋА” а.д. БАЊА ЛУКА ЧИСТОЋА 06/2024 1,569.65
741 01/2400399695 6/30/2024 „ЧИСТОЋА” а.д. БАЊА ЛУКА ЧИСТОЋА 06/24 696.40
742 01/2400399986 6/30/2024 „ЧИСТОЋА” а.д. БАЊА ЛУКА ЧИСТОЋА 06/24 1,342.97
743 01/2400397244 6/16/2024 „ЧИСТОЋА” а.д. БАЊА ЛУКА ЦИСТЕРНА ЗА ПРОЧЕПЉЕЊЕ КАНАЛА У УЛ. XИИИ КУЉАНСКА 174.10
744 01/2400393113 5/31/2024 „ЧИСТОЋА” а.д. БАЊА ЛУКА ЧИСТОЋА 05/24 696.40
745 01/24003933140 5/31/2024 „ЧИСТОЋА” а.д. БАЊА ЛУКА ЧИСТОЋА 05/24 1,569.65
746 01/2400393408 5/31/2024 „ЧИСТОЋА” а.д. БАЊА ЛУКА ЧИСТОЋА 05/24 1,342.97
747 01/2400394981 5/31/2024 „ЧИСТОЋА” а.д. БАЊА ЛУКА РАЧУН ЗА В 2024. ЗА СТАКЛЕНАЦ - СПРАТ 46.84
748 01/2400392668 4/30/2024 „ЧИСТОЋА” а.д. БАЊА ЛУКА РАЧУН ЗА ИВ 2024. ЗА СТАКЛЕНАЦ - СПРАТ 46.84
749 01/2400765242 9/4/2024 „ЧИСТОЋА” а.д. БАЊА ЛУКА ЧИШЋЕЊЕ ОДВОДНИХ КАНАЛА И ШАХТОВА У УЛ. МАРИЈЕ БУРСАЋ 126.36
750 01/2400765243 9/4/2024 „ЧИСТОЋА” а.д. БАЊА ЛУКА ЧИШЋЕЊЕ ОДВОДНИХ КАНАЛА И ШАХТОВА У УЛ. КАРАЂОРЂЕВА БР. 242 126.36
751 01/2400763030 8/31/2024 „ЧИСТОЋА” а.д. БАЊА ЛУКА РАЧУН ЗА ВИИИ 2024. ЗА СТАКЛЕНАЦ - СПРАТ 46.84
752 01/2400761204 8/31/2024 „ЧИСТОЋА” а.д. БАЊА ЛУКА ЧИСТОЋА 08/2024 1,569.65
753 01/2400761475 8/31/2024 „ЧИСТОЋА” а.д. БАЊА ЛУКА ЧИСТОЋА 08/2024 1,342.97
754 01/2400761177 8/31/2024 „ЧИСТОЋА” а.д. БАЊА ЛУКА ЧИСТОЋА 08/2024 696.40
755 01/2400770389 9/30/2024 „ЧИСТОЋА” а.д. БАЊА ЛУКА ЈАВНА ХИГИЈЕНА 245,584.57
756 6840026963 8/31/2024 „М:ТЕЛ” а.д. БАЊА ЛУКА ТРОШКОВИ ЗА МОБИЛНИ ТЕЛЕФОН 08/2024 11,580.93
757 7740718570 9/30/2024 „М:ТЕЛ” а.д. БАЊА ЛУКА ТРОШКОВИ ЗА МОБИЛНИ ТЕЛЕФОН 09/2024 11,923.66
758 7240728692 9/30/2024 „М:ТЕЛ” а.д. БАЊА ЛУКА ВАТДОМДЕР 3,730.71
759 2540698670 9/30/2024 „М:ТЕЛ” а.д. БАЊА ЛУКА МЗ РЕКАВИЦЕ 2 24.64
760 1640698673 9/30/2024 „М:ТЕЛ” а.д. БАЊА ЛУКА МЗ АГИНО СЕЛО 33.31
761 1040698675 9/30/2024 „М:ТЕЛ” а.д. БАЊА ЛУКА МЗ ЉУБАЧЕВО 24.22
762 7740698685 9/30/2024 „М:ТЕЛ” а.д. БАЊА ЛУКА МЗ КМЕЋАНИ 19.19
763 3340741897 9/30/2024 „М:ТЕЛ” а.д. БАЊА ЛУКА ТРОШКОВИ ЗА МОБИЛНИ ТЕЛЕФОН 09/24 - В. ФРАНЦУЗ 44.38
764 6240726335 9/30/2024 „М:ТЕЛ” а.д. БАЊА ЛУКА ТАБЛЕТИ 76.55
765 9840698678 9/30/2024 „М:ТЕЛ” а.д. БАЊА ЛУКА МЗ ШИМИЋИ 19.19
766 4340724563 9/30/2024 „М:ТЕЛ” а.д. БАЊА ЛУКА ТРОШКОВИ ЗА МОБИЛНИ ТЕЛЕФОН ЗА В. АНИЧИЋ 09/24 84.55
767 3040744323 9/30/2024 „М:ТЕЛ” а.д. БАЊА ЛУКА ТРОШКОВИ ЗА МОБИЛНИ ТЕЛЕФОН ЗА В. ПРОЛЕ 09/24 103.13
768 8940698681 9/30/2024 „М:ТЕЛ” а.д. БАЊА ЛУКА МЗ ПАВИЋИ 19.19
769 8740728687 9/30/2024 „М:ТЕЛ” а.д. БАЊА ЛУКА МЗ СТАРЧЕВИЦА 9,676.49
770 87470725486 9/30/2024 „М:ТЕЛ” а.д. БАЊА ЛУКА РАЧУН ЗА ИX 2024. ЗА ГПС ИНСТРУМЕНТ 19.00
771 1040745623 9/30/2024 „М:ТЕЛ” а.д. БАЊА ЛУКА ИНТЕРНЕТ ЗА РЕПЕТИТОР НА ШИБОВИМА 68.96
772 27040745294 9/30/2024 „М:ТЕЛ” а.д. БАЊА ЛУКА  БИЗ ТВ+НЕТ С 65.40
773 4840743541 9/30/2024 „М:ТЕЛ” а.д. БАЊА ЛУКА БИЗ ТВ+НЕТ С 64.37
774 1940703328 9/30/2024 „М:ТЕЛ” а.д. БАЊА ЛУКА ИНТЕРНЕТ ЗА ВАТРОГАСНУ ПЛАТФОРМУ БРОНТО 22.76
775 840746432 9/30/2024 „М:ТЕЛ” а.д. БАЊА ЛУКА ИНТЕРНЕТ ЗА КАМЕРЕ ВАТРОГАСАЦА 228.01
776 5740718803 9/30/2024 „М:ТЕЛ” а.д. БАЊА ЛУКА ИНТЕРНЕТ ЗА ВАТРОГАСНЕ ЉЕСТВЕ 111.59
777 9240745628 9/30/2024 „М:ТЕЛ” а.д. БАЊА ЛУКА ПРОФЕСИОНАЛНА ЛОКАЦИЈА ДИРЕКТНОГ ПРИСТУПА ИНТЕРНЕТУ 561.60
778 6840700822 9/30/2024 „М:ТЕЛ” а.д. БАЊА ЛУКА ИНТЕРНЕТ ЗА СЕИЗМОЛОШКИ АКЦЕЛЕРОГРАФ 23.95
779 340027890 8/31/2024 „М:ТЕЛ” а.д. БАЊА ЛУКА ПРЕТПЛАТА 19.00
780 9240028022 8/31/2024 „М:ТЕЛ” а.д. БАЊА ЛУКА ПРЕТПЛАТА 76.00
781 4440034149 8/31/2024 „М:ТЕЛ” а.д. БАЊА ЛУКА РАЧУН ЗА ВИИИ 2024. ЗА ГПС ИНСТРУМЕНТ 19.00
782 3340037386 8/31/2024 „М:ТЕЛ” а.д. БАЊА ЛУКА ВАТДОМДЕР 3,813.18
783 4840037381 8/31/2024 „М:ТЕЛ” а.д. БАЊА ЛУКА МЗ СТАРЦЕВИЦА 7,818.10
784 4340046630 8/31/2024 „М:ТЕЛ” а.д. БАЊА ЛУКА ПРЕТПЛАТА 3,570.11
785 6834585069 12/31/2023 „М:ТЕЛ” а.д. БАЊА ЛУКА ЗАКУП ЗА СИРЕНЕ 410.97
786 1040053237 8/31/2024 „М:ТЕЛ” а.д. БАЊА ЛУКА ТРОШКОВИ ЗА МОБИЛНИ ТЕЛЕФОН ЗА ВЕДРАНУ ПРОЛЕ 08/24 52.09
787 4140033180 8/31/2024 „М:ТЕЛ” а.д. БАЊА ЛУКА ТРОШКОВИ ЗА МОБИЛНИ ТЕЛЕФОН ЗА ВАЛЕНТИНУ АНИЧИЋ 08/24 76.85
788 2640035028 8/31/2024 „М:ТЕЛ” а.д. БАЊА ЛУКА ТАБЛЕТИ 76.00
789 5940050731 8/31/2024 „М:ТЕЛ” а.д. БАЊА ЛУКА ТРОШКОВИ ЗА МОБИЛНИ ТЕЛЕФОН ЗА ВЕДРАНА ФРАНЦУЗА 08/24 43.44
790 4240005761 8/31/2024 „М:ТЕЛ” а.д. БАЊА ЛУКА МЗ КМЕЋАНИ 19.19
791 5440005757 8/31/2024 „М:ТЕЛ” а.д. БАЊА ЛУКА МЗ ПАВИЋИ 19.19
792 6340005754 8/31/2024 „М:ТЕЛ” а.д. БАЊА ЛУКА МЗ ШИМИЋИ 19.19
793 7840005749 8/31/2024 „М:ТЕЛ” а.д. БАЊА ЛУКА МЗ АГИНО СЕЛО 37.31
794 8740005746 8/31/2024 „М:ТЕЛ” а.д. БАЊА ЛУКА МЗ РЕКАВИЦЕ 2 19.19
795 1437967671 5/31/2024 „М:ТЕЛ” а.д. БАЊА ЛУКА ПРЕТПЛАТА НЕТ XС+ 76.00
796 0526/24 8/22/2024 ЦСК САМОСТАЛНА РАДЊА БАЊА ЛУКА УСЛУГЕ ШТАМПАЊА 1,965.60
797 0509/24 8/19/2024 ЦСК САМОСТАЛНА РАДЊА БАЊА ЛУКА ШТАМПА УЛИЧНИХ ТРАНСПАРЕНАТА 1,684.80
798 35280/24-ЈН 8/13/2024  ЈП НИО „СЛУЖБЕНИ ЛИСТ“ БИХ ОБЈАВА 98.00
799 34334/24-ЈН 8/13/2024  ЈП НИО „СЛУЖБЕНИ ЛИСТ“ БИХ ОБЈАВА УГОВОРА 98.00
800 33628/24-ЈН 8/6/2024  ЈП НИО „СЛУЖБЕНИ ЛИСТ“ БИХ ОБЈАВА ИСПРАВКЕ 52.00
801 35810/24-ЈН 8/20/2024  ЈП НИО „СЛУЖБЕНИ ЛИСТ“ БИХ ОБЈАВА - СЛУЖБЕНИ ЛИСТ БИХ ЗА ЈАВНУ 320-492/24 НАБАВКУ, НАКНАДНИ РАДОВИ НА ПАРТЕРНОМ УРЕЂЕЊУ 98.00
802 35605/24-ЈН 8/20/2024  ЈП НИО „СЛУЖБЕНИ ЛИСТ“ БИХ УСЛУГА ОБЈАВЕ ЈН У СЛУЖБЕНОМ ГЛАСНИКУ 98.00
803 35968/24-ЈН 8/20/2024  ЈП НИО „СЛУЖБЕНИ ЛИСТ“ БИХ ОБЈАВА 98.00
804 36225/24-ЈН 8/20/2024  ЈП НИО „СЛУЖБЕНИ ЛИСТ“ БИХ ОБЈАВА 98.00
805 36140/24-ЈН 8/20/2024  ЈП НИО „СЛУЖБЕНИ ЛИСТ“ БИХ ОБЈАВА 98.00
806 35486/24-ЈН 8/20/2024  ЈП НИО „СЛУЖБЕНИ ЛИСТ“ БИХ ОБЈАВА УГОВОРА 98.00
807 37130/24-ЈН 8/27/2024  ЈП НИО „СЛУЖБЕНИ ЛИСТ“ БИХ НАБАВКА ПАПИРА ЗА ПАКИНГ АУТОМАТЕ 98.00
808 36550/24-ЈН 8/27/2024  ЈП НИО „СЛУЖБЕНИ ЛИСТ“ БИХ ПЛАЋАЊЕ ОВАВЈЕШТЕЊА О ЈАВНОЈ НАБАВЦИ 98.00
809 34310/24-ЈН 8/13/2024  ЈП НИО „СЛУЖБЕНИ ЛИСТ“ БИХ ОБЈАВА УГОВОРА ЗА ЈН „ОБАВЉАЊЕ СТРУЧНИХ ГЕОДЕТСКО-КАТАСТАРСКИХ УСЛУГА” 98.00
810 36024/24-ЈН 8/20/2024  ЈП НИО „СЛУЖБЕНИ ЛИСТ“ БИХ ИСПРАВКА ЈН 52.00
811 36141/24-ЈН 8/20/2024  ЈП НИО „СЛУЖБЕНИ ЛИСТ“ БИХ С1 ЈАНАБ 15-404-254/24 98.00
812 36683/24-ЈН 8/27/2024  ЈП НИО „СЛУЖБЕНИ ЛИСТ“ БИХ ОБЈАВА УГОВОРА ЗА ОДРЖАВАЊЕ СОФТВЕРА 98.00
813 36463/24-ЈН 8/27/2024  ЈП НИО „СЛУЖБЕНИ ЛИСТ“ БИХ ОБЈАВА УГОВОРА ЗА ОДРЖАВАЊЕ МРЕЖНЕ ОПРЕМЕ 98.00
814 36446/24-ЈН 8/27/2024  ЈП НИО „СЛУЖБЕНИ ЛИСТ“ БИХ ОБЈАВА 98.00
815 35435/24-ЈН 8/20/2024  ЈП НИО „СЛУЖБЕНИ ЛИСТ“ БИХ ОБЈАВА 98.00
816 36917/24-ЈН 8/27/2024  ЈП НИО „СЛУЖБЕНИ ЛИСТ“ БИХ ОБЈАВА 98.00
817 36924/24-ЈН 8/27/2024  ЈП НИО „СЛУЖБЕНИ ЛИСТ“ БИХ ОБЈАВА 98.00
818 36960/24-ЈН 8/27/2024  ЈП НИО „СЛУЖБЕНИ ЛИСТ“ БИХ ОБЈАВА 98.00
819 36628/24-ЈН 8/27/2024  ЈП НИО „СЛУЖБЕНИ ЛИСТ“ БИХ ОБЈАВА 52.00
820 37204/24-ЈН 8/27/2024  ЈП НИО „СЛУЖБЕНИ ЛИСТ“ БИХ ОБЈАВА УГОВОРА 98.00
821 37237/24-ЈН 8/27/2024  ЈП НИО „СЛУЖБЕНИ ЛИСТ“ БИХ ОБЈАВА УГОВОРА 98.00
822 37129/24-ЈН 8/27/2024  ЈП НИО „СЛУЖБЕНИ ЛИСТ“ БИХ УСЛУГА ОБЈАВЕ ЈН У СЛУЖБЕНОМ ГЛАСНИКУ 98.00
823 37701/24-ЈН 9/3/2024  ЈП НИО „СЛУЖБЕНИ ЛИСТ“ БИХ ЈН УГОВОР УГРАДЊА КЛИМА УРЕЂАЈА 98.00
824 37499/24-ЈН 9/3/2024  ЈП НИО „СЛУЖБЕНИ ЛИСТ“ БИХ ОБЈАВА НАБАВКЕ ЗА УСЛУГУ ИЗРАДЕ НОВОГ САЈТА 98.00
825 37632-24-јн 9/3/2024  ЈП НИО „СЛУЖБЕНИ ЛИСТ“ БИХ ОБЈАВА НАБАВКЕ ЗА ОДРЖАВАВАЊЕ ЕДМWС СИСТЕМА 98.00
826 38242/24-јн 9/4/2024  ЈП НИО „СЛУЖБЕНИ ЛИСТ“ БИХ ОБЈАВА УГОВОРА 98.00
827 38132/24-јн 9/3/2024  ЈП НИО „СЛУЖБЕНИ ЛИСТ“ БИХ СЛУЖБЕНИ ЛИСТ 404-168/24 98.00
828 37943/24-ЈН 9/3/2024  ЈП НИО „СЛУЖБЕНИ ЛИСТ“ БИХ УСЛУГА ОБЈАВЕ ЈН У СЛУЖБЕНОМ ГЛАСНИКУ 98.00
829 37455/24-ЈН 9/3/2024  ЈП НИО „СЛУЖБЕНИ ЛИСТ“ БИХ СЛУГА ОБЈАВЕ ЈН У СЛУЖБЕНОМ ГЛАСНИКУ 98.00
830 38004/24-ЈН 9/3/2024  ЈП НИО „СЛУЖБЕНИ ЛИСТ“ БИХ УСЛУГА ОБЈАВЕ ЈН У СЛУЖБЕНОМ ГЛАСНИКУ 98.00
831 37346/24-ЈН 9/3/2024  ЈП НИО „СЛУЖБЕНИ ЛИСТ“ БИХ УСЛУГА ОБЈАВЕ ЈН У СЛУЖБЕНОМ ГЛАСНИКУ 98.00
832 37345/24-ЈН 9/3/2024  ЈП НИО „СЛУЖБЕНИ ЛИСТ“ БИХ УСЛУГА ОБЈАВЕ ЈН У СЛУЖБЕНОМ ГЛАСНИКУ 98.00
833 37361/24-ЈН 9/3/2024  ЈП НИО „СЛУЖБЕНИ ЛИСТ“ БИХ УСЛУГА ОБЈАВЕ ЈН У СЛУЖБЕНОМ ГЛАСНИКУ 98.00
834 37700/24-ЈН 9/3/2024  ЈП НИО „СЛУЖБЕНИ ЛИСТ“ БИХ УСЛУГА ОБЈАВЕ ЈН У СЛУЖБЕНОМ ГЛАСНИКУ 98.00
835 37736/24-ЈН 9/3/2024  ЈП НИО „СЛУЖБЕНИ ЛИСТ“ БИХ УСЛУГА ОБЈАВЕ ЈН У СЛУЖБЕНОМ ГЛАСНИКУ 98.00
836 33231/24-ЈН 7/30/2024  ЈП НИО „СЛУЖБЕНИ ЛИСТ“ БИХ ОБЈАВА 98.00
837 32360/24-ЈН 7/30/2024  ЈП НИО „СЛУЖБЕНИ ЛИСТ“ БИХ ОБЈАВА 98.00
838 32264/24-ЈН 7/30/2024  ЈП НИО „СЛУЖБЕНИ ЛИСТ“ БИХ ОБЈАВА 98.00
839 33032/24-ЈН 7/30/2024  ЈП НИО „СЛУЖБЕНИ ЛИСТ“ БИХ ОБЈАВА 98.00
840 32091/24-ЈН 7/30/2024  ЈП НИО „СЛУЖБЕНИ ЛИСТ“ БИХ ОБЈАВА 98.00
841 33220/24-ЈН 7/30/2024  ЈП НИО „СЛУЖБЕНИ ЛИСТ“ БИХ УСЛУГА ОБЈАВЕ ЈН У СЛУЖБЕНОМ ГЛАСНИКУ 98.00
842 31433/24-јн 7/23/2024  ЈП НИО „СЛУЖБЕНИ ЛИСТ“ БИХ ОБЈАВА УГОВОРА 98.00
843 32758/24-ЈН 7/30/2024  ЈП НИО „СЛУЖБЕНИ ЛИСТ“ БИХ УСЛУГА ОБЈАВЕ ЈН У СЛУЖБЕНОМ ГЛАСНИКУ 98.00
844 32978/24-ЈН 7/30/2024  ЈП НИО „СЛУЖБЕНИ ЛИСТ“ БИХ СЛУЖБЕНИ ЛИСТ С1 ЈАНАБ 404-182/24 98.00
845 33217/24-ЈН 7/30/2024  ЈП НИО „СЛУЖБЕНИ ЛИСТ“ БИХ СЛУЖБЕНИ ЛИСТ 404-232/24 98.00
846 32764/24-ЈН 7/30/2024  ЈП НИО „СЛУЖБЕНИ ЛИСТ“ БИХ СЛУЖБЕНИ ЛИСТ 404-184/24 98.00
847 32297/24-ЈН 7/30/2024  ЈП НИО „СЛУЖБЕНИ ЛИСТ“ БИХ СЛУЖБЕНИ ЛИСТ 404-75/24 98.00
848 32298/24-ЈН 7/30/2024  ЈП НИО „СЛУЖБЕНИ ЛИСТ“ БИХ СЛУЖБЕНИ ЛИСТ 404-248/23 98.00
849 32111/24-ЈН 7/30/2024  ЈП НИО „СЛУЖБЕНИ ЛИСТ“ БИХ С1 ЈАНАБ 15-404-220/24 98.00
850 33127/24-ЈН 7/30/2024  ЈП НИО „СЛУЖБЕНИ ЛИСТ“ БИХ СЛУЖБЕНИ ЛИСТ 404-167/24 98.00
851 33090/24-ЈН 7/30/2024  ЈП НИО „СЛУЖБЕНИ ЛИСТ“ БИХ СЛУЖБЕНИ ЛИСТ 404-156/24 98.00
852 33031/24-ЈН 7/30/2024  ЈП НИО „СЛУЖБЕНИ ЛИСТ“ БИХ ОБЈАВА У МЕДИЈИМА ЈАВНЕ НАБАВКЕ 98.00
853 33821/24-ЈН 8/6/2024  ЈП НИО „СЛУЖБЕНИ ЛИСТ“ БИХ ОБЈАВА УГОВОРА ЗА ОДРЖАВАЊЕ СОФТВЕРА ЗА КАДРОВСКУ ЕВИДЕНЦИЈУ 98.00
854 33954/24-ЈН 8/6/2024  ЈП НИО „СЛУЖБЕНИ ЛИСТ“ БИХ УСЛУГА ОБЈАВЕ ЈН У СЛУЖБЕНОМ ГЛАСНИКУ 98.00
855 33567/24-ЈН 8/6/2024  ЈП НИО „СЛУЖБЕНИ ЛИСТ“ БИХ ОБЈАВА 98.00
856 34012/24-ЈН 8/6/2024  ЈП НИО „СЛУЖБЕНИ ЛИСТ“ БИХ ОБЈАВА 98.00
857 33565/24-ЈН 8/6/2024  ЈП НИО „СЛУЖБЕНИ ЛИСТ“ БИХ ОБЈАВА 98.00
858 33566/24-ЈН 8/6/2024  ЈП НИО „СЛУЖБЕНИ ЛИСТ“ БИХ ОБЈАВА 98.00
859 35232/24-ЈН 8/13/2024  ЈП НИО „СЛУЖБЕНИ ЛИСТ“ БИХ ОБЈАВА 98.00
860 34599/24-ЈН 8/13/2024  ЈП НИО „СЛУЖБЕНИ ЛИСТ“ БИХ ОБЈАВА 98.00
861 34600/24-ЈН 8/13/2024  ЈП НИО „СЛУЖБЕНИ ЛИСТ“ БИХ ОБЈАВА 98.00
862 34783/24-ЈН 8/13/2024  ЈП НИО „СЛУЖБЕНИ ЛИСТ“ БИХ ОБЈАВА 98.00
863 34724-24-ЈН 8/13/2024  ЈП НИО „СЛУЖБЕНИ ЛИСТ“ БИХ ОБЈАВА 98.00
864 34725/24-ЈН 8/13/2024  ЈП НИО „СЛУЖБЕНИ ЛИСТ“ БИХ ОБЈАВА 98.00
865 33330/24-ЈН 8/6/2024  ЈП НИО „СЛУЖБЕНИ ЛИСТ“ БИХ ОБЈАВА 98.00
866 35208/24-ЈН 8/13/2024  ЈП НИО „СЛУЖБЕНИ ЛИСТ“ БИХ ОБЈАВА 98.00
867 34147/24-ЈН 8/6/2024  ЈП НИО „СЛУЖБЕНИ ЛИСТ“ БИХ ОБЈАВА ЈАВНЕ НАБАВКЕ ЗА ИЗВОЂЕЊЕ РАДОВА У СЛУЖБЕНОМ ЛИСТУ 98.00
868 35206/24-ЈН 8/13/2024  ЈП НИО „СЛУЖБЕНИ ЛИСТ“ БИХ ОБЈАВА 98.00
869 34681/24-ЈН 8/13/2024  ЈП НИО „СЛУЖБЕНИ ЛИСТ“ БИХ ОБЈАВА УГОВОРА ЗА ЈН „РЕДОВНО ОДРЖАВАЊЕ СТАМБЕНИХ ЗГРАДА” 98.00
870 34682/24-ЈН 8/13/2024  ЈП НИО „СЛУЖБЕНИ ЛИСТ“ БИХ ОБЈАВА 98.00
871 34726/24-ЈН 8/13/2024  ЈП НИО „СЛУЖБЕНИ ЛИСТ“ БИХ ОБЈАВА 98.00
872 34535/24-ЈН 8/13/2024  ЈП НИО „СЛУЖБЕНИ ЛИСТ“ БИХ ОБЈАВА 98.00
873 33329/24-ЈН 8/6/2024  ЈП НИО „СЛУЖБЕНИ ЛИСТ“ БИХ УСЛУГА ОБЈАВЕ ЈН У СЛУЖБЕНОМ ГЛАСНИКУ 98.00
874 35207/24-ЈН 8/13/2024  ЈП НИО „СЛУЖБЕНИ ЛИСТ“ БИХ СЛУЖБЕНИ ЛИСТ 404-135/24 98.00
875 34680/24-ЈН 8/13/2024  ЈП НИО „СЛУЖБЕНИ ЛИСТ“ БИХ СЛУЖБЕНИ ЛИСТ 404-242/24 98.00
876 35209/24-ЈН 8/13/2024  ЈП НИО „СЛУЖБЕНИ ЛИСТ“ БИХ С1 ЈАНАБ 404/166/24 98.00
877 34533/24-ЈН 8/13/2024  ЈП НИО „СЛУЖБЕНИ ЛИСТ“ БИХ СЛУЖБЕНИ ЛИСТ 404-252/24 98.00
878 35221/24-ЈН 8/13/2024  ЈП НИО „СЛУЖБЕНИ ЛИСТ“ БИХ СЛУЖБЕНИ ЛИСТ 404-249/24 98.00
879 35281/24-ЈН 8/13/2024  ЈП НИО „СЛУЖБЕНИ ЛИСТ“ БИХ С1 ЈАНАБ 405-203/24 98.00
880 33319/24-ЈН 8/6/2024  ЈП НИО „СЛУЖБЕНИ ЛИСТ“ БИХ ОБЈАВА НАБАВКЕ ЗА РАЧУНАРСКУ ОПРЕМУ 98.00
881 23395-24/јн 6/4/2024  ЈП НИО „СЛУЖБЕНИ ЛИСТ“ БИХ ОБЈАВА ЈАВНЕ НАБАВКЕ „ОБАВЉАЊЕ СТРУЧНИХ ГЕОДЕТСКО-КАТАСТАРСКИХ УСЛУГА” 98.00
882 25384/24-ЈН 6/18/2024  ЈП НИО „СЛУЖБЕНИ ЛИСТ“ БИХ ОБЈАВА 98.00
883 25547/24-ЈН 6/18/2024  ЈП НИО „СЛУЖБЕНИ ЛИСТ“ БИХ ОБЈАВА 98.00
884 28045/24-јн 7/3/2024  ЈП НИО „СЛУЖБЕНИ ЛИСТ“ БИХ ОБЈАВА 52.00
885 27790/24-ЈН 7/2/2024  ЈП НИО „СЛУЖБЕНИ ЛИСТ“ БИХ ЈП НИО СЛУЖБЕНИ ЛИСТ БОСНЕ И ХЕРЦЕГОВИНЕ 98.00
886 27137/24-ЈН 6/27/2024  ЈП НИО „СЛУЖБЕНИ ЛИСТ“ БИХ ПЛАЋАЊЕ ОБАВЈЕШТЕЊА О ЈАВНОЈ НАБАВЦИ 98.00
887 29586/24-ЈН 7/11/2024  ЈП НИО „СЛУЖБЕНИ ЛИСТ“ БИХ УСЛУГА ОБЈАВЕ ЈН У СЛУЖБЕНОМ ГЛАСНИКУ 98.00
888 29483/24-јн 7/11/2024  ЈП НИО „СЛУЖБЕНИ ЛИСТ“ БИХ ОБЈАВА 98.00
889 28723/24-ЈН 7/10/2024  ЈП НИО „СЛУЖБЕНИ ЛИСТ“ БИХ ОБЈАВА 98.00
890 29100/24-ЈН 7/11/2024  ЈП НИО „СЛУЖБЕНИ ЛИСТ“ БИХ ОБЈАВА 98.00
891 28753/24-ЈН 7/10/2024  ЈП НИО „СЛУЖБЕНИ ЛИСТ“ БИХ ОБЈАВА 98.00
892 28752/24-ЈН 7/10/2024  ЈП НИО „СЛУЖБЕНИ ЛИСТ“ БИХ ОБЈАВА 98.00
893 29387/24-ЈН 7/11/2024  ЈП НИО „СЛУЖБЕНИ ЛИСТ“ БИХ УСЛУГА ОБЈАВЕ ЈН У СЛУЖБЕНОМ ГЛАСНИКУ 98.00
894 29389/24-ЈН 7/11/2024  ЈП НИО „СЛУЖБЕНИ ЛИСТ“ БИХ УСЛУГА ОБЈАВЕ ЈН У СЛУЖБЕНОМ ГЛАСНИКУ 98.00
895 29388/24-ЈН 7/11/2024  ЈП НИО „СЛУЖБЕНИ ЛИСТ“ БИХ УСЛУГА ОБЈАВЕ ЈН У СЛУЖБЕНОМ ГЛАСНИКУ 98.00
896 30200/24-ЈН 7/17/2024  ЈП НИО „СЛУЖБЕНИ ЛИСТ“ БИХ СТ ЈАНАБ 312-415/24 НАБАВКА И ОДРЖАВАЊЕ СОФТВЕРА И ЛИЦЕНЦЕ 98.00
897 30131/24-ЈН 7/17/2024  ЈП НИО „СЛУЖБЕНИ ЛИСТ“ БИХ ОБЈАВА 98.00
898 30539/24-ЈН 7/17/2024  ЈП НИО „СЛУЖБЕНИ ЛИСТ“ БИХ ОБЈАВА 98.00
899 30626/24-ЈН 7/17/2024  ЈП НИО „СЛУЖБЕНИ ЛИСТ“ БИХ УСЛУГА ОБЈАВЕ ЈН У СЛУЖБЕНОМ ГЛАСНИКУ 98.00
900 31077/24-ЈН 7/23/2024  ЈП НИО „СЛУЖБЕНИ ЛИСТ“ БИХ УСЛУГА ОБЈАВЕ ЈН У СЛУЖБЕНОМ ГЛАСНИКУ 98.00
901 30979/24-ЈН 7/23/2024  ЈП НИО „СЛУЖБЕНИ ЛИСТ“ БИХ УСЛУГА ОБЈАВЕ ЈН У СЛУЖБЕНОМ ГЛАСНИКУ 98.00
902 31886/24-ЈН 7/23/2024  ЈП НИО „СЛУЖБЕНИ ЛИСТ“ БИХ УСЛУГА ОБЈАВЕ ЈН У СЛУЖБЕНОМ ГЛАСНИКУ 98.00
903 31004/24-ЈН 7/23/2024  ЈП НИО „СЛУЖБЕНИ ЛИСТ“ БИХ ОБЈАВА 98.00
904 31885/24-ЈН 7/23/2024  ЈП НИО „СЛУЖБЕНИ ЛИСТ“ БИХ ОБЈАВА 98.00
905 32052-24-ЈН 7/23/2024  ЈП НИО „СЛУЖБЕНИ ЛИСТ“ БИХ ОБЈАВА 98.00
906 30978/24-ЈН 7/23/2024  ЈП НИО „СЛУЖБЕНИ ЛИСТ“ БИХ ОБЈАВА 98.00
907 31511/24-ЈН 7/23/2024  ЈП НИО „СЛУЖБЕНИ ЛИСТ“ БИХ СЛУЖБЕНИ ЛИСТ 404-154/24 98.00
908 16970/24-ЈН 4/23/2024  ЈП НИО „СЛУЖБЕНИ ЛИСТ“ БИХ ТРОШКОВИ ОБЈАВЕ ЈН У СЛУЖБЕНОМ ЛИСТУ БИХ 98.00
909 12694/24-јн 3/26/2024  ЈП НИО „СЛУЖБЕНИ ЛИСТ“ БИХ УСЛУГА ОБЈАВЕ ЈН У СЛУЖБЕНОМ ГЛАСНИКУ 98.00
910 41555/24-ЈН 9/24/2024  ЈП НИО „СЛУЖБЕНИ ЛИСТ“ БИХ ОБЈАВА УГОВОРА ЗА ОДРЖАВАЊЕ И НАДОГРАДЊУ СОФТВЕРА ЗА ПИСАРНИЦУ 98.00
911 4061/24-јн 9/17/2024  ЈП НИО „СЛУЖБЕНИ ЛИСТ“ БИХ  320 553/24 НАБАВКА ДИЈЕЛОВА ЗА РЕДОВНО ОДРЖАВАЊЕ И СЕРВИС БИЦИКАЛА 98.00
912 40128/24-јн 9/17/2024  ЈП НИО „СЛУЖБЕНИ ЛИСТ“ БИХ УСЛУГА ОБЈАВЕ ЈН У СЛУЖБЕНОМ ГЛАСНИКУ 98.00
913 39709/24-јн 9/17/2024  ЈП НИО „СЛУЖБЕНИ ЛИСТ“ БИХ ОБЈАВА 98.00
914 40017/24-јн 9/17/2024  ЈП НИО „СЛУЖБЕНИ ЛИСТ“ БИХ ОБЈАВА 98.00
915 39821/24-јн 9/10/2024  ЈП НИО „СЛУЖБЕНИ ЛИСТ“ БИХ ОБЈАВА 98.00
916 40489/24-јн 9/17/2024  ЈП НИО „СЛУЖБЕНИ ЛИСТ“ БИХ ОБЈАВА ЈАВНЕ НАБАВКЕ У СЛУЖБЕНОМ ЛИСТУ БИХ 98.00
917 41452/24-ЈН 9/24/2024  ЈП НИО „СЛУЖБЕНИ ЛИСТ“ БИХ ОБЈАВА 52.00
918 40984/24-ЈН 9/24/2024  ЈП НИО „СЛУЖБЕНИ ЛИСТ“ БИХ ОБЈАВА 98.00
919 40985/24-ЈН 9/24/2024  ЈП НИО „СЛУЖБЕНИ ЛИСТ“ БИХ ОБЈАВА 98.00
920 40987/24-ЈН 9/24/2024  ЈП НИО „СЛУЖБЕНИ ЛИСТ“ БИХ ОБЈАВА 98.00
921 40764/24-ЈН 9/24/2024  ЈП НИО „СЛУЖБЕНИ ЛИСТ“ БИХ УСЛУГА ОБЈАВЕ ЈН У СЛУЖБЕНОМ ГЛАСНИКУ 98.00
922 41138/24-ЈН 9/24/2024  ЈП НИО „СЛУЖБЕНИ ЛИСТ“ БИХ УСЛУГА ОБЈАВЕ ЈН У СЛУЖБЕНОМ ГЛАСНИКУ 98.00
923 41168/24-ЈН 9/24/2024  ЈП НИО „СЛУЖБЕНИ ЛИСТ“ БИХ УСЛУГА ОБЈАВЕ ЈН У СЛУЖБЕНОМ ГЛАСНИКУ 98.00
924 40736/24-ЈН 9/24/2024  ЈП НИО „СЛУЖБЕНИ ЛИСТ“ БИХ УСЛУГА ОБЈАВЕ ЈН У СЛУЖБЕНОМ ГЛАСНИКУ 98.00
925 41441/24-ЈН 9/24/2024  ЈП НИО „СЛУЖБЕНИ ЛИСТ“ БИХ УСЛУГА ОБЈАВЕ ЈН У СЛУЖБЕНОМ ГЛАСНИКУ 98.00
926 41279/24-ЈН 9/24/2024  ЈП НИО „СЛУЖБЕНИ ЛИСТ“ БИХ УСЛУГА ОБЈАВЕ ЈН У СЛУЖБЕНОМ ГЛАСНИКУ 98.00
927 41278/24-ЈН 9/24/2024  ЈП НИО „СЛУЖБЕНИ ЛИСТ“ БИХ УСЛУГА ОБЈАВЕ ЈН У СЛУЖБЕНОМ ГЛАСНИКУ 98.00
928 41057/24-ЈН 9/24/2024  ЈП НИО „СЛУЖБЕНИ ЛИСТ“ БИХ УСЛУГА ОБЈАВЕ ЈН У СЛУЖБЕНОМ ГЛАСНИКУ 98.00
929 39710/24-ЈН 9/17/2024  ЈП НИО „СЛУЖБЕНИ ЛИСТ“ БИХ УСЛУГА ОБЈАВЕ ЈН У СЛУЖБЕНОМ ГЛАСНИКУ 98.00
930 40433/24-ЈН 9/17/2024  ЈП НИО „СЛУЖБЕНИ ЛИСТ“ БИХ УСЛУГА ОБЈАВЕ ЈН У СЛУЖБЕНОМ ГЛАСНИКУ 98.00
931 39822/24-ЈН 9/17/2024  ЈП НИО „СЛУЖБЕНИ ЛИСТ“ БИХ УСЛУГА ОБЈАВЕ ЈН У СЛУЖБЕНОМ ГЛАСНИКУ 98.00
932 2506-13005/24-2 9/17/2024  ЈП НИО „СЛУЖБЕНИ ЛИСТ“ БИХ ОБЈАВА 480.00
933 39820/24-јн 9/17/2024  ЈП НИО „СЛУЖБЕНИ ЛИСТ“ БИХ ОБЈАВА УГОВОРА ЗА СИСТЕМ ЗА ЕВИДЕНЦИЈУ РАДНОГ ВРЕМЕНА 98.00
934 39474/24-јн 9/17/2024  ЈП НИО „СЛУЖБЕНИ ЛИСТ“ БИХ ОБЈАВА ПОНИШТЕЊА ЗА НАДОГРАДЊУ СОФТВЕРА 98.00
935 40487/24-јн 9/17/2024  ЈП НИО „СЛУЖБЕНИ ЛИСТ“ БИХ ОБЈАВА НАБАВКЕ ЗА ЈЕДНОГОДИШЊУ ПРЕТПЛАТУ ЗА АутоЦад 98.00
936 40488/24-јн 9/17/2024  ЈП НИО „СЛУЖБЕНИ ЛИСТ“ БИХ СЛУЖБЕНИ ЛИСТ 404-285/24 98.00
937 38531/24-ЈН 9/10/2024  ЈП НИО „СЛУЖБЕНИ ЛИСТ“ БИХ ОБЈАВА 98.00
938 39260/24-ЈН 9/10/2024  ЈП НИО „СЛУЖБЕНИ ЛИСТ“ БИХ ОБЈАВА 98.00
939 38770/24-ЈН 9/10/2024  ЈП НИО „СЛУЖБЕНИ ЛИСТ“ БИХ ОБЈАВА 98.00
940 39171/24-ЈН 9/10/2024  ЈП НИО „СЛУЖБЕНИ ЛИСТ“ БИХ ОБЈАВА 98.00
941 38568/24-јн 9/10/2024  ЈП НИО „СЛУЖБЕНИ ЛИСТ“ БИХ УСЛУГА ОБЈАВЕ ЈН У СЛУЖБЕНОМ ГЛАСНИКУ 98.00
942 38594/24-ЈН 9/10/2024  ЈП НИО „СЛУЖБЕНИ ЛИСТ“ БИХ ОБЈАВА ЈАВНЕ НАБАВКЕ 98.00
943 38532/24-ЈН 9/10/2024  ЈП НИО „СЛУЖБЕНИ ЛИСТ“ БИХ ОБЈАВА ЈАВНЕ НАБАВКЕ 98.00
944 38842/24-ЈН 9/10/2024  ЈП НИО „СЛУЖБЕНИ ЛИСТ“ БИХ ОБЈАВА ЈАВНЕ НАБАВКЕ 98.00
945 38402/24-ЈН 9/10/2024  ЈП НИО „СЛУЖБЕНИ ЛИСТ“ БИХ ОБЈАВА ЈАВНЕ НАБАВКЕ 98.00
946 39032/24-јн 9/10/2024  ЈП НИО „СЛУЖБЕНИ ЛИСТ“ БИХ НАБАВКА ЗАШТИТНЕ ОПРЕМЕ 98.00
947 38567/24-јн 9/10/2024  ЈП НИО „СЛУЖБЕНИ ЛИСТ“ БИХ ОБЈАВА 98.00
948 37530/24-ЈН 9/3/2024  ЈП НИО „СЛУЖБЕНИ ЛИСТ“ БИХ ОБЈАВА 98.00
949 37896/24-јн 9/3/2024  ЈП НИО „СЛУЖБЕНИ ЛИСТ“ БИХ ОБЈАВА 98.00
950 37950/24-јн 9/3/2024  ЈП НИО „СЛУЖБЕНИ ЛИСТ“ БИХ ОБЈАВА 52.00
951 38050/24-јн 9/3/2024  ЈП НИО „СЛУЖБЕНИ ЛИСТ“ БИХ ОБЈАВА 98.00
952 45167/24-јн 10/15/2024  ЈП НИО „СЛУЖБЕНИ ЛИСТ“ БИХ УГОВОР 98.00
953 44534/24-јн 10/15/2024  ЈП НИО „СЛУЖБЕНИ ЛИСТ“ БИХ ОБЈАВА ЗА НАБАВКУ ПОГОНСКОГ ГОРИВА ЗА ПТВСЈ 98.00
954 43373/24-јн 10/8/2024  ЈП НИО „СЛУЖБЕНИ ЛИСТ“ БИХ ОБЈАВА У СЛУЖБЕНОМ ЛИСТУ БИХ, НАБАВКА И ИЗРАДА ПРОЈЕКТНЕ ДОКУМЕНТАЦИЈЕ 98.00
955 43629/24-јн 10/8/2024  ЈП НИО „СЛУЖБЕНИ ЛИСТ“ БИХ ОБЈАВА НАБАВКЕ ЗА ОДРЖАВАЊЕ ТЕЛЕФОНСКЕ ЦЕНТРАЛЕ 98.00
956 42907/24-ЈН 10/1/2024  ЈП НИО „СЛУЖБЕНИ ЛИСТ“ БИХ УСЛУГА ОБЈАВЕ ЈН У СЛУЖБЕНОМ ГЛАСНИКУ 98.00
957 42154/24-ЈН 10/1/2024  ЈП НИО „СЛУЖБЕНИ ЛИСТ“ БИХ ОБЈАВА 98.00
958 42803/24-ЈН 10/1/2024  ЈП НИО „СЛУЖБЕНИ ЛИСТ“ БИХ ОБЈАВА 98.00
959 42908/24-ЈН 10/1/2024  ЈП НИО „СЛУЖБЕНИ ЛИСТ“ БИХ ОБЈАВА 98.00
960 42609/24-ЈН 10/1/2024  ЈП НИО „СЛУЖБЕНИ ЛИСТ“ БИХ ОБЈАВА 52.00
961 41905/24-ЈН 10/1/2024  ЈП НИО „СЛУЖБЕНИ ЛИСТ“ БИХ НАБАВКА - УСЛУГА И ИЗРАДА ИДЕНТИФИКАЦИОНИХ КАРТИЦА 98.00
962 43699/24-јн 10/8/2024  ЈП НИО „СЛУЖБЕНИ ЛИСТ“ БИХ ОБЈАВА 98.00
963 43372/24-јн 10/8/2024  ЈП НИО „СЛУЖБЕНИ ЛИСТ“ БИХ ОБЈАВА 98.00
964 43361/24-јн 10/8/2024  ЈП НИО „СЛУЖБЕНИ ЛИСТ“ БИХ ОБЈАВА 98.00
965 247/24 8/31/2024 ЗЕВ СИМЕ ШОЛАЈЕ 5 ЗЕВ 08/2024 59.60
966 154/24 5/31/2024 ЗЕВ СИМЕ ШОЛАЈЕ 5 ЗЕВ 05/24 59.60
967 216/24 7/31/2024 ЗЕВ СИМЕ ШОЛАЈЕ 5 ЗЕВ 07/2024 59.60
968 271/24 7/31/2024 ЗЕВ КЊАЗА МИЛОША 31 ЗЕВ 07/2024 28.85
969 193/24 5/31/2024 ЗЕВ КЊАЗА МИЛОША 31 ЗЕВ 05/24 28.85
970 232/24 6/30/2024 ЗЕВ КЊАЗА МИЛОША 31 ЗЕВ 06/24 28.85
971 РНОСТ-451091/24 7/18/2024 ЗЕВ ТИНА УЈЕВИЋА 3 ЗЕВ 10/24 39.00
972 РНОСТ- 451092/24 7/18/2024 ЗЕВ ТИНА УЈЕВИЋА 3 ЗЕВ 11/24 39.00
973 РНОСТ-451093/24 7/18/2024 ЗЕВ ТИНА УЈЕВИЋА 3 ЗЕВ 12/24 39.00
974 РНОСТ- 451088 7/18/2024 ЗЕВ ТИНА УЈЕВИЋА 3 ЗЕВ 7/24 39.00
975 РНОСТ- 451089/24 7/18/2024 ЗЕВ ТИНА УЈЕВИЋА 3 ЗЕВ 8/24 39.00
976 РНОСТ-451090 7/18/2024 ЗЕВ ТИНА УЈЕВИЋА 3 ЗЕВ 9/24 39.00
977 60/24 6/30/2024 ЗЕВ БРОНЗАНИ МАЈДАН ББ РАЧУН ЗА В 2024. ЗА П. П. У БРОНЗАНОМ МАЈДАНУ 50.40
978 49/24 5/31/2024 ЗЕВ БРОНЗАНИ МАЈДАН ББ ЗЕВ 05/24 38.06
979 50/24 5/31/2024 ЗЕВ БРОНЗАНИ МАЈДАН ББ РАЧУН ЗА В 2024. ЗА П. П. У БРОНЗАНОМ МАЈДАНУ 50.40
980 80/24 8/31/2024 ЗЕВ БРОНЗАНИ МАЈДАН ББ РАЧУН ЗА ВИИИ 2024. ЗА ПОСЛОВНИ ПРОСТОР 50.40
981 79/24 8/31/2024 ЗЕВ БРОНЗАНИ МАЈДАН ББ ЗЕВ 08/2024 38.06
982 69/24 7/31/2024 ЗЕВ БРОНЗАНИ МАЈДАН ББ ЗЕВ 07/2024 38.06
983 70/24 7/31/2024 ЗЕВ БРОНЗАНИ МАЈДАН ББ РАЧУН ЗА ВИИ 2024. ЗА ПОСЛОВНИ ПРОСТОР 50.40
984 ИФ-00064-1-24 8/31/2024 „АЛО МЕДИЈА СИСТЕМ” д.о.о. БАЊА ЛУКА ОБЈАВА ИНФОРМАЦИЈА И САДРЖАЈА О РАДУ ГРАДСКЕ УПРАВЕ 1,170.00
985 ИФ-00073-1-24 9/30/2024 „АЛО МЕДИЈА СИСТЕМ” д.о.о. БАЊА ЛУКА ОБЈАВА ИНФОРМАЦИЈА И САДРЖАЈА О РАДУ ГРАДСКЕ УПРАВЕ 1,170.00
986 ППП-6966/24/07 7/25/2024 ГРАД БАЊА ЛУКА КОМУНАЛНА НАКНАДА 07/2024 2,942.70
987 ППП-8118/24/08 7/25/2024 ГРАД БАЊА ЛУКА КОМУНАЛНЕ НАКНАДЕ 08/2024 2,942.70
988 ППП-9270/24/09 7/25/2024 ГРАД БАЊА ЛУКА КОМУНАЛНА НАКНАДА 09/2024 2,942.70
989 394/24 7/31/2024 ЗЕВ КРАЉА ПЕТРА И КАРАЂОРЂЕВИЋА 113 И 115 ЗЕВ 07/2024 45.30
990 393/24 7/31/2024 ЗЕВ КРАЉА ПЕТРА И КАРАЂОРЂЕВИЋА 113 И 115 РАЧУН ЗА ВИИ 2024. ЗА П. П. БР. 1 10.80
991 273/24 5/31/2024 ЗЕВ КРАЉА ПЕТРА И КАРАЂОРЂЕВИЋА 113 И 115 РАЧУН ЗА В 2024. ЗА П. П. БР. 1 У УЛ. К. П. И КАРАЂОРЂЕВИЋА БР. 113 10.80
992 333/24 6/30/2024 ЗЕВ КРАЉА ПЕТРА И КАРАЂОРЂЕВИЋА 113 И 115 РАЧУН ЗА ВИ 2024. ЗА П. П. БР. 1 10.80
993 181/2024 6/30/2024 ЗЕВ АЛЕЈА СВЕТОГ САВЕ 20 РАЧУН ЗА ВИ 2024. ЗА П. П. БР. 191 140.30
994 146/2024 5/31/2024 ЗЕВ АЛЕЈА СВЕТОГ САВЕ 20 РАЧУН ЗА В 2024. ЗА П. П. БР. 191 140.30
995 216/2024 7/31/2024 ЗЕВ АЛЕЈА СВЕТОГ САВЕ 20 РАЧУН ЗА ВИИ 2024. ЗА П. П. БР. 191 140.30
996 251/2024 8/31/2024 ЗЕВ АЛЕЈА СВЕТОГ САВЕ 20 РАЧУН ЗА ВИИИ 2024. ЗА П. П. БР. 191 140.30
997 24-360-000167 7/24/2024 „МП МЕДИЈА ГРУП” д.о.о. БАЊА ЛУКА УСЛУГЕ ШТАМПЕ, ГРАФИЧКЕ ПРИПРЕМЕ, ПРОМОЦИЈЕ И МАРКЕТИНГА ЗА ПРОЈЕКАТ ГОВОР МРЖЊЕ ФОНД 03 5,293.43
998 8/1/2024 8/2/2024 ЗЕВ БУЛЕВАР ВОЈВОДЕ ЖИВОЈИНА МИШИЋА 25 ЗЕВ 08/2024 36.40
999 7/1/2024 7/5/2024 ЗЕВ БУЛЕВАР ВОЈВОДЕ ЖИВОЈИНА МИШИЋА 25 ЗЕВ 07/2024 36.40
1000 6/1/2024 6/5/2024 ЗЕВ БУЛЕВАР ВОЈВОДЕ ЖИВОЈИНА МИШИЋА 25 ЗЕВ 06/24 36.40
1001 9/1/2024 9/5/2024 ЗЕВ БУЛЕВАР ВОЈВОДЕ ЖИВОЈИНА МИШИЋА 25 ЗЕВ 09/2024 36.40
1002 7/24/2024 7/31/2024 ЗЕВ МАРИЈЕ БУРСАЋ 1 3 5 РАЧУН ЗА ВИИ 2024. ЗА П. П. БР. 34 85.40
1003 8/24/2024 8/31/2024 ЗЕВ МАРИЈЕ БУРСАЋ 1 3 5 РАЧУН ЗА ВИИИ 2024. ЗА П. П. БР. 34 85.40
1004 4/24/2024 4/30/2024 ЗЕВ МАРИЈЕ БУРСАЋ 1 3 5 РАЧУН ЗА ИВ 2024. ЗА П. П. БР. 34 85.40
1005 3/24/2024 3/31/2024 ЗЕВ МАРИЈЕ БУРСАЋ 1 3 5 РАЧУН ЗА ИИИ 2024. ЗА П. П. БР. 34 85.40
1006 11/24 6/3/2024 ЗЕВ ПОТКОЗАРЈЕ ЗЕВ 06/24 47.60
1007 13/24 7/3/2024 ЗЕВ ПОТКОЗАРЈЕ ЗЕВ 07/2024 47.60
1008 17/24 9/2/2024 ЗЕВ ПОТКОЗАРЈЕ ЗЕВ 09/2024 47.60
1009 15/24 8/2/2024 ЗЕВ ПОТКОЗАРЈЕ ЗЕВ 08/2024 47.60
1010 185/24 5/31/2024 ЗЕВ БУЛЕВАР ВОЈВОДЕ ЖИВОЈИНА МИШИЋА 65 РАЧУН ЗА В 2024. ЗА П. П. БР. 109 У Б. В. Ж. МИШИЋА БР. 65 8.31
1011 222/24 6/30/2024 ЗЕВ БУЛЕВАР ВОЈВОДЕ ЖИВОЈИНА МИШИЋА 65 РАЧУН ЗА ВИ 2024. ЗА П. П. БР. 109 8.31
1012 714/24 8/28/2024 „БИРОМАРК” с.п. ИЗРАДА ПВЦ КАРТИЦА 1,998.59
1013 У-5/24 8/20/2024 „МИПЕКС АУТО РС” д.о.о. СЕРВИС АЛАТА WЕБЕР 7,020.00
1014 ИФ-00089-1-24 9/30/2024 „ТИКО“ КЕЦМАН СЛАВИЦА с.п. БАЊА ЛУКА УСЛУГА ОРГАНИЗАЦИЈА ДОГАЂАЈА 6,376.50
1015 вас-08-24-смс-729 8/31/2024 ХТ ЕРОНЕТ ПРИХОД ХТ ЕРОНЕТ ПУТЕМ СМС 5% 578.16
1016 1074/24 6/3/2024 „СИНЕКС ЛАБОРАТОРИЈА” д.о.о. БАЊА ЛУКА РАЧУН БР. 1074/24 836.55
1017 72-09/2024 9/23/2024 „ПРОРЕНТ” д.о.о. УСЛУГА ОРГАНИЗАЦИЈЕ ДОГАЂАЈА 4,095.00
1018 74-09/2024 9/27/2024 „ПРОРЕНТ” д.о.о. УСЛУГА ОРГАНИЗАЦИЈЕ ДОГАЂАЈА 7,020.00
1019 и01-47/2024 9/5/2024 „ГЕА КОМПАНИ” д.о.о. БАЊА ЛУКА УГОВОР СА ИНВЕСТИТОРИМА 90,826.16
1020 24-360-001074 8/30/2024 „ИТИНЕРИС” д.о.о. УСЛУГА ОДРЖАВАЊА ПРОГРАМА ЗА КЊИГУ УЛАЗНИХ ФАКТУРА - КУФ (6/10) 421.20
1021 24-360-000922 7/31/2024 „ИТИНЕРИС” д.о.о. УСЛУГА ОДРЖАВАЊА ПРОГРАМА ЗА КЊИГУ УЛАЗНИХ ФАКТУРА - КУФ (5/10) 421.20
1022 295 8/29/2024 6. НОВЕМБАР НАБАВКА ЗАСТАВА И ГОВОРНИЦА 534.69
1023 244 7/19/2024 6. НОВЕМБАР НАБАВКА ЗАСТАВА И ГОВОРНИЦА 1,123.20
1024 130 4/20/2024 6. НОВЕМБАР НАБАВКА ЗАСТАВА 761.67
1025 312 9/16/2024 6. НОВЕМБАР НАБАВКА ЗАСТАВА И ГОВОРНИЦА 421.20
1026 3/29/2024 5/29/2024 ЦЕНТАР МОДЕРНИХ ЗНАЊА КОТИЗАЦИЈА ЗА СЕМИНАР - М. МАРАН 200.00
1027 ГАРАЖА БР. 8 5/20/2024 ЗЕВ ГАВРИЛА ПРИНЦИПА 7 РАЧУН ЗА УТРОШАК ВОДЕ РАДИ КВАРА У ГАРАЖИ БР. 8 ЗА В, ВИ И ВИИИ 2024. 747.00
1028 24-330-003070 8/31/2024 „САТWОРК” д.о.о. РАЧУН БРОЈ 24-330-003070 ЗА АВГУСТ 2024. 11,700.00
1029 24-330-003454 9/30/2024 „САТWОРК” д.о.о. РАЧУН БРОЈ 24-330-003454 ЗА СЕПТЕМБАР 2204. 11,700.00
1030 1.1-Р-34/24 6/5/2024 „ИНТЕХКС ” д.о.о. ЛИЦЕНЦА ЗА СQЛ СЕРВЕР 2022 СТАНДАРД ЕДИТИОН 2,186.73
1031 1 12/29/2023 РУГИП ГЕОДЕТСКО-КАТАСТАРСКЕ УСЛУГЕ 11,145.96
1032 13/2024 8/15/2024 ДЕВОТИОН МЕДИА УСЛУГА ПРОМОЦИЈЕ ПУТЕМ ИНТЕРНЕТ ПОРТАЛА 1,000.00
1033 17/2024 9/15/2024 ДЕВОТИОН МЕДИА УСЛУГА ПРОМОЦИЈЕ ПУТЕМ ИНТЕРНЕТ ПОРТАЛА 1,000.00
1034 244/2024 9/3/2024 „НИНАМЕДИЈА” д.о.о. ПРЕС КЛИПИНГ 585.00
1035 2. привремена ситуација број 76/ИX-24 9/10/2024 „ГРИЈАЊЕ ИНВЕСТ” д.о.о. ПРОЈЕКТОВАЊЕ И ИЗВОЂЕЊЕ РАДОВА 604,494.75
1036 110/24 8/31/2024 „БАЛКАН КОП-ЂУРЂЕВАК” д.о.о. ЦВЈЕТНИ АРАНЖМАНИ 3,744.00
1037 79/24 6/30/2024 „БАЛКАН КОП-ЂУРЂЕВАК” д.о.о. ЦВЈЕТНИ АРАНЖМАНИ 4,036.50
1038 21-24 7/16/2024 „ГРАЂЕЊЕ МРЂАН” д.о.о. ОГРАДА ОКО ПУМПНЕ СТАНИЦЕ ЛУСИЋИ 6,201.00
1039 24-3600-000027 7/18/2024 „БАУКОН” д.о.о. УГОВОРИ С ИНВЕСТИТОРИМА 4,488.00
1040 01-18/24 10/2/2024 „ТАНАСИЋ” д.о.о. ОБУКА ЗА Ц КАТЕГОРИЈУ 7,170.00
1041 24-3А00-000162 8/1/2024 "ММИ ПРОЈЕЦТС ДЕВЕЛОПМЕНТ" д.о.о. ХОТЕЛСКЕ И УГОСТИТЕЉСКЕ УСЛУГЕ ЗА УЧЕСНИКЕ СТРУЧНЕ КОНФЕРЕНЦИЈЕ 61,079.73
1042 286 7/26/2024 ВЕТЕРИНАРСКА СТАНИЦА а.д. ИЗДАВАЊЕ ВЕТЕРИНАРСКИХ УВЈЕРЕЊА 219.88
1043 001/24 8/5/2024 „ГРАНД ЦО” д.о.о. УГОВОРИ С ИНВЕСТИТОРИМА 17,037.00
1044 00170810/24 8/12/2024 „АСА ТЕСТИНГ ЦЕНТАР” д.о.о. ТЕХНИЧКИ ПРЕГЛЕД ЗА РЕГИСТРАЦИЈУ ВАТРОГАСНОГ ВОЗИЛА Е53-М-306 99.46
1045 00170770/24 8/12/2024 „АСА ТЕСТИНГ ЦЕНТАР” д.о.о. ТЕХНИЧКИ ПРЕГЛЕД ЗА РЕГИСТРАЦИЈУ ВАТРОГАСНОГ ВОЗИЛА А94-Ј-193 90.09
1046 00170783/24 8/12/2024 „АСА ТЕСТИНГ ЦЕНТАР” д.о.о. ТЕХНИЧКИ ПРЕГЛЕД ЗА РЕГИСТРАЦИЈУ ВОЗИЛА Т04-А-025 54.99
1047 00170756/24 8/12/2024 „АСА ТЕСТИНГ ЦЕНТАР” д.о.о. ТЕХНИЧКИ ПРЕГЛЕД ЗА РЕГИСТРАЦИЈУ ВОЗИЛА Т04-А-026 54.99
1048 00186738/24 9/2/2024 „АСА ТЕСТИНГ ЦЕНТАР” д.о.о. ТЕХНИЧКИ ПРЕГЛЕД ЗА РЕГИСТРАЦИЈУ К43-О-298 19.89
1049 00179787/24 8/23/2024 „АСА ТЕСТИНГ ЦЕНТАР” д.о.о. ТЕХНИЧКИ ПРЕГЛЕД ЗА РЕГИСТРАЦИЈУ М20-О-420 70.20
1050 00179792/24 8/23/2024 „АСА ТЕСТИНГ ЦЕНТАР” д.о.о. ТЕХНИЧКИ ПРЕГЛЕД ЗА РЕГИСТРАЦИЈУ М15-Т-373 99.45
1051 00176270/24 8/19/2024 „АСА ТЕСТИНГ ЦЕНТАР” д.о.о. ТЕХНИЧКИ ПРЕГЛЕД ЗА РЕГИСТРАЦИЈУ 864-К-672 54.99
1052 154 9/20/2024 „АСА ТЕСТИНГ ЦЕНТАР” д.о.о. ТЕХНИЧКИ ПРЕГЛЕД ЗА РЕГИСТРАЦИЈУ К65-М-313 54.99
1053 8/1/2024 8/9/2024 „А+Б АРХИТЕКТИ” д.о.о. ПЛАЋАЊЕ ИЗРАДЕ ИДЕЈНОГ ПРОЈЕКТА ЗА ЗБРИЊАВАЊЕ МЛАДИХ И ОДРАСЛИХ СА СМЕТЊАМА У РАЗВОЈУ „ПРЕДАХ” У НАСЕЉУ РОСУЉЕ 6,318.00
1054 10/24 9/19/2024 ЦЕНТАР ЗА УРЕЂЕЊЕ И ПРОЈЕКТОВАЊЕ д.о.о. ПАЛЕ УТУ ЗА ДЈЕЧИЈЕ ИГРАЛИШТЕ У СРЕДЊОШКОЛСКОЈ 1,100.00
1055 060/24 8/29/2024 „ДИНЕКО” д.о.о. ОПРЕМАЊЕ КУЋЕ МИЛАНОВИЋ 277,798.13
1056 10/24 9/16/2024 „ПУТЕВИ И УЛИЦЕ” д.о.о. РАЧУН БРОЈ 10/24 ОД 16. 09. 2024. ГОДИНЕ 6,704.10
1057 ИФ-00685-1-24 9/11/2024 „ЕКО КОНСАЛТИНГ” д.о.о. ИЗРАДА ПРИЛОГА ЗАШТИТЕ ОД ПОЖАРА ЗА ПРОЈЕКАТ ИЗГРАДЊЕ ПРИСТУПНЕ САОБРАЋАЈНИЦЕ НА ЛОКАЦИЈИ КОД ЈЕЛШИНГРАДА (ФАЗА 2) 760.50
1058 9/25/2024 9/13/2024 ДИГИЛАБ - СТАНКОВИЋ ГРАДИМИР с.п. ХОСТИНГ ЗА ВЕБ САЈТ ДОМА ОМЛАДИНЕ 200.00
1059 390 8/27/2024 „АУДИО ВИДЕО КОНСАЛТИНГ” д.о.о. ЈАВНА НАБАВКА - ОПРЕМА ЗА ДОМ ОМЛАДИНЕ 17,485.65
1060 извф-2 9/27/2024 МУЗИЧКИ АНСАМБЛ ФЕНЕЧКИ БИСЕРИ КОНЦЕРТ У БАЊОЈ ЛУЦИ 6,845.41
1061 64/24 10/21/2024 ПЛАВИ РАДИО УСЛУГА ОРГАНИЗАЦИЈА ДОГАЂАЈА 4,680.00
УКУПНО: 5,733,161.53
РБ Број фактуре Датум издавања фактуре Назив добављача Опис услуге Укупан износ фактуре са ПДВ-ом
1 9000272718 9/13/2023  „ЕЛЕКТРОКРАЈИНА“ а.д. БАЊА ЛУКА ТАКСА ЗА ИЗРАДУ ЕЕС 29.25
2 9000272720 9/13/2023  „ЕЛЕКТРОКРАЈИНА“ а.д. БАЊА ЛУКА ПРИКЉУЧАК ЕЛЕКТРИЧНЕ ЕНЕРГИЈЕ ЗА АУТОБУСКО СТАЈАЛИШТЕ ЦАРА ДУШАНА 697.37
3 окончана ситуација 12/5/2023 „УНИЈАТ-М” д.о.о. ПРИЈЕДОР ДЈЕЧИЈЕ ИГРАЛИШТЕ У ДРАГОЧАЈУ 3,435.45
4 62856-2024-01 1/31/2024 „ВОДОВОД” а.д. БАЊА ЛУКА ВОДОВОД БУЛЕВАР ЖИВОЈИНА МИШИЋА 1.40
5 24/22 2/14/2024 „ГЕОАСТОР” д.о.о. БАЊА ЛУКА ФОРМИРАЊЕ ГРАЂЕВИНСКЕ ПАРЦЕЛЕ 1,053.00
6 1067/1/93 КЊИЖНО ТЕРЕЋЕЊЕ 1/31/2024 „МГ МИНД” д.о.о. МРКОЊИЋ ГРАД КО ВОДА 2 1,327.23
7 1-1417/24 3/8/2024 „ЛАНАКО” БАЊА ЛУКА КОТИЗАЦИЈА ЗА ОБУКУ ЗА СТРУЧНО УСАВРШАВАЊЕ (6 ЗАПОСЛЕНИХ ИЗ ОДСЈЕКА ЗА КОМУНАЛНЕ ПОСЛОВЕ) 1,123.20
8 1-р-799/24 3/30/2024 „ВОДОВОД” а.д. БАЊА ЛУКА МИШЉЕЊЕ НА УТУ - ВОДОВОД 113.49
9 1-р-798/24 3/30/2024 „ВОДОВОД” а.д. БАЊА ЛУКА МИШЉЕЊЕ НА УТУ 113.49
10 2065/1/93 књижно терећење 2/29/2024 „МГ МИНД” д.о.о. МРКОЊИЋ ГРАД КО ВОДА 2 5,746.08
11 52028-4-0324-5100779 3/31/2024 МХ „ЕЛЕКТРОПРИВРЕДА РЕПУБЛИКЕ СРПСКЕ” ПОСЛОВНИ ПРОСТОР У ПАРКУ ПК-03/24 198.80
12 51096-4-0324-4100521 3/31/2024 МХ „ЕЛЕКТРОПРИВРЕДА РЕПУБЛИКЕ СРПСКЕ” ГРАЂЕВИНСКИ ПРИКЉУЧАК ОД ЗМИЈАЊА РАЈКА-03/24 40.97
13 941147-2024-03 3/31/2024 „ВОДОВОД” а.д. БАЊА ЛУКА ВОДА 03/24 46.89
14 941147-2024-03 3/31/2024 „ВОДОВОД” а.д. БАЊА ЛУКА ВОДА 03/24 42.32
15 5/1/6149 4/16/2024 „ЕУРО ЛАБ” д.о.о. УРЕЂАЈ ЗА ИСПИТИВАЊЕ КВАЛИТЕТА ЈЕСТИВОГ УЉА 976.95
16 06/24 4/16/2024 „ГЕОМАЈСТ” с.п. ЦИЈЕПАЊЕ ПАРЦЕЛЕ И СПРОВОЂЕЊЕ КРОЗ КАТАСТАРСКИ ОПЕРАТ К.О. ПЕТРИЋЕВАЦ 2, К.Ч. 2068/5 И 2068/4 НА 5 НОВОНАСТАЛИХ ПАРЦЕЛА 750.00
17 950297-2024-03 3/31/2024 „ВОДОВОД” а.д. БАЊА ЛУКА ВОДА 03/24 1,097.09
18 943913-2024-03 3/31/2024 „ВОДОВОД” а.д. БАЊА ЛУКА ВОДА 03/24 0.00
19 943913-2024-03 3/31/2024 „ВОДОВОД” а.д. БАЊА ЛУКА ВОДА 03/24 32.18
20 1-р-906/24 4/16/2024 „ВОДОВОД” а.д. БАЊА ЛУКА МИШЉЕЊЕ НА УТУ 113.49
21 иф-00195-1-24 4/18/2024 АПИФ БАЊА ЛУКА ИЗВОД ИЗ ЈРР БР. 14-017-1955/23 17.55
22 1-р-910/24 4/16/2024 „ВОДОВОД” а.д. БАЊА ЛУКА МИШЉЕЊЕ НА УТУ 113.49
23 1068/2024 4/24/2024 ЦЕНТРАЛНИ РЕГИСТАР ХАРТИЈА ОД ВРИЈЕДНОСТИ а.д. ОБАВЉАЊЕ ПОСЛОВА ПЛАТНОГ АГЕНТА ЗА ДУЖНИЧКЕ ХОВ 653.00
24 1089/2024 4/26/2024 ЦЕНТРАЛНИ РЕГИСТАР ХАРТИЈА ОД ВРИЈЕДНОСТИ а.д. ОБАВЉАЊЕ ПОСЛОВА ПЛАТНОГ АГЕНТА ЗА ДУЖНИЧКЕ ХОВ 503.00
25 1087/2024 4/25/2024 ЦЕНТРАЛНИ РЕГИСТАР ХАРТИЈА ОД ВРИЈЕДНОСТИ а.д. ОБАВЉАЊЕ ПОСЛОВА ПЛАТНОГ АГЕНТА ЗА ДУЖНИЧКЕ ХОВ 39.00
26 04-Р-443/24 4/26/2024 ЈУ СЛУЖБЕНИ ГЛАСНИК РС ИЗРАДА ИЗВОДА 6,500.00
27 947752-2024-03 3/31/2024 „ВОДОВОД” а.д. БАЊА ЛУКА ВОДА 03/2024 7.19
28 81-1088/2024 4/30/2024 ГЛАС СРПСКЕ БАЊА ЛУКА ОБЈАВА ОГЛАСА 778.05
29 1-р-984/24 4/24/2024 „ВОДОВОД” а.д. БАЊА ЛУКА ИЗРАДА ПРИКЉУЧКА НА ВОДОВОДНУ МРЕЖУ, ПАРТЕРНО УРЕЂЕЊЕ МОСТА ДОЛАЦ 8,190.51
30 107-1037/2023 5/11/2024 „МФ БАНКА” а.д. БАЊА ЛУКА ПРОВИЗИЈА ЗА ДРУГЕ ТРОШКОВЕ 500.00
31 946913-2024-04 4/30/2024 „ВОДОВОД” а.д. БАЊА ЛУКА ГРИЈАЊЕ 04/24 0.00
32 11161633-2024-04 4/30/2024 „ВОДОВОД” а.д. БАЊА ЛУКА ВОДА 04/24 18.84
33 950297-2024-04 4/30/2024 „ВОДОВОД” а.д. БАЊА ЛУКА ВОДА 04/24 823.21
34 91/24 5/16/2024 ВЕТ ЦЕНТАР САНАЦИЈА ШТЕТЕ НАСТАЛЕ КАО ПОСЉЕДИЦА УПАДА ПАСА ЛУТАЛИЦА НА ИМАЊЕ ЖИВКА КРЕЧАРА 1,521.00
35 145724-162 окончана ситуација 5/17/2024 „ЕУРО ЗНАК” д.о.о. БАЊА ЛУКА ОКОНЧАНА СИТУАЦИЈА 14,300.79
36 197-24 5/13/2024 ЛЕЈЛА КОСИЋ НОТАР ОПУ 255-2024, ТАРИФНИ БРОЈ 3 УГОВОР О РАСКИДУ УГОВОРА О РЕГУЛИСАЊУ МЕЂУСОБНИХ ПРАВА И ОБАВЕЗА И ОСТАЛИХ НОТАРСКИХ ТРОШКОВА 244.88
37 2902-008/24 окончана ситуација 2/29/2024 „ЕГИЋ-КОП” д.о.о. БАЊА ЛУКА ОКОНЧАНА СИТУАЦИЈА 0.00
38 941147-2024-04 4/30/2024 „ВОДОВОД” а.д. БАЊА ЛУКА ВОДА 04/2024 45.22
39 941147-2024-04 4/30/2024 „ВОДОВОД” а.д. БАЊА ЛУКА ВОДА 04/2024 42.57
40 941147-2024-04 4/30/2024 „ВОДОВОД” а.д. БАЊА ЛУКА ВОДА 04/2024 11.70
41 75611-4-0424-4100335 4/30/2024 МХ „ЕЛЕКТРОПРИВРЕДА РЕПУБЛИКЕ СРПСКЕ” УТРОШАК ЕЛЕКТРИЧНЕ ЕНЕРГИЈЕ У ПЗ „РАМИЋИ-БАЊА ЛУКА” (ХАЛА) ЗА АПРИЛ 2024. ГОДИНЕ 0.00
42 иф-00268-1-24 5/20/2024 АПИФ БАЊА ЛУКА ИЗВОД ИЗ РФЛ(МИЛОВАН МАЛЕТИЋ) 15.00
43 947752-2024-04 4/30/2024 „ВОДОВОД” а.д. БАЊА ЛУКА ВОДА 04/24 11.70
44 600-0/2024 4/2/2024 НОТАР ДАЛИБОР ПУХАЛО УСЛУГА НОТАРСКЕ ОБРАДЕ УГОВОРА О ЕКСПРОПРИЈАЦИЈИ ОПУ 1311/2024 310.05
45 38257-ИМ-037288-00/24 5/21/2024 „БРЧКО -ГАС ОСИГУРАЊЕ” БРЧКО ОСИГУРАЊЕ ЗА РЕГИСТРАЦИЈУ ЧАМЦА 94.50
46 1/24/2905 5/21/2024 „ЛАНАКО” БАЊА ЛУКА РАДОВИ НА СЕРВИСУ ПРИНТЕРА ЗЕБРА СЦ350, ЗАМЈЕНЕ-КИТ, РИББОН ДЕФЕЦТ СЕНСОР 290.16
47 24-3000-000890 5/31/2024 „МЕДИЈА МАРКЕТ” д.о.о. ЦОЛОР СЦАННЕР ЦАНОН ЛИДЕ 1,000.00
48 1-Р-1273/24 5/30/2024 „ВОДОВОД” а.д. БАЊА ЛУКА САГЛАСНОСТ НА ПРОЈЕКАТ 134.55
49 941147-2024-05 5/31/2024 „ВОДОВОД” а.д. БАЊА ЛУКА ВОДА 09/2023 0.00
50 941147-2024-05 5/31/2024 „ВОДОВОД” а.д. БАЊА ЛУКА ВОЖДОВАЧКА 30 05/24 14.93
51 950317-2024-05 5/31/2024 „ВОДОВОД” а.д. БАЊА ЛУКА КНИНСКА ББ-05/24 0.00
52 62845-2024-05 5/31/2024 „ВОДОВОД” а.д. БАЊА ЛУКА ЈАВНО КУПАЛИШТЕ ОД ЗМИЈАЊА РАЈКА-05/24 2.56
53 УСЛ-00151-1-24 6/13/2024 ЦЕНТАР ЗА ПРОЈЕКТОВАЊЕ И КОНСАЛТИНГ „ЦПК” ПЛАЋАЊЕ 50 % НАКНАДЕ ЗА ИЗРАДУ РЕГ. ПЛАНА ЛАЗАРЕВО 1,2 И 3 У ДИЈЕЛУ ПОДРУЧЈА НАСЕЉА ЛАЗАРЕВО 3 3,593.66
54 2024-м100-53-001059 6/13/2024 ХОТЕЛ „БОСНА” а.д. УСЛУГЕ РЕСТОРАНА ОБАВЈЕШТЕЊЕ: 320-9-2-3-22-121/24 26,047.51
55 62856-2024-05 5/31/2024 „ВОДОВОД” а.д. БАЊА ЛУКА БУЛЕВАР ЖИВОЈИНА МИШИЋА 05/24 1.40
56 946653-2024-05 5/31/2024 „ВОДОВОД” а.д. БАЊА ЛУКА РАЧУН ЗА В 2024. ЗА П. П. БР. 34 У УЛ. К. П. И КАРАЂОРЂЕВИЋА БР. 87 5.85
57 950327-2024-05 5/31/2024 „ВОДОВОД” а.д. БАЊА ЛУКА ФРАНЦА ШУБЕРТА 05/24 4.41
58 57449-2024-05 5/31/2024 „ВОДОВОД” а.д. БАЊА ЛУКА 1. КРАЈИШКОГ КОРПУСА 05/24 11.61
59 62862-2024-05 5/31/2024 „ВОДОВОД” а.д. БАЊА ЛУКА МИРКА КОВАЧЕВИЋА 05/24 1.40
60 62822-2024-05 5/31/2024 „ВОДОВОД” а.д. БАЊА ЛУКА МС0-05/24 1.40
61 116/24 6/11/2024 ВЕТ ЦЕНТАР ТРОКРАТНИ ПРЕГЛЕД НА БЈЕСНИЛО-НЕВАКЦИНИСАНИХ ЖИВОТИЊА 280.00
62 947752-2024-05 5/31/2024 „ВОДОВОД” а.д. БАЊА ЛУКА ВОДА 05/2024 11.70
63 947752-2024-05 5/31/2024 „ВОДОВОД” а.д. БАЊА ЛУКА ВОДА 05/2024 7.19
64 984-0/2024 6/7/2024 НОТАР ДАЛИБОР ПУХАЛО ОПУ-2031/2024 360.36
65 57449-2024-06 6/30/2024 „ВОДОВОД” а.д. БАЊА ЛУКА ТРОШКОВИ ВОДЕ 14.15
66 62859-2024-06 6/30/2024 „ВОДОВОД” а.д. БАЊА ЛУКА ТРОШКОВИ ВОДЕ 29.45
67 950317-2024-06 6/30/2024 „ВОДОВОД” а.д. БАЊА ЛУКА ТРОШКОВИ ВОДЕ 11.70
68 950317-2024-06 6/30/2024 „ВОДОВОД” а.д. БАЊА ЛУКА ТРОШКОВИ ВОДЕ 0.00
69 944642-2024-06 6/30/2024 „ВОДОВОД” а.д. БАЊА ЛУКА ТРОШКОВИ ВОДЕ 0.00
70 62856-2024-06 6/30/2024 „ВОДОВОД” а.д. БАЊА ЛУКА ТРОШКОВИ ВОДЕ 1.40
71 950327-2024-06 6/30/2024 „ВОДОВОД” а.д. БАЊА ЛУКА ТРОШКОВИ ВОДЕ 8.95
72 62845-2024-06 6/30/2024 „ВОДОВОД” а.д. БАЊА ЛУКА ТРОШКОВИ ВОДЕ 45.41
73 941147-2024-06 6/30/2024 „ВОДОВОД” а.д. БАЊА ЛУКА РАЧУН ЗА ВИ 2024. ЗА П. П. БР. 109 У Б. В. Ж. МИШИЋА БР. 65 0.00
74 941147-2024-06 6/30/2024 „ВОДОВОД” а.д. БАЊА ЛУКА РАЧУН ЗА ВИ 2024. ЗА СТАКЛЕНАЦ - СПРАТ 37.21
75 62822-2024-06 6/30/2024 „ВОДОВОД” а.д. БАЊА ЛУКА ТРОШКОВИ ВОДЕ 1.40
76 941147-2024-06 6/30/2024 „ВОДОВОД” а.д. БАЊА ЛУКА ТРОШКОВИ ВОДЕ 1.40
77 941147-2024-06 6/30/2024 „ВОДОВОД” а.д. БАЊА ЛУКА ТРОШКОВИ ВОДЕ 0.00
78 941147-2024-06 6/30/2024 „ВОДОВОД” а.д. БАЊА ЛУКА ТРОШКОВИ ВОДЕ 15.30
79 941147-2024-06 6/30/2024 „ВОДОВОД” а.д. БАЊА ЛУКА ТРОШКОВИ ВОДЕ 1.40
80 941147-2024-06 6/30/2024 „ВОДОВОД” а.д. БАЊА ЛУКА ТРОШКОВИ ВОДЕ 16.70
81 941147-2024-06 6/30/2024 „ВОДОВОД” а.д. БАЊА ЛУКА ТРОШКОВИ ВОДЕ 329.78
82 941147-2024-06 6/30/2024 „ВОДОВОД” а.д. БАЊА ЛУКА ТРОШКОВИ ВОДЕ 15.30
83 941147-2024-06 6/30/2024 „ВОДОВОД” а.д. БАЊА ЛУКА ТРОШКОВИ ВОДЕ 82.36
84 941147-2024-06 6/30/2024 „ВОДОВОД” а.д. БАЊА ЛУКА ТРОШКОВИ ВОДЕ 1.40
85 941147-2024-06 6/30/2024 „ВОДОВОД” а.д. БАЊА ЛУКА ТРОШКОВИ ВОДЕ 11.70
86 941147-2024-06 6/30/2024 „ВОДОВОД” а.д. БАЊА ЛУКА ТРОШКОВИ ВОДЕ 11.70
87 941147-2024-06 6/30/2024 „ВОДОВОД” а.д. БАЊА ЛУКА ТРОШКОВИ ВОДЕ 55.65
88 941147-2024-06 6/30/2024 „ВОДОВОД” а.д. БАЊА ЛУКА ТРОШКОВИ ВОДЕ 3.95
89 941147-2024-06 6/30/2024 „ВОДОВОД” а.д. БАЊА ЛУКА ТРОШКОВИ ВОДЕ 1,077.10
90 941147-2024-06 6/30/2024 „ВОДОВОД” а.д. БАЊА ЛУКА ТРОШКОВИ ВОДЕ 39.66
91 941147-2024-06 6/30/2024 „ВОДОВОД” а.д. БАЊА ЛУКА ТРОШКОВИ ВОДЕ 1.40
92 941147-2024-06 6/30/2024 „ВОДОВОД” а.д. БАЊА ЛУКА ТРОШКОВИ ВОДЕ 3.71
93 941147-2024-06 6/30/2024 „ВОДОВОД” а.д. БАЊА ЛУКА ТРОШКОВИ ВОДЕ 1.40
94 941147-2024-06 6/30/2024 „ВОДОВОД” а.д. БАЊА ЛУКА ТРОШКОВИ ВОДЕ 1.40
95 941147-2024-06 6/30/2024 „ВОДОВОД” а.д. БАЊА ЛУКА ТРОШКОВИ ВОДЕ 24.39
96 941147-2024-06 6/30/2024 „ВОДОВОД” а.д. БАЊА ЛУКА ТРОШКОВИ ВОДЕ 4.78
97 941147-2024-06 6/30/2024 „ВОДОВОД” а.д. БАЊА ЛУКА ТРОШКОВИ ВОДЕ 62.26
98 941147-2024-06 6/30/2024 „ВОДОВОД” а.д. БАЊА ЛУКА ТРОШКОВИ ВОДЕ 1.40
99 941147-2024-06 6/30/2024 „ВОДОВОД” а.д. БАЊА ЛУКА ТРОШКОВИ ВОДЕ 54.96
100 941147-2024-06 6/30/2024 „ВОДОВОД” а.д. БАЊА ЛУКА ТРОШКОВИ ВОДЕ 1.40
101 941147-2024-06 6/30/2024 „ВОДОВОД” а.д. БАЊА ЛУКА ТРОШКОВИ ВОДЕ 44.77
102 941147-2024-06 6/30/2024 „ВОДОВОД” а.д. БАЊА ЛУКА ТРОШКОВИ ВОДЕ 367.43
103 941147-2024-06 6/30/2024 „ВОДОВОД” а.д. БАЊА ЛУКА ТРОШКОВИ ВОДЕ 2.56
104 62888-2024-06 6/30/2024 „ВОДОВОД” а.д. БАЊА ЛУКА ТРОШКОВИ ВОДЕ 11.70
105 62887-2024-06 6/30/2024 „ВОДОВОД” а.д. БАЊА ЛУКА ТРОШКОВИ ВОДЕ 8.40
106 62862-2024-06 6/30/2024 „ВОДОВОД” а.д. БАЊА ЛУКА ТРОШКОВИ ВОДЕ 1.40
107 62886-2024-06 6/30/2024 „ВОДОВОД” а.д. БАЊА ЛУКА ТРОШКОВИ ВОДЕ 56.86
108 9000299515 7/16/2024  „ЕЛЕКТРОКРАЈИНА“ а.д. БАЊА ЛУКА ТАКСА ЈАВНА РАСВЈЕТА 29.25
109 9000299516 7/16/2024  „ЕЛЕКТРОКРАЈИНА“ а.д. БАЊА ЛУКА ТАКСА ЈАВНА РАСВЈЕТА 29.25
110 9000299517 7/16/2024  „ЕЛЕКТРОКРАЈИНА“ а.д. БАЊА ЛУКА ТАКСА ЈАВНА РАСВЈЕТА 1,504.13
111 947075-2024-06 6/30/2024 „ВОДОВОД” а.д. БАЊА ЛУКА ВОДА 06/24 2.56
112 24-362-000034 7/17/2024 „АКВАНА” д.о.о. БАЊА ЛУКА УГОСТИТЕЉСКЕ УСЛУГЕ 198.30
113 579-24 7/15/2024 НОТАР МАРИНА СЕЛАК УСЛУГА НОТАРСКЕ ОБРАДЕ УГОВОРА ЗА ЕКСПРОПРИЈАЦИЈУ 409.50
114 9000300145 7/22/2024  „ЕЛЕКТРОКРАЈИНА“ а.д. БАЊА ЛУКА ТАКСА ЈАВНА РАСВЈЕТА 45.63
115 9000300383 7/23/2024  „ЕЛЕКТРОКРАЈИНА“ а.д. БАЊА ЛУКА ТАКСА ЈАВНА РАСВЈЕТА 29.25
116 9000300384 7/23/2024  „ЕЛЕКТРОКРАЈИНА“ а.д. БАЊА ЛУКА ТАКСА ЈАВНА РАСВЈЕТА 29.25
117 9000300385 7/23/2024  „ЕЛЕКТРОКРАЈИНА“ а.д. БАЊА ЛУКА ТАКСА ЈАВНА РАСВЈЕТА 29.25
118 9000300386 7/23/2024  „ЕЛЕКТРОКРАЈИНА“ а.д. БАЊА ЛУКА ТАКСА ЈАВНА РАСВЈЕТА 29.25
119 9000300387 7/23/2024  „ЕЛЕКТРОКРАЈИНА“ а.д. БАЊА ЛУКА ТАКСА ЈАВНА РАСВЈЕТА 29.25
120 9000300388 7/23/2024  „ЕЛЕКТРОКРАЈИНА“ а.д. БАЊА ЛУКА ТАКСА ЈАВНА РАСВЈЕТА 29.25
121 9000300389 7/23/2024  „ЕЛЕКТРОКРАЈИНА“ а.д. БАЊА ЛУКА ТАКСА ЈАВНА РАСВЈЕТА 29.25
122 9000300390 7/23/2024  „ЕЛЕКТРОКРАЈИНА“ а.д. БАЊА ЛУКА ТАКСА ЈАВНА РАСВЈЕТА 29.25
123 9000300391 7/23/2024  „ЕЛЕКТРОКРАЈИНА“ а.д. БАЊА ЛУКА ТАКСА ЈАВНА РАСВЈЕТА 29.25
124 30654/24-ЈН 7/17/2024  ЈП НИО „СЛУЖБЕНИ ЛИСТ“ БИХ УСЛУГА ОБЈАВЕ ЈН У СЛУЖБЕНОМ ГЛАСНИКУ 98.00
125 1/1/4696 7/31/2024 „ЛАНАКО” БАЊА ЛУКА ОДРЖАВАЊЕ СОФТВЕРА ЗА КАДРОВСКУ ЕВИДЕНЦИЈУ И ОБРАЧУН ЗАРАДА ЗА ЈУЛ 2024. 2,691.00
126 131/1/5/2024 8/1/2024 ИНСТИТУТ ЗА ГРАЂЕВИНАРСТВО ИГ БАЊА ЛУКА ПРОЈЕКАТ АДАПТАЦИЈЕ ДРУШТВЕНОГ ДОМА МЗ ДОЊА ПИСКАВИЦА 3,978.00
127 24-3600-001196 8/2/2024 ИНСТИТУТ ЗА ЗАШТИТУ И ЕКОЛОГИЈУ РЕПУБЛИКЕ СРПСКЕ МЈЕРЕЊЕ АЕРОЗАГАЂЕЊА И БУКЕ 1,520.30
128 32323/24-ЈН 7/30/2024  ЈП НИО „СЛУЖБЕНИ ЛИСТ“ БИХ ОБЈАВА 98.00
129 941147-2024-07 7/31/2024 „ВОДОВОД” а.д. БАЊА ЛУКА ВОДА 07/2024 0.00
130 941147-2024-07 7/31/2024 „ВОДОВОД” а.д. БАЊА ЛУКА ВОДА 07/2024 0.00
131 941147-2024-07 7/31/2024 „ВОДОВОД” а.д. БАЊА ЛУКА ВОДА 07/2024 0.00
132 941147-2024-07 7/31/2024 „ВОДОВОД” а.д. БАЊА ЛУКА ВОДА 07/2024 1.40
133 941147-2024-07 7/31/2024 „ВОДОВОД” а.д. БАЊА ЛУКА ВОДА 07/2024 5.48
134 941147-2024-07 7/31/2024 „ВОДОВОД” а.д. БАЊА ЛУКА ВОДА 07/2024 1.40
135 941147-2024-07 7/31/2024 „ВОДОВОД” а.д. БАЊА ЛУКА ВОДА 07/2024 1.40
136 941147-2024-07 7/31/2024 „ВОДОВОД” а.д. БАЊА ЛУКА ВОДА 07/2024 1.40
137 941147-2024-07 7/31/2024 „ВОДОВОД” а.д. БАЊА ЛУКА ВОДА 07/2024 25.06
138 941147-2024-07 7/31/2024 „ВОДОВОД” а.д. БАЊА ЛУКА ВОДА 07/2024 7.65
139 941147-2024-07 7/31/2024 „ВОДОВОД” а.д. БАЊА ЛУКА ВОДА 07/2024 43.51
140 941147-2024-07 7/31/2024 „ВОДОВОД” а.д. БАЊА ЛУКА ВОДА 07/2024 44.85
141 941147-2024-07 7/31/2024 „ВОДОВОД” а.д. БАЊА ЛУКА ДРАКУЛИЋ ББ 10.66
142 941147-2024-07 7/31/2024 „ВОДОВОД” а.д. БАЊА ЛУКА ЗЕЛЕНИ ВИР 1.40
143 941147-2024-07 7/31/2024 „ВОДОВОД” а.д. БАЊА ЛУКА ВРБАС ББ 07/24 135.77
144 941147-2024-07 7/31/2024 „ВОДОВОД” а.д. БАЊА ЛУКА БАНА МИЛОСАВЉЕВИЋА ББ 07/24 995.48
145 941147-2024-07 7/31/2024 „ВОДОВОД” а.д. БАЊА ЛУКА ЂУРЕ ЂАКОВИЋА 07/24 26.91
146 941147-2024-07 7/31/2024 „ВОДОВОД” а.д. БАЊА ЛУКА БАНА МИЛОСАВЉЕВИЋА 07/24 34.56
147 941147-2024-07 7/31/2024 „ВОДОВОД” а.д. БАЊА ЛУКА ЂУРЕ ЂАКОВИЋА 07/24 1.40
148 941147-2024-07 7/31/2024 „ВОДОВОД” а.д. БАЊА ЛУКА ВЕСЕЛИНА МАСЛЕШЕ 07/24 11.70
149 941147-2024-07 7/31/2024 „ВОДОВОД” а.д. БАЊА ЛУКА ДР МЛАДЕНА СТОЈАНОВИЋА 07/24 52.41
150 941147-2024-07 7/31/2024 „ВОДОВОД” а.д. БАЊА ЛУКА ИВАНА ГОРАНА КОВАЧИЋА 07/24 115.89
151 941147-2024-07 7/31/2024 „ВОДОВОД” а.д. БАЊА ЛУКА ВОЖДОВАЧКА 30 07/24 4.78
152 941147-2024-07 7/31/2024 „ВОДОВОД” а.д. БАЊА ЛУКА КРАЉА ПЕТРА 1. КАРАЂОРЂЕВИЋА 07/24 3.95
153 941147-2024-07 7/31/2024 „ВОДОВОД” а.д. БАЊА ЛУКА ДР МЛАДЕНА СТОЈАНОВИЋА 07/24 102.83
154 941147-2024-07 7/31/2024 „ВОДОВОД” а.д. БАЊА ЛУКА БАНА МИЛОСАВЉЕВИЋА ББ 07/24 11.70
155 941147-2024-07 7/31/2024 „ВОДОВОД” а.д. БАЊА ЛУКА САВЕ ЉУБОЈЕ 07/24 1.40
156 941147-2024-07 7/31/2024 „ВОДОВОД” а.д. БАЊА ЛУКА КУПРЕШКА 07/24 1.40
157 941147-2024-07 7/31/2024 „ВОДОВОД” а.д. БАЊА ЛУКА БУЛЕВАР ЦАРА ДУШАНА 07/24 135.94
158 941147-2024-07 7/31/2024 „ВОДОВОД” а.д. БАЊА ЛУКА БУЛЕВАР СРПСКЕ ВОЈСКЕ 07/24 1.40
159 941147-2024-07 7/31/2024 „ВОДОВОД” а.д. БАЊА ЛУКА ГОЛУБА БАБИЋА 07/24 12.99
160 941147-2024-07 7/31/2024 „ВОДОВОД” а.д. БАЊА ЛУКА БУЛЕВАР СРПСКЕ ВОЈСКЕ 07/24 49.86
161 941147-2024-07 7/31/2024 „ВОДОВОД” а.д. БАЊА ЛУКА ТРГ КРАЈИНЕ 07/24 72.16
162 941147-2024-07 7/31/2024 „ВОДОВОД” а.д. БАЊА ЛУКА СОЛУНСКА ББ 07/24 1.40
163 941147-2024-07 7/31/2024 „ВОДОВОД” а.д. БАЊА ЛУКА ТРГ ПАЛИХ БОРАЦА 07/24 11.61
164 62822-2024-07 7/31/2024 „ВОДОВОД” а.д. БАЊА ЛУКА ДР МЛАДЕНА СТОЈАНОВИЋА 07/24 1.40
165 941147-2024-07 7/31/2024 „ВОДОВОД” а.д. БАЊА ЛУКА САНСКА 07/24 4.88
166 941147-2024-07 7/31/2024 „ВОДОВОД” а.д. БАЊА ЛУКА ЦАРИЦЕ МИЛИЦЕ ББ 07/24 9.51
167 941147-2024-07 7/31/2024 „ВОДОВОД” а.д. БАЊА ЛУКА БАНА МИЛОСАВЉЕВИЋА 07/24 470.71
168 941147-2024-07 7/31/2024 „ВОДОВОД” а.д. БАЊА ЛУКА АЛЕЈА СВЕТОГ САВЕ 07/24 15.30
169 941147-2024-07 7/31/2024 „ВОДОВОД” а.д. БАЊА ЛУКА Т.Т. ДАМЈАНОВЋА 07/24 1.40
170 941147-2024-07 7/31/2024 „ВОДОВОД” а.д. БАЊА ЛУКА КРАЉА ПЕТРА 1. КАРАЂОРЂЕВИЋА 07/24 0.00
171 57449-2024-07 7/31/2024 „ВОДОВОД” а.д. БАЊА ЛУКА 1. КРАЈИШКОГ КОРПУСА 07/24 14.15
172 62856-2024-07 7/31/2024 „ВОДОВОД” а.д. БАЊА ЛУКА БУЛЕВАР ЖИВОЈИНА МИШИЋА 07/24 1.40
173 62907-2024-07 7/31/2024 „ВОДОВОД” а.д. БАЊА ЛУКА БАНА МИЛОСАВЉЕВИЋА 07/24 4.78
174 62908-2024-07 7/31/2024 „ВОДОВОД” а.д. БАЊА ЛУКА КУЋА МИЛАНОВИЋА 07/24 1.40
175 62906-2024-07 7/31/2024 „ВОДОВОД” а.д. БАЊА ЛУКА КУЋА МИЛАНОВИЋА 07/24 18.45
176 62859-2024-07 7/31/2024 „ВОДОВОД” а.д. БАЊА ЛУКА ДРАГИШЕ ВАСИЋА 07/24 14.15
177 62862-2024-07 7/31/2024 „ВОДОВОД” а.д. БАЊА ЛУКА МИРКА КОВАЧЕВИЋА 07/24 6.04
178 62845-2024-07 7/31/2024 „ВОДОВОД” а.д. БАЊА ЛУКА ОД ЗМИЈАЊА РАЈКА 07/24 32.67
179 62904-2024-07 7/31/2024 „ВОДОВОД” а.д. БАЊА ЛУКА КУЋА МИЛАНОВИЋА 07/24 4.78
180 62905-2024-07 7/31/2024 „ВОДОВОД” а.д. БАЊА ЛУКА БАНА МИЛОСАВЉЕВИЋА 07/24 8.15
181 62909-2024-07 7/31/2024 „ВОДОВОД” а.д. БАЊА ЛУКА КУЋА МИЛАНОВИЋА 07/24 1.40
182 950317-2024-07 7/31/2024 „ВОДОВОД” а.д. БАЊА ЛУКА КНИНСКА ББ 07/24 11.70
183 950327-2024-07 7/31/2024 „ВОДОВОД” а.д. БАЊА ЛУКА ФРАНЦА ШУБЕРТА 07/24 1.40
184 941147-2024-07 7/31/2024 „ВОДОВОД” а.д. БАЊА ЛУКА ВОДА 09/2024 0.00
185 943913-2024-07 7/31/2024 „ВОДОВОД” а.д. БАЊА ЛУКА ВОДА 07/24 0.00
186 126485-4-0724-4101374 7/31/2024 МХ „ЕЛЕКТРОПРИВРЕДА РЕПУБЛИКЕ СРПСКЕ” НЕСТАНДАРДНЕ УСЛУГЕ - СТРУЈА 5.85
187 126486-4-0724-4101379 7/31/2024 МХ „ЕЛЕКТРОПРИВРЕДА РЕПУБЛИКЕ СРПСКЕ” НЕСТАНДАРДНЕ УСЛУГЕ - СТРУЈА 5.85
188 125937-4-0724-4101660 7/31/2024 МХ „ЕЛЕКТРОПРИВРЕДА РЕПУБЛИКЕ СРПСКЕ” НЕСТАНДАРДНЕ УСЛУГЕ - СТРУЈА 5.85
189 126487-4-0724-4101720 7/31/2024 МХ „ЕЛЕКТРОПРИВРЕДА РЕПУБЛИКЕ СРПСКЕ” НЕСТАНДАРДНЕ УСЛУГЕ - СТРУЈА 5.85
190 126165-4-0724-4101720 7/31/2024 МХ „ЕЛЕКТРОПРИВРЕДА РЕПУБЛИКЕ СРПСКЕ” НЕСТАНДАРДНЕ УСЛУГЕ - СТРУЈА 5.85
191 126160-4-0724-4101720 7/31/2024 МХ „ЕЛЕКТРОПРИВРЕДА РЕПУБЛИКЕ СРПСКЕ” НЕСТАНДАРДНЕ УСЛУГЕ - СТРУЈА 5.85
192 125940-4-0724-4101720 7/31/2024 МХ „ЕЛЕКТРОПРИВРЕДА РЕПУБЛИКЕ СРПСКЕ” НЕСТАНДАРДНЕ УСЛУГЕ - СТРУЈА 5.85
193 126167-4-0724-4101720 7/31/2024 МХ „ЕЛЕКТРОПРИВРЕДА РЕПУБЛИКЕ СРПСКЕ” НЕСТАНДАРДНЕ УСЛУГЕ - СТРУЈА 5.85
194 126166-4-0724-4101720 7/31/2024 МХ „ЕЛЕКТРОПРИВРЕДА РЕПУБЛИКЕ СРПСКЕ” НЕСТАНДАРДНЕ УСЛУГЕ - СТРУЈА 5.85
195 126162-4-0724-4101720 7/31/2024 МХ „ЕЛЕКТРОПРИВРЕДА РЕПУБЛИКЕ СРПСКЕ” НЕСТАНДАРДНЕ УСЛУГЕ - СТРУЈА 5.85
196 126164-4-0724-4101720 7/31/2024 МХ „ЕЛЕКТРОПРИВРЕДА РЕПУБЛИКЕ СРПСКЕ” НЕСТАНДАРДНЕ УСЛУГЕ - СТРУЈА 5.85
197 126163-4-0724-4101720 7/31/2024 МХ „ЕЛЕКТРОПРИВРЕДА РЕПУБЛИКЕ СРПСКЕ” НЕСТАНДАРДНЕ УСЛУГЕ - СТРУЈА 5.85
198 126161-4-0724-4101720 7/31/2024 МХ „ЕЛЕКТРОПРИВРЕДА РЕПУБЛИКЕ СРПСКЕ” НЕСТАНДАРДНЕ УСЛУГЕ - СТРУЈА 5.85
199 125941-4-0724-4101720 7/31/2024 МХ „ЕЛЕКТРОПРИВРЕДА РЕПУБЛИКЕ СРПСКЕ” НЕСТАНДАРДНЕ УСЛУГЕ - СТРУЈА 5.85
200 126159-4-0724-4101720 7/31/2024 МХ „ЕЛЕКТРОПРИВРЕДА РЕПУБЛИКЕ СРПСКЕ” НЕСТАНДАРДНЕ УСЛУГЕ - СТРУЈА 5.85
201 126492-4-0724-4101720 7/31/2024 МХ „ЕЛЕКТРОПРИВРЕДА РЕПУБЛИКЕ СРПСКЕ” НЕСТАНДАРДНЕ УСЛУГЕ - СТРУЈА 5.85
202 125942-4-0724-4101720 7/31/2024 МХ „ЕЛЕКТРОПРИВРЕДА РЕПУБЛИКЕ СРПСКЕ” НЕСТАНДАРДНЕ УСЛУГЕ - СТРУЈА 5.85
203 126158-4-0724-4101720 7/31/2024 МХ „ЕЛЕКТРОПРИВРЕДА РЕПУБЛИКЕ СРПСКЕ” НЕСТАНДАРДНЕ УСЛУГЕ - СТРУЈА 5.85
204 126493-4-0724-4101720 7/31/2024 МХ „ЕЛЕКТРОПРИВРЕДА РЕПУБЛИКЕ СРПСКЕ” НЕСТАНДАРДНЕ УСЛУГЕ - СТРУЈА 5.85
205 126156-4-0724-4101720 7/31/2024 МХ „ЕЛЕКТРОПРИВРЕДА РЕПУБЛИКЕ СРПСКЕ” НЕСТАНДАРДНЕ УСЛУГЕ - СТРУЈА 5.85
206 126157-4-0724-4101720 7/31/2024 МХ „ЕЛЕКТРОПРИВРЕДА РЕПУБЛИКЕ СРПСКЕ” НЕСТАНДАРДНЕ УСЛУГЕ - СТРУЈА 5.85
207 125943-40724-4101720 7/31/2024 МХ „ЕЛЕКТРОПРИВРЕДА РЕПУБЛИКЕ СРПСКЕ” НЕСТАНДАРДНЕ УСЛУГЕ - СТРУЈА 5.85
208 126155-4-0724-4101720 7/31/2024 МХ „ЕЛЕКТРОПРИВРЕДА РЕПУБЛИКЕ СРПСКЕ” НЕСТАНДАРДНЕ УСЛУГЕ - СТРУЈА 5.85
209 126488-4-0724-4101720 7/31/2024 МХ „ЕЛЕКТРОПРИВРЕДА РЕПУБЛИКЕ СРПСКЕ” НЕСТАНДАРДНЕ УСЛУГЕ - СТРУЈА 5.85
210 126168-4-0724-4101720 7/31/2024 МХ „ЕЛЕКТРОПРИВРЕДА РЕПУБЛИКЕ СРПСКЕ” НЕСТАНДАРДНЕ УСЛУГЕ - СТРУЈА 5.85
211 125930-4-0724-4101720 7/31/2024 МХ „ЕЛЕКТРОПРИВРЕДА РЕПУБЛИКЕ СРПСКЕ” НЕСТАНДАРДНЕ УСЛУГЕ - СТРУЈА 5.85
212 125916-4-0724-4101720 7/31/2024 МХ „ЕЛЕКТРОПРИВРЕДА РЕПУБЛИКЕ СРПСКЕ” НЕСТАНДАРДНЕ УСЛУГЕ - СТРУЈА 5.85
213 126480-4-0724-4101720 7/31/2024 МХ „ЕЛЕКТРОПРИВРЕДА РЕПУБЛИКЕ СРПСКЕ” НЕСТАНДАРДНЕ УСЛУГЕ - СТРУЈА 5.85
214 126491-4-0724-4101720 7/31/2024 МХ „ЕЛЕКТРОПРИВРЕДА РЕПУБЛИКЕ СРПСКЕ” НЕСТАНДАРДНЕ УСЛУГЕ - СТРУЈА 5.85
215 126169-4-0724-4101720 7/31/2024 МХ „ЕЛЕКТРОПРИВРЕДА РЕПУБЛИКЕ СРПСКЕ” НЕСТАНДАРДНЕ УСЛУГЕ - СТРУЈА 5.85
216 126170-4-0724-4101720 7/31/2024 МХ „ЕЛЕКТРОПРИВРЕДА РЕПУБЛИКЕ СРПСКЕ” НЕСТАНДАРДНЕ УСЛУГЕ - СТРУЈА 5.85
217 126171-4-0724-4101720 7/31/2024 МХ „ЕЛЕКТРОПРИВРЕДА РЕПУБЛИКЕ СРПСКЕ” НЕСТАНДАРДНЕ УСЛУГЕ - СТРУЈА 5.85
218 126172-4-0724-4101720 7/31/2024 МХ „ЕЛЕКТРОПРИВРЕДА РЕПУБЛИКЕ СРПСКЕ” НЕСТАНДАРДНЕ УСЛУГЕ - СТРУЈА 5.85
219 126173-4-0724-4101720 7/31/2024 МХ „ЕЛЕКТРОПРИВРЕДА РЕПУБЛИКЕ СРПСКЕ” НЕСТАНДАРДНЕ УСЛУГЕ - СТРУЈА 5.85
220 7/2024-БЛКИ-О-Ц 7/31/2024 ЦЕНТРАЛНИ РЕГИСТАР ХАРТИЈА ОД ВРИЈЕДНОСТИ а.д. ТРОШКОВИ ПЛАТНОГ ЗА 24. 07. 2024. (13 НАЛОГА) 48.40
221 06/24 8/13/2024 ПОШТЕ СРПСКЕ Г.ТАКСА 1,200.00
222 62820-2024-07 7/31/2024 „ВОДОВОД” а.д. БАЊА ЛУКА ВОДА 07/2024 1.40
223 4/3/2024 8/1/2024 САВЕЗ ОПШТИНА И ГРАДОВА РС ЧЛАНАРИНА ЗА 3. КВАРТАЛ 2024. ГОДИНЕ 8,963.60
224 САВФ-00008-01-24 8/9/2024 ЦЕНТАР ЗА ПРОЈЕКТОВАЊЕ И КОНСАЛТИНГ ЦПК НАДЗОР ВОДА 3 -8,556.37
225 УСЛ-00210-1-24 8/9/2024 ЦЕНТАР ЗА ПРОЈЕКТОВАЊЕ И КОНСАЛТИНГ ЦПК НАДЗОР ВОДА 3 22,366.87
226 БЛ485/24 7/31/2024 ЈЗУ ЗАВОД ЗА МЕДИЦИНУ РАДА И СПОРТА РС СИСТЕМАТСКИ ПРЕГЛЕД СПОРТИСТА СА ЛАБОРАТОРИЈОМ 240.00
227 БЛ486/24 7/31/2024 ЈЗУ ЗАВОД ЗА МЕДИЦИНУ РАДА И СПОРТА РС СИСТЕМАТСКИ ПРЕГЛЕД СПОРТИСТА СА ЛАБОРАТОРИЈОМ 570.00
228 БЛ487/24 7/31/2024 ЈЗУ ЗАВОД ЗА МЕДИЦИНУ РАДА И СПОРТА РС СИСТЕМАТСКИ ПРЕГЛЕД СПОРТИСТА СА ЛАБОРАТОРИЈОМ 360.00
229 БЛ475/24 7/31/2024 ЈЗУ ЗАВОД ЗА МЕДИЦИНУ РАДА И СПОРТА РС СИСТЕМАТСКИ ПРЕГЛЕД СПОРТИСТА СА ЛАБОРАТОРИЈОМ 250.00
230 БЛ476/24 7/31/2024 ЈЗУ ЗАВОД ЗА МЕДИЦИНУ РАДА И СПОРТА РС СИСТЕМАТСКИ ПРЕГЛЕД СПОРТИСТА СА ЛАБОРАТОРИЈОМ 250.00
231 БЛ477/24 7/31/2024 ЈЗУ ЗАВОД ЗА МЕДИЦИНУ РАДА И СПОРТА РС СИСТЕМАТСКИ ПРЕГЛЕД СПОРТИСТА СА ЛАБОРАТОРИЈОМ 150.00
232 БЛ478/24 7/31/2024 ЈЗУ ЗАВОД ЗА МЕДИЦИНУ РАДА И СПОРТА РС СИСТЕМАТСКИ ПРЕГЛЕД СПОРТИСТА СА ЛАБОРАТОРИЈОМ 400.00
233 БЛ479/24 7/31/2024 ЈЗУ ЗАВОД ЗА МЕДИЦИНУ РАДА И СПОРТА РС СИСТЕМАТСКИ ПРЕГЛЕД СПОРТИСТА СА ЛАБОРАТОРИЈОМ 100.00
234 БЛ480/24 7/31/2024 ЈЗУ ЗАВОД ЗА МЕДИЦИНУ РАДА И СПОРТА РС СИСТЕМАТСКИ ПРЕГЛЕД СПОРТИСТА СА ЛАБОРАТОРИЈОМ 300.00
235 БЛ481/24 7/31/2024 ЈЗУ ЗАВОД ЗА МЕДИЦИНУ РАДА И СПОРТА РС СИСТЕМАТСКИ ПРЕГЛЕД СПОРТИСТА СА ЛАБОРАТОРИЈОМ 650.00
236 БЛ484/24 7/31/2024 ЈЗУ ЗАВОД ЗА МЕДИЦИНУ РАДА И СПОРТА РС СИСТЕМАТСКИ ПРЕГЛЕД СПОРТИСТА СА ЛАБОРАТОРИЈОМ 480.00
237 БЛ483/24 7/31/2024 ЈЗУ ЗАВОД ЗА МЕДИЦИНУ РАДА И СПОРТА РС СИСТЕМАТСКИ ПРЕГЛЕД СПОРТИСТА СА ЛАБОРАТОРИЈОМ 390.00
238 БЛ482/24 7/31/2024 ЈЗУ ЗАВОД ЗА МЕДИЦИНУ РАДА И СПОРТА РС СИСТЕМАТСКИ ПРЕГЛЕД СПОРТИСТА СА ЛАБОРАТОРИЈОМ 540.00
239 24-300-001072 8/14/2024  „АУТОЦЕНТАР МЕРКУР” д.о.о. БАЊА ЛУКА МОНТАЖА И БАЛАНС ГУМА М57-А-850 23.40
240 2-6246/2023 8/15/2023 „СУПЕР ПЕТРОЛ” д.о.о. БАЊА ЛУКА НАБАВКА ГОРИВА 30.79
241 2-8028/2023 10/15/2023 „СУПЕР ПЕТРОЛ” д.о.о. БАЊА ЛУКА НАБАВКА ГОРИВА 34.57
242 2-6695/2023 8/31/2023 „СУПЕР ПЕТРОЛ” д.о.о. БАЊА ЛУКА НАБАВКА ГОРИВА 27.00
243 2-7594/2023 9/30/2023 „СУПЕР ПЕТРОЛ” д.о.о. БАЊА ЛУКА НАБАВКА ГОРИВА 40.13
244 2-7137/2023 9/15/2023 „СУПЕР ПЕТРОЛ” д.о.о. БАЊА ЛУКА НАБАВКА ГОРИВА 31.74
245 2-9425/2023 11/30/2023 „СУПЕР ПЕТРОЛ” д.о.о. БАЊА ЛУКА НАБАВКА ГОРИВА 25.00
246 62886-2024-07 7/31/2024 „ВОДОВОД” а.д. БАЊА ЛУКА БУЛЕВАР ЦАРА ДУШАНА 07/24 51.76
247 62887-2024-07 7/31/2024 „ВОДОВОД” а.д. БАЊА ЛУКА БУЛЕВАР ЦАРА ДУШАНА 07/24 8.40
248 62888-2024-07 7/31/2024 „ВОДОВОД” а.д. БАЊА ЛУКА БУЛЕВАР ЦАРА ДУШАНА 07/24 11.70
249 33820/24-ЈН 8/6/2024  ЈП НИО „СЛУЖБЕНИ ЛИСТ“ БИХ ОБЈАВА 98.00
250 9000302308 8/15/2024  „ЕЛЕКТРОКРАЈИНА“ а.д. БАЊА ЛУКА ОБЈАВА 573.85
251 9000302307 8/15/2024  „ЕЛЕКТРОКРАЈИНА“ а.д. БАЊА ЛУКА ЈАВНА РАСВЈЕТА ТАКСА ЕЕ САГЛАСНОСТ 45.63
252 9000302306 8/15/2024  „ЕЛЕКТРОКРАЈИНА“ а.д. БАЊА ЛУКА ЈАВНА РАСВЈЕТА ТАКСА ЕЕ САГЛАСНОСТ 704.67
253 9000302304 8/15/2024  „ЕЛЕКТРОКРАЈИНА“ а.д. БАЊА ЛУКА ЈАВНА РАСВЈЕТА ТАКСА ЕЕ САГЛАСНОСТ 45.63
254 9000302302 8/15/2024  „ЕЛЕКТРОКРАЈИНА“ а.д. БАЊА ЛУКА ЈАВНА РАСВЈЕТА ТАКСА ЕЕ САГЛАСНОСТ 1,894.97
255 9000302301 8/15/2024  „ЕЛЕКТРОКРАЈИНА“ а.д. БАЊА ЛУКА ЈАВНА РАСВЈЕТА ТАКСА ЕЕ САГЛАСНОСТ 45.63
256 9000302300 8/15/2024  „ЕЛЕКТРОКРАЈИНА“ а.д. БАЊА ЛУКА ЈАВНА РАСВЈЕТА ТАКСА ЕЕ САГЛАСНОСТ 704.67
257 9000302299 8/15/2024  „ЕЛЕКТРОКРАЈИНА“ а.д. БАЊА ЛУКА ЈАВНА РАСВЈЕТА ТАКСА ЕЕ САГЛАСНОСТ 45.63
258 9000302319 8/15/2024  „ЕЛЕКТРОКРАЈИНА“ а.д. БАЊА ЛУКА ЈАВНА РАСВЈЕТА ТАКСА ЕЕ САГЛАСНОСТ 1,504.13
259 9000302318 8/15/2024  „ЕЛЕКТРОКРАЈИНА“ а.д. БАЊА ЛУКА ЈАВНА РАСВЈЕТА ТАКСА ЕЕ САГЛАСНОСТ 45.63
260 9000302316 8/15/2024  „ЕЛЕКТРОКРАЈИНА“ а.д. БАЊА ЛУКА ЈР МЗ ПОТКОЗАРЈЕ 704.67
261 9000302314 8/15/2024  „ЕЛЕКТРОКРАЈИНА“ а.д. БАЊА ЛУКА ЈР ПОТКОЗАРЈЕ 45.63
262 9000302313 8/15/2024  „ЕЛЕКТРОКРАЈИНА“ а.д. БАЊА ЛУКА ЈАВНА РАСВЈЕТА ТАКСА ЕЕ САГЛАСНОСТ 704.67
263 9000302312 8/15/2024  „ЕЛЕКТРОКРАЈИНА“ а.д. БАЊА ЛУКА ЈАВНА РАСВЈЕТА ТАКСА ЕЕ САГЛАСНОСТ 45.63
264 9000302311 8/15/2024  „ЕЛЕКТРОКРАЈИНА“ а.д. БАЊА ЛУКА ЈАВНА РАСВЈЕТА ТАКСА ЕЕ САГЛАСНОСТ 704.67
265 9000302298 8/15/2024  „ЕЛЕКТРОКРАЈИНА“ а.д. БАЊА ЛУКА ЈР БИСТРИЦА 704.65
266 9000302297 8/15/2024  „ЕЛЕКТРОКРАЈИНА“ а.д. БАЊА ЛУКА МЗ БИСТРИЦА 45.63
267 9000302296 8/15/2024  „ЕЛЕКТРОКРАЈИНА“ а.д. БАЊА ЛУКА ЈР БОЧАЦ 573.85
268 9000302295 8/15/2024  „ЕЛЕКТРОКРАЈИНА“ а.д. БАЊА ЛУКА ЈАВНА РАСВЈЕТА ТАКСА ЕЕ САГЛАСНОСТ 45.63
269 9000302294 8/15/2024  „ЕЛЕКТРОКРАЈИНА“ а.д. БАЊА ЛУКА ЈАВНА РАСВЈЕТА ТАКСА ЕЕ САГЛАСНОСТ 1,504.13
270 9000302293 8/15/2024  „ЕЛЕКТРОКРАЈИНА“ а.д. БАЊА ЛУКА ЈР БОЧАЦ 45.63
271 9000302309 8/15/2024  „ЕЛЕКТРОКРАЈИНА“ а.д. БАЊА ЛУКА ЈАВНА РАСВЈЕТА ТАКСА ЕЕ САГЛАСНОСТ 45.63
272 242-23 2/14/2023 НОТАР АНДРЕЈ ГОЛИЋ ОПУ-315-2023 184.86
273 860-0/2023 5/19/2023 НОТАР АНДРЕЈ ГОЛИЋ ОПУ-1134/2023 194.86
274 76/2/20 7/31/2024 „МГ МИНД” д.о.о. МРКОЊИЋ ГРАД ПРАВДАЊЕ АВАНСА -38,683.31
275 24-3010-008264 8/14/2024 ИНСТИТУТ ЗА ЈАВНО ЗДРАВСТВО РС ПРИПРЕМА УЗОРКА ЗА АНАЛИЗЕ НАМИРНИЦА 140.00
276 153/24 8/6/2024 ВЕТ ЦЕНТАР ТРОКРАТНИ ПРЕГЛЕД НА БЈЕСНИЛО НЕВАКЦИНИСАНИХ ЖИВОТИЊА 280.00
277 књижно терећење бр. 7457/1/93 7/31/2024 „МГ МИНД” д.о.о. МРКОЊИЋ ГРАД КО ВОДА 2 58,012.83
278 ФР-002-2172/24 7/18/2024 ЈУ ВЕТЕРИНАРСКИ ИНСТИТУТ РЕПУБЛИКЕ СРПСКЕ „ДР ВАСО БУТОЗАН” БАЊА ЛУКА МИКРОБИОЛОГИЈА ХРАНЕ И МИШЉЕЊЕ 109.98
279 676/2024 8/26/2024 „РАДИС” д.о.о. ИСТОЧНО САРАЈЕВО УСЛУГА СТРУЧНОГ НАДЗОРА НА ИЗГРАДЊИ САОБ. У НАСЕЉУ МОТИКЕ ПО УГОВОРУ 11-Г-4401/22 2,574.00
280 24-3010-008630 8/27/2024 ИНСТИТУТ ЗА ЈАВНО ЗДРАВСТВО РС СТРУЧНО МИШЉЕЊЕ О ХИГИЈЕНСКОЈ ИСПРАВНОСТИ УЗОРАКА 165.00
281 1-Р-1943/24 8/27/2024 „ВОДОВОД” а.д. БАЊА ЛУКА УСЛУГА ИЗРАДЕ ПРИКЉУЧКА ЗА ВОДУ - КРУЖНА РАСКРСНИЦА БАКАЛ 1,063.89
282 81-2152/2024 8/29/2024 ГЛАС СРПСКЕ БАЊА ЛУКА ПЛАЋАЊЕ ОБАВЈЕШТЕЊА О ОДРЖАВАЊУ ЈАВНЕ РАСПРАВЕ О НАЦРТУ ИЗМЈЕНЕ ДИЈЕЛА РЕГ. ПЛАНА „ЈУГ 6” 333.45
283 1/24/5280 8/29/2024 „ЛАНАКО” БАЊА ЛУКА ОДРЖАВАЊЕ СОФТВЕРА ЗА КАДРОВСКУ ЕВИДЕНЦИЈУ И ОБРАЧУН ЗАРАДА ЗА АВГУСТ 2024. 2,691.00
284 24-3600-001320 9/3/2024 ИНСТИТУТ ЗА ЗАШТИТУ И ЕКОЛОГИЈУ РС МЈЕРЕЊЕ АЕРОЗАГАЂЕЊА И БУКЕ 1,516.04
285 943913-2024-08 8/31/2024 „ВОДОВОД” а.д. БАЊА ЛУКА ВОДА 08/2024 45.89
286 943913-2024-08 8/31/2024 „ВОДОВОД” а.д. БАЊА ЛУКА ВОДА 0.00
287 950329-2024-08 8/31/2024 „ВОДОВОД” а.д. БАЊА ЛУКА ВОДА 08/2024 18.03
288 1161351-2024-08 8/31/2024 „ВОДОВОД” а.д. БАЊА ЛУКА ВОДА 08/2024 9.38
289 60565-2024-08 8/31/2024 „ВОДОВОД” а.д. БАЊА ЛУКА ВОДА 08/2024 90.37
290 50643-2024-08 8/31/2024 „ВОДОВОД” а.д. БАЊА ЛУКА ВОДА 08/2024 4.78
291 950297-2024-08 8/31/2024 „ВОДОВОД” а.д. БАЊА ЛУКА ВОДА 08/2024 140.04
292 950297-2024-08 8/31/2024 „ВОДОВОД” а.д. БАЊА ЛУКА ВОДА 08/2024 2,131.78
293 11161633-2024-08 8/31/2024 „ВОДОВОД” а.д. БАЊА ЛУКА ВОДА 08/2024 22.55
294 163432-4-0824-4100521 8/31/2024 МХ „ЕЛЕКТРОПРИВРЕДА РЕПУБЛИКЕ СРПСКЕ” РАЧУН ЗА ВИИИ 2024. ЗА МЗ ЦЕНТАР 1 (БРОЈИЛО 4396554) 38.91
295 99000190 8/31/2024 ХТ ЕРОНЕТ ОБРАЧУН ЗАТЕЗНЕ КАМАТЕ 75.14
296 00092/24 9/13/2024 „ИБИС-ИНЖЕЊЕРИНГ” д.о.о. БАЊА ЛУКА ИДЕЈНИ ПРОЈЕКАТ ФЕКАЛНЕ КАНАЛИЗАЦИЈЕ 8,043.75
297 54715-2024-08 8/31/2024 „ВОДОВОД” а.д. БАЊА ЛУКА ВОДА 08/2024 11.70
298 УСЛ-00237-1-24 15. привремена ситуација 9/9/2024 ЦЕНТАР ЗА ПРОЈЕКТОВАЊЕ И КОНСАЛТИНГ „ЦПК” НАДЗОР ВОДА 3 23,038.11
299 сторно авансна фактура број савф-00009-01-24 9/9/2024 ЦЕНТАР ЗА ПРОЈЕКТОВАЊЕ И КОНСАЛТИНГ „ЦПК” НАДЗОР ВОДА 3 -8,556.37
300 81-2321/2024 9/13/2024 ГЛАС СРПСКЕ БАЊА ЛУКА ПЛАЋАЊЕ ОБАВЈЕШТЕЊА О ОДРЖАВАЊУ ЈАВНЕ РАСПРАВЕ О НАЦРТУ ИЗМЈЕНЕ ДИЈЕЛА РЕГ. ПЛАНА „ПАСКОЛИНА ЦИГЛАНА” 333.45
301 12257/24 8/30/2024  „ЛИБУСОФТ ЦИЦОМ” д.о.о. МЈЕСЕЧНО ОДРЖАВАЊЕ ЗА РЕГ. НЕКР. / МЈЕСЕЧНО ОДРЖАВАЊЕ ЗА ЗАКУПНИНЕ / МЈЕСЕЧНО ОДРЖАВАЊЕ ЗА ОСНОВНА СРЕДСТВА ЗА АВГУСТ 2024. 2,398.50
302 38347/24-јн 9/10/2024  ЈП НИО „СЛУЖБЕНИ ЛИСТ“ БИХ ТРОШКОВИ ОБЈАВЕ ЈН У СЛУЖБЕНОМ ЛИСТУ БИХ 98.00
303 947075-2024-08 8/31/2024 „ВОДОВОД” а.д. БАЊА ЛУКА ВОДА 08/2024 2.56
304 941158-2024-08 8/31/2024 „ВОДОВОД” а.д. БАЊА ЛУКА ВОДА 08/24 42.21
305 001-0292 9/17/2024 „АБЦ СОЛУТИОНС” д.о.о. БАЊА ЛУКА НАБАВКА И УГРАДЊА СТУБОВА 4,680.00
306 941147-2024-08 8/31/2024 „ВОДОВОД” а.д. БАЊА ЛУКА ВОДА 08/2024 0.00
307 941147-2024-08 8/31/2024 „ВОДОВОД” а.д. БАЊА ЛУКА ВОДА 08/2024 0.00
308 941147-2024-08 8/31/2024 „ВОДОВОД” а.д. БАЊА ЛУКА ВОДА 08/2024 0.00
309 941147-2024-08 8/31/2024 „ВОДОВОД” а.д. БАЊА ЛУКА ВОДА 08/2024 11.70
310 941147-2024-08 8/31/2024 „ВОДОВОД” а.д. БАЊА ЛУКА ВОДА 08/2024 0.00
311 941147-2024-08 8/31/2024 „ВОДОВОД” а.д. БАЊА ЛУКА ВОДА 08/2024 4.78
312 941147-2024-08 8/31/2024 „ВОДОВОД” а.д. БАЊА ЛУКА ВОДА 08/2024 4.33
313 941147-2024-08 8/31/2024 „ВОДОВОД” а.д. БАЊА ЛУКА ВОДА 08/2024 11.70
314 941147-2024-08 8/31/2024 „ВОДОВОД” а.д. БАЊА ЛУКА ВОДА 08/2024 11.70
315 941147-2024-08 8/31/2024 „ВОДОВОД” а.д. БАЊА ЛУКА ВОДА 08/2024 1.40
316 941147-2024-08 8/31/2024 „ВОДОВОД” а.д. БАЊА ЛУКА ВОДА 08/2024 11.70
317 941147-2024-08 8/31/2024 „ВОДОВОД” а.д. БАЊА ЛУКА ВОДА 08/2024 `
318 941147-2024-08 8/31/2024 „ВОДОВОД” а.д. БАЊА ЛУКА ВОДА 08/2024 0.00
319 941147-2024-08 8/31/2024 „ВОДОВОД” а.д. БАЊА ЛУКА ВОДА 08/2024 12.25
320 941147-2024-08 8/31/2024 „ВОДОВОД” а.д. БАЊА ЛУКА ВОДА 08/2024 3.71
321 941147-2024-08 8/31/2024 „ВОДОВОД” а.д. БАЊА ЛУКА ВОДА 08/2024 14.15
322 941147-2024-08 8/31/2024 „ВОДОВОД” а.д. БАЊА ЛУКА ВОДА 08/2024 6.49
323 941147-2024-08 8/31/2024 „ВОДОВОД” а.д. БАЊА ЛУКА ВОДА 08/2024 19.25
324 941147-2024-08 8/31/2024 „ВОДОВОД” а.д. БАЊА ЛУКА ВОДА 08/2024 32.01
325 941147-2024-08 8/31/2024 „ВОДОВОД” а.д. БАЊА ЛУКА ВОДА 08/2024 24.16
326 941147-2024-08 8/31/2024 „ВОДОВОД” а.д. БАЊА ЛУКА ВОДА 08/2024 11.70
327 941147-2024-08 8/31/2024 „ВОДОВОД” а.д. БАЊА ЛУКА ВОДА 08/2024 11.70
328 941147-2024-08 8/31/2024 „ВОДОВОД” а.д. БАЊА ЛУКА ВОДА 08/2024 1.40
329 941147-2024-08 8/31/2024 „ВОДОВОД” а.д. БАЊА ЛУКА ВОДА 08/2024 2.46
330 941147-2024-08 8/31/2024 „ВОДОВОД” а.д. БАЊА ЛУКА ВОДА 08/2024 8.35
331 941147-2024-08 8/31/2024 „ВОДОВОД” а.д. БАЊА ЛУКА ВОДА 08/2024 2.46
332 941147-2024-08 8/31/2024 „ВОДОВОД” а.д. БАЊА ЛУКА ВОДА 08/2024 5.85
333 941147-2024-08 8/31/2024 „ВОДОВОД” а.д. БАЊА ЛУКА ВОДА 08/2024 4.33
334 941147-2024-08 8/31/2024 „ВОДОВОД” а.д. БАЊА ЛУКА ВОДА 08/2024 224.57
335 941147-2024-08 8/31/2024 „ВОДОВОД” а.д. БАЊА ЛУКА ВОДА 08/2024 19.65
336 941147-2024-08 8/31/2024 „ВОДОВОД” а.д. БАЊА ЛУКА ВОДА 08/2024 5.01
337 941147-2024-08 8/31/2024 „ВОДОВОД” а.д. БАЊА ЛУКА ВОДА 08/2024 34.56
338 941147-2024-08 8/31/2024 „ВОДОВОД” а.д. БАЊА ЛУКА ВОДА 08/2024 1.40
339 941147-2024-08 8/31/2024 „ВОДОВОД” а.д. БАЊА ЛУКА ВОДА 08/2024 1.40
340 941147-2024-08 8/31/2024 „ВОДОВОД” а.д. БАЊА ЛУКА ВОДА 08/2024 9.80
341 941147-2024-08 8/31/2024 „ВОДОВОД” а.д. БАЊА ЛУКА ВОДА 08/2024 21.68
342 941147-2024-08 8/31/2024 „ВОДОВОД” а.д. БАЊА ЛУКА ВОДА 08/2024 127.58
343 941147-2024-08 8/31/2024 „ВОДОВОД” а.д. БАЊА ЛУКА ВОДА 08/2024 8.15
344 941147-2024-08 8/31/2024 „ВОДОВОД” а.д. БАЊА ЛУКА ВОДА 08/2024 8.15
345 941147-2024-08 8/31/2024 „ВОДОВОД” а.д. БАЊА ЛУКА ВОДА 08/2024 1.40
346 941147-2024-08 8/31/2024 „ВОДОВОД” а.д. БАЊА ЛУКА ВОДА 08/2024 14.93
347 941147-2024-08 8/31/2024 „ВОДОВОД” а.д. БАЊА ЛУКА ВОДА 08/2024 1.40
348 941147-2024-08 8/31/2024 „ВОДОВОД” а.д. БАЊА ЛУКА ВОДА 08/2024 2,879.04
349 941147-2024-08 8/31/2024 „ВОДОВОД” а.д. БАЊА ЛУКА ВОДА 08/2024 113.13
350 941147-2024-08 8/31/2024 „ВОДОВОД” а.д. БАЊА ЛУКА ВОДА 08/2024 39.01
351 941147-2024-08 8/31/2024 „ВОДОВОД” а.д. БАЊА ЛУКА ВОДА 08/2024 5.85
352 941147-2024-08 8/31/2024 „ВОДОВОД” а.д. БАЊА ЛУКА ВОДА 08/2024 0.00
353 941147-2024-08 8/31/2024 „ВОДОВОД” а.д. БАЊА ЛУКА ВОДА 08/2024 40.12
354 941147-2024-08 8/31/2024 „ВОДОВОД” а.д. БАЊА ЛУКА ВОДА 08/2024 2.46
355 941147-2024-08 8/31/2024 „ВОДОВОД” а.д. БАЊА ЛУКА ВОДА 08/2024 39.78
356 941147-2024-08 8/31/2024 „ВОДОВОД” а.д. БАЊА ЛУКА ВОДА 08/2024 3.95
357 941147-2024-08 8/31/2024 „ВОДОВОД” а.д. БАЊА ЛУКА ВОДА 08/2024 60.51
358 941147-2024-08 8/31/2024 „ВОДОВОД” а.д. БАЊА ЛУКА ВОДА 08/2024 486.00
359 941147-2024-08 8/31/2024 „ВОДОВОД” а.д. БАЊА ЛУКА ВОДА 08/2024 1.40
360 941147-2024-08 8/31/2024 „ВОДОВОД” а.д. БАЊА ЛУКА ВОДА 08/2024 479.23
361 БЛ577/24 8/31/2024 ЈЗУ ЗАВОД ЗА МЕДИЦИНУ РАДА И СПОРТА РС СИСТЕМАТСКИ ПРЕГЛЕД СПОРТИСТА СА ЛАБОРАТОРИЈОМ 90.00
362 БЛ578/24 8/31/2024 ЈЗУ ЗАВОД ЗА МЕДИЦИНУ РАДА И СПОРТА РС СИСТЕМАТСКИ ПРЕГЛЕД СПОРТИСТА СА ЛАБОРАТОРИЈОМ 300.00
363 БЛ576/24 8/31/2024 ЈЗУ ЗАВОД ЗА МЕДИЦИНУ РАДА И СПОРТА РС СИСТЕМАТСКИ ПРЕГЛЕД СПОРТИСТА СА ЛАБОРАТОРИЈОМ 480.00
364 БЛ575/24 8/31/2024 ЈЗУ ЗАВОД ЗА МЕДИЦИНУ РАДА И СПОРТА РС СИСТЕМАТСКИ ПРЕГЛЕД СПОРТИСТА СА ЛАБОРАТОРИЈОМ 420.00
365 БЛ574/24 8/31/2024 ЈЗУ ЗАВОД ЗА МЕДИЦИНУ РАДА И СПОРТА РС СИСТЕМАТСКИ ПРЕГЛЕД СПОРТИСТА СА ЛАБОРАТОРИЈОМ 60.00
366 БЛ556/24 8/31/2024 ЈЗУ ЗАВОД ЗА МЕДИЦИНУ РАДА И СПОРТА РС СИСТЕМАТСКИ ПРЕГЛЕД СПОРТИСТА СА ЛАБОРАТОРИЈОМ 30.00
367 БЛ555/24 8/31/2024 ЈЗУ ЗАВОД ЗА МЕДИЦИНУ РАДА И СПОРТА РС СИСТЕМАТСКИ ПРЕГЛЕД СПОРТИСТА СА ЛАБОРАТОРИЈОМ 210.00
368 БЛ554/24 8/31/2024 ЈЗУ ЗАВОД ЗА МЕДИЦИНУ РАДА И СПОРТА РС СИСТЕМАТСКИ ПРЕГЛЕД СПОРТИСТА СА ЛАБОРАТОРИЈОМ 30.00
369 БЛ553/24 8/31/2024 ЈЗУ ЗАВОД ЗА МЕДИЦИНУ РАДА И СПОРТА РС СИСТЕМАТСКИ ПРЕГЛЕД СПОРТИСТА СА ЛАБОРАТОРИЈОМ 200.00
370 БЛ552/24 8/31/2024 ЈЗУ ЗАВОД ЗА МЕДИЦИНУ РАДА И СПОРТА РС СИСТЕМАТСКИ ПРЕГЛЕД СПОРТИСТА СА ЛАБОРАТОРИЈОМ 150.00
371 БЛ551/24 8/31/2024 ЈЗУ ЗАВОД ЗА МЕДИЦИНУ РАДА И СПОРТА РС СИСТЕМАТСКИ ПРЕГЛЕД СПОРТИСТА СА ЛАБОРАТОРИЈОМ 250.00
372 БЛ550/24 8/31/2024 ЈЗУ ЗАВОД ЗА МЕДИЦИНУ РАДА И СПОРТА РС СИСТЕМАТСКИ ПРЕГЛЕД СПОРТИСТА СА ЛАБОРАТОРИЈОМ 300.00
373 БЛ549/24 8/31/2024 ЈЗУ ЗАВОД ЗА МЕДИЦИНУ РАДА И СПОРТА РС СИСТЕМАТСКИ ПРЕГЛЕД СПОРТИСТА СА ЛАБОРАТОРИЈОМ 50.00
374 БЛ548/24 8/31/2024 ЈЗУ ЗАВОД ЗА МЕДИЦИНУ РАДА И СПОРТА РС СИСТЕМАТСКИ ПРЕГЛЕД СПОРТИСТА СА ЛАБОРАТОРИЈОМ 150.00
375 БЛ547/24 8/31/2024 ЈЗУ ЗАВОД ЗА МЕДИЦИНУ РАДА И СПОРТА РС СИСТЕМАТСКИ ПРЕГЛЕД СПОРТИСТА СА ЛАБОРАТОРИЈОМ 250.00
376 БЛ545/24 8/31/2024 ЈЗУ ЗАВОД ЗА МЕДИЦИНУ РАДА И СПОРТА РС СИСТЕМАТСКИ ПРЕГЛЕД СПОРТИСТА СА ЛАБОРАТОРИЈОМ 100.00
377 БЛ546/24 8/31/2024 ЈЗУ ЗАВОД ЗА МЕДИЦИНУ РАДА И СПОРТА РС СИСТЕМАТСКИ ПРЕГЛЕД СПОРТИСТА СА ЛАБОРАТОРИЈОМ 50.00
378 БЛ544/24 8/31/2024 ЈЗУ ЗАВОД ЗА МЕДИЦИНУ РАДА И СПОРТА РС СИСТЕМАТСКИ ПРЕГЛЕД СПОРТИСТА СА ЛАБОРАТОРИЈОМ 50.00
379 БЛ543/24 8/31/2024 ЈЗУ ЗАВОД ЗА МЕДИЦИНУ РАДА И СПОРТА РС СИСТЕМАТСКИ ПРЕГЛЕД СПОРТИСТА СА ЛАБОРАТОРИЈОМ 100.00
380 БЛ542/24 8/31/2024 ЈЗУ ЗАВОД ЗА МЕДИЦИНУ РАДА И СПОРТА РС СИСТЕМАТСКИ ПРЕГЛЕД СПОРТИСТА СА ЛАБОРАТОРИЈОМ 150.00
381 БЛ541/24 8/31/2024 ЈЗУ ЗАВОД ЗА МЕДИЦИНУ РАДА И СПОРТА РС СИСТЕМАТСКИ ПРЕГЛЕД СПОРТИСТА СА ЛАБОРАТОРИЈОМ 50.00
382 24-362-000043 9/11/2024 „АКВАНА” д.о.о. БАЊА ЛУКА РЕПРЕЗЕНТАЦИЈА 384.20
383 950343-2024-08 8/31/2024 „ВОДОВОД” а.д. БАЊА ЛУКА ВОДА 08/2024 1.40
384 204/24 36. привремена ситуација 8/31/2024 „ХИДРО-КОП” д.о.о. ВОДА 2 660,848.71
385 ХКПЦ-ДО-1230/24 ИX ПРИВРЕМЕНА СИТУАЦИЈА 9/19/2024 „ХКП КОНСАЛТИНГ” д.о.о. БАЊА ЛУКА НАДЗОР ВОДА 2 22,231.04
386 ХКПЦ-ДО-1231/24 X ПРИВРЕМЕНА СИТУАЦИЈА 9/19/2024 „ХКП КОНСАЛТИНГ” д.о.о. БАЊА ЛУКА НАДЗОР ВОДА 2 16,247.08
387 327/24 ОКОНЧАНА СИТУАЦИЈА 9/19/2024  „ГРАЂЕЊЕ ЂУРИЋ” д.о.о. ХИТНЕ ИНТЕРВЕНЦИЈЕ НА ОБЈЕКТИМА ЗА ОДВОДЊУ 38,855.70
388 14/24 ОКОНЧАНА СИТУАЦИЈА 8/31/2024 „САНА ТЕХНИКА” д.о.о. ОКОНЧАНА СИТУАЦИЈА БРОЈ 6/24 ОД 29. 03. 2024. 55,525.64
389 81-2374/2024 9/19/2024 ГЛАС СРПСКЕ БАЊА ЛУКА ПЛАЋАЊЕ ОБАВЈЕШТЕЊА О ОДРЖАВАЊУ ЈАВНЕ РАСПРАВЕ О НАЦРТУ ИЗМЈЕНЕ ДИЈЕЛА РЕГ. ПЛАНА „ЈУГ 3” 333.45
390 425/2024 9/13/2024 НОТАР ЈАНА РОДИЋ УСЛУГА ОБРАДЕ НОТАРСКОГ УГОВОРА ОПУ 508/2024 35.10
391 424/2024 9/13/2024 НОТАР ЈАНА РОДИЋ УСЛУГА ОБРАДЕ НОТАРСКОГ УГОВОРА ОПУ 508/2024 346.32
392 24-3600-001322 9/3/2024 ИНСТИТУТ ЗА ЗАШТИТУ И ЕКОЛОГИЈУ РС МЈЕРЕЊЕ АЕРОЗАГАЂЕЊА И БУКЕ 1,520.30
393 24-3600-001195 8/2/2024 ИНСТИТУТ ЗА ЗАШТИТУ И ЕКОЛОГИЈУ РС МЈЕРЕЊЕ АЕРОЗАГАЂЕЊА И БУКЕ 1,520.30
394 24-3600-001189 8/2/2024 ИНСТИТУТ ЗА ЗАШТИТУ И ЕКОЛОГИЈУ РС МЈЕРЕЊЕ АЕРОЗАГАЂЕЊА И БУКЕ 1,516.04
395 24-3600-001321 9/3/2024 ИНСТИТУТ ЗА ЗАШТИТУ И ЕКОЛОГИЈУ РС МЈЕРЕЊЕ АЕРОЗАГАЂЕЊА И БУКЕ 1,520.30
396 1-Р-2239/24 9/18/2024 „ВОДОВОД” а.д. БАЊА ЛУКА ПРИКЉУЧАК ШУМАРИ 2,012.14
397 1-Р-2241/24 9/18/2024 „ВОДОВОД” а.д. БАЊА ЛУКА ПРИКЉУЧАК ЈАГАРЕ 344.85
398 9000305517 9/20/2024  „ЕЛЕКТРОКРАЈИНА“ а.д. БАЊА ЛУКА ЈАВНА РАСВЈЕТА ТАКСА ЕЕ САГЛАСНОСТ 1,898.11
399 9000305513 9/20/2024  „ЕЛЕКТРОКРАЈИНА“ а.д. БАЊА ЛУКА ЈАВНА РАСВЈЕТА ТАКСА ЕЕ САГЛАСНОСТ 45.63
400 9000305512 9/20/2024  „ЕЛЕКТРОКРАЈИНА“ а.д. БАЊА ЛУКА ЈАВНА РАСВЈЕТА ТАКСА ЕЕ САГЛАСНОСТ 589.05
401 9000305511 9/20/2024  „ЕЛЕКТРОКРАЈИНА“ а.д. БАЊА ЛУКА ЈАВНА РАСВЈЕТА ТАКСА ЕЕ САГЛАСНОСТ 45.63
402 9000305510 9/20/2024  „ЕЛЕКТРОКРАЈИНА“ а.д. БАЊА ЛУКА ЈАВНА РАСВЈЕТА ТАКСА ЕЕ САГЛАСНОСТ 589.05
403 9000305509 9/20/2024  „ЕЛЕКТРОКРАЈИНА“ а.д. БАЊА ЛУКА ЈАВНА РАСВЈЕТА ТАКСА ЕЕ САГЛАСНОСТ 45.63
404 9000305508 9/20/2024  „ЕЛЕКТРОКРАЈИНА“ а.д. БАЊА ЛУКА ЈАВНА РАСВЈЕТА ТАКСА ЕЕ САГЛАСНОСТ 704.67
405 9000305507 9/20/2024  „ЕЛЕКТРОКРАЈИНА“ а.д. БАЊА ЛУКА ЈАВНА РАСВЈЕТА ТАКСА ЕЕ САГЛАСНОСТ 45.63
406 9000305506 9/20/2024  „ЕЛЕКТРОКРАЈИНА“ а.д. БАЊА ЛУКА ЈАВНА РАСВЈЕТА ТАКСА ЕЕ САГЛАСНОСТ 589.05
407 9000305505 9/20/2024  „ЕЛЕКТРОКРАЈИНА“ а.д. БАЊА ЛУКА ЈАВНА РАСВЈЕТА ТАКСА ЕЕ САГЛАСНОСТ 45.63
408 9000305504 9/20/2024  „ЕЛЕКТРОКРАЈИНА“ а.д. БАЊА ЛУКА ЈАВНА РАСВЈЕТА ТАКСА ЕЕ САГЛАСНОСТ 589.05
409 9000305503 9/20/2024  „ЕЛЕКТРОКРАЈИНА“ а.д. БАЊА ЛУКА ЈАВНА РАСВЈЕТА ТАКСА ЕЕ САГЛАСНОСТ 45.63
410 9000305502 9/20/2024  „ЕЛЕКТРОКРАЈИНА“ а.д. БАЊА ЛУКА ЈАВНА РАСВЈЕТА ТАКСА ЕЕ САГЛАСНОСТ 589.05
411 9000305501 9/20/2024  „ЕЛЕКТРОКРАЈИНА“ а.д. БАЊА ЛУКА ЈАВНА РАСВЈЕТА ТАКСА ЕЕ САГЛАСНОСТ 45.63
412 9000305500 9/20/2024  „ЕЛЕКТРОКРАЈИНА“ а.д. БАЊА ЛУКА ЈАВНА РАСВЈЕТА ТАКСА ЕЕ САГЛАСНОСТ 704.67
413 9000305499 9/20/2024  „ЕЛЕКТРОКРАЈИНА“ а.д. БАЊА ЛУКА ЈАВНА РАСВЈЕТА ТАКСА ЕЕ САГЛАСНОСТ 45.63
414 9000305497 9/20/2024  „ЕЛЕКТРОКРАЈИНА“ а.д. БАЊА ЛУКА ЈАВНА РАСВЈЕТА ТАКСА ЕЕ САГЛАСНОСТ 589.05
415 9000305496 9/20/2024  „ЕЛЕКТРОКРАЈИНА“ а.д. БАЊА ЛУКА ЈАВНА РАСВЈЕТА ТАКСА ЕЕ САГЛАСНОСТ 45.63
416 9000305493 9/20/2024  „ЕЛЕКТРОКРАЈИНА“ а.д. БАЊА ЛУКА ЈАВНА РАСВЈЕТА ТАКСА ЕЕ САГЛАСНОСТ 45.63
417 9000305495 9/20/2024  „ЕЛЕКТРОКРАЈИНА“ а.д. БАЊА ЛУКА ЈАВНА РАСВЈЕТА ТАКСА ЕЕ САГЛАСНОСТ 704.67
418 УСЛ-00180-1-24 9/23/2024 „РУТИНГ” д.о.о. БАЊА ЛУКА РАЧУН БРОЈ УСЛ-00180-1-24 ОД 23. 09. 2024. 7,020.00
419 1-р-2240/24 9/18/2024 „ВОДОВОД” а.д. БАЊА ЛУКА ПРИКЉУЧЕЊЕ НОВОИЗГРАЂЕНОГ ЦЈЕВОВОДА У УЛИЦИ ПЕТРА ВЕЛИКОГ 8,310.55
420 УСЛ-00181-1-24 9/23/2024 „РУТИНГ” д.о.о. БАЊА ЛУКА ФАКТУРА БРОЈ УСЛ-00181-1-24 ОД 23. 09. 2024. 7,020.00
421 1-р-2238/2024 9/18/2024 „ВОДОВОД” а.д. БАЊА ЛУКА ПРИКЉУЧЕЊЕ НОВОИЗГРАЂЕНОГ ЦЈЕВОВОДА НА НОВИ У УЛИЦИ ПЕТРА ВЕЛИКОГ 5,945.53
422 945749-2024-08 8/31/2024 „ВОДОВОД” а.д. БАЊА ЛУКА ВОДА 08/2024 1.40
423 945749-2024-08 8/31/2024 „ВОДОВОД” а.д. БАЊА ЛУКА ВОДА 08/2024 1,117.39
424 фу-118-0/24 9/20/2024 „ЦЕНТРОНИКС” д.о.о. БАЊА ЛУКА ПРОВЈЕРА ИСПРАВНОСТИ РАДИО СТАНИЦА 278.46
425 24-3400-000163 9/13/2024 АУТО-СЕРВИС „ЖУЛЕ” БАЊА ЛУКА СЕРВИС ВОЗИЛА М63-Ј-511 234.00
426 24-ф520-000385 9/25/2024 ЗАВОД ЗА УЏБЕНИКЕ И НАСТАВНА СРЕДСТВА РЕПУБЛИКЕ СРПСКЕ САРАЈЕВО НАБАВКА УЏБЕНИКА ЗА УЧЕНИКЕ ОСНОВНИХ ШКОЛА 1,688,159.00
427 167/2024 9/24/2024 СЗР „ДИЈАМАНТ” БАЊА ЛУКА СТАКЛАРСКЕ УСЛУГЕ 80.65
428 00624-2024 9/22/2024 ХОТЕЛ „ПАЛАС” БАЊА ЛУКА ОБАВЈЕШТЕЊЕ:320-9-2-3-22-121/24 296.00
429 107 9/14/2024 „УНИКО“ ВЛ. РАДУКИЋ СТАНИЈА с.п. ПАРАСТОС ПОГИНУЛИМ БОРЦИМА ДРУГЕ КРАЈИШКЕ БРИГАДЕ ГРАДА БАЊЕ ЛУКЕ И ПОГИНУЛИМ БОРЦИМА 16. БРИГАДЕ ВРС ГРАДА БАЊЕ ЛУКЕ 100.00
430 усл-00259-1-24 9/25/2024 ЦЕНТАР ЗА ПРОЈЕКТОВАЊЕ И КОНСАЛТИНГ „ЦПК” ПРОЦЈЕНА ТРЖИШНЕ ВРИЈЕДНОСТИ ГРАЂЕВИНСКИХ ПАРЦЕЛА У ПОСЛОВНОЈ ЗОНИ РАМИЋИ - БАЊА ЛУКА И ТО К. Ч. 1283/32 И К. Ч. 1283/33 К. О. РАМИЋИ 1,696.50
431 104/2024 9/30/2024 „НТВ” д.о.о. ЗАКУП АНТЕНСКИХ СТУБОВА ЗА РЕПЕТИТОР НА ШИБОВИМА 1,439.10
432 974 9/27/2024 „ГРАФОТЕКС” д.о.о. БАЊА ЛУКА ИЗРАДА ПЕЧАТА 26.07
433 109-иx/24 9/24/2024 „ФАБРУМ СОЛУТИОНС” д.о.о. РАЧУН БРОЈ 109-ИX/24 ОД 24. 09. 2024. 5,826.60
434 окончана ситуација 37/2024 9/16/2024 „КОТО” д.о.о. БАЊА ЛУКА РЕКОНСТРУКЦИЈА ДВОГЛАВОГ ОРЛА 6,037.20
435 30401000456254 9/27/2024 „ЦЕНТРУМ ТРАДЕ” д.о.о. БАЊА ЛУКА НАБАВКА ВОДОМАТЕРИЈАЛА И САНИТАРИЈА -ЛОТ 3 135.00
436 30401000455757 9/26/2024 „ЦЕНТРУМ ТРАДЕ” д.о.о. БАЊА ЛУКА ЦЕНТРУМ 105.30
437 40986/24-ЈН 9/24/2024  ЈП НИО „СЛУЖБЕНИ ЛИСТ“ БИХ ПЛАЋАЊЕ ОБАВЈЕШТЕЊА О ЈАВНОЈ НАБАВЦИ 98.00
438 145724-375 9/27/2024 ЕУРО ЗНАК ПРВА ПРИВРЕМЕНА СИТУАЦИЈА БРОЈ 001/24 ОД 27. 09. 2024. И РН БР. 145724-375 49,104.78
439 947752-2024-08 8/31/2024 „ВОДОВОД” а.д. БАЊА ЛУКА ВОДА 08/24 11.70
440 947752-2024-08 8/31/2024 „ВОДОВОД” а.д. БАЊА ЛУКА ВОДА 08/2024 1.40
441 996 9/30/2024 КАБ ОМЛАДИНСКА ЗАДРУГА БАЊА ЛУКА ПОВРЕМЕНИ ПОСЛОВИ 544.09
442 9/1/2024 9/30/2024 ЗАЈЕДНИЦА ЕТАЖНИХ ВЛАСНИКА КРАЉА АЛФОНСА XИИИ БР. 31 БАЊА ЛУКА ЗЕВ 09/24 41.80
443 8/1/2024 9/30/2024 ЗАЈЕДНИЦА ЕТАЖНИХ ВЛАСНИКА КРАЉА АЛФОНСА XИИИ БР. 31 БАЊА ЛУКА ЗЕВ 08/2024 41.80
444 1-0007/2024 9/26/2024 „АМ ГЕОСОЛУТИОНС” ОДРЖАВАЊЕ ГИС СИСТЕМА -ЈЕДНОГОДИШЊИ ПЕРИОД (УГОВОР ИЗ 2023. ГОДИНЕ) 1,170.00
445 2667/2024 9/30/2024 ЦЕНТРАЛНИ РЕГИСТАР ХАРТИЈА ОД ВРИЈЕДНОСТИ а.д. ВОЂЕЊЕ РЕГИСТРА ДУГОВАЊА ДУЖНИКА ХАРТИЈА ОД ВРИЈЕДНОСТИ ПРЕКО 5.000,000 КМ 250.00
446 345/24 9/26/2024 „ПЛАН” д.о.о. РЕВИЗИЈА ПРОЈЕКТНЕ ДОКУМЕНТАЦИЈЕ 243.57
447 ИФ-00655-1-24 9/30/2024 СЕРВИС РОГИЋ ВУЛКАНИЗЕРСКЕ УСЛУГЕ 30.00
448 1418 9/25/2024 ЦЕНТАР ЗА ПРОФЕСИОНАЛНУ РЕХАБИЛИТАЦИЈУ И ЗАПОШЉАВАЊЕ ИНВАЛИДА а.д. БАЊА ЛУКА КАНЦЕЛАРИЈСКИ МАТЕРИЈАЛ 403.65
449 ИФ-01038-1-24 9/19/2024 „ДРАГИЧЕВИЋ” д.о.о. БАЊА ЛУКА СЕРВИС УГОВОР: 11-Г-5760/23 925.12
450 ИФ-01046-1-24 9/24/2024 „ДРАГИЧЕВИЋ” д.о.о. БАЊА ЛУКА ПАПИР РОЛЕР 77.22
451 ИФ-01101-1-24 10/1/2024 „ДРАГИЧЕВИЋ” д.о.о. БАЊА ЛУКА СWИТЦХ 8-ПОРТ (5 КОМАДА) 496.08
452 ИФ-01024-1-24 9/18/2024 „ДРАГИЧЕВИЋ” д.о.о. БАЊА ЛУКА БУБАЊ ЗАМЈЕНСКИ 161.46
453 ИФ-03737-1-24 9/27/2024 „ГЕРМАНY ШРАФ” д.о.о. РАЧУН ЗА НАБАВКУ ПОТРОШНОГ МАТЕРИЈАЛА ЗА ТЕХНИЧКО ОБЕЗБЈЕЂЕЊЕ ГРАДСКЕ ИМОВИНЕ 573.39
454 ПРИВРЕМЕНА СИТУАЦИЈА 8/24 10/1/2024 „ЕКО ВОКС” д.о.о. БАЊА ЛУКА ОДРЖАВАЊЕ ТОАЛЕТ КАБИНА 9,360.00
455 96/24 9/30/2024 „ЕКО ЕУРО ТИМ” д.о.о. БАЊА ЛУКА ОКОНЧАНА СИТУАЦИЈА БРОЈ 96/24 ОД 30.09.2024 61,136.48
456 89/24 9/30/2024 „МКР КРЕМЕНОВИЋ” д.о.о. БАЊА ЛУКА ОКОНЧАНА СИТУАЦИЈА 38,645.10
457 2-7949/2024 9/30/2024 „СУПЕР ПЕТРОЛ” д.о.о. БАЊА ЛУКА НАБАВКА ГОРИВА 28.01
458 2-7689/2024 9/30/2024 „СУПЕР ПЕТРОЛ” д.о.о. БАЊА ЛУКА НАБАВКА ГОРИВА 5,995.33
459 98/24 9/30/2024 „ЕКО ЕУРО ТИМ” д.о.о. БАЊА ЛУКА УСЛУГА ДОСТАВЕ ПИТКЕ ВОДЕ 4,853.16
460 52/2024 10/2/2024 „ТАМАРИС КОМПАНИ” д.о.о. БАЊА ЛУКА ОДРЖАВАЊЕ ЗЕЛЕНИХ ПОВРШИНА 192,631.65
461 1/24/5853 9/27/2024 „ЛАНАКО” БАЊА ЛУКА РАЧУН БРОЈ 1-5853/24 ОД 27 .09. 2024. ЗА СЕПТЕМБАР 2024. 582.66
462 КО 0003/24 9/23/2024  „ЛУКАЈИЋ-ТРАВЕЛ&ТРАНСПОРТ АГЕНЦY” КЊИЖНО ОДОБРЕЊЕ БРОЈ 0003/24 -30.00
463 ИФ-04114-01-24 10/1/2024 „ПРИМАПРОМ” д.о.о. БАЊА ЛУКА КОРИЧЕЊЕ КЊИГА 20.17
464 89/24 9/30/2024 ЗЕВ БРОНЗАНИ МАЈДАН ББ ЗЕВ 09/2024 38.06
465 24-339-001157 8/8/2024  „АУТОЦЕНТАР МЕРКУР” д.о.о. БАЊА ЛУКА НАБАВКА, МОНТАЖА И БАЛАНС ГУМА К65-М-313 1,287.00
466 24-301-000696 8/8/2024  „АУТОЦЕНТАР МЕРКУР” д.о.о. БАЊА ЛУКА НАБАВКА, МОНТАЖА И БАЛАНС ГУМА 3,666.78
467 24-301-000415 4/30/2024  „АУТОЦЕНТАР МЕРКУР” д.о.о. БАЊА ЛУКА НАБАВКА МОНТАЖА И БАЛАНС ГУМА Ј37-Е-259 1,029.60
468 24-360-001230 9/30/2024 „ИТИНЕРИС” д.о.о. УСЛУГА ОДРЖАВАЊА ПРОГРАМА ЗА КЊИГУ УЛАЗНИХ ФАКТУРА - КУФ (7/10) 421.20
469 1/24/5993 9/30/2024 „ЛАНАКО” БАЊА ЛУКА ОДРЖАВАЊЕ СОФТВЕРА ЗА КАДРОВСКУ ЕВИДЕНЦИЈУ И ОБРАЧУН ЗАРАДА ЗА СЕПТЕМБАР 2024. 2,691.00
470 1/24/5883 9/27/2024 „ЛАНАКО” БАЊА ЛУКА ОДРЖАВАЊЕ АПЛИКАЦИЈЕ „ШИХТЕРИЦА” ЗА СЕПТЕМБАР 2024. 418.86
471 1/24/5961 9/30/2024 „ЛАНАКО” БАЊА ЛУКА МИГРАЦИЈА ИНФРАСТРУКТУРЕ НА ДАТА ЦЕНТАР ЕКСТЕРНОГ ПАРТНЕРА ЗА СЕПТЕМБАР 2024. 14,625.00
472 1/24/5894 9/27/2024 „ЛАНАКО” БАЊА ЛУКА КОНТРОЛА ИНТЕРНЕТ САОБРАЋАЈА ЗА СЕПТЕМБАР 2024. 585.00
473 013/00088 7/10/2024 „ТЕВЕ ВАРНОСТ ЕЛЕКТРОНИКА” д.о.о. КОМПРЕСОР ЗА ПУЊЕЊЕ БОЦА КОМПРИМИРАНИМ ВАЗДУХОМ 64,350.00
474 90/24 9/30/2024 ЗЕВ БРОНЗАНИ МАЈДАН ББ РАЧУН ЗА ИX 2024. ЗА ПОСЛОВНИ ПРОСТОР 50.40
475 92/2024 9/30/2024 АДА с.п. ПРАЊЕ ВОЗИЛА 445.50
476 2024-В001-53-000021 9/30/2024 ЈУ МУЗЕЈ САВРЕМЕНЕ УМЈЕТНОСТИ РС ИЗНАЈМЉИВАЊЕ ПРОСТОРА ЗА ОДРЖАВАЊЕ ВЈЕНЧАЊА ЗА СЕПТЕМБАР 7,605.00
477 0131/24 10/3/2024 „ИВЕКО” д.о.о. ОДРЖАВАЊЕ ВОЗИЛА 3,387.55
478 80-492/2024 9/26/2024 ДНЕВНЕ НЕЗАВИСНЕ НОВИНЕ БАЊА ЛУКА ПЛАКАТ ИЗБОРИ / ГРАД БАЊАЛУКА 570.38
479 10-39 9/30/2024 „ХИДРО-СПЛЕТ” д.о.о. ЛАКТАШИ 2. ПРИВРЕМЕНА СИТУАЦИЈА ИЗГРАДЊА ВОДОВОДНЕ МРЕЖЕ ЗА НАСЕЉЕ ДУЦИПОЉЕ 79,271.01
480 8006623-10/24 10/3/2024 „АУРА ОСИГУРАЊЕ” а.д. БАЊА ЛУКА ОСИГУРАЊЕ 48.00
481 8006624-10 10/3/2024 „АУРА ОСИГУРАЊЕ” а.д. БАЊА ЛУКА ОСИГУРАЊЕ 65.00
482 8006622-10/24 10/3/2024 „АУРА ОСИГУРАЊЕ” а.д. БАЊА ЛУКА ОСИГУРАЊЕ 3,188.00
483 1004121-10/24 10/1/2024 „АУРА ОСИГУРАЊЕ” а.д. БАЊА ЛУКА ОСИГУРАЊЕ НЕЗГОДА 1,352.00
484 44-10/2024 10/1/2024 „МЕГА ЦОМПУТЕР ЕНГИНЕЕРИНГ” д.о.о. УСЛУГА НАДОГРАДЊЕ СОФТВЕРА ЗА ПИСАРНИЦУ И ПРИПАДАЈУЋИХ МОДУЛА 58,266.01
485 11 10/3/2024 ЗЕВ СРПСКА 22 РАЧУН ЗА В И ВИ 2024. ЗА П. П. БР. 207 66.00
486 7-24 4/24/2024 „ЕВЕНТ РЕНТАЛС ” ГРБИЋ СЛАВЕН с.п.  НАЈАМ ОПРЕМЕ 500.00
487 179/24 10/3/2024 „АЛДЕМО ТУРС” д.о.о. ПРУЖАЊЕ УСЛУГЕ ПРЕВОЗА ТУРИСТИЧКИМ ВОЗИЛОМ НА БАЊ БРДО 3,242.07
488 110-иx/24 9/24/2024 „ФАБРУМ СОЛУТИОНС” д.о.о. РАЧУН БРОЈ 110-ИX/24 ОД 24. 09. 2024. 575.02
489 114-иx/24 10/4/2024 „ФАБРУМ СОЛУТИОНС” д.о.о. СТРУЧНИ НАДЗОР НАД ИЗВОЂАЧЕМ РАДОВА НА ИЗГРАДЊИ МОСТА 7,020.00
490 089/24 10/1/2024 СЗР АУТОТЕХНИКА ЛАКИРЕРСКИ РАДОВИ 292.50
491 24-3000-000360 9/21/2024 „ЕЛТИНГ НН” д.о.о. РАЧУН ЗА БРОЈИЛО У П. П. БР. 110 У Б. В. Ж. МИШИЋА БР. 43 414.67
492 24-3600-000044 9/21/2024 „ЕЛТИНГ НН” д.о.о. УСЛУГА ИЗРАДЕ ЕЛЕКТРОИНСТАЛАЦИЈА У П. П. БР. 102 У Б. В. Ж. МИШИЋА БР. 43 337.40
493 70-4022/2024 10/1/2024 ДНЕВНЕ НЕЗАВИСНЕ НОВИНЕ БАЊА ЛУКА ПЛАЋАЊЕ ДРУГОГ ОБАВЈЕШТЕЊА ДА ЈЕ НАЦРТ ИЗМЈЕНЕ ДИЈЕЛА РЕГ. ПЛАНА „ОБИЛИЋЕВО” ИЗЛОЖЕН НА ЈАВНИ УВИД 163.80
494 42378/24-ЈН 10/1/2024  ЈП НИО „СЛУЖБЕНИ ЛИСТ“ БИХ ОБЈАВА У СЛУЖБЕНОМ ЛИСТУ БИХ ЗА ЈАНАБ НАБАВКА ИЗРАДА ПРОЈЕКТНЕ ДОКУМЕНТАЦИЈ ЗА УЛ. ЈАСМИРА МАЛЧИЋА И АНКЕ ДРАКУЛИЋ 98.00
495 01/2400768320 9/30/2024 „ЧИСТОЋА” а.д. БАЊА ЛУКА ЧИСТОЋА 09/24 696.40
496 01/2400768346 9/30/2024 „ЧИСТОЋА” а.д. БАЊА ЛУКА ЧИСТОЋА 09/24 1,569.65
497 454/24 8/31/2024 ЗЕВ КРАЉА ПЕТРА И КАРАЂОРЂЕВИЋА 113 И 115 ЗЕВ 08/2024 45.30
498 ИФК24-005134 10/1/2024 „ЦЕНТРУМ ТРАДЕ” д.о.о. БАЊА ЛУКА НАБАВКА ВОДОМАТЕРИЈАЛА И САНИТАРИЈА -ЛОТ 3 39.23
499 310/24 8/31/2024 ЗЕВ КЊАЗА МИЛОША 31 ЗЕВ 08/2024 28.85
500 01/2400768614 9/30/2024 „ЧИСТОЋА” а.д. БАЊА ЛУКА ЧИСТОЋА 09/24 1,342.97
501 29/24 9/30/2024 „ВИП ЕЛЕКТРО” БАЊА ЛУКА ОДРЖАВАЊЕ ЈАВНИХ САТОВА 907.92
502 100/24 9/30/2024 „ЕКО ЕУРО ТИМ” д.о.о. БАЊА ЛУКА УКЛАЊАЊЕ МИЈЕШАНОГ ОТПАДА 101,907.33
503 01/2400770170 9/30/2024 „ЧИСТОЋА” а.д. БАЊА ЛУКА РАЧУН ЗА ИX 2024. ЗА СТАКЛЕНАЦ - СПРАТ 46.84
504 453/24 8/31/2024 ЗЕВ КРАЉА ПЕТРА И КАРАЂОРЂЕВИЋА 113 И 115 РАЧУН ЗА ВИИИ 2024. ЗА П. П. БР. 1 10.80
505 507/24 8/31/2024 ЗЕВ ПАЛИХ БОРАЦА 11 РАЧУН ЗА ВИИИ 2024. ЗА СТАН БР. 10 14.00
506 501/24 8/31/2024 ЗЕВ ПАЛИХ БОРАЦА 11 РАЧУН ЗА ВИИИ 2024. ЗА СТАН БР. 4 16.40
507 506/24 8/31/2024 ЗЕВ ПАЛИХ БОРАЦА 11 РАЧУН ЗА ВИИИ 2024. ЗА СТАН БР. 9 16.00
508 522/24 8/31/2024 ЗЕВ ПАЛИХ БОРАЦА 11 РАЧУН ЗА ВИИИ 2024. ЗА СТАН БР. 25 16.00
509 565/2024 8/31/2024 ЗЕВ ПАЛИХ БОРАЦА 11 РАЧУН ЗА ВИИИ 2024. ЗА СТАН БР. 68 16.00
510 946653-2024-09 9/30/2024 „ВОДОВОД” а.д. БАЊА ЛУКА РАЧУН ЗА ИX 2024. ЗА П. П. БР. 34 У УЛ. К. П. И КАРАЂОРЂЕВИЋА БР. 87 5.85
511 12881-2024-09 9/30/2024 „ВОДОВОД” а.д. БАЊА ЛУКА РАЧУН ЗА ИX 2024. ЗА СТАМБЕНУ ЗГРАДУ 3 - ХИДРАНТ У УЛ. XИИ КУЉАНСКА БР. 61 35.10
512 35462-2024-09 9/30/2024 „ВОДОВОД” а.д. БАЊА ЛУКА РАЧУН ЗА ИX 2024. ЗА СТАМБ. ЗГРАДУ 1 У УЛ. XИИ КУЉАНСКА БР. 65 0.21
513 1835462-2024-09 9/30/2024 „ВОДОВОД” а.д. БАЊА ЛУКА РАЧУН ЗА ИX 2024. ЗА ЗЕВ ЧИСТАЧИЦА У УЛ. XИИ КУЉАНСКА БР. 65 5.59
514 2135559-2024-09 9/30/2024 „ВОДОВОД” а.д. БАЊА ЛУКА РАЧУН ЗА ИX 2024. ЗА СТАМБЕНУ ЗГРАДУ - ПОМОЋНЕ ПРОСТОРИЈЕ У УЛ. ПАЛИХ БОРАЦА БР. 37 А 7.91
515 24-3600-001478 10/8/2024 ИНСТИТУТ ЗА ЗАШТИТУ И ЕКОЛОГИЈУ РС МЈЕРЕЊЕ КВАЛИТЕТА ВАЗДУХА 2,105.30
516 24-3600-001477 10/8/2024 ИНСТИТУТ ЗА ЗАШТИТУ И ЕКОЛОГИЈУ РС МЈЕРЕЊЕ КВАЛИТЕТА ВАЗДУХА 2,105.30
517 24-3600-001476 10/8/2024 ИНСТИТУТ ЗА ЗАШТИТУ И ЕКОЛОГИЈУ РС МЈЕРЕЊЕ КВАЛИТЕТЕ ВАЗДУХА 2,101.04
518 БЛ706/24 9/30/2024 ЈЗУ ЗАВОД ЗА МЕДИЦИНУ РАДА И СПОРТА РС СИСТЕМАТСКИ ПРЕГЛЕД СПОРТИСТА СА ЛАБОРАТОРИЈОМ 100.00
519 БЛ707/24 9/30/2024 ЈЗУ ЗАВОД ЗА МЕДИЦИНУ РАДА И СПОРТА РС СИСТЕМАТСКИ ПРЕГЛЕД СПОРТИСТА СА ЛАБОРАТОРИЈОМ 300.00
520 БЛ708/24 9/30/2024 ЈЗУ ЗАВОД ЗА МЕДИЦИНУ РАДА И СПОРТА РС СИСТЕМАТСКИ ПРЕГЛЕД СПОРТИСТА СА ЛАБОРАТОРИЈОМ 250.00
521 БЛ709/24 9/30/2024 ЈЗУ ЗАВОД ЗА МЕДИЦИНУ РАДА И СПОРТА РС СИСТЕМАТСКИ ПРЕГЛЕД СПОРТИСТА СА ЛАБОРАТОРИЈОМ 300.00
522 БЛ710/24 9/30/2024 ЈЗУ ЗАВОД ЗА МЕДИЦИНУ РАДА И СПОРТА РС СИСТЕМАТСКИ ПРЕГЛЕД СПОРТИСТА СА ЛАБОРАТОРИЈОМ 200.00
523 БЛ711/24 9/30/2024 ЈЗУ ЗАВОД ЗА МЕДИЦИНУ РАДА И СПОРТА РС СИСТЕМАТСКИ ПРЕГЛЕД СПОРТИСТА СА ЛАБОРАТОРИЈОМ 250.00
524 БЛ713/24 9/30/2024 ЈЗУ ЗАВОД ЗА МЕДИЦИНУ РАДА И СПОРТА РС СИСТЕМАТСКИ ПРЕГЛЕД СПОРТИСТА СА ЛАБОРАТОРИЈОМ 250.00
525 БЛ715/24 9/30/2024 ЈЗУ ЗАВОД ЗА МЕДИЦИНУ РАДА И СПОРТА РС СИСТЕМАТСКИ ПРЕГЛЕД СПОРТИСТА СА ЛАБОРАТОРИЈОМ 50.00
526 БЛ716/24 9/30/2024 ЈЗУ ЗАВОД ЗА МЕДИЦИНУ РАДА И СПОРТА РС СИСТЕМАТСКИ ПРЕГЛЕД СПОРТИСТА СА ЛАБОРАТОРИЈОМ 200.00
527 БЛ717/24 9/30/2024 ЈЗУ ЗАВОД ЗА МЕДИЦИНУ РАДА И СПОРТА РС СИСТЕМАТСКИ ПРЕГЛЕД СПОРТИСТА СА ЛАБОРАТОРИЈОМ 550.00
528 БЛ718/24 9/30/2024 ЈЗУ ЗАВОД ЗА МЕДИЦИНУ РАДА И СПОРТА РС СИСТЕМАТСКИ ПРЕГЛЕД СПОРТИСТА СА ЛАБОРАТОРИЈОМ 200.00
529 БЛ719/24 9/30/2024 ЈЗУ ЗАВОД ЗА МЕДИЦИНУ РАДА И СПОРТА РС СИСТЕМАТСКИ ПРЕГЛЕД СПОРТИСТА СА ЛАБОРАТОРИЈОМ 300.00
530 БЛ721/24 9/30/2024 ЈЗУ ЗАВОД ЗА МЕДИЦИНУ РАДА И СПОРТА РС СИСТЕМАТСКИ ПРЕГЛЕД СПОРТИСТА СА ЛАБОРАТОРИЈОМ 50.00
531 БЛ722/24 9/30/2024 ЈЗУ ЗАВОД ЗА МЕДИЦИНУ РАДА И СПОРТА РС СИСТЕМАТСКИ ПРЕГЛЕД СПОРТИСТА СА ЛАБОРАТОРИЈОМ 150.00
532 БЛ723/24 9/30/2024 ЈЗУ ЗАВОД ЗА МЕДИЦИНУ РАДА И СПОРТА РС СИСТЕМАТСКИ ПРЕГЛЕД СПОРТИСТА СА ЛАБОРАТОРИЈОМ 300.00
533 БЛ724/24 9/30/2024 ЈЗУ ЗАВОД ЗА МЕДИЦИНУ РАДА И СПОРТА РС СИСТЕМАТСКИ ПРЕГЛЕД СПОРТИСТА СА ЛАБОРАТОРИЈОМ 50.00
534 БЛ725/24 9/30/2024 ЈЗУ ЗАВОД ЗА МЕДИЦИНУ РАДА И СПОРТА РС СИСТЕМАТСКИ ПРЕГЛЕД СПОРТИСТА СА ЛАБОРАТОРИЈОМ 850.00
535 БЛ726/24 9/30/2024 ЈЗУ ЗАВОД ЗА МЕДИЦИНУ РАДА И СПОРТА РС СИСТЕМАТСКИ ПРЕГЛЕД СПОРТИСТА СА ЛАБОРАТОРИЈОМ 650.00
536 БЛ727/24 9/30/2024 ЈЗУ ЗАВОД ЗА МЕДИЦИНУ РАДА И СПОРТА РС СИСТЕМАТСКИ ПРЕГЛЕД СПОРТИСТА СА ЛАБОРАТОРИЈОМ 200.00
537 БЛ728/24 9/30/2024 ЈЗУ ЗАВОД ЗА МЕДИЦИНУ РАДА И СПОРТА РС СИСТЕМАТСКИ ПРЕГЛЕД СПОРТИСТА СА ЛАБОРАТОРИЈОМ 50.00
538 БЛ729/24 9/30/2024 ЈЗУ ЗАВОД ЗА МЕДИЦИНУ РАДА И СПОРТА РС СИСТЕМАТСКИ ПРЕГЛЕД СПОРТИСТА СА ЛАБОРАТОРИЈОМ 900.00
539 БЛ730/24 9/30/2024 ЈЗУ ЗАВОД ЗА МЕДИЦИНУ РАДА И СПОРТА РС СИСТЕМАТСКИ ПРЕГЛЕД СПОРТИСТА СА ЛАБОРАТОРИЈОМ 50.00
540 БЛ732/24 9/30/2024 ЈЗУ ЗАВОД ЗА МЕДИЦИНУ РАДА И СПОРТА РС СИСТЕМАТСКИ ПРЕГЛЕД СПОРТИСТА СА ЛАБОРАТОРИЈОМ 300.00
541 13680/24 9/30/2024  „ЛИБУСОФТ ЦИЦОМ” д.о.о. МЈЕСЕЧНО ОДРЖАВАЊЕ ЗА РЕГИСТРАЦИЈУ НЕКРЕТНИНА / МЈЕСЕЧНО ОДРЖАВАЊЕ ЗА ЗАКУПНИНЕ / МЈЕСЕЧНО ОДРЖАВАЊЕ ЗА ОСНОВНА СРЕДСТВА ЗА СЕПТЕМБАР 2024. 2,398.50
542 У24-0437 9/30/2024 „ТЕЛЕГРУП” д.о.о. БАЊА ЛУКА ОДРЖАВАЊЕ МРЕЖНЕ ОПРЕМЕ ЗА СЕПТЕМБАР 2024. ГОДИНЕ 778.80
543 ФР-002-3427/24 10/7/2024 ЈУ ВЕТЕРИНАРСКИ ИНСТИТУТ РЕПУБЛИКЕ СРПСКЕ „ДР ВАСО БУТОЗАН” БАЊА ЛУКА МИКРОБИОЛОШКО ИСПИТИВАЊЕ ХРАНЕ (3 И ВИШЕ ПАРАМЕТАРА ) 109.98
544 ВАС-09-24-СМС-375 9/30/2024 ХТ ЕРОНЕТ УГОВОР О ПРУЖАЊУ МПАРКИНГ УСЛУГЕ ПУТЕМ СМС-а 594.45
545 10/1/2024 10/5/2024 ЗЕВ БУЛЕВАР ВОЈВОДЕ ЖИВОЈИНА МИШИЋА 25 ЗЕВ 10/2024 36.40
546 67/24 10/1/2024 „ГЛОБАЛ ЛОГИСТИЦ” д.о.о. ОДРЖАВАЊЕ 2,632.50
547 280/2024 10/3/2024 „НИНАМЕДИЈА” д.о.о. ПРЕС КЛИПИНГ И БУЗ МОНИТОРИНГ 585.00
548 10/1/2023 10/3/2024 ЗЕВ КАЛЕМЕГДАНСКА 5 ЗЕВ 7,8,9/2024 118.80
549 хем-388/24 10/2/2024 „ПЕРФЕЦТ ЦЛЕАН” д.о.о. БАЊА ЛУКА ПРАЊЕ ДЕКА, ПЛАХТИ И ЈАСТУЧНИЦА И ДР. 972.63
550 ИФ-01117-1-24 10/3/2024 „ДРАГИЧЕВИЋ” д.о.о. БАЊА ЛУКА БУБАЊ ЗАМЈЕНСКИ 161.46
551 001-0307 окончана ситуација 10/7/2024 „АБЦ СОЛУТИОНС” д.о.о. БАЊА ЛУКА ОКОНЧАНА СИТАУЦИЈА БРОЈ 001-0307 ОД 07. 10. 2024. 39,651.30
552 373 9/30/2024 ВЕТЕРИНАРСКА СТАНИЦА а.д. ИЗДАВАЊЕ УВЈЕРЕЊА ВЕТЕРИНАРСКИХ 109.98
553 286/2024 9/30/2024 ЗЕВ АЛЕЈА СВЕТОГ САВЕ 20 РАЧУН ЗА ИX 2024. ЗА П. П. БР. 191 140.30
554 9795/1/93 окончана ситуација 9/30/2024 „МГ МИНД” д.о.о. МРКОЊИЋ ГРАД ОКОНЧАНА СИТУАЦИЈА БРОЈ 9795/1/93 ОД 30. 09. 2024. 50,547.25
555 941158-2024-09 9/30/2024 „ВОДОВОД” а.д. БАЊА ЛУКА ВОДА 09/2024 26.91
556 943913-2024-09 9/30/2024 „ВОДОВОД” а.д. БАЊА ЛУКА ВОДА 09/2024 0.00
557 943913-2024-09 9/30/2024 „ВОДОВОД” а.д. БАЊА ЛУКА ВОДА 09/2024 53.49
558 3271/24 И привремена ситуација 9/30/2024 „КОЗАРАПУТЕВИ” д.о.о. ПРВА ПРИВРЕМЕНА СИТУАЦИЈА БРОЈ 3271/24 ОД 30. 09. 2024. 69,124.94
559 941147-2024-09 9/30/2024 „ВОДОВОД” а.д. БАЊА ЛУКА ВОДА 09/2024 0.00
560 941147-2024-09 9/30/2024 „ВОДОВОД” а.д. БАЊА ЛУКА РАЧУН ЗА ИX 2024. ЗА СТАКЛЕНАЦ - СПРАТ 36.55
561 941147-2024-09 9/30/2024 „ВОДОВОД” а.д. БАЊА ЛУКА ВОДА 09/2024 9.49
562 941147-2024-09 9/30/2024 „ВОДОВОД” а.д. БАЊА ЛУКА ВОДА 09/2024 0.00
563 941147-2024-09 9/30/2024 „ВОДОВОД” а.д. БАЊА ЛУКА ВОДА 09/2024 0.00
564 941147-2024-09 9/30/2024 „ВОДОВОД” а.д. БАЊА ЛУКА ВОДА 09/2024 0.00
565 941147-2024-09 9/30/2024 „ВОДОВОД” а.д. БАЊА ЛУКА ВОДА 09/2024 4.33
566 941147-2024-09 9/30/2024 „ВОДОВОД” а.д. БАЊА ЛУКА ВОДА 09/2024 6.49
567 941147-2024-09 9/30/2024 „ВОДОВОД” а.д. БАЊА ЛУКА ВОДА 09/2024 11.70
568 941147-2024-09 9/30/2024 „ВОДОВОД” а.д. БАЊА ЛУКА ВОДА 09/2024 11.61
569 94147-2024-09 9/30/2024 „ВОДОВОД” а.д. БАЊА ЛУКА ВОДА 09/2024 0.00
570 941147-2024-09 9/30/2024 „ВОДОВОД” а.д. БАЊА ЛУКА ВОДА 09/2024 11.70
571 941147-2024-09 9/30/2024 „ВОДОВОД” а.д. БАЊА ЛУКА ВОДА 09/2024 1.40
572 941147-2024-09 9/30/2024 „ВОДОВОД” а.д. БАЊА ЛУКА ВОДА 09/2024 11.70
573 941147-2024-09 9/30/2024 „ВОДОВОД” а.д. БАЊА ЛУКА ВОДА 09/2024 18.30
574 941147-2024-09 9/30/2024 „ВОДОВОД” а.д. БАЊА ЛУКА ВОДА 09/2024 11.70
575 941147-2024-09 9/30/2024 „ВОДОВОД” а.д. БАЊА ЛУКА ВОДА 09/2024 24.36
576 941147-2024-09 9/30/2024 „ВОДОВОД” а.д. БАЊА ЛУКА ВОДА 09/2024 1.40
577 941147-2024-09 9/30/2024 „ВОДОВОД” а.д. БАЊА ЛУКА ВОДА 09/2024 9.51
578 941147-2024-09 9/30/2024 „ВОДОВОД” а.д. БАЊА ЛУКА ВОДА 09/2024 9.06
579 941147-2024-09 9/30/2024 „ВОДОВОД” а.д. БАЊА ЛУКА ВОДА 09/2024 11.70
580 941147-2024-09 9/30/2024 „ВОДОВОД” а.д. БАЊА ЛУКА ВОДА 09/2024 0.70
581 941147-2024-09 9/30/2024 „ВОДОВОД” а.д. БАЊА ЛУКА ВОДА 09/2024 102.83
582 941147-2024-09 9/30/2024 „ВОДОВОД” а.д. БАЊА ЛУКА ВОДА 09/2024 5.85
583 941147-2024-09 9/30/2024 „ВОДОВОД” а.д. БАЊА ЛУКА ВОДА 09/2024 8.35
584 941147-2024-09 9/30/2024 „ВОДОВОД” а.д. БАЊА ЛУКА ВОДА 09/2024 1.40
585 941147-2024-09 9/30/2024 „ВОДОВОД” а.д. БАЊА ЛУКА ВОДА 09/2024 11.70
586 941147-2024-09 9/30/2024 „ВОДОВОД” а.д. БАЊА ЛУКА ВОДА 09/2024 4.33
587 841147-2024-09 9/30/2024 „ВОДОВОД” а.д. БАЊА ЛУКА ВОДА 09/2024 5.84
588 1728/002/24 9/30/2024 „М:ТЕЛ” а.д. БАЊА ЛУКА ПРОВИЗИЈА ЗА ВАС СМС МПАРКИНГ ГРАД БАЊА ЛУКА 11,071.65
589 1161351-2024-09 9/30/2024 „ВОДОВОД” а.д. БАЊА ЛУКА УТРОШЕНА ВОДА СЕПТЕМБАР 2024. ГОДИНЕ 10.89
590 184553-4-0924-4101605 9/30/2024 МХ „ЕЛЕКТРОПРИВРЕДА РЕПУБЛИКЕ СРПСКЕ” НАПЛАТНА ПАРКИНГ КУЋИЦА ВИДОВДАНСКА 440.40
591 188729-4-0924-4101301 9/30/2024 МХ „ЕЛЕКТРОПРИВРЕДА РЕПУБЛИКЕ СРПСКЕ” НАПЛАТНА ПАРКИНГ КУЋИЦА АЛЕЈА СВ. САВЕ 676.74
592 99000206 9/30/2024 ХТ ЕРОНЕТ ОБРАЧУН ЗАТЕЗНЕ КАМАТЕ 16.10
593 941147-2024-09 9/30/2024 „ВОДОВОД” а.д. БАЊА ЛУКА ВОДА 09/2024 2.46
594 941147-2024-09 9/30/2024 „ВОДОВОД” а.д. БАЊА ЛУКА ВОДА 09/2024 16.79
595 941147-2024-09 9/30/2024 „ВОДОВОД” а.д. БАЊА ЛУКА ВОДА 09/2024 1.40
596 941147-2024-09 9/30/2024 „ВОДОВОД” а.д. БАЊА ЛУКА ВОДА 09/2024 130.85
597 941147-2024-09 9/30/2024 „ВОДОВОД” а.д. БАЊА ЛУКА ВОДА 09/2024 10.56
598 941147-2024-09 9/30/2024 „ВОДОВОД” а.д. БАЊА ЛУКА ВОДА 09/2024 6.49
599 941147-2024-09 9/30/2024 „ВОДОВОД” а.д. БАЊА ЛУКА ВОДА 09/2024 5.01
600 941147-2024-09 9/30/2024 „ВОДОВОД” а.д. БАЊА ЛУКА ВОДА 09/2024 8.15
601 941147-2024-09 9/30/2024 „ВОДОВОД” а.д. БАЊА ЛУКА ВОДА 09/2024 4.78
602 941147-2024-09 9/30/2024 „ВОДОВОД” а.д. БАЊА ЛУКА ВОДА 09/2024 11.55
603 941147-2024-09 9/30/2024 „ВОДОВОД” а.д. БАЊА ЛУКА ВОДА 09/2024 1.40
604 941147-2024-09 9/30/2024 „ВОДОВОД” а.д. БАЊА ЛУКА ВОДА 09/2024 1.40
605 941147-2024-09 9/30/2024 „ВОДОВОД” а.д. БАЊА ЛУКА ВОДА 09/2024 8.15
606 941147-2024-09 9/30/2024 „ВОДОВОД” а.д. БАЊА ЛУКА ВОДА 09/2024 1.40
607 941147-2024-09 9/30/2024 „ВОДОВОД” а.д. БАЊА ЛУКА ВОДА 09/2024 3.95
608 941147-2024-09 9/30/2024 „ВОДОВОД” а.д. БАЊА ЛУКА ВОДА 09/2024 5.84
609 941147-2024-09 9/30/2024 „ВОДОВОД” а.д. БАЊА ЛУКА ВОДА 09/2024 123.28
610 941147-2024-09 9/30/2024 „ВОДОВОД” а.д. БАЊА ЛУКА ВОДА 09/2024 31.36
611 941147-2024-09 9/30/2024 „ВОДОВОД” а.д. БАЊА ЛУКА ВОДА 09/2024 2,835.08
612 941147-2024-09 9/30/2024 „ВОДОВОД” а.д. БАЊА ЛУКА ВОДА 09/2024 455.56
613 941147-2024-09 9/30/2024 „ВОДОВОД” а.д. БАЊА ЛУКА ВОДА 09/2024 45.86
614 941147-2024-09 9/30/2024 „ВОДОВОД” а.д. БАЊА ЛУКА ВОДА 09/2024 48.59
615 941147-2024-09 9/30/2024 „ВОДОВОД” а.д. БАЊА ЛУКА ВОДА 09/2024 0.00
616 941147-2024-09 9/30/2024 „ВОДОВОД” а.д. БАЊА ЛУКА ВОДА 09/2024 590.81
617 941147-2024-09 9/30/2024 „ВОДОВОД” а.д. БАЊА ЛУКА ВОДА 09/2024 5.85
618 941147-2024-09 9/30/2024 „ВОДОВОД” а.д. БАЊА ЛУКА ВОДА 09/2024 1.40
619 941147-2024-09 9/30/2024 „ВОДОВОД” а.д. БАЊА ЛУКА ВОДА 09/2024 69.64
620 950329-2024-09 9/30/2024 „ВОДОВОД” а.д. БАЊА ЛУКА ВОДА 09/2024 15.77
621 2024-м100-53-001699 10/9/2024 ХОТЕЛ „БОСНА” а.д. УСЛУГЕ РЕСТОРАНА ОБАВЈЕШТЕЊЕ: 320-9-2-1-22-85/24 3,298.50
622 50643-2024-09 9/30/2024 „ВОДОВОД” а.д. БАЊА ЛУКА ВОДА 09/2024 1.40
623 950297-2024-09 9/30/2024 „ВОДОВОД” а.д. БАЊА ЛУКА ВОДА 09/2024 1,827.46
624 950297-2024-09 9/30/2024 „ВОДОВОД” а.д. БАЊА ЛУКА ВОДА 09/2024 207.65
625 2-10342/2023 12/31/2023 „СУПЕР ПЕТРОЛ” д.о.о. БАЊА ЛУКА НАБАВКА ГОРИВА 23.81
626 54715-2024-09 9/30/2024 „ВОДОВОД” а.д. БАЊА ЛУКА ВОДА 09/2024 11.70
627 60565-2024-09 9/30/2024 „ВОДОВОД” а.д. БАЊА ЛУКА ВОДА 09/2024 9.20
628 иф-00263-1-24 10/11/2024 АУТОПРЕВОЗ ГРАДСКИ САОБРАЋАЈ д.о.о. МЈЕСЕЧНЕ КАРТЕ ЗА ОКТОБАР 2024. ЗА УЧЕНИКЕ РОМСКЕ ПРИПАДНОСТИ 100.00
629 190/24 10/11/2024 „АЛДЕМО ТУРС” д.о.о. МЈЕСЕЧНЕ КАРТЕ ЗА ОКТОБАР 2024. ЗА УЧЕНИКЕ РОМСКЕ ПРИПАДНОСТИ 30.00
630 184649-4-0924-5100640 9/30/2024 МХ „ЕЛЕКТРОПРИВРЕДА РЕПУБЛИКЕ СРПСКЕ” УТРОШАК ЕЛЕКТРИЧНЕ ЕНЕРГИЈЕ У ПЗ „РАМИЋИ-БАЊА ЛУКА” (УПРАВНА ЗГРАДА) ЗА СЕПТЕМБАР 2024. ГОДИНЕ 376.37
631 135/24 10/11/2024 „АЦО ТРАДЕ” д.о.о. КАМЕНИ АГРЕГАТИ 3,873.50
632 1-р-2514/24 10/9/2024 „ВОДОВОД” а.д. БАЊА ЛУКА ПРИКЉУЧАК КОД ЋИРИЛИЧНОГ ПАРКА 1,085.98
633 1-р-2515/24 10/9/2024 „ВОДОВОД” а.д. БАЊА ЛУКА ПРИКЉУЧАК ЗА ДЈЕЧИЈЕ ИГРАЛИШТЕ ПРИВ.КАРАК ВУЈИНОВИЋИ 970.53
634 193982-4-0924-5100779 9/30/2024 МХ „ЕЛЕКТРОПРИВРЕДА РЕПУБЛИКЕ СРПСКЕ” ЈАВНИ ТОАЛЕТ МЛАДЕНА СТОЈАНОВИЋА 09/24 38.22
635 193983-4-0924-5100779 9/30/2024 МХ „ЕЛЕКТРОПРИВРЕДА РЕПУБЛИКЕ СРПСКЕ” ФОНТАНА МЕРИОТ 09/24 38.22
636 193984-4-0924-5100779 9/30/2024 МХ „ЕЛЕКТРОПРИВРЕДА РЕПУБЛИКЕ СРПСКЕ” ЈАВНИ ТОАЛЕТ ЗАНАТСКИ ЦЕНТАР 09/24 38.22
637 193981-4-0924-5100779 9/30/2024 МХ „ЕЛЕКТРОПРИВРЕДА РЕПУБЛИКЕ СРПСКЕ” АЗИЛ ЗА ПСЕ СТРИЧИЋИ 09/24 38.22
638 4440737884 9/30/2024 „М:ТЕЛ” а.д. БАЊА ЛУКА ПРЕНОС ПОДАТАКА 09/24 3,618.34
639 3 ПРИВ. СИТУАЦИЈА 10/15/2024 „ПРОГРЕСГРАДЊА” д.о.о. 3. ПРИВРЕМЕНА СИТУАЦИЈА ИЗГРАДЊА ВОДОВОДА БРАНКОВАЦ ПРЕМА САРАЧИЦИ 35,975.56
640 110/24 10/10/2024 „ЕКО ЕУРО ТИМ” д.о.о. БАЊА ЛУКА ХИТНЕ ИНТЕРВЕНЦИЈЕ НА ЈАВНИМ ПОВРШИНАМА 93,366.00
641 001-0318 10/14/2024 „АБЦ СОЛУТИОНС” д.о.о. БАЊА ЛУКА ИНВЕСТИЦИОНО ОДРЖАВАЊЕ ЈР 09/24 37,706.76
642 001-0317 10/14/2024 „АБЦ СОЛУТИОНС” д.о.о. БАЊА ЛУКА РЕДОВНО ОДРЖАВАЊЕ ЈАВНЕ РАСВЈЕТЕ 6,276.14
643 001-0316 10/14/2024 „АБЦ СОЛУТИОНС” д.о.о. БАЊА ЛУКА РЕДОВНО ОДРЖАВАЊЕ ЈАВНЕ РАСВЈЕТЕ 8,247.92
644 193985-4-0924-5100779 9/30/2024 МХ „ЕЛЕКТРОПРИВРЕДА РЕПУБЛИКЕ СРПСКЕ” ЈАВНИ ТОАЛЕТ НИКОЛЕ ТЕСЛЕ 09/24 38.22
645 193986-4-0924-5100779 9/30/2024 МХ „ЕЛЕКТРОПРИВРЕДА РЕПУБЛИКЕ СРПСКЕ” ПОДЗЕМНИ ХОДНИК КОД ТЦ „ДЕЛТА” 09/24 0.00
646 9140719600 9/30/2024 „М:ТЕЛ” а.д. БАЊА ЛУКА ПРЕТПЛАТА 09/24 77.82
647 93407199470 9/30/2024 „М:ТЕЛ” а.д. БАЊА ЛУКА ПРЕТПЛАТА 09/24 19.00
648 43759/24-јн 10/8/2024  ЈП НИО „СЛУЖБЕНИ ЛИСТ“ БИХ ПОНИШТЕЊЕ РЕКОНСТРУКЦИЈА 98.00
649 43704/24-јн 10/8/2024  ЈП НИО „СЛУЖБЕНИ ЛИСТ“ БИХ ОБЈАВА 98.00
650 иф-01133-1-24 10/9/2024 „ДРАГИЧЕВИЋ” д.о.о. БАЊА ЛУКА БУБАЊ ЗАМЈЕНСКИ 161.46
651 6040739172 9/30/2024 „М:ТЕЛ” а.д. БАЊА ЛУКА ПРЕТПЛАТА ЗА ПРИСТУП ИНТЕРНЕТУ НЕТБИЗ С ПАКЕТ (ПЗ РАМИЋИ) - СЕПТЕМБАР 2024. 70.69
652 4340703029 9/30/2024 „М:ТЕЛ” а.д. БАЊА ЛУКА МЈЕСЕЧНА ПРЕТПЛАТА НЕТ:Л ЗА СЕПТЕМБАР 2024. 48.75
653 6440737651 9/30/2024 „М:ТЕЛ” а.д. БАЊА ЛУКА ПРЕТПЛАТА ЗА ИЗНАЈМЉЕНУ ЛИНИЈУ - БРЗИНА ПРЕНОСА 256 КБ/С (1 КОМАД) / ПРЕТПЛАТА ЗА ИЗНАЈМЉЕНУ ЛИНИЈУ - БРЗИНА ПРЕНОСА 2 МБ/С (1 КОМАД) / ПРЕТПЛАТА ЗА ИЗНАЈМЉЕНУ ЛИНИЈУ - БРЗИНА ПРЕНОСА 192 КБ/С (15 КОМАДА) - СЕПТЕМБАР 2024. 4,436.13
654 0021948/24 10/14/2024 „АСА ТЕСТИНГ ЦЕНТАР” д.о.о. ТЕХНИЧКИ ПРЕГЛЕД ЗА РЕГИСТРАЦИЈУ А96-К-847 99.45
655 44260/24-јн 9/30/2024  ЈП НИО „СЛУЖБЕНИ ЛИСТ“ БИХ ОБЈАВА У МЕДИЈИМА ЈАВНЕ НАБАВКЕ -ДЕРАТИЗАЦИЈА 98.00
656 189477-4-0924-5100779 9/30/2024 МХ „ЕЛЕКТРОПРИВРЕДА РЕПУБЛИКЕ СРПСКЕ” ПОСЛОВНИ ПРОСТОР ПАРК „ПЕТАР КОЧИЋ” 09/24 231.13
657 192534-4-0924-4100521 9/30/2024 МХ „ЕЛЕКТРОПРИВРЕДА РЕПУБЛИКЕ СРПСКЕ” РАЧУН ЗА ИX 2024. ЗА МЗ ЦЕНТАР 1 (БРОЈИЛО БР. 4594517) 48.74
658 192531-4-0924-4100521 9/30/2024 МХ „ЕЛЕКТРОПРИВРЕДА РЕПУБЛИКЕ СРПСКЕ” РАЧУН ЗА ИX 2024. ЗА ЈС У УЛ. СИМЕ ШОЛАЈЕ БР. 1 84.24
659 192535-4-0924-4100521 9/30/2024 МХ „ЕЛЕКТРОПРИВРЕДА РЕПУБЛИКЕ СРПСКЕ” РАЧУН ЗА ИX 2024. ЗА СТАН МЗ ЦЕНТАР 1 (БРОЈИЛО БР. 4396554) 61.63
660 192530-4-0924-4100521 9/30/2024 МХ „ЕЛЕКТРОПРИВРЕДА РЕПУБЛИКЕ СРПСКЕ” РАЧУН ЗА ИX 2024. ЗА РАДНИЧКИ УНИВЕРЗИТЕТ 38.62
661 192831-4-0924-4100521 9/30/2024 МХ „ЕЛЕКТРОПРИВРЕДА РЕПУБЛИКЕ СРПСКЕ” РАЧУН ЗА ИX 2024. ЗА МЗ ПИСКАВИЦА 39.03
662 192529-4-0924-4100521 9/30/2024 МХ „ЕЛЕКТРОПРИВРЕДА РЕПУБЛИКЕ СРПСКЕ” РАЧУН ЗА ИX 2024. ЗА П. П. БР. 99 У Б. В. Ж. МИШИЋА БР. 33 89.16
663 192528-4-0924-4100521 9/30/2024 МХ „ЕЛЕКТРОПРИВРЕДА РЕПУБЛИКЕ СРПСКЕ” РАЧУН ЗА ИX 2024. ЗА П. П. БР. 221 И 222 У УЛ. В. МАСЛЕШЕ 1/11 122.40
664 192522-4-0924-4100521 9/30/2024 МХ „ЕЛЕКТРОПРИВРЕДА РЕПУБЛИКЕ СРПСКЕ” РАЧУН ЗА ИX 2024. ЗА РАДНИЧКИ УНИВЕРЗИТЕТ 112.57
665 188595-4-0924-4100521 9/30/2024 МХ „ЕЛЕКТРОПРИВРЕДА РЕПУБЛИКЕ СРПСКЕ” ГРАЂ. ПРИКЉУЧАК 09/24 254.52
666 33-1000191 9/2024 9/30/2024 „ЕКО ТОПЛАНЕ” д.о.о. БАЊА ЛУКА ГРИЈАЊЕ 09/2024 306.37
667 24-3070-002203 10/7/2024 „ТРИ БЕСТ” д.о.о. БАЊА ЛУКА СЕРВИС ЛИФТА 421.20
668 193998-4-0924-4101720 9/30/2024 МХ „ЕЛЕКТРОПРИВРЕДА РЕПУБЛИКЕ СРПСКЕ” НАПЛАТНА КУЋИЦА ЗА ПАРКИНГ КОД МЕДИЦИНСКЕ ЕЛЕКТРОНИКЕ ВУКА КАРАРАЏИЋА 1 40.94
669 8540743949 9/30/2024 „М:ТЕЛ” а.д. БАЊА ЛУКА МЈЕСЕЧНА ПРЕТПЛАТА НЕТ XС+ 19.00
670 193996-4-0924-4101720 9/30/2024 МХ „ЕЛЕКТРОПРИВРЕДА РЕПУБЛИКЕ СРПСКЕ” НАПЛАТНА ПАРКИНГ КУЋИЦА МЛАДЕНА СТОЈАНОВИЋА КОД 123 38.22
671 9540718758 9/30/2024 „М:ТЕЛ” а.д. БАЊА ЛУКА ПРЕТПЛАТА ЗА ЧЛАНОВЕ ТД XЛ 5ГБ 230.53
672 193997-4-0924-4101720 9/30/2024 МХ „ЕЛЕКТРОПРИВРЕДА РЕПУБЛИКЕ СРПСКЕ” НАПЛАТНА КУЋИЦА КРАЉА ПЕТРА И КАРАЂОРЂЕВИЋА 74А 38.22
673 9740722712 9/30/2024 „М:ТЕЛ” а.д. БАЊА ЛУКА ПРЕТПЛАТА ЗА ЧЛАНОВЕ ТД XЛ 5ГБ 195.83
674 194001-4-0924-4101720 9/30/2024 МХ „ЕЛЕКТРОПРИВРЕДА РЕПУБЛИКЕ СРПСКЕ” НАПЛАТНА КУЋИЦА ЗА ПАРКИНГ 38.22
675 8240718827 9/30/2024 „М:ТЕЛ” а.д. БАЊА ЛУКА ПРЕТПЛАТА ЗА ЧЛАНОВЕ ТД XЛ 5ГБ 72.87
676 194002-4-0924-4101720 9/30/2024 МХ „ЕЛЕКТРОПРИВРЕДА РЕПУБЛИКЕ СРПСКЕ” НАПЛАТНА ПАРКИНГ КУЋИЦА ПОРЕД ХОТЕЛА ПАЛАСА, КРАЉА ПЕТРА И КАРАЂОРЂЕВИЋА 58 38.22
677 194005-4-0924-4101720 9/30/2024 МХ „ЕЛЕКТРОПРИВРЕДА РЕПУБЛИКЕ СРПСКЕ” НАПЛАТНА ПАРКИНГ КУЋИЦА БИТОЉСКА ББ 221.11
678 194003-4-0924-4101720 9/30/2024 МХ „ЕЛЕКТРОПРИВРЕДА РЕПУБЛИКЕ СРПСКЕ” НАПЛАТНА КУЋИЦА КОД КАСТЕЛА ТРЖНИЧКА ББ 38.22
679 43813/24-јн 10/8/2024  ЈП НИО „СЛУЖБЕНИ ЛИСТ“ БИХ ПЛАЋАЊЕ ОБАВЈЕШТЕЊА О ЈАВНОЈ НАБАВЦИ 98.00
680 184717-4-0924-4100335 9/30/2024 МХ „ЕЛЕКТРОПРИВРЕДА РЕПУБЛИКЕ СРПСКЕ” УТРОШАК ЕЛЕКТРИЧНЕ ЕНЕРГИЈЕ У ПЗ „РАМИЋИ-БАЊА ЛУКА” (ХАЛА) ЗА СЕПТЕМБАР 2024. ГОДИНЕ 0.00
681 103/2/20 9/30/2024 „МГ МИНД” д.о.о. МРКОЊИЋ ГРАД ПРАВДАЊЕ АВАНСА -49,662.03
682 9000306836 10/11/2024  „ЕЛЕКТРОКРАЈИНА“ а.д. БАЊА ЛУКА ЕЕ САГЛАСНОСТ 2,145.02
683 950316-2024-09 9/30/2024 „ВОДОВОД” а.д. БАЊА ЛУКА УТРОШЕНА ВОДА СЕПТЕМБАР 2024. 57.46
684 усл-00195-1-24 10/15/2024 „РУТИНГ” д.о.о. БАЊА ЛУКА ФАКТУРА БРОЈ УСЛ-00195-1-24 ОД 15. 10. 2024. 5,970.00
685 4033422094 9/30/2024 РАДИО ТЕЛЕВИЗИЈА РЕПУБЛИКЕ СРПСКЕ БАЊА ЛУКА РТРС 09/2024 7.50
686 5017153094 9/30/2024 РАДИО ТЕЛЕВИЗИЈА РЕПУБЛИКЕ СРПСКЕ БАЊА ЛУКА РТРС 09/2024 7.50
687 5034294094 9/30/2024 РАДИО ТЕЛЕВИЗИЈА РЕПУБЛИКЕ СРПСКЕ БАЊА ЛУКА РТРС 09/2024 7.50
688 514/24 9/30/2024 ЗЕВ КРАЉА ПЕТРА И КАРАЂОРЂЕВИЋА 113 И 115 ЗЕВ 09/2024 45.30
689 278/24 9/30/2024 ЗЕВ СИМЕ ШОЛАЈЕ 5 ЗЕВ 09/2024 59.60
690 П-30/2024 10/15/2024 „Д & Д КОНСАЛТИНГ” д.о.о. СТРУЧНА ЛИТЕРАТУРА 170.00
691 53/24 9/30/2024 ЗАЈЕДНИЦА ЕТАЖНИХ ВЛАСНИКА УЛ. БУЛЕВАР ВОЈВОДЕ ЖИВОЈИНА МИШИЋА 31 БАЊА ЛУКА ЗЕВ 09/2024 74.70
692 315/24 9/30/2024 ЗЕВ ЈОСИФА ПАНЧИЋА 4 ЗЕВ 09/2024 41.50
693 349/24 9/30/2024 ЗЕВ КЊАЗА МИЛОША 31 ЗЕВ 09/2024 28.85
694 945749-2024-09 9/30/2024 „ВОДОВОД” а.д. БАЊА ЛУКА ВОДА 09/2024 11.70
695 945749-2024-09 9/30/2024 „ВОДОВОД” а.д. БАЊА ЛУКА ВОДА 09/2024 4.78
696 53320-2024-09 9/30/2024 „ВОДОВОД” а.д. БАЊА ЛУКА УТРОШЕНА ВОДА СЕПТЕМБАР 2024. ГОДИНЕ 11.70
697 53309-2024-09 9/30/2024 „ВОДОВОД” а.д. БАЊА ЛУКА УТРОШЕНА ВОДА СЕПТЕМБАР 2024. ГОДИНЕ 28.45
698 53334-2024-09 9/30/2024 „ВОДОВОД” а.д. БАЊА ЛУКА УТРОШЕНА ВОДА СЕПТЕМБАР 2024. ГОДИНЕ 8.15
699 293-1д26-1 9/30/2024 „ЕПИДАУРУМ” ПОЛА ИЗНОСА ЗА РОНИЛАЧКИ КУРС ЗА ПРИПАДНИКЕ ПТВСЈ 32,115.71
700 578/24 9/30/2024 ЗЕВ ПАЛИХ БОРАЦА 13 РАЧУН ЗА ИX 2024. ЗА СТАН БР. 10 14.00
701 577/24 9/30/2024 ЗЕВ ПАЛИХ БОРАЦА 13 РАЧУН ЗА ИX 2024. ЗА СТАН БР. 9 15.20
702 572/24 9/30/2024 ЗЕВ ПАЛИХ БОРАЦА 13 РАЧУН ЗА ИX 2024. ЗА СТАН БР. 4 16.40
703 575/24 9/30/2024 ЗЕВ ПАЛИХ БОРАЦА 13 РАЧУН ЗА ИX 2024. ЗА СТАН БР. 7 15.20
704 636/24 9/30/2024 ЗЕВ ПАЛИХ БОРАЦА 13 РАЧУН ЗА ИX 2024. ЗА СТАН БР. 68 16.00
705 635/24 9/30/2024 ЗЕВ ПАЛИХ БОРАЦА 13 РАЧУН ЗА ИX 2024. ЗА СТАН БР. 67 16.00
706 634/24 9/30/2024 ЗЕВ ПАЛИХ БОРАЦА 13 РАЧУН ЗА ИX 2024. ЗА СТАН БР. 66 16.40
707 631/24 9/30/2024 ЗЕВ ПАЛИХ БОРАЦА 13 РАЧУН ЗА ИX 2024. ЗА СТАН БР. 63 16.00
708 629/24 9/30/2024 ЗЕВ ПАЛИХ БОРАЦА 13 РАЧУН ЗА ИX 2024. ЗА СТАН БР. 61 16.00
709 626/24 9/30/2024 ЗЕВ ПАЛИХ БОРАЦА 13 РАЧУН ЗА ИX 2024. ЗА СТАН БР. 58 16.00
710 638/24 9/30/2024 ЗЕВ ПАЛИХ БОРАЦА 13 РАЧУН ЗА ИX 2024. ЗА СТАН БР. 70 16.00
711 иф-00514-1-24 9/26/2024 АПИФ БАЊА ЛУКА ИЗВОД ИЗ РФЛ (НИКОЛА ПЕТРОЊЕВ) 15.00
712 8040737678 9/30/2024 „М:ТЕЛ” а.д. БАЊА ЛУКА ПРЕТПЛАТА ЗА ИЗНАЈМЉЕНУ ЛИНИЈУ - БРЗИНА ПРЕНОСА 512 КБ/С (1 КОМАД) ЗА СЕПТЕМБАР 2024. 656.61
713 5005033-4-0924-7366538 9/30/2024 МХ „ЕЛЕКТРОПРИВРЕДА РЕПУБЛИКЕ СРПСКЕ” ЈАВНИ ТОАЛЕТ МЛ. СТОЈАНОВИЋА 3.21
714 5005034-4-0924-7366540 9/30/2024 МХ „ЕЛЕКТРОПРИВРЕДА РЕПУБЛИКЕ СРПСКЕ” ФОНТАНА МЕРИОТ 4.53
715 5005031-4-0924-7366524 9/30/2024 МХ „ЕЛЕКТРОПРИВРЕДА РЕПУБЛИКЕ СРПСКЕ” РАЧУН ЗА ИX 2024. ЗА П. П. БР. 4 У УЛ. К. П. И КАРАЂОРЂЕВИЋА БР. 23 41.25
716 4981561-4-0924-7366524 9/30/2024 МХ „ЕЛЕКТРОПРИВРЕДА РЕПУБЛИКЕ СРПСКЕ” РАЧУН ЗА УКЉУЧЕЊЕ ЗА П. П. БР. 4 У УЛ. К. П. И КАРАЂОРЂЕВИЋА БР. 23 33.06
717 6430016978/2024 9/30/2024 МИНИСТАРСТВО УНУТРАШЊИХ ПОСЛОВА РЕПУБЛИКЕ СРПСКЕ НАКНАДА 25% ЗА ПРЕМЈЕШТЕНА И ДЕПОНОВАНА ВОЗИЛА ЗА ПЕРИОД 01. 09 - 30. 09. 2024. ГОДИНЕ 2,220.00
718 580/24 10/11/2024 „БОЧАЦ ТУРС” д.о.о. БАЊА ЛУКА МЈЕСЕЧНЕ КАРТЕ ЗА ОКТОБАР 2024. ЗА УЧЕНИКЕ РОМСКЕ ПРИПАДНОСТИ 183.00
719 5005163-4-0924-7366524 9/30/2024 МХ „ЕЛЕКТРОПРИВРЕДА РЕПУБЛИКЕ СРПСКЕ” ПОДЗЕМНИ ХОДНИК 2.98
720 01/2401005640 9/30/2024 ПОШТЕ СРПСКЕ ВРШЕЊЕ УСЛУГА ПРЕНОСА ПОШТАНСКИХ ПОШИЉКИ 11,549.14
721 24-300-001272 10/15/2024  „АУТОЦЕНТАР МЕРКУР” д.о.о. БАЊА ЛУКА МОНТАЖА И БАЛАНС ГУМА 254.26
722 2-8147/2024 10/15/2024 „СУПЕР ПЕТРОЛ” д.о.о. БАЊА ЛУКА НАБАВКА ГОРИВА 4,499.41
723 24-360-002925 10/14/2024 „ЕКО БЕЛ” д.о.о. ЛАКТАШИ УСЛУГА СИСТЕМАТСКЕ ДЕРАТИЗАЦИЈЕ 38,824.50
724 950343-2024-09 9/30/2024 „ВОДОВОД” а.д. БАЊА ЛУКА ВОДА 09/2024 3.95
725 192832-4-0924-4100521 9/30/2024 МХ „ЕЛЕКТРОПРИВРЕДА РЕПУБЛИКЕ СРПСКЕ” РАЧУН ЗА ИX 2024. ЗА АМБУЛАНТУ У ДОЊИМ КОЛИМА 38.56
726 192523-4-0924-4100521 9/30/2024 МХ „ЕЛЕКТРОПРИВРЕДА РЕПУБЛИКЕ СРПСКЕ” РАЧУН ЗА ИX 2024. ЗА АРХИВ У ЈС СИМЕ МАТАВУЉА 10 КОД 38.62
727 947075-2024-09 9/30/2024 „ВОДОВОД” а.д. БАЊА ЛУКА ВОДА 09/2024 2.56
728 01/2400760451 7/31/2024 „ЧИСТОЋА” а.д. БАЊА ЛУКА ЈАВНА ХИГИЈЕНА 265,448.09
729 иф-04400-01-24 10/17/2024 „ПРИМАПРОМ” д.о.о. БАЊА ЛУКА КОРИЧЕЊЕ КЊИГА 139.87
730 377/24 9/26/2024 „ПЛАН” д.о.о. РЕВИЗИЈА ПРОЈЕКТНЕ ДОКУМЕНТАЦИЈЕ 161.76
731 45098/24-јн 10/15/2024  ЈП НИО „СЛУЖБЕНИ ЛИСТ“ БИХ УСЛУГА ОБЈАВЕ ЈН У СЛУЖБЕНОМ ГЛАСНИКУ 98.00
732 44384/24-јн 10/15/2024  ЈП НИО „СЛУЖБЕНИ ЛИСТ“ БИХ ОБЈАВА У МЕДИЈИМА ЈАВНЕ НАБАВКЕ 98.00
733 11161633-2024-09 9/30/2024 „ВОДОВОД” а.д. БАЊА ЛУКА ВОДА 09/2024 26.27
734 иф-04419-01-24 10/18/2024 „ПРИМАПРОМ” д.о.о. БАЊА ЛУКА КОРИЧЕЊЕ КЊИГА 12.48
735 10/24 10/17/2024 ЗЕВ БУЛЕВАР ВОЈВОДЕ ЖИВОЈИНА МИШИЋА 19 ЗЕВ 10/2024 44.80
736 24-362-000047 10/15/2024 „АКВАНА” д.о.о. БАЊА ЛУКА РЕПРЕЗЕНТАЦИЈА 240.00
737 иф-00099-1-24 10/15/2024 „В СИСТЕМ” д.о.о. ИЗВОЂЕЊЕ РАДОВА 7,014.15
738 04-Р-1085/24 10/21/2024 ЈУ СЛУЖБЕНИ ГЛАСНИК РС РАСХОДИ ЗА РЕЖИЈСКИ МАТЕРИЈАЛ 7,499.99
739 ИФ-00042-4-24 9/3/2024 „ЛЕОТАР ИНЖЕЊЕРИНГ” д.о.о. РЕКОНСТРУКЦИЈА ШКОЛСКОГ ОБЈЕКТА МИЛАН РАКИЋ 81,064.62
740 171/2024 10/15/2024 „АЦС СТУДИО” БАЊА ЛУКА РАЧУН БРОЈ 171/2024 ОД 15. 10. 2024. 6,435.00
741 861/24 10/1/2024 „ПАВЛОВИЋ ТУРС” д.о.о БАЊА ЛУКА МЈЕСЕЧНЕ КАРТЕ ЗА ОКТОБАР 2024. ЗА УЧЕНИКЕ РОМСКЕ ПРИПАДНОСТИ 30.00
742 05050001-1585/24 9/10/2024 ДОМ ЗДРАВЉА ЈЗУ БАЊА ЛУКА САНИТЕТСКО ОБЕЗБЈЕЂЕЊЕ ЕКИПЕ 700.00
743 5140737914 9/30/2024 „М:ТЕЛ” а.д. БАЊА ЛУКА ПРЕТПЛАТА ЗА ИЗНАЈМЉЕНУ ЛИНИЈУ - БРЗИНА ПРЕНОСА 60 МБ/С ЗА СЕПТЕМБАР 2024. 1,567.71
744 01/24Т0102270 10/7/2024 „СЛАДАБОНИ” д.о.о. КЊИЖАРА КУЛТУРА БАЊА ЛУКА  НАБАВКА 2 АКУМУЛАТОРА 578.40
745 24-353-000578 10/22/2024  „АУТОЦЕНТАР МЕРКУР” д.о.о. БАЊА ЛУКА МОНТАЖА И БАЛАНС ГУМА 15.26
746 2859/2024 10/22/2024 ЦЕНТРАЛНИ РЕГИСТАР ХАРТИЈА ОД ВРИЈЕДНОСТИ а.д. ОБАВЉАЊЕ ПОСЛОВА ПЛАТНОГ АГЕНТА ЗА ДУЖНИЧКЕ ХОВ 653.00
747 207/24 10/16/2024 „ПРОЦЕСНА ОПРЕМА” д.о.о. РАЧУН БРОЈ 207/24 ОД 16. 10. 2024. ГОДИНЕ 19,410.30
748 24-3071-000387 10/17/2024 „ТРИ БЕСТ” д.о.о. БАЊА ЛУКА СЕРВИС ЛИФТА 140.40
749 24-3071-000373 10/17/2024 „ТРИ БЕСТ” д.о.о. БАЊА ЛУКА СЕРВИС ЛИФТА 46.80
750 24-302-000045 10/17/2024  „АУТОЦЕНТАР МЕРКУР” д.о.о. БАЊА ЛУКА МОНТАЖА И БАЛАНС ГУМА 213.60
751 20/2024 10/15/2024 ДЕВОТИОН МЕДИА УСЛУГА ПРОМОЦИЈЕ ПУТЕМ ИНТЕРНЕТ ПОРТАЛА 1,000.00
752 0612/24 10/11/2024 ЦСК САМОСТАЛНА РАДЊА БАЊА ЛУКА УСЛУГЕ ШТАМПЕ 4,413.14
753 1465/24-02с 10/8/2024 „ЛАДА АУТО” БАЊА ЛУКА СЕРВИС ВОЗИЛА 534.28
754 1466/24-02с 10/8/2024 „ЛАДА АУТО” БАЊА ЛУКА СЕРВИС ВОЗИЛА 720.01
755 1467/24-02с 10/8/2024 „ЛАДА АУТО” БАЊА ЛУКА СЕРВИС ВОЗИЛА 725.40
756 ИФ-00554-1-24 10/22/2024 АПИФ БАЊА ЛУКА ИЗВОД ИЗ ЈРР БР 14-017-525/23 17.55
757 9788/1/93 9/30/2024 „МГ МИНД” д.о.о. МРКОЊИЋ ГРАД СЕДМА ПРИВРЕМЕНА СИТУАЦИЈА БРОЈ 9788/1/93 ОД 30. 09. 2024. 248,310.15
758 947752-2024-09 9/30/2024 „ВОДОВОД” а.д. БАЊА ЛУКА ВОДА 09/2024 8.35
759 947752-2024-09 9/30/2024 „ВОДОВОД” а.д. БАЊА ЛУКА ВОДА 09/2024 12.86
760 81-2716/2024 10/25/2024 ГЛАС СРПСКЕ БАЊА ЛУКА ПЛАЋАЊЕ ОБАВЈЕШТЕЊА О ОДРЖАВАЊУ ЈАВНЕ РАСПРАВЕ О НАЦРТУ ИЗМЈЕНЕ ДИЈЕЛА РЕГ. ПЛАНА РЕГИОНАЛНИ ЦЕНТАР 333.45
761 46061/24-ЈН 10/22/2024  ЈП НИО „СЛУЖБЕНИ ЛИСТ“ БИХ ПОНИШТЕЊЕ ЗАКУП И МОНТАЖА ШАТОРА 98.00
762 372/24 ИИ привремена ситуација 10/25/2024  „ГРАЂЕЊЕ ЂУРИЋ” д.о.о. ДЈЕЧИЈЕ ИГРАЛИШТЕ У ЗАЛУЖАНИМА 28,928.69
763 45928/24-ЈН 10/22/2024  СЛУЖБЕНИ ЛИСТ БиХ УСЛУГА ОБЈАВЕ ЈН У СЛУЖБЕНОМ ГЛАСНИКУ 98.00
764 90191930 10/9/2024 БХ ТЕЛЕКОМ д.д. УСЛУГА ЗА МПАРКИНГ 09/24 10.88
765 90192059 10/11/2024 БХ ТЕЛЕКОМ д.д. УСЛУГА ЗА МПАРКИНГ ЗА 09/24 282.51
766 24 10/25/2024 ЗЕВ ЈОВАНА ЈАНЧИЋА 6 РАЧУН ЗА САНАЦИЈУ ДИЈЕЛА КРОВА (УЧЕШЋЕ ГРАДА ЗА 2 ГАРАЖЕ) 286.00
767 предрачун бр. 04/24 10/28/2024 „КОТЕКС КОМПАНИ” д.о.о. ГРАДИШКА ТЕХНИЧКИ ПРЕГЛЕД ЗА РЕГИСТРАЦИЈУ 2 ЧАМЦА 456.30
768 00229087/24 10/25/2024 „АСА ТЕСТИНГ ЦЕНТАР” д.о.о. ТЕХНИЧКИ ПРЕГЛЕД ЗА РЕГИСТРАЦИЈУ О79-А-552 99.45
769 46522/24-ЈН 10/23/2024  ЈП НИО „СЛУЖБЕНИ ЛИСТ“ БИХ ХИГИЈЕНИЧАРСКА СЛУЖБА 98.00
770 45486/24-ЈН 10/22/2024  ЈП НИО „СЛУЖБЕНИ ЛИСТ“ БИХ УСЛУГА ОБЈАВЕ ЈН У СЛУЖБЕНОМ ГЛАСНИКУ 98.00
771 ФСВ-187-0/24 10/24/2024 „ХОЛОДЕКС” д.о.о. РЕДОВНО ОДРЖАВАЊЕ СИСТЕМА ЗА ГРИЈАЊЕ И ХЛАЂЕЊЕ 2,328.30
772 281-24УСЛ 10/28/2024 „МЕГАПРИНТ” АРАБАЗИЋ ИГОР с.п. БАЊА ЛУКА УСЛУГА ШТАМПАЊА БРОШУРА И ЛЕТАКА 3,205.80
773 376/24 окончана ситуација 10/29/2024  „ГРАЂЕЊЕ ЂУРИЋ” д.о.о. ОКОНЧАНА СИТУАЦИЈА - ИЗГРАДЊА ВОДОНЕПРОПУСНЕ ЈАМЕ У ВРТАЧАМА 19,861.87
774 У24-0467 10/25/2024 „ТЕЛЕГРУП” д.о.о. БАЊА ЛУКА РЕКОНСТРУКЦИЈА РАЧУНАРСКЕ ОПРЕМЕ 5,413.54
775 ИФ-01146-1-24 10/14/2024 „ДРАГИЧЕВИЋ” д.о.о. БАЊА ЛУКА ФИКСИРНА ФОЛИЈА 125.19
776 ИФ-01186-1-24 10/25/2024 „ДРАГИЧЕВИЋ” д.о.о. БАЊА ЛУКА СИЛИКОНСКИ ВАЉАК И ГУМИЦА ЗА ПОВЛАЧЕЊЕ 181.35
777 ИФ-01185-1-24 10/25/2024 „ДРАГИЧЕВИЋ” д.о.о. БАЊА ЛУКА БУБАЊ ЗАМЈЕНСКИ 161.46
778 ИФ-01179-1-24 10/23/2024 „ДРАГИЧЕВИЋ” д.о.о. БАЊА ЛУКА УСЛУГА СЕРВИСА 605.16
779 8/24 10/30/2024 „ДЕКОРЕНТ” с.п. УСЛУГА ОРГАНИЗАЦИЈА ДОГАЂАЈА 1,000.00
780 7/24 10/30/2024 „ДЕКОРЕНТ” с.п. УСЛУГА ОРГАНИЗАЦИЈА ДОГАЂАЈА 500.00
781 124012654 10/28/2024 „МИРА” д.о.о. НАБАВКА ПОКЛОНА - ЧОКОЛАДНИ ПРОИЗВОДИ 1,346.46
782 124012225 10/22/2024 „МИРА” д.о.о. НАБАВКА ПОКЛОНА - ЧОКОЛАДНИ ПРОИЗВОДИ 1,439.97
783 124011960 10/17/2024 „МИРА” д.о.о. НАБАВКА ПОКЛОНА - ЧОКОЛАДНИ ПРОИЗВОДИ 1,490.56
784 124011797 10/15/2024 „МИРА” д.о.о. НАБАВКА ПОКЛОНА - ЧОКОЛАДНИ ПРОИЗВОДИ 1,220.81
785 124012284 10/23/2024 „МИРА” д.о.о. НАБАВКА ПОКЛОНА - ЧОКОЛАДНИ ПРОИЗВОДИ 1,522.20
786 1/24/6645 10/29/2024 „ЛАНАКО” БАЊА ЛУКА РАЧУН БРОЈ 1-6645/24 ОД 29. 10. 2024. ЗА ОКТОБАР 2024. 582.66
787 0053/24 7/9/2024 „ПРОФИНГ” д.о.о. ЗАКУП САТЕЛИТА ЗА МЈЕСЕЦ МАЈ И ЈУН 1,539.72
788 0084/24 10/25/2024 „ПРОФИНГ” д.о.о. ЗАКУП САТЕЛИТА ЗА МЈЕСЕЦ ОКТОБАР, НОВЕМБАР И ДЕЦЕМБАР 2,309.58
789 24-362-000049 10/24/2024 „АКВАНА” д.о.о. БАЊА ЛУКА УГОСТИТЕЉСКЕ УСЛУГЕ 113.00
790 2024-В001-53-000022 10/28/2024 ЈУ МУЗЕЈ САВРЕМЕНЕ УМЈЕТНОСТИ РС ЗАКУП ПРОСТОРА 936.00
791 136/24 10/28/2024 ЦЕНТАР ЗА РАЗВОЈ ПОЉОПРИВРЕДЕ И СЕЛА ДОМАЋИ АУТЕНТИЧНИ ПРОИЗВОДИ 1,677.60
792 1/24/6552 10/28/2024 „ЛАНАКО” БАЊА ЛУКА ОДРЖАВАЊЕ СОФТВЕРА ЗА КАДРОВСКУ ЕВИДЕНЦИЈУ И ОБРАЧУН ЗАРАДА ЗА ОКТОБАР 2024. 2,691.00
793 2896/2024 10/28/2024 ЦЕНТРАЛНИ РЕГИСТАР ХАРТИЈА ОД ВРИЈЕДНОСТИ а.д. 13 АНУИТЕТ ОБВЕЗНИЦЕ БЛКИ-О-Б 503.00
794 2913/2024 10/29/2024 ЦЕНТРАЛНИ РЕГИСТАР ХАРТИЈА ОД ВРИЈЕДНОСТИ а.д. 13 АНУИТЕТ ОБВЕЗНИЦЕ БЛКИ-О-Б 30.00
795 60/2024 10/31/2024 ЦЕНТАР ЗА ИНФОРМАТИЧКИ РАЗВОЈ ИНФОРМАТИЧКА ОБУКА - В. ШИПКА 450.00
796 191/2024 10/29/2024 „ИМ ФИРЕ СЕЦУРИТY” д.о.о. БАЊА ЛУКА СЕРВИСИРАЊЕ ВАТРОГАСНОГ СИСТЕМА У ВАТРОГАСНИМ ДОМОВИМА УГОВОР 11-Г-4668/24 6,973.20
797 привремена ситуација 9/24 11/1/2024 „ЕКО ВОКС” д.о.о. БАЊА ЛУКА ОДРЖАВАЊЕ ТОАЛЕТ КАБИНА 8,541.00
798 24-362-000051 10/28/2024 „АКВАНА” д.о.о. БАЊА ЛУКА РЕПРЕЗЕНТАЦИЈА 1,051.80
799 24-362-000050 10/28/2024 „АКВАНА” д.о.о. БАЊА ЛУКА РЕПРЕЗЕНТАЦИЈА 1,512.60
800 2-8595/2024 10/31/2024 „СУПЕР ПЕТРОЛ” д.о.о. БАЊА ЛУКА НАБАВКА ГОРИВА 5,716.25
801 предрачун бр. 1006906021 10/31/2024 САВЕЗ РАЧУНОВОЂА И РЕВИЗОРА РС КОНТИНУИРАНА ПРОФЕСИОНАЛНА ЕДУКАЦИЈА - СТАНИЋ САНДРА 80.00
802 предрачун бр. 1006907523 10/31/2024 САВЕЗ РАЧУНОВОЂА И РЕВИЗОРА РС КОНТИНУИРАНА ПРОФЕСИОНАЛНА ЕДУКАЦИЈА (КТЕ 2/24) -ЂУКИЋ ЗДЕНКА 80.00
803 8006624-11/24 11/1/2024 „АУРА ОСИГУРАЊЕ” а.д. БАЊА ЛУКА ОСИГУРАЊЕ 65.00
804 8006623-11/24 11/1/2024 „АУРА ОСИГУРАЊЕ” а.д. БАЊА ЛУКА ОСИГУРАЊЕ 48.00
805 8006622-11/24 11/1/2024 „АУРА ОСИГУРАЊЕ” а.д. БАЊА ЛУКА ОСИГУРАЊЕ 3,188.00
806 1004121-11/24 11/1/2024 „АУРА ОСИГУРАЊЕ” а.д. БАЊА ЛУКА ОСИГУРАЊЕ НЕЗГОДА 1,352.00
807 24-3071-000405 10/31/2024 „ТРИ БЕСТ” д.о.о. БАЊА ЛУКА СЕРВИС ЛИФТА 93.60
808 24-3071-000409 10/31/2024 „ТРИ БЕСТ” д.о.о. БАЊА ЛУКА СЕРВИС ЛИФТА 187.20
809 24-3071-000406 10/31/2024 „ТРИ БЕСТ” д.о.о. БАЊА ЛУКА СЕРВИС ЛИФТА 936.00
810 1/24/6718 10/30/2024 „ЛАНАКО” БАЊА ЛУКА МИГРАЦИЈА ИНФРАСТРУКТУРЕ НА ДАТА ЦЕНТАР ЕКСТЕРНОГ ПАРТНЕРА ЗА ОКТОБАР 2024. 14,625.00
811 1/24/6644 10/29/2024 „ЛАНАКО” БАЊА ЛУКА ОДРЖАВАЊЕ АПЛИКАЦИЈЕ „ШИХТЕРИЦА” ЗА ОКТОБАР 2024. 418.86
812 24-360-001390 10/31/2024 „ИТИНЕРИС” д.о.о. УСЛУГА ОДРЖАВАЊА ПРОГРАМА ЗА КЊИГУ УЛАЗНИХ ФАКТУРА - КУФ (8/10) 421.20
813 56/2024 11/4/2024 „ТАМАРИС КОМПАНИ” д.о.о. БАЊА ЛУКА ОДРЖАВАЊЕ ЗЕЛЕНИХ ПОВРШИНА 108,014.77
814 47 11/1/2024 „ПРИВРЕДНА ШТАМПА” д.о.о. ГОДИШЊА ПРЕТПЛАТА НА ПАКЕТ ЗИПС 500.00
815 2-8338/2024 10/15/2024 „СУПЕР ПЕТРОЛ” д.о.о. БАЊА ЛУКА ИСПОРУКА ГОРИВА 15,200.29
816 2/24/6997 8/31/2024 „СУПЕР ПЕТРОЛ” д.о.о. БАЊА ЛУКА ИСПОРУКА ГОРИВА 950.03
817 2-7445/2024 9/15/2024 „СУПЕР ПЕТРОЛ” д.о.о. БАЊА ЛУКА ИСПОРУКА ГОРИВА 1,637.63
818 2-8798/2024 10/31/2024 „СУПЕР ПЕТРОЛ” д.о.о. БАЊА ЛУКА ИСПОРУКА ГОРИВА 5,010.91
819 101/2024 10/31/2024 АДА с.п. ПРАЊЕ ВОЗИЛА 648.00
820 иф-00079-1-24 10/31/2024 „АЛО МЕДИЈА СИСТЕМ” д.о.о. БАЊА ЛУКА ОБЈАВА ИНФОРМАЦИЈА И САДРЖАЈА О РАДУ ГУ 1,170.00
821 1561/24 11/1/2024 „КМЦ” д.о.о. БАЊА ЛУКА КАНЦЕЛАРИЈСКИ МАТЕРИЈАЛ 14,676.56
822 99/24 10/31/2024 ЗЕВ БРОНЗАНИ МАЈДАН ББ ЗЕВ 10/2024 38.06
823 100/24 10/31/2024 ЗЕВ БРОНЗАНИ МАЈДАН ББ РАЧУН ЗА X 2024. ЗА ПОСЛОВНИ ПРОСТОР 50.40
824 140/24 10/31/2024 „БАЛКАН КОП-ЂУРЂЕВАК” д.о.о. ЦВЈЕТНИ АРАНЖМАНИ 3,627.00
825 24-360-003184 11/1/2024 „ЕКО БЕЛ” д.о.о. ЛАКТАШИ СИСТЕМАТСКА ДЕРАТИЗАЦИЈА-УСЛУГА 7,020.00
826 33/24 10/31/2024 „ВИП ЕЛЕКТРО” БАЊА ЛУКА ОДРЖАВАЊЕ ЈАВНИХ САТОВА 4,855.50
827 95/24 10/31/2024 „ЕЛТА МЕДИЈА ГРУП” д.о.о. ПРАЋЕЊЕ И ПРЕСТАВЉАЊЕ РАДА И АКТИВНОСТИ ОДСЈЕКА ЦЗ И ПТВСЈ 11,700.00
828 94/24 8/5/2024 ЦЕНТАР ЗА РАЗВОЈ ПОЉОПРИВРЕДЕ И СЕЛА ДОМАЋИ АУТЕНТИЧНИ ПРОИЗВОДИ 237.85
829 207805-4-1024-4101720 10/31/2024 МХ „ЕЛЕКТРОПРИВРЕДА РЕПУБЛИКЕ СРПСКЕ” СТРУЈА 10/2024 253.45
830 207816-4-1024-4101720 10/31/2024 МХ „ЕЛЕКТРОПРИВРЕДА РЕПУБЛИКЕ СРПСКЕ” СТРУЈА 10/2024 39.23
831 213280-4-1024-4101720 10/31/2024 МХ „ЕЛЕКТРОПРИВРЕДА РЕПУБЛИКЕ СРПСКЕ” СТРУЈА 10/2024 60.45
832 207815-4-1024-4101720 10/31/2024 МХ „ЕЛЕКТРОПРИВРЕДА РЕПУБЛИКЕ СРПСКЕ” СТРУЈА 10/2024 56.08
833 207824-4-1024-4101720 10/31/2024 МХ „ЕЛЕКТРОПРИВРЕДА РЕПУБЛИКЕ СРПСКЕ” СТРУЈА 10/2024 73.08
834 207826-4-1024-4101720 10/31/2024 МХ „ЕЛЕКТРОПРИВРЕДА РЕПУБЛИКЕ СРПСКЕ” СТРУЈА 10/2024 77.97
835 207823-4-1024-4101720 10/31/2024 МХ „ЕЛЕКТРОПРИВРЕДА РЕПУБЛИКЕ СРПСКЕ” СТРУЈА 10/2024 83.86
836 207825-4-1024-4101720 10/31/2024 МХ „ЕЛЕКТРОПРИВРЕДА РЕПУБЛИКЕ СРПСКЕ” СТРУЈА 10/2024 76.80
837 207821-4-1024-4101720 10/31/2024 МХ „ЕЛЕКТРОПРИВРЕДА РЕПУБЛИКЕ СРПСКЕ” СТРУЈА 10/2024 109.92
838 207840-4-1024-4101720 10/31/2024 МХ „ЕЛЕКТРОПРИВРЕДА РЕПУБЛИКЕ СРПСКЕ” СТРУЈА 10/2024 57.68
839 207822-4-1024-4101720 10/31/2024 МХ „ЕЛЕКТРОПРИВРЕДА РЕПУБЛИКЕ СРПСКЕ” СТРУЈА 10/2024 49.26
840 207839-4-1024-4101720 10/31/2024 МХ „ЕЛЕКТРОПРИВРЕДА РЕПУБЛИКЕ СРПСКЕ” СТРУЈА 10/2024 40.05
841 207812-4-1024-4101720 10/31/2024 МХ „ЕЛЕКТРОПРИВРЕДА РЕПУБЛИКЕ СРПСКЕ” СТРУЈА 10/2024 526.27
842 207820-4-1024-4101720 10/31/2024 МХ „ЕЛЕКТРОПРИВРЕДА РЕПУБЛИКЕ СРПСКЕ” СТРУЈА 10/2024 99.90
843 207828-4-1024-4101720 10/31/2024 МХ „ЕЛЕКТРОПРИВРЕДА РЕПУБЛИКЕ СРПСКЕ” СТРУЈА 10/2024 76.93
844 207856-4-1024-4101720 10/31/2024 МХ „ЕЛЕКТРОПРИВРЕДА РЕПУБЛИКЕ СРПСКЕ” СТРУЈА 10/2024 41.37
845 207837-4-1024-4101720 10/31/2024 МХ „ЕЛЕКТРОПРИВРЕДА РЕПУБЛИКЕ СРПСКЕ” СТРУЈА 10/2024 143.60
846 207858-4-1024-4101720 10/31/2024 МХ „ЕЛЕКТРОПРИВРЕДА РЕПУБЛИКЕ СРПСКЕ” СТРУЈА 10/2024 189.17
847 207802-4-1024-4101720 10/31/2024 МХ „ЕЛЕКТРОПРИВРЕДА РЕПУБЛИКЕ СРПСКЕ” СТРУЈА 10/2024 109.68
848 207860-4-1024-4101720 10/31/2024 МХ „ЕЛЕКТРОПРИВРЕДА РЕПУБЛИКЕ СРПСКЕ” СТРУЈА 10/2024 39.88
849 207841-4-1024-4101720 10/31/2024 МХ „ЕЛЕКТРОПРИВРЕДА РЕПУБЛИКЕ СРПСКЕ” СТРУЈА 10/2024 40.07
850 207811-4-1024-4101720 10/31/2024 МХ „ЕЛЕКТРОПРИВРЕДА РЕПУБЛИКЕ СРПСКЕ” СТРУЈА 10/2024 110.30
851 207857-4-1024-4101720 10/31/2024 МХ „ЕЛЕКТРОПРИВРЕДА РЕПУБЛИКЕ СРПСКЕ” СТРУЈА 10/2024 113.47
852 207827-4-1024-4101720 10/31/2024 МХ „ЕЛЕКТРОПРИВРЕДА РЕПУБЛИКЕ СРПСКЕ” СТРУЈА 10/2024 87.45
853 207859-4-1024-4101720 10/31/2024 МХ „ЕЛЕКТРОПРИВРЕДА РЕПУБЛИКЕ СРПСКЕ” СТРУЈА 10/2024 207.38
854 207838-4-1024-4101720 10/31/2024 МХ „ЕЛЕКТРОПРИВРЕДА РЕПУБЛИКЕ СРПСКЕ” СТРУЈА 10/2024 116.83
855 207810-4-1024-4101720 10/31/2024 МХ „ЕЛЕКТРОПРИВРЕДА РЕПУБЛИКЕ СРПСКЕ” СТРУЈА 10/2024 119.77
856 207864-4-1024-4101720 10/31/2024 МХ „ЕЛЕКТРОПРИВРЕДА РЕПУБЛИКЕ СРПСКЕ” СТРУЈА 10/2024 69.52
857 207843-4-1024-4101720 10/31/2024 МХ „ЕЛЕКТРОПРИВРЕДА РЕПУБЛИКЕ СРПСКЕ” СТРУЈА 10/2024 40.59
858 207861-4-1024-4101720 10/31/2024 МХ „ЕЛЕКТРОПРИВРЕДА РЕПУБЛИКЕ СРПСКЕ” СТРУЈА 10/2024 58.40
859 207863-4-1024-4101720 10/31/2024 МХ „ЕЛЕКТРОПРИВРЕДА РЕПУБЛИКЕ СРПСКЕ” СТРУЈА 10/2024 75.96
860 207866-4-1024-4101720 10/31/2024 МХ „ЕЛЕКТРОПРИВРЕДА РЕПУБЛИКЕ СРПСКЕ” СТРУЈА 10/2024 155.36
861 207800-4-1024-4101720 10/31/2024 МХ „ЕЛЕКТРОПРИВРЕДА РЕПУБЛИКЕ СРПСКЕ” СТРУЈА 10/2024 59.87
862 207835-4-1024-4101720 10/31/2024 МХ „ЕЛЕКТРОПРИВРЕДА РЕПУБЛИКЕ СРПСКЕ” СТРУЈА 10/2024 64.80
863 207865-4-1024-4101720 10/31/2024 МХ „ЕЛЕКТРОПРИВРЕДА РЕПУБЛИКЕ СРПСКЕ” СТРУЈА 10/2024 52.99
864 213606-4-1024-4101720 10/31/2024 МХ „ЕЛЕКТРОПРИВРЕДА РЕПУБЛИКЕ СРПСКЕ” СТРУЈА 10/2024 428.21
865 207855-4-1024-4101720 10/31/2024 МХ „ЕЛЕКТРОПРИВРЕДА РЕПУБЛИКЕ СРПСКЕ” СТРУЈА 10/2024 127.06
866 207809-4-1024-4101720 10/31/2024 МХ „ЕЛЕКТРОПРИВРЕДА РЕПУБЛИКЕ СРПСКЕ” СТРУЈА 10/2024 0.00
867 207852-4-1024-4101720 10/31/2024 МХ „ЕЛЕКТРОПРИВРЕДА РЕПУБЛИКЕ СРПСКЕ” СТРУЈА 10/2024 42.95
868 207854-4-1024-4101720 10/31/2024 МХ „ЕЛЕКТРОПРИВРЕДА РЕПУБЛИКЕ СРПСКЕ” СТРУЈА 10/2024 45.36
869 207853-4-1024-4101720 10/31/2024 МХ „ЕЛЕКТРОПРИВРЕДА РЕПУБЛИКЕ СРПСКЕ” СТРУЈА 10/2024 113.69
870 207851-4-1024-4101720 10/31/2024 МХ „ЕЛЕКТРОПРИВРЕДА РЕПУБЛИКЕ СРПСКЕ” СТРУЈА 10/2024 39.88
871 207799-4-1024-4101720 10/31/2024 МХ „ЕЛЕКТРОПРИВРЕДА РЕПУБЛИКЕ СРПСКЕ” СТРУЈА 10/2024 107.87
872 207849-4-1024-4101720 10/31/2024 МХ „ЕЛЕКТРОПРИВРЕДА РЕПУБЛИКЕ СРПСКЕ” СТРУЈА 10/2024 493.64
873 207798-4-1024-4101720 10/31/2024 МХ „ЕЛЕКТРОПРИВРЕДА РЕПУБЛИКЕ СРПСКЕ” СТРУЈА 10/2024 85.58
874 207846-4-1024-4101720 10/31/2024 МХ „ЕЛЕКТРОПРИВРЕДА РЕПУБЛИКЕ СРПСКЕ” СТРУЈА 10/2024 125.22
875 207796-4-1024-4101720 10/31/2024 МХ „ЕЛЕКТРОПРИВРЕДА РЕПУБЛИКЕ СРПСКЕ” СТРУЈА 10/2024 39.59
876 207844-4-1024-4101720 10/31/2024 МХ „ЕЛЕКТРОПРИВРЕДА РЕПУБЛИКЕ СРПСКЕ” СТРУЈА 10/2024 56.37
877 207848-4-1024-4101720 10/31/2024 МХ „ЕЛЕКТРОПРИВРЕДА РЕПУБЛИКЕ СРПСКЕ” СТРУЈА 10/2024 624.69
878 207850-4-1024-4101720 10/31/2024 МХ „ЕЛЕКТРОПРИВРЕДА РЕПУБЛИКЕ СРПСКЕ” СТРУЈА 10/2024 39.35
879 207836-4-1024-4101720 10/31/2024 МХ „ЕЛЕКТРОПРИВРЕДА РЕПУБЛИКЕ СРПСКЕ” СТРУЈА 10/2024 39.54
880 207832-4-1024-4101720 10/31/2024 МХ „ЕЛЕКТРОПРИВРЕДА РЕПУБЛИКЕ СРПСКЕ” СТРУЈА 10/2024 39.35
881 207845-4-1024-4101720 10/31/2024 МХ „ЕЛЕКТРОПРИВРЕДА РЕПУБЛИКЕ СРПСКЕ” СТРУЈА 10/2024 110.40
882 207829-4-1024-4101720 10/31/2024 МХ „ЕЛЕКТРОПРИВРЕДА РЕПУБЛИКЕ СРПСКЕ” СТРУЈА 10/2024 110.88
883 208419-4-1024-4101374 10/31/2024 МХ „ЕЛЕКТРОПРИВРЕДА РЕПУБЛИКЕ СРПСКЕ” СТРУЈА 10/2024 1,665.20
884 207814-4-1024-4101720 10/31/2024 МХ „ЕЛЕКТРОПРИВРЕДА РЕПУБЛИКЕ СРПСКЕ” СТРУЈА 10/2024 48.38
885 208420-4-1024-4101379 10/31/2024 МХ „ЕЛЕКТРОПРИВРЕДА РЕПУБЛИКЕ СРПСКЕ” СТРУЈА 10/2024 9,956.42
886 208734-4-1024-4101660 10/31/2024 МХ „ЕЛЕКТРОПРИВРЕДА РЕПУБЛИКЕ СРПСКЕ” СТРУЈА 10/2024 2,454.12
887 207842-4-1024-4101720 10/31/2024 МХ „ЕЛЕКТРОПРИВРЕДА РЕПУБЛИКЕ СРПСКЕ” СТРУЈА 10/2024 145.18
888 207831-4-1024-4101720 10/31/2024 МХ „ЕЛЕКТРОПРИВРЕДА РЕПУБЛИКЕ СРПСКЕ” СТРУЈА 10/2024 124.78
889 210978-4-1024-4101720 10/31/2024 МХ „ЕЛЕКТРОПРИВРЕДА РЕПУБЛИКЕ СРПСКЕ” СТРУЈА 10/2024 1,224.55
890 1111001 10/22/2024 ЕВРОПА КОМУНИКАЦИЈЕ КОТИЗАЦИЈА ЗА СЕМИНАР „УНАПРЕЂЕЊЕ ПОСЛОВНИХ ВЈЕШТИНА СЕКРЕТАРИЦА, СЕКРЕТАРА, АСИСТЕНАТА И ОСТАЛОГ АДМИНИСТРАТИВНОГ ОСОБЉА” 305.37
891 207801-4-1024-4101720 10/31/2024 МХ „ЕЛЕКТРОПРИВРЕДА РЕПУБЛИКЕ СРПСКЕ” СТРУЈА 10/2024 74.87
892 207830-4-1024-4101720 10/31/2024 МХ „ЕЛЕКТРОПРИВРЕДА РЕПУБЛИКЕ СРПСКЕ” СТРУЈА 10/2024 51.90
893 207847-4-1024-4101720 10/31/2024 МХ „ЕЛЕКТРОПРИВРЕДА РЕПУБЛИКЕ СРПСКЕ” СТРУЈА 10/2024 45.07
894 207813-4-1024-4101720 10/31/2024 МХ „ЕЛЕКТРОПРИВРЕДА РЕПУБЛИКЕ СРПСКЕ” СТРУЈА 10/2024 198.58
895 207833-4-1024-4101720 10/31/2024 МХ „ЕЛЕКТРОПРИВРЕДА РЕПУБЛИКЕ СРПСКЕ” СТРУЈА 10/2024 471.20
896 207819-4-1024-4101720 10/31/2024 МХ „ЕЛЕКТРОПРИВРЕДА РЕПУБЛИКЕ СРПСКЕ” СТРУЈА 10/2024 202.65
897 207818-4-1024-4101720 10/31/2024 МХ „ЕЛЕКТРОПРИВРЕДА РЕПУБЛИКЕ СРПСКЕ” СТРУЈА 10/2024 39.52
898 207817-4-1024-4101720 10/31/2024 МХ „ЕЛЕКТРОПРИВРЕДА РЕПУБЛИКЕ СРПСКЕ” СТРУЈА 10/2024 48.70
899 207834-4-1024-4101720 10/31/2024 МХ „ЕЛЕКТРОПРИВРЕДА РЕПУБЛИКЕ СРПСКЕ” СТРУЈА 10/2024 132.58
900 207804-4-1024-4101720 10/31/2024 МХ „ЕЛЕКТРОПРИВРЕДА РЕПУБЛИКЕ СРПСКЕ” СТРУЈА 10/2024 49.46
901 207803-4-1024-4101720 10/31/2024 МХ „ЕЛЕКТРОПРИВРЕДА РЕПУБЛИКЕ СРПСКЕ” СТРУЈА 10/2024 40.11
902 207795-4-1024-4101720 10/31/2024 МХ „ЕЛЕКТРОПРИВРЕДА РЕПУБЛИКЕ СРПСКЕ” СТРУЈА 10/2024 40.63
903 207808-4-1024-4101720 10/31/2024 МХ „ЕЛЕКТРОПРИВРЕДА РЕПУБЛИКЕ СРПСКЕ” СТРУЈА 10/2024 72.65
904 207797-4-1024-4101720 10/31/2024 МХ „ЕЛЕКТРОПРИВРЕДА РЕПУБЛИКЕ СРПСКЕ” СТРУЈА 10/2024 102.71
905 207806-4-1024-4101720 10/31/2024 МХ „ЕЛЕКТРОПРИВРЕДА РЕПУБЛИКЕ СРПСКЕ” СТРУЈА 10/2024 99.87
906 207807-4-1024-4101720 10/31/2024 МХ „ЕЛЕКТРОПРИВРЕДА РЕПУБЛИКЕ СРПСКЕ” СТРУЈА 10/2024 60.53
907 14898/24 10/31/2024  „ЛИБУСОФТ ЦИЦОМ” д.о.о. МЈЕСЕЧНО ОДРЖАВАЊЕ ЗА РЕГИСТРАЦИЈУ НЕКРЕТНИНА / МЈЕСЕЧНО ОДРЖАВАЊЕ ЗА ЗАКУПНИНЕ / МЈЕСЕЧНО ОДРЖАВАЊЕ ЗА ОСНОВНА СРЕДСТВА ЗА ОКТОБАР 2024. 2,398.50
908 201/24 10/31/2024 „АЛДЕМО ТУРС” д.о.о. СУБВЕНЦИЈЕ 41,785.48
909 916/24 10/31/2024 „ПАВЛОВИЋ ТУРС” д.о.о БАЊА ЛУКА СУБВЕНЦИЈЕ 137,666.32
910 иф-00280-1-24 10/31/2024 АУТОПРЕВОЗ ГРАДСКИ САОБРАЋАЈ д.о.о. СУБВЕНЦИЈЕ 78,628.90
911 иф-00260-1-24 10/31/2024 „РАЛЕ ТУРС” д.о.о. БАЊА ЛУКА СУБВЕНЦИЈЕ 39,795.07
912 1679/24-02с 11/5/2024 „ЛАДА АУТО” БАЊА ЛУКА СЕРВИС ВОЗИЛА 217.15
913 1678/24-02с 11/5/2024 „ЛАДА АУТО” БАЊА ЛУКА СЕРВИС ВОЗИЛА 310.05
914 иф-01234-1-24 10/31/2024 „ДРАГИЧЕВИЋ” д.о.о. БАЊА ЛУКА ОДРЖАВАЊЕ КОПИР АПАРАТА 717.20
915 иф-01229-1-24 10/31/2024 „ДРАГИЧЕВИЋ” д.о.о. БАЊА ЛУКА ПАПИР ПИК-УП 77.22
916 1676/24-02с 11/5/2024 „ЛАДА АУТО” БАЊА ЛУКА СЕРВИС ВОЗИЛА 286.65
917 1675/24-02с 11/5/2024 „ЛАДА АУТО” БАЊА ЛУКА СЕРВИС ВОЗИЛА 293.03
918 1680/24-02с 11/5/2024 „ЛАДА АУТО” БАЊА ЛУКА СЕРВИС ВОЗИЛА 223.06
919 613/2024 11/7/2024 „БОЧАЦ ТУРС” д.о.о. БАЊА ЛУКА СУБВЕНЦИЈЕ 124,543.23
920 ПРЕ-243/24 10/28/2024 „КВЕНТУМ” д.о.о. КОТИЗАЦИЈА ЗА УЧЕШЋЕ НА СЕМИНАРУ 1,125.00
921 ПРЕ-244/24 10/28/2024 „КВЕНТУМ” д.о.о. ТРОШКОВИ СМЈЕШТАЈА 833.18
922 3641436125 10/31/2024 „М:ТЕЛ” а.д. БАЊА ЛУКА МЈЕСЕЧНА ПРЕТПЛАТА НЕТ XС+ 19.00
923 7341411701 10/31/2024 „М:ТЕЛ” а.д. БАЊА ЛУКА ПРЕТПЛАТА ЗА ЧЛАНОВЕ ТДXЛ 5ГБ 71.30
924 1541417993 10/31/2024 „М:ТЕЛ” а.д. БАЊА ЛУКА РАЧУН ЗА X 2024. ЗА ГПС ИНСТРУМЕНТ 19.00
925 5641398062 10/31/2024 „М:ТЕЛ” а.д. БАЊА ЛУКА ИНТЕРНЕТ ЗА ВАТРОГАСНУ ПЛАТФОРМУ БРОНТО 22.23
926 2941438520 10/31/2024 „М:ТЕЛ” а.д. БАЊА ЛУКА МЈЕСЕЧНА ПРЕТПЛАТА ЗА ПАКЕТ XС+ 237.79
927 2041437747 10/31/2024 „М:ТЕЛ” а.д. БАЊА ЛУКА ИНТЕРНЕТ ЗА РЕПЕТИТОР ШИБОВИ 68.84
928 1641437425 10/31/2024 „М:ТЕЛ” а.д. БАЊА ЛУКА С ПАКЕТ ТВ + НЕТ 63.91
929 5741435730 10/31/2024 „М:ТЕЛ” а.д. БАЊА ЛУКА С ПАКЕТ ТВ + НЕТ 62.90
930 6341395570 10/31/2024 „М:ТЕЛ” а.д. БАЊА ЛУКА ИНТЕРНЕТ ЗА СЕИЗМОЛОШКИ АКЦЕЛЕОГРАФ 23.40
931 4841411677 10/31/2024 „М:ТЕЛ” а.д. БАЊА ЛУКА ИНТЕРНЕТ ЗА ВАТРОГАСНЕ ЉЕСТВЕ 20.88
932 4441421152 10/31/2024 „М:ТЕЛ” а.д. БАЊА ЛУКА МЗ СТАРЧЕВИЦА 8,644.13
933 2341430277 10/31/2024 „М:ТЕЛ” а.д. БАЊА ЛУКА ПРЕТПЛАТА 3,588.32
934 4041412294 10/31/2024 „М:ТЕЛ” а.д. БАЊА ЛУКА ПРЕТПЛАТА 19.00
935 5041412420 10/31/2024 „М:ТЕЛ” а.д. БАЊА ЛУКА ПРЕТПЛАТА 79.49
936 24-3010-011419 11/5/2024 ИНСТИТУТ ЗА ЈАВНО ЗДРАВСТВО РС МИКРОБИОЛОШКО ИСПИТИВАЊЕ ВОДЕ ЗА ПИЋЕ 400.00
937 8641411632 10/31/2024 „М:ТЕЛ” а.д. БАЊА ЛУКА ПРЕТПЛАТА ЗА ЧЛАНОВЕ ТД XЛ 5ГБ 232.05
938 4841415363 10/31/2024 „М:ТЕЛ” а.д. БАЊА ЛУКА ПРЕТПЛАТА ЗА ЧЛАНОВЕ ТД XЛ 5ГБ 197.04
939 24-3070-002448 11/11/2024 „ТРИ БЕСТ” д.о.о. БАЊА ЛУКА СЕРВИС ЛИФТА 421.20
940 8041397763 10/31/2024 „М:ТЕЛ” а.д. БАЊА ЛУКА МЈЕСЕЧНА ПРЕТПЛАТА НЕТ:Л ЗА ОКТОБАР 2024. 47.47
941 5941430071 10/31/2024 „М:ТЕЛ” а.д. БАЊА ЛУКА ПРЕТПЛАТА ЗА ИЗНАЈМЉЕНУ ЛИНИЈУ - БРЗИНА ПРЕНОСА 512 КБ/С (1 КОМАД) ЗА ОКТОБАР 2024. 644.41
942 4341430044 10/31/2024 „М:ТЕЛ” а.д. БАЊА ЛУКА ПРЕТПЛАТА ЗА ИЗНАЈМЉЕНУ ЛИНИЈУ - БРЗИНА ПРЕНОСА 256 КБ/С (1 КОМАД) / ПРЕТПЛАТА ЗА ИЗНАЈМЉЕНУ ЛИНИЈУ - БРЗИНА ПРЕНОСА 2 МБ/С (1 КОМАД) / ПРЕТПЛАТА ЗА ИЗНАЈМЉЕНУ ЛИНИЈУ - БРЗИНА ПРЕНОСА 192 КБ/С (15 КОМАДА) - ОКТОБАР 2024. 4,326.35
943 241431545 10/31/2024 „М:ТЕЛ” а.д. БАЊА ЛУКА ПРЕТПЛАТА ЗА ПРИСТУП ИНТЕРНЕТУ НЕТБИЗ С ПАКЕТ (ПЗ РАМИЋИ) - ОКТОБАР 2024. 68.84
944 3041430307 10/31/2024 „М:ТЕЛ” а.д. БАЊА ЛУКА ПРЕТПЛАТА ЗА ИЗНАЈМЉЕНУ ЛИНИЈУ - БРЗИНА ПРЕНОСА 60 МБ/С ЗА ОКТОБАР 2024. 1,536.01
945 48384/24-ЈН 11/5/2024  ЈП НИО „СЛУЖБЕНИ ЛИСТ“ БИХ ОБЈАВА 98.00
946 01/2400773505 10/31/2024 „ЧИСТОЋА” а.д. БАЊА ЛУКА ЧИСТОЋА 10/2024 1,569.65
947 01/2400773776 10/31/2024 „ЧИСТОЋА” а.д. БАЊА ЛУКА ЧИСТОЋА а.д. БАЊА ЛУКА 10/2024 1,342.97
948 01/2400773477 10/31/2024 „ЧИСТОЋА” а.д. БАЊА ЛУКА ЧИСТОЋА 10/2024 696.40
949 33-1000191 10/2024 10/31/2024 „ЕКО ТОПЛАНЕ” д.о.о. БАЊА ЛУКА ТОПЛАНА 10/2024 ИД23945 618.94
950 33-1001612 10/2024 10/31/2024 „ЕКО ТОПЛАНЕ” д.о.о. БАЊА ЛУКА ТОПЛАНА 10/2024 ИД18789 528.15
951 33-1001852 10/2024 10/31/2024 „ЕКО ТОПЛАНЕ” д.о.о. БАЊА ЛУКА ТОПЛАНА 10/2024 ИД20165 324.72
952 33-1001115 10/2024 10/31/2024 „ЕКО ТОПЛАНЕ” д.о.о. БАЊА ЛУКА ТОПЛАНА 10/2024 ИД25593 227.26
953 33-1000836 10/2024 10/31/2024 „ЕКО ТОПЛАНЕ” д.о.о. БАЊА ЛУКА ТОПЛАНА 10/2024 ИД20213 619.46
954 33-1000749 10/2024 10/31/2024 „ЕКО ТОПЛАНЕ” д.о.о. БАЊА ЛУКА ТОПЛАНА 10/2024 ИД16290 345.20
955 33-1000566 10/2024 10/31/2024 „ЕКО ТОПЛАНЕ” д.о.о. БАЊА ЛУКА ТОПЛАНА 10/2024 ИД18175 1,090.56
956 33-1000190 10/2024 10/31/2024 „ЕКО ТОПЛАНЕ” д.о.о. БАЊА ЛУКА ТОПЛАНА 10/2024 ИД21425 502.43
957 33-1002493 10/2024 10/31/2024 „ЕКО ТОПЛАНЕ” д.о.о. БАЊА ЛУКА ТОПЛАНА 10/2024 ИД14460 316.03
958 33-1001486 10/2024 10/31/2024 „ЕКО ТОПЛАНЕ” д.о.о. БАЊА ЛУКА ТОПЛАНА 10/2024 ИД20086 123.39
959 33-1001266 10/2024 10/31/2024 „ЕКО ТОПЛАНЕ” д.о.о. БАЊА ЛУКА ТОПЛАНА 10/2024 ИД19001 42.35
960 33-1001265 10/2024 10/31/2024 „ЕКО ТОПЛАНЕ” д.о.о. БАЊА ЛУКА ТОПЛАНА 10/2024 ИД28393 2,092.78
961 33-1001263 10/2024 10/31/2024 „ЕКО ТОПЛАНЕ” д.о.о. БАЊА ЛУКА ТОПЛАНА 10/2024 ИД28997 1,508.06
962 33-1001127 10/2024 10/31/2024 „ЕКО ТОПЛАНЕ” д.о.о. БАЊА ЛУКА ТОПЛАНА 10/2024 ИД14261 1,256.02
963 33-1001491 10/2024 10/31/2024 „ЕКО ТОПЛАНЕ” д.о.о. БАЊА ЛУКА ТОПЛАНА 10/2024 ИД16578 633.57
964 33-1001496 10/2024 10/31/2024 „ЕКО ТОПЛАНЕ” д.о.о. БАЊА ЛУКА ТОПЛАНА 10/2024 ИД14707 337.76
965 33-1001473 10/2024 10/31/2024 „ЕКО ТОПЛАНЕ” д.о.о. БАЊА ЛУКА ИСПОРУЧЕНА ТОПЛОТНА ЕНЕРГИЈА 260.18
966 33-31924 10/2024 10/31/2024 „ЕКО ТОПЛАНЕ” д.о.о. БАЊА ЛУКА РАЧУН ЗА X 2024. ЗА СТАН БР. 21 У УЛ. К. АЛФОНСА XИИИ БР. 38 133.83
967 213317-4-1024-4101605 10/31/2024 МХ „ЕЛЕКТРОПРИВРЕДА РЕПУБЛИКЕ СРПСКЕ” УТРОШАК ЕЛЕКТРИЧНЕ ЕНЕРГИЈЕ ЗА ПУМПНУ СТАНИЦУ КАНАЛИЗАЦИЈА МОТИКЕ 2 38.29
968 208008-4-1024-4101301 10/31/2024 МХ „ЕЛЕКТРОПРИВРЕДА РЕПУБЛИКЕ СРПСКЕ” НАПЛАТНА ПАРКИНГ КУЋИЦА, АЛЕЈА СВ. САВЕ ББ 786.80
969 Т-ВП-885/10/2024 11/8/2024 „СУПЕР ПЕТРОЛ” д.о.о. БАЊА ЛУКА НАБАВКА ГОРИВА 2,392.70
970 ИФ-01265-1-24 11/11/2024 „ДРАГИЧЕВИЋ” д.о.о. БАЊА ЛУКА БУБАЊ ЗАМЈЕНСКИ 161.46
971 ИФ-01263-1-24 11/11/2024 „ДРАГИЧЕВИЋ” д.о.о. БАЊА ЛУКА БУБАЊ ЗАМЈЕНСКИ 161.46
972 211788-4-1024-4100521 10/31/2024 МХ „ЕЛЕКТРОПРИВРЕДА РЕПУБЛИКЕ СРПСКЕ” РАЧУН ЗА X 2024. ЗА ЦЕНТРАЛНУ ГАРАЖУ БР. 1 У УЛ. КОРДУНАШКА БР. 10 63.39
973 212092-4-1024-4100521 10/31/2024 МХ „ЕЛЕКТРОПРИВРЕДА РЕПУБЛИКЕ СРПСКЕ” РАЧУН ЗА X 2024. ЗА МЗ ПИСКАВИЦА (БАРАКА) 38.65
974 211789-4-1024-4100521 10/31/2024 МХ „ЕЛЕКТРОПРИВРЕДА РЕПУБЛИКЕ СРПСКЕ” РАЧУН ЗА X 2024. ЗА ЈС „ПЕЋИНА” 0.00
975 211795-4-1024-4100521 10/31/2024 МХ „ЕЛЕКТРОПРИВРЕДА РЕПУБЛИКЕ СРПСКЕ” РАЧУН ЗА X 2024. ЗА П. П. БР. 1 У УЛ. К. П. И КАРАЂОРЂЕВИЋА БР. 113 38.63
976 211787-4-1024-4100521 10/31/2024 МХ „ЕЛЕКТРОПРИВРЕДА РЕПУБЛИКЕ СРПСКЕ” РАЧУН ЗА X 2024. ЗА КГК У УЛ. С. МАТАВУЉА БР. 4 А 39.09
977 211796-4-1024-4100521 10/31/2024 МХ „ЕЛЕКТРОПРИВРЕДА РЕПУБЛИКЕ СРПСКЕ” РАЧУН ЗА X 2024. ЗА П. П. БР. 1 У МЗ ПЕТРИЋЕВАЦ 38.63
978 210253-4-1024-4100521 10/31/2024 МХ „ЕЛЕКТРОПРИВРЕДА РЕПУБЛИКЕ СРПСКЕ” РАЧУН ЗА X 2024. ЗА МОБИЛНИ ШТАНД У УЛ. Ц. ЛАЗАРА ББ 79.40
979 210252-4-1024-4100521 10/31/2024 МХ „ЕЛЕКТРОПРИВРЕДА РЕПУБЛИКЕ СРПСКЕ” РАЧУН ЗА X 2024. ЗА МОБИЛНИ ШТАНД У УЛ. Б. ПОПОВИЋА БР. 2 38.46
980 210255-4-1024-4100521 10/31/2024 МХ „ЕЛЕКТРОПРИВРЕДА РЕПУБЛИКЕ СРПСКЕ” РАЧУН ЗА X 2024. ЗА МОБИЛНИ ШТАНД У УЛ. С. ПРВОВЕНЧАНОГ ББ 49.83
981 210254-4-1024-4100521 10/31/2024 МХ „ЕЛЕКТРОПРИВРЕДА РЕПУБЛИКЕ СРПСКЕ” РАЧУН ЗА X 2024. ЗА МОБИЛНИ ШТАНД У Б. В. Ж. МИШИЋА БР. 57 73.37
982 210251-4-1024-4100521 10/31/2024 МХ „ЕЛЕКТРОПРИВРЕДА РЕПУБЛИКЕ СРПСКЕ” РАЧУН ЗА X 2024. ЗА МОБИЛНИ ШТАНД У УЛ. Д. ВАСИЋА ББ 96.05
983 213318-4-1024-4101605 10/31/2024 МХ „ЕЛЕКТРОПРИВРЕДА РЕПУБЛИКЕ СРПСКЕ” УТРОШАК ЕЛЕКТРИЧНЕ ЕНЕРГИЈЕ ЗА ПУМПНУ СТАНИЦУ КАНАЛИЗАЦИЈА МОТИКЕ 1 40.98
984 213279-4-1024-4101720 10/31/2024 МХ „ЕЛЕКТРОПРИВРЕДА РЕПУБЛИКЕ СРПСКЕ” КУЋИЦА ЗА НАПЛАТУ ПАРКИНГА КОД КАСТЕЛА, ТРЖНИЧКА ББ 38.29
985 213278-4-1024-4101720 10/31/2024 МХ „ЕЛЕКТРОПРИВРЕДА РЕПУБЛИКЕ СРПСКЕ” НАПЛАТНА КУЋИЦА НА ПАРКИНУ ПОРЕД ХОТЕЛА ПАЛАС, КРАЉА ПЕТРА И КАРАЂОРЂЕВИЋА 58 113.88
986 213277-4-1024-4101720 10/31/2024 МХ „ЕЛЕКТРОПРИВРЕДА РЕПУБЛИКЕ СРПСКЕ” НПЛАТНА КУЋИЦА ЗА ПАРКИНГ БАНА ДР ТОДОРА ЛАЗАРЕВИЋА ББ 64.10
987 213273-4-1024-4101720 10/31/2024 МХ „ЕЛЕКТРОПРИВРЕДА РЕПУБЛИКЕ СРПСКЕ” НАПЛАТНА ПАРКИНГ КУЋИЦА КРАЉА ПЕТРА И КАРАЂОРЂЕВИЋА 74 А 38.29
988 213272-4-1024-4101720 10/31/2024 МХ „ЕЛЕКТРОПРИВРЕДА РЕПУБЛИКЕ СРПСКЕ” НАПЛАТНА ПАРКИНГ КУЋИЦА МЛАДЕНА СТОЈАНОВИЋА КОД 123 62.68
989 213274-4-1024-4101720 10/31/2024 МХ „ЕЛЕКТРОПРИВРЕДА РЕПУБЛИКЕ СРПСКЕ” НАПЛАТНА ПАРКИНГ КУЋИЦА КОД МЕДИЦИНСКЕ ЕЛЕКТРОНИКЕ, ВУКА КАРАЏИЋА 1 41.62
990 213281-4-1024-4101720 10/31/2024 МХ „ЕЛЕКТРОПРИВРЕДА РЕПУБЛИКЕ СРПСКЕ” ПАРКИНГ ВОЗИЛА - ПАУК СЛУЖБА 338.75
991 14961/24 10/31/2024  „ЛИБУСОФТ ЦИЦОМ” д.о.о. ПРЕНОС ПОЧЕТНОГ СТАЊА 6,178.55
992 643/24 10/31/2024 ЗЕВ ПАЛИХ БОРАЦА 13 РАЧУН ЗА X 2024. ЗА СТАН БР. 4 16.40
993 646/24 10/31/2024 ЗЕВ ПАЛИХ БОРАЦА 13 РАЧУН ЗА X 2024. ЗА СТАН БР. 7 15.20
994 649/24 10/31/2024 ЗЕВ ПАЛИХ БОРАЦА 13 РАЧУН ЗА X 2024. ЗА СТАН БР. 10 14.00
995 648/24 10/31/2024 ЗЕВ ПАЛИХ БОРАЦА 13 РАЧУН ЗА X 2024. ЗА СТАН БР. 9 15.20
996 697/24 10/31/2024 ЗЕВ ПАЛИХ БОРАЦА 13 РАЧУН ЗА X 2024. ЗА СТАН БР. 58 16.00
997 700/24 10/31/2024 ЗЕВ ПАЛИХ БОРАЦА 13 РАЧУН ЗА X 2024. ЗА СТАН БР. 61 16.00
998 702/24 10/31/2024 ЗЕВ ПАЛИХ БОРАЦА 13 РАЧУН ЗА X 2024. ЗА СТАН БР. 63 16.00
999 705/24 10/31/2024 ЗЕВ ПАЛИХ БОРАЦА 13 РАЧУН ЗА X 2024. ЗА СТАН БР. 66 16.40
1000 706/24 10/31/2024 ЗЕВ ПАЛИХ БОРАЦА 13 РАЧУН ЗА X 2024. ЗА СТАН БР. 67 16.00
1001 707/24 10/31/2024 ЗЕВ ПАЛИХ БОРАЦА 13 РАЧУН ЗА X 2024. ЗА СТАН БР. 68 16.00
1002 50009/24-ЈН 11/12/2024  ЈП НИО „СЛУЖБЕНИ ЛИСТ“ БИХ УСЛУГА ОБЈАВЕ ЈН У СЛУЖБЕНОМ ГЛАСНИКУ 98.00
1003 79/24 ОКОНЧАНА СИТУАЦИЈА 11/15/2024 „БУНИЋ КОМПАНИ” д.о.о. БАЊА ЛУКА ХИТНЕ ИНТЕРВЕНЦИЈЕ НА ЈАВНИМ ПОВРШИНАМА 38,949.30
1004 2-9050/2024 11/15/2024 „СУПЕР ПЕТРОЛ” д.о.о. БАЊА ЛУКА НАБАВКА ГОРИВА 4,998.42
1005 1007006021 11/19/2024 САВЕЗ РАЧУНОВОЂА И РЕВИЗОРА РЕПУБЛИКЕ СРПСКЕ НОВОСТИ У ПРОПИСИМА БУЏЕТСКОГ РАЧУНОВОДСТВА У 2024. ГОДИНИ - СЕМИНАР -СТАНИЋ САНДРА 150.00
1006 1007007523 11/19/2024 САВЕЗ РАЧУНОВОЂА И РЕВИЗОРА РЕПУБЛИКЕ СРПСКЕ НОВОСТИ У ПРОПИСИМА БУЏЕТСКОГ РАЧУНОВОДСТВА У 2024. ГОДИНИ - СЕМИНАР -ЂУКИЋ ЗДЕНКА 150.00
1007 1007007933 11/15/2024 САВЕЗ РАЧУНОВОЂА И РЕВИЗОРА РЕПУБЛИКЕ СРПСКЕ НОВОСТИ У ПРОПИСИМА БУЏЕТСКОГ РАЧУНОВОДСТВА У 2024. ГОДИНИ - СЕМИНАР -СТАНИШИЋ САЊА 225.00
1008 1007012824 11/19/2024 САВЕЗ РАЧУНОВОЂА И РЕВИЗОРА РЕПУБЛИКЕ СРПСКЕ НОВОСТИ У ПРОПИСИМА БУЏЕТСКОГ РАЧУНОВОДСТВА У 2024. ГОДИНИ - СЕМИНАР -КУЗМАН АНА 225.00
1009 1007011957 11/19/2024 САВЕЗ РАЧУНОВОЂА И РЕВИЗОРА РЕПУБЛИКЕ СРПСКЕ НОВОСТИ У ПРОПИСИМА БУЏЕТСКОГ РАЧУНОВОДСТВА 2024 - СЕМИНАР - ШЉИВАР БОЖАНА 225.00
1010 1007006964 11/19/2024 САВЕЗ РАЧУНОВОЂА И РЕВИЗОРА РЕПУБЛИКЕ СРПСКЕ НОВОСТИ У ПРОПИСИМА БУЏЕТСКОГ РАЧУНОВОДСТВА У 2024. ГОДИНИ - СЕМИНАР -ВУЈИЋ ДЕЈАН 225.00
1011 МД10/20/11/2024 11/20/2024 ЗТЦ „БАЊА ВРУЋИЦА” СМЈЕШТАЈ ЗА 7 ОСОБА 1,610.60
1012 60/24 11/18/2024 УДРУЖЕЊЕ ИНТЕРНИХ РЕВИЗОРА БАЊА ЛУКА КОТИЗАЦИЈА ЗА СЕМИНАР - ЈЕЛЕНА КАТАЛИНА 300.00
1013 38/24 10/17/2024 „РОДА ФИЛМ” с.п. 5,950.00
1014 ПРЕДРАЧУН БР. 1007006604 11/7/2024 САВЕЗ РАЧУНОВОЂА И РЕВИЗОРА РЕПУБЛИКЕ СРПСКЕ НОВОСТИ У ПРОПИСИМА БУЏЕТСКОГ РАЧУНОВОДСТВА У 2024. ГОДИНИ - СЕМИНАР - ЛОЛИЋ МИРА 225.00
1015 ПРЕДРАЧУН БР. МВ-1-1-/11/2024 11/19/2024 ЗТЦ „БАЊА ВРУЋИЦА” РЕЗЕРВАЦИЈА ХОТЕЛА „КАРДИАЛ” ЗА ЛОЛИЋ МИРУ 335.40
1016  Авансна фактура ФА/2024/0302 11/27/2024 „АД КРАФТ” д.о.о. УСЛУГА ИЗРАДЕ НОВОГ САЈТА ГРАДА - 1. РАТА - АВАНСНА ФАКТУРА 15,210.00
1017 6241411446 10/31/2024 „М:ТЕЛ” а.д. БАЊА ЛУКА ТРОШКОВИ ЗА МОБИЛНИ ТЕЛЕФОН 10/2024 12,065.69
1018 2941421157 10/31/2024 „М:ТЕЛ” а.д. БАЊА ЛУКА ВАТДОМДЕР 3,954.67
УКУПНО: 5,471,426.94